Anna Haarsakers veg 3
1 920 000 kr
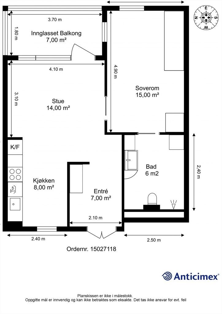
50 m²
1 soverom
Solgt

Risvollan
Flott 2-roms omsorgsbolig i rolige omgivelser |Nybygd i 2021 |Heis |Sørvendt |To boder |Romslige fellesarealer
Prisantydning
1 920 000 krAndel fellesgjeld
450 380 krOmkostninger
19 446 krTotalpris
2 389 826 kr
Pris
Bruksareal
66 m²BRA-I (internt bruksareal)
50 m²BRA-E (eksternt bruksareal)
9 m²
Areal
Etasje
4Byggeår
2021Soverom
1 soveromBad
1 badType
AndelsleilighetEierform
AndelFasiliteter
Heis og Balkong/TerrasseFellesutgifter
7 874 krEnergimerke
Grønn C
Nøkkelinfo
Unngå doble boligrenter
Vi tilbyr gunstig forsikring.
Vurderer du utleie?
Få et tilbud fra Utleie KrogsveenHva koster lånet?
Sjekk estimert lånekostnadBeskrivelse
Kort om eiendommen
Velkommen til Anna Haarsakers veg 3 - og denne flotte 2-roms omsorgsleiligheten med sentral og ettertraktet beliggenhet på Risvollan! Leiligheten ligger i tilknytning til Risvollan helse- og velferdssenter. Her bor man med kort vei til en rekke dagligdagse servicetilbud og flotte turmuligheter.
Verdt å nevne:
- Vendt mot sør med flott utsikt fra toppetasjen
- Bygg oppført i 2021 med god standard
- Lys og trivelig leilighet i 4. etasje
- Praktisk planløsning med utstrakte vindusflater som sikrer rikelig med naturlig dagslys
- Åpen stue- og kjøkkenløsning med plass til ønsket møblement
- Pent flislagt bad med varme i gulv
- Stort soverom med plass til garderobe
- Bod i kjelleren og like utenfor leiligheten med gode oppbevaringsmuligheter
- Fjernvarme og balansert ventilasjon
- Heis
Område
Legg til steder som er viktige for deg
På flyttefot? Tenk kjøp og salg samtidig.
Få din egen rådgiver gjennom hele kjøps- og salgsprosessen. Det starter med en verdivurdering.
Unngå doble boligrenter
Vi tilbyr gunstig forsikring.
Vurderer du utleie?
Få et tilbud fra Utleie KrogsveenHva koster lånet?
Sjekk estimert lånekostnadVil du varsles om lignende boliger?
Ved å lagre ditt boligsøk hos oss får du beskjed når vi har en bolig som ligner denne, før den legges ut på markedet!









