Utleirmark 6 A
1 390 000 kr
47 m²
1 soverom
Komplett salgsoppgave

Fossegrenda
2-roms andelsleilighet fra 2015 med fantastisk utsikt | Stor sydvendt terrasse med gode solforhold | Vannbåren gulvvarme
Prisantydning
1 390 000 krAndel fellesgjeld
1 389 237 krOmkostninger
19 253 krTotalpris
2 798 490 kr
Pris
Bruksareal
51 m²
Areal
Etasje
1Byggeår
2015Soverom
1 soveromBad
1 badType
AndelsleilighetEierform
AndelFasiliteter
Balkong/TerrasseFellesutgifter
13 042 krEnergimerke
Grønn B
Nøkkelinfo
Unngå doble boligrenter
Vi tilbyr gunstig forsikring.
Vurderer du utleie?
Få et tilbud fra Utleie KrogsveenHva koster lånet?
Sjekk estimert lånekostnadBeskrivelse
Kort om eiendommen
Innhold og byggemåte
Innhold og byggemåte
Eiendommen
Utleirmark 6 A, 7038 Trondheim
Kommunenummer 5001, gårdsnummer 91, bruksnummer 26
Andelsnummer 3, Utleirmark Borettslag, organisasjonsnummer 914 612 640
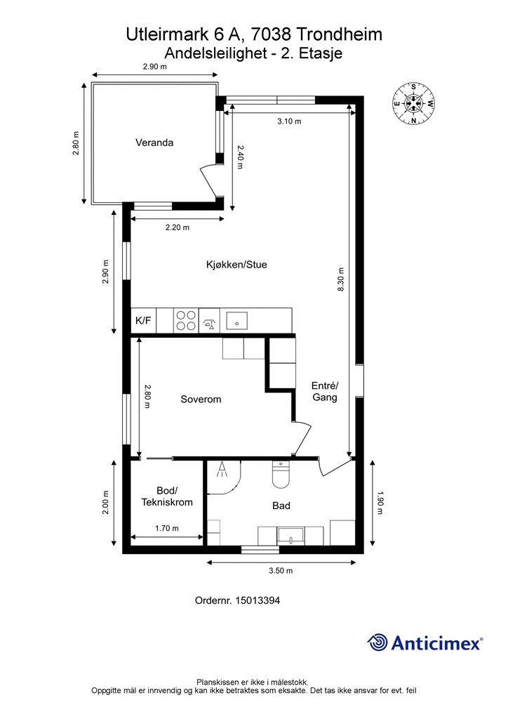
Innhold
Totalt bruttoareal: ca 58 kvm
Totalt bruksareal: ca 51 kvm
Totalt primærrom: ca 47 kvm.: Entré/gang, bad, kjøkken/stue, soverom
Totalt sekundærrom: ca 4 kvm.: Innvendig bod
Vedlagte plantegninger er ikke målbare. De oppgitte arealer er hentet fra rapport datert 23.07.2021 utført av Takst-Stig Trondheim Stig M Selnes.
Byggemåte
Bygningen er iht. tilstandsrapporten oppført med grunnmur og bærende konstruksjoner i hovedsak av betong. Fundamentert på ukjent byggegrunn. Bygget er oppført med støpt gulv mot grunn. Yttervegger av trekonstruksjoner. Fasaden er kledd med stående trekledning. Etasjeskillere av trekonstruksjoner. Flatt tak (ikke besiktiget). Leiligheten har entrédør med brannklasse B30 og lydklasse db35. Boligen har entrédør med glassfelter og elektrisk kodelås. Vinduer og balkongdør med karmer av tre, og tre-lags glass. Oppvarming med vannbåren varme i gulv. Mekanisk balansert ventilasjon.
Selger har fått utarbeidet en tilstandsrapport, dvs en teknisk gjennomgang av boligen hvor eventuelle avvik, risiko for kjøper og prisoverslag for hva som bør gjøres av oppgradering, er skissert. Se særskilt TGIU (tilstandgrad ikke undersøkt), samt TG2 og TG3 som viser hva som er avvik fra boligens normale slitasje, alder og type, eller som bør/må utbedres. Rapporten og selgers egenerklæring er en del av salgsoppgaven og må leses nøye før bud inngis. Kjøper overtar ansvaret for de opplysninger som fremkommer av salgsdokumentasjonen, og kan ikke gjøre gjeldende som mangel noe som burde vært kjent eller som ikke kan anses å ha betydning for avtalen.
Standard
Det er gitt 4 stk. TG 2 i tilstandsrapporten fra bygningssakyndig. Se nærmere beskrivelser i tilstandsrapport, datert 04.01.2022
Hvitevarer som er integrerte medfølger handelen. Evt. andre hvitevarer må avtales direkte med selger.
Løsøre og tilbehør
Vi viser til liste fra Norges Eiendomsmeglerforbund som gjelder fra 01.01.2020 angående løsøre og tilbehør.
Oppvarming
Dersom beboelsesrom ikke har vegg- eller fastmonterte varmekilder ved visning følger dette heller ikke med.
Leiligheten har oppvarming via fjernvarme
Ferdigattest/brukstillatelse
Det foreligger ferdigattest på eiendommen datert 04.11.2015. Denne kan fås ved henvendelse til megler.
Det er uvisst om det er gjort endringer etter at ferdigattest ble gitt, men selger opplyser at det ikke er foretatt endringer i selgers eiertid.
Det gjøres oppmerksom at det ikke lenger utstedes ferdigattest på tiltak det er søkt om før 1998 jf. plan- og bygningsloven §21-10. Kommunen vil ikke kreve ferdigattest for disse tiltakene og vil avvise eventuelle søknader. Bestemmelsen innebærer ikke at tiltak med manglende søknad blir lovlige, men at man ikke trenger å avslutte gamle byggesaker. Normalt sett kreves ferdigattest for alle søknadspliktige tiltak som gjøres etter plan - og bygningsloven.
Kjøper overtar eiendommen slik den fremstår på visning.
Tinglyste heftelser og rettigheter
Utover andel fellesgjeld overdras leiligheten fri for pengeheftelser med unntak av:
2016/99101-1/200 03.02.2016 PANTEDOKUMENT
Beløp: NOK 7 300 000
Panthaver: HUSBANKEN
ORG.NR: 942 114 184
Uomsettelig
2016/497953-1/200 03.06.2016 FELLES PANTEDOK BOR.INNSK
Beløp: NOK 3 601 720
Panthaver: BORETTSL.ANDELSE. I FELLESSKAP, JF.
BRRL§2-11,1.L
LØPENR: 13875442
Borettslaget har legalpant for forfalte felleskostnader og andre krav som følger av borettslagsforholdet iht. burettslagsloven § 5-20. Pantet er begrenset oppad til 2G (G = folketrygdens grunnbeløp).
Det er tinglyst følgende servitutter på borettslagets eiendom.
2003/6722-2/107 02.04.2003 ERKLÆRING/AVTALE
Rettighet hefter i: KNR: 5001 GNR: 91 BNR: 22
Bestemmelse om veg
2003/6723-2/107 02.04.2003 ERKLÆRING/AVTALE
Rettighet hefter i: KNR: 5001 GNR: 91 BNR: 15
Rettighet hefter i: KNR: 5001 GNR: 91 BNR: 25
Bestemmelse om vann/kloakkledning og vedlikehold
GJELDER DENNE REGISTERENHETEN MED FLERE
2008/890272-1/200 03.11.2008 ERKLÆRING/AVTALE
Rettighet hefter i: KNR: 5001 GNR: 91 BNR: 25
Bestemmelse om vann og kloakkledning
GJELDER DENNE REGISTERENHETEN MED FLERE
2012/471643-1/200 14.06.2012 BEST. OM ADKOMSTRETT
Rettighet hefter i: KNR: 5001 GNR: 91 BNR: 15
Gjelder i 5 år.
Servituttene vil følge eiendommen. Kjøpers bank vil få pant etter ovennevnte heftelser og servitutter.
Eventuell adgang til utleie
Andelseier kan ikke uten samtykke fra styret i borettslaget overlate bruken av boligen til andre. Med samtykke kan andelseier overlate boligen til andre i inntil tre år hvis andelseier har bodd i boligen i minst ett av de to siste år. Utleie i andre tilfeller kan godtas ved særlige grunner, jf. burettslagslova § 5-6. Se også borettslagets vedtekter og konferer megler ved spørsmål.
Diverse
Tilbud av produkter og tjenester fra våre samarbeidspartnere. Vi er opptatt av verdiskapning, og har knyttet til oss samarbeidspartnere som skal sikre våre kunder de beste produkter og tjenester:
- Gjensidige leverer boligselgerforsikring og tilbyr bygningsforsikring.
- Boligkjøperforsikring levers av Hiscox og med Sedgwick som skadebehandler, og er formidlet gjennom Gjensidige.
- BN bank tilbyr finansieringsløsninger.
- Vår avdeling Krogsveen Pluss tilbyr flyttetjenester som utvask, visningsvask, lager, tømming og transport av flyttelass, i tillegg til å formidle kontakt med Flip for overflateoppussing.
- I forbindelse med overtagelse av eiendommen tilbyr Overo avtale om strøm, alarm og bredbånd.
- Krogsveen er, sammen med øvrige bransjeaktører, medeier i den digitale annonseringsplattformen Hjem.
Beliggenhet og tomteforhold
Beliggenhet og tomteforhold
Beliggenhet
Utleirmark 6A har en meget flott beliggenhet på en høyde med fantastisk utsikt og gode solforhold. Her har du kort vei til butikk- og servicesenter og offentlig kommunikasjon.
Sentralt til alle bydeler. Ca. 5 km til Trondheim Torg, City Syd og City Lade. Ca. 2,5 km til Lerkendal Stadion, NTNU Gløshaugen. Gangavstand til Nidelven med sine gode rekreasjonsområder.
Adkomst
Fra sentrum kjører du mot Sluppen og følger videre Bratsbergveien sørover. Ta av til høyre inn mot Fossegrenda, og deretter første til høyre inn Utleirmark. Avkjøring til nr. 6A er ned til venstre forbi Utleirmark 4B.
Barnehager, skoler og fritid
Barnehager
Horneberg FUS barnehage (0-6 år) 8 min
90 barn, 5 avdelinger 0.7 km
Nardo bhg. - Nordslettveien barneh... 13 min
52 barn, 4 avdelinger 1 km
Smidalen og Utleir barnehager (Utle... 12 min
56 barn, 4 avdelinger 1 km
Skoler
Utleira skole (1-7 kl.) 13 min
404 elever, 18 klasser 1.1 km
Nidarvoll skole (1-7 kl.) 16 min
397 elever, 17 klasser 1.4 km
Sunnland skole (8-10 kl.) 22 min
352 elever, 14 klasser 1.8 km
Strinda videregående skole 10 min
450 elever, 17 klasser 5.6 km
Trondheim Katedralskole 12 min
600 elever, 21 klasser 5.1 km
Dagligvare
Rema 1000 Fossegrenda 5 min
Bunnpris Stubban 12 min
Varer/Tjenester
Fossegrenda Senter 5 min
Nardo centeret 7 min
Boots apotek Risvollan 17 min
City Syd Vinmonopol 9 min
Valentinlyst Vinmonopol 11 min
Sport
Saturnvegen nærmiljøanlegg - ballbane14 min
Risvollan ballplass- grus 14 min
3T-Fossegrenda 11 min
3T-Sluppen 22 min
Offentlig transport
Utleirmark 2 min
Linje 10, 51, 73, 74 0.1 km
Lerkendal stasjon 9 min
Linje 26 4.2 km
Trondheim 15 min
Linje 21, 25, 26, 71, 72 6.1 km
Trondheim Værnes 29 min
Beskrivelse av tomt
Eiet tomt på 915,6 kvm som tilhører borettslaget.
Parkering
Det er ikke spesifisert hvordan parkering fungerer. Borettslaget har egen garasje som i dag benyttes som lagring. Det er også en oppstillingsplass utenfor bygget.
Vei, vann og avløp
Eiendommen har adkomst via privat vei med felles vedlikeholdsansvar for Borettslaget.
Eiendommen er tilknyttet kommunalt ledningsnett via private stikkledninger. Borettslaget er ansvarlig for private stikkledninger til bygningen.
Regulerings-og arealplaner
Eiendommen er regulert til boligformål, og er underlagt reguleringsplan r0456 Hornebergveien med tilliggende områder, (Fossegrenda). (23.2.2006) Frittliggende småhusbebyggelse
Utsnitt av plan med tilhørende bestemmelser kan fås ved henvendelse til megler.
Økonomi
Økonomi
Boligens kostnader
Felleskostnadene er kr 13 042,- pr. mnd. fra 01.01.2024 og inkluderer: Kommunale avgifter, felles strøm, felles bygningsforsikring, kabel-tv/internett, drift- og vedlikehold
Felleskostnadene justeres normalt en til to ganger årlig i forhold til borettslagets faktiske utgifter.
Cirka fordeling fellesutgiftene:
Felleskostnad driftsdel 4 354
Felleskostnad kapitaldel 8 688
Andel felleskostnader forfaller til betaling den 1. i hver måned. Ved salg faktureres felleskostnadene til kjøper fra 1. i første hele måned. Ved overtakelse på annen dato enn 1. må kjøper og selger gjøre opp seg imellom.
Felleskostnadene bør sjekkes før overtakelse, da det kan ha skjedd endringer etter avgitt informasjon.
Nåværende eier har ikke oppgitt sitt strømforbruk pga. usikkerhet rundt kostnaden.
Boligen er tilknyttet Telenor som leverandør av kabel-tv.
Utgiftene er basert på nåværende eiers forbruk. Kjøper må selv tegne innboforsikring.
Formuesverdi
Formuesverdi for 2019 var kr 695 821,- ifølge selger/skatteetaten. Beløpet forutsetter at eier bor fast i boligen (primærbolig).
Ved eventuell øvrig bruk av eiendommen (f.eks. fritidsbolig, pendlerbolig, utleieobjekt) vil formuesverdien for 2020 bli kr 2 504 955,60.
Formuesverdien justeres normalt årlig. Se skatteetaten.no for mer informasjon om fastsettelse av formuesverdien.
Opplysninger om fellesgjeld
Andel formue er kr 73 591,- pr. 11.07.2025
Andel fellesgjeld er kr 1 389 237,- pr. 11.07.2025.
Spesifikasjon av lån:
Lånenummer: 14636024310, Den Norske Stats Husbank
Annuitetslån, 2 terminer per år.
Rentesats per 11.07.2025: 4.6% pa.
Antall terminer til innfrielse: 42
Saldo per 11.07.2025: 5 556 948
Andel av saldo: 1 389 237
Første termin/første avdrag: 01.01.2017 ( siste termin 01.07.2046 )
Flytende rente
Det tas forbehold om at nylig varslede renteendringer er registrert.
Årsresultatet for regnskapsåret 2024 viser et overskudd på kr. 138 408,- som ble overført til annen egenkapital.
Omkostninger
1 390 000,00 Prisantydning
1 389 237,00 Andel av fellesgjeld
--------------------------------------------------------
2 779 237,00 Pris inkl. fellesgjeld
Omkostninger
8 213,00 Gebyr forhåndsavklaring forkjøpsrett
545,00 Tinglysing hjemmel
545,00 Tinglysing panterettsdokument
9 950,00 Tryg Boligkjøperpakke (valgfri)
--------------------------------------------------------
19 253,00 Omkostninger totalt
--------------------------------------------------------
2 798 490,00 Totalpris inkl. omkostninger
--------------------------------------------------------
Dersom kjøper ikke er medlem av boligbyggelaget, må det påregnes en innmeldingsavgift og årlig medlemsgebyr pr. ny andelseier. Dette faktureres direkte fra boligbyggelaget.
Dersom borettslaget har fellesgjeld, vil leilighetens andel av fellesgjelden komme i tillegg til kjøpesummen. Denne gjelden skal ikke innbetales i oppgjøret, men følger leiligheten.
Det tas forbehold om endringer i avgifter og gebyrer.
Betalingsbetingelser
Kjøpesum inkludert omkostninger, samt pantedokument tilknyttet eventuelt lån, skal være disponibelt hos megler 2 virkedager før overtagelsen.
Annen viktig informasjon
Annen viktig informasjon
Eier
Eline Marie Bjerkås
Informasjon om forkjøpsrett
Borettslagets navn er Utleirmark borettslag, organisasjonsnummer 914612640.
Borettslaget består av 4 leiligheter.
Forretningsfører er TOBB.
Styreleder: Mona Ødegård Helberg
Styret i borettslaget er ansvarlig for å tegne bygningsforsikring. Hver enkelt andelseier må skaffe egen innboforsikring.
Borettslaget er forsikret i Tryg Forsikring med polisenr.: 7776795.
Leilighetens bolignummer er H0101.
Hver av de fire andelseierne skal betale et innskudd til borettslaget på kr. 900 000,-.
Styret har i 2019 godkjent som en prøveordning av en av andelseierne kan ha hund. Denne ordningen er videreført.
I henhold til borettslagets vedtekter må kjøper godkjennes av styret som ny andelseier. Det er kjøpers ansvar at styregodkjenning blir gitt, men styret kan ikke nekte godkjenning uten saklig grunn. Iht. burettslagslova kan man bare eie en andel i borettslaget. Kun fysiske personer med fysisk eller psykisk handikap som medfører behov for noe offentlig omsorgsbistand kan være andelseiere. Erververen har ikke rett til å ta boligen i bruk før godkjenning er gitt, eller det er rettskraftig avgjort at erververen har rett til å erverve andelen.
Øvrige andelseiere i borettslaget har forkjøpsrett. Dersom boligen tas på forkjøpsrett løses kjøper fra avtalen.
Hvis borettslaget lider tap som følge av at en andelseier ikke betaler sine felleskostnader, kan et eventuelt tap medføre at de andre andelseierne må betale høyere felleskostnader. Borettslaget har tegnet
sikring, i henhold til borettslagsloven, mot denne type tap. Leverandør av sikring: Boligbyggelagenes Finansieringsforetak AS. Varighet av avtalen / oppsigelsesvilkår: Borettslag kan si opp avtalen med 6 mnd skriftlig varsel.
Dokumenter for borettslaget kan fås ved henvendelse til megler.
Overtakelse
Etter nærmere avtale, men ikke før selger har overtatt ny bolig. I tillegg kan overtakelse tidligst skje etter at forkjøpsretten for øvrige andelseiere i borettslaget er avklart, samt at styrets godkjennelse er avklart.
Boligselgerforsikring
Selger har i forbindelse med salget tegnet boligselgerforsikring levert av Gjensidige.
Boligselgerforsikringen dekker selgers ansvar etter avhendingsloven begrenset oppad til kr 14 millioner. Dersom kjøper oppdager forhold ved eiendommen som hen mener utgjør en mangel ved eiendommen, vil Gjensidige behandle reklamasjonen på vegne av selger. Forsikringsvilkår kan fås ved henvendelse til megler.
Vedlagt salgsoppgaven følger selgers egenerklæringsskjema og tilstandsrapport. Interessenter må sette seg inn i dokumentene før bud inngis.
Boligkjøperforsikring
Innen kontraktsmøtet må kjøper ta stilling til om det ønskes å bestille Boligkjøperpakken gjennom Gjensidige. I denne gunstige pakken er boligen ferdig forsikret og inkluderer rettshjelpsforsikring, også kalt Boligkjøperforsikring. Rettshjelpsforsikring gir trygghet og tilgang på profesjonell juridisk hjelp dersom det oppdages uventede feil eller mangler det første året etter overtagelse. Forsikringsselskapet behandler i så fall ethvert mangelskrav kjøper måtte ha overfor selger.
Boligkjøperpakken inkluderer bygningsforsikring for hus og hytte, innboforsikring, flytteforsikring og dobbel rentedekning - i situasjoner hvor kjøper ikke får solgt nåværende primærbolig.
Kjøper mottar ingen særskilt faktura for Boligkjøperpakken da kostnaden det første året legges til kjøpesummen for boligen. Det gjøres oppmerksom på Krogsveen mottar et honorar for denne formidlingen.
Produktark for Boligkjøperpakken ligger vedlagt i salgsoppgaven.
Dersom ikke boligkjøperpakke ønskes kan kun rettshjelpsforsikring, også kalt boligkjøperforsikring, tegnes særskilt via megler. Rettshjelpsforsikringen varer i 5 år fra overtagelse og leveres gjennom Gjensidige. Ta kontakt med megler for ytterligere informasjon.
Selskap og privatpersoner som driver med kjøp/salg/utvikling som ledd i egen næringsvirksomhet kan ikke tegne boligkjøperpakke eller rettshjelpsforsikring.
Budgivning
Forbrukerinformasjon om budgivning er vedlagt denne salgsoppgaven og er også på vår hjemmeside Krogsveen.no. Alle bud og budforhøyelser må inngis skriftlig. I tillegg må legitimasjon være fremlagt sammen med signatur fra budgiver.
Vi oppfordrer til å gi bud elektronisk via GI BUD-knappen på eiendommens hjemmeside på Krogsveen.no. Da vil samtlige vilkår bli oppfylt. Eventuelle forhøyelser eller endringer av budet kan bekreftes pr SMS eller på e-post. Vi oppfordrer alltid til å kontakte megler pr. telefon i tillegg da forsinkelser i SMS og e-post kan forekomme.
For at budene skal kunne bli behandlet og videreformidlet skriftlig til alle involverte parter, må alle bud ha en tilstrekkelig lang akseptfrist, jf. eiendomsmeglingsforskriften § 6-3.
Selger må også skriftlig akseptere budet før aksept kan formidles til budgiver. Akseptfrist bør derfor være på minimum 30 minutter, og budforhøyelser må derfor skje i god tid før fristens utløp.
Bud i forbrukerforhold kan uansett ikke settes med kortere frist enn kl. 12.00 første virkedag etter siste annonserte visning. I tillegg kan ikke budet ha forbehold om at det skal holdes hemmelig ovenfor øvrige interessenter. Megler har iht lov om eiendomsmegling ikke anledning til å videreformidle disse budene, og de vil dermed heller ikke bli journalført.
Etter at eiendommen er solgt vil kjøper og selger få tilsendt budjournal. Øvrige budgivere kan få utlevert kopi av budjournalen i anonymisert form.
Hvitvaskingsreglene
I henhold til lov om hvitvasking og terrorfinansiering har megler plikt til å gjennomføre kontrolltiltak overfor kunder, herunder fullmektiger. Dette innebærer bl.a. å bekrefte kunders og reelle rettighetshaveres identitet på bakgrunn av fremvist gyldig legitimasjon eller på annen godkjent måte, samt å innhente opplysninger om kundeforholdets formål og tilsiktede art.
Dersom slike kundetiltak ikke kan gjennomføres, kan megler ikke etablere kundeforholdet eller utføre transaksjonen.
Hvis kjøper ikke bidrar til gjennomføring av kundekontrollen og dette fører til at transaksjonen blir forsinket eller ikke kan gjennomføres, vil dette ansees som mislighold av avtalen og gi selger rettigheter etter avhendingslova kapittel 5. I tilfeller der selger ikke bidrar til gjennomføring av løpende kundekontroll underveis i oppdraget, er det selger som misligholder sine forpliktelser etter avtalen og gi kjøper rettigheter etter avhendingslovens kapittel 4. Partene er selv ansvarlige for eventuelle kostnader og ansvar dette kan medføre. Eiendomsmegleren eller eiendomsmeglingsforetaket kan ikke holdes ansvarlig for de konsekvenser dette vil kunne få for partene eller andre som har interesser i eiendomshandelen.
Kjøper oppfordres til å innbetale kjøpesummen som ikke kommer fra låneinstitusjon i én samlet innbetaling fra egen konto i norsk bank. Megler har plikt til å melde fra til Økokrim om eiendomshandler som fremstår som mistenkelige. Melding sendes Økokrim uten at partene varsles.
Personopplysningsloven
I henhold til personopplysningsloven gjør vi oppmerksom på at interessenter kan bli registrert for videre oppfølging.
Lovanvendelse
Generelle bestemmelser
Salgsoppgaven er basert på de opplysningene selger har gitt til megler, den bygningssakyndiges tilstandsrapport, samt opplysninger innhentet fra kommunen, Kartverket og andre tilgjengelige kilder. Det er viktig at kjøper setter seg grundig inn i alle salgsdokumentene, herunder salgsoppgave, tilstandsrapport og selgers egenerklæring. Kjøper anses kjent med forhold som er tydelig beskrevet i salgsdokumentene, og slike forhold kan ikke påberopes som mangler. Dette gjelder uavhengig av om kjøper har lest dokumentene. Alle interessenter oppfordres til å undersøke eiendommen nøye, gjerne sammen med fagkyndig før bud inngis. Kjøper som velger å kjøpe usett kan ikke gjøre gjeldende som mangel noe han burde blitt kjent med ved undersøkelsen.
Dersom det er behov for avklaringer, anbefaler vi at interessenter rådfører seg med eiendomsmegler eller egne rådgivere før det legges inn bud.
En bolig som har blitt brukt i en viss tid, har vanligvis blitt utsatt for slitasje og skader kan ha oppstått. Slik bruksslitasje må kjøper regne med, og det kan avdekkes enkelte forhold etter overtakelse som nødvendiggjør utbedringer. Normal slitasje og skader som nødvendiggjør utbedring, er innenfor hva kjøper må forvente og vil ikke utgjøre en mangel.
Kjøper og selgers rettigheter og plikter reguleres av avtalen mellom partene, samt informasjonen som har vært tilgjengelig for kjøperen i forbindelse med handelen. Avtalen utfylles av avhendingsloven, og det gjelder ulike avtalevilkår avhengig av om kjøper er forbrukerkjøper eller ikke. Dette er nærmere beskrevet nedenfor.
På grunn av ulike avtalevilkår kan selger vurdere bud fra en som ikke er forbruker, ulikt fra en forbrukers bud. Dersom kjøper ikke er forbruker, er selger sitt mulige mangelsansvar begrenset fordi eiendommen selges "som den er". Selger kan ikke ta «som den er»- forbehold overfor en forbrukerkjøper. Selv et lavere bud fra en som ikke er forbruker kan foretrekkes fordi begrensningen i mulig mangelsansvar kan ha egenverdi for selger. Selger står fritt til å forkaste eller akseptere ethvert bud, og er for eksempel ikke forpliktet til å akseptere høyeste bud.
Budgiver skal i budskjema avgi egenerklæring om budgiver er forbruker eller næringsdrivende/ person som hovedsakelig handler som ledd i næringsvirksomhet. Budgivere får informasjon dersom andre bud er inngitt av en som ikke er forbruker.
Forbrukerkjøp - definisjon
Med forbrukerkjøp menes kjøp av eiendom når kjøperen er en fysisk person som ikke hovedsakelig handler som ledd i næringsvirksomhet.
Forbruker – avtalevilkår
Eiendommen har en mangel dersom den ikke er i samsvar med kravene som følger av avtalen, eller det foreligger brudd på bestemmelsene i avhendingsloven §§ 3-2 til 3-8. Hvis eiendommen ikke er i samsvar med det kjøperen må kunne forvente ut ifra alder, type og synlig tilstand, kan det være grunnlag for mangelskrav. Det samme gjelder hvis det er holdt tilbake eller gitt uriktige opplysninger om eiendommen. Dette gjelder likevel bare dersom man kan gå ut ifra at det virket inn på avtalen at opplysningen ikke ble gitt eller at mangelskravet ikke blir rettet i tide på en tydelig måte.
Boligen kan ha en mangel etter avhendingsloven § 3-3 andre ledd, dersom det er avvik mellom opplyst og faktisk innvendig areal, forutsatt at avviket er på 2% eller mer og minimum 1 kvm.
Ved beregning av et eventuelt prisavslag eller erstatning må kjøper selv dekke tap/kostnader opptil et beløp på kr 10 000 (egenandel).
Ikke-forbruker (næringsdrivende) – definisjon
Hvis kjøper er en juridisk person, eller en fysisk person som hovedsakelig handler som ledd i næringsvirksomhet, vil kjøpet ikke anses som et forbrukerkjøp.
Ikke-forbruker – avtalevilkår
Eiendommen har en mangel dersom den ikke er i samsvar med kravene som følger av avtalen.
Eiendommen selges «som den er», og selgers ansvar utover det konkret avtalte er da begrenset etter avhendingsloven § 3-9, første ledd andre setning.
Avhendingsloven § 3-3 andre ledd fravikes, og hvorvidt boligens arealsvikt utgjør en mangel vurderes etter avhendingsloven § 3-8.
Informasjon om kjøpers undersøkelsesplikt, herunder oppfordringen om å undersøke eiendommen nøye, gjelder også for kjøpere som ikke anses som forbrukere.
Det forutsettes at hjemmel overføres til kjøper. Hvis kjøper ikke ønsker hjemmelsoverføring av eiendommen, må det tas forbehold om dette i budet.
Meglers vederlag
Meglers vederlag betales av selger og er avtalt til:
Vederlag: kr 20.000,-
Tilrettelegging kr 12.500,-
Oppgjør: kr 5.550,-
Markedspakke: kr 14.750,-
Visninger: kr 1.875,-
Oppslag eiendomsregister: kr 1.250,-
Utlegg
Eierskiftegebyr forretningsfører (selger ) - TOBB: kr 5.995,-
Innhenting av offentlig opplysninger Trondheim kommune: kr 2.017,-
Tinglysing sikring - andel: kr 480,-
Andre utgifter
Foto: kr 3.750,-
Informasjonsinnhenting TOBB: kr 3.780,-
Rapport fra Takstmann - faktura til megler: kr 4.150,-
Opplysninger om oppdraget
Oppdragsnummer 68-0146/21
Eiendomsmegler Krogsveen AS, avd. Trondheim
Fjordgata 82, 7010, TRONDHEIM
950 007 613
Oppdragets KR-kode KR68.21146
Dato
Sist oppdatert: 19. mars 2026 kl. 18:25
Dokumenter
Dokumenter
PDF – 679 KB
PDF – 297 KB
PDF – 942 KB
PDF – 209 KB
PDF – 312 KB
PDF – 29 KB
PDF – 127 KB
PDF – 392 KB
Område
Legg til steder som er viktige for deg
Visning
Ta kontakt med megler for avtale om privatvisning.
Ønsker du kun å bli holdt orientert, kan du fra eiendommens hjemmeside få varsel om solgtpris, eller kontakte megler.
Lurer du på noe?
Unngå doble boligrenter
Vi tilbyr gunstig forsikring.
Vurderer du utleie?
Få et tilbud fra Utleie KrogsveenHva koster lånet?
Sjekk estimert lånekostnadVil du varsles om lignende boliger?
Ved å lagre ditt boligsøk hos oss får du beskjed når vi har en bolig som ligner denne, før den legges ut på markedet!












