Grindbakken 46
5 550 000 kr
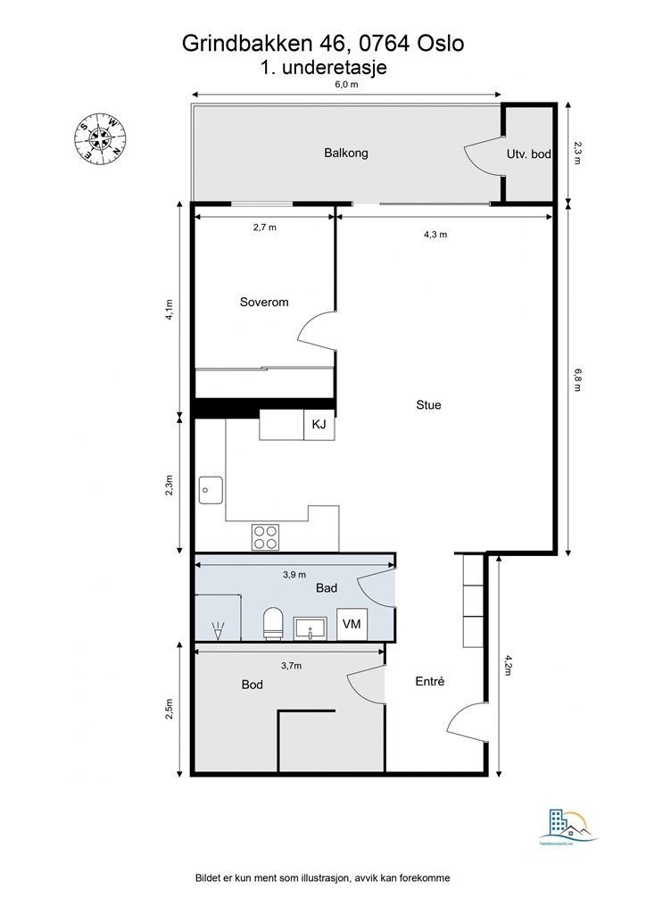
72 m²
1 soverom
Solgt
Holmenkollen
Lys & stor 2R. Fantastiske sol & utsiktsforhold. Balkong 11 kvm. Garasje. Moderne HTH kjøkken. Naturskjønn beliggenhet!
Prisantydning
5 550 000 krAndel fellesgjeld
325 000 krOmkostninger
19 252 krTotalpris
5 894 252 kr
Pris
Bruksareal
79 m²BRA-I (internt bruksareal)
72 m²BRA-E (eksternt bruksareal)
7 m²TBA (terrasse-balkongareal)
11 m²
Areal
Etasje
-1Byggeår
1983Soverom
1 soveromBad
1 badType
AndelsleilighetEierform
AndelFasiliteter
Garasje/P-plass og Balkong/TerrasseFellesutgifter
5 397 krEnergimerke
Rød D
Nøkkelinfo
Unngå doble boligrenter
Vi tilbyr gunstig forsikring.
Vurderer du utleie?
Få et tilbud fra Utleie KrogsveenHva koster lånet?
Sjekk estimert lånekostnadBeskrivelse
Kort om eiendommen
Tom Martinsen v/ Krogsveen har gleden av å presentere Grindbakken 46, med attraktiv beliggenhet på Holmenkollens solside. Her bor du skjermet til med idyllisk utsikt og nærhet til naturen. Perfekt for deg som ønsker å bo i naturskjønne omgivelser med fine turmuligheter og Bogstadvannet med bademuligheter rett utenfor døren, samtidig er det enkelt og raskt å ta seg til sentrum.
Boligen er oppgradert i 2024 med nye vinduer og dører samt etterisolert. I tillegg er det utført oppgraderinger innvendig som gir boligen et moderne og tidsriktig uttrykk.
Høydepunkter:
Balkong på 11 kvm med fantastiske sol- og utsiktsforhold
Idylliske tur- og rekreasjonsområder rett utenfor døren
Gangavstand til Bogstadvannet
Kort vei til buss og dagligvare
Garasje
Boder
Velkommen!
Område
Legg til steder som er viktige for deg
På flyttefot? Tenk kjøp og salg samtidig.
Få din egen rådgiver gjennom hele kjøps- og salgsprosessen. Det starter med en verdivurdering.
Unngå doble boligrenter
Vi tilbyr gunstig forsikring.
Vurderer du utleie?
Få et tilbud fra Utleie KrogsveenHva koster lånet?
Sjekk estimert lånekostnadVil du varsles om lignende boliger?
Ved å lagre ditt boligsøk hos oss får du beskjed når vi har en bolig som ligner denne, før den legges ut på markedet!
På flyttefot? Slik gjør vi det enklere for deg
Skreddersydd flyttepakke
Vi fikser håndverkere, vask, pakking, lagring og transport, og legger ut for utgiftene underveis.
Hjelp med både kjøp og salg
Hos oss har du din egen rådgiver gjennom hele kjøps- og salgsprosessen.
Hjelp til finansiering
Vårt samarbeid med BN Bank sikrer deg rask og løsningsorientert hjelp, til konkurransedyktige betingelser.




