Kalkbrennerveien 41
13 450 000 kr
215 m²
5 soverom
Solgt

HOSLE
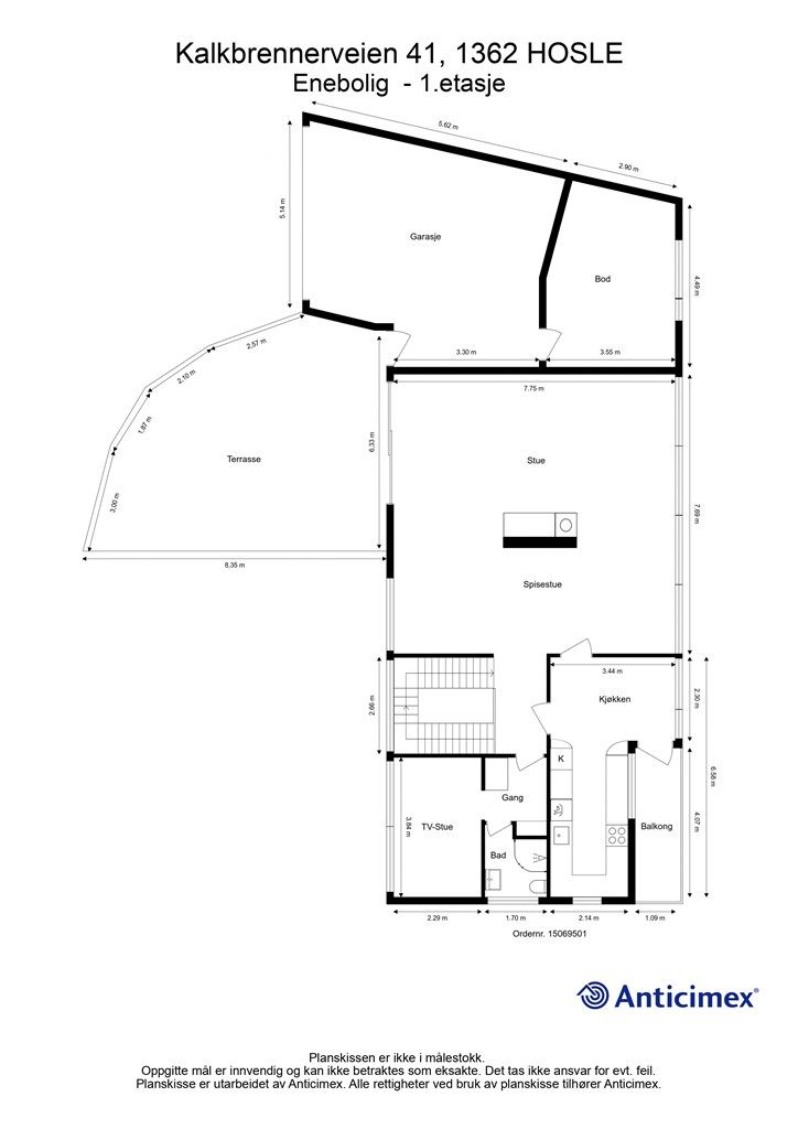
Arkitekttegnet enebolig over to plan med særpreg og vestvendt terrasse – attraktiv og barnevennlig beliggenhet på Hosle
Prisantydning
13 450 000 krOmkostninger
357 240 krTotalpris
13 807 240 kr
Pris
Bruksareal
273 m²BRA-I (internt bruksareal)
215 m²BRA-E (eksternt bruksareal)
58 m²TBA (terrasse-balkongareal)
49 m²
Areal
Etasje
2Byggeår
1967Soverom
5 soveromBad
2 badTomteareal
874 m² (eiet)Type
Enebolig - FrittliggendeEierform
EietFasiliteter
Garasje/P-plass og Balkong/TerrasseEnergimerke
Oransje G
Nøkkelinfo
Unngå doble boligrenter
Vi tilbyr gunstig forsikring.
Vurderer du utleie?
Få et tilbud fra Utleie KrogsveenHva koster lånet?
Sjekk estimert lånekostnadBeskrivelse
Kort om eiendommen
Kalkbrennerveien 41 - Arkitekttegnet enebolig med flott særpreg og luftige planløsninger perfekt for barnefamilien. Eiendommen ligger idyllisk til i en rolig og barnevennlig gate på Hosle, med nærhet til både skole, buss, idrettstilbud, hyggelige turområder og Bekkestua sentrum. Boligen har noe oppgraderingsbehov og med det gode muligheter til å få det akkurat slik du ønsker.
Høydepunkter:
• Arkitekttegnet bolig o/to plan
• Familievennlig planløsning – fire gode soverom samlet i underetasjen
• To bad, separat vaskerom og rikelig med lagringsplass
• Vestvendt markterrasse på 45 m² med utepeis og hageadkomst
• Garasje med tilhørende bod på 55 m²
• Gangavstand til Hosle skole, Bekkestua, Nadderud og kollektivtransport
• Beliggende i rolig sidegate med lite trafikk og nærhet til marka
Område
Legg til steder som er viktige for deg
På flyttefot? Tenk kjøp og salg samtidig.
Få din egen rådgiver gjennom hele kjøps- og salgsprosessen. Det starter med en verdivurdering.
Unngå doble boligrenter
Vi tilbyr gunstig forsikring.
Vurderer du utleie?
Få et tilbud fra Utleie KrogsveenHva koster lånet?
Sjekk estimert lånekostnadVil du varsles om lignende boliger?
Ved å lagre ditt boligsøk hos oss får du beskjed når vi har en bolig som ligner denne, før den legges ut på markedet!

