Gandsgaten 9A
1 800 000 kr
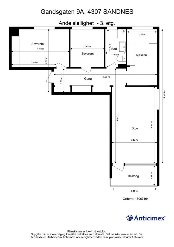
68 m²
2 soverom
Solgt

SANDNES - Sandnes Sentrum
Lys og tiltalende blokkleilighet i 3.etg med sørvestvendt utsikt. Sentralt og ettertraktet beliggenhet i Sandnes.
Prisantydning
1 800 000 krAndel fellesgjeld
794 021 krOmkostninger
19 253 krTotalpris
2 613 274 kr
Pris
Bruksareal
79 m²BRA-I (internt bruksareal)
68 m²BRA-E (eksternt bruksareal)
11 m²TBA (terrasse-balkongareal)
5 m²
Areal
Etasje
3Byggeår
1963Soverom
2 soveromBad
1 badType
AndelsleilighetEierform
AndelFasiliteter
Garasje/P-plass, Heis og Balkong/TerrasseFellesutgifter
8 588 krEnergimerke
Rød F
Nøkkelinfo
Unngå doble boligrenter
Vi tilbyr gunstig forsikring.
Vurderer du utleie?
Få et tilbud fra Utleie KrogsveenHva koster lånet?
Sjekk estimert lånekostnadBeskrivelse
Kort om eiendommen
Velkommen til Gandsgaten 9A - En meget attraktiv og innbydende leilighet i 3. etasje med fantastisk utsikt, sentralt beliggende i Sandnes. Leiligheten har en svært funksjonell planløsning med 2 soverom, bad og kjøkken.
* Gjennomgående god standard med flotte kvaliteter.
* Flott flislagt bad med gulvvarme oppusset av BRL i 2016.
* Sørvendt balkong med gode sol- og utsiktsforhold.
* Romslig og lys stue med rom for både sofagruppe og spisebord.
* Romslig sportsbod i 1.etg. og på loft.
* Parkering med mulighet for El-bil lader
* Heis.
* Sentral beliggenhet med gåavstand til Langgata og Sandnes sentrum.
Velkommen til Visning!
Område
Legg til steder som er viktige for deg
På flyttefot? Tenk kjøp og salg samtidig.
Få din egen rådgiver gjennom hele kjøps- og salgsprosessen. Det starter med en verdivurdering.
Unngå doble boligrenter
Vi tilbyr gunstig forsikring.
Vurderer du utleie?
Få et tilbud fra Utleie KrogsveenHva koster lånet?
Sjekk estimert lånekostnadVil du varsles om lignende boliger?
Ved å lagre ditt boligsøk hos oss får du beskjed når vi har en bolig som ligner denne, før den legges ut på markedet!

