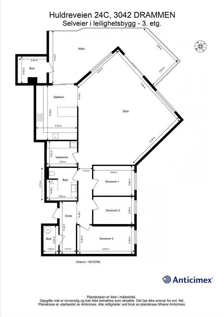
Huldreveien 24C
6 500 000 kr
131 m²
3 soverom
Solgt

Presenteres av
Arild KnudsenAustad Skog
Delikat og moderne 4-roms terrasseleilighet - renovert i 21 m/en stilren utførelse. Altan m/suveren utsikt. Garasjeplass
Prisantydning
6 500 000 krAndel fellesgjeld
357 949 krOmkostninger
182 460 krTotalpris
7 040 409 kr
Pris
Bruksareal
158 m²BRA-I (internt bruksareal)
131 m²BRA-E (eksternt bruksareal)
27 m²TBA (terrasse-balkongareal)
36 m²
Areal
Etasje
3Byggeår
1981Soverom
3 soveromBad
1 badType
EierleilighetEierform
EierseksjonFasiliteter
Garasje/P-plass og Balkong/TerrasseFellesutgifter
6 506 krEnergimerke
Rød F
Nøkkelinfo
Unngå doble boligrenter
Vi tilbyr gunstig forsikring.
Vurderer du utleie?
Få et tilbud fra Utleie KrogsveenHva koster lånet?
Sjekk estimert lånekostnadBeskrivelse
Kort om eiendommen
Delikat og moderne 4-roms terrasseleilighet beliggende i 3. etasje.
Leiligheten ble renovert i 2021 med en gjennomgående stilren utførelse
Romslig stue med store vindusflater og delåpen løsning mot kjøkkenet
Lekkert og velutstyrt Kvik-kjøkken fra 2021 med helintegrerte hvitevarer fra 2021
Moderne og pent bad (rehab. i 2021) med stor dusjnisje som har regnfallsdusj
Praktisk og separat vaskerom (rehab. i 2021) med skapinnredning
Godt med lagring i flere boder
Nordøstvendt altan på ca. 36 kvm med motoriserte markiser og imp. terrassebord
Suveren vidstrakt utsikt over byen, Lier og havnebassenget samt fjorden
Medfølgende fast parkeringsplass i felles garasjerekke
Eiendommen har en attraktiv beliggenhet i et veletablert, stille og rolig boligstrøk
Område
Legg til steder som er viktige for deg
På flyttefot? Tenk kjøp og salg samtidig.
Få din egen rådgiver gjennom hele kjøps- og salgsprosessen. Det starter med en verdivurdering.
Unngå doble boligrenter
Vi tilbyr gunstig forsikring.
Vurderer du utleie?
Få et tilbud fra Utleie KrogsveenHva koster lånet?
Sjekk estimert lånekostnadVil du varsles om lignende boliger?
Ved å lagre ditt boligsøk hos oss får du beskjed når vi har en bolig som ligner denne, før den legges ut på markedet!
På flyttefot? Slik gjør vi det enklere for deg
Skreddersydd flyttepakke
Vi fikser håndverkere, vask, pakking, lagring og transport, og legger ut for utgiftene underveis.
Hjelp med både kjøp og salg
Hos oss har du din egen rådgiver gjennom hele kjøps- og salgsprosessen.
Hjelp til finansiering
Vårt samarbeid med BN Bank sikrer deg rask og løsningsorientert hjelp, til konkurransedyktige betingelser.

