Ostadalsveien 54
8 550 000 kr
112 m²
3 soverom
Komplett salgsoppgave
RØA
Gjennomgående, lys og romslig 4-roms med to solrike terrasser. Fantastisk utsikt, barnevennlig, garasje og flere boder!
Prisantydning
8 550 000 krOmkostninger
224 790 krTotalpris
8 774 790 kr
Pris
Bruksareal
118 m²BRA-I (internt bruksareal)
112 m²BRA-E (eksternt bruksareal)
6 m²TBA (terrasse-balkongareal)
28 m²
Areal
Etasje
4Byggeår
1975Soverom
3 soveromBad
2 badType
EierleilighetEierform
EierseksjonFasiliteter
Garasje/P-plass og Balkong/TerrasseFellesutgifter
6 141 kr
Nøkkelinfo
Unngå doble boligrenter
Vi tilbyr gunstig forsikring.
Vurderer du utleie?
Få et tilbud fra Utleie KrogsveenHva koster lånet?
Sjekk estimert lånekostnadBeskrivelse
Kort om eiendommen
Eiendomsmegler Mats Lund ved Krogsveen Bærum har gleden av å ønske velkommen til Ostadalsveien 54, og en flott 4-roms selveierleilighet beliggende i et hyggelig boligområde mellom Røa og Ullernåsen. Her bor dere i flotte omgivelser med nærhet til barnehager, skoler, offentlig kommunikasjon butikker og mye mer. Du har også idylliske turområder med Mærradalen rett utenfor sameiet.
Høydepunkter:
- Romslig, gjennomgående 4-roms
- To solrike terrasser
- Fantastisk utsikt både fra innsiden og fra uteplass
- God lydisolering
- Varmtvann inkludert i felleskostnadene
- Nærhet til det du trenger i hverdagen
- Garasjeplass med elbil-lader
- Rikelig med lagringsplass
- Meget barnevennlig og rolig boligområde
Innhold og byggemåte
Innhold og byggemåte
Eiendommen
Ostadalsveien 54, 0753 OSLO
Kommunenummer 301, gårdsnummer 28, bruksnummer 827, seksjonsnummer 327, ideell andel 1/1
Innhold
Totalt bruksareal BRA: 118 kvm
BRA-i:
Leilighet:
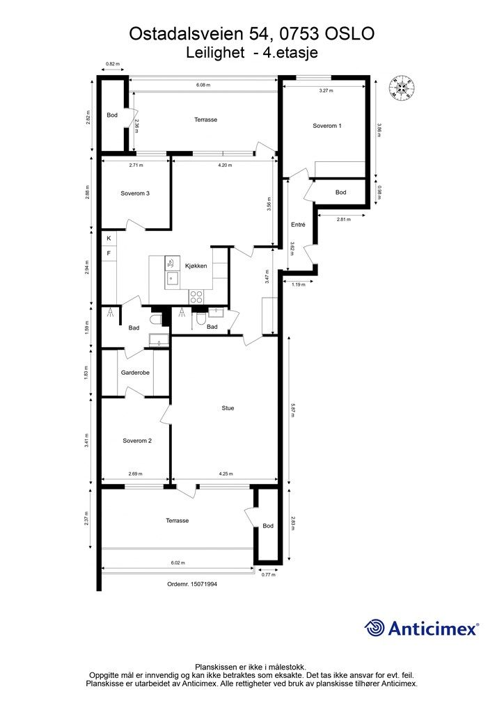
4. etasje 112 kvm: Entré, 2 bad, stue, kjøkken, 3 soverom og garderobe
BRA-e:
Leilighet:
Kjeller: 2 kvm: Kjellerbod
4. etasje 4 kvm: 2 boder på terrasse
Åpent areal:
Leilighet:
4. etasje 28 kvm: 2 terrasser
Vedlagte plantegninger er ikke målbare. De oppgitte arealer er hentet fra rapport med befaringsdato 02.09.2026 utført av Anticimex AS v/Torbjørn Sæbøe. Arealene er beregnet og rom er definert etter dagens faktiske bruk, uavhengig av hva som er godkjent av bygningsmyndighetene.
Byggemåte
Selger har fått utarbeidet en tilstandsrapport, dvs. en teknisk gjennomgang av boligen hvor eventuelle avvik, risiko for kjøper og prisoverslag for hva som bør gjøres av oppgradering, er skissert. Se særskilt TGIU (tilstandsgrad ikke undersøkt), samt TG2 og TG3 som viser hva som er boligens normale slitasje, alder og type, hva som er avvik fra dette og hva som bør/må utbedres. Rapporten og selgers egenerklæring er en del av salgsoppgaven og må leses nøye før bud inngis. Kjøper overtar ansvaret for de opplysninger som fremkommer av salgsdokumentasjonen, og kan ikke gjøre gjeldende som mangel noe som burde vært kjent eller som ikke kan anses å ha betydning for avtalen.
Bygningen er iht. tilstandsrapporten oppført i betong. Les for øvrig mer om byggemåte og den tekniske tilstanden i rapporten.
- Boligbygg over 4 etasjer med kjeller.
- Bygningen har støpt gulv mot grunn.
- Grunnmur, bærende konstruksjon og skillende dekker av betong.
- Fasader forblendet med trekledning kombinert med teglstein.
- Tilnærmet flat takkonstruksjon tekket med takpapp (taket ikke besiktiget).
- Entredør av tre med brannklasse B30 og lydklasse 35dB fra ukjent årstall. Balkongdør og vinduer med karmer av tre og aluminium med to-lags glass fra 2013.
- Vannrør av typen rør-i-rør system kombinert med kobber. Avløpsrør av plast. Fordelerskap med stoppekraner lokalisert i kjøkkenbenk. Leiligheten er elektrisk oppvarmet. Tilknyttet felles varmtvann. Leiligheten har mekanisk avtrekk på kjøkken og bad samt naturlig tilluftventiler i vegger og vinduer.
- Sikringsskap med automatsikringer er lokalisert i trappegang. Leiligheten har delvis skjult og åpent elektrisk anlegg.
- Utgang fra stue til sydvestvendt terrasse på 14m² med en utvendig bod på 2m². Bærende konstruksjon av betong. Balkonggulv belagt med fliser. Rekkverk av betongblomsterbed. Utvendig lys og stikkontakt.
- Utgang fra kjøkken til nordøstvendt terrasse på 14m² med en utvendig bod på 2m². Bærende konstruksjon av betong. Balkonggulv belagt med fliser. Rekkverk av betongblomsterbed. Utvendig lys og stikkontakt.
Det gjøres spesielt oppmerksom på:
TG2:
- Bad v/soverom (membran/tettesjikt/overgang til sluk, fallforhold og avløpsrør).
- Bad v/entré (membran/tettesjikt/overgang til sluk, fallforhold og avløpsrør).
- Kjøkken (veggoverflater, himlingsoverflater, gulvoverflater, innredning og avløpsrør).
- Øvrige rom (gulvoverflater og veggoverflater).
- Etasjeskiller (skjevhetsmåling).
- Tekniske anlegg (vannrør).
- Elektrisk anlegg (forenklet vurdering av det elektriske anlegget).
- Terrasse v/kjøkken (tettesjikt).
TG3:
- Terrasse v/stue: Tettesjikt er gammelt og anbefalt brukstid er overskredet. Utbedringer må forventes. Denne type konstruksjon krever ventilasjon mellom sjiktene. Det kan ikke verifiseres at dette er etablert. TG2 er satt for å belyse risiko. Ytterligere undersøkelser anbefales. Det registreres bomlyd og løse fliser ved flere gulvfliser. Eksakt årsak er ikke kjent. Forholdet indikerer manglende vedheft mellom flis og underlag. Fliser med bom kan løsne og være svekket mot ytre påvirkninger. Utbedring av fliser bør påregnes. Sjablongmessig prisanslag gjelder for utbedring av løse fliser. Sjablongmessig prisanslag: kr 0 - 10 000.
TGIU (ikke undersøk):
- Tekniske anlegg (stakeluke).
Se supplerende tekst i tilstandsrapporten om bygningsdelen. Kjøper overtar ansvar og risiko for dette.
Standard
Entré:
Innbydende entré med god plass for yttertøy. Fra entréen har du adkomst til ett av soverommene, bod, kjøkkenet og stuen.
Stue og terrasse:
Lys og hyggelig stue med gode møbleringsmuligheter og rikelig med naturlig lys. Her er det plass for sofagruppe, TV-seksjon, lesehjørne og annet passende møblement. Fra stuen er det utgang til en nydelig sydvestvendt terrasse på 14 kvm hvor late dager kan nytes. Her finner du også en praktisk bod med lagringsmuligheter.
Kjøkken og spiseplass:
Pent kjøkken med profilerte fronter på skap og skuffer, og benkeplate av tre med dobbel oppvaskkum. Kjøkkenet har integrert platetopp, gassbluss, stekeovn, mikrobølgeovn, og oppvaskmaskin, samt dobbelt kjøleskap med frysedel. Kjøkkenventilator med kullfilter er plassert over platetoppen. Kjøkkenet er av god størrelse, og har god plass for spisebord. Fra kjøkkenet er det utgang til en flott nordøstvendt terrasse på 14 kvm. Også denne terrassen har en praktisk bod på 2 kvm.
Soverommene:
Leiligheten har tre gode soverom, alle med plass for seng, skap og annet passende møblement. Ett av soverommene har adkomst til en praktisk walk-in-garderobe.
Baderommene:
Leiligheten har to baderom, ett med adkomst fra entréen og ett fra kjøkkenet / soverom via garderobe. Badet ved kjøkkenet/soverommet har fliser på gulv med gulvvarme, fliser på vegger, malt himling med downlights, vegghengt servantskap, vegghengt speil med overbelysning, dusjhjørne med glassfelt, hånddusj og regndusj.
Badet ved entréen har fliser på gulv med gulvvarme, fliser på vegger, malt himling med downlights, vegghengt servantskap, vegghengt speil med overbelysning, dusjhjørne med glassfelt, hånddusj og regndusj.
Løsøre og tilbehør
Vi viser til liste fra Norges Eiendomsmeglerforbund som gjelder fra 01.01.2020 angående løsøre og tilbehør.
Oppvarming
Leiligheten er elektrisk oppvarmet. Tilknyttet felles varmtvann.
Dersom beboelsesrom ikke har vegg- eller fastmonterte varmekilder ved visning, følger dette heller ikke med.
Ferdigattest/brukstillatelse
Det foreligger ferdigattest på eiendommen datert 16.01.1978 og fasaderehabiliteringer datert 01.09.2016. Disse kan fås ved henvendelse til megler.
Kjøper overtar eiendommen slik den framstår på visning.
Tinglyste heftelser og rettigheter
På eiendommen er det tinglyst følgende heftelser og rettigheter som følger eiendommens matrikkel ved overskjøting til ny hjemmelshaver:
Det er tinglyst 10 servitutter på sameiets eiendom. Disse omhandler blant annet to bestemmelse om bebyggelse m.m. tinglyst i 1971 og 1975, tre erklæringer/avtaler med bestemmelser om trafostasjon/kiosk tinglyst i 1974 og to tinglyst i 1975, en erklæring/avtale med bestemmelse om tilfluktsrom tinglyst i 1975, en erklæring/avtale med rett til garasjeplass nr. 26 tinglyst i 1975, og to erklæring/avtale vedrørende reseksjonering tinglyst i hhv 2006 og 2009 -(tidl. vaktmesterleiligheter som seksjoneres med seksjonsnr. ), samt en erklæring/avtale vedrørende reseksjonering uten endringer i grunnboken tinglyst i 2004
Servituttene vil følge eiendommen. Kjøpers bank vil få pant etter ovennevnte heftelser og servitutter.
Eiendommens rettigheter:
Eiendommen har tinglyst rett til som omhandler 8 stk. nedgravde søppelcontainere samt adkomstrett og vedlikehold av disse på gnr 28, bnr 816 tinglyst i 2021 med dagboknummer 1565025-1.
Eventuell adgang til utleie
Leiligheten kan leies ut såfremt leiligheten har forsvarlige radonverdier. Leietaker må følge sameiets vedtekter og ordensregler på lik linje som eier.
Beliggenhet og tomteforhold
Beliggenhet og tomteforhold
Beliggenhet
Leiligheten ligger i et meget veletablert boligstrøk med terrasseblokker på Ullerntoppen i stille og rolige omgivelser. Boområdet er bilfritt og omgitt av store grøntarealer. Søndagsåpen Joker ligger kun ca. 150 meter fra leiligheten med det en måtte trenge av dagligvarer. Til Rema 1000 er det ca 300 meter. Ellers er det kort vei til Røa senter med bredt utvalg av servicetilbud, bl.a. treningssenter (SATS), bank, kaféer, sportsforretninger, klesforretninger, post, vinmonopol, apotek, blomsterforretning, dagligvarebutikker o.a. Røa Torg er betydelig oppgradert, blant annet med hyggelig og solrik uteservering. Kjøpesenteret CC Vest på Lilleaker ligger også i kort avstand. Ellers er det diverse servicetilbud på Vinderen og Slemdal.
Kort avstand til idrettsanleggene på Røa, Ullern fotballbane /skøytebane, Gressbanen (Ready), Oslo Golfklubb, Holmenkollen tennisklubb, Njård (Sats) og kunstisbane om vinteren på Bogstad . Det er mange idrettslag i nærområdet, herunder Røa, Ready, Njård, Ullern, Vestre Aker Skiklubb og Heming. Videre ligger Holmenkollen riksanlegg med hopp, langrenn, skiskyting og rulleski, samt Tryvann skisenter og klatrepark kun en kort kjøretur unna. For den badeglade er det kort vei til Røa bad som fremstår som et lekkert anlegg med bl.a. 25-meter basseng, spa/terapibasseng, boblebad, barnebasseng, sklier og klatrevegg.
Det er gode tur-og rekreasjonsområder sommer som vinter i Mærradalen, som ligger noen få minutter fra leiligheten. Her tar flotte sykkel- og turveier deg til Bogstad og langt innover i Nordmarka. Om vinteren prepareres det også skiløyper fra Bogstad. Ved Bogstad gård finnes kafe, kulturaktiviteter, gårdsopplevelser og kunstutstillinger. Bogstad golfbane, kjent som en av landets beste golfbaner, ligger i bunnen av Holmenkollåsen. Regnes som en av de få banene i Norge med internasjonal konkurransestandard. Bogstadvannet på sommerstid er en badeidyll, med flott strand og gresslette, samt flott ferskvanns badevann.
Bussholdeplassen Ullerntoppen ligger ca. 200 m unna. Ellers tar det ca. 11 min med bil til Skøyen og ca. 18 min med bil til Nationaltheatret/ sentrum. Det er gangavstand til Røa T-bane på ca. 12 minutter og Åsjordet T-bane på ca. 10 minutter.
Boligen passer utmerket for folk i alle aldre - dets nærhet til marka, sentrumsnært, stille og rolig, gjør området meget attraktivt.
Adkomst
Veibeskrivelse se Google Maps - det er enkelt å finne frem i kartet.
Barnehager, skoler og fritid
- Ullernkollen barnehage
- Montessori barnehagen Solsikken avd. Lilleputt
- Rønningen Kanvas barnehage
- Huseby barneskole
- Hovseter ungdomsskole
Dersom skole- og barnehagetilbud er av betydning for kjøpet, ber vi om at det rettes en særskilt henvendelse til bydelsadministrasjonen for oppdatert informasjon
Beskrivelse av tomt
Eiertomt på 83 306 kvm som tilhører sameiet. Tomten er fellesareal. Fellesarealer opparbeidet med asfalterte internveier, plenarealer og diverse beplantning.
Parkering
Med leiligheten følger eksklusiv bruksrett til én garasjeplass (nr. 34) i felles garasjeanlegg. Det er montert elbil-lader på garasjeplassen.
Vei, vann og avløp
Eiendommen har adkomst via privat vei med felles vedlikeholdsansvar for sameiet.
Eiendommen er tilknyttet kommunalt ledningsnett via private stikkledninger. Sameiet er ansvarlig for private stikkledninger til bygningen.
Regulerings-og arealplaner
Eiendommen er regulert til byggeområde for boliger i henhold til reguleringsplan S-2115 datert 22.08.1975 med tilhørende reguleringsbestemmelser. Deler av sameiets tomt i nordvest er regulert til tomt for offentlig bygning (understasjon for Oslo Lysverker). Eiendommen omfattes for øvrig av kommuneplan Oslo mot 2030.
Mellom Ullernkammen 17-23 og Ullernkammen 18-22 er det tomteareal som ikke er en del av sameiets eiendom. Tomten er regulert til offentlig bygning (grendeskole og barneinst.) i henhold til samme reguleringsplan som ovennevnte. Følgende plansak foreligger på tomten pr. 10.02.2022 iht. saksinnsyn på Plan- og bygningsetatens (PBE) hjemmeside:
- Saksnummer 202114725: Ullernkammen 15 - Etablering av nytt ventilasjonsanlegg - Solsikken barnehage. Tillatelse til tiltak ble gitt 10.11.2021 og varer i tre år. Det er i den forbindelse gitt dispensasjon fra reguleringsplanen vedr. byggegrense. Det skal bygges på tilbygg i høyde og bredde. Det har kommet inn merknader til søknaden fra Ullernåsen Boligsameie. Sameiet har ingen innvendinger til tiltaket, men har uttalt at det ikke er ønskelig med støy fra det nye anlegget.
Grøntområdet i øst er regulert til spesialområde - naturvernområde i henhold til reguleringsplan S-4856 datert 23.09.2015.
Utdrag fra saksinnsyn hos PBE for øvrig:
- Saksnummer 202119709: Ullernåsen - Oppføring av åtte dypoppsamlere tilhørende Ullernåsen boligsameie innenfor areal
regulert til felles avkjørsel. Tillatelse til tiltak ble gitt 28.01.2022 og varer i tre år.
- Saksnummer 201701323: Husebyplatået - Forslag til detaljregulering - Bymessig utvikling (boliger) ved Montebello T-bane i øst. I henhold til saksgang på saksinnsyn skal beslutning om offentlig ettersyn tas innen 25.04.2022 og planforslag skal være sendt Byrådsavdelingen innen 15.12.2022.
- Saksnummer 201708944: Ny vannforsyning til Oslo - Huseby vannbehandlingsanlegg - S-5058.
For mer informasjon og tegninger henvises til PBE planinnsyn.
Statnett skal fornye hovedstrømnettet i Bærum og Oslo vest. Energidepartementet vedtok i 2024 at dagens luftledning med tilhørende master skal erstattes av et kabelanlegg i grøft og tunnel.
Utsnitt av plan med tilhørende bestemmelser kan fås ved henvendelse til megler.
Økonomi
Økonomi
Boligens kostnader
Fellesutgiftene er kr 6 141,- pr. mnd. og inkluderer: Kommunale avgifter, forretningsførsel, drift- og vedlikehold, felles bygningsforsikring, varmtvann m.m.
Fellesutgiftene justeres i forhold til sameiets faktiske utgifter.
Nåværende eier har et strømforbruk som tilsvarer ca. 6 000 kwh. pr. år.
I følge selger utgjør eiendomsskatten ca. kr. 3 000,- pr år.
Utgiftene er basert på nåværende eiers forbruk. Kjøper må selv tegne innboforsikring.
Formuesverdi
Ved hjelp av skatteetatens boligkalkulator er boligens formuesverdi beregnet til kr. 2 273 242,- for fjoråret når boligen benyttes som primærbolig.
Formuesverdien er en gitt prosent av den beregnede markedsverdien. Beregnet markedsverdi er basert på Statistisk sentralbyrå (SSB) sine opplysninger om omsatte boliger. I beregningen tas det hensyn til boligens beliggenhet, areal, byggeår og boligtype.
Det er eier av boligen som fastsetter formuesverdien, jf. skatteforvaltningsloven § 9-1 første ledd, men skattemyndighetene kan kontrollere at verdien er satt riktig.
Formuesverdi skal ikke overstige:
Primærbolig: 25 % av beregnet eller dokumentert markedsverdi opp til kr. 10 000 000, og deretter 70 % av den overskytende markedsverdi.
Sekundærbolig: 100 % av beregnet eller dokumentert markedsverdi.
Formuesverdier som overstiger disse grensene, kan kreves nedjustert av eier.
Fra 2026 har Stortinget vedtatt en oppdatert modell for beregning av formuesverdi for primærbolig, så avvik kan forekomme.
For mer informasjon se skatteetaten.no
Opplysninger om fellesgjeld
Andel formue er kr 42 591,- pr. 31.12.2025
Andel fellesgjeld er kr 0,- pr. 31.12.2025
Omkostninger
8 550 000,00 Prisantydning
Omkostninger
213 750,00 Dokumentavgift til staten (2,5% av kjøpesum)
9 950,00 Gjensidige Boligkjøperpakke (valgfri)
545,00 Tinglysing panterettsdokument
545,00 Tinglysing skjøte
--------------------------------------------------------
224 790,00 Omkostninger totalt
--------------------------------------------------------
8 774 790,00 Totalpris inkl. omkostninger
--------------------------------------------------------
Tilbud om lånefinansiering
Megler formidler gjerne kontakt med rådgiver hos vår samarbeidspartner BN Bank. De har konkurransedyktige betingelser samt rask og løsningsorientert behandling av din lånesøknad. Krogsveen mottar et honorar dersom lån opprettes.
Betalingsbetingelser
Kjøpesum inkludert omkostninger, samt pantedokument tilknyttet eventuelt lån, skal være disponibelt hos megler 2 virkedager før overtagelsen.
Annen viktig informasjon
Annen viktig informasjon
Eier
Ole Bjellaanes og Maria Helene Reistad
Informasjon om sameiet
Eiendommen er seksjonert, og leiligheten er tilknyttet Ullernåsen Boligsameie, med sameiebrøk 1/425.
Sameiet består av 424 leiligheter og 1 næringsseksjon (matbutikken).
Forretningsfører er Obos Eiendomsforvaltning AS.
Dugnad må påregnes.
Sameiet har avtale om renhold av fellesarealene.
Sameiet har egen hjemmeside med mye nyttig informasjon, www.ullernaasen.no. På hjemmesiden finner man også en beboermanual utarbeidet av styret.
Dyrehold er tillatt så fremt dette ikke medfører urimelig sjenanse for naboer.
Sameiet har en fulltidsansatt daglig leder.
I alle oppganger er det valgt én oppgangskontakt som er et sentralt bindeledd mellom beboere og styret. Oppgangskontaktene i respektive bygg er med på organiseringen av vårens dugnad.
Sameiet er forsikret i Tryg Forsikring- polisenummer 3000973.
Utført vedlikehold/kostnader i sameiet:
- Rehabilitering terrasser og generell betongrehabilitering
- Utskifting tak Joker
- Rehabilitering av sprukne avløpsrør
- Varmtvannsbereder med varmepumpe
- Reparasjon takutspring og bodtak
- Ødelagt avfallsstasjon
Planlagte påkostninger:
- Fortsatt betongrehabilitering (justert aktiviteten noe ned). Installasjon av nye varmtvannsberedere. Utskifting av bodtak (totalt 8 millioner i ekstraordinært vedlikehold)
- Oppussing av oppganger (2025/2026)
- Rehabilitering av avløpsrør og stigeledninger (2026-2028)
Solceller på tak (under utredning)
I 2023 vedtok årsmøtet å utrede muligheten for å installere solceller på takene i sameiet. En arbeidsgruppe har undersøkt lønnsomheten ved et slikt tiltak, sett på tilgjengelige støtteordninger og innhentet tilbud fra leverandører. Arbeidet har vist at strømproduksjonen fra solceller vil være størst i sommermånedene, mens sameiet har høyest strømforbruk om vinteren. Arbeidsgruppen har også vurdert muligheten for å leie ut takene til en ekstern aktør som kan installere og drifte solcelleanlegget. Foreløpig avhenger videre fremdrift av tilgjengelige støtteordninger fra Oslo kommune og Enova.
Energidepartementet har besluttet å legge høyspentledningen som går gjennom sameiet i tunnel. Arbeidet med tunnel ventes å starte opp i 2027. Les mer på: https://www.statnett.no/vare-prosjekter/region-ost/hamang-barum-smestad/
Vi gjør videre oppmerksom på at det iht. eierseksjonsloven ikke er anledning å erverve mer enn 2 seksjoner i sameiet, her teller også eierskap via. firma, nærstående og familie. Kjøper har risikoen for at overskjøting på denne bakgrunn kan nektes av Statens Kartverk. I så fall vil kjøper uansett være forpliktet til å gjennomføre handelen, og oppgjør til selger vil finne sted tross manglende overskjøting. Konferer med megler for mer informasjon.
Dokumenter for sameiet og kopi av seksjonsbegjæringen kan fås ved henvendelse til megler. Vedtekter og husordensregler følger vedlagt.
Sameiet består av følgende adresser:
Bygg 1: Ullernkammen 17,19, 21, 23
Bygg 2: Ullernkammen 25, 27
Bygg 3: Ostadalsveien 66, 68, 70, 72
Bygg 4: Ostadalsveien 58, 60, 62, 64
Bygg 5: Ullernkammen 18, 20, 22, 24
Bygg 6: Ullernkammen 26, 28,
Bygg 7: Ostadalsveien 52, 54, 56
Bygg 8: Ostadalsveien 48, 50
Bygg 9: Ostadalsveien 75, 77, 79, 81
Kontor/ Styrerom: Ostadalsveien 83
Gårds- og bruksnummer: 28/827
Overtakelse
Etter nærmere avtale.
Boligkjøperforsikring
Innen kontraktsmøtet må kjøper ta stilling til om det ønskes å bestille Boligkjøperpakken gjennom Gjensidige. I denne gunstige pakken er boligen ferdig forsikret og inkluderer rettshjelpsforsikring, også kalt Boligkjøperforsikring. Rettshjelpsforsikring gir trygghet og tilgang på profesjonell juridisk hjelp dersom det oppdages uventede feil eller mangler det første året etter overtagelse. Forsikringsselskapet behandler i så fall ethvert mangelskrav kjøper måtte ha overfor selger.
Boligkjøperpakken inkluderer bygningsforsikring for hus og hytte, innboforsikring, flytteforsikring og dobbel rentedekning - i situasjoner hvor kjøper ikke får solgt nåværende primærbolig.
Kjøper mottar ingen særskilt faktura for Boligkjøperpakken da kostnaden det første året legges til kjøpesummen for boligen. Det gjøres oppmerksom på Krogsveen mottar et honorar for denne formidlingen.
Produktark for Boligkjøperpakken ligger vedlagt i salgsoppgaven.
Dersom ikke boligkjøperpakke ønskes kan kun rettshjelpsforsikring, også kalt boligkjøperforsikring, tegnes særskilt via megler. Rettshjelpsforsikringen varer i 5 år fra overtagelse og leveres gjennom Gjensidige. Ta kontakt med megler for ytterligere informasjon.
Selskap og privatpersoner som driver med kjøp/salg/utvikling som ledd i egen næringsvirksomhet kan ikke tegne boligkjøperpakke eller rettshjelpsforsikring.
Budgivning
Forbrukerinformasjon om budgivning er vedlagt denne salgsoppgaven og er også på vår hjemmeside Krogsveen.no. Alle bud og budforhøyelser må inngis skriftlig. I tillegg må legitimasjon være fremlagt sammen med signatur fra budgiver.
Vi oppfordrer til å gi bud elektronisk via GI BUD-knappen på eiendommens hjemmeside på Krogsveen.no. Da vil samtlige vilkår bli oppfylt.
Eventuelle forhøyelser eller endringer av budet kan bekreftes pr SMS eller på e-post. Vi oppfordrer alltid til å kontakte megler pr. telefon i tillegg da forsinkelser i SMS og e-post kan forekomme.
For at budene skal kunne bli behandlet og videreformidlet skriftlig til alle involverte parter, må alle bud ha en tilstrekkelig lang akseptfrist, jf. eiendomsmeglingsforskriften § 6-3.
Selger må også skriftlig akseptere budet før aksept kan formidles til budgiver. Akseptfrist bør derfor være på minimum 30 minutter, og budforhøyelser må derfor skje i god tid før fristens utløp.
Bud i forbrukerforhold kan uansett ikke settes med kortere frist enn kl. 12.00 første virkedag etter siste annonserte visning. I tillegg kan ikke budet ha forbehold om at det skal holdes hemmelig ovenfor øvrige interessenter. Megler har iht lov om eiendomsmegling ikke anledning til å videreformidle disse budene, og de vil dermed heller ikke bli journalført.
Etter at eiendommen er solgt vil kjøper og selger få tilsendt budjournal. Øvrige budgivere kan få utlevert kopi av budjournalen i anonymisert form.
Hvitvaskingsreglene
I henhold til lov om hvitvasking og terrorfinansiering har megler plikt til å gjennomføre kontrolltiltak overfor kunder, herunder fullmektiger. Dette innebærer bl.a. å bekrefte kunders og reelle rettighetshaveres identitet på bakgrunn av fremvist gyldig legitimasjon eller på annen godkjent måte, samt å innhente opplysninger om kundeforholdets formål og tilsiktede art.
Dersom slike kundetiltak ikke kan gjennomføres, kan megler ikke etablere kundeforholdet eller utføre transaksjonen.
Hvis kjøper ikke bidrar til gjennomføring av kundekontrollen og dette fører til at transaksjonen blir forsinket eller ikke kan gjennomføres, vil dette ansees som mislighold av avtalen og gi selger rettigheter etter avhendingslova kapittel 5. I tilfeller der selger ikke bidrar til gjennomføring av løpende kundekontroll underveis i oppdraget, er det selger som misligholder sine forpliktelser etter avtalen og gi kjøper rettigheter etter avhendingslovens kapittel 4. Partene er selv ansvarlige for eventuelle kostnader og ansvar dette kan medføre. Eiendomsmegleren eller eiendomsmeglingsforetaket kan ikke holdes ansvarlig for de konsekvenser dette vil kunne få for partene eller andre som har interesser i eiendomshandelen.
Kjøper oppfordres til å innbetale kjøpesummen som ikke kommer fra låneinstitusjon i én samlet innbetaling fra egen konto i norsk bank. Megler har plikt til å melde fra til Økokrim om eiendomshandler som fremstår som mistenkelige. Melding sendes Økokrim uten at partene varsles.
Personopplysningsloven
I henhold til personopplysningsloven gjør vi oppmerksom på at interessenter kan bli registrert for videre oppfølging.
Lovanvendelse
Generelle bestemmelser
Salgsoppgaven er basert på de opplysningene selger har gitt til megler, den bygningssakyndiges tilstandsrapport, samt opplysninger innhentet fra kommunen, Kartverket og andre tilgjengelige kilder. Det er viktig at kjøper setter seg grundig inn i alle salgsdokumentene, herunder salgsoppgave, tilstandsrapport og selgers egenerklæring. Kjøper anses kjent med forhold som er tydelig beskrevet i salgsdokumentene, og slike forhold kan ikke påberopes som mangler. Dette gjelder uavhengig av om kjøper har lest dokumentene. Alle interessenter oppfordres til å undersøke eiendommen nøye, gjerne sammen med fagkyndig før bud inngis. Kjøper som velger å kjøpe usett kan ikke gjøre gjeldende som mangel noe han burde blitt kjent med ved undersøkelsen.
Dersom det er behov for avklaringer, anbefaler vi at interessenter rådfører seg med eiendomsmegler eller egne rådgivere før det legges inn bud.
En bolig som har blitt brukt i en viss tid, har vanligvis blitt utsatt for slitasje og skader kan ha oppstått. Slik bruksslitasje må kjøper regne med, og det kan avdekkes enkelte forhold etter overtakelse som nødvendiggjør utbedringer. Normal slitasje og skader som nødvendiggjør utbedring, er innenfor hva kjøper må forvente og vil ikke utgjøre en mangel.
Kjøper og selgers rettigheter og plikter reguleres av avtalen mellom partene, samt informasjonen som har vært tilgjengelig for kjøperen i forbindelse med handelen. Avtalen utfylles av avhendingsloven, og det gjelder ulike avtalevilkår avhengig av om kjøper er forbrukerkjøper eller ikke. Dette er nærmere beskrevet nedenfor.
På grunn av ulike avtalevilkår kan selger vurdere bud fra en som ikke er forbruker, ulikt fra en forbrukers bud. Dersom kjøper ikke er forbruker, er selger sitt mulige mangelsansvar begrenset fordi eiendommen selges "som den er". Selger kan ikke ta «som den er»- forbehold overfor en forbrukerkjøper. Selv et lavere bud fra en som ikke er forbruker kan foretrekkes fordi begrensningen i mulig mangelsansvar kan ha egenverdi for selger. Selger står fritt til å forkaste eller akseptere ethvert bud, og er for eksempel ikke forpliktet til å akseptere høyeste bud.
Budgiver skal i budskjema avgi egenerklæring om budgiver er forbruker eller næringsdrivende/ person som hovedsakelig handler som ledd i næringsvirksomhet. Budgivere får informasjon dersom andre bud er inngitt av en som ikke er forbruker.
Forbrukerkjøp - definisjon
Med forbrukerkjøp menes kjøp av eiendom når kjøperen er en fysisk person som ikke hovedsakelig handler som ledd i næringsvirksomhet.
Forbruker – avtalevilkår
Eiendommen har en mangel dersom den ikke er i samsvar med kravene som følger av avtalen, eller det foreligger brudd på bestemmelsene i avhendingsloven §§ 3-2 til 3-8. Hvis eiendommen ikke er i samsvar med det kjøperen må kunne forvente ut ifra alder, type og synlig tilstand, kan det være grunnlag for mangelskrav. Det samme gjelder hvis det er holdt tilbake eller gitt uriktige opplysninger om eiendommen. Dette gjelder likevel bare dersom man kan gå ut ifra at det virket inn på avtalen at opplysningen ikke ble gitt eller at mangelskravet ikke blir rettet i tide på en tydelig måte.
Boligen kan ha en mangel etter avhendingsloven § 3-3 andre ledd, dersom det er avvik mellom opplyst og faktisk innvendig areal, forutsatt at avviket er på 2% eller mer og minimum 1 kvm.
Ved beregning av et eventuelt prisavslag eller erstatning må kjøper selv dekke tap/kostnader opptil et beløp på kr 10 000 (egenandel).
Ikke-forbruker (næringsdrivende) – definisjon
Hvis kjøper er en juridisk person, eller en fysisk person som hovedsakelig handler som ledd i næringsvirksomhet, vil kjøpet ikke anses som et forbrukerkjøp.
Ikke-forbruker – avtalevilkår
Eiendommen har en mangel dersom den ikke er i samsvar med kravene som følger av avtalen.
Eiendommen selges «som den er», og selgers ansvar utover det konkret avtalte er da begrenset etter avhendingsloven § 3-9, første ledd andre setning.
Avhendingsloven § 3-3 andre ledd fravikes, og hvorvidt boligens arealsvikt utgjør en mangel vurderes etter avhendingsloven § 3-8.
Informasjon om kjøpers undersøkelsesplikt, herunder oppfordringen om å undersøke eiendommen nøye, gjelder også for kjøpere som ikke anses som forbrukere.
Det forutsettes at hjemmel overføres til kjøper. Hvis kjøper ikke ønsker hjemmelsoverføring av eiendommen, må det tas forbehold om dette i budet.
Meglers vederlag
Meglers vederlag betales av selger og er avtalt til:
Vederlag: 0,90 % av salgssummen inkl. eventuell fellesgjeld. Minimumsprovisjon er kr 60 000,00
Vederlag:
Foto leilighet kr 5 000,00
Kontroll av hjemmel og heftelser kr 2 900,00
Markedsføringspakke kr 28 250,00
Oppgjør kr 7 500,00
Tilrettelegging kr 17 000,00
Visninger pr stk / Overtagelse kr 4 000,00
Utlegg:
Eierskiftegebyr kr 6 300,00
Innhenting av informasjon forretningsfører kr 4 400,00
Innhenting av offentlig opplysninger Oslo kommune kr 4 426,00
Tinglysing sikring kr 545,00
Andre utgifter:
Boligselgerforsikring Buysure inkl. tilstandsrapport Anticimex ( se eget ark) kr 0,00
Vi er opptatt av verdiskapning, og har knyttet til oss samarbeidspartnere som skal sikre våre kunder de beste produkter og tjenester;
• I forbindelse med forberedelse av salget, innhenter vi informasjon om eiendommen hovedsakelig fra vår samarbeidspartner Ambita.
• Gjensidige leverer boligselgerforsikring og tilbyr bygningsforsikring
• Boligkjøperforsikring leveres av Hiscox og med Sedgwick som skadebehandler, og er formidlet gjennom Gjensidige.
• BN bank tilbyr finansieringsløsninger
• Vår avdeling Krogsveen Pluss tilbyr flyttetjenester som utvask, visningsvask, lager, tømming og transport av flyttelass, i tillegg til å formidle kontakt med Flip for overflateoppussing.
• I forbindelse med overtagelse av eiendommen tilbyr Overo avtale om strøm, alarm og bredbånd.
• Krogsveen er, sammen med øvrige bransjeaktører, medeier i den digitale annonseringsplattformen Hjem som eies av Bomega AS.
Opplysninger om oppdraget
Oppdragsnummer 10-0136/25
Eiendomsmegler Krogsveen AS, avd. Bærum
Gml. Ringeriksvei 40, 1357, BEKKESTUA
950 007 613
Oppdragets KR-kode KR10.25136
Dato
Sist oppdatert: 08. april 2026 kl. 23:17
Dokumenter
Dokumenter
PDF – 312 KB
PDF – 29 KB
PDF – 127 KB
PDF – 392 KB
Område
Legg til steder som er viktige for deg
Visning
Unngå doble boligrenter
Vi tilbyr gunstig forsikring.
Vurderer du utleie?
Få et tilbud fra Utleie KrogsveenHva koster lånet?
Sjekk estimert lånekostnadVil du varsles om lignende boliger?
Ved å lagre ditt boligsøk hos oss får du beskjed når vi har en bolig som ligner denne, før den legges ut på markedet!




