Stenbråtveien 145
8 000 000 kr
133 m²
4 soverom
Solgt
Stenbråten
Moderne enderekkehus fra 2020 med 4 soverom | Takterrasse og markterrasse | Garasje m/ el-lader | Vannbåren gulvvarme
Prisantydning
8 000 000 krOmkostninger
220 990 krTotalpris
8 220 990 kr
Pris
Bruksareal
156 m²BRA-I (internt bruksareal)
133 m²BRA-E (eksternt bruksareal)
23 m²TBA (terrasse-balkongareal)
34 m²
Areal
Byggeår
2020Soverom
4 soveromBad
2 badType
RekkehusEierform
EierseksjonFellesutgifter
6 345 krEnergimerke
Lysegrønn B
Nøkkelinfo
Unngå doble boligrenter
Vi tilbyr gunstig forsikring.
Vurderer du utleie?
Få et tilbud fra Utleie KrogsveenHva koster lånet?
Sjekk estimert lånekostnadBeskrivelse
Kort om eiendommen
Velkommen til Stenbråtveien 145! Et moderne og innholdsrikt enderekkehus fra 2020 i et rolig, barnevennlig nabolag med nærhet til marka.
Dette er et stilrent rekkehus med gjennomgående moderne standard, perfekt for familien. Her bor du i et stille og trygt nabolag med nærhet til flotte turområder, skoler og barnehager. Livet nytes på to private uteplasser: en romslig takterrasse og en skjermet markterrasse. Boligen er energieffektiv med vannbåren gulvvarme som gir en lun og behagelig atmosfære.
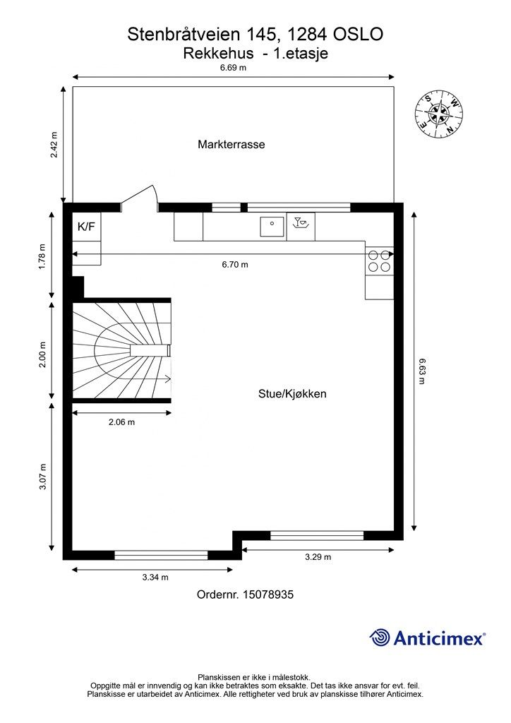
Høydepunkter:Nyere selveier-rekkehus fra 2020 To delikate bad og fire soverom Takterrasse (18 m²) og markterrasse (16 m²) Integrert garasje med elbillader Vannbåren gulvvarme sikrer lave strømkostnader Fyring og varmtvann inkludert i felleskostnadene
Velkommen til visning!
Område
Legg til steder som er viktige for deg
På flyttefot? Tenk kjøp og salg samtidig.
Få din egen rådgiver gjennom hele kjøps- og salgsprosessen. Det starter med en verdivurdering.
Unngå doble boligrenter
Vi tilbyr gunstig forsikring.
Vurderer du utleie?
Få et tilbud fra Utleie KrogsveenHva koster lånet?
Sjekk estimert lånekostnadVil du varsles om lignende boliger?
Ved å lagre ditt boligsøk hos oss får du beskjed når vi har en bolig som ligner denne, før den legges ut på markedet!
På flyttefot? Slik gjør vi det enklere for deg
Skreddersydd flyttepakke
Vi fikser håndverkere, vask, pakking, lagring og transport, og legger ut for utgiftene underveis.
Hjelp med både kjøp og salg
Hos oss har du din egen rådgiver gjennom hele kjøps- og salgsprosessen.
Hjelp til finansiering
Vårt samarbeid med BN Bank sikrer deg rask og løsningsorientert hjelp, til konkurransedyktige betingelser.






















































