Svaneveien 23B
9 200 000 kr
146 m²
3 soverom
Solgt
Abildsø
Flott, utbygget familiebolig over 3 plan - Attraktiv beliggenhet med fantastisk utsikt - 2 min gange til Abildsø skole
Prisantydning
9 200 000 krAndel fellesgjeld
45 022 krOmkostninger
252 110 krTotalpris
9 497 132 kr
Pris
Bruksareal
146 m²BRA-I (internt bruksareal)
146 m²TBA (terrasse-balkongareal)
9 m²
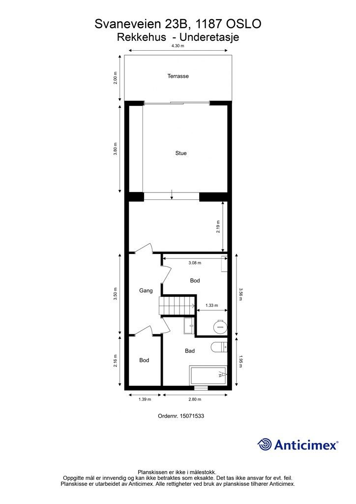
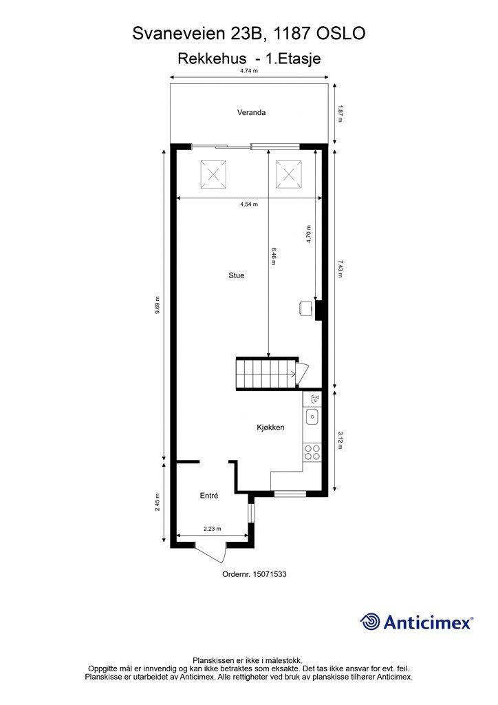
Areal
Etasje
3Byggeår
1953Soverom
3 soveromBad
2 badTomteareal
127 m² (festet)Type
RekkehusEierform
EietEnergimerke
Oransje F
Nøkkelinfo
Unngå doble boligrenter
Vi tilbyr gunstig forsikring.
Vurderer du utleie?
Få et tilbud fra Utleie KrogsveenHva koster lånet?
Sjekk estimert lånekostnadBeskrivelse
Kort om eiendommen
Attraktivt, utbygget rekkehus med god intern beliggenhet i Svaneveien. Boligen ligger i et meget barnevennlig boligområde med nærhet til skoler, barnehager, offentlig kommunikasjon og Østensjøvannet.
Kort fortalt:
- Rekkehus over tre plan med flott utsikt over Østensjøvannet
- God planløsning som er svært ideell for barnefamilier med alle soverom og bad i samme etg.
- Romslig stue og kjellerstue
- Pent Ikea-kjøkken fra 2020
- To bad med badekar
- Tre soverom
- Peis
- Flotte uteplasser både på fremsiden og baksiden av huset
- Mulighet til å kjøpe garasjeplass separat av selger
- 2 minutters gange til Abildsø skole og 3 minutter til Abildsøkrysset
- Velstyrt huseierlag
- Umiddelbar nærhet til Østensjøvannet og Østmarka
- Lav fellesgjeld og felleskostnader
Velkommen til visning!
Område
Legg til steder som er viktige for deg
På flyttefot? Tenk kjøp og salg samtidig.
Få din egen rådgiver gjennom hele kjøps- og salgsprosessen. Det starter med en verdivurdering.
Unngå doble boligrenter
Vi tilbyr gunstig forsikring.
Vurderer du utleie?
Få et tilbud fra Utleie KrogsveenHva koster lånet?
Sjekk estimert lånekostnadVil du varsles om lignende boliger?
Ved å lagre ditt boligsøk hos oss får du beskjed når vi har en bolig som ligner denne, før den legges ut på markedet!




