Bråtengrenda 3A
5 000 000 kr
136 m²
4 soverom
Komplett salgsoppgave

Ytre Enebakk/Østmarkskollen
Flott tomannsbolig med 4 soverom og garasje | Sydvestvendt terrasse på 75 kvm. | Gangavstand til skole og barnehage
Prisantydning
5 000 000 krOmkostninger
145 990 krTotalpris
5 145 990 kr
Pris
Bruksareal
136 m²BRA-I (internt bruksareal)
136 m²TBA (terrasse-balkongareal)
83 m²
Areal
Byggeår
2006Soverom
4 soveromBad
1 badType
Halvpart vertikaldelt boligEierform
EierseksjonFasiliteter
Garasje/P-plass og Balkong/Terrasse
Nøkkelinfo
Unngå doble boligrenter
Vi tilbyr gunstig forsikring.
Vurderer du utleie?
Få et tilbud fra Utleie KrogsveenHva koster lånet?
Sjekk estimert lånekostnadBeskrivelse
Kort om eiendommen
Innhold og byggemåte
Innhold og byggemåte
Eiendommen
Bråtengrenda 3A, 1914 YTRE ENEBAKK
Kommunenummer 3220, gårdsnummer 93, bruksnummer 423, seksjonsnummer 1, ideell andel 1/1
Innhold
Totalt bruksareal BRA: 136 kvm.
BRA-i:
Tomannsbolig:
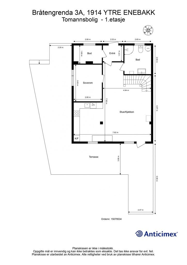
1. etasje 75 kvm: Entré, bod, bad, soverom og stue med åpen kjøkkenløsning.
2. etasje 61 kvm: Loftstue, bod og 3 soverom.
Åpent areal:
1. etasje 75 kvm: Sydvestvendt terrasse/markterrasse.
2. etasje 8 kvm: Sydvestvendt veranda.
Arealet i felles garasje er ikke medtatt som bruksareal, da garasjen ikke er fysisk adskilt med innvendig vegg mellom biloppstillingsplassene.
Vedlagte plantegninger er ikke målbare. De oppgitte arealer er hentet fra rapport med befaringsdato 25.03.2026, utført av Anticimex AS v/Lars Erik Bergersen.
Det gjøres oppmerksom på at planløsningen i 2. etasje ikke stemmer helt med originale bygningstegninger. Det er etablert et ekstra soverom i etasjen, ved å bruke areal fra loftstuen. Boden i 2. etasje er betegnet som bad på bygningstegninger. Se pkt. ferdigattest.
Byggemåte
Selger har innhentet en tilstandsrapport av boligen/eiendommen. Dersom det er registrert avvik, er disse klassifisert med tilstandsgrader (TGIU, TG2 og/eller TG3). Kjøper overtar ansvaret for de opplysninger som fremkommer av salgsdokumentasjonen, og kan ikke gjøre gjeldende som mangel noe som burde vært kjent eller som ikke kan anses å ha betydning for avtalen.
Bygningen er iht. tilstandsrapport en tomannsbolig oppført i 2006. Bygget er oppført med støpt plate på mark. Yttervegger og etasjeskillere er av trekonstruksjoner, hvor utvendige fasader er kledd med liggende trekledning. Mot det kalde loftet er det synlige bjelker av treverk og isolasjon. Taket er en saltakskonstruksjon i tre, tekket med takstein fra byggeår. Boligen har vinduer med karmer av tre og to-lags glass fra byggeår. Entrédøren er en glatt/profilert dør av tre med glassfelt og kodelås, og balkongdør/terrassedører er fra byggeår. Innvendig er det hvite profilerte innerdører og en trapp i tre. Det er en elementpipe fra byggeår, men ildsted var ikke etablert på befaringstidspunktet. Pipen er helkledd i metall, og takrenner og nedløp er også i metall. Les for øvrig mer om byggemåte og den tekniske tilstanden i rapporten.
Følgende bygningsdeler er gitt Tilstandsgrad 2 (TG2) — Avvik som kan kreve tiltak:
- Bad: Det er registrert bomlyd under enkelte gulvfliser, uten tegn til riss og sprekker i flisfuger. Forholdet vurderes i hovedsak til å være et mindre avvik av estetisk betydning, uten nevneverdige konsekvenser utover dette. Lokalfallet i dusjsonen er mindre enn anbefalt. Konsekvens er at fallforholdet vurderes å ikke gi tilfredsstillende bortledning av bruksvann ved normal bruk. Fallforhold utenfor sluksonen vurderes ikke til å være tilstrekkelig for å lede eventuelt lekkasjevann til sluk, og det er ikke påvist at vanntett sjikt har tilstrekkelig oppkant ved dørterskel for å kompensere for dette. Konsekvens er at forholdet gir risiko for at vann kan renne ut i tilstøtende rom ved en lekkasje. Vanntett sjikt har en alder som tilsier at fremtidig funksjon er usikker. Overgang mellom sluk og vanntett sjikt er uoversiktlig.
- Kjøkken: Synlige deler av gulvets overflatemateriale har stedvise åpninger/gliper i skjøter og overganger.
- Vannrør: Vannrørene er ikke plugget mot varerør. Konsekvens er at eventuelt lekkasjevann fra rør-i-rør kan forårsake følgeskader.
- Varmtvannsbereder: Pga. alder.
- Varmepumpe: På bakgrunn av varmepumpens alder vurderes det at fremtidig funksjon er usikker. Fremlagt dokumentasjon på utført service på varmepumpe i 2026.
- Mekaniske ventilasjonsanlegg: Pga. alder.
- Uinnredet kaldtloft: Det er valgt å vurdere boligens uinnredede loft (og tilhørende bygningsdeler) med en samlet helhetsvurdering. Følgende hovedmomenter er lagt til grunn for vurderingen: Kaldtloftet har stedvis lav takhøyde og mangler gangbart gulv. Bygningsdelen er inspisert etter beste evne, men deler av kaldtloftet lot seg ikke undersøke grunnet denne begrensningen. Konsekvens er at tilstanden i disse delene av loftet ikke er kartlagt. Det registreres enkelte uisolerte ventilasjonsrør. Konsekvens er at forholdet medfører risiko for kondens på innsiden av røret, noe som kan føre til fuktskader. Det er ikke observert tegn til at forholdet har ført til slike skader på befaringsdagen.
- Yttervegger inkl. fasader: Det er ikke montert tilstrekkelig gnagersikring bak hjørnebord (ytterhjørner).
- Yttertak: Vurderingene av yttertaket er kun gjort fra veranda og bakkeplan av sikkerhetsmessige årsaker, med den begrensningen dette innebærer. Konsekvens er at deler av taket kan ha avvik som ikke lar seg registrere på grunn av begrenset tilkomst. Taktekkingen (med tilhørende beslag) viser begynnende tegn til slitasje og elde.
- Undertak (inkluderer sløyfer, lekter og innfestninger): Undertaket (inkluderer sløyfer, lekter, innfestninger og lignende) med tilhørende komponenter har en alder som tilsier at fremtidig funksjon er usikker. Bygningsdelen er skjult, så den faktiske tilstanden er ukjent.
- Veranda: Overflatematerialer på verandaer viser tegn til slitasje, elde og begynnende fuktskader. Verandaen er vurdert å utgjøre tettesjikt mot underliggende areal. Vanntett sjikt pga. alder. Bygningsdelen er skjult, så den faktiske tilstanden/dagens tettefunksjon er ukjent.
- Terrasse/platting: Overflatematerialer på overbygg mot syd viser tegn til slitasje.
- Garasje: Det er ukjent om det er musesperre bak kledningen. Yttertaket (med tilhørende bygningsdeler) viser begynnende tegn til slitasje og elde. Porten viser tegn til slitasje, og begynnende tegn på skader/nedsatt funksjon. Ytterdør viser tegn til slitasje, elde og stedvise aldersrelaterte skader.
Følgende bygningsdeler er ikke undersøkt (TGIU):
- Takkonstruksjon: På bakgrunn av at ventilasjonen av takkonstruksjonen ikke kan kartlegges og undersøkes fra innsiden, foreligger det en usikkerhet om hvordan/om denne funksjonen er ivaretatt. Forholdet kan ikke kartlegges fra utsiden alene.
- Takgjennomføringer (takhatter o.l.): Ikke inspisert grunnet sikkerhetsmessige årsaker.
- Detaljer inn mot tilstøtende konstruksjoner: Ikke inspisert grunnet sikkerhetsmessige årsaker.
- Skorsteiner (over tak): Ikke inspisert grunnet sikkerhetsmessige årsaker.
- Terrasse/platting: Fundamentene var ikke tilgjengelige for undersøkelser grunnet ingen tilkomst, noe som gjorde at utførelsen/tilstanden ikke lot seg kontrollere.
- Terrengfall fra grunnmur: Deler av terrengfallet kan ikke undersøkes på tilstrekkelig måte, grunnet plassering av terrasse. Konsekvens er at fallforholdene inn mot grunnmur ikke er kartlagt.
Helse, miljø og sikkerhet:
- Innvendige trapper: Trappen har ikke håndløper på begge sider.
- Veranda: Rekkverkshøyden er under 1,0 meter.
Se supplerende tekst i tilstandsrapporten. Kjøper overtar ansvar og risiko for dette.
Selger beskriver også i egenerklæringsskjema:
Tidligere eier opplyste at badet var flislagt av ufaglært og at membran var lagt av faglært. I 2023 ble en tilførsel til varmtvannsberederen skiftet, og i 2025 ble begge ventiler til vasken byttet i forbindelse med oppgradering av baderomsmøbler. Begge disse jobbene ble utført av Kjelgård rørlegger AS. Selger opplyser om en tidligere jordingsfeil forårsaket av defekt julelys, som ble utbedret og testet av elektriker. Det er utført service og rens av ventilasjonsanlegg og varmepumpe i 2026. Selger nevner også at noen parkettdeler har fått glipper på noen millimeter over tid.
Moderniseringer og påkostninger
2026:
- Service og rens av varmepumpe.
- Service og rens av ventilasjonsanlegg.
- Lagt nye fuger og silikon i dusjområdet, på badet.
- Lagt nytt tak og malt overbygg, over utgangen til terrassen.
- Malt begge garasjeporter.
- Malt håndløper og innsiden av rekkverk på veranda, i 2. etasje.
2025:
- Skifte av vinkelkran til servant, utført av Rørleggerfirma Kjelgaard A/S.
- Montert kjøkkeninnredning.
- Montert innredning på badet.
2023:
- Utskifting av tilførsel til varmtvannsbereder, utført av Kjelgård rørlegger AS. Dokumentasjon foreligger.
Standard
Innholdsrik og velholdt halvpart av en vertikaldelt tomannsbolig fra 2006, fordelt over to etasjer. Boligen har en familievennlig planløsning med de sosiale sonene i 1. etasje og en privat soveromsavdeling i 2. etasje. De siste årene er det gjort betydelige oppgraderinger, inkludert ny kjøkkeninnredning og baderomsinnredning. Fra stuen er det direkte utgang til en stor, skjermet og sydvestvendt markterrasse på hele 75 m². Her bor du med marka som nærmeste nabo, der du blant annet finner lysløype, flotte turområder og gapahuk. I tillegg er det idrettsplass med fotball-, skøyte- og sykkelbane i nærområdet.
Man møter et hyggelig overbygget inngangsparti når man entrer boligen.
1. etasje:
Entré: Entréen er lys og innbydende med varmekabler på gulv. Døren har kodelås for enkel adkomst. Rommet har plass til oppbevaring av yttertøy og sko. Boligen har balansert ventilasjon. Det ble utført service på ventilasjonsanlegget i 2026.
Stue: Stuen og kjøkkenet danner et åpent og sosialt allrom med god plass til både sofagruppe og spisebord. En luft-til-luft-varmepumpe sørger for effektiv oppvarming. Det ble utført service på varmepumpen 2026. Store vindusflater og terrassedør slipper inn rikelig med dagslys og gir en fin overgang til uteområdet. Fra stuedelen er det direkte utgang til en stor markterrasse på ca. 75 kvm, som blir en naturlig del av boarealet på sommeren. Terrassen er et av boligens høydepunkter. Uteplassen er delvis overbygget, noe som gjør at man kan sitte ute selv om det skulle komme en regnskur. Her er det rikelig med plass for flere sittegrupper, grilling og lek. Området er skjermet og privat.
Kjøkken: Kjøkkenet fikk ny innredning fra Ikea, i 2025. Kjøkkenet har profilerte fronter og benkeplate i heltre. Det er godt med skap- og benkeplass og en praktisk halvøy skaper et funksjonelt skille mot spiseplassen, samtidig som den bevarer åpenheten. Av hvitevarer er det integrert stekeovn, mikrobølgeovn, induksjonstopp og oppvaskmaskin. Frittstående kjøleskap med frysedel er plassert i en egen nisje og fritthengende ventilator med avtrekkskanal, er plassert over kokesonen. Hvitevarer kan følge med, ved avtale.
Bad: Badet ligger praktisk til i 1. etasje. Rommet har flislagt gulv med varmekabler, vegghengt baderomsinnredning med servant, og en dusjnisje med glassdører. Det er opplegg for både vaskemaskin og tørketrommel. Innredningen ble skiftet i 2025.
Soverom 1. etasje: I denne etasje finnes ett av boligens fire soverom. Rommet er praktisk som gjesterom, kontor eller hovedsoverom for den som ønsker alt på ett plan.
2. etasje:
Loftstue: En trapp i tre fører opp til 2. etasje. Her møtes du av en lys og luftig loftstue, som gir ekstra fleksibilitet i hverdagen. Rommet fungerer utmerket som en ekstra TV-stue eller lekeareal for barna. Fra loftstuen er det utgang til en egen veranda. Den sydvestvendte verandaen er på 8 m² og gir en fin uteplass også i 2. etasje. Herfra er det god utsikt over nærområdet, blant annet mot Mari Kirke.
Soverom: De tre øvrige soverommene ligger samlet i denne etasjen, noe som skaper en adskilt og rolig sone. Rommene er av varierende størrelse og egner seg godt som barnerom, kontor eller gjesterom etter behov.
Lagring: Boligen har en innvendig bod i 1. etasje. Boden huser sentralstøvsuger og ventilasjonsaggregat. Det er også en bod i 2. etasje. Boden i 2. etasje har vannuttak og -avløp, klargjort for etablering av bad.
Løsøre og tilbehør
Vi viser til liste fra Norges Eiendomsmeglerforbund som gjelder fra 01.01.2020 angående løsøre og tilbehør.
Hvitevarer kan følge med ved avtale.
Oppvarming
Boligen har elektrisk oppvarming og luft-til-luft varmepumpe i stue/kjøkken. Det er gulvvarme i entré og på baderom.
Dersom beboelsesrom ikke har vegg- eller fastmonterte varmekilder ved visning, følger dette heller ikke med.
Ferdigattest/brukstillatelse
Det foreligger ferdigattest for tomannsboligen, datert 02.10.2006. Denne kan fås ved henvendelse til megler.
Det gjøres oppmerksom på at dagens planløsning ikke stemmer helt med originale bygningstegninger. Det er etablert et ekstra soverom i 2. etasje, ved å dele av loftstuen. Boden i 2. etasje er betegnet som bad på bygningstegninger.
Det foreligger et "Svar på melding om tiltak" for oppføring av garasje datert 20.08.2007. Det er ikke utstedt ferdigattest for garasjen, og tiltaket er dermed ikke formelt avsluttet.
Kjøper overtar alt ansvar, kostnad og risiko for dette videre.
Tinglyste heftelser og rettigheter
Boligen overdras fri for pengeheftelser.
Sameiet har legalpant for krav mot sameieren som følger av sameieforholdet iht. eierseksjonsloven § 31. Pantet er begrenset oppad til 2G, (G = folketrygdens grunnbeløp).
I tillegg har sameiet tinglyst panterett som nevnt over.
Det er ingen tinglyste servitutter på eiendommen.
Eventuell adgang til utleie
Leiligheten kan leies ut såfremt leiligheten har forsvarlige radonverdier. Leietaker må følge sameiets vedtekter og ordensregler på lik linje som eier.
Diverse
Vi er opptatt av verdiskapning, og har knyttet til oss samarbeidspartnere som skal sikre våre kunder de beste produkter og tjenester;
• I forbindelse med forberedelse av salget, innhenter vi informasjon om eiendommen hovedsakelig fra vår samarbeidspartner Ambita.
• Gjensidige leverer boligselgerforsikring og tilbyr bygningsforsikring
• Boligkjøperforsikring leveres av Hiscox og med Sedgwick som skadebehandler, og er formidlet gjennom Gjensidige.
• Trøgstad Sparebank tilbyr finansieringsløsninger
• Vår avdeling Krogsveen Pluss tilbyr flyttetjenester som utvask, visningsvask, lager, tømming og transport av flyttelass, i tillegg til å formidle kontakt med Flip for overflateoppussing.
• I forbindelse med overtagelse av eiendommen tilbyr Overo avtale om strøm, alarm og bredbånd.
• Krogsveen er, sammen med øvrige bransjeaktører, medeier i Bomega AS som tilbyr den digitale annonseringsplattformen Hjem.
Energimerking
Denne boligen er energimerket. På en skala fra A til G, der A er best, har denne boligen oppnådd C (en normalbolig vil gjerne ligge i området C-F). Kopi av energiattest ligger vedlagt i salgsoppgaven eller kan fås ved henvendelse til megler.
Beliggenhet og tomteforhold
Beliggenhet og tomteforhold
Beliggenhet
Eiendommen har en god beliggenhet, i et veletablert og barnevennlige område på Østmarskollen, i Ytre Enebakk. Her har du marka som nærmeste nabo, med direkte tilgang til skog og natur, samtidig som hverdagens logistikk er enkel. Dette er et nabolag preget av eneboliger og et trygt oppvekstmiljø.
Fra boligfeltet er det gangavstand til matbutikken Kiwi, ungdomsskole, barneskole (ny 2019), idrettsplass og Østmarka. Vågsenteret - et nærsenter med dagligvarebutikk (Rema 1000), kafé, apotek, vinmonopol og diverse småbutikker ligger ca. 16 minutters gåtur unna. Nærmeste busstopp er Tangen Bru som ligger ca. 1 km. fra boligen. Der kan du hoppe på direkteruter til både Oslo, Ski og Lillestrøm.
Boligen beliggenhet i nærhet til lysløype og friområde, gir gode muligheter for forskjellige former for friluftsaktiviteter, både sommer som vinter. Området byr på noen av de fineste friluftsområder man kan finne i Østmarka m/sti- og løypenett med oppkjørte skispor, samt bade- og fiskevann.
Vågvann, som ligger midt i hjerte av Ytre Enebakk er perfekt for både badeelskere, fiskere, kajakk- og kanopadlere. Vannet henger sammen med flere andre vann, slik at man kan padle en lang dagstur fra en ende til den andre. Kort kjøreavstand også til Lyseren, med flotte bade- og fiskemuligheter.
Ytre Enebakk har meget gode fritidstilbud, med forskjellige lag og foreninger. Jeger- og fiskeforening, korps og idrettslag med fine øvingslokaler, treningshall og fotballbaner. Vannskiklubb ved Mjærvann. 18-hulls golfbane mellom Mjærvann og Vågvann. Kort vei også til Lyseren med flotte bade- og fiskemuligheter.
Adkomst
Se Google Maps - det er enkelt å finne frem i kartet.
Det vil bli skiltet med Krogsveen visningsskilt ved fellesvisninger.
Barnehager, skoler og fritid
Ungdomsskole, nyere barneskole og flere barnehager ligger i gangavstand fra boligen. Det er godt utbygget gang- og sykkelveisystem i nærmiljøet, som sikrer trygge skoleveier.
Informasjon om tilhørende skolekretser er hentet fra Prognosesenteret som dataleverandør, og tilhørigheten kan årlig endres av kommunen. Dersom skole- og barnehagetilbud er av betydning for kjøpet, ber vi om at det rettes en særskilt henvendelse til kommunen for oppdatert informasjon.
Beskrivelse av tomt
Felles eiet tomt på 957 kvm. som tilhører sameiet. Tomten er opparbeidet med gruset gårdsplass, gressplen og diverse beplantning.
Parkering
Eiendommen disponerer en garasjeplass, i felles frittstående dobbelgarasje. I tillegg er det biloppstillingsplasser på gruset gårdsplass.
Vei, vann og avløp
Eiendommen har adkomst via privat vei med felles vedlikeholdsansvar.
Privat vann fra Kirkebygden og Ytre Enebakk Vannverk.
Eiendommen er tilknyttet kommunalt ledningsnett via private stikkledninger. Eier er selv ansvarlig for private stikkledninger til boligen.
Regulerings-og arealplaner
Eiendommen er regulert til frittliggende småhusbebyggelse i henhold til reguleringsplan for Østmarkskollen, med tilhørende reguleringsbestemmelser datert 10.12.2001.
Utsnitt av plan med tilhørende bestemmelser kan fås ved henvendelse til megler.
Økonomi
Økonomi
Kommunale utgifter
Kommunale avgifter er kr 16.201,- for 2026. I dette inngår gebyr for avløp og renovasjon.
Privat vannforsyning fra Kirkebygden og Ytre Enebakk vannverk:
Den faste vannavgiften for denne eiendommen i 2026 er kr. 8.646,- inkl. mva.
Nåværende eier har et strømforbruk som tilsvarer ca. kr 16.891,- pr. år/10.855 kWh. pr. år.
Selger har avtalt Norgespris på strøm på eiendommen frem til 31.12.2026, og denne er pt på 50 øre inkl mva. Nettleie, avgifter og påslag fra kraftleverandøren kommer i tillegg. Er det fjernvarme vil det også komme kostnader i tillegg.
Denne avtalen vil følge eiendommen i den avtalte perioden.
Les mer om Norgespris her: https://www.regjeringen.no/no/aktuelt/legg-fram-lov-om-norgespris-pa-straum-og-fjernvarme/id3102642/
Boligen har en årlig forsikringspremie på kr 7.872,-
Velavgift er kr 1.500,- pr. år.
Boligen er tilknyttet Viken Fiber/Altibox som leverandør av kabel-tv og internett. Avgift er på kr 1.300,- pr. mnd. Dekoder medfølger ikke.
Utgiftene er basert på nåværende eiers forbruk og avtaler.
Formuesverdi
Formuesverdi for 2024 var kr 1.070.697,- i følge selgers skatteetaten. Beløpet forutsetter at eier bor fast i boligen (primærbolig).
Ved eventuell øvrig bruk av eiendommen (f.eks. fritidsbolig, pendlerbolig, utleieobjekt) var formuesverdien for 2024 kr 4.282.786,-
Fra 2026 har Stortinget vedtatt en oppdatert modell for beregning av formuesverdi for primærbolig, så avvik kan forekomme.
For mer informasjon se skatteetaten.no
Omkostninger
5 000 000,00 Prisantydning
Omkostninger
125 000,00 Dokumentavgift til staten (2,5% av kjøpesum)
19 900,00 Gjensidige Boligkjøperpakke* (valgfritt)
545,00 Tinglysing panterettsdokument
545,00 Tinglysing skjøte
--------------------------------------------------------
126 090,00 (Omkostninger totalt (uten Gjensidige Boligkjøperpakke))
145 990,00 Omkostninger totalt (med Gjensidige Boligkjøperpakke))
--------------------------------------------------------
5 126 090,00 Totalpris inkl. omkostninger
5 145 990,00 Totalpris inkl. omkostninger (med Gjensidige Boligkjøperpakke)
--------------------------------------------------------
Tilbud om lånefinansiering
Megler formidler gjerne kontakt med rådgiver hos Trøgstad Sparebank. De har konkurransedyktige betingelser samt rask og løsningsorientert behandling av din lånesøknad.
Betalingsbetingelser
Kjøpesum inkludert omkostninger, samt pantedokument tilknyttet eventuelt lån, skal være disponibelt hos megler 2 virkedager før overtagelsen.
Annen viktig informasjon
Annen viktig informasjon
Eier
Yngve Vincent Kirkhus Heggelund
Overtakelse
Etter nærmere avtale.
Velforening
Bråtengrenda 3 A og Bråtengrenda 3 B er et sameie og har felles tomt. Det er ikke utarbeidet noen regler eller vedtekter for sameiet.
Boligselgerforsikring
Selger har i forbindelse med salget tegnet boligselgerforsikring levert av Gjensidige.
Boligselgerforsikringen dekker selgers ansvar etter avhendingsloven begrenset oppad til kr 14 millioner. Dersom kjøper oppdager forhold ved eiendommen som hen mener utgjør en mangel ved eiendommen, vil Gjensidige behandle reklamasjonen på vegne av selger. Forsikringsvilkår kan fås ved henvendelse til megler.
Vedlagt salgsoppgaven følger selgers egenerklæringsskjema og tilstandsrapport. Interessenter må sette seg inn i dokumentene før bud inngis.
Boligkjøperforsikring
Innen kontraktsmøtet må kjøper ta stilling til om det ønskes å bestille Boligkjøperpakken gjennom Gjensidige. I denne gunstige pakken er boligen ferdig forsikret og inkluderer rettshjelpsforsikring, også kalt Boligkjøperforsikring. Rettshjelpsforsikring gir trygghet og tilgang på profesjonell juridisk hjelp dersom det oppdages uventede feil eller mangler det første året etter overtagelse. Forsikringsselskapet behandler i så fall ethvert mangelskrav kjøper måtte ha overfor selger.
Boligkjøperpakken inkluderer bygningsforsikring for hus og hytte, innboforsikring, flytteforsikring og dobbel rentedekning - i situasjoner hvor kjøper ikke får solgt nåværende primærbolig.
Kjøper mottar ingen særskilt faktura for Boligkjøperpakken da kostnaden det første året legges til kjøpesummen for boligen. Det gjøres oppmerksom på Krogsveen mottar et honorar for denne formidlingen.
Produktark for Boligkjøperpakken ligger vedlagt i salgsoppgaven.
Dersom ikke boligkjøperpakke ønskes kan kun rettshjelpsforsikring, også kalt boligkjøperforsikring, tegnes særskilt via megler. Rettshjelpsforsikringen varer i 5 år fra overtagelse og leveres gjennom Gjensidige. Ta kontakt med megler for ytterligere informasjon.
Selskap og privatpersoner som driver med kjøp/salg/utvikling som ledd i egen næringsvirksomhet kan ikke tegne boligkjøperpakke eller rettshjelpsforsikring.
Budgivning
Forbrukerinformasjon om budgivning er vedlagt denne salgsoppgaven og er også på vår hjemmeside Krogsveen.no. Alle bud og budforhøyelser må inngis skriftlig. I tillegg må legitimasjon være fremlagt sammen med signatur fra budgiver.
Vi oppfordrer til å gi bud elektronisk via GI BUD-knappen på eiendommens hjemmeside på Krogsveen.no. Da vil samtlige vilkår bli oppfylt.
Eventuelle forhøyelser eller endringer av budet kan bekreftes pr SMS eller på e-post. Vi oppfordrer alltid til å kontakte megler pr. telefon i tillegg da forsinkelser i SMS og e-post kan forekomme.
For at budene skal kunne bli behandlet og videreformidlet skriftlig til alle involverte parter, må alle bud ha en tilstrekkelig lang akseptfrist, jf. eiendomsmeglingsforskriften § 6-3.
Selger må også skriftlig akseptere budet før aksept kan formidles til budgiver. Akseptfrist bør derfor være på minimum 30 minutter, og budforhøyelser må derfor skje i god tid før fristens utløp.
Bud i forbrukerforhold kan uansett ikke settes med kortere frist enn kl. 12.00 første virkedag etter siste annonserte visning. I tillegg kan ikke budet ha forbehold om at det skal holdes hemmelig ovenfor øvrige interessenter. Megler har iht lov om eiendomsmegling ikke anledning til å videreformidle disse budene, og de vil dermed heller ikke bli journalført.
Etter at eiendommen er solgt vil kjøper og selger få tilsendt budjournal. Øvrige budgivere kan få utlevert kopi av budjournalen i anonymisert form.
Hvitvaskingsreglene
I henhold til lov om hvitvasking og terrorfinansiering har megler plikt til å gjennomføre kontrolltiltak overfor kunder, herunder fullmektiger. Dette innebærer bl.a. å bekrefte kunders og reelle rettighetshaveres identitet på bakgrunn av fremvist gyldig legitimasjon eller på annen godkjent måte, samt å innhente opplysninger om kundeforholdets formål og tilsiktede art.
Dersom slike kundetiltak ikke kan gjennomføres, kan megler ikke etablere kundeforholdet eller utføre transaksjonen.
Hvis kjøper ikke bidrar til gjennomføring av kundekontrollen og dette fører til at transaksjonen blir forsinket eller ikke kan gjennomføres, vil dette ansees som mislighold av avtalen og gi selger rettigheter etter avhendingslova kapittel 5. I tilfeller der selger ikke bidrar til gjennomføring av løpende kundekontroll underveis i oppdraget, er det selger som misligholder sine forpliktelser etter avtalen og gi kjøper rettigheter etter avhendingslovens kapittel 4. Partene er selv ansvarlige for eventuelle kostnader og ansvar dette kan medføre. Eiendomsmegleren eller eiendomsmeglingsforetaket kan ikke holdes ansvarlig for de konsekvenser dette vil kunne få for partene eller andre som har interesser i eiendomshandelen.
Kjøper oppfordres til å innbetale kjøpesummen som ikke kommer fra låneinstitusjon i én samlet innbetaling fra egen konto i norsk bank. Megler har plikt til å melde fra til Økokrim om eiendomshandler som fremstår som mistenkelige. Melding sendes Økokrim uten at partene varsles.
Personopplysningsloven
I henhold til personopplysningsloven gjør vi oppmerksom på at interessenter kan bli registrert for videre oppfølging.
Lovanvendelse
Generelle bestemmelser
Salgsoppgaven er basert på de opplysningene selger har gitt til megler, den bygningssakyndiges tilstandsrapport, samt opplysninger innhentet fra kommunen, Kartverket og andre tilgjengelige kilder. Det er viktig at kjøper setter seg grundig inn i alle salgsdokumentene, herunder salgsoppgave, tilstandsrapport og selgers egenerklæring. Kjøper anses kjent med forhold som er tydelig beskrevet i salgsdokumentene, og slike forhold kan ikke påberopes som mangler. Dette gjelder uavhengig av om kjøper har lest dokumentene. Alle interessenter oppfordres til å undersøke eiendommen nøye, gjerne sammen med fagkyndig før bud inngis. Kjøper som velger å kjøpe usett kan ikke gjøre gjeldende som mangel noe han burde blitt kjent med ved undersøkelsen.
Dersom det er behov for avklaringer, anbefaler vi at interessenter rådfører seg med eiendomsmegler eller egne rådgivere før det legges inn bud.
En bolig som har blitt brukt i en viss tid, har vanligvis blitt utsatt for slitasje og skader kan ha oppstått. Slik bruksslitasje må kjøper regne med, og det kan avdekkes enkelte forhold etter overtakelse som nødvendiggjør utbedringer. Normal slitasje og skader som nødvendiggjør utbedring, er innenfor hva kjøper må forvente og vil ikke utgjøre en mangel.
Kjøper og selgers rettigheter og plikter reguleres av avtalen mellom partene, samt informasjonen som har vært tilgjengelig for kjøperen i forbindelse med handelen. Avtalen utfylles av avhendingsloven, og det gjelder ulike avtalevilkår avhengig av om kjøper er forbrukerkjøper eller ikke. Dette er nærmere beskrevet nedenfor.
På grunn av ulike avtalevilkår kan selger vurdere bud fra en som ikke er forbruker, ulikt fra en forbrukers bud. Dersom kjøper ikke er forbruker, er selger sitt mulige mangelsansvar begrenset fordi eiendommen selges "som den er". Selger kan ikke ta «som den er»- forbehold overfor en forbrukerkjøper. Selv et lavere bud fra en som ikke er forbruker kan foretrekkes fordi begrensningen i mulig mangelsansvar kan ha egenverdi for selger. Selger står fritt til å forkaste eller akseptere ethvert bud, og er for eksempel ikke forpliktet til å akseptere høyeste bud.
Budgiver skal i budskjema avgi egenerklæring om budgiver er forbruker eller næringsdrivende/ person som hovedsakelig handler som ledd i næringsvirksomhet. Budgivere får informasjon dersom andre bud er inngitt av en som ikke er forbruker.
Forbrukerkjøp - definisjon
Med forbrukerkjøp menes kjøp av eiendom når kjøperen er en fysisk person som ikke hovedsakelig handler som ledd i næringsvirksomhet.
Forbruker – avtalevilkår
Eiendommen har en mangel dersom den ikke er i samsvar med kravene som følger av avtalen, eller det foreligger brudd på bestemmelsene i avhendingsloven §§ 3-2 til 3-8. Hvis eiendommen ikke er i samsvar med det kjøperen må kunne forvente ut ifra alder, type og synlig tilstand, kan det være grunnlag for mangelskrav. Det samme gjelder hvis det er holdt tilbake eller gitt uriktige opplysninger om eiendommen. Dette gjelder likevel bare dersom man kan gå ut ifra at det virket inn på avtalen at opplysningen ikke ble gitt eller at mangelskravet ikke blir rettet i tide på en tydelig måte.
Boligen kan ha en mangel etter avhendingsloven § 3-3 andre ledd, dersom det er avvik mellom opplyst og faktisk innvendig areal, forutsatt at avviket er på 2% eller mer og minimum 1 kvm.
Ved beregning av et eventuelt prisavslag eller erstatning må kjøper selv dekke tap/kostnader opptil et beløp på kr 10 000 (egenandel).
Ikke-forbruker (næringsdrivende) – definisjon
Hvis kjøper er en juridisk person, eller en fysisk person som hovedsakelig handler som ledd i næringsvirksomhet, vil kjøpet ikke anses som et forbrukerkjøp.
Ikke-forbruker – avtalevilkår
Eiendommen har en mangel dersom den ikke er i samsvar med kravene som følger av avtalen.
Eiendommen selges «som den er», og selgers ansvar utover det konkret avtalte er da begrenset etter avhendingsloven § 3-9, første ledd andre setning.
Avhendingsloven § 3-3 andre ledd fravikes, og hvorvidt boligens arealsvikt utgjør en mangel vurderes etter avhendingsloven § 3-8.
Informasjon om kjøpers undersøkelsesplikt, herunder oppfordringen om å undersøke eiendommen nøye, gjelder også for kjøpere som ikke anses som forbrukere.
Det forutsettes at hjemmel overføres til kjøper. Hvis kjøper ikke ønsker hjemmelsoverføring av eiendommen, må det tas forbehold om dette i budet.
Meglers vederlag
Meglers vederlag betales av selger og er avtalt til:
Vederlag: 1 % av salgssummen.
Minimumsprovisjon er kr 50.000,-
Vederlag:
Kontroll av hjemmel og heftelser kr 3.900,-
Markedsføringspakke kr 29.900,-
Oppgjør kr 8.900,-
Tilrettelegging kr 19.900,-
Visninger pr stk/Overtagelse kr 3.500,-
Utlegg:
Innhenting av offentlig opplysninger Enebakk kommune kr 7.036,-
Tinglysing sikring kr 545,-
Andre utgifter:
Boligselgerforsikring Gjensidige Snr - regnes av prisantydning kr 22.900,-
Fotopakke inkl. høydefoto kr 5.500,-
Tilstandsrapport fra bygningssakkyndig kr 13.900,-
Opplysninger om oppdraget
Oppdragsnummer 46-0027/26
Eiendomsmegler Krogsveen AS, avd. Ski
Kirkeveien 2A, 1400, SKI
950 007 613
Oppdragets KR-kode KR46.2627
Dato
Sist oppdatert: 17. april 2026 kl. 14:29
Dokumenter
Dokumenter
PDF – 918 KB
PDF – 4 MB
PDF – 995 KB
PDF – 1 MB
PDF – 339 KB
PDF – 1 MB
PDF – 167 KB
PDF – 312 KB
PDF – 29 KB
PDF – 127 KB
PDF – 392 KB
Område
Legg til steder som er viktige for deg
Visning
For å delta på visning, ber vi om at du melder deg på. Da sikrer vi at du får nødvendig informasjon og at det er satt av tilstrekkelig med tid. Kontakt megler dersom annet tidspunkt ønskes. Husk å lese salgsoppgaven før visningen, så du stiller forberedt. NB. Visning utgår dersom det ikke er noen påmeldte. Ønsker du kun å bli holdt orientert, kan du fra eiendommens hjemmeside få varsel om solgtpris, eller kontakte megler.
Lurer du på noe?
Unngå doble boligrenter
Vi tilbyr gunstig forsikring.
Vurderer du utleie?
Få et tilbud fra Utleie KrogsveenHva koster lånet?
Sjekk estimert lånekostnadVil du varsles om lignende boliger?
Ved å lagre ditt boligsøk hos oss får du beskjed når vi har en bolig som ligner denne, før den legges ut på markedet!

