Hestehoven 23B
4 390 000 kr
82 m²
3 soverom
Solgt

Klokkarstua
Moderne endeleilighet i 2 etg- Stor privat takterrasse med fantastisk utsikt - 3 sov - Meget solrikt - Garasjeplass
Prisantydning
4 390 000 krOmkostninger
120 790 krTotalpris
4 510 790 kr
Pris
Bruksareal
87 m²BRA-I (internt bruksareal)
82 m²BRA-E (eksternt bruksareal)
5 m²TBA (terrasse-balkongareal)
94 m²
Areal
Etasje
2Byggeår
2022Soverom
3 soveromBad
1 badType
EierleilighetEierform
EierseksjonFasiliteter
Garasje/P-plass og Balkong/TerrasseFellesutgifter
2 707 krEnergimerke
Rød B
Nøkkelinfo
Unngå doble boligrenter
Vi tilbyr gunstig forsikring.
Vurderer du utleie?
Få et tilbud fra Utleie KrogsveenHva koster lånet?
Sjekk estimert lånekostnadBeskrivelse
Kort om eiendommen
Velkommen til Hestehoven 23B!
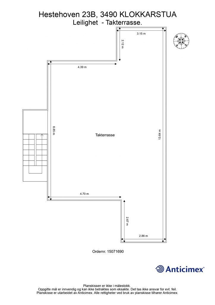
Meget tiltalende og moderne leilighet fra 2022. Leiligheten har en god intern beliggenhet på feltet, innerst i blindvei. Her har du svært lite innsyn i leiligheten og natur som nærmeste nabo. Det er en fantastisk fjordutsikt og gode solforhold hele dagen. Leiligheten ligger i 2.etg i bygget og har 81 kvm med privat takterrasse med god plass til diverse utemøbler og grill. Videre finnes 3 soverom av god størrelse, ene med walkin-closet, en åpen og luftig stue- og kjøkkenløsning, bad, samt 2 balkonger. Fra leiligheten er det kort vei til dagligvare, marka, men også fjorden.
- Privat takterrasse på 81 kvm
- Fantastisk fjordutsikt
- Meget gode solforhold
- 2 balkonger
- Garasjeplass og bod i felles kjeller
- 3 soverom
- Kort vei til fjorden, marka, dagligvare
Område
Legg til steder som er viktige for deg
På flyttefot? Tenk kjøp og salg samtidig.
Få din egen rådgiver gjennom hele kjøps- og salgsprosessen. Det starter med en verdivurdering.
Unngå doble boligrenter
Vi tilbyr gunstig forsikring.
Vurderer du utleie?
Få et tilbud fra Utleie KrogsveenHva koster lånet?
Sjekk estimert lånekostnadVil du varsles om lignende boliger?
Ved å lagre ditt boligsøk hos oss får du beskjed når vi har en bolig som ligner denne, før den legges ut på markedet!

