Skudebergvegen 17B
4 990 000 kr
142 m²
4 soverom
Komplett salgsoppgave

Kvernaland
Meget velholdt og lekker del av vert. delt bolig, med solrike uteplasser og attraktiv plassering. Carport og utebod.
Prisantydning
4 990 000 krOmkostninger
145 740 krTotalpris
5 135 740 kr
Pris
Bruksareal
147 m²BRA-I (internt bruksareal)
142 m²BRA-E (eksternt bruksareal)
5 m²TBA (terrasse-balkongareal)
77 m²
Areal
Byggeår
2013Soverom
4 soveromBad
2 badTomteareal
290 m² (eiet)Type
Halvpart vertikaldelt boligEierform
EietFasiliteter
Garasje/P-plass og Balkong/Terrasse
Nøkkelinfo
Unngå doble boligrenter
Vi tilbyr gunstig forsikring.
Vurderer du utleie?
Få et tilbud fra Utleie KrogsveenHva koster lånet?
Sjekk estimert lånekostnadBeskrivelse
Kort om eiendommen
Boligen har en innholdsrik og praktisk planløsning og fremstår innflytningsklar, med smakfullt fargevalg og stilrene materialvalg.
* 2 stuer.
* 4 soverom.
* 2 bad.
* Separat vaskerom med egen utgang.
* Stor solplatting på ca. 70 kvm.
* Inngjerdet uteareal.
* Rolig og barnevennlig nabolag
* Kort vei til skoler, barnehager, butikker og ikke minst nydelig rekreasjonsareal/turområder.
* Nær offentlig transport (buss/tog)
Innhold og byggemåte
Innhold og byggemåte
Eiendommen
Skudebergvegen 17B, 4355 KVERNALAND
Kommunenummer 1121, gårdsnummer 28, bruksnummer 852
Innhold
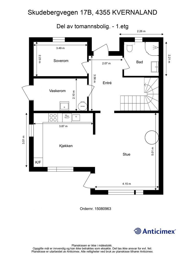
Totalt bruksareal BRA: 147 kvm
BRA-i:
1. etasje 70 kvm: Entré, bad, soverom, vaskerom og stue/kjøkken
2. etasje 72 kvm: Gang, bod, 3 soverom og stue
BRA-e:
1. etasje 5 kvm: Bod
Åpent areal:
1. etasje 70 kvm: Terrasse/platting
2. etasje 7 kvm: Balkong
Vedlagte plantegninger er ikke målbare. De oppgitte arealer er hentet fra rapport med befaringsdato 13.04.2026 utført av Anticimex v/ Alexander Ravndal.
Byggemåte
Selger har innhentet en tilstandsrapport av boligen/eiendommen. Av rapporten fremgår det at flere bygningsdeler har fått tilstandsgrad ikke undersøkt/ikke tilgjengelig for undersøkelse (TG IU), 2 (TG2) og/eller 3 (TG3). Rapporten beskriver også avvik på undersøkte bygningsdeler uten tilstandsgrad. Kjøper overtar ansvaret for de opplysninger som fremkommer av salgsdokumentasjonen, og kan ikke gjøre gjeldende som mangel noe som burde vært kjent eller som ikke kan anses å ha betydning for avtalen.
Bygningen er iht. tilstandsrapporten oppført: Grunnmur og bæ rende konstruksjoner i hovedsak av betong. Bygget er oppført med støpt gulv mot grunn. Yttervegger av trekonstruksjoner. Utvendige fasader er kledd med både liggende og stående trekledning. Etasjeskillere av trekonstruksjoner. Pulttak i trekonstruksjoner. Yttertak er belagt med Sarnafil. Entrédør med sikkerhetslås. Vinduer med karmer av tre. Balkongdør med karmer av tre. Les for øvrig mer om byggemåte og den tekniske tilstanden i rapporten.
Det gjøres spesielt oppmerksom på:
Det gjøres spesielt oppmerksom på at følgende bygningsdeler er gitt Tilstandsgrad 3 (TG3) — Store eller alvorlige avvik:
Vinduer og ytterdører
- Vinduer og omramming: Det er registrert betydelig slitasje, råteskader og andre tegn på funksjonssvikt på enkelte vinduer. Det nevnes at vinduer i boligen er fra en tidsperiode/leverandør som har en produksjonsfeil som følger av råteskader. Skader på innvendig foring til vindu er observert i stuen i 2.etg. Ved bruk av fuktindikasjonsinstrument ble det registrert forhøyede verdier. Eksakt årsak er ukjent, men forholdet vurderes å tyde på en mulig lekkasje fra vinduet. Konsekvens er at skjulte skader ikke kan utelukkes Sjablongmessig prisanslag: kr 50 000 - 100 000
- Ytterdører og omramming: Det registreres følgende avvik på boddøren, balkongdør og biinngang/vaskerom. Dørene har betydelig slitasje, og det er registrert skader/funksjonssvikt. Konsekvens er at dørens levetid vurderes som passert. Sjablongmessig prisanslag: kr 50 000 - 100 000
Følgende bygningsdeler er gitt Tilstandsgrad 2 (TG2) — Avvik som kan kreve tiltak:
Våtrom - 1.etg
- Vannrør: Tydelige rørslag (trykkslag) i vannrør registreres. Årsaken kan skyldes ulike forhold som ikke lar seg fastslå ved visuell inspeksjon.
Våtrom - 1.etg Vaskerom
- Lekkasjesikkerhet: Fallforhold utenfor sluksonen vurderes ikke til å være tilstrekkelig for å lede eventuelt lekkasjevann til sluk, og det er ikke påvist at vanntett sjikt har tilstrekkelig oppkant ved dørterskel for å kompensere for dette.
Kjøkken
- Vannrør: Det er ikke montert automatisk lekkasjestopper, noe som vurderes å være et krav i dette tilfellet.
Tekniske anlegg
- Innvendig stakeluke: Innvendig stakeluke er ikke påvist, og det er derfor ukjent om dette er etablert. Stakeluke anses generelt sett som et forskriftskrav, med enkelte unntak. Tilstandsgrad settes i henhold til NS 3600.
Yttervegger inkl. fasader
- Ytterkledning (fasademateriale, vannbord, utvendig listverk, o.l.): Det er stedvis liten avstand mellom kledningens underkant og terrenget.
- Lufting av ytterkledning: Det er vurdert å være begrenset spalte for lufting og drenering bak ytterkledningen. Det gjøres oppmerksom på at det ikke er observert synlige tegn på at forholdet har ført til skader på dette tidspunkt.
Vinduer og ytterdører
- Ytterdører og omramming: Det registreres følgende avvik på entrédør og terrassedør: Døren viser begynnende tegn til utvendig slitasje. Det er derimot ikke registrert synlige skader av vesentlig betydning.
Balkonger
- Konstruksjon og fundamenter: Søyler til balkongen har liten avstand til terrenget.
Følgende bygningsdeler er ikke undersøkt (TGIU):
Våtrom - 1.etg
- Kontroll i tilliggende konstruksjon ikke utført: På grunn av våtrommets utforming og bruk er det ikke praktisk mulig å gjennomføre hulltaking og fuktmåling i et område som regelmessig utsettes for bruksvann, og som vurderes å være det området hvor skader erfaringsmessig forekommer. Det ble utført et overflatesøk med fuktindikator på utvalgte steder, uten funn som indikerer fuktskader, også i områdene hvor hulltaking ville vært mulig. Alle disse forholdene utgjør grunnlaget for vurderingen om at hulltaking var unødvendig, og undersøkelse av lukkede konstruksjoner er derfor ikke utført.
Våtrom - 1.etg Vaskerom
- Kontroll i tilliggende konstruksjon ikke utført: På grunn av våtrommets utforming og bruk er det ikke praktisk mulig å gjennomføre hulltaking og fuktmåling i et område som regelmessig utsettes for bruksvann, og som vurderes å være det området hvor skader erfaringsmessig forekommer. Det ble utført et overflatesøk med fuktindikator på utvalgte steder, uten funn som indikerer fuktskader, også i områdene hvor hulltaking ville vært mulig. Alle disse forholdene utgjør grunnlaget for vurderingen om at hulltaking var unødvendig, og undersøkelse av lukkede konstruksjoner er derfor ikke utført.
Yttervegger inkl. fasader
- Gnagersikring: Det har ikke vært mulig å kontrollere om ytterkledningen er sikret mot inntrekk av gnagere. Det kan derfor ikke bekreftes om gnagersikringen er utført på korrekt måte.
Yttertak
- Takkonstruksjon: På bakgrunn av at ventilasjonen av takkonstruksjonen ikke kan kartlegges og undersøkes fra innsiden, foreligger det en usikkerhet om hvordan/om denne funksjonen er ivaretatt. Forholdet kan ikke kartlegges fra utsiden alene.
Terrasse / platting
- Konstruksjon og fundamenter: Fundamentene var ikke tilgjengelige for undersøkelser grunnet tilkomst, noe som gjorde at utførelsen/tilstanden ikke lot seg kontrollere.
Se supplerende tekst i tilstandsrapporten og selgers egenerklæringsskjema. Kjøper overtar ansvar og risiko for dette.
Tilstandsrapporten er inntatt i salgsoppgaven. Rapporten inneholder informasjon om avvikene og konsekvensen av disse. For avvik som er gitt TG3 har den bygningssakkyndige i tillegg gitt et anslag på hva det vil koste å utbedre disse avvikene. Ettersom kjøper regnes å være kjent med forhold som tydelig fremgår av tilstandsrapporten, oppfordres du til å sette deg grundig inn i rapporten i sin helhet.
Moderniseringer og påkostninger
Selger opplyser følgende er gjort i løpet av de siste tre år:
- Maling av alle tak og vegger innvendig
- Bygging av ny stor terrasse med gjerder, porter og plantekasser
- Fjernet gress og lagt duk og singel
- Ny tekking på carport tak.
- Service på ventilasjonsanlegg i 2025
- Skiftet gassbeholdere i varmtvannsbereder i 2026
- Installert stort alarmanlegg fra Sector Alarm (Brann og sikring)
Løsøre og tilbehør
Vi viser til liste fra Norges Eiendomsmeglerforbund som gjelder fra 01.01.2020 angående løsøre og tilbehør.
- Kun integrerte hvitevarer medfølger handelen.
Oppvarming
Vedovn og elektrisk oppvarming.
Dersom beboelsesrom ikke har vegg- eller fastmonterte varmekilder ved visning, følger dette heller ikke med.
Ferdigattest/brukstillatelse
Det foreligger ferdigattest på 4 bustadhus med tilhøyrande carport, datert 11.11.2013. Denne kan fås ved henvendelse til megler.
Det foreligger i tillegg en byggetillatelse og dispensasjon for oppføring av støttemur og gjerde, datert 04.09.2023. Det er ikke utstedt ferdigattest for dette tiltaket.
Det er oppført en terrasse/platting på ca. 70 m² i 1. etasje.
Tinglyste heftelser og rettigheter
Eiendommen overdras fri for pengeheftelser.
Eventuell adgang til utleie
Eiendommen har ikke separat utleieenhet. Det vil normalt være anledning til utleie av hele eiendommen eller enkeltrom, såfremt utleiearealet er bygningsmessig godkjent for varig opphold og har forsvarlige radonnivåer.
Beliggenhet og tomteforhold
Beliggenhet og tomteforhold
Beliggenhet
Skudebergvegen 17B, ligger sentralt, men barnevennlig plassert i blindvei.
Boligen ligger nærme både skoler og barnehager samt få minutters gange ned til dagligvarehandel, apotek, frisør, tannlege og legesenter bare for å nevne noe.
Frøyland IL har godt idrettsanlegg med flere fasiliteter. Klubben kan tilby et mangfold av aktiviteter og er meget flittig brukt av store og små.
Her er det også naturskjønne omgivelser med kort vei til flotte turområder rundt Frøylandsvatnet og Stemmen. Stemmen har fått et kraftig løft med grillplass, sandstrand, sandvolleyballbaner og koselig "brygge" sammen med den eksisterende skateparken og utendørs treningsområde m.m.
Det er også tilrettelagt slik at det kan nytes som badevann om sommeren. Frøylandsvatnet har bl.a. grillplass for familien, belyste løyper for sene joggeturer og vakker natur som garantert vil falle i smak hos de fleste.
Tilbud om offentlig transport ligger like ved, med enkel adkomst til Sandnes eller Bryne samt togstopp for lokaltog på Øksnevadporten, ca 15-20 minutters gange unna.
Ønsker man benytte de store servicetilbudene og kjøpesentre som både Bryne, Klepp eller Sandnes kan tilby, er alt dette tilgjengelig innen kun få minutters biltur.
Adkomst
Veibeskrivelse Se Google maps - det er enkelt å finne frem i kartet.
Det vil bli skiltet med Krogsveen visningsskilt ved fellesvisninger.
Barnehager, skoler og fritid
Barnehager:
- Ådalen barnehage 0,5 km
- Kvernaland barnehage 1 km
- Espira Ormadalen barnehage 1,2 km
Skoler:
-Frøyland skule (1-7 kl.) 1,2 km
- Frøyland ungdomsskule (8-10 kl.) 1,5 km
- Øksnevad videregående skole 4,4 km
- Bryne vidaregåande skule 8,8 km
Informasjon om tilhørende skolekretser er hentet fra Prognosesenteret som dataleverandør, og tilhørigheten kan årlig endres av kommunen. Dersom skole- og barnehagetilbud er av betydning for kjøpet, ber vi om at det rettes en særskilt henvendelse til kommunen for oppdatert informasjon.
Beskrivelse av tomt
Eiertomt på 290,3 kvm. Tomten er opparbeidet med asfalterte adkomstvei, gruslagt areal med steinheller, skiferstein, terrasse på terreng og diverse beplantning. Et nydelig og påkostet uteareal, solrikt, skjermet og en drøm for familier som ønsker nyte herlige dager utendørs.
Oppgitt tomteareal er hentet fra digitalt eiendomskart fra Time kommune. Oppgitt/anslått areal kan derfor avvike fra nøyaktig areal.
Parkering
Parkering i carport og gårdsrom.
Vei, vann og avløp
Eiendommen har adkomst via kommunal vei.
Eiendommen er tilknyttet kommunalt ledningsnett via private stikkledninger. Eier er selv ansvarlig for private stikkledninger til boligen.
Regulerings-og arealplaner
Eiendommen er regulert til bolig, vei, friområde i henhold til reguleringsplan Id: 0406.00 "detaljregulering for fortetting i Skudebergvegen 17, Kvernaland" vedtatt 07.09.2010, med tilhørende reguleringsbestemmelser.
Eiendommen omfattes av kommuneplanen «Time kommune – Trygg og framtidsretta» med planperiode 2018–2030. Detaljreguleringen for eiendommen gjelder foran bestemmelsene i kommuneplanen.
Utsnitt av plan med tilhørende bestemmelser kan fås ved henvendelse til megler.
Økonomi
Økonomi
Kommunale utgifter
Kommunale avgifter var kr 24 726,- for 2025. I dette inngår gebyr for vann, avløp, renovasjon og feiing. Det tas forbehold om at kommunen kan justere gebyrene i løpet av året.
Avgift for 1.terming 2026 er kr 7 976,-.
Det er installert vannmåler på eiendommen og kostnadene betales etter forbruk. Forbruk avleses etter henvendelse fra kommunen. Forbruk betales à konto basert på siste avlesning. Avregning skjer årlig på 1.termin.
Nåværende eier har et strømforbruk som tilsvarer ca. kr 16 000,- pr. år. / 15 000 kwh. pr. år.
Boligen har en årlig forsikringspremie på kr 7 998,-.
Boligen er tilknyttet Altibox (750/750) som leverandør av kabel-tv og internett og har en samlet avgift på kr 1 200,- pr. mnd. Tv-tuner/dekoder medfølger, eldre modell.
Utgiftene er basert på nåværende eiers forbruk og avtaler.
Formuesverdi
Formuesverdi for 2024 var kr 1 194 516,- ifølge Skatteetaten. Beløpet forutsetter at eier bor fast i boligen (primærbolig).
Ved eventuell øvrig bruk av eiendommen (f.eks. fritidsbolig, pendlerbolig, utleieobjekt) var formuesverdien for 2024 kr 4 778 062,-.
Fra 2026 har Stortinget vedtatt en oppdatert modell for beregning av formuesverdi for primærbolig, så avvik kan forekomme.
For mer informasjon se skatteetaten.no
Eiendomsskatt
Det er p.t ikke vedtatt eiendomsskatt for eiendommer i kommunen.
Omkostninger
4 990 000,00 Prisantydning
Omkostninger
124 750,00 Dokumentavgift til staten (2,5% av kjøpesum)
19 900,00 Gjensidige Boligkjøperpakke* (valgfritt)
545,00 Tinglysing panterettsdokument
545,00 Tinglysing skjøte
--------------------------------------------------------
125 840,00 Omkostninger totalt (uten Gjensidige Boligkjøperpakke)
145 740,00 Omkostninger totalt (med Gjensidige Boligkjøperpakke)
--------------------------------------------------------
5 115 840,00 Totalpris inkl. omkostninger
5 135 740,00 Totalpris inkl. omkostninger (med Gjensidige Boligkjøperpakke)
--------------------------------------------------------
Totalpris inkl. omkostninger forutsetter kjøp til prisantydning.
Det tas forbehold om endringer i avgifter og gebyrer.
Tilbud om lånefinansiering
Megler formidler gjerne kontakt med rådgiver hos vår samarbeidspartner BN Bank. De har konkurransedyktige betingelser samt rask og løsningsorientert behandling av din lånesøknad. Krogsveen mottar et honorar dersom lån opprettes.
Betalingsbetingelser
Kjøpesum inkludert omkostninger, samt pantedokument tilknyttet eventuelt lån, skal være disponibelt hos megler 2 virkedager før overtagelsen.
Annen viktig informasjon
Annen viktig informasjon
Eier
Hilde Karlson og JanTore Karlson
Overtakelse
Etter nærmere avtale.
Boligselgerforsikring
Selger har i forbindelse med salget tegnet boligselgerforsikring levert av Gjensidige.
Boligselgerforsikringen dekker selgers ansvar etter avhendingsloven begrenset oppad til kr 14 millioner. Dersom kjøper oppdager forhold ved eiendommen som hen mener utgjør en mangel ved eiendommen, vil Gjensidige behandle reklamasjonen på vegne av selger. Forsikringsvilkår kan fås ved henvendelse til megler.
Vedlagt salgsoppgaven følger selgers egenerklæringsskjema og tilstandsrapport. Interessenter må sette seg inn i dokumentene før bud inngis.
Boligkjøperforsikring
Innen kontraktsmøtet må kjøper ta stilling til om det ønskes å bestille Boligkjøperpakken gjennom Gjensidige. I denne gunstige pakken er boligen ferdig forsikret og inkluderer rettshjelpsforsikring, også kalt Boligkjøperforsikring. Rettshjelpsforsikring gir trygghet og tilgang på profesjonell juridisk hjelp dersom det oppdages uventede feil eller mangler det første året etter overtagelse. Forsikringsselskapet behandler i så fall ethvert mangelskrav kjøper måtte ha overfor selger.
Boligkjøperpakken inkluderer bygningsforsikring for hus og hytte, innboforsikring, flytteforsikring og dobbel rentedekning - i situasjoner hvor kjøper ikke får solgt nåværende primærbolig.
Kjøper mottar ingen særskilt faktura for Boligkjøperpakken da kostnaden det første året legges til kjøpesummen for boligen. Det gjøres oppmerksom på Krogsveen mottar et honorar for denne formidlingen.
Produktark for Boligkjøperpakken ligger vedlagt i salgsoppgaven.
Dersom ikke boligkjøperpakke ønskes kan kun rettshjelpsforsikring, også kalt boligkjøperforsikring, tegnes særskilt via megler. Rettshjelpsforsikringen varer i 5 år fra overtagelse og leveres gjennom Gjensidige. Ta kontakt med megler for ytterligere informasjon.
Selskap og privatpersoner som driver med kjøp/salg/utvikling som ledd i egen næringsvirksomhet kan ikke tegne boligkjøperpakke eller rettshjelpsforsikring.
Budgivning
Forbrukerinformasjon om budgivning er vedlagt denne salgsoppgaven og er også på vår hjemmeside Krogsveen.no. Alle bud og budforhøyelser må inngis skriftlig. I tillegg må legitimasjon være fremlagt sammen med signatur fra budgiver.
Vi oppfordrer til å gi bud elektronisk via GI BUD-knappen på eiendommens hjemmeside på Krogsveen.no. Da vil samtlige vilkår bli oppfylt.
Eventuelle forhøyelser eller endringer av budet kan bekreftes pr SMS eller på e-post. Vi oppfordrer alltid til å kontakte megler pr. telefon i tillegg da forsinkelser i SMS og e-post kan forekomme.
For at budene skal kunne bli behandlet og videreformidlet skriftlig til alle involverte parter, må alle bud ha en tilstrekkelig lang akseptfrist, jf. eiendomsmeglingsforskriften § 6-3.
Selger må også skriftlig akseptere budet før aksept kan formidles til budgiver. Akseptfrist bør derfor være på minimum 30 minutter, og budforhøyelser må derfor skje i god tid før fristens utløp.
Bud i forbrukerforhold kan uansett ikke settes med kortere frist enn kl. 12.00 første virkedag etter siste annonserte visning. I tillegg kan ikke budet ha forbehold om at det skal holdes hemmelig ovenfor øvrige interessenter. Megler har iht lov om eiendomsmegling ikke anledning til å videreformidle disse budene, og de vil dermed heller ikke bli journalført.
Etter at eiendommen er solgt vil kjøper og selger få tilsendt budjournal. Øvrige budgivere kan få utlevert kopi av budjournalen i anonymisert form.
Hvitvaskingsreglene
I henhold til lov om hvitvasking og terrorfinansiering har megler plikt til å gjennomføre kontrolltiltak overfor kunder, herunder fullmektiger. Dette innebærer bl.a. å bekrefte kunders og reelle rettighetshaveres identitet på bakgrunn av fremvist gyldig legitimasjon eller på annen godkjent måte, samt å innhente opplysninger om kundeforholdets formål og tilsiktede art.
Dersom slike kundetiltak ikke kan gjennomføres, kan megler ikke etablere kundeforholdet eller utføre transaksjonen.
Hvis kjøper ikke bidrar til gjennomføring av kundekontrollen og dette fører til at transaksjonen blir forsinket eller ikke kan gjennomføres, vil dette ansees som mislighold av avtalen og gi selger rettigheter etter avhendingslova kapittel 5. I tilfeller der selger ikke bidrar til gjennomføring av løpende kundekontroll underveis i oppdraget, er det selger som misligholder sine forpliktelser etter avtalen og gi kjøper rettigheter etter avhendingslovens kapittel 4. Partene er selv ansvarlige for eventuelle kostnader og ansvar dette kan medføre. Eiendomsmegleren eller eiendomsmeglingsforetaket kan ikke holdes ansvarlig for de konsekvenser dette vil kunne få for partene eller andre som har interesser i eiendomshandelen.
Kjøper oppfordres til å innbetale kjøpesummen som ikke kommer fra låneinstitusjon i én samlet innbetaling fra egen konto i norsk bank. Megler har plikt til å melde fra til Økokrim om eiendomshandler som fremstår som mistenkelige. Melding sendes Økokrim uten at partene varsles.
Personopplysningsloven
I henhold til personopplysningsloven gjør vi oppmerksom på at interessenter kan bli registrert for videre oppfølging.
Lovanvendelse
Generelle bestemmelser
Salgsoppgaven er basert på de opplysningene selger har gitt til megler, den bygningssakyndiges tilstandsrapport, samt opplysninger innhentet fra kommunen, Kartverket og andre tilgjengelige kilder. Det er viktig at kjøper setter seg grundig inn i alle salgsdokumentene, herunder salgsoppgave, tilstandsrapport og selgers egenerklæring. Kjøper anses kjent med forhold som er tydelig beskrevet i salgsdokumentene, og slike forhold kan ikke påberopes som mangler. Dette gjelder uavhengig av om kjøper har lest dokumentene. Alle interessenter oppfordres til å undersøke eiendommen nøye, gjerne sammen med fagkyndig før bud inngis. Kjøper som velger å kjøpe usett kan ikke gjøre gjeldende som mangel noe han burde blitt kjent med ved undersøkelsen.
Dersom det er behov for avklaringer, anbefaler vi at interessenter rådfører seg med eiendomsmegler eller egne rådgivere før det legges inn bud.
En bolig som har blitt brukt i en viss tid, har vanligvis blitt utsatt for slitasje og skader kan ha oppstått. Slik bruksslitasje må kjøper regne med, og det kan avdekkes enkelte forhold etter overtakelse som nødvendiggjør utbedringer. Normal slitasje og skader som nødvendiggjør utbedring, er innenfor hva kjøper må forvente og vil ikke utgjøre en mangel.
Kjøper og selgers rettigheter og plikter reguleres av avtalen mellom partene, samt informasjonen som har vært tilgjengelig for kjøperen i forbindelse med handelen. Avtalen utfylles av avhendingsloven, og det gjelder ulike avtalevilkår avhengig av om kjøper er forbrukerkjøper eller ikke. Dette er nærmere beskrevet nedenfor.
På grunn av ulike avtalevilkår kan selger vurdere bud fra en som ikke er forbruker, ulikt fra en forbrukers bud. Dersom kjøper ikke er forbruker, er selger sitt mulige mangelsansvar begrenset fordi eiendommen selges "som den er". Selger kan ikke ta «som den er»- forbehold overfor en forbrukerkjøper. Selv et lavere bud fra en som ikke er forbruker kan foretrekkes fordi begrensningen i mulig mangelsansvar kan ha egenverdi for selger. Selger står fritt til å forkaste eller akseptere ethvert bud, og er for eksempel ikke forpliktet til å akseptere høyeste bud.
Budgiver skal i budskjema avgi egenerklæring om budgiver er forbruker eller næringsdrivende/ person som hovedsakelig handler som ledd i næringsvirksomhet. Budgivere får informasjon dersom andre bud er inngitt av en som ikke er forbruker.
Forbrukerkjøp - definisjon
Med forbrukerkjøp menes kjøp av eiendom når kjøperen er en fysisk person som ikke hovedsakelig handler som ledd i næringsvirksomhet.
Forbruker – avtalevilkår
Eiendommen har en mangel dersom den ikke er i samsvar med kravene som følger av avtalen, eller det foreligger brudd på bestemmelsene i avhendingsloven §§ 3-2 til 3-8. Hvis eiendommen ikke er i samsvar med det kjøperen må kunne forvente ut ifra alder, type og synlig tilstand, kan det være grunnlag for mangelskrav. Det samme gjelder hvis det er holdt tilbake eller gitt uriktige opplysninger om eiendommen. Dette gjelder likevel bare dersom man kan gå ut ifra at det virket inn på avtalen at opplysningen ikke ble gitt eller at mangelskravet ikke blir rettet i tide på en tydelig måte.
Boligen kan ha en mangel etter avhendingsloven § 3-3 andre ledd, dersom det er avvik mellom opplyst og faktisk innvendig areal, forutsatt at avviket er på 2% eller mer og minimum 1 kvm.
Ved beregning av et eventuelt prisavslag eller erstatning må kjøper selv dekke tap/kostnader opptil et beløp på kr 10 000 (egenandel).
Ikke-forbruker (næringsdrivende) – definisjon
Hvis kjøper er en juridisk person, eller en fysisk person som hovedsakelig handler som ledd i næringsvirksomhet, vil kjøpet ikke anses som et forbrukerkjøp.
Ikke-forbruker – avtalevilkår
Eiendommen har en mangel dersom den ikke er i samsvar med kravene som følger av avtalen.
Eiendommen selges «som den er», og selgers ansvar utover det konkret avtalte er da begrenset etter avhendingsloven § 3-9, første ledd andre setning.
Avhendingsloven § 3-3 andre ledd fravikes, og hvorvidt boligens arealsvikt utgjør en mangel vurderes etter avhendingsloven § 3-8.
Informasjon om kjøpers undersøkelsesplikt, herunder oppfordringen om å undersøke eiendommen nøye, gjelder også for kjøpere som ikke anses som forbrukere.
Det forutsettes at hjemmel overføres til kjøper. Hvis kjøper ikke ønsker hjemmelsoverføring av eiendommen, må det tas forbehold om dette i budet.
Meglers vederlag
Meglers vederlag betales av selger og er avtalt til:
Vederlag: 1,00 % av salgssummen. Minimumsprovisjon er kr 50 000,00
Vederlag:
Kontroll av hjemmel og heftelser kr 4 500,00
Markedsføringspakke ink. krogsveen.no, hjem.no, finn.no og SOME ++ kr 28 900,00
Oppgjør kr 8 900,00
Tilrettelegging inkl alle bestillinger, kontrakter, dokumenter m.m. kr 19 900,00
Utlegg:
Innhenting av offentlig opplysninger Time kommune kr 5 401,00
Tinglysing sikring kr 545,00
Andre utgifter:
AX tilstandsrapport rekkehus/tomannsbolig over 100 kvm kr 14 950,00
Fotograf inkl. drone, ute og inne bilder kr 6 800,00
Vi er opptatt av verdiskapning, og har knyttet til oss samarbeidspartnere som skal sikre våre kunder de beste produkter og tjenester;
• I forbindelse med forberedelse av salget, innhenter vi informasjon om eiendommen hovedsakelig fra vår samarbeidspartner Ambita.
• Gjensidige leverer boligselgerforsikring og tilbyr bygningsforsikring
• Boligkjøperforsikring leveres av Hiscox og med Sedgwick som skadebehandler, og er formidlet gjennom Gjensidige.
• BN bank tilbyr finansieringsløsninger
• Vår avdeling Krogsveen Pluss tilbyr flyttetjenester som utvask, visningsvask, lager, tømming og transport av flyttelass, i tillegg til å formidle kontakt med Flip for overflateoppussing.
• I forbindelse med overtagelse av eiendommen tilbyr Overo avtale om strøm, alarm og bredbånd.
• Krogsveen er, sammen med øvrige bransjeaktører, medeier i Bomega AS som tilbyr den digitale annonseringsplattformen Hjem.
Opplysninger om oppdraget
Oppdragsnummer 36-0026/26
Eiendomsmegler Krogsveen AS, avd. Sandnes
Brannstasjonsveien 8, 4312, SANDNES
950 007 613
Oppdragets KR-kode KR36.2626
Dato
Sist oppdatert: 27. april 2026 kl. 16:16
Dokumenter
Dokumenter
PDF – 960 KB
PDF – 168 KB
PDF – 312 KB
PDF – 29 KB
PDF – 127 KB
PDF – 392 KB
Område
Legg til steder som er viktige for deg
Visning
For å delta på visning, ber vi om at du melder deg på. Da sikrer vi at du får nødvendig informasjon og at det er satt av tilstrekkelig med tid. Kontakt megler dersom annet tidspunkt ønskes. Husk å lese salgsoppgaven før visningen, så du stiller forberedt.
Ønsker du kun å bli holdt orientert, kan du fra eiendommens hjemmeside få varsel om solgtpris, eller kontakte megler.
Lurer du på noe?
Unngå doble boligrenter
Vi tilbyr gunstig forsikring.
Vurderer du utleie?
Få et tilbud fra Utleie KrogsveenHva koster lånet?
Sjekk estimert lånekostnadVil du varsles om lignende boliger?
Ved å lagre ditt boligsøk hos oss får du beskjed når vi har en bolig som ligner denne, før den legges ut på markedet!

