Storgata 3
4 750 000 kr
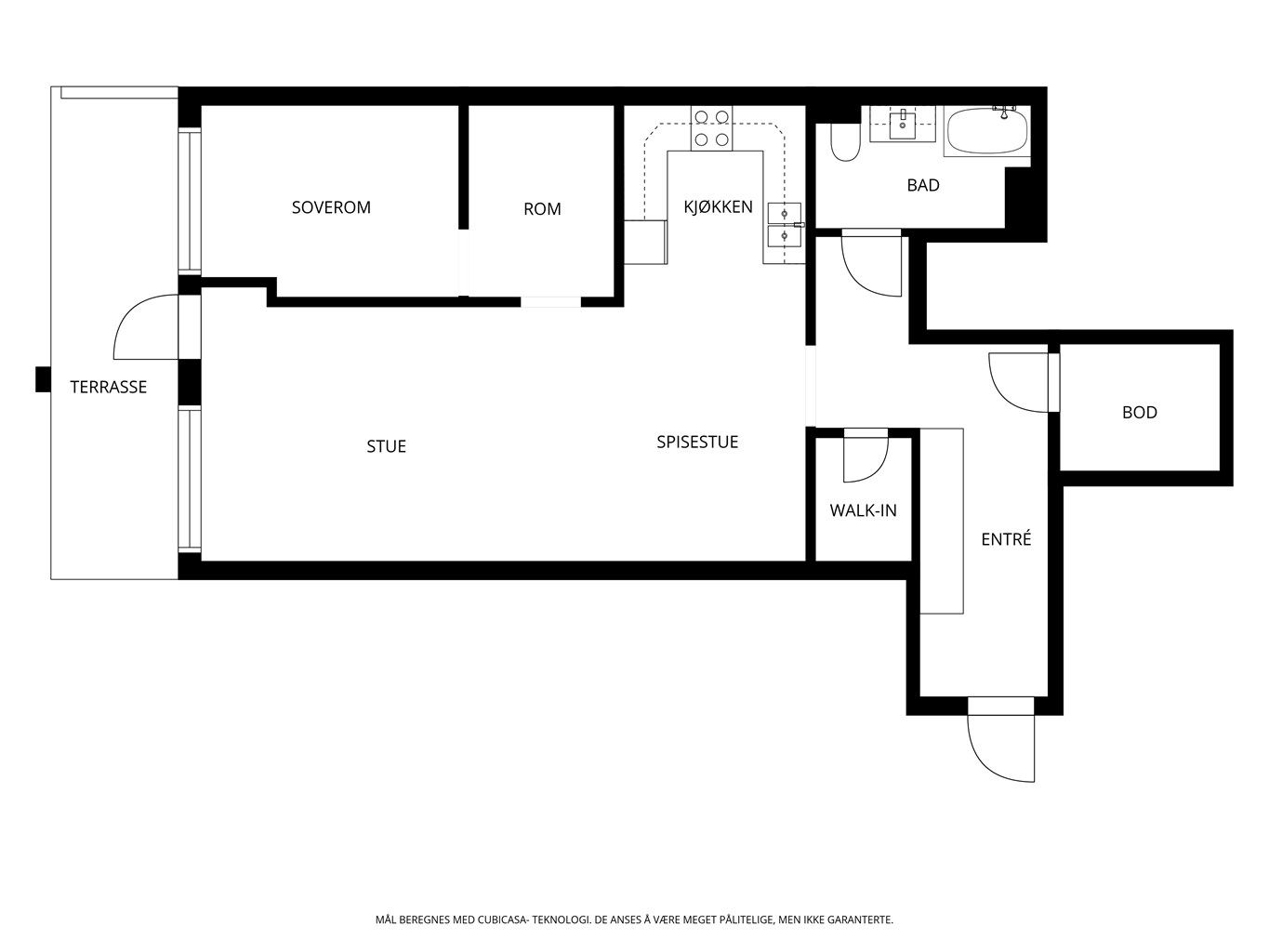
88 m²
1 soverom
Komplett salgsoppgave

Sentrum
Bo høyt og sentralt ved brygga; stor 2-roms på 88 kvm. i 5. etg. Altan med sol morgen/formiddag. Fjernvarme. Heis.
Prisantydning
4 750 000 krAndel fellesgjeld
151 995 krOmkostninger
133 560 krTotalpris
5 035 555 kr
Pris
Bruksareal
88 m²BRA-I (internt bruksareal)
88 m²TBA (terrasse-balkongareal)
8 m²
Areal
Etasje
5Byggeår
2013Soverom
1 soveromBad
1 badType
EierleilighetEierform
EierseksjonFasiliteter
HeisFellesutgifter
4 423 kr
Nøkkelinfo
Unngå doble boligrenter
Vi tilbyr gunstig forsikring.
Vurderer du utleie?
Få et tilbud fra Utleie KrogsveenHva koster lånet?
Sjekk estimert lånekostnadDette liker selger best ved boligen
Gulvvarme og lave strømkostnader. Trivelig og representativt inngangsparti. Urbant med restauranter i hele første etasje.
Beskrivelse
Kort om eiendommen
- Høyt hevet over gatenivået i femte etasje
- Egen altan med sol morgen/formiddag sommerstid
- Tilknyttet fjernvarme - vannbåren gulvvarme i alle rom
- De fleste overflater nymalt høsten 2025
- Sigdal-kjøkken med alle hvitevarer integrert
- To innvendige boder med meget gode lagringsmuligheter
- Enkel adkomst med heis til alle etasjer
- Alle byens tilbud innenfor få minutters gange
- Kun 10 min. gange til togstasjonen
Innhold og byggemåte
Innhold og byggemåte
Eiendommen
Storgata 3, 1607 FREDRIKSTAD
Kommunenummer 3107, gårdsnummer 300, bruksnummer 337, seksjonsnummer 12, ideell andel 1/1
Innhold
Totalt bruksareal BRA: 88 kvm
BRA-i:
5. etasje 88 kvm: Bad/vaskerom, gang, soverom, bod, garderobe, entré, stue/kjøkken
Åpent areal:
5. etasje 8 kvm:
Vedlagte plantegninger er ikke målbare. De oppgitte arealer er hentet fra rapport med befaringsdato 25.11.2025 utført av Takstmann Magnus Johansen. Arealene er beregnet og rom er definert etter dagens faktiske bruk, uavhengig av hva som er godkjent av bygningsmyndighetene.
Byggemåte
Selger har fått utarbeidet en tilstandsrapport, dvs. en teknisk gjennomgang av boligen hvor eventuelle avvik, risiko for kjøper og prisoverslag for hva som bør gjøres av oppgradering, er skissert. Se særskilt TGIU (tilstandsgrad ikke undersøkt), samt TG2 og TG3 som viser hva som er boligens normale slitasje, alder og type, hva som er avvik fra dette og hva som bør/må utbedres. Rapporten og selgers egenerklæring er en del av salgsoppgaven og må leses nøye før bud inngis. Kjøper overtar ansvaret for de opplysninger som fremkommer av salgsdokumentasjonen, og kan ikke gjøre gjeldende som mangel noe som burde vært kjent eller som ikke kan anses å ha betydning for avtalen.
Bygningen er iht. tilstandsrapporten oppført med vinduer fra 2012, byggemateriale av aluminium. Dører fra 2012, byggemateriale av aluminium. 28x120 impregnert terrasse over tilfarer. Sarnafil som taktekke under tilfarere av tre. Utvendig fasade er renovert i 2024. Les for øvrig mer om byggemåte og den tekniske tilstanden i rapporten.
Det er iht. tilstandsrapporten gitt TG1 på 17 punkter og TG2 på 5 punkter.
Det er gitt tilstandsgrad 2 (TG2) på bygningselementer i: Balkong, etasjeskiller, bad, kjøkken.
Eier har informert om en mindre vannlekkasje fra bruk av vaskemaskin før baderommet var ferdigstilt. Forholdet ble den gang umiddelbart meldt til utbygger og kontrollert av vaktmester som konkluderte at det vil tørke naturlig uten videre skader. Forholdet er mer enn 10 år gammelt og det er ikke registrert noe forhold rundt dette på befaringen. Eier informerer at det har vært en feil på avløpet hvor det har ført til tilbakeslag fra etasje over. Dette skal ifølge eier være utbedret.
Se supplerende tekst i tilstandsrapporten om de nevnte forhold. Kjøper overtar ansvar og risiko for dette.
Noen punkter fra selgers egenerklæring:
-Har det vært feil på bad, vaskerom eller toalettrom?
Svar: Ja. Det har kommet kloakk ned i toalettet fra toalettet i etasjen over. Dette har vært rettet på, men kom tilbake da en ny rørlegger fra huset mente det
burde gjøres . Problemet kom tilbake. Nå har jeg fått ny faglært rørlegger til å reparere skaden og det skal nå funger etter alle forskrifter.
- Har det lekket vann utenfra og inn, eller er det sett andre tegn til fukt?
Da jeg flyttet inn var ikke oppvaskmaskinen koblet til. ( jeg fikk beskjed om at alt var i stand til å brukes i leiligheten) Så jeg hadde en liten
lekkasje da jeg satte i gang maskinen. Dette ble oppdaget tidlig., men tregulvet som var lagt helt nytt fikk en glipe.( gulvet er lagt flytende. Så
gliper kan komme selv uten fukt , da slike gulv ofte beveger seg. Spesielt i det første året. ( gulvet ble lagt før jeg flyttet inn, men etter ønsket fra
meg om nytt gulv) Jeg har målt fukt og ikke funnet noe. Skaden ble ikke utbedret. Det var mye rot i oppstarten i hele bygget de to første årene.Den gang var det eieren av bygget som hadde ansvar. Vaktmesteren var innom og så på «skaden» Han mente det var så lite at det ville tørke opp raskt av seg selv da det er vannbåren varme i gulvene. Og jeg oppdaget ingen råte eller noen spor etter lekkasjen. Jeg har ikke hatt noen problemer med dette i ettertid, og lekkasjen var så liten. Jeg oppdaget heldigvis raskt at vannet ikke gikk i slangen dit det skulle.
Verandaen er sliten. Jeg har nå under oppussingen renset steinene og forsøkt å rense plankene så godt jeg kunne( kan) en tynn planke inn mot vinduet var råtten. Jeg har byttet planken der. Underlaget er laget av isopor og en gummimembran. Jeg har hatt mange planter der ute, så jord er kommet under planken og noe under stenene. Det er renset så godt det lot seg gjøre. Planken er slitt og heller ikke overflatebehandlet i år., fordi det er for fuktig å behandle det nå på høsten.Alt er renset og vasket. Jeg liker blandingen av stener og plank, men den bærer preg av å være godt brukt.
- Er det utført arbeid på tak, yttervegg, vindu eller annen fasade?
Svar: Ja, i 2024. Ytterveggene på verandaen er pusset opp etter ønske fra sameiet. Skilleveggene ble malt . Alt av nødvendig arbeid på ytterveggen/ fasaden ble nytt. Dvs: Veggen som går rundt vinduene .
- Har du andre opplysninger om boligen eller eiendommen utover det du har svart?
Da jeg flyttet inn manglet det nøkler til skap på bad og skap i gangen. Dette er nå ordnet . Begge skap har fått nye låser meg egne nøkler.
Jeg savner fortsatt nøkler( nøkkelbrikker) til postkasse og ytterdør . Dette er bestilt fra kontordelen for lenge siden. Det er nå purret på av den første vaktmesteren på bygget : Marius Jensen.
Det er kodelås på ytterdør. Enn så lenge kan den åpnes og lukkes manuelt.
Se flere punkter i selgers egenerklæring
Standard
Som en del av et helt nytt bygg oppført og ferdigstilt rundt 2013 har leiligheten en rekke moderne kvaliteter. Spesielt verdt å fremheve er bekvemmeligheter som balansert ventilasjon og vannbåren gulvvarme i alle rom.
Med et internt bruksareal på hele 88 kvm. er leiligheten sjeldent stor til en to-roms å være. De fleste rom er av et meget generøst format, noe som i seg selv er betalelig.
De fleste innvendige overflater er fra byggeåret. Vegger og himlinger er imidlertid nymalt høsten 2025. Store, glatte veggflater og listefri overgang mot himlinger gir et moderne uttrykk.
Før nåværende eier overtok i 2014 ble det i blant annet stuen, kjøkkenet og soverommet lagt nytt gulv av heltre furu. Dette er en mild og behagelig overflate å trå på, spesielt med den vannbårne varmen under. Gulvet har også naturlige variasjoner og tørkesprekker som varierer noe gjennom året.
Kjøkkenets innredning er fra Sigdal og byggeåret. Innredningen består av et større antall skap samt praktiske benker med meterlange arbeidsflater. Lamper under overskap og spotter i himling gir godt arbeidslys. Spottene kan dimmes. Hvitevarene er alle integrert; oppvaskmaskinen fra Gorenje, de øvrige fra Whirlpool. Automatisk lekkasjedeteksjon bør monteres.
Badet er meget romslig og inneholder nisje dedikert til vaskesøyle. Her er både gulvet og veggene flislagt. Himlingen har som kjøkkenet innfelte spotter som kan dimmes til ønsket styrke og stemning. Nytt badekar er installert i senere år, med massasjedyser som ikke er tilkoblet. Dusjdører står lagret i bod og medfølger.
Overflater og innredninger:
Gulv: Heltre furu, tre-stavs eikeparkett og fliser.
Innervegger: Fliser og malte, glatte flater.
Himlinger: Malte, glatte flater.
Kjøkken: Skapinnredning med glatte og profilerte hvite fronter. Laminerte grå benkeplater. Nedfelt dobbel stålvask med avrenningsbrett og ett-greps blandebatteri. Integrert platetopp, stekeovn, oppvaskmaskin og kombiskap. Veggmontert ventilator.
Bad: Skapinnredning med glatte hvite fronter. Helstøpt keramisk servant med ett-greps blandebatteri. Veggspeil med overbelysning. Badekar og veggmontert to-greps blandebatteri med hånddusj. Toalett montert på innbygget sisterne. Rør-opplegg til vaskemaskin.
Løsøre og tilbehør
Vi viser til liste fra Norges Eiendomsmeglerforbund som gjelder fra 01.01.2020 angående løsøre og tilbehør.
Kjøleskap, oppvaskmaskin og komfyr med induksjonstopp medfølger. Samt garderobe
Oppvarming
Boligen er oppvarmet med vannbåren gulvvarme.
Dersom beboelsesrom ikke har vegg- eller fastmonterte varmekilder ved visning, følger dette heller ikke med.
Ferdigattest/brukstillatelse
Det foreligger ferdigattest på nybygg datert 29.05.2015 med tegning som stemmer med dagens bruk. Denne kan fås ved henvendelse til megler.
Tinglyste heftelser og rettigheter
Leiligheten overdras fri for pengeheftelser.
Sameiet har legalpant for krav mot sameieren som følger av sameieforholdet iht. eierseksjonsloven § 31. Pantet er begrenset oppad til 2G, (G = folketrygdens grunnbeløp).
Det er tinglyst to servitutter på sameiets eiendom. Disse omhandler blant annet bestemmelse om felles brannvegg med nabobygget og Fredrikstad Energinett's rett til rom i bygget for drift og vedlikehold av nettstasjon.
Servituttene vil følge eiendommen. Kjøpers bank vil få prioritet etter ovennevnte heftelser og servitutter.
I tillegg er det tinglyst bestemmelse om bebyggelse den 04.03.1931, med dagboknr. 919367. Dokumentet er håndskrevet og vanskelig å tyde, men hefter i sameiets eiendom. Kjøper overtar ansvaret for servitutten.
Eventuell adgang til utleie
Leiligheten kan leies ut såfremt leiligheten har forsvarlige radonverdier. Leietaker må følge sameiets vedtekter og ordensregler på lik linje som eier.
Diverse
Tilbud av produkter og tjenester fra våre samarbeidspartnere
Vi er opptatt av verdiskapning, og har knyttet til oss samarbeidspartnere som skal sikre våre kunder de beste produkter og tjenester;
• Gjensidige leverer boligselgerforsikring og tilbyr bygningsforsikring
• Boligkjøperforsikring leveres av Hiscox og med Sedgwick som skadebehandler, og er formidlet gjennom Gjensidige.
• BN bank tilbyr finansieringsløsninger
• Vår avdeling Krogsveen Pluss tilbyr flyttetjenester som utvask, visningsvask, lager, tømming og transport av flyttelass, i tillegg til å formidle kontakt med Flip for overflateoppussing.
• I forbindelse med overtagelse av eiendommen tilbyr Overo avtale om strøm, alarm og bredbånd.
• Krogsveen er, sammen med øvrige bransjeaktører, medeier i den digitale annonseringsplattformen Hjem som eies av Bomega AS.
Energimerking
Selger er ansvarlig for at boligen har energiattest. Det foreligger imidlertid ikke energiattest for denne boligen, men hvis kjøper krever det kan energiattest innhentes for selgers regning.
Beliggenhet og tomteforhold
Beliggenhet og tomteforhold
Beliggenhet
I Storgata 3 bor du svært sentralt og nyter godt av nærhet til alle byens tjenester og tilbud.
Sentrum har gjennom de seneste årene opplevd stor utvikling og en generell revitalisering av blant annet den gode gamle gågaten. Hele sentrumskjernen er tilført et betydelig løft, blant annet gjennom ny bebyggelse i spennende arkitektur samt nye sosiale møteplasser i parker og på torv. Sentrum er på kort tid blitt et attraktivt sted å bo.
I byen eksisterer et bredt utvalg av spisesteder og kulturelle tilbud hvorav flere finnes i umiddelbar nærhet av leiligheten. Kort gangavstand er det også til den nye og spennende bydelen Værste på Kråkerøy. Rett over elven ligger blant annet byens nye og store kjøpesenter, et moderne supplement til byens veletablerte forretninger.
Til togstasjonen er det gode 10 minutters gange. Reisetiden med toget videre til Oslo er fra kun én time. Et stort kollektivt pluss er også fergene på elven, et gratis tilbud som gjør det enkelt å forflytte seg både internt i sentrum, til Gressvik og Åle i Onsøy, samt over elven til Gamlebyen og Østsiden. Sistnevnte har en rekke tur- og rekreasjonsmuligheter i form av blant annet golfbane, lysløype og ikke minst Glommastien.
Mer omfangsrike turområder er lett tilgjengelig i Fredrikstadmarka, der det finnes kilometervis av preparerte skispor når forholdene tillater. Tar du turen over til Kråkerøy, opplever du straks både skjærgård og mer landlige omgivelser.
Adkomst
Det vil bli skiltet med Krogsveen visningsskilt ved fellesvisninger.
Barnehager, skoler og fritid
Barnehager:
St.Hansfjellet barnehage (1-5 år) 0.6 km
Kråkeby barnehage (1-5 år) 0.7 km
Speiderfjellet barnehage (1-5 år) 1 km
Skoler:
Trara skole (1-7 kl.) 1.1 km
Cicignon skole (1-10 kl.) 1.2 km
Wang Ung Fredrikstad (8-10 kl.) 0.7 km
Kvernhuset ungdomsskole (8-10 kl.) 3 km
Hans Nielsen Hauge vgs 3 min
WANG Toppidrett Fredrikstad 0.6 km
Informasjon om tilhørende skolekretser er hentet fra Prognosesenteret som dataleverandør, og tilhørigheten kan årlig endres av kommunen. Dersom skole- og barnehagetilbud er av betydning for kjøpet, ber vi om at det rettes en særskilt henvendelse til kommunen/bydelsadministrasjonen for oppdatert informasjon.
Beskrivelse av tomt
Eiertomt på 1 148 kvm som tilhører sameiet. Tomten er fellesareal.
Tomten er ikke oppmålt i nyere tid og har usikre grenser. Dette vil ofte medføre arealavvik i forhold til eksisterende areal i marka. For å få nøyaktig grensebestemmelse anbefales det å rekvirere ny oppmåling. Kjøper overtar risiko for avviket.
Parkering
Parkering kan leies gjennom Aimo parkering.
Ellers gateparkering etter områdets bestemmelser.
Vei, vann og avløp
Eiendommen har adkomst via kommunal vei.
Eiendommen er tilknyttet kommunalt ledningsnett via private stikkledninger.
Sameiet er ansvarlig for private stikkledninger til bygningen.
Regulerings-og arealplaner
Eiendommen er regulert til gangvei og annet kombinert formål i henhold til reguleringsplan kvartalet mellom Dampskipsbrygga/Blomstertorvet datert 13.02.2003 med tilhørende reguleringsbestemmelser.
Eiendommen omfattes også av kommuneplan Fredrikstad 2023-2035 datert 15.06.2024 med formål: ras- og skredfare, flomfare og sentrumsformål.
Eiendommen er plassert i et område som har gjennomgått tidligere miljøundersøkelser hvor det er registrert forurenset grunn på eiendommen da dette tidligere var industriområde tidligere. På denne eiendom er kategorien gitt i lite/ikke forurenset grunn.
Arealplaner under arbeid: Planid 1156 - Bjølstad gård. Bjølstad gård og de omkringliggende eiendommene inngår i reguleringsplan for Verkstedveien/Bjølstad. I gjeldende plan er arealet avsatt til kombinert formål bolig/forretning/kontor, offentlig friområde og boligbebyggelse. Boligbebyggelsen er regulert som bevaringsområde. Planområdet ligger svært sentralt, attraktivt beliggende ved vannet og i gangavstand fra sentrale deler av Fredrikstad. Bjølstad utvikling AS er i gang med å regulere de tilstøtende områdene i nordvest, ved gangbrua, gjennom detaljreguleringen «Del av Åsgård, Fv. 108 og 451»Detaljreguleing
Hensikten med planinitiativet er å bytte om på planformålene i gjeldende plan slik at arealene langs elvebredden forblir åpne, mens arealene mot Værsteområdet og fylkesveien bygges ned. Med dette plangrepet skapes en både estetisk og funksjonell overgang mellom Bjølstad gård og Værsteområdet, samtidig som elverommet som i dag brukes som friområde forblir åpent. Denne åpne strukturen speiler også byrommet på den andre siden av elva. Etter en omregulering vil trafikken til nybebyggelsen skje via ny avkjøring rett fra fylkesvegen framfor via Verkstedveien som er en smal og svingete boliggate. Planformålene omfatter en kombinasjon av boligbebyggelse og næringsarealer. Planen vil også legge til rette for bevaring av Bjølstad gård, samt at Båthusteateret kan bevares.
Det foreligger et generelt pålegg i området om utkobling av taknedløp.
Utsnitt av plan med tilhørende bestemmelser kan fås ved henvendelse til megler.
Økonomi
Økonomi
Boligens kostnader
Kommunale avgifter er kr 13 165,- for inneværende år. I dette inngår gebyr for vann, avløp, renovasjon
Eiendomsskatten er kr 9252,- for innværende år. Disse faktureres med de kommunale avgiftene.
Fellesutgiftene er kr 4 423 ,- pr. mnd. og inkluderer: nedbetaling av fellesgjeld, fjernvarme , kabel-TV, felles bygningsforsikring, forretningsfører, drift og vedlikehold m.m.
Kostnader for fjernvarme avregnes årlig etter forbruk og ved eierskifte, dette betales som et månedlig á-konto beløp.
Beløpet fastsettes av styret årlig etter avregning.
Fellesutgiftene justeres normalt en til to ganger årlig i forhold til sameiets faktiske utgifter og ble sist justert 01.07.2025. Det tas forbehold om at felleskostnadene kan justeres fortløpende.
Boligen er tilknyttet Altibox som leverandør av kabel-tv og dette er inkludert i felleskostnadene. Dekoder medfølger
Utgiftene er basert på nåværende eiers forbruk. Kjøper må selv tegne innboforsikring.
Formuesverdi
Formuesverdi for 2023 var kr 1 020 644,- ifølge selger/skatteetaten. Beløpet forutsetter at eier bor fast i boligen (primærbolig).
Ved eventuell øvrig bruk av eiendommen (f.eks. fritidsbolig, pendlerbolig, utleieobjekt) var formuesverdien for 2023 kr 4 082 576,-.
Formuesverdien justeres normalt årlig. Se skatteetaten.no for mer informasjon om fastsettelse av formuesverdien.
Opplysninger om fellesgjeld
Andel formue er kr 8 659,-pr. 31.12.2025
Andel fellesgjeld er kr 151 995,- pr. 05.11.2025
Total fellesgjeld for sameiet er kr 2 400 000,- pr. 05.11.2025 og lånevilkårene er:
Rentebetingelser: 7,4%
Lånets løpetid: 2042
Omkostninger
4 750 000,00 Prisantydning
151 995,00 Andel av fellesgjeld
--------------------------------------------------------
4 901 995,00 Pris inkl. fellesgjeld
Omkostninger
122 520,00 Dokumentavgift til staten (2,5% av kjøpesum)
9 950,00 Gjensidige Boligkjøperpakke (valgfri)
545,00 Tinglysing panterettsdokument
545,00 Tinglysing skjøte
--------------------------------------------------------
133 560,00 Omkostninger totalt
--------------------------------------------------------
5 035 555,00 Totalpris inkl. omkostninger
--------------------------------------------------------
Dersom sameiet har fellesgjeld, vil leilighetens andel av fellesgjelden komme i tillegg til kjøpesummen. Denne gjelden skal ikke innbetales i oppgjøret, men følger leiligheten.
Totalpris inkl. omkostninger forutsetter kjøp til prisantydning.
Det tas forbehold om endringer i avgifter og gebyrer.
Tilbud om lånefinansiering
Megler formidler gjerne kontakt med rådgiver hos vår samarbeidspartner BN Bank. De har konkurransedyktige betingelser samt rask og løsningsorientert behandling av din lånesøknad. Krogsveen mottar et honorar for denne formidlingen.
Betalingsbetingelser
Kjøpesum inkludert omkostninger, samt pantedokument tilknyttet eventuelt lån, skal være disponibelt hos megler 2 virkedager før overtagelsen.
Annen viktig informasjon
Annen viktig informasjon
Eier
Marit Anine Jacobsen
Informasjon om forkjøpsrett
Eiendommen er seksjonert, og leiligheten er tilknyttet sameie Dampskipsbrygga 12, med sameiebrøk 89/6254
Sameiet består av 14 leiligheter og 9 næringsseksjoner.
Forretningsfører er Fredrikstad Boligforvaltning v/Advokat Geir Kristoffersen.
Dugnad må påregnes.
Dyrehold er tillatt under forutsetning av at det ikke er til sjenanse for andre beboere. Det må søkes til styret
Foretatt påkostninger de senere år:
2024: Rehabilitering av fasade
Planlagte påkostninger:
Ingen planlagte påkostninger pr. nov. 2025.
Vi gjør videre oppmerksom på at det iht. eierseksjonsloven ikke er anledning å erverve mer enn 2 seksjoner i sameiet, her teller også eierskap via. firma, nærstående og familie. Kjøper har risikoen for at overskjøting på denne bakgrunn kan nektes av Statens Kartverk. I så fall vil kjøper uansett være forpliktet til å gjennomføre handelen, og oppgjør til selger vil finne sted tross manglende overskjøting.
Konferer med megler for mer informasjon.
Iht. sameiets vedtekter må kjøper godkjennes av styret som ny sameier. Det er kjøpers ansvar at styregodkjenning blir gitt, men styret kan ikke nekte godkjenning uten saklig grunn.
Dokumenter for sameiet og kopi av seksjonsbegjæringen kan fås ved henvendelse til megler.
Overtakelse
Etter nærmere avtale.
Boligselgerforsikring
Selger har i forbindelse med salget tegnet boligselgerforsikring levert av Gjensidige.
Boligselgerforsikringen dekker selgers ansvar etter avhendingsloven begrenset oppad til kr 14 millioner. Dersom kjøper oppdager forhold ved eiendommen som hen mener utgjør en mangel ved eiendommen, vil Gjensidige behandle reklamasjonen på vegne av selger. Forsikringsvilkår kan fås ved henvendelse til megler.
Vedlagt salgsoppgaven følger selgers egenerklæringsskjema og tilstandsrapport. Interessenter må sette seg inn i dokumentene før bud inngis.
Boligkjøperforsikring
Innen kontraktsmøtet må kjøper ta stilling til om det ønskes å bestille Boligkjøperpakken gjennom Gjensidige. I denne gunstige pakken er boligen ferdig forsikret og inkluderer rettshjelpsforsikring, også kalt Boligkjøperforsikring. Rettshjelpsforsikring gir trygghet og tilgang på profesjonell juridisk hjelp dersom det oppdages uventede feil eller mangler det første året etter overtagelse. Forsikringsselskapet behandler i så fall ethvert mangelskrav kjøper måtte ha overfor selger.
Boligkjøperpakken inkluderer bygningsforsikring for hus og hytte, innboforsikring, flytteforsikring og dobbel rentedekning - i situasjoner hvor kjøper ikke får solgt nåværende primærbolig.
Kjøper mottar ingen særskilt faktura for Boligkjøperpakken da kostnaden det første året legges til kjøpesummen for boligen. Det gjøres oppmerksom på Krogsveen mottar et honorar for denne formidlingen.
Produktark for Boligkjøperpakken ligger vedlagt i salgsoppgaven.
Dersom ikke boligkjøperpakke ønskes kan kun rettshjelpsforsikring, også kalt boligkjøperforsikring, tegnes særskilt via megler. Rettshjelpsforsikringen varer i 5 år fra overtagelse og leveres gjennom Gjensidige. Ta kontakt med megler for ytterligere informasjon.
Selskap og privatpersoner som driver med kjøp/salg/utvikling som ledd i egen næringsvirksomhet kan ikke tegne boligkjøperpakke eller rettshjelpsforsikring.
Budgivning
Forbrukerinformasjon om budgivning er vedlagt denne salgsoppgaven og er også på vår hjemmeside Krogsveen.no. Alle bud og budforhøyelser må inngis skriftlig. I tillegg må legitimasjon være fremlagt sammen med signatur fra budgiver.
Vi oppfordrer til å gi bud elektronisk via GI BUD-knappen på eiendommens hjemmeside på Krogsveen.no. Da vil samtlige vilkår bli oppfylt.
Eventuelle forhøyelser eller endringer av budet kan bekreftes pr SMS eller på e-post. Vi oppfordrer alltid til å kontakte megler pr. telefon i tillegg da forsinkelser i SMS og e-post kan forekomme.
For at budene skal kunne bli behandlet og videreformidlet skriftlig til alle involverte parter, må alle bud ha en tilstrekkelig lang akseptfrist, jf. eiendomsmeglingsforskriften § 6-3.
Selger må også skriftlig akseptere budet før aksept kan formidles til budgiver. Akseptfrist bør derfor være på minimum 30 minutter, og budforhøyelser må derfor skje i god tid før fristens utløp.
Bud i forbrukerforhold kan uansett ikke settes med kortere frist enn kl. 12.00 første virkedag etter siste annonserte visning. I tillegg kan ikke budet ha forbehold om at det skal holdes hemmelig ovenfor øvrige interessenter. Megler har iht lov om eiendomsmegling ikke anledning til å videreformidle disse budene, og de vil dermed heller ikke bli journalført.
Etter at eiendommen er solgt vil kjøper og selger få tilsendt budjournal. Øvrige budgivere kan få utlevert kopi av budjournalen i anonymisert form.
Hvitvaskingsreglene
I henhold til lov om hvitvasking og terrorfinansiering har megler plikt til å gjennomføre kontrolltiltak overfor kunder, herunder fullmektiger. Dette innebærer bl.a. å bekrefte kunders og reelle rettighetshaveres identitet på bakgrunn av fremvist gyldig legitimasjon eller på annen godkjent måte, samt å innhente opplysninger om kundeforholdets formål og tilsiktede art.
Dersom slike kundetiltak ikke kan gjennomføres, kan megler ikke etablere kundeforholdet eller utføre transaksjonen.
Hvis kjøper ikke bidrar til gjennomføring av kundekontrollen og dette fører til at transaksjonen blir forsinket eller ikke kan gjennomføres, vil dette ansees som mislighold av avtalen og gi selger rettigheter etter avhendingslova kapittel 5. I tilfeller der selger ikke bidrar til gjennomføring av løpende kundekontroll underveis i oppdraget, er det selger som misligholder sine forpliktelser etter avtalen og gi kjøper rettigheter etter avhendingslovens kapittel 4. Partene er selv ansvarlige for eventuelle kostnader og ansvar dette kan medføre. Eiendomsmegleren eller eiendomsmeglingsforetaket kan ikke holdes ansvarlig for de konsekvenser dette vil kunne få for partene eller andre som har interesser i eiendomshandelen.
Kjøper oppfordres til å innbetale kjøpesummen som ikke kommer fra låneinstitusjon i én samlet innbetaling fra egen konto i norsk bank. Megler har plikt til å melde fra til Økokrim om eiendomshandler som fremstår som mistenkelige. Melding sendes Økokrim uten at partene varsles.
Personopplysningsloven
I henhold til personopplysningsloven gjør vi oppmerksom på at interessenter kan bli registrert for videre oppfølging.
Lovanvendelse
Generelle bestemmelser
Salgsoppgaven er basert på de opplysningene selger har gitt til megler, den bygningssakyndiges tilstandsrapport, samt opplysninger innhentet fra kommunen, Kartverket og andre tilgjengelige kilder. Det er viktig at kjøper setter seg grundig inn i alle salgsdokumentene, herunder salgsoppgave, tilstandsrapport og selgers egenerklæring. Kjøper anses kjent med forhold som er tydelig beskrevet i salgsdokumentene, og slike forhold kan ikke påberopes som mangler. Dette gjelder uavhengig av om kjøper har lest dokumentene. Alle interessenter oppfordres til å undersøke eiendommen nøye, gjerne sammen med fagkyndig før bud inngis. Kjøper som velger å kjøpe usett kan ikke gjøre gjeldende som mangel noe han burde blitt kjent med ved undersøkelsen.
Dersom det er behov for avklaringer, anbefaler vi at interessenter rådfører seg med eiendomsmegler eller egne rådgivere før det legges inn bud.
En bolig som har blitt brukt i en viss tid, har vanligvis blitt utsatt for slitasje og skader kan ha oppstått. Slik bruksslitasje må kjøper regne med, og det kan avdekkes enkelte forhold etter overtakelse som nødvendiggjør utbedringer. Normal slitasje og skader som nødvendiggjør utbedring, er innenfor hva kjøper må forvente og vil ikke utgjøre en mangel.
Kjøper og selgers rettigheter og plikter reguleres av avtalen mellom partene, samt informasjonen som har vært tilgjengelig for kjøperen i forbindelse med handelen. Avtalen utfylles av avhendingsloven, og det gjelder ulike avtalevilkår avhengig av om kjøper er forbrukerkjøper eller ikke. Dette er nærmere beskrevet nedenfor.
På grunn av ulike avtalevilkår kan selger vurdere bud fra en som ikke er forbruker, ulikt fra en forbrukers bud. Dersom kjøper ikke er forbruker, er selger sitt mulige mangelsansvar begrenset fordi eiendommen selges "som den er". Selger kan ikke ta «som den er»- forbehold overfor en forbrukerkjøper. Selv et lavere bud fra en som ikke er forbruker kan foretrekkes fordi begrensningen i mulig mangelsansvar kan ha egenverdi for selger. Selger står fritt til å forkaste eller akseptere ethvert bud, og er for eksempel ikke forpliktet til å akseptere høyeste bud.
Budgiver skal i budskjema avgi egenerklæring om budgiver er forbruker eller næringsdrivende/ person som hovedsakelig handler som ledd i næringsvirksomhet. Budgivere får informasjon dersom andre bud er inngitt av en som ikke er forbruker.
Forbrukerkjøp - definisjon
Med forbrukerkjøp menes kjøp av eiendom når kjøperen er en fysisk person som ikke hovedsakelig handler som ledd i næringsvirksomhet.
Forbruker – avtalevilkår
Eiendommen har en mangel dersom den ikke er i samsvar med kravene som følger av avtalen, eller det foreligger brudd på bestemmelsene i avhendingsloven §§ 3-2 til 3-8. Hvis eiendommen ikke er i samsvar med det kjøperen må kunne forvente ut ifra alder, type og synlig tilstand, kan det være grunnlag for mangelskrav. Det samme gjelder hvis det er holdt tilbake eller gitt uriktige opplysninger om eiendommen. Dette gjelder likevel bare dersom man kan gå ut ifra at det virket inn på avtalen at opplysningen ikke ble gitt eller at mangelskravet ikke blir rettet i tide på en tydelig måte.
Boligen kan ha en mangel etter avhendingsloven § 3-3 andre ledd, dersom det er avvik mellom opplyst og faktisk innvendig areal, forutsatt at avviket er på 2% eller mer og minimum 1 kvm.
Ved beregning av et eventuelt prisavslag eller erstatning må kjøper selv dekke tap/kostnader opptil et beløp på kr 10 000 (egenandel).
Ikke-forbruker (næringsdrivende) – definisjon
Hvis kjøper er en juridisk person, eller en fysisk person som hovedsakelig handler som ledd i næringsvirksomhet, vil kjøpet ikke anses som et forbrukerkjøp.
Ikke-forbruker – avtalevilkår
Eiendommen har en mangel dersom den ikke er i samsvar med kravene som følger av avtalen.
Eiendommen selges «som den er», og selgers ansvar utover det konkret avtalte er da begrenset etter avhendingsloven § 3-9, første ledd andre setning.
Avhendingsloven § 3-3 andre ledd fravikes, og hvorvidt boligens arealsvikt utgjør en mangel vurderes etter avhendingsloven § 3-8.
Informasjon om kjøpers undersøkelsesplikt, herunder oppfordringen om å undersøke eiendommen nøye, gjelder også for kjøpere som ikke anses som forbrukere.
Det forutsettes at hjemmel overføres til kjøper. Hvis kjøper ikke ønsker hjemmelsoverføring av eiendommen, må det tas forbehold om dette i budet.
Meglers vederlag
Meglers vederlag betales av selger og er avtalt til:
Vederlag: 1,40 % av salgssummen inkl. eventuell fellesgjeld. Minimumsprovisjon er kr 60 000,00
Vederlag:
Kontroll av hjemmel og heftelser kr 2 900,00
Markedsføringspakke kr 23 900,00
Oppgjør kr 7 500,00
Tilrettelegging kr 19 900,00
Visninger pr stk kr 3 200,00
Utlegg:
Eierskiftegebyr forretningsfører kr 6 570,00
Innhenting av informasjon forretningsførerer/kommune kr 7 500,00
Tinglysing sikring kr 545,00
Andre utgifter:
Foto PBF - dag kr 4 750,00
Opplysninger om oppdraget
Oppdragsnummer 67-0330/25
Eiendomsmegler Krogsveen AS, avd. Fredrikstad og Sarpsborg
Dikeveien 14, 1661, ROLVSØY
950 007 613
Oppdragets KR-kode KR67.25330
Dato
Sist oppdatert: 17. april 2026 kl. 11:02
Dokumenter
Dokumenter
PDF – 2 MB
PDF – 4 MB
PDF – 951 KB
PDF – 312 KB
PDF – 29 KB
PDF – 127 KB
PDF – 392 KB
Område
Legg til steder som er viktige for deg
Visning
For å delta på visning, ber vi om at du melder deg på. Da sikrer vi at du får nødvendig informasjon og at det er satt av tilstrekkelig med tid. Kontakt megler dersom annet tidspunkt ønskes. Husk å lese salgsoppgaven før visningen, så du stiller forberedt. NB. Visning utgår dersom det ikke er noen påmeldte.
Ønsker du kun å bli holdt orientert, kan du fra eiendommens hjemmeside få varsel om solgtpris, eller kontakte megler.
Lurer du på noe?
Unngå doble boligrenter
Vi tilbyr gunstig forsikring.
Vurderer du utleie?
Få et tilbud fra Utleie KrogsveenHva koster lånet?
Sjekk estimert lånekostnadVil du varsles om lignende boliger?
Ved å lagre ditt boligsøk hos oss får du beskjed når vi har en bolig som ligner denne, før den legges ut på markedet!

