Lørenvangen 23C
6 900 000 kr
74 m²
2 soverom
Komplett salgsoppgave
Løren
Moderne 3-roms (2021) i populære Gartnerkvartalet. | Stor, sydvestvendt markterrasse på 23 m². | A-konto fyring inkl.
Prisantydning
6 900 000 krOmkostninger
183 540 krTotalpris
7 083 540 kr
Pris
Bruksareal
79 m²BRA-I (internt bruksareal)
74 m²BRA-E (eksternt bruksareal)
5 m²TBA (terrasse-balkongareal)
23 m²
Areal
Etasje
1Byggeår
2021Soverom
2 soveromBad
1 badType
EierleilighetEierform
EierseksjonFasiliteter
Heis og Balkong/TerrasseFellesutgifter
3 839 krEnergimerke
Grønn C
Nøkkelinfo
Unngå doble boligrenter
Vi tilbyr gunstig forsikring.
Vurderer du utleie?
Få et tilbud fra Utleie KrogsveenHva koster lånet?
Sjekk estimert lånekostnadBeskrivelse
Kort om eiendommen
Innhold og byggemåte
Innhold og byggemåte
Eiendommen
Lørenvangen 23C, 0585 OSLO
Kommunenummer 301, gårdsnummer 124, bruksnummer 295, seksjonsnummer 10, ideell andel 1/1
Innhold
Leiligheten er oppmålt av takstmann og har følgende arealfordeling:
Totalt bruksareal (BRA) 79 kvm
Bruksareal (BRA) er arealet innenfor leilighetens omsluttende vegger. I tillegg medregnes eventuelle eksterne boder og innglassede balkonger (BRA-e og BRA-b).
Bruksareal per etasje:
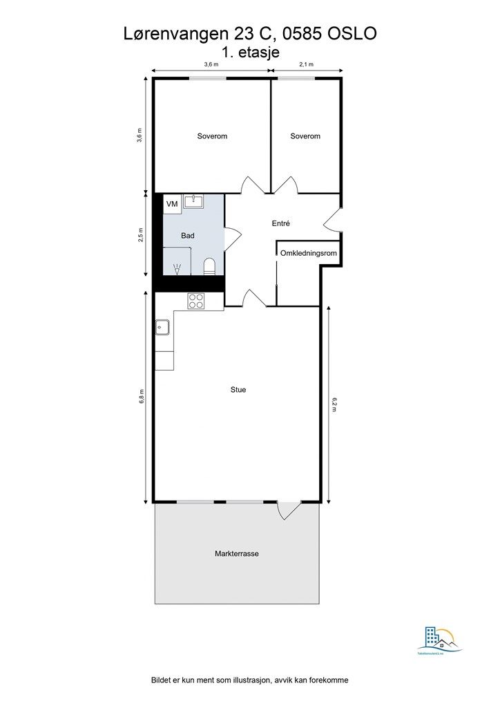
1. etasje 74 kvm: Entré, 2 soverom, bod, bad, kjøkken, og stue
Kjeller 5 kvm: Kjellerbod
I tillegg til bruksarealet har boligen:
Terrasse- og balkongareal (TBA) 23 kvm: Markterrasse
Det gjøres oppmerksom på at boligens eksterne boder tilhører sameiets fellesareal, og at boden således ikke eies av den enkelte sameier. Dette medfører at sameiet i fellesskap beslutter bruken, og at man ikke selv har eierrett og rettsvern for boden. Sameiet kan ved vedtak beslutte annet bruk av fellesarealet og disponering av bodarealet kan dermed opphøre.
De oppgitte arealer er hentet fra tilstandsrapport datert 06.03.2026 utført av Takstkonsulent1 AS v/Marcus Bratland. Arealene er beregnet og rom er definert etter dagens faktiske bruk, uavhengig av hva som er godkjent av bygningsmyndighetene.
Dagens omkledningsrom er opprinnelig godkjent som bod. Se punkt om ferdigattest for nærmere informasjon.
Byggemåte
Tilstandsrapporten er inntatt i salgsoppgaven. Rapporten inneholder informasjon om eventuelle avvik og konsekvensen av disse. Dersom det er registrert avvik med TG3, har den bygningssakkyndige i tillegg gitt et anslag på hva det vil koste å utbedre disse. Ettersom kjøper regnes å være kjent med forhold som tydelig fremgår av tilstandsrapporten, oppfordres du til å sette deg grundig inn i rapporten i sin helhet.
Bygningen er iht. tilstandsrapport en selveierleilighet i en boligblokk oppført i 2021. Bygningen antas fundamentert med stål-/betongpilarer til stedlige masser med grunnmur av betong og støpt plate til pelehoder. Yttervegger er oppført av betong, forblendet med murstein, og etasjeskillere er av betong/prefabrikerte betongelementer. Taket er en flat takkonstruksjon, antatt tekket med asfalttakbelegg/takfolie. Vinduer har 3-lags press glass fra 2020. Bygningen har brann- og lydklassifisert entrédør, og balkongdør med 3-lags press glass fra 2020. Innvendige dører er glatte. En markterrasse på ca. 23 m² ble lagt av eier våren 2024.
Følgende bygningsdeler er gitt Tilstandsgrad 2 (TG2) — Avvik som kan kreve tiltak:
Utvendig
- Terrasse: Deler av bjelkelag og terrassebord er i direkte kontakt med gress/terreng. Dette gir risiko for fuktopptak, råte og redusert levetid på materialene.
Tekniske installasjoner
- Vannledninger: Det registreres at rørkretsene ikke sitter fast i braketten.
Følgende bygningsdeler er ikke undersøkt (TGIU):
Tekniske installasjoner
- Varmtvannstank: Sentralt varmtvannsberedning.
Bad
- Hulltaking er ikke mulig på grunn av prefab stålkassetter. Det er pga bygningsmessige hindringer ikke fysisk mulig å foreta hulltaking i vegg bak våtsone.
Leiligheten har hatt flere eiere, ukjent hva som er gjort av tidligere eier da det ikke foreligger dokumentasjon/samsvarserklæringer på hele det elektriske anlegget.
Fra selgers egenerklæringsskjema:
Vi har observert 2 sjeggkre i kjøkkensonen. En nabo i samme bygg (bygg 8) oppgir til oss på et facebook-innlegg at hen har sett 1 sjeggkre i boligen sin. Vi registrerte funn av de 2 sjeggkreene til vårt forsikringsselskap. Forsikringsselskapet engasjerte Pelias til å legge ut dråper (åteutlegg punktvis i alle rom) langs lister og hulrom. Dette ble gjennomført 03.02.2026. Skaderapport fra Pelias kan fremvises.
Se vedlagt tilstandsrapport for supplerende informasjon vedrørende boligens tilstand.
Moderniseringer og påkostninger
Følgende moderniseringer er foretatt de senere år:
2025:
- Utført reparasjon av fug og utskifting av fliser på bad
2024:
- Lagt terrasse
Vedlikeholdshistorikk sameiet:
2024:
- Installert kameraovervåkning
2021:
- Oppgradert TV-/bredbåndsavtale
Ukjent årstall:
- Tilrettelagt ladeplasser for elbil/ladbar hybridbil i garasjeanlegget
Standard
Velkommen til denne moderne selveierleiligheten i 1. etasje, bygget i 2021, som byr på en innbydende atmosfære og en praktisk planløsning. Her får du en bolig som er innflytningsklar, med nymalte overflater fra 2023. Leiligheten har en sydvestvendt markterrasse på hele 23 m², som er et naturlig forlengelse av stuen.
Entré:
Du ønskes velkommen inn i en lys entré med parkett på gulvet og vegger i malte plater og betong. Himlingen er utført med prefabrikkerte betongelementer, og rommet varmes opp av radiatorer tilknyttet felles varmeanlegg. De glatte innvendige dørene bidrar til et rent og moderne uttrykk.
Stue:
Den romslige stuen har parkett på gulv og vegger holdt i tidløse og stilrene nyanser. Det er god plass til en romslig sofagruppe og tilhørende salongbord. Stuen har også en naturlig plass for spisebord der venner og familie kan inviteres på middager. Takhøyden i stuen er målt til 2,50 meter. Rommet varmes opp av radiatorer tilknyttet felles varmeanlegg. Fra stuen har du direkte utgang til den sydvestvendte markterrassen.
Markterrasse:
Fra stuen har du utgang til en sydvestvendt markterrasse på ca. 23 m². Terrassen er oppført i trekonstruksjoner, og gresset ble fjernet og erstattet med platting våren 2024. Terrassens gode størrelse gjør det enkelt å innrede med flere soner der årets varme dager kan nytes. Her får du den perfekte muligheten for å flytte middagen ut på sommerstid.
Kjøkken:
Kjøkkenet er funksjonelt med en moderne kjøkkeninnredning fra Sigdal med glatte fronter. Det er rikelig med oppbevaringsplass både skuffer og skap, og den gode benkeplassen gjør matlagingen enkel. Benkeplaten er i laminat med nedfelt vask, og kjøkkenet er utstyrt med integrert platetopp, stekeovn, oppvaskmaskin og kjøl/fryseskap. Avtrekk over kokeplass skjer via balansert anlegg, og det er installert waterguard under vasken for ekstra sikkerhet.
Soverom:
Boligen har to soverom av god størrelse. Her er det god plass til dobbeltseng, kontorinnredning eller annet ønskelig møblement. På hovedsoverommet ble det satt inn en stor garderobe i oktober 2023.
Bad:
Det moderne badet har flislagte vegger og gulv med vannbåren gulvvarme for økt komfort. Himlingen er utført med lakkerte stålplater og innfelte downlights som gir god belysning. Rommet er innredet med et vegghengt klosett, servant nedfelt i innredning, speilskap med lys og et dusjhjørne med svingbare glassdører. Det er også opplegg for vaskemaskin og balansert ventilasjon.
Overflater:
Gulvoverflater: Parkett i oppholdsrom, fliser på bad.
Vegger: Malte plater og betong i oppholdsrom, fliser på bad.
Himling: Prefabrikkerte betongelementer i oppholdsrom, lakkerte stålplater med innfelte downlights på bad. Takhøyden i stuen er 2,50 m. Innvendige dører er glatte.
Lagring:
Til leiligheten hører en ekstern kjellerbod på ca. 5,2 m², merket B221. Boden ligger på fellesareal, men disponeres av denne leiligheten. I tillegg ble en stor garderobe satt inn på hovedsoverommet i oktober 2023.
For fullstendig teknisk informasjon om boligen, se punktet Byggemåte i salgsoppgaven.
Løsøre og tilbehør
Vi viser til liste fra Norges Eiendomsmeglerforbund som gjelder fra 01.01.2020 angående løsøre og tilbehør.
Følgende medfølger ikke:
- KAOS endeløs ribbevegg
- Stringhylle på vegg, Stringhylle under TV, String garderobe i gang
- TV i stuen
- Northern nest knagg i gangen
- Små hyller (rosa/grønn) barnerom, Ikea bokhyller barnerom 2 stk
- Vaskemaskin (bad)
- Malerier i stuen
- Taklamper i stue og på begge soverom
- Ferm Living pond speil i gangen
Oppvarming
Boligen varmes opp av radiatorer tilknyttet felles varmeanlegg. Det er vannbåren gulvvarme på bad.
Dersom beboelsesrom ikke har vegg- eller fastmonterte varmekilder ved visning, følger dette heller ikke med.
Ferdigattest/brukstillatelse
Det er utstedt ferdigattest for oppføring av blokk/bygård/terrassehus (Hus 6-8) datert 25.08.2021.
Ferdigattesten kan fås ved henvendelse til megler. At en ferdigattest eksisterer gir ingen garanti for at det ikke senere er utført arbeider som ikke er byggemeldt/godkjent.
Det gjøres oppmerksom på at omkledningsrom opprinnelig er byggemeldt som bod og ikke er godkjent for varig opphold.
Kjøper overtar alt ansvar, kostnad og risiko for dette videre.
Tinglyste heftelser og rettigheter
Eiendommen overdras fri for pengeheftelser.
Sameiet har legalpant for krav mot sameieren som følger av sameieforholdet iht. eierseksjonsloven § 31. Pantet er begrenset oppad til 2G (G = folketrygdens grunnbeløp).
Det er tinglyst 30 servitutter på sameiets eiendom. Disse omhandler blant annet bestemmelse om vann/kloakkledning, elektriske kraftlinjer, bestemmelse om veg, bebyggelse, gjerde, benyttelse, garasje/parkering, lagerskur, utskillelse/bebyggelse, trafostasjon/kiosk, bruksrett, innløsningsrett, vegetasjon, vedlikehold, gjerdehold, plikt til å avstå grunn, dispensasjon fra bygningsloven, bruksrett til sykkelplasser, uteoppholdsareal, balkonger, bruk av grunn for reparasjon og vedlikehold, nettstasjon og felles stikkledninger.
Servituttene vil følge eiendommen. Kjøpers bank vil få prioritet etter ovennevnte heftelser og servitutter.
Eventuell adgang til utleie
Leiligheten kan leies ut såfremt leiligheten har forsvarlige radonverdier. Leietaker må følge sameiets vedtekter og ordensregler på lik linje som eier.
Seksjonseieren kan fritt leie ut sin seksjon. Korttidsutleie av hele boligseksjonen i mer enn 90 døgn årlig er ikke tillatt. Med korttidsutleie menes utleie i inntil 30 døgn sammenhengende. Styret skal underrettes skriftlig om leieforhold som varer lenger enn 30 døgn.
Beliggenhet og tomteforhold
Beliggenhet og tomteforhold
Beliggenhet
Velkommen til Lørenvangen og en leilighet med en sentral beliggenhet i et av Oslos mest komplette og fremtidsrettede nabolag. Løren kombinerer en urban og moderne atmosfære med trygge, grønne omgivelser, noe som skaper et område som passer like godt for etablerere som for barnefamilier. Fra leiligheten har du utsikt mot et hyggelig og skjermet gårdsrom. Her bor du med umiddelbar nærhet til alt du trenger i hverdagen, samtidig som du har kort vei til resten av byen.
Den praktiske hverdagen er sikret med et rikt utvalg av servicetilbud rett utenfor døren. Daglige innkjøp gjør du enkelt hos Joker eller Meny på Løren Torg, som ligger kun noen få minutters gange unna. Av matbutikker er Meny, Joker, Coop Extra og Rema 1000 i gangavstand, og en kort spasertur unna finner man Kiwi og Spar. Torget byr også på apotek og andre butikker. For en utvidet handleopplevelse eller en kveld ute, er det historiske Vinslottet med sine serveringssteder og Lille Lab, en innendørs lekeplass for småbarn, bare en kort spasertur unna. Kafeen Titt tei har nettop åpnet i Peter Møllers vei. Dette er en herlig kafé med lekerom for de minste. Med Løren T-banestasjon og Økern T-banestasjon under ti minutters gange fra leiligheten, er reisen til sentrum og andre bydeler både rask og effektiv. Flere busslinjer stopper også i nærheten, noe som gir stor fleksibilitet.
Området er svært godt tilrettelagt for familier. Det er gangavstand til flere barnehager, inkludert Gartnerløkka og Brødfabrikken FUS, som begge er et par minutter unna. For skolebarna ligger Løren skole og Frydenberg skole innen trygg gangavstand. På ettermiddagene og i helgene er det rikelig med muligheter for aktivitet. Lørenparken, Lørenbanen, Løren Ishall og nye Løren aktivitetspark med Løren flerbrukshall er i gangavstand. Borettslaget har også en egen fotballbane og 3 lekeplasser. For de treningsglade finnes både STERK og EVO i nabolaget. Det er også kort vei til Studio Jobbsprek på Økern Portal. Dette er et område hvor det er enkelt å trives, uansett livsfase.
Adkomst
Det vil bli skiltet med Krogsveen visningsskilt ved fellesvisninger.
Beskrivelse av tomt
Eiertomt på 1 344 kvm som tilhører sameiet. Tomten er fellesareal.
Parkering
Det er tidvis mulighet for leie av parkeringsplass i garasjekjeller. Selger har avtalt med utleier at parkeringsleie kan overtas om ønskelig.
Det er innført beboerparkering i dette området (indre by). Dette betyr at du kan parkere fritt døgnet rundt på parkeringsplassene regulert til beboerparkering i området rundt din bolig for kun kr. 3.850- pr. år for fossile biler, dieselbil, hybridbil, ladbar hybrid.
Har du el-bil så betaler du kr. 1.300,- pr år, hydrogenbil og el-varebil er gratis.
Motorsykkel og moped kr 1.925,- pr år.
El-motorsykkel og el-moped kr 650,- pr år.
Se Oslo kommune sine nettsider for mer informasjon og priser for ytre by.
Vei, vann og avløp
Eiendommen har adkomst via kommunal vei.
Eiendommen er tilknyttet kommunalt ledningsnett via private stikkledninger.
Sameiet er ansvarlig for private stikkledninger til bygningen.
Regulerings-og arealplaner
Eiendommen er regulert til boligformål i henhold til reguleringsplan S-4732 datert 05.06.2013 med tilhørende reguleringsbestemmelser.
Eiendommen berøres av strategisk plan for Hovinbyen: Strategisk plan for Hovinbyen gir rammer for byutvikling av Hovinbyområdet de neste tiårene. Planen viser et overordnet grep, samt strategier og tiltak for videre utvikling. Hovinbyen transformeres fra å være et område preget av store lager- og industriarealer, til å bli et attraktivt byområde med mange nye boliger og arbeidsplasser. Planen er retningsgivende, men ikke juridisk bindende.
Det er nylig vedtatt en detaljregulering av Peter Møllers vei 13 der det legges til rette for bygging av bolig/næring og park. Reguleringsplanene er påklaget. Saken har saksnummer 201509417 og kan finnes på kommunens Planinnsyn. Reguleringsplanens planid er S-5258 og ble vedtatt 11.06.2025. Saken fortsetter i sak 2025/06853.
Området er under stadig utvikling. Støy fra byggearbeider og oppføring av nybygg i området må påberegnes.
Utdrag av planer i nærheten:
Saksnummer 2025/21935 - Byggesak. Lørenvangen 22 - oppføring av Boligblokker. Det ble den 18.11.2025 søkt om rammetillatelse til oppføring av boligblokker i Lørenvangen 22. Relevant for saken er også sak med saksnummer 2025/22872 som gjelder riving av eksisterende bygningsmasse/ riving av Lørenvangen 22. Søknad om tillatelse til riving i ett trinn ble sendt 09.12.2025. Det er sendt anmodning om omprosjektering 03.02.2026 og dette er pt. under avklaring.
Saksnummer 2025/07921 - Byggesak. Lørenvangen 25 - oppføring av to leilighetsbygg. Tiltaket omhandler oppføring av to leilighetsbygg med tilhørende uteoppholdsareal på eiendommen. Leilighetsbyggene inneholder 94 bruksenheter for bolig og 2 bruksenheter for næring, og er plassert over felles garasjekjeller under terreng. Eksisterende bygninger på eiendommen skal rives, og er omsøkt i egen søknad. Eiendommen befinner seg i bydel Grünerløkka. Rammetillatelse gitt 27.10.2025. Det ble videre gitt tillatelse til endring 14.01.2026. Endringssøknaden omhandler justeringer og presiseringer av tiltakets arkitektoniske utforming. Tiltakets overordnede rammer og hovedgrep videreføres uendret, herunder bygningenes plassering på tomten, bebyggelsesstruktur og volumrammer. Endringene omfatter en presisering av volumoppbygging innenfor tidligere godkjente rammer, justering av fasadeutforming, tydeliggjøring av slektskap mellom de omsøkte byggene, presisering av balkongutforming, presisering av farge- og materialbruk.
Saksnummer 202556036 - Reguleringssak. Lørenveien 68 - Bolig og næring - Bestilling av oppstartsmøte. Oppstartsmøte ble bestilt 07.07.2025. Planinitiativet ble stoppet 24.10.2025 og er under avklaring. Nytt saksnummer 2025/06707.
Saksnummer 202460280 - Reguleringssak. Økern Torgvei 6 med fler - Bestilling av oppstartsmøte - Felt 3 og 4 - Bolig, næring, park, torg. Bakgrunn for bestillingen framgår av Hammersborgerklæringen, hvor byrådet vil «omregulere felt 3 og 4 i Økern Torgvei 6 for å utvide parken betydelig, samtidig som siktemålet er å opprettholde antall boliger som tidligere regulert». Omreguleringsprosessen skal utvide parken med ca. 6800 m2, og tilrettelegge for bolig og næring. Det skal vurderes muligheter for å plassere idrettsflater på deler av parkutvidelsen. I planprosessen skal det vurderes om Omsorg+ boliger kan etableres i kombinasjon med annen ordinær boligbebyggelse. Innmeldt behov omfatter ca. 80-120 boenheter.
Saksnummer 2025/09674 - Byggesak. Sinsenveien - oppgradering av veien mellom Lørenveien og Dag Hammarskjölds vei. Det ble gitt igangsettingstillatelse 12.12.2025.
Saksnummer 2025/08518 - Byggesak. Spireaveien 2 A-D - oppføring av ungdomsskole, barnehage og flerbrukshall - Økern skole. Tiltaket omhandler oppføring av ny ungdomsskole, ny barnehage og ny flerbrukshall. Igangsettingstillatelse ble gitt 29.09.2025.
Saksnummer 2025/06787 - Plansak. Detaljregulering , Spireaveien 3 (Refstad flerbrukshall). Oslobygg KF foreslår å omregulere Spireaveien 3, Løren idrettspark, fra grønnstruktur til friområde, idrettsanlegg og offentlig torg. Planen legger til rette for å erstatte midlertidig flerbrukshall, oppføre ny ishall og øke antall utendørs idrettsflater. Planen viderefører eksisterende tursti og legger til rette for å gjenåpne Refstadbekken i den vestre delen av planområdet. Planforslag til politisk behandling sendt 28.11.2024. Nytt saksnummer 2025/06787.
Opplistingen er ikke uttømmende og interessenter bes sette seg inn i planer på planinnsyn via Oslo Kommune sine hjemmesider.
Utsnitt av plan med tilhørende bestemmelser kan fås ved henvendelse til megler.
Økonomi
Økonomi
Boligens kostnader
Totale fellesutgifter er kr 3 839,- per måned. Dette inkluderer a-konto oppvarming, TV/internett, kommunale avgifter, forretningsførsel, felles bygningsforsikring, drift og vedlikehold mv.
Kostnader for fjernvarme (oppvarming/varmt tappevann) betales som et a-kontobeløp og avregnes årlig mot faktisk forbruk for den enkelte seksjon. Avregningen utføres av Techem Norge AS. Kostnad vil derfor variere etter forbruk.
Fellesutgiftene er fordelt slik:
- A-konto oppvarming: kr 533,-
- Felleskostnader brøk: kr 2 771,-
- TV/Internett: kr 149,-
- Felleskostnader lik: kr 386,-
Selger informerer om et årlig strømforbruk på kr 4 800,- / 2 002 kWh.
Eiendommen er tilknyttet Telia som leverandør av kabel-TV og internett, der avgiften er inkludert i felleskostnadene.
Eiendomsskatt er beregnet til ca. 2 590,-
Utgiftene er basert på nåværende eiers forbruk. Kjøper må selv tegne innboforsikring.
Formuesverdi
Ved hjelp av skatteetatens boligkalkulator er boligens formuesverdi beregnet til kr. 2 072 273,- for fjoråret når boligen benyttes som primærbolig.
Formuesverdien er en gitt prosent av den beregnede markedsverdien. Beregnet markedsverdi er basert på Statistisk sentralbyrå (SSB) sine opplysninger om omsatte boliger. I beregningen tas det hensyn til boligens beliggenhet, areal, byggeår og boligtype.
Det er eier av boligen som fastsetter formuesverdien, jf. skatteforvaltningsloven § 9-1 første ledd, men skattemyndighetene kan kontrollere at verdien er satt riktig.
Formuesverdi skal ikke overstige:
Primærbolig: 25 % av beregnet eller dokumentert markedsverdi opp til kr. 10 000 000, og deretter 70 % av den overskytende markedsverdi.
Sekundærbolig: 100 % av beregnet eller dokumentert markedsverdi.
Formuesverdier som overstiger disse grensene, kan kreves nedjustert av eier.
Fra 2026 har Stortinget vedtatt en oppdatert modell for beregning av formuesverdi for primærbolig, så avvik kan forekomme.
For mer informasjon se skatteetaten.no
Opplysninger om fellesgjeld
Det er pr. 26.02.2026 ingen lån registrert på sameiet.
Omkostninger
6 900 000,00 Prisantydning
Omkostninger
172 500,00 Dokumentavgift til staten (2,5% av kjøpesum)
9 950,00 Gjensidige Boligkjøperpakke (valgfri)
545,00 Tinglysing panterettsdokument
545,00 Tinglysing skjøte
--------------------------------------------------------
183 540,00 Omkostninger totalt
--------------------------------------------------------
7 083 540,00 Totalpris inkl. omkostninger
--------------------------------------------------------
Dersom sameiet har fellesgjeld, vil leilighetens andel av fellesgjelden komme i tillegg til kjøpesummen. Denne gjelden skal ikke innbetales i oppgjøret, men følger leiligheten.
Totalpris inkl. omkostninger forutsetter kjøp til prisantydning.
Det tas forbehold om endringer i avgifter og gebyrer.
Tilbud om lånefinansiering
Megler formidler gjerne kontakt med rådgiver hos vår samarbeidspartner BN Bank. De har konkurransedyktige betingelser samt rask og løsningsorientert behandling av din lånesøknad. Krogsveen mottar et honorar dersom lån opprettes.
Betalingsbetingelser
Kjøpesum inkludert omkostninger, samt pantedokument tilknyttet eventuelt lån, skal være disponibelt hos megler 2 virkedager før overtagelsen.
Annen viktig informasjon
Annen viktig informasjon
Eier
Ekta Therese Nordnes Omdahl og Nikolai Nordnes Omdahl
Informasjon om sameiet
Leiligheten er tilknyttet Villvin boligsameie.
- Sameiet består av 81 boligseksjoner.
- Forretningsfører er OBOS Eiendomsforvaltning AS.
- Sameiet er forsikret i Tryg Forsikring med polisenummer 7864400.
Sameiet er sameiepart i Lørenvangen garasjesameie (felles garasjeanlegg) og Gartnerkvartalet utomhussameie (felles utomhusareal) sammen med flere andre boligselskaper i området.
Dyrehold er tillatt så lenge det ikke er til sjenanse eller ulempe for de øvrige beboerne. Eier av dyret er erstatningspliktig for eventuelle skader og må fjerne ekskrementer. Ved berettigede klager kan styret kreve dyret fjernet.
Det er kun tillatt med elektrisk- eller gassgrill på balkong/terrasse.
Det skal være alminnelig ro mellom kl. 23:00 og 07:00 (kl. 24:00 i helger). Støyende arbeid skal unngås på søn- og helligdager.
Seksjonseier har vedlikeholdsplikt for egen seksjon, som blant annet innebærer å rense sluk og holde avløpsrør åpne, samt holde enheten fri for skadedyr.
Hver boligseksjon disponerer én bod.
Arbeider som påvirker fellesarealer, inkludert fasadeendringer som montering av varmepumper, markiser eller innglassing, krever forhåndsgodkjenning fra styret eller årsmøtet.
Styret informerer pr. 26.02.2026 at det ikke foreligger planlagte påkostninger av betydning for fellesgjeld eller felleskostnader.
Innkalling til ordinært årsmøte 11.-18. mai 2026 er sendt ut. Frist for innsending av saker er 19. april 2026.
Det foreligger ingen forkjøpsrett på eiendommen.
Sameiets styre skal underrettes skriftlig om alle overdragelser. I henhold til eierseksjonsloven kan ingen kjøpe eller på annen måte erverve flere enn to boligseksjoner i sameiet.
For å dekke eventuell manglende innbetaling av felleskostnader har sameiet panterett i den enkelte seksjon foran alle andre panthavere med et beløp tilsvarende to ganger folketrygdens grunnbeløp (2G). Sameiet er ikke tilknyttet en sikringsordning som dekker tap ved manglende innbetaling av felleskostnader.
Dokumenter for sameiet kan fås ved henvendelse til megler.
Overtakelse
Etter nærmere avtale.
Boligselgerforsikring
Det gjøres oppmerksom på at selger ikke har tegnet boligselgerforsikring som dekker selgers ansvar etter avhendingsloven. Likevel foreligger selgers egenerklæring og godkjent tilstandsrapport som interessenter må sette seg inn i før bud inngis. Eventuelle reklamasjoner må rettes direkte til selger.
Boligkjøperforsikring
Innen kontraktsmøtet må kjøper ta stilling til om det ønskes å bestille Boligkjøperpakken gjennom Gjensidige. I denne gunstige pakken er boligen ferdig forsikret og inkluderer rettshjelpsforsikring, også kalt Boligkjøperforsikring. Rettshjelpsforsikring gir trygghet og tilgang på profesjonell juridisk hjelp dersom det oppdages uventede feil eller mangler det første året etter overtagelse. Forsikringsselskapet behandler i så fall ethvert mangelskrav kjøper måtte ha overfor selger.
Boligkjøperpakken inkluderer bygningsforsikring for hus og hytte, innboforsikring, flytteforsikring og dobbel rentedekning - i situasjoner hvor kjøper ikke får solgt nåværende primærbolig.
Kjøper mottar ingen særskilt faktura for Boligkjøperpakken da kostnaden det første året legges til kjøpesummen for boligen. Det gjøres oppmerksom på Krogsveen mottar et honorar for denne formidlingen.
Produktark for Boligkjøperpakken ligger vedlagt i salgsoppgaven.
Dersom ikke boligkjøperpakke ønskes kan kun rettshjelpsforsikring, også kalt boligkjøperforsikring, tegnes særskilt via megler. Rettshjelpsforsikringen varer i 5 år fra overtagelse og leveres gjennom Gjensidige. Ta kontakt med megler for ytterligere informasjon.
Selskap og privatpersoner som driver med kjøp/salg/utvikling som ledd i egen næringsvirksomhet kan ikke tegne boligkjøperpakke eller rettshjelpsforsikring.
Budgivning
Forbrukerinformasjon om budgivning er vedlagt denne salgsoppgaven og er også på vår hjemmeside Krogsveen.no. Alle bud og budforhøyelser må inngis skriftlig. I tillegg må legitimasjon være fremlagt sammen med signatur fra budgiver.
Vi oppfordrer til å gi bud elektronisk via GI BUD-knappen på eiendommens hjemmeside på Krogsveen.no. Da vil samtlige vilkår bli oppfylt.
Eventuelle forhøyelser eller endringer av budet kan bekreftes pr SMS eller på e-post. Vi oppfordrer alltid til å kontakte megler pr. telefon i tillegg da forsinkelser i SMS og e-post kan forekomme.
For at budene skal kunne bli behandlet og videreformidlet skriftlig til alle involverte parter, må alle bud ha en tilstrekkelig lang akseptfrist, jf. eiendomsmeglingsforskriften § 6-3.
Selger må også skriftlig akseptere budet før aksept kan formidles til budgiver. Akseptfrist bør derfor være på minimum 30 minutter, og budforhøyelser må derfor skje i god tid før fristens utløp.
Bud i forbrukerforhold kan uansett ikke settes med kortere frist enn kl. 12.00 første virkedag etter siste annonserte visning. I tillegg kan ikke budet ha forbehold om at det skal holdes hemmelig ovenfor øvrige interessenter. Megler har iht lov om eiendomsmegling ikke anledning til å videreformidle disse budene, og de vil dermed heller ikke bli journalført.
Etter at eiendommen er solgt vil kjøper og selger få tilsendt budjournal. Øvrige budgivere kan få utlevert kopi av budjournalen i anonymisert form.
Hvitvaskingsreglene
I henhold til lov om hvitvasking og terrorfinansiering har megler plikt til å gjennomføre kontrolltiltak overfor kunder, herunder fullmektiger. Dette innebærer bl.a. å bekrefte kunders og reelle rettighetshaveres identitet på bakgrunn av fremvist gyldig legitimasjon eller på annen godkjent måte, samt å innhente opplysninger om kundeforholdets formål og tilsiktede art.
Dersom slike kundetiltak ikke kan gjennomføres, kan megler ikke etablere kundeforholdet eller utføre transaksjonen.
Hvis kjøper ikke bidrar til gjennomføring av kundekontrollen og dette fører til at transaksjonen blir forsinket eller ikke kan gjennomføres, vil dette ansees som mislighold av avtalen og gi selger rettigheter etter avhendingslova kapittel 5. I tilfeller der selger ikke bidrar til gjennomføring av løpende kundekontroll underveis i oppdraget, er det selger som misligholder sine forpliktelser etter avtalen og gi kjøper rettigheter etter avhendingslovens kapittel 4. Partene er selv ansvarlige for eventuelle kostnader og ansvar dette kan medføre. Eiendomsmegleren eller eiendomsmeglingsforetaket kan ikke holdes ansvarlig for de konsekvenser dette vil kunne få for partene eller andre som har interesser i eiendomshandelen.
Kjøper oppfordres til å innbetale kjøpesummen som ikke kommer fra låneinstitusjon i én samlet innbetaling fra egen konto i norsk bank. Megler har plikt til å melde fra til Økokrim om eiendomshandler som fremstår som mistenkelige. Melding sendes Økokrim uten at partene varsles.
Personopplysningsloven
I henhold til personopplysningsloven gjør vi oppmerksom på at interessenter kan bli registrert for videre oppfølging.
Lovanvendelse
Generelle bestemmelser
Salgsoppgaven er basert på de opplysningene selger har gitt til megler, den bygningssakyndiges tilstandsrapport, samt opplysninger innhentet fra kommunen, Kartverket og andre tilgjengelige kilder. Det er viktig at kjøper setter seg grundig inn i alle salgsdokumentene, herunder salgsoppgave, tilstandsrapport og selgers egenerklæring. Kjøper anses kjent med forhold som er tydelig beskrevet i salgsdokumentene, og slike forhold kan ikke påberopes som mangler. Dette gjelder uavhengig av om kjøper har lest dokumentene. Alle interessenter oppfordres til å undersøke eiendommen nøye, gjerne sammen med fagkyndig før bud inngis. Kjøper som velger å kjøpe usett kan ikke gjøre gjeldende som mangel noe han burde blitt kjent med ved undersøkelsen.
Dersom det er behov for avklaringer, anbefaler vi at interessenter rådfører seg med eiendomsmegler eller egne rådgivere før det legges inn bud.
En bolig som har blitt brukt i en viss tid, har vanligvis blitt utsatt for slitasje og skader kan ha oppstått. Slik bruksslitasje må kjøper regne med, og det kan avdekkes enkelte forhold etter overtakelse som nødvendiggjør utbedringer. Normal slitasje og skader som nødvendiggjør utbedring, er innenfor hva kjøper må forvente og vil ikke utgjøre en mangel.
Kjøper og selgers rettigheter og plikter reguleres av avtalen mellom partene, samt informasjonen som har vært tilgjengelig for kjøperen i forbindelse med handelen. Avtalen utfylles av avhendingsloven, og det gjelder ulike avtalevilkår avhengig av om kjøper er forbrukerkjøper eller ikke. Dette er nærmere beskrevet nedenfor.
På grunn av ulike avtalevilkår kan selger vurdere bud fra en som ikke er forbruker, ulikt fra en forbrukers bud. Dersom kjøper ikke er forbruker, er selger sitt mulige mangelsansvar begrenset fordi eiendommen selges "som den er". Selger kan ikke ta «som den er»- forbehold overfor en forbrukerkjøper. Selv et lavere bud fra en som ikke er forbruker kan foretrekkes fordi begrensningen i mulig mangelsansvar kan ha egenverdi for selger. Selger står fritt til å forkaste eller akseptere ethvert bud, og er for eksempel ikke forpliktet til å akseptere høyeste bud.
Budgiver skal i budskjema avgi egenerklæring om budgiver er forbruker eller næringsdrivende/ person som hovedsakelig handler som ledd i næringsvirksomhet. Budgivere får informasjon dersom andre bud er inngitt av en som ikke er forbruker.
Forbrukerkjøp - definisjon
Med forbrukerkjøp menes kjøp av eiendom når kjøperen er en fysisk person som ikke hovedsakelig handler som ledd i næringsvirksomhet.
Forbruker – avtalevilkår
Eiendommen har en mangel dersom den ikke er i samsvar med kravene som følger av avtalen, eller det foreligger brudd på bestemmelsene i avhendingsloven §§ 3-2 til 3-8. Hvis eiendommen ikke er i samsvar med det kjøperen må kunne forvente ut ifra alder, type og synlig tilstand, kan det være grunnlag for mangelskrav. Det samme gjelder hvis det er holdt tilbake eller gitt uriktige opplysninger om eiendommen. Dette gjelder likevel bare dersom man kan gå ut ifra at det virket inn på avtalen at opplysningen ikke ble gitt eller at mangelskravet ikke blir rettet i tide på en tydelig måte.
Boligen kan ha en mangel etter avhendingsloven § 3-3 andre ledd, dersom det er avvik mellom opplyst og faktisk innvendig areal, forutsatt at avviket er på 2% eller mer og minimum 1 kvm.
Ved beregning av et eventuelt prisavslag eller erstatning må kjøper selv dekke tap/kostnader opptil et beløp på kr 10 000 (egenandel).
Ikke-forbruker (næringsdrivende) – definisjon
Hvis kjøper er en juridisk person, eller en fysisk person som hovedsakelig handler som ledd i næringsvirksomhet, vil kjøpet ikke anses som et forbrukerkjøp.
Ikke-forbruker – avtalevilkår
Eiendommen har en mangel dersom den ikke er i samsvar med kravene som følger av avtalen.
Eiendommen selges «som den er», og selgers ansvar utover det konkret avtalte er da begrenset etter avhendingsloven § 3-9, første ledd andre setning.
Avhendingsloven § 3-3 andre ledd fravikes, og hvorvidt boligens arealsvikt utgjør en mangel vurderes etter avhendingsloven § 3-8.
Informasjon om kjøpers undersøkelsesplikt, herunder oppfordringen om å undersøke eiendommen nøye, gjelder også for kjøpere som ikke anses som forbrukere.
Det forutsettes at hjemmel overføres til kjøper. Hvis kjøper ikke ønsker hjemmelsoverføring av eiendommen, må det tas forbehold om dette i budet.
Meglers vederlag
Meglers vederlag betales av selger og er avtalt til:
Vederlag: 0,90 % av salgssummen inkl. eventuell fellesgjeld. Minimumsprovisjon er kr 50 000,00
Vederlag:
Kontroll av hjemmel og heftelser kr 3 900,00
Kunderabatt SELGER; kr -13 000,00
Markedsføringspakke kr 30 900,00
Oppgjør kr 8 900,00
Tilrettelegging kr 19 900,00
Visninger pr stk / Overtagelse - 2 visninger inkl. kr 0,00
Utlegg:
Eierskiftegebyr forretningsfører - OBOS kr 6 725,00
Innhenting av informasjon forretningsfører kr 3 125,00
Tinglysing sikring kr 545,00
Andre utgifter:
Boligselgerforsikring Gjensidige Snr - regnes av prisantydning kr 32 060,00
Foto kr 5 500,00
Tilstandsrapport fra bygningssakkyndig - faktura til kunde kr 9 000,00
Vi er opptatt av verdiskapning, og har knyttet til oss samarbeidspartnere som skal sikre våre kunder de beste produkter og tjenester;
• I forbindelse med forberedelse av salget, innhenter vi informasjon om eiendommen hovedsakelig fra vår samarbeidspartner Amibita.
• Gjensidige leverer boligselgerforsikring og tilbyr bygningsforsikring
• Boligkjøperforsikring leveres av Hiscox og med Sedgwick som skadebehandler, og er formidlet gjennom Gjensidige.
• BN bank tilbyr finansieringsløsninger
• Vår avdeling Krogsveen Pluss tilbyr flyttetjenester som utvask, visningsvask, lager, tømming og transport av flyttelass, i tillegg til å formidle kontakt med Flip for overflateoppussing.
• I forbindelse med overtagelse av eiendommen tilbyr Overo avtale om strøm, alarm og bredbånd.
• Krogsveen er, sammen med øvrige bransjeaktører, medeier i Bomega AS som tilbyr den digitale annonseringsplattformen Hjem.
Opplysninger om oppdraget
Oppdragsnummer 37-0078/26
Eiendomsmegler Krogsveen AS, avd. Hasle
Valle View, Innspurten 11D, 0663, OSLO
950007613
Oppdragets KR-kode KR37.2678
Dato
Sist oppdatert: 26. mars 2026 kl. 14:08
Dokumenter
Dokumenter
PDF – 283 KB
PDF – 312 KB
PDF – 29 KB
PDF – 127 KB
PDF – 392 KB
Område
Legg til steder som er viktige for deg
Visning
Det er ingen planlagte visninger. Meld deg på for å avtale en tid som passer.
Lurer du på noe?
Unngå doble boligrenter
Vi tilbyr gunstig forsikring.
Vurderer du utleie?
Få et tilbud fra Utleie KrogsveenHva koster lånet?
Sjekk estimert lånekostnadVil du varsles om lignende boliger?
Ved å lagre ditt boligsøk hos oss får du beskjed når vi har en bolig som ligner denne, før den legges ut på markedet!





