Haukeveien 6
7 990 000 kr
239 m²
6 soverom
Komplett salgsoppgave

Sætre
Stor og pen familiebolig med hybeldel - Dbl. garasje - 6 soverom og 3 stuer
Prisantydning
7 990 000 krOmkostninger
220 740 krTotalpris
8 210 740 kr
Pris
Bruksareal
326 m²BRA-I (internt bruksareal)
239 m²BRA-E (eksternt bruksareal)
87 m²TBA (terrasse-balkongareal)
136 m²
Areal
Byggeår
2002Soverom
6 soveromBad
3 badTomteareal
945 m² (eiet)Type
Enebolig - FrittliggendeEierform
EietFasiliteter
Garasje/P-plass og Balkong/TerrasseÅrlig velavgift
1 000 krEnergimerke
Lysegrønn C
Nøkkelinfo
Unngå doble boligrenter
Vi tilbyr gunstig forsikring.
Vurderer du utleie?
Få et tilbud fra Utleie KrogsveenHva koster lånet?
Sjekk estimert lånekostnadBeskrivelse
Kort om eiendommen
Velkommen til Haukeveien 6 på Slingrebekk!
Pen og påbygget familiebolig beliggende i et attraktivt og barnevennlig boligfelt i Sætre med marka i umiddelbar nærhet. Også kort vei til barnehager og skoler. Ny barne- og ungdomsskole, i nærmiljø, skal stå ferdig høsten 2028
Kort vei til Sætre sentrum med båthavna og Oslofjorden. Her er det mange forskjellige butikker og serveringssteder. Et idyllisk og koselig nærmiljø.
- Stue i 1.etg ble i 2016 bygd på 25 kvm. Rommet har ekstra takhøyde
- Hvis man ønsker, kan man leie ut hybel i u.etg eller man kan bruke den selv
- Dobbelgarasje
- Flotte gasspeiser i stue og på kjøkkenet
- Stue i hver etg. og totalt 6 sov
- 3 flotte bad
- Delikat og pent kjøkken med integrerte hvitevarer
- Pent og godt vedlikeholdt hus
- Solrik og koselig tomt på 944 kvm
Innhold og byggemåte
Innhold og byggemåte
Eiendommen
Haukeveien 6, 3475 SÆTRE
Kommunenummer 3203, gårdsnummer 301, bruksnummer 486, ideell andel 1/1
Innhold
Totalt bruksareal BRA: 326 kvm
BRA-i:
Enebolig:
Underetasje 94 kvm: Entré, garderoberom, gang, stue, 2 baderom, omkledningsrom, bod/teknisk rom, bod og 2 soverom.
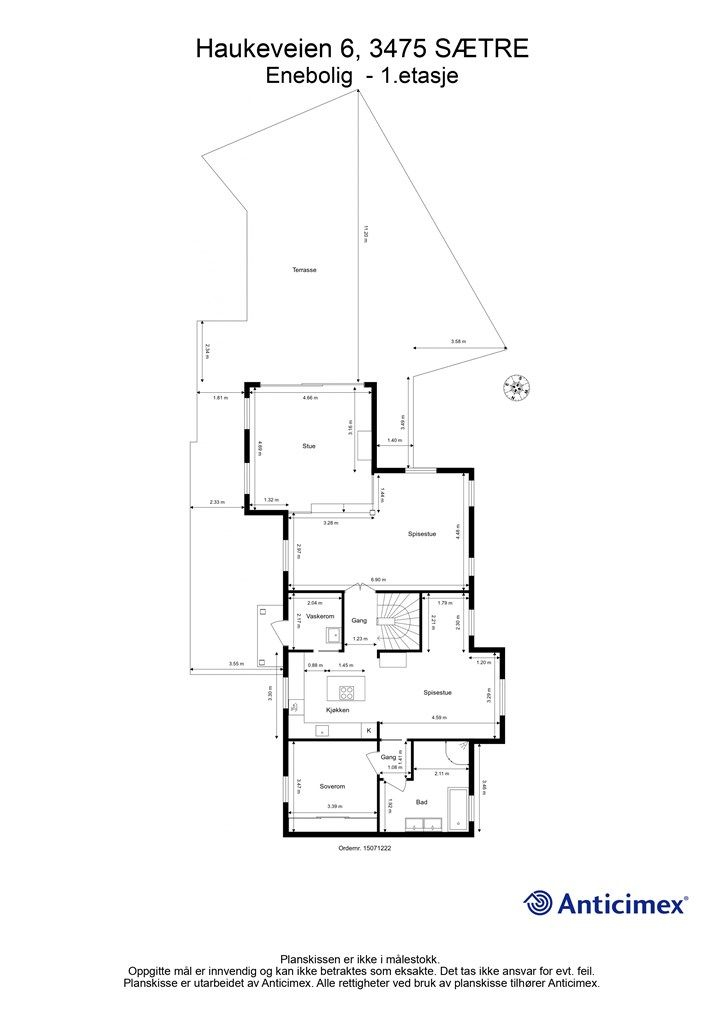
1. etasje 116 kvm: Vaskerom, baderom, kjøkken, 2 ganger, 2 spisestuer, stue og soverom.
Loftsetasje 29 kvm: Loftstue og 2 soverom.
BRA-e:
Bod:
Bakkeplan 10 kvm: Bod
Garasje/bod:
1. etasje 4 kvm: Bod
1. etasje 48 kvm: Garasje
Garasjeloft 25 kvm: Lagerloft
Åpent areal:
Enebolig:
Underetasje: 32 kvm: Plattinger
1. etasje 104 kvm: Sammenhengende terrasser
Loftsetasjen har et totalt gulvareal (GUA) på 72 m2, men grunnet skråtak/lav takhøyde er kun 29 m2 av arealet måleverdig som bruksareal. De delene av arealene som har lav himlingshøyde (ALH) utgjør 43 m2.
Arealer bak knevegger og lignende (som ikke er måleverdige) er ikke medtatt som areal med lav himlingshøyde (ALH). Se mer utfyllende informasjon i rapportens premisser om areal.
Garasjeloft har et totalt gulvareal (GUA) på 43 m2, men grunnet skråtak/lav takhøyde er kun 25 m2 av arealet måleverdig som bruksareal. De delene
av arealene som har lav himlingshøyde (ALH) utgjør 18 m2.
Vedlagte plantegninger er ikke målbare. De oppgitte arealer er hentet fra rapport med befaringsdato 26.01.2026 utført av Anticimex AS v/Sverre Alexander Enersen.
Utebod med takoverbygg på siden er ikke søkt eller godkjent av Asker kommune. Konsekvensen ved søknad kan være at dette bygget ikke godkjennes og ytterste konsekvens er da riving.
Byggemåte
Selger har fått utarbeidet en tilstandsrapport, dvs. en teknisk gjennomgang av boligen hvor eventuelle avvik, risiko for kjøper og prisoverslag for hva som bør gjøres av oppgradering, er skissert. Se særskilt TGIU (tilstandsgrad ikke undersøkt), samt TG2 og TG3 som viser hva som er boligens normale slitasje, alder og type, hva som er avvik fra dette og hva som bør/må utbedres. Rapporten og selgers egenerklæring er en del av salgsoppgaven og må leses nøye før bud inngis. Kjøper overtar ansvaret for de opplysninger som fremkommer av salgsdokumentasjonen, og kan ikke gjøre gjeldende som mangel noe som burde vært kjent eller som ikke kan anses å ha betydning for avtalen.
Bygningen er iht. tilstandsrapporten oppført med støpt gulv mot grunn og grunnmur i betong/murkonstruksjoner. Bærende konstruksjoner og etasjeskillere over grunnmur i trekonstruksjoner. Yttervegger med liggende trekledning. Tak med saltaksform tekket med takstein. Boligen har profilert ytterdør i tre fra 2022. Terrassedører i tre med 2-lags glassfelt fra byggeår. Terrassedør/skyvedør i metall med 3-lags glassfelt fra 2016. Vinduer med karmer av tre og 2- lags glass fra byggeår. Vinduer med karmer av plast og 3-lags glass fra 2016. Les for øvrig mer om byggemåte og den tekniske tilstanden i rapporten.
Det gjøres spesielt oppmerksom på punkter som har fått tilstandsgrad 2:
-U.etg. bad 2: Overflater vegger, grunnet observasjon av uegnede materialer i våtsone. Fallforhold (gulv), grunnet at det ikke er tilfredsstillende fall på gulvet rund sluket. Høydeforskjell mellom slukkant og rommets døråpning på topp overflate gulv er på tilfeldig sted målt til ca. 2 mm. Tettesjikt har en alder som tilsier at restlevetiden er usikker og det er ikke mulig å verifisere om slukmansjett og klemring er benyttet eller om monteringen er korrekt.
-Våtrom 1. etg (bad): Overflater vegger, grunnet at vinduets plassering, over badekar, er uegnet grunnet fare for fukt i konstruksjonen. Fallforhold (gulv), grunnet at lokalfall er vurdert til å være mindre enn anbefalt, men grunnet bruk av dusjkabinett/badekar med dusjvegger er forholdet ikke vurdert til å være vesentlig avvik. Nivåforskjell fra døråpning på topp overflate gulv og til sluk under dusjkabinettet er på tilfeldig sted målt til ca. 5 mm. Utførelsen med hensyn til bruk av slukmansjett og tettesjikt er uoversiktlig. Tettesjikt, grunnet alder. Avløpsrør (inkl. sluk), da sluket ikke er skiftet selv om det er utført oppgraderinger på våtrommet.
-Vaskerom: Tettesjikt, grunnet alder.
- U.etg. bad 1: Overflater gulv, grunnet registrert bomlyd under enkelte gulvfliser. tettesjikt, grunnet alder.
-Kjøkken 1.etg: Ventilasjon og avtrekk, grunnet at det kun er kullfilter og ikke separat avtrekk fra rommet.
-Vinduer, grunnet at innsettingsdetaljer rundt vinduer bærer preg av ufagmessig utførelse. Oppkant på vannbrettbeslag under vinduet er ikke ført opp i spor under vinduer og vinduslister er montert uten klaring mot underliggende vannbrett.
-Yttertak: Helhetsvurdering, grunnet at taket ikke er fysisk inspisert grunnet is og snø. TG2 er valgt på bakgrunn av at taktekkingen og undertaket har en alder som tilsier usikker fremtidig funksjon.
-Drenering: Fuktsikring av grunnmur, grunnet at det ikke kan verifiseres at grunnmuren har utvendig fuktsperre grunnet manglende inspeksjonsmulighet.
-Frittstående byggverk (garasje/bod): Helhetsvurdering, grunnet relativt høy slitasjegrad. Utvendig kledning går stedvis helt ned til og under terreng. Taket er ikke fysisk inspisert grunnet is og snø. TG2 er valgt på bakgrunn av alder på taktekking og undertak.
Se utfyllende tekst i rapporten.
Selger opplyser i egenerklæringsskjema om at:
-Bad/vaskerom underetasje; Montert "vannskap" med stoppekraner og tilførsel til vask, dusj og vaskemaskin. Det ble også lagt nye rør-i-rør i vegg. Nye dusjkabinett, wc'er og innredninger på bad vaskerom og bad i underetasje ble montert. Ny innredning på bad i hovedetasje ble montert. - utført av faglært i 2024.
-Montering av ny varmtvannsbereder - utført av faglært i 2019.
-Montert watergard i 2013, noen deler ble fornyet i 2026 - utført av faglært.
-Diverse rørarbeid på bad i hovedetasjen - utført av faglært i 2011.
-Lagt takstein på tak i nybygd del av stue. Arbeid utført av eier med hjelp av venner i 2016.
-Montert komfyrvakt - utført av faglært i 2013.
-Utskifting av termostat bad hovedetasje. Montert dimmer til lysekrone kjøkken, soverom og stue. Byttet termostat på bad i underetasje. Montert industrikontakt i garasje. - utført i 2019 av faglært.
-Montering av varmepumpe i stue. Betalt for serviceavtale i 2 år - utført av faglært i 2024.
-Rens av ventilasjonsanlegg - utført av faglært i 2024.
-Det har tidligere vært litt museaktivitet i boder på loft, men etter å ha tettet åpningene under panel hvor de før kom inn, har det ikke vært aktivitet denne vinteren.
-Gjennomført radonmåling i 2004. Verdiene var 74+/-25 og 48+/-36. det er installert radonpumper på begge sider av boligen.
-Garasjen er bygget på egeninnsats i 2003.
Se utfyllende tekst i skjemaet.
Standard
Entré:
Lys og flislagt entré med tilhørende omkledningsrom med god plass til skostativ og knagger til å henge opp ytterklær samt. oppbevaring til det man skulle trenge.
Kjøkken:
Åpen kjøkkenløsning mot spisestuen med hvit høyglanset innredning fra 2013. Over- og underskap i lyse slette fronter og godt med oppbevaringsplass av kjøkkenutstyr. Det er italienske fliser på veggen mellom benkeplate og overskap, samt stor benkeplate i kompositt. To komfyrer i høyskap hvor den ene har dampfunksjon og den andre er en kombiovn/microovn. I tillegg er det integrert kjøleskap og oppvaskmaskin. På kjøkkenøya er det lagt en stor nedfelt platetopp/induksjonstopp på 90cm og takhengt ventilator. Gulvet er belagt med 1-stavs parkett og himlingen er malt flate med downlights. Fra kjøkkenet har man tilgang til boligens vaskerom, som videre har utgang til terrassen.
Det er også en spisestue i åpen løsning mot kjøkkenet med plass til spisebord foran kjøkkenets gasspeis. Her er det i tillegg plass til å etablere et lite kontorhjørne.
I stuen i underetasjen er det satt inn et hybelkjøkken/minikjøkken fra 2004 med oppvaskkum, kjøleskap, platetopp og kombi - mikro og stekeovn.
Stue:
Boligen hovedstue har en hyggelig spisestuedel med plass til et større spisebord som vil være et perfekt sted å samle familie og venner. Stuen er senket ned som gir et moderne preg sammen med den gode takhøyden, i tillegg til mye lys fra de store vindusflatene. Her er det god plass til å etablere en sittegruppe, i tillegg til at det er utgang til stor terrasse.
Loftstuen er perfekt som en lekestue til barna. Stuen i underetasjen er malt i lune toner og får inn rikelig med naturlig lys fra vindusflatene, og her er det god plass til sofaløsning med tv-seksjon.
Bad:
Boligen har 1 bad i 1. etasje og 2 bad i underetasjen, samt 1 vaskerom i 1. etasje.
Badet i 1. etg er fra byggeår med flislagt gulv med varme og flislagte vegger og himling i malt slett flate med downlights. Det er innredet med vegghengt servantskap med skuffer og speilskap med overlys fra 2024. Det er dusjkabinett i hjørnet fra 2018 med dusjbatteri tilkoblet hånddusj samt badekar og gulvstående toalett.
Vaskerommet har flislagt gulv med varme og veggflater i slette flater, vegghengt utslagsvask og opplegg for vaskemaskin.
Bad 1 i underetasjen: Er fra byggeår og har gulvflate belagt med malte fliser og gulvvarme, og veggflater med malte fliser. Innredet med vegghengt servantskap med skuffer og speil over servant. Alt fra 2024. Dusjkabinett i hjørnet med dusjbatteri tilkoblet hånddusj i 2024 og gulvstående toalett fra 2024.
Bad 2 i underetasjen: Er fra byggeår med sveiset våtromsbelegg med baderomsfliser i vinyl lagt oppå. Veggflatene er lagt med panelplater og våtromsmaling fra 2024. Det er innredet med vegghengt servantskap med skuffer og sprutsikker plate på vegg bak servant. All innredning er fra 2024. Dusjkabinett i hjørnet med dusjbatteri tilkoblet hånddusj i 2024 og gulvstående toalett fra 2024, samt. opplegg for vaskemaskin og tørketrommel.
Soverom:
Boligen har 6 soverom, hvorav 2 i loftsetasjen, 1 i hovedetasjen og 3 i underetasjen. Alle soverommene har plass til enten dobbeltseng/enkeltseng og tilhørende kommode/garderobeløsning. Det ene soverommet i underetasjen er i dag innredet som gang/bod, men dog. godkjent som soverom.
Uteområde:
Boligens uteområde består av flere sammenhengende terrasser i 1. etasje og platting tilhørende underetasjen. På den største terrassen er det i henhold til selger sol fra morgen til kveld. På platting ved inngangspartiet i underetasjen er det en flott uteplass under tak. Bak huset er det naturtomt hvor man kan finne både blåbær og tyttebær. Tomten er ellers pent opparbeidet med stauder og busker.
Eiendommen er per dags dato ikke leid ut, men det er mulig å stenge av en dør og etablere en utleiedel med kjøkkenkrok, stue, bad og enten 1 eller 2 soverom ut ifra hva som er ønskelig.
Løsøre og tilbehør
Vi viser til liste fra Norges Eiendomsmeglerforbund som gjelder fra 01.01.2020 angående løsøre og tilbehør.
Følgende medfølger ikke eiendommen:
- Lysekrone i stue, pendellampe over spisestue og lysekrone over kjøkkenbord.
- Hvite skap på 2 av soverommene i u.etg medfølger ikke (ikke klesskap)
- Store, spesiallamper i garasjen
Følgende medfølger:
- Lameller i stue
- Hyller på vaskerom
- Hylle i rom med varmtvannsbereder
- Stor, løs klesgarderobe i u.etg
- Løs innredning i plast i bod i u.etg
- Løs innredning i plast i bod ute
Oppvarming
Boligen oppvarmes med gass og elektrisitet. Det er montert varmepumpe i stue og det er gasspeis i stuen og på kjøkkenet i 1. etasje. Gulvvarme i ny del i 1. etasje, vaskerom og hovedbad samt. på bad og bad/vaskerom i underetasjen. Det er varmefolie i kjellerstue og hovedsoverom i underetasjen. Ellers oppvarming med panelovner. Dersom beboelsesrom ikke har vegg- eller fastmonterte varmekilder ved visning, følger dette heller ikke med.
Ferdigattest/brukstillatelse
Det ble gitt ferdigattest på boligen den 02.12.2010. Denne gjaldt ikke innredning av loft og innredning av deler av underetasjen eller påbygget.
Det ble gitt ferdigattest på påbygget stue den 05.07.2018.
Det ble gitt ferdigattest på bruksendring av loft og resten av underetasjen den 03.11.2025.
Det foreligger ikke ferdigattest på garasjen, men det foreligger godkjente byggetegninger på denne datert 18.05.2003. Denne er bygget noen kvm større enn byggemelding og virker ut ifra kart til å ligge på eller litt over tomtegrense ut mot vei.
Utebod med takoverbygg ved siden av inngangspartiet er ikke søkt eller godkjent av Asker kommune. Konsekvensen ved søknad kan være at dette bygget ikke godkjennes og ytterste konsekvens er da riving.
Kjøper overtar alt ansvar, kostnad og risiko for overnevnte videre.
Tinglyste heftelser og rettigheter
Eiendommen overdras fri for pengeheftelser.
Det er ingen tinglyste servitutter på eiendommen.
Eventuell adgang til utleie
Den del av boligen som er innredet som en hybel er lovlig for beboelse, men er ikke godkjent som separat boenhet av kommunen.
Det gjøres oppmerksom på at det er krav til forsvarlige radonnivåer ved utleie. Det er gjennomført radonmåling i 2004 med lovlige resultater. Det er også montert 2 radonvifter, en i hver ende av huset.
Beliggenhet og tomteforhold
Beliggenhet og tomteforhold
Beliggenhet
Eiendommen ligger attraktivt til på Slingrebekk i meget barnevennlige og rolige omgivelser. Solrikt fra morgen til kveld. Slingrebekk består primært av frittliggende eneboliger og noen rekkehus. Perfekt for barnefamilien med fotballbane på feltet som blir til skøytebane på vinteren, samt lekeplass og barnehage i umiddelbar nærhet. Tursti rett på utsiden av eiendommen som er et flott startpunkt for mange fine skogsturer i marka både sommer som vinter. Oppkjørt skiløype starter ved barnehagen.
Ca. 15 minutters gange til Sætre sentrum med båthavna og Oslofjorden i umiddelbar nærhet. Her finner du et hyggelig uteliv med blant annet serveringssteder, cafe, apotek, klesbutikker, skobutikk, matforretninger, bank med mer. Det er yrende liv i Sætre sommerstid med aktivt båt- og badeliv. Det er også flotte turområder sommer som vinter med oppkjørte skiløyper vinterstid og kyststi på sommeren. I Sætre sentrum finner du også den flotte bystranda og i utkanten av sentrum ligger idylliske Skogsborg, som er et perfekt sted for soling og bading på varme sommerdager.
Bussholdeplass med bussforbindelse og ekspressavganger retning Oslo fra Sætre sentrum. Det er også bussforbindelser til Drammen, Lier, Verket og Slemmestad. Ca. 15 minutters kjøring til Røyken sentrum med togstasjon.
Adkomst
Veibeskrivelse Se Google maps - det er enkelt å finne frem i kartet. - Det vil bli skiltet med Krogsveen visningsskilt ved fellesvisninger.
Barnehager, skoler og fritid
Sætre barne- og ungdomsskole. Flere private og offentlige barnehager i nærområde.
Dersom skole- og barnehagetilbud er av betydning for kjøpet, må interessenter selv sjekke med kommunen/barnehager.
Informasjon om tilhørende skolekretser er hentet fra Prognosesenteret som dataleverandør, og tilhørigheten kan årlig endres av kommunen. Dersom skole- og barnehagetilbud er av betydning for kjøpet, ber vi om at det rettes en særskilt henvendelse til kommunen/bydelsadministrasjonen for oppdatert informasjon.
Beskrivelse av tomt
Enebolig med garasje og bod beliggende i Sætre i Asker Kommune. Skrånede tomt opparbeidet med gruset innkjøring og gårdsplass, forstøtningsmurer, trapper, plattinger/terrasser og diverse beplantning.
Parkering
Parkering i dobbel garasje. Ellers plass til flere biler på gruset gårdsplass.
Vei, vann og avløp
Eiendommen har adkomst via privat velvei med felles vedlikeholdsansvar.
Eiendommen er tilknyttet kommunalt ledningsnett via private stikkledninger. Eier er selv ansvarlig for private stikkledninger til boligen.
Regulerings-og arealplaner
Eiendommen er regulert til 945kvm Nåværende boligbebyggelse i henhold til kommuneplan for Asker datert 13.06.2023.
Eiendommen er regulert til 944 kvm boliger og 1kvm gang-/sykkelvei i henhold til reguleringsplan Slingrebekk med tilhørende reguleringsbestemmelser datert 25.05.1999.
Utsnitt av plan med tilhørende bestemmelser kan fås ved henvendelse til megler.
Økonomi
Økonomi
Kommunale utgifter
Kommunale avgifter var kr 15 322,- for 2025. I dette inngår gebyr for vann, avløp, renovasjon og feiing/tilsyn.
Nåværende eier har et strømforbruk som tilsvarer ca. kr 18.600- pr. år.
Boligen har en årlig forsikringspremie på kr 8 326,- for boligen og kr 523,- for garasjen.
Velavgift er kr 1000 pr. år.
Boligen er tilknyttet Altibox/viken fiber som leverandør av fiber for internett og har avgift på kr 1 408- pr. mnd, hastighet; 500/500. Tv-tuner/dekoder medfølger ikke. Selger sier og sin avtale og kjøper må evt bestille egen avtale til overtagelse.
Boligen er tilknyttet Verisure alarmselskap som koster kr 10 428 pr. år. Selger sier opp sin avtale og kjøper må evt bestille eget abbonement.
Det betales gass etter forbruk. Eiendommen er tilkoblet gass via felles anlegg på feltet. Avtalen er med Norsk Gassnett AS
Utgiftene er basert på nåværende eiers forbruk og avtaler.
Selger har avtalt Norgespris på strøm på eiendommen for perioden d.d-31.12.2026, og denne er pt på kr 50 øre inkl mva. Nettleie, avgifter og påslag fra kraftleverandøren kommer i tillegg. Er det fjernvarme vil det også komme kostnader i tillegg.
Denne avtalen vil følge eiendommen i den avtalte perioden.
Formuesverdi
Formuesverdi for 2024 var kr 1 550 486,- ifølge selgers skattemelding/Skatteetaten. Beløpet forutsetter at eier bor fast i boligen (primærbolig).
Ved eventuell øvrig bruk av eiendommen (f.eks. fritidsbolig, pendlerbolig, utleieobjekt) var formuesverdien for 2023 kr 6 201 942,-.
Formuesverdien justeres normalt årlig.
Fra 2026 har Stortinget vedtatt en oppdatert modell for beregning av formuesverdi for primærbolig, så avvik kan forekomme.
For mer informasjon se skatteetaten.no
Eiendomsskatt
Det er p.t ikke vedtatt eiendomsskatt for eiendommer i kommunen.
Omkostninger
7 990 000,00 Prisantydning
Omkostninger
199 750,00 Dokumentavgift til staten (2,5% av kjøpesum)
19 900,00 Gjensidige Boligkjøperpakke (valgfri)* (valgfritt)
545,00 Tinglysing panterettsdokument
545,00 Tinglysing skjøte
--------------------------------------------------------
200 840,00 Omkostninger totalt (uten Gjensidige Boligkjøperpakke (valgfri))
220 740,00 Omkostninger totalt (med Gjensidige Boligkjøperpakke (valgfri))
--------------------------------------------------------
8 190 840,00 Totalpris inkl. omkostninger
8 210 740,00 Totalpris inkl. omkostninger (med Gjensidige Boligkjøperpakke (valgfri))
--------------------------------------------------------
Totalpris inkl. omkostninger forutsetter kjøp til prisantydning.
Det tas forbehold om endringer i avgifter og gebyrer.
Tilbud om lånefinansiering
Megler formidler gjerne kontakt med rådgiver hos vår samarbeidspartner BN Bank. De har konkurransedyktige betingelser samt rask og løsningsorientert behandling av din lånesøknad. Krogsveen mottar et honorar dersom lån opprettes.
Betalingsbetingelser
Kjøpesum inkludert omkostninger, samt pantedokument tilknyttet eventuelt lån, skal være disponibelt hos megler 2 virkedager før overtagelsen.
Annen viktig informasjon
Annen viktig informasjon
Eier
Anne Sofie Moltzau Schmidt og Steven Peder Schmidt
Overtakelse
Etter nærmere avtale.
Velforening
Boligen er tilknyttet Slingrebekk Velforening.
Boligselgerforsikring
Selger har i forbindelse med salget tegnet boligselgerforsikring levert av Gjensidige.
Boligselgerforsikringen dekker selgers ansvar etter avhendingsloven begrenset oppad til kr 14 millioner. Dersom kjøper oppdager forhold ved eiendommen som hen mener utgjør en mangel ved eiendommen, vil Gjensidige behandle reklamasjonen på vegne av selger. Forsikringsvilkår kan fås ved henvendelse til megler.
Vedlagt salgsoppgaven følger selgers egenerklæringsskjema og tilstandsrapport. Interessenter må sette seg inn i dokumentene før bud inngis.
Boligkjøperforsikring
Innen kontraktsmøtet må kjøper ta stilling til om det ønskes å bestille Boligkjøperpakken gjennom Gjensidige. I denne gunstige pakken er boligen ferdig forsikret og inkluderer rettshjelpsforsikring, også kalt Boligkjøperforsikring. Rettshjelpsforsikring gir trygghet og tilgang på profesjonell juridisk hjelp dersom det oppdages uventede feil eller mangler det første året etter overtagelse. Forsikringsselskapet behandler i så fall ethvert mangelskrav kjøper måtte ha overfor selger.
Boligkjøperpakken inkluderer bygningsforsikring for hus og hytte, innboforsikring, flytteforsikring og dobbel rentedekning - i situasjoner hvor kjøper ikke får solgt nåværende primærbolig.
Kjøper mottar ingen særskilt faktura for Boligkjøperpakken da kostnaden det første året legges til kjøpesummen for boligen. Det gjøres oppmerksom på Krogsveen mottar et honorar for denne formidlingen.
Produktark for Boligkjøperpakken ligger vedlagt i salgsoppgaven.
Dersom ikke boligkjøperpakke ønskes kan kun rettshjelpsforsikring, også kalt boligkjøperforsikring, tegnes særskilt via megler. Rettshjelpsforsikringen varer i 5 år fra overtagelse og leveres gjennom Gjensidige. Ta kontakt med megler for ytterligere informasjon.
Selskap og privatpersoner som driver med kjøp/salg/utvikling som ledd i egen næringsvirksomhet kan ikke tegne boligkjøperpakke eller rettshjelpsforsikring.
Budgivning
Forbrukerinformasjon om budgivning er vedlagt denne salgsoppgaven og er også på vår hjemmeside Krogsveen.no. Alle bud og budforhøyelser må inngis skriftlig. I tillegg må legitimasjon være fremlagt sammen med signatur fra budgiver.
Vi oppfordrer til å gi bud elektronisk via GI BUD-knappen på eiendommens hjemmeside på Krogsveen.no. Da vil samtlige vilkår bli oppfylt.
Eventuelle forhøyelser eller endringer av budet kan bekreftes pr SMS eller på e-post. Vi oppfordrer alltid til å kontakte megler pr. telefon i tillegg da forsinkelser i SMS og e-post kan forekomme.
For at budene skal kunne bli behandlet og videreformidlet skriftlig til alle involverte parter, må alle bud ha en tilstrekkelig lang akseptfrist, jf. eiendomsmeglingsforskriften § 6-3.
Selger må også skriftlig akseptere budet før aksept kan formidles til budgiver. Akseptfrist bør derfor være på minimum 30 minutter, og budforhøyelser må derfor skje i god tid før fristens utløp.
Bud i forbrukerforhold kan uansett ikke settes med kortere frist enn kl. 12.00 første virkedag etter siste annonserte visning. I tillegg kan ikke budet ha forbehold om at det skal holdes hemmelig ovenfor øvrige interessenter. Megler har iht lov om eiendomsmegling ikke anledning til å videreformidle disse budene, og de vil dermed heller ikke bli journalført.
Etter at eiendommen er solgt vil kjøper og selger få tilsendt budjournal. Øvrige budgivere kan få utlevert kopi av budjournalen i anonymisert form.
Hvitvaskingsreglene
I henhold til lov om hvitvasking og terrorfinansiering har megler plikt til å gjennomføre kontrolltiltak overfor kunder, herunder fullmektiger. Dette innebærer bl.a. å bekrefte kunders og reelle rettighetshaveres identitet på bakgrunn av fremvist gyldig legitimasjon eller på annen godkjent måte, samt å innhente opplysninger om kundeforholdets formål og tilsiktede art.
Dersom slike kundetiltak ikke kan gjennomføres, kan megler ikke etablere kundeforholdet eller utføre transaksjonen.
Hvis kjøper ikke bidrar til gjennomføring av kundekontrollen og dette fører til at transaksjonen blir forsinket eller ikke kan gjennomføres, vil dette ansees som mislighold av avtalen og gi selger rettigheter etter avhendingslova kapittel 5. I tilfeller der selger ikke bidrar til gjennomføring av løpende kundekontroll underveis i oppdraget, er det selger som misligholder sine forpliktelser etter avtalen og gi kjøper rettigheter etter avhendingslovens kapittel 4. Partene er selv ansvarlige for eventuelle kostnader og ansvar dette kan medføre. Eiendomsmegleren eller eiendomsmeglingsforetaket kan ikke holdes ansvarlig for de konsekvenser dette vil kunne få for partene eller andre som har interesser i eiendomshandelen.
Kjøper oppfordres til å innbetale kjøpesummen som ikke kommer fra låneinstitusjon i én samlet innbetaling fra egen konto i norsk bank. Megler har plikt til å melde fra til Økokrim om eiendomshandler som fremstår som mistenkelige. Melding sendes Økokrim uten at partene varsles.
Personopplysningsloven
I henhold til personopplysningsloven gjør vi oppmerksom på at interessenter kan bli registrert for videre oppfølging.
Lovanvendelse
Generelle bestemmelser
Salgsoppgaven er basert på de opplysningene selger har gitt til megler, den bygningssakyndiges tilstandsrapport, samt opplysninger innhentet fra kommunen, Kartverket og andre tilgjengelige kilder. Det er viktig at kjøper setter seg grundig inn i alle salgsdokumentene, herunder salgsoppgave, tilstandsrapport og selgers egenerklæring. Kjøper anses kjent med forhold som er tydelig beskrevet i salgsdokumentene, og slike forhold kan ikke påberopes som mangler. Dette gjelder uavhengig av om kjøper har lest dokumentene. Alle interessenter oppfordres til å undersøke eiendommen nøye, gjerne sammen med fagkyndig før bud inngis. Kjøper som velger å kjøpe usett kan ikke gjøre gjeldende som mangel noe han burde blitt kjent med ved undersøkelsen.
Dersom det er behov for avklaringer, anbefaler vi at interessenter rådfører seg med eiendomsmegler eller egne rådgivere før det legges inn bud.
En bolig som har blitt brukt i en viss tid, har vanligvis blitt utsatt for slitasje og skader kan ha oppstått. Slik bruksslitasje må kjøper regne med, og det kan avdekkes enkelte forhold etter overtakelse som nødvendiggjør utbedringer. Normal slitasje og skader som nødvendiggjør utbedring, er innenfor hva kjøper må forvente og vil ikke utgjøre en mangel.
Kjøper og selgers rettigheter og plikter reguleres av avtalen mellom partene, samt informasjonen som har vært tilgjengelig for kjøperen i forbindelse med handelen. Avtalen utfylles av avhendingsloven, og det gjelder ulike avtalevilkår avhengig av om kjøper er forbrukerkjøper eller ikke. Dette er nærmere beskrevet nedenfor.
På grunn av ulike avtalevilkår kan selger vurdere bud fra en som ikke er forbruker, ulikt fra en forbrukers bud. Dersom kjøper ikke er forbruker, er selger sitt mulige mangelsansvar begrenset fordi eiendommen selges "som den er". Selger kan ikke ta «som den er»- forbehold overfor en forbrukerkjøper. Selv et lavere bud fra en som ikke er forbruker kan foretrekkes fordi begrensningen i mulig mangelsansvar kan ha egenverdi for selger. Selger står fritt til å forkaste eller akseptere ethvert bud, og er for eksempel ikke forpliktet til å akseptere høyeste bud.
Budgiver skal i budskjema avgi egenerklæring om budgiver er forbruker eller næringsdrivende/ person som hovedsakelig handler som ledd i næringsvirksomhet. Budgivere får informasjon dersom andre bud er inngitt av en som ikke er forbruker.
Forbrukerkjøp - definisjon
Med forbrukerkjøp menes kjøp av eiendom når kjøperen er en fysisk person som ikke hovedsakelig handler som ledd i næringsvirksomhet.
Forbruker – avtalevilkår
Eiendommen har en mangel dersom den ikke er i samsvar med kravene som følger av avtalen, eller det foreligger brudd på bestemmelsene i avhendingsloven §§ 3-2 til 3-8. Hvis eiendommen ikke er i samsvar med det kjøperen må kunne forvente ut ifra alder, type og synlig tilstand, kan det være grunnlag for mangelskrav. Det samme gjelder hvis det er holdt tilbake eller gitt uriktige opplysninger om eiendommen. Dette gjelder likevel bare dersom man kan gå ut ifra at det virket inn på avtalen at opplysningen ikke ble gitt eller at mangelskravet ikke blir rettet i tide på en tydelig måte.
Boligen kan ha en mangel etter avhendingsloven § 3-3 andre ledd, dersom det er avvik mellom opplyst og faktisk innvendig areal, forutsatt at avviket er på 2% eller mer og minimum 1 kvm.
Ved beregning av et eventuelt prisavslag eller erstatning må kjøper selv dekke tap/kostnader opptil et beløp på kr 10 000 (egenandel).
Ikke-forbruker (næringsdrivende) – definisjon
Hvis kjøper er en juridisk person, eller en fysisk person som hovedsakelig handler som ledd i næringsvirksomhet, vil kjøpet ikke anses som et forbrukerkjøp.
Ikke-forbruker – avtalevilkår
Eiendommen har en mangel dersom den ikke er i samsvar med kravene som følger av avtalen.
Eiendommen selges «som den er», og selgers ansvar utover det konkret avtalte er da begrenset etter avhendingsloven § 3-9, første ledd andre setning.
Avhendingsloven § 3-3 andre ledd fravikes, og hvorvidt boligens arealsvikt utgjør en mangel vurderes etter avhendingsloven § 3-8.
Informasjon om kjøpers undersøkelsesplikt, herunder oppfordringen om å undersøke eiendommen nøye, gjelder også for kjøpere som ikke anses som forbrukere.
Det forutsettes at hjemmel overføres til kjøper. Hvis kjøper ikke ønsker hjemmelsoverføring av eiendommen, må det tas forbehold om dette i budet.
Meglers vederlag
Meglers vederlag betales av selger og er avtalt til:
Fastpris: 75 000,-
Vederlag:
Kontroll av hjemmel og heftelser kr 2 900,00
Markedsføringspakke kr 28 250,00
Oppgjør kr 7 500,00
Tilrettelegging kr 17 000,00
Visninger pr stk kr 4 000,00
Utlegg:
Innhenting av offentlig opplysninger Asker kommune kr 4 351,00
Innhenting av offentlig opplysninger Asker kommune - legal pant kr 644,00
Tinglysing sikring kr 545,00
Andre utgifter:
Foto inkl drone kr 7 000,00
Tilstandsrapport Anticimex kommer i tillegg - 19.950,-
Valgfri boligselgerforsikring Buysure kommer evt i tillegg - 5,71 promille av prisantydning
Opplysninger om oppdraget
Oppdragsnummer 16-0046/25
Eiendomsmegler Krogsveen AS, avd. Røyken
Rortunet senter, Kirkealleen 1, 3470, SLEMMESTAD
950 007 613
Oppdragets KR-kode KR16.2546
Dato
Sist oppdatert: 30. april 2026 kl. 19:20
Dokumenter
Dokumenter
PDF – 1021 KB
PDF – 141 KB
PDF – 728 KB
PDF – 1 MB
PDF – 312 KB
PDF – 29 KB
PDF – 127 KB
PDF – 392 KB
Område
Legg til steder som er viktige for deg
Visning
For å delta på visning, ber vi om at du melder deg på innen 24 timer før visningen. .Da sikrer vi at du får nødvendig informasjon og at det er satt av tilstrekkelig med tid. Kontakt megler dersom annet tidspunkt ønskes. Husk å lese salgsoppgaven før visningen, så du stiller forberedt. NB. Visning utgår dersom det ikke er noen påmeldte.
Ønsker du kun å bli holdt orientert, kan du fra eiendommens hjemmeside få varsel om solgtpris, eller kontakte megler.
Lurer du på noe?
Unngå doble boligrenter
Vi tilbyr gunstig forsikring.
Vurderer du utleie?
Få et tilbud fra Utleie KrogsveenHva koster lånet?
Sjekk estimert lånekostnadVil du varsles om lignende boliger?
Ved å lagre ditt boligsøk hos oss får du beskjed når vi har en bolig som ligner denne, før den legges ut på markedet!

