Borgaråsen 25D
2 890 000 kr
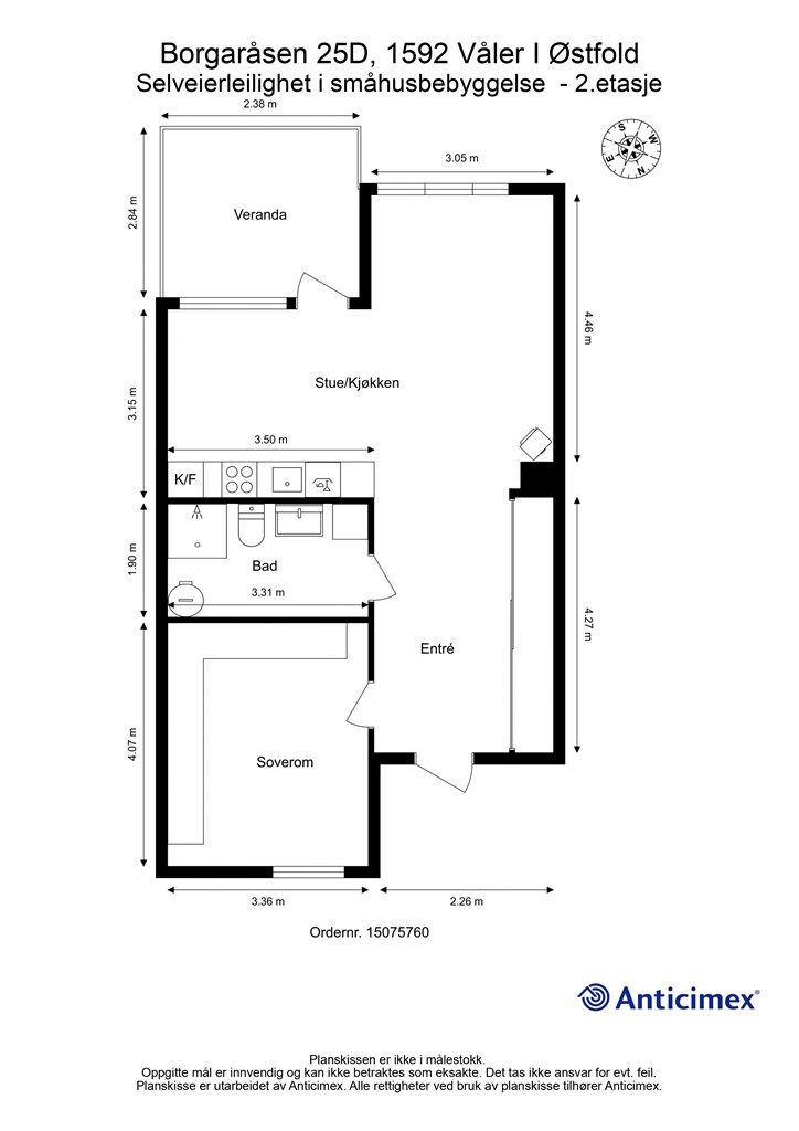
56 m²
1 soverom
Solgt

Presenteres av
Markus Holder JenssenFolkestadtoppen
Moderne 2-roms selveier fra 2023 med stor himlingshøyde. Gjenstående nybygg-garanti. Solfylt balkong med utsikt.
Prisantydning
2 890 000 krOmkostninger
83 290 krTotalpris
2 973 290 kr
Pris
Bruksareal
61 m²BRA-I (internt bruksareal)
56 m²BRA-E (eksternt bruksareal)
5 m²TBA (terrasse-balkongareal)
7 m²
Areal
Etasje
2Byggeår
2023Soverom
1 soveromBad
1 badType
EierleilighetEierform
EierseksjonFellesutgifter
2 396 kr
Nøkkelinfo
Unngå doble boligrenter
Vi tilbyr gunstig forsikring.
Vurderer du utleie?
Få et tilbud fra Utleie KrogsveenHva koster lånet?
Sjekk estimert lånekostnadBeskrivelse
Kort om eiendommen
Moderne to-roms selveier fra 2023 i rolige omgivelser på Folkestadtoppen
- Flytt rett inn og opplev gledene ved å bo i et moderne hjem som fortsatt oppleves som nytt!
- Omfattet av gjenstående nybygg-garanti på opprinnelig fem år fra ferdigstillelse
- Usjenert i andre etasje - uten direkte innsyn
- Balkong med langstrakt utsikt og sol store deler av dagen
- Meget effektiv romløsning med velholdte overflater og innredninger
- Stilfullt Sigdal-kjøkken med alle hvitevarer inkludert
- Ekstern sportsbod på ca. 5 kvm. på bakkeplan
- Fast biloppstillingsplass like utenfor, tilrettelagt for montering av billader
- Overbygget sykkelparkering internt i sameiet
- Umiddelbar tilgang til lysløype og turmuligheter i skog og mark
Område
Legg til steder som er viktige for deg
På flyttefot? Tenk kjøp og salg samtidig.
Få din egen rådgiver gjennom hele kjøps- og salgsprosessen. Det starter med en verdivurdering.
Unngå doble boligrenter
Vi tilbyr gunstig forsikring.
Vurderer du utleie?
Få et tilbud fra Utleie KrogsveenHva koster lånet?
Sjekk estimert lånekostnadVil du varsles om lignende boliger?
Ved å lagre ditt boligsøk hos oss får du beskjed når vi har en bolig som ligner denne, før den legges ut på markedet!
På flyttefot? Slik gjør vi det enklere for deg
Skreddersydd flyttepakke
Vi fikser håndverkere, vask, pakking, lagring og transport, og legger ut for utgiftene underveis.
Hjelp med både kjøp og salg
Hos oss har du din egen rådgiver gjennom hele kjøps- og salgsprosessen.
Hjelp til finansiering
Vårt samarbeid med BN Bank sikrer deg rask og løsningsorientert hjelp, til konkurransedyktige betingelser.

