Melumveien 37
13 950 000 kr
199 m²
4 soverom
Solgt

Familieidyll på en solrik kolle på Røa
Eksklusiv beliggenhet på Røa - stor og innholdsrik enebolig m/ vestvendt terrasse, utsikt og garasje |T-bane like ved!
Prisantydning
13 950 000 krOmkostninger
369 740 krTotalpris
14 319 740 kr
Pris
Bruksareal
214 m²BRA-I (internt bruksareal)
199 m²BRA-E (eksternt bruksareal)
15 m²TBA (terrasse-balkongareal)
21 m²
Areal
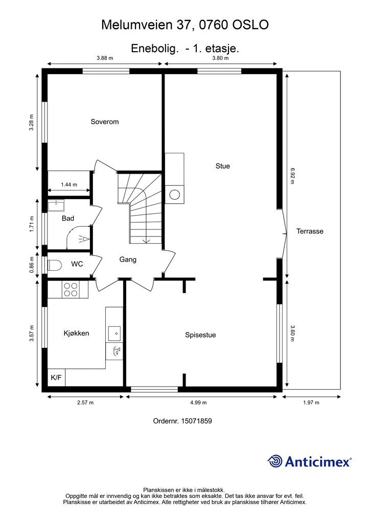
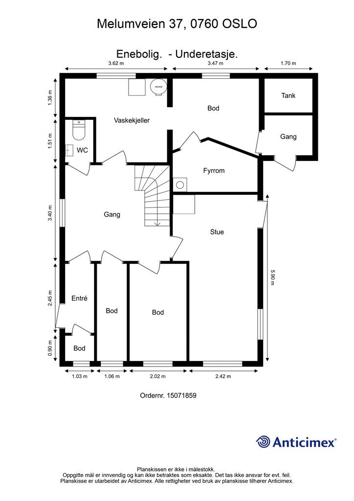
Etasje
3Byggeår
1941Soverom
4 soveromBad
1 badTomteareal
1 094 m² (eiet)Type
Enebolig - FrittliggendeEierform
EietFasiliteter
Garasje/P-plass og Balkong/TerrasseEnergimerke
Rød G
Nøkkelinfo
Unngå doble boligrenter
Vi tilbyr gunstig forsikring.
Vurderer du utleie?
Få et tilbud fra Utleie KrogsveenHva koster lånet?
Sjekk estimert lånekostnadBeskrivelse
Kort om eiendommen
Velkommen til Melumveien 37!
Sjarmerende enebolig over tre plan med en av Røas mest attraktive beliggenheter – solrik, tilbaketrukket og med vidstrakt utsikt. Eiendommen ligger høyt og stille i et veletablert villastrøk på beste vestkant, med gangavstand til T-bane, barnehager, skoler og alt Røa sentrum har å by på. En unik mulighet for deg som verdsetter beliggenhet, sol og potensial.
Høydepunkter:
• Stor og innholdsrik enebolig o/3 plan med god planløsning
• 4 soverom
• Vestvendt terrasse på 21 kvm med utsikt
• Rikelig med lagringsplass
• Frittliggende garasje på 15 kvm
• Høyt, solrikt og usjenert beliggende
• Eksklusive og rolige omgivelser nær marka
• Gangavstand til T-bane, buss og servicetilbud
• Kort vei til skoler, barnehager og idrettsanlegg
En sjelden mulighet – må oppleves
Område
Legg til steder som er viktige for deg
På flyttefot? Tenk kjøp og salg samtidig.
Få din egen rådgiver gjennom hele kjøps- og salgsprosessen. Det starter med en verdivurdering.
Unngå doble boligrenter
Vi tilbyr gunstig forsikring.
Vurderer du utleie?
Få et tilbud fra Utleie KrogsveenHva koster lånet?
Sjekk estimert lånekostnadVil du varsles om lignende boliger?
Ved å lagre ditt boligsøk hos oss får du beskjed når vi har en bolig som ligner denne, før den legges ut på markedet!

