Åråssvingen 10
3 590 000 kr
58 m²
1 soverom
Solgt

Åråsen
Innbydende 2-r leilighet m/ hems | Innglasset balkong | Garasjeplass | Kort vei til Lillestrøm. Perfekt førstegangskjøp!
Prisantydning
3 590 000 krAndel fellesgjeld
10 587 krOmkostninger
19 252 krTotalpris
3 619 839 kr
Pris
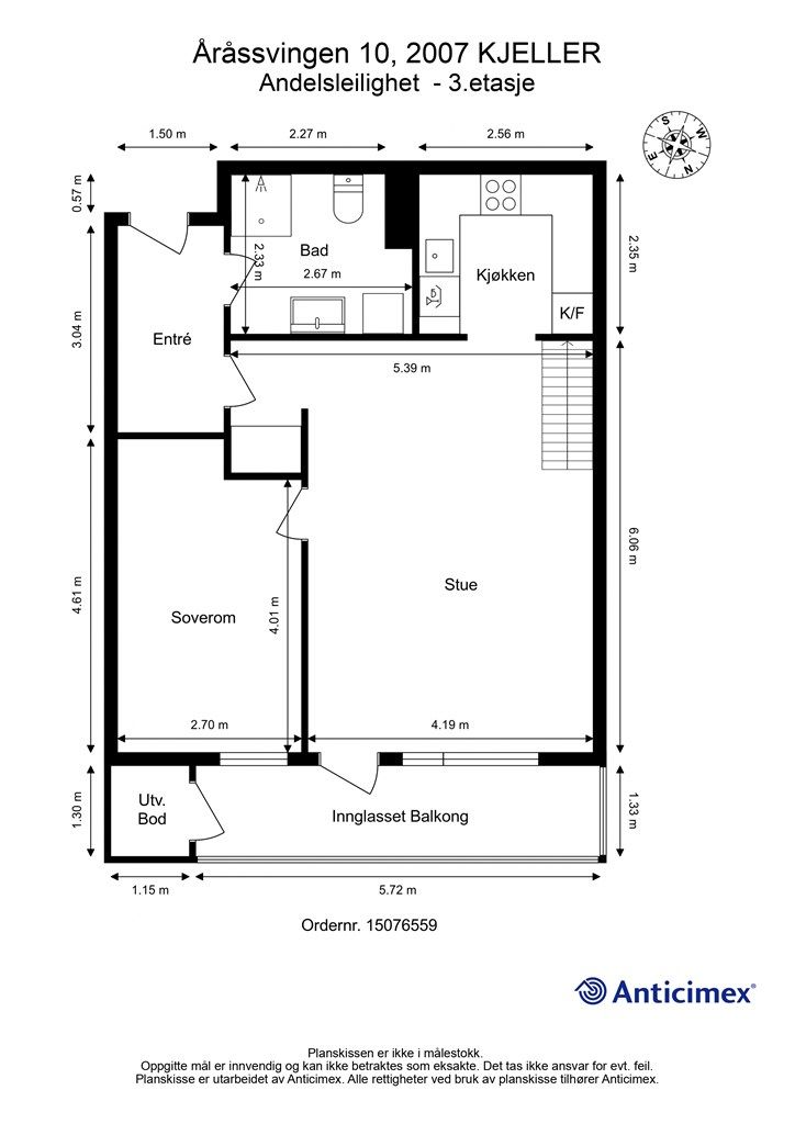
Bruksareal
68 m²BRA-I (internt bruksareal)
58 m²BRA-E (eksternt bruksareal)
2 m²
Areal
Etasje
3Byggeår
2001Soverom
1 soveromBad
1 badType
AndelsleilighetEierform
AndelFasiliteter
Garasje/P-plass og Balkong/TerrasseFellesutgifter
4 115 krEnergimerke
Rød D
Nøkkelinfo
Unngå doble boligrenter
Vi tilbyr gunstig forsikring.
Vurderer du utleie?
Få et tilbud fra Utleie KrogsveenHva koster lånet?
Sjekk estimert lånekostnadBeskrivelse
Kort om eiendommen
Velkommen til en praktisk og tiltalende 2-roms leilighet med hems med ca. 23 m² gulvareal, sentralt beliggende på Åråsen i Lillestrøm. Her får du en smart og funksjonell planløsning med god romfølelse og et ekstra bruksareal på hemsen som gir fleksibilitet. Boligen har gjennomgående lyse og slette overflater, og fremstår som velholdt.
- Praktisk bod på balkongen, og egen parkeringsplass med elbillader.
- Lave omkostninger.
- Delvis åpen stue-/kjøkkenløsning.
Med en beliggenhet som gir kort vei til både kollektivtransport, butikker, restauranter og flotte turområder, får du her et hjem som passer perfekt både for førstegangskjøpere, pendlere og deg som ønsker et lettstelt hjem med alt innen rekkevidde. Sentralt på Åråsen, kun ca. 400 meter til buss og kort vei til Lillestrøm sentrum!
Område
Legg til steder som er viktige for deg
På flyttefot? Tenk kjøp og salg samtidig.
Få din egen rådgiver gjennom hele kjøps- og salgsprosessen. Det starter med en verdivurdering.
Unngå doble boligrenter
Vi tilbyr gunstig forsikring.
Vurderer du utleie?
Få et tilbud fra Utleie KrogsveenHva koster lånet?
Sjekk estimert lånekostnadVil du varsles om lignende boliger?
Ved å lagre ditt boligsøk hos oss får du beskjed når vi har en bolig som ligner denne, før den legges ut på markedet!

