Kjetilskotvegen 505
2 950 000 kr
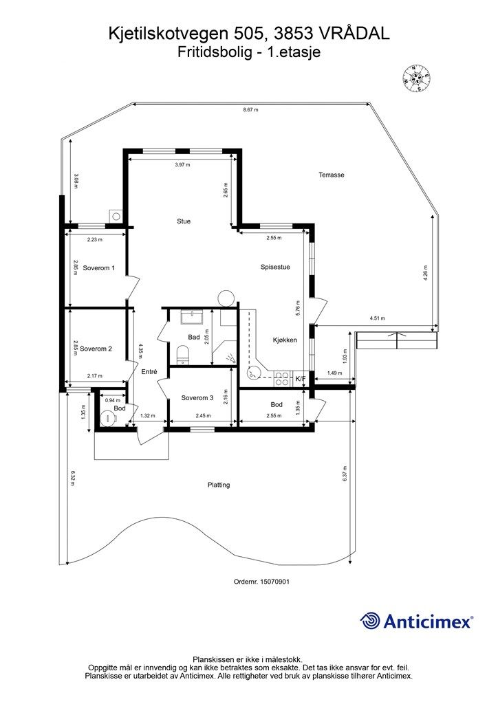
71 m²
3 soverom
Komplett salgsoppgave

Vrådal Panorama
Smakfull og tidløst innredet hytte -Fantastisk utsikt - Ski in/Ski out
Prisantydning
2 950 000 krOmkostninger
84 790 krTotalpris
3 034 790 kr
Pris
Bruksareal
75 m²BRA-I (internt bruksareal)
71 m²BRA-E (eksternt bruksareal)
4 m²TBA (terrasse-balkongareal)
109 m²
Areal
Etasje
1Byggeår
2010Soverom
3 soveromBad
1 badType
Fritidseiendom på fjelletEierform
EierseksjonFasiliteter
Balkong/TerrasseEnergimerke
Oransje C
Nøkkelinfo
Vurderer du utleie?
Få et tilbud fra Utleie KrogsveenHva koster lånet?
Sjekk estimert lånekostnadBeskrivelse
Kort om eiendommen
Velkommen til Kjetilskotvegen 505 på toppen av Vrådal Panorama!
Dette er stilren og lettstelt duohytte med flott beliggenhet høyt i terrenget. Her får du nydelig panoramautsikt mot Vrådal og omkringliggende fjell samt solrike uteplasser. Hytten er smakfullt innredet i moderne stil og har en smart planløsning med 3 soverom, bad, åpen stue- og kjøkkenløsning, hems og utebod. Et usjenert fristed med ro, rekreasjon og aktiviteter året rundt.
Høydepunkter:
- Gode uteleimuligheter
- Fantastisk utsikt mot Vrådal og fjellene
- Sol fra morgen til kveld på stor terrasse
- 3 soverom + hems til overnatting og lagring
- Kort vei til slalåmløypa og Utsikten spisested
- Langrennsløyper like utenfor hytteveggen
- Lekeplass
- Sauna og bademulighet ca.200m unna
- Helårsaktiviteter i vakre omgivelser
Innhold og byggemåte
Innhold og byggemåte
Eiendommen
Kjetilskotvegen 505, 3853 VRÅDAL
Kommunenummer 4028, gårdsnummer 1, bruksnummer 222, seksjonsnummer 2, ideell andel 1/1
Innhold
Totalt bruksareal BRA: 75 kvm
BRA-i:
1. etasje 71 kvm: Entre, stue, kjøkken, spisestue, bad, bod og tre soverom.
BRA-e:
1. etasje 4 kvm: Bod med utvendig adkomst.
Åpent areal:
1. etasje 109 kvm: Platting (49 kvm) terrasse (60 kvm).
Vegg mellom bod og hoveddel er skjønnsmessig oppmålt. Avvik kan forekomme.
Platting grenser til fjell og derfor skjønnsmessig oppmålt. Avvik kan forekomme
På godkjente byggetegninger er det ikke inntegnet bod med utvendig adkomst. Fasadeendring kan være et søknadspliktig tiltak. Det er ikke kjent om tiltaket er omsøkt/godkjent, og det er heller ikke tatt stilling til om dette lar seg gjøre.
Vedlagte plantegninger er ikke målbare. De oppgitte arealer er hentet fra rapport med befaringsdato 13.05.2025 utført av Anticimex Sandefjord AS. Arealene er beregnet og rom er definert etter dagens faktiske bruk, uavhengig av hva som er godkjent av bygningsmyndighetene.
Byggemåte
Selger har fått utarbeidet en tilstandsrapport, dvs. en teknisk gjennomgang av boligen hvor eventuelle avvik, risiko for kjøper og prisoverslag for hva som bør gjøres av oppgradering, er skissert. Se særskilt TGIU (tilstandsgrad ikke undersøkt), samt TG2 og TG3 som viser hva som er avvik fra boligens normale slitasje, alder og type, eller som bør/må utbedres. Rapporten og selgers egenerklæring er en del av salgsoppgaven og må leses nøye før bud inngis. Kjøper overtar ansvaret for de opplysninger som fremkommer av salgsdokumentasjonen, og kan ikke gjøre gjeldende som mangel noe som burde vært kjent eller som ikke kan anses å ha betydning for avtalen.
Fritidsboligen er oppført i 2010 og er iflg tilstandsrapporten oppført på støpt betong mot grunn. Plate på mark. Yttervegger i laftet tømmer. Tak i trekonstruksjon. Saltak tekket med torv. Vinduer og terrassedør med to-lags glass. Ytterdør i trekonstruksjon med glassfelt.
Sammendrag av boligens tilstandsgrad:
TG1 : 60 % | TG2 : 27 % | TG3 : 0 % | TGIU : 13 %
Selger har fått utarbeidet en tilstandsrapport for eiendommen. Rapporten er en teknisk gjennomgang av boligen og angir eventuelle byggetekniske avvik. I rapportens sammendrag fremkommer det som takstmannen mener kjøper må være særskilt oppmerksom på utover normal elde og slitasje,
herunder TG2:
* Bad: Tilluftsspalte er ikke etablert. Tettesjiktet har en alder som tilsier at restlevetiden er usikker, stedvis motfall på gulvflater utenfor dusjsonen, det kan ikke verifiseres at det er etablert membranoppkant.
* Kjøkken: Ventilator bør skiftes ut. Selger har kjøpt inn ny ventilator
* Det registreres bomlyd (tegn til hulrom) under enkelte gulvfliser. Det er observert sprekker og løse flisfuger i entre.
* Innerdører har kontakt med dørterskel/dørkarm.
* Trappen har ingen håndløpere. Trappen har åpninger på mer enn 0,10 meter. Trappen er bratt.
* Varmtvannsberederen har påløpt alder.
* Elektrisk anlegg uten dokumentasjon.
* Fasader har behov for overflatebehandling.
* Ytterdør og terrassedør har behov for overflatebehandling.
* Torvhaldstokker bærer preg av alder.
* Det er observert noe skjevheter i konstruksjonen. Svakheter i innfesting av rekkverk. Det er observert råteskader i enkelte søyler. Deler av terrassen bærer preg av ufagmessig utførelse.
* Det er ikke etablert rekkverk på forstøtningsmur.
TGIU:
* Gjennomføring tilknyttet avtrekksvifte er ikke undersøkt grunnet manglende tilkomst.
* Avrenning er ikke undersøkt. Vann ikke tilkoblet på befaringsdagen.
* Avløpsrørene er skjult og eventuell stakeluke er ikke lokalisert.
* Takkonstruksjonen er lukket, inspeksjon ikke mulig.
* Taket er tekket med torv. Undertaktekking er ikke inspisert.
* Fundamenter er skjult av konstruksjonen og derfor ikke tilfredsstillende inspisert.
* Byggegrunnens beskaffenhet er ukjent.
* Deler av terrengfallet kan ikke undersøkes på tilstrekkelig måte, grunnet plassering av terrasse.
Tilstandsrapporten følger vedlagt i salgsoppgaven for utfyllende informasjon. Interessenter må sette seg inn i denne før bud inngis.
Standard
Kjetilskotvegen 505 er en koselig og lettstelt hytte i duohyttestil, med en gjennomtenkt og praktisk planløsning. Hytta ble oppført i 2010 og fremstår som meget velholdt, med tidsriktige farge- og interiørvalg som gir en lun og hjemmekoselig atmosfære.
Hytta ligger flott til i terrenget, med svært gode solforhold. Den romslige terrassen gir flere lune soner – perfekt for både rolige morgenstunder og sosiale kvelder rundt bålpanna. Herfra nytes en storslått utsikt over Vrådal og omkringliggende fjellkjeder – et vakkert skue året rundt.
Inne er det akkurat så hjemmekoselig som en hytte skal være. Tradisjonell laft gir varme og karakter, mens kontrastfulle og moderne farger tilfører et lunt og oppdatert uttrykk. Planløsningen er effektiv og brukervennlig. Man ønskes velkommen inn i en romslig gang med god plass til oppbevaring av yttertøy. I tillegg finnes en tilliggende teknisk bod – praktisk for både lagring og tørking av utstyr etter tur. Badet er innredet med wc, servant i innredning med skuffeseksjon, dusjkabinett og opplegg for vaskemaskin.
Hytta inneholder tre soverom – to med familiekøyesenger og ett med dobbeltseng. Stue og kjøkken ligger i en åpen og sosial løsning, med god soneinndeling som gir naturlige overganger mellom spiseplass, sofakrok og kjøkken. De store vindusflatene og den åpne himlingen gir rikelig med dagslys og en luftig romfølelse. I stua er det montert vedovn som gir deilig varme på kjølige dager. Kjøkkenet er innredet med fronter i kirsebærutførelse og integrerte hvitevarer, som medfølger. Det gjøres oppmerksom på at hvitevarene er fra byggeåret, og det må påregnes noe slitasje. Ventilator bærer stedvis preg av alder. Fra kjøkkenet er det direkte utgang til den store terrassen – perfekt for solrike dager og avslappende stunder.
Hytta er utstyrt med Ring Hytta Varm, slik at du alltid kommer opp til en lun og varm hytte.
Til tross for at dette er en duohytte, oppleves eiendommen som svært privat. Uteområdene er godt skjermet, og det er minimalt innsyn. Man får virkelig følelsen av å ha fjellet for seg selv.
Løsøre og tilbehør
Hytten selges møblert med unntak av personlige eiendeler, bilder, noe inventar og løsøre.
Vi viser til liste fra Norges Eiendomsmeglerforbund som gjelder fra 01.01.2020 angående løsøre og tilbehør.
Oppvarming
Varmekabler i hele hytten (ikke utebod).
Vedovn i stuen.
For øvrig elektrisk.
Feiing og tilsyn er ikke utført siste fem årene.
Dersom beboelsesrom ikke har vegg- eller fastmonterte varmekilder ved visning følger dette heller ikke med.
Ferdigattest/brukstillatelse
Det foreligger ferdigattest på eiendommen datert 29.6.2010. Denne kan fås ved henvendelse til megler.
Kjøper overtar eiendommen slik den fremstår på visning.
Tinglyste heftelser og rettigheter
Eiendommen overdras fri for pengeheftelser.
Sameiet har legalpant for krav mot sameieren som følger av sameieforholdet iht. eierseksjonsloven § 31. Pantet er begrenset oppad til 2G, (G = folketrygdens grunnbeløp).
Det er ingen tinglyste servitutter på eiendommen.
Eventuell adgang til utleie
Fritidseiendommen har ikke separat utleiedel. Det vil normalt være anledning til utleie av hele eiendommen eller enkeltrom, såfremt utleiearealet er bygningsmessig godkjent for varig opphold.
Beliggenhet og tomteforhold
Beliggenhet og tomteforhold
Beliggenhet
Vrådal – Et helårsparadis midt i Telemarks vakre natur!
Velkommen til Vrådal – et idyllisk og attraktivt feriested som har vokst i popularitet de siste årene, og det med god grunn. Her får du ekte fjell- og naturopplevelser kombinert med et imponerende aktivitetstilbud, året rundt.
Når snøen smelter, våkner Vrådal til liv med et rikt tilbud for både store og små. Utforsk storslått natur og milevis med merkede turstier i fjellet – perfekt både for barnefamilier og erfarne turgåere. Besøk den flotte 9-hulls golfbanen, nyt lunsj på kaféen med utsikt over innsjøen eller ta turen ned til den vakre, opparbeidede badestranden med brygge, vannleker, trampoline og klatreborg. For de minste er det lekeplass med hoppepute, klatrestativ, husker, fotballøkke og en skateramp – alt innrammet av natur og trygghet. Båtplasser og mulighet for padling eller fisking i innsjøen gjør oppholdet komplett.
Når snøen legger seg som et teppe over landskapet, forvandles Vrådal til et vintereventyr. Her finner du et moderne skisenter med hele 18 nedfarter og 8 heiser, inkludert en komfortabel 8-seters stolheis.
For langrennsentusiaster venter oppkjørte løyper på fjellet – både korte og lengre runder. Like ved hytten.
Vrådal byr også på ski-in/ski-out-muligheter fra mange av hyttene, og med kafeteria og afterski rett ved bakken er det enkelt å kombinere aktivitet med hygge.
Unike opplevelser hele året
• Toppturer og storslått utsikt fra Vrådal Panorama
• Saunaopplevelse med bademulighet i fjellvann på toppen
• Sykling i fjellterreng og rolige grusveier
• Båtturer med veteranbåten MS Fram på Nisser
• Skianlegg og fjellturer rett utenfor døren
• Lokale spisesteder og dagligvare for enkel hyttehverdag
Enten du søker roen ved vannet, spenning i skibakken eller gode stunder rundt bålpanna, så finner du det i Vrådal. Dette er stedet for deg som ønsker noe mer enn bare en hytte – her får du et helårssted du vil trives.
Velkommen til Vrådal – her skapes ferieminner for livet.
Adkomst
Fra Vrådal sentrum følger man veien og skilting til Vrådal Panorama/alpinanlegg.
Kjør rett frem og opp mot fjellet.
Man må passere bom, og det belastes med kr 65,-. Det anbefales å betale innen 48 timer etter passering, for å slippe fakturagebyr. Dette gjøres på Norgesbom.no
Følg veien oppover mot toppen og hytten ligger på høyre hånd, like før man kommer til toppen.
Hytten er skiltet med Krogsveens Til Salgs skilt. Det vil være skiltet til felles visninger.
Vrådal ligger i hjertet av Telemark, ca. 3 timer fra Oslo, 2,5 time fra Tønsberg og Kristiansand, ca 2 timer fra
Sandefjord og Arendal. Det er fine veier både sommer og vinter.
Beskrivelse av tomt
Felles eiet tomt på 1 043 kvm. Naturtomt med noe gress, stein og belegningsstein ved inngangspartiet.
Tomten har en attraktiv beliggenhet, høyt og fritt i terrenget, med vidstrakt og imponerende utsikt – både fra uteområdene og inne i hytta. Her kan man nyte storslått utsikt og vakre soloppganger i rolige omgivelser. Hytta har solrike uteplasser på flere sider, noe som gir gode muligheter for å følge solen fra tidlig morgen til langt utpå ettermiddagen i sommersesongen.
Parkering
Parkering på gruset gårdsplass. Felles eiet av begge hytteeiere.
Denne hytten har parkert på siden og på fremsiden av hytteveggen sin.
Vei, vann og avløp
Eiendommen har adkomst via privat vei med felles vedlikeholdsansvar.
Eiendommen er tilknyttet kommunalt ledningsnett via private stikkledninger. Eier er selv ansvarlig for private stikkledninger til boligen.
Regulerings-og arealplaner
Eiendommen er regulert til fritidsformål i henhold til reguleringsplan "Vrådal Skisenter - felt B10" datert 25.5.2006 senere endret i 2012 og 2020.
Utsnitt av plan med tilhørende bestemmelser kan fås ved henvendelse til megler
Økonomi
Økonomi
Kommunale utgifter
Kommunale avgifter er kr 13 988,- for inneværende år. I dette inngår gebyr for vann, avløp, renovasjon og feiing/tilsyn.
Nåværende eier har et strømforbruk som tilsvarer på ca 8000 kwh. pr. år.
Boligen har en årlig forsikringspremie på kr XXX.
Boligen er tilknyttet kabel-tv og internett. Tv-tuner/dekoder medfølger ikke.
Privat veiavgift til Vrådal Panorama betales årlig, med kr 5.903,- for 2023. Dette inkluderer passering av bommen for to biler med de retningslinjer som følger leverandøren. Denne indeksreguleres.
Brøyting av privat gårdsplass/hyttetun etter egne satser. Dette bestilles i app. Se vedlagte prisoverslag.
Utgiftene er basert på nåværende eiers forbruk og avtaler.
Brannvesenet er pålagt å føre tilsyn med, og å feie pipeløp i alle fritidseiendommer. Det vil kunne medføre kostnader for kjøper til utbedring av evt. fremtidige pålegg og anmerkninger.
Formuesverdi
Formuesverdi for 2023 var kr 713 625,- ifølge skatteetaten.
Omkostninger
2 950 000,00 Prisantydning
Omkostninger
73 750,00 Dokumentavgift til staten (2,5% av kjøpesum)
9 950,00 Gjensidige Boligkjøperpakke (valgfri)
545,00 Tinglysing panterettsdokument
545,00 Tinglysing skjøte
--------------------------------------------------------
84 790,00 Omkostninger totalt
--------------------------------------------------------
3 034 790,00 Totalpris inkl. omkostninger
--------------------------------------------------------
Betalingsbetingelser
Kjøpesum inkludert omkostninger, samt pantedokument tilknyttet eventuelt lån, skal være disponibelt hos megler 2 virkedager før overtagelsen.
Annen viktig informasjon
Annen viktig informasjon
Eier
Thomas Raastad Karlsen og Sri Vathani Raastad Karlsen
Konsesjon
Eiendommen er ikke konsesjonspliktig, men det er boplikt i Kviteseid kommune. For at eiendommen skal kunne overskjøtes må kjøper signere på egenerklæring om konsesjonsfrihet om at boplikten ikke gjelder for denne eiendommen.
Overtakelse
Etter nærmere avtale.
Boligselgerforsikring
Selger har i forbindelse med salget tegnet boligselgerforsikring hos Anticimex. Vedlagt salgsoppgaven følger selgers egenerklæringsskjema og tilstandsrapport. Interessenter må sette seg inn i dokumentene før bud inngis.
Boligselgerforsikringen dekker selgers ansvar etter avhendingsloven. Dersom kjøper oppdager forhold ved eiendommen som man mener utgjør en mangel ved eiendommen, vil Claims Handling AS behandle reklamasjonen på vegne av selger. Forsikringsvilkår kan fås ved henvendelse til megler.
Boligkjøperforsikring
Innen kontraktsmøtet må kjøper ta stilling til om det ønskes å bestille Boligkjøperpakken gjennom Gjensidige. I denne gunstige pakken er boligen ferdig forsikret og inkluderer rettshjelpsforsikring, også kalt Boligkjøperforsikring. Rettshjelpsforsikring gir trygghet og tilgang på profesjonell juridisk hjelp dersom det oppdages uventede feil eller mangler det første året etter overtagelse. Forsikringsselskapet behandler i så fall ethvert mangelskrav kjøper måtte ha overfor selger.
Boligkjøperpakken inkluderer bygningsforsikring for hus og hytte, innboforsikring, flytteforsikring og dobbel rentedekning - i situasjoner hvor kjøper ikke får solgt nåværende primærbolig.
Kjøper mottar ingen særskilt faktura for Boligkjøperpakken da kostnaden det første året legges til kjøpesummen for boligen. Det gjøres oppmerksom på Krogsveen mottar et honorar for denne formidlingen.
Produktark for Boligkjøperpakken ligger vedlagt i salgsoppgaven.
Dersom ikke boligkjøperpakke ønskes kan kun rettshjelpsforsikring, også kalt boligkjøperforsikring, tegnes særskilt via megler. Rettshjelpsforsikringen varer i 5 år fra overtagelse og leveres gjennom Gjensidige. Ta kontakt med megler for ytterligere informasjon.
Selskap og privatpersoner som driver med kjøp/salg/utvikling som ledd i egen næringsvirksomhet kan ikke tegne boligkjøperpakke eller rettshjelpsforsikring.
Budgivning
Forbrukerinformasjon om budgivning er vedlagt denne salgsoppgaven og er også på vår hjemmeside www.krogsveen.no. Alle bud og budforhøyelser må inngis skriftlig. I tillegg må legitimasjon være fremlagt sammen med signatur fra budgiver.
Vi oppfordrer til å gi bud elektronisk via GI BUD-knappen på eiendommens hjemmeside på Krogsveen.no. Da vil samtlige vilkår bli oppfylt.
Eventuelle forhøyelser eller endringer av budet kan bekreftes pr SMS eller på e-post. Vi oppfordrer alltid til å kontakte megler pr. telefon i tillegg da forsinkelser i SMS og e-post kan forekomme.
For at budene skal kunne bli behandlet og videreformidlet skriftlig til alle involverte parter, må alle bud ha en tilstrekkelig lang akseptfrist, jf. eiendomsmeglingsforskriften § 6-3.
Selger må også skriftlig akseptere budet før aksept kan formidles til budgiver. Akseptfrist bør derfor være på minimum 30 minutter, og budforhøyelser må derfor skje i god tid før fristens utløp.
Bud i forbrukerforhold kan uansett ikke settes med kortere frist enn kl. 12.00 første virkedag etter siste annonserte visning.
Etter at eiendommen er solgt vil kjøper og selger få tilsendt budjournal. Øvrige budgivere kan få utlevert kopi av budjournalen i anonymisert form.
Hvitvaskingsreglene
I henhold til lov om hvitvasking og terrorfinansiering har megler plikt til å gjennomføre kontrolltiltak overfor kunder, herunder fullmektiger. Dette innebærer bl.a. å bekrefte kunders og reelle rettighetshaveres identitet på bakgrunn av fremvist gyldig legitimasjon eller på annen godkjent måte, samt å innhente opplysninger om kundeforholdets formål og tilsiktede art.
Dersom slike kundetiltak ikke kan gjennomføres, kan megler ikke etablere kundeforholdet eller utføre transaksjonen.
Hvis kjøper ikke bidrar til gjennomføring av kundekontrollen og dette fører til at transaksjonen blir forsinket eller ikke kan gjennomføres, vil dette ansees som mislighold av avtalen og gi selger rettigheter etter avhendingslova kapittel 5. I tilfeller der selger ikke bidrar til gjennomføring av løpende kundekontroll underveis i oppdraget, er det selger som misligholder sine forpliktelser etter avtalen og gi kjøper rettigheter etter avhendingslovens kapittel 4. Partene er selv ansvarlige for eventuelle kostnader og ansvar dette kan medføre. Eiendomsmegleren eller eiendomsmeglingsforetaket kan ikke holdes ansvarlig for de konsekvenser dette vil kunne få for partene eller andre som har interesser i eiendomshandelen.
Kjøper oppfordres til å innbetale kjøpesummen som ikke kommer fra låneinstitusjon i én samlet innbetaling fra egen konto i norsk bank. Megler har plikt til å melde fra til Økokrim om eiendomshandler som fremstår som mistenkelige. Melding sendes Økokrim uten at partene varsles.
Personopplysningsloven
I henhold til personopplysningsloven gjør vi oppmerksom på at interessenter kan bli registrert for videre oppfølging.
Lovanvendelse
Generelle bestemmelser
Salgsoppgaven er basert på de opplysningene selger har gitt til megler, den bygningssakyndiges tilstandsrapport, samt opplysninger innhentet fra kommunen, Kartverket og andre tilgjengelige kilder. Det er viktig at kjøper setter seg grundig inn i alle salgsdokumentene, herunder salgsoppgave, tilstandsrapport og selgers egenerklæring. Kjøper anses kjent med forhold som er tydelig beskrevet i salgsdokumentene, og slike forhold kan ikke påberopes som mangler. Dette gjelder uavhengig av om kjøper har lest dokumentene. Alle interessenter oppfordres til å undersøke eiendommen nøye, gjerne sammen med fagkyndig før bud inngis. Kjøper som velger å kjøpe usett kan ikke gjøre gjeldende som mangel noe han burde blitt kjent med ved undersøkelsen.
Dersom det er behov for avklaringer, anbefaler vi at interessenter rådfører seg med eiendomsmegler eller egne rådgivere før det legges inn bud.
En bolig som har blitt brukt i en viss tid, har vanligvis blitt utsatt for slitasje og skader kan ha oppstått. Slik bruksslitasje må kjøper regne med, og det kan avdekkes enkelte forhold etter overtakelse som nødvendiggjør utbedringer. Normal slitasje og skader som nødvendiggjør utbedring, er innenfor hva kjøper må forvente og vil ikke utgjøre en mangel.
Kjøper og selgers rettigheter og plikter reguleres av avtalen mellom partene, samt informasjonen som har vært tilgjengelig for kjøperen i forbindelse med handelen. Avtalen utfylles av avhendingsloven, og det gjelder ulike avtalevilkår avhengig av om kjøper er forbrukerkjøper eller ikke. Dette er nærmere beskrevet nedenfor.
På grunn av ulike avtalevilkår kan selger vurdere bud fra en som ikke er forbruker, ulikt fra en forbrukers bud. Dersom kjøper ikke er forbruker, er selger sitt mulige mangelsansvar begrenset fordi eiendommen selges "som den er". Selger kan ikke ta «som den er»- forbehold overfor en forbrukerkjøper. Selv et lavere bud fra en som ikke er forbruker kan foretrekkes fordi begrensningen i mulig mangelsansvar kan ha egenverdi for selger. Selger står fritt til å forkaste eller akseptere ethvert bud, og er for eksempel ikke forpliktet til å akseptere høyeste bud.
Budgiver skal i budskjema avgi egenerklæring om budgiver er forbruker eller næringsdrivende/ person som hovedsakelig handler som ledd i næringsvirksomhet. Budgivere får informasjon dersom andre bud er inngitt av en som ikke er forbruker.
Forbrukerkjøp - definisjon
Med forbrukerkjøp menes kjøp av eiendom når kjøperen er en fysisk person som ikke hovedsakelig handler som ledd i næringsvirksomhet.
Forbruker – avtalevilkår
Eiendommen har en mangel dersom den ikke er i samsvar med kravene som følger av avtalen, eller det foreligger brudd på bestemmelsene i avhendingsloven §§ 3-2 til 3-8. Hvis eiendommen ikke er i samsvar med det kjøperen må kunne forvente ut ifra alder, type og synlig tilstand, kan det være grunnlag for mangelskrav. Det samme gjelder hvis det er holdt tilbake eller gitt uriktige opplysninger om eiendommen. Dette gjelder likevel bare dersom man kan gå ut ifra at det virket inn på avtalen at opplysningen ikke ble gitt eller at mangelskravet ikke blir rettet i tide på en tydelig måte.
Boligen kan ha en mangel etter avhendingsloven § 3-3 andre ledd, dersom det er avvik mellom opplyst og faktisk innvendig areal, forutsatt at avviket er på 2% eller mer og minimum 1 kvm.
Ved beregning av et eventuelt prisavslag eller erstatning må kjøper selv dekke tap/kostnader opptil et beløp på kr 10 000 (egenandel).
Ikke-forbruker (næringsdrivende) – definisjon
Hvis kjøper er en juridisk person, eller en fysisk person som hovedsakelig handler som ledd i næringsvirksomhet, vil kjøpet ikke anses som et forbrukerkjøp.
Ikke-forbruker – avtalevilkår
Eiendommen har en mangel dersom den ikke er i samsvar med kravene som følger av avtalen.
Eiendommen selges «som den er», og selgers ansvar utover det konkret avtalte er da begrenset etter avhendingsloven § 3-9, første ledd andre setning.
Avhendingsloven § 3-3 andre ledd fravikes, og hvorvidt boligens arealsvikt utgjør en mangel vurderes etter avhendingsloven § 3-8.
Informasjon om kjøpers undersøkelsesplikt, herunder oppfordringen om å undersøke eiendommen nøye, gjelder også for kjøpere som ikke anses som forbrukere.
Det forutsettes at hjemmel overføres til kjøper. Hvis kjøper ikke ønsker hjemmelsoverføring av eiendommen, må det tas forbehold om dette i budet.
Meglers vederlag
Meglers vederlag betales av selger og er avtalt til:
Vederlag: 1,5%av salgssummen inkl. eventuell fellesgjeld.
Minimumsvederlag: kr 45.000,-
Tilrettelegging fra kr 17.000,-
Oppgjør: kr 7.500,-
Markedspakke: kr 27.250,-
Visninger: kr 2.500,- pr. visning
Oppslag eiendomsregister: kr 2.900,-
Megler har i tillegg krav på dekning av utlegg.
Opplysninger om oppdraget
Oppdragsnummer 22-0169/25
Eiendomsmegler Krogsveen AS, avd. Sandefjord
Jernbanealléen 13, 3210, SANDEFJORD
950 007 613
Oppdragets KR-kode KR22.25169
Dato
Sist oppdatert: 30. april 2026 kl. 17:45
Dokumenter
Dokumenter
PDF – 854 KB
PDF – 200 KB
PDF – 680 KB
PDF – 956 KB
PDF – 312 KB
PDF – 29 KB
PDF – 127 KB
PDF – 392 KB
Område
Legg til steder som er viktige for deg
Visning
For å delta på visning må du melde deg på i forkant. Dette sikrer at du mottar viktig informasjon, og at vi kan sette av god tid til deg. Visning vil ikke bli avholdt dersom det ikke er noen påmeldte.
Dersom oppsatt tidspunkt ikke passer, ta kontakt med megler for å avtale en privatvisning.
Vi anbefaler også at du leser salgsoppgaven før visning, slik at du stiller godt forberedt.
Ønsker du kun å holde deg orientert om salget, kan du registrere deg på eiendommens hjemmeside for å få varsel om solgtpris – eller kontakte megler direkte.
Lurer du på noe?
Vurderer du utleie?
Få et tilbud fra Utleie KrogsveenHva koster lånet?
Sjekk estimert lånekostnadVil du varsles om lignende boliger?
Ved å lagre ditt boligsøk hos oss får du beskjed når vi har en bolig som ligner denne, før den legges ut på markedet!
























































