Polleveien 30
2 800 000 kr
73 m²
2 soverom
Komplett salgsoppgave

Kjærnes/Vinterbro
Idyllisk fritidsbolig med god beliggenhet | Stor, sydvendt terrasse | Bad oppgradert i 2024 | Nær Pollevann og sjøen
Prisantydning
2 800 000 krOmkostninger
90 990 krTotalpris
2 890 990 kr
Pris
Bruksareal
78 m²BRA-I (internt bruksareal)
73 m²BRA-E (eksternt bruksareal)
5 m²TBA (terrasse-balkongareal)
28 m²
Areal
Byggeår
1960Soverom
2 soveromBad
1 badTomteareal
1 497 m² (festet)Type
Fritidseiendom innlandetEierform
EietFasiliteter
Balkong/TerrasseEnergimerke
Nøkkelinfo
Vurderer du utleie?
Få et tilbud fra Utleie KrogsveenHva koster lånet?
Sjekk estimert lånekostnadBeskrivelse
Kort om eiendommen
Innhold og byggemåte
Innhold og byggemåte
Eiendommen
Polleveien 30, 1407 VINTERBRO
Kommunenummer 3218, gårdsnummer 109, bruksnummer 58, ideell andel 1/1
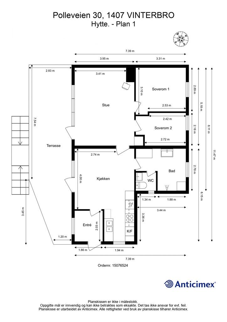
Innhold
Totalt bruksareal BRA: 78 kvm
BRA-i:
1. etasje 73 kvm: Entré, kjøkken, bad, toalettrom, stue, soverom og rom benyttet som soverom
BRA-e:
1. etasje 5 kvm: Anneks.
Terrasse- og balkongareal (TBA):
1. etasje 28 kvm: Terrasse.
Utvendig bod er oppmålt til 8 m2 gulvflate. Arealet i utvendig bod måles til 8 m2 (ALH), men grunnet lav takhøyde er ingen deler av arealet måleverdig som bruksareal. I hytta er takhøyden i baderommet målt til 1,88 meter, som er under grensen på 1,90 meter for måleverdig areal.
Vedlagte plantegninger er ikke målbare. De oppgitte arealer er hentet fra rapport med befaringsdato 13.11.2025 utført av Anticimex AS v/Lars Petter Ausland.
Byggemåte
Tilstandsrapporten er inntatt i salgsoppgaven. Rapporten inneholder informasjon om eventuelle avvik og konsekvensen av disse. Dersom det er registrert avvik med TG3, har den bygningssakkyndige i tillegg gitt et anslag på hva det vil koste å utbedre disse. Ettersom kjøper regnes å være kjent med forhold som tydelig fremgår av tilstandsrapporten, oppfordres du til å sette deg grundig inn i rapporten i sin helhet.
Bygningen er iht. tilstandsrapport en fritidsbolig oppført i 1960 med et tilbygg fra 1980. Hytta er bygget over ett plan med bærende konstruksjoner i treverk på betongsøyler og søylefundamenter. Ytterveggene er av trekonstruksjoner, utvendig kledd med liggende trekledning. Takkonstruksjonen er en saltakskonstruksjon, utvendig tekket med takplater fra 2012. Etasjeskillet er av trekonstruksjoner. Vinduer, entrédør og terrassedør på kjøkken er fra 2012, mens terrassedøren i stuen er fra et ukjent årstall.
Det gjøres spesielt oppmerksom på at følgende bygningsdeler er gitt Tilstandsgrad 3 (TG3) — Store eller alvorlige avvik:
Frittstående byggverk
- Frittstående bod: Det er registrert svikt/skjevheter i gulv i bod. Trolig årsak er råteskader i gulvet. Det er registrert høy slitasjegrad på taktekkingen og skjevheter i takkonstruksjonen.
Følgende bygningsdeler er gitt Tilstandsgrad 2 (TG2) — Avvik som kan kreve tiltak:
Våtrom - Baderom
- Ventilasjon: Våtrommet har kun naturlig ventilasjon. Naturlig ventilasjon gir som regel mindre effektiv luftutskifting enn mekanisk ventilasjon, noe som kan medføre økt fuktpåkjenning i våtrommet. Tiilluftsspalte under baderomsdør er ikke etablert. Forholdet fører til redusert ventilering av rommet når døren er lukket.
Kjøkken
- Varmtvannsbereder: Varmtvannsbereder er plassert i rom uten sluk/overløp eller annen sikring mot fuktskader. Konsekvens kan være at det oppstår fuktskader hvis lekkasje fra varmtvannsbereder skulle oppstå.
- Vannrør: Vannrørene er ikke plugget mot varerør. Av denne grunn kan eventuelt lekkasjevann fra rør-i-rør system forårsake følgeskader. Det er ikke montert automatisk lekkasjestopper for å begrense eventuelle lekkasjer fra vanninstallasjoner.
- Overflater himling: Himlingsflater bærer noe preg av slitasje. Det er stedvis registrert sprekker og kvistutslag i takpanel.
- Overflater gulv: Det registreres stedvise riper/hakk/merker i gulvets overflatemateriale.
Øvrige rom - Stue og to soverom
- Ventilasjon: Ventilasjonen vurderes til å stedvis ikke være tilfredsstillende. Det er ikke registrert ventiler i soverom 2. Konsekvens kan være redusert luftutskiftning.
- Overflater gulv: Det registreres stedvise riper/hakk/merker i gulvets overflatemateriale.
Loft - uinnredet / råloft
- Helhetsvurdering: Det er redusert tilkomst for inspeksjon av uinnredet loft. Erfaringsmessig betraktes slike konstruksjoner som risikokonstruksjoner blant annet med tanke på fukt- /kondensproblematikk. Det er ikke observert skader eller symptomer på skader, men skader kan ikke utelukkes. TG 2 er valgt pga alder på undertak og å belyse skaderisiko/behov for tiltak.
Etasjeskiller - Plan 1
- Skjevhetsmåling: Det er noe merkbare skjevheter i boligen. Forskjellen mellom høyeste og laveste punkt på 2,0 meter er målt til 30 mm i kjøkken. Forøvrig ingen merknader i det andre rommet som er målt (stue ). Målingene er foretatt i en eldre bygning og bør ses i den sammenheng. Skjevheter er mer påregnelige i eldre bygninger enn i nye. Mulig årsak til skjevhetene i kjøkken er midlertidig understøttelse mot bjelkelag under kjøkkengulv. Se punkt grunnmur.
- Annet: Asfaltplater/vindsperre har stedvis sprekker i skjøter i bjelkelag under hytta. Konsekvens kan være dårligere vindtetting/isoleringsevne og tilgang for mus/gnagere i konstruksjonen.
Yttervegger
- Fasader ink. kledning: Panel på yttervegg på øst-vendt vegg er stedvis montert for nært terreng. Konsekvens kan være økt fare for råteskader.
Dører og vinduer
- Dører: TG 2 gjelder terrassedør i stue: Terrassedør er av eldre dato, og det må forventes høyere varmetap fra denne døren sammenlignet med dører fra nyere dato. Til informasjon ble det utført stikkprøvekontroll på dør hvor åpne/lukkefunksjon fungerte som forventet. Til informasjon: Entrédør og terrassedør på kjøkken har tilstandsgrad 1 (TG1).
Yttertak
- Skorsteiner over tak: Skorsteinen har synlige slitasjesymptomer. Sprekkdannelser i murpuss. Fuge mot beslag har høy slitasjegrad. Konsekvens kan være økt fare for fuktskader i konstruksjoner.
Balkonger, terrasser, veranda etc - Terrasse
- Utkragede eller understøttede konstruksjoner: Rekkverkshøyden er under 1,0 meter. Avvik fra dagens byggteknisk forskrift.
Grunnmur, fundamenter
- Fundamenter: Det er registrert skjevheter i gulv i kjøkken som kan ha sammenheng med midlertidig understøttelse av en trestokk mot bærende bjelkelag på deler av kjøkkengulv på undersiden/utsiden av konstruksjonen. Selger opplyser om at konstruksjonen og skjevhet har vært den samme/uendret siden de kjøpte hytta. Trenger oppfølging med jevnlig ettersyn.
Frittstående byggverk
- Frittstående anneks - Helhetsvurdering: Det er foretatt en forenklet og overordnet vurdering av tilstanden og i forhold til byggeår vurderes moderat vedlikehold å være tilstrekkelig. Det er registrert sprekker mellom listverk og himling, samt løsnet list.
Følgende bygningsdeler er ikke undersøkt (TGIU):
Våtrom - Baderom
- Fukt i tilliggende konstruksjoner: På grunn av våtrommets utforming og bruk er det ikke praktisk mulig å gjennomføre hulltaking og fuktmåling i de mest fuktutsatte delene av våtsonen, som erfaringsmessig er områdene der skader forekommer. Hulltaking og fuktmåling i lukkede konstruksjoner er derfor ikke utført. Det ble derimot gjennomført et overflatesøk med fuktindikator, uten at det ble påvist indikasjoner som tyder på fuktskader.
Tekniske anlegg, VVS anlegg
- Stakeluke: Avløpsrørene er stedvis skjult og eventuell stakeluke er ikke lokalisert.
Grunnmur, fundamenter
- Byggegrunn: Byggegrunnens beskaffenhet er ukjent.
Ovennevnte er kun et utdrag fra rapporten. Se supplerende tekst i tilstandsrapporten for mer informasjon. Kjøper overtar ansvar og risiko for dette.
Moderniseringer og påkostninger
Følgende moderniseringer er foretatt de senere år:
2024:
- Pusset opp baderom etter vannskade, inkludert skifte av gulvbelegg, isolasjon og rør. Utført av Disen Bygg med underleverandør Adekvat VVS. Samsvarserklæring foreligger.
2022:
- Ny kjøkkeninnredning
- Riving og bygging av ny og utvidet terrasse. Utført av Disen Bygg
- Maling av panel i stue
- Vindu erstattet med ny verandadør og fasadeendring. Utført av Disen Bygg
- Isolering av rør mot vinterkulde. Utført av Adekvat VVS
- Utført arbeid på pipe. Utført av Disen Bygg.
- Bygget trapp ned fra hytta og montert elektrisk markise. Utført av Disen Bygg.
2021:
- Elektriske arbeider: utvidelse av anlegg med stikk og lys i kjøkken, lys i soverom og ny kurs til platetopp. Utført av Hegna Elektro. Samsvarserklæring foreligger.
- Ny varmtvannsbereder (101 liter) montert under kjøkkenbenk
2012:
- Nytt yttertak (takplater)
- Ny entrédør, terrassedør i stue og nye vinduer
Kvittering foreligger på nyere arbeider på hytta.
Standard
Denne hytta kombinerer klassisk sjarm med moderne komfort og funksjonalitet. Her er den tradisjonelle hyttefølelsen med gjennomgående trepanel og en sentral vedovn bevart, samtidig som eiendommen er betydelig oppgradert de siste årene. Med et kjøkken fra 2021/2022 og et bad modernisert i 2024, er de viktigste funksjonene oppdatert til dagens standard. Planløsningen er arealeffektiv og gir en god flyt mellom rommene, med en åpen overgang mellom kjøkken og stue. Fra begge disse rommene er det direkte utgang til en stor, sydvendt terrasse som visker ut skillet mellom inne og ute.
Entré:
Hytta har adkomst via bakkeplan til en praktisk entré som leder videre inn til kjøkkenet.
Kjøkken:
Kjøkkenet fra 2021/2022 har en innredning med glatte fronter og benkeplater i heltre. Av integrerte hvitevarer finnes komfyr, oppvaskmaskin og kjøleskap med frysedel. Rommet er utstyrt med en nedsenket oppvaskkum i rustfritt stål, belysning under overskap og en ventilator med mekanisk avtrekk. En varmtvannsbereder fra 2021 er plassert under kjøkkenbenken. Fra kjøkkenet er det direkte utgang til terrassen.
Stue:
Stuen er et lyst og romslig samlingspunkt med god takhøyde, målt opp til 2,95 meter. En vedovn i støpejern med pipe i teglsteinsmur gir varme og skaper en lun atmosfære. Rommet har plass til en romslig sittegruppe og gir en naturlig overgang til hyttas to soverom.
Terrasse:
Fra både stuen og kjøkkenet er det utgang til en stor, sydvendt terrasse på 28 m². Terrassen ble bygget i 2022 og fungerer som en naturlig forlengelse av hyttas sosiale soner.
Baderom:
Badet ble modernisert med nytt badegulv i 2024 og har en moderne og funksjonell utforming. Rommet er innredet med en servantinnredning med profilerte fronter, heldekkende servant og speilskap med belysning og stikkontakt. Her finnes også et dusjkabinett med skyvedører i glass. Fra badet er det adkomst til et separat toalettrom.
Toalettrom:
Toalettrommet har adkomst fra badet og er utstyrt med et gulvstående toalett, vegghengt servant med ett-greps armatur og speilskap med belysning. Rommet har en avtrekksventil for naturlig avtrekk.
To soverom:
Hytta har to soverom med profilerte innerdører. Det ene soverommet er utstyrt med et plassbygd garderobeskap for effektiv oppbevaring.
Overflater:
Gulvoverflater: Tregulv i stue, kjøkken og soverom. Våtromsbelegg på bad og toalettrom.
Vegger: Lysmalte trepaneler i stue, kjøkken, bad og soverom. Våtromstapet på toalettrom.
Himling: Lysmalte trepaneler i stue, kjøkken, bad og soverom. Lysmalt slett flate på toalettrom.
Lagringsmuligheter:
Eiendommen har gode lagringsmuligheter med et plassbygd garderobeskap i det ene soverommet. I tillegg er det et frittstående anneks på ca. 5 m² for sommerbruk, innredet med malte trepaneler og laminatgulv. Det er også en frittstående bod med et gulvareal på ca. 8 m².
Oppvarming
Oppvarming med elektrisitet og vedfyring. Det er vedovn i stuen. Varmekabel er montert på vannrør.
Ferdigattest/brukstillatelse
Det foreligger ikke ferdigattest eller brukstillatelse for den opprinnelige hytta eller for tilbygget i kommunens arkiver. Hytta er opprinnelig oppført i 1960, før plan- og bygningsloven ble landsdekkende i 1965. For bygg fra denne perioden er det ikke uvanlig med mangelfull dokumentasjon i kommunens arkiver.
For tilbygget, som er omsøkt i 1980, gjelder en unntaksregel. Det gjøres oppmerksom på at det ikke lenger utstedes ferdigattest på tiltak det er søkt om før 1998 jf. plan- og bygningsloven § 21-10. Kommunen vil ikke kreve ferdigattest for disse tiltakene og vil avvise eventuelle søknader. Bestemmelsen innebærer ikke at tiltak med manglende søknad blir lovlige, men at man ikke trenger å avslutte gamle byggesaker. Normalt sett kreves ferdigattest for alle søknadspliktige tiltak som gjøres etter plan- og bygningsloven.
Det er utstedt ferdigattest for "Ny terrasse" datert 16.06.2022. At slike attester eksisterer gir ingen garanti for at det ikke senere er utført arbeider som ikke er byggemeldt/godkjent.
Matrikkelen viser et "Garasje/uthus/anneks til fritidsbolig" på 11 m² som ble registrert tatt i bruk 01.01.2008. I tillegg beskriver tilstandsrapporten et anneks på ca. 5 m² og en frittstående bod på ca. 8 m². Det er ikke funnet byggetillatelse eller ferdigattest for disse bygningene i kommunens arkiver.
Det foreligger godkjente og byggemeldte tegninger for opprinnelig hytte, godkjent 02.08.1957, og for tilbygg, godkjent 24.06.1980. En sammenligning av disse tegningene med dagens situasjon viser avvik. Denne dokumentasjonen kan fås ved henvendelse til megler.
Avvikene består i at det er etablert bad og toalettrom, noe som ikke fremgår av de godkjente tegningene. Etablering av våtrom er normalt søknadspliktig. I tillegg er hytta innredet med to soverom, mens de godkjente tegningene kun viser ett soverom.
Kjøper overtar alt ansvar, kostnad og risiko for dette videre.
Tinglyste heftelser og rettigheter
Eiendommen overdras fri for pengeheftelser med unntak av:
1975/208451-2/6 09.10.1975 FESTEKONTRAKT - VILKÅR
Festetid: 99 år
FESTEKONTRAKT OG SKJØTE PÅ BEBYGGELSE
BESTEMMELSE OM BEBYGGELSE
FORBUD MOT VISSE FORMER FOR NÆRINGSVIRKSOMHET
BESTEMMELSER OM FORLENGELSE
MED FLERE BESTEMMELSER
PANT FOR FORFALT FESTEAVGIFT
Dette er en bygslingskontrakt for parsellen "Klyvopp" g.nr. 109 b.nr. 58, inngått 20.09.1975, med en leietid på 99 år fra 01.01.1956. Årlig leie var kr. 250,-, og justeres hvert 10. år etter konsumprisindeksen. Festeavgift er kr 1.904,- i 2026. Leieren har rett til å bebygge og tilplante tomten, men det kan kun oppføres hytte, ikke fast bolig, og ingen handel eller annen bedrift er tillatt. Eiendommen har vegrett over fellesveg, og bygsleren har rett til vann eller å grave felles brønn. Overdragelse av kontrakten til andre enn lovlige arvinger krever utleierens samtykke. Ved festetidens utløp har leieren rett til å fornye kontrakten.
Kommunen har legalpant i eiendommen for forfalte krav på eiendomsskatt og kommunale avgifter/gebyrer.
1975/208451-3/6 09.10.1975 URÅDIGHET
KAN IKKE OVERDRAS/FREMLEIES UTEN SAMTYKKE FRA HJEMMELSHAVER/UTLEIER
Eiendommens rettigheter:
1956/202753-1/6 13.09.1956 BESTEMMELSE OM VANNRETT
Rettighet hefter i: KNR: 3218 GNR: 109 BNR: 2
Dette er en bygselskontrakt fra 1956 med en leietid på 99 år. Kontrakten gir bygsleren rett til vann, eller å grave felles brønn på angitt sted av utleieren. Eiendommen har også adkomst over avsatt grunn til fellesveg.
1971/204412-2/6 03.07.1971 BESTEMMELSE OM VANNRETT
Rettighet hefter i: KNR: 3218 GNR: 110 BNR: 1
BRUKSRETT TIL PUMPEHUS PÅ 110/1.
GJELDER DENNE REGISTERENHETEN MED FLERE
Avtalen gir bruksrett og fri adgang til et pumpehus på gnr. 110 bnr. 1, som forsyner denne eiendommen (gnr. 109 bnr. 58) og 7 andre parseller med vann. Årlig leie er kr. 80,00.
2006/448543-1/200 21.09.2006 BEST. OM VANN/KLOAKKLEDN.
Rettighet hefter i: KNR: 3218 GNR: 110 BNR: 1
GJELDER DENNE REGISTERENHETEN MED FLERE
Erklæringen gir fester av denne eiendommen (gnr. 109 bnr. 58) og flere andre eiendommer rett til å anlegge vann- og kloakkledninger over gnr. 110 bnr. 1, i henhold til vedlagte tegninger.
Servituttene vil følge eiendommen. Kjøpers bank vil få prioritet etter ovennevnte heftelser og servitutter.
Eventuell adgang til utleie
Fritidseiendommen har ikke separat utleiedel. Det vil normalt være anledning til utleie av hele eiendommen eller enkeltrom, såfremt utleiearealet er bygningsmessig godkjent for varig opphold.
Samtykke til utleie må godkjennes av grunneier.
Beliggenhet og tomteforhold
Beliggenhet og tomteforhold
Beliggenhet
Med en tilbaketrukket beliggenhet ved Pollevannet, tilbyr Polleveien 30 en sjelden kombinasjon av umiddelbar nærhet til naturen og kort vei til urbane fasiliteter. Her lever du med skogen som nærmeste nabo, på en solrik tomt hvor du kan nyte stillheten. Området gir direkte tilgang til marka, perfekt for turer, løping eller ski om vinteren, rett fra egen dørstokk.
Livet her er preget av friluft og aktivitet. Sommerdager tilbringes gjerne ved Breivoll badeplass, kun en fem minutters kjøretur unna, eller ved en av de andre badeplassene langs Bunnefjorden. For de hesteinteresserte ligger Stall Aschehoug like i nærheten. Vinterstid er det kun en kort kjøretur til Ingierkollen Slalåmsenter for alpint, og golfentusiaster har tilgang til både Gjersjøen og Oppegård golfklubber innen et kvarter med bil.
Selv om beliggenheten er fredelig, er hverdagslogistikken enkel. Nærmeste dagligvarehandel, Extra Nesset i Nessetveien. Vinterbro Senter, med sine over 80 butikker, apotek, vinmonopol og spisesteder, dekker de fleste behov i samme slengen.
Området er også praktisk for familier, med Nordby skole og barnehage kun seks minutter unna med bil. Beliggenheten er ideell for pendlere, med enkel tilgang til E6 og E18. Kjøreturen til Oslo sentrum tar rundt 30 minutter, noe som gjør det fullt mulig å kombinere et rolig liv i naturskjønne omgivelser med jobb og byliv i hovedstaden.
Beskrivelse av tomt
Festetomt på 1497,1 kvm. Tomten er en naturtomt med noe fjell i dagen. Oppgitt tomteareal er hentet fra digitalt eiendomskart fra Ås kommune. Oppgitt/anslått areal kan derfor avvike fra nøyaktig areal.
Festekontrakten er inngått 20.09.1975, med en leietid på 99 år fra 01.01.1956. Årlig festeavgift er på kr. 1.904,-. Grunneier er Klaus Landfald. Samtykke til overdragelse fra grunneier kreves.
Parkering
Det er biloppstillingsplasser på egen tomt.
Vei, vann og avløp
Eiendommen har adkomst via privat vei. Eiendommen er tilknyttet kommunalt ledningsnett via private stikkledninger. Eier er selv ansvarlig for private stikkledninger til boligen. Eiendommen har installert vannmåler.
Regulerings-og arealplaner
Eiendommen ligger i et uregulert område, men er i kommuneplan datert 08.02.203 er avsatt til: Boligbebyggelse, 1.487 kvm av tomten og LNFR-område, 10 kvm av tomten.
I kommuneplan for Ås kommune 2022-2034 fremkommer det følgende hensynssoner:
- H530_1: Hensyn friluftsliv
Utsnitt av plan med tilhørende bestemmelser kan fås ved henvendelse til megler.
Økonomi
Økonomi
Kommunale utgifter
Kommunale avgifter inkluderer vann, avløp og renovasjon.
Fakturert beløp i 2025:
- Vann: kr 5 644,19,-
- Avløp: kr 5 901,44,-
- Renovasjon: kr 2 150,00,-
Totalt: kr 13 695,63,-
Festeavgift er kr. 1.904,- pr år.
Eiendommen har installert vannmåler. Siste registrerte målerstand var 40 m³ per 31.12.2025. Forbruket for året 2024 er oppgitt til 39 m³. Ifølge SSB er estimert gjennomsnittlig husholdningsforbruk pr. person 65 m³.
Fullmektig har ikke bebodd eiendommen og har således ikke kjennskap til øvrige løpende utgifter for eiendommen.
Utgiftene er basert på nåværende eiers forbruk og avtaler.
Formuesverdi
Formuesverdi for 2024 var kr 146.364,- ifølge selgers Skatteetaten.
Omkostninger
2 800 000,00 Prisantydning
Omkostninger
70 000,00 Dokumentavgift til staten (2,5% av kjøpesum)
19 900,00 Gjensidige Boligkjøperpakke (valgfri)
545,00 Tinglysing panterettsdokument
545,00 Tinglysing skjøte
--------------------------------------------------------
90 990,00 Omkostninger totalt
--------------------------------------------------------
2 890 990,00 Totalpris inkl. omkostninger
--------------------------------------------------------
Tilbud om lånefinansiering
Megler formidler gjerne kontakt med rådgiver hos Trøgstad Sparebank. De har konkurransedyktige betingelser samt rask og løsningsorientert behandling av din lånesøknad.
Betalingsbetingelser
Kjøpesum inkludert omkostninger, samt pantedokument tilknyttet eventuelt lån, skal være disponibelt hos megler 2 virkedager før overtagelsen.
Annen viktig informasjon
Annen viktig informasjon
Eier
An-Magritt Jensen og Jens Qvortrup
Overtakelse
Etter nærmere avtale.
Boligselgerforsikring
Selger har i forbindelse med salget tegnet boligselgerforsikring levert av Gjensidige.
Boligselgerforsikringen dekker selgers ansvar etter avhendingsloven begrenset oppad til kr 14 millioner. Dersom kjøper oppdager forhold ved eiendommen som hen mener utgjør en mangel ved eiendommen, vil Gjensidige behandle reklamasjonen på vegne av selger. Forsikringsvilkår kan fås ved henvendelse til megler.
Vedlagt salgsoppgaven følger selgers egenerklæringsskjema og tilstandsrapport. Interessenter må sette seg inn i dokumentene før bud inngis.
Boligkjøperforsikring
Innen kontraktsmøtet må kjøper ta stilling til om det ønskes å bestille Boligkjøperpakken gjennom Gjensidige. I denne gunstige pakken er boligen ferdig forsikret og inkluderer rettshjelpsforsikring, også kalt Boligkjøperforsikring. Rettshjelpsforsikring gir trygghet og tilgang på profesjonell juridisk hjelp dersom det oppdages uventede feil eller mangler det første året etter overtagelse. Forsikringsselskapet behandler i så fall ethvert mangelskrav kjøper måtte ha overfor selger.
Boligkjøperpakken inkluderer bygningsforsikring for hus og hytte, innboforsikring, flytteforsikring og dobbel rentedekning - i situasjoner hvor kjøper ikke får solgt nåværende primærbolig.
Kjøper mottar ingen særskilt faktura for Boligkjøperpakken da kostnaden det første året legges til kjøpesummen for boligen. Det gjøres oppmerksom på Krogsveen mottar et honorar for denne formidlingen.
Produktark for Boligkjøperpakken ligger vedlagt i salgsoppgaven.
Dersom ikke boligkjøperpakke ønskes kan kun rettshjelpsforsikring, også kalt boligkjøperforsikring, tegnes særskilt via megler. Rettshjelpsforsikringen varer i 5 år fra overtagelse og leveres gjennom Gjensidige. Ta kontakt med megler for ytterligere informasjon.
Selskap og privatpersoner som driver med kjøp/salg/utvikling som ledd i egen næringsvirksomhet kan ikke tegne boligkjøperpakke eller rettshjelpsforsikring.
Budgivning
Forbrukerinformasjon om budgivning er vedlagt denne salgsoppgaven og er også på vår hjemmeside Krogsveen.no. Alle bud og budforhøyelser må inngis skriftlig. I tillegg må legitimasjon være fremlagt sammen med signatur fra budgiver.
Vi oppfordrer til å gi bud elektronisk via GI BUD-knappen på eiendommens hjemmeside på Krogsveen.no. Da vil samtlige vilkår bli oppfylt.
Eventuelle forhøyelser eller endringer av budet kan bekreftes pr SMS eller på e-post. Vi oppfordrer alltid til å kontakte megler pr. telefon i tillegg da forsinkelser i SMS og e-post kan forekomme.
For at budene skal kunne bli behandlet og videreformidlet skriftlig til alle involverte parter, må alle bud ha en tilstrekkelig lang akseptfrist, jf. eiendomsmeglingsforskriften § 6-3.
Selger må også skriftlig akseptere budet før aksept kan formidles til budgiver. Akseptfrist bør derfor være på minimum 30 minutter, og budforhøyelser må derfor skje i god tid før fristens utløp.
Bud i forbrukerforhold kan uansett ikke settes med kortere frist enn kl. 12.00 første virkedag etter siste annonserte visning. I tillegg kan ikke budet ha forbehold om at det skal holdes hemmelig ovenfor øvrige interessenter. Megler har iht lov om eiendomsmegling ikke anledning til å videreformidle disse budene, og de vil dermed heller ikke bli journalført.
Etter at eiendommen er solgt vil kjøper og selger få tilsendt budjournal. Øvrige budgivere kan få utlevert kopi av budjournalen i anonymisert form.
Hvitvaskingsreglene
I henhold til lov om hvitvasking og terrorfinansiering har megler plikt til å gjennomføre kontrolltiltak overfor kunder, herunder fullmektiger. Dette innebærer bl.a. å bekrefte kunders og reelle rettighetshaveres identitet på bakgrunn av fremvist gyldig legitimasjon eller på annen godkjent måte, samt å innhente opplysninger om kundeforholdets formål og tilsiktede art.
Dersom slike kundetiltak ikke kan gjennomføres, kan megler ikke etablere kundeforholdet eller utføre transaksjonen.
Hvis kjøper ikke bidrar til gjennomføring av kundekontrollen og dette fører til at transaksjonen blir forsinket eller ikke kan gjennomføres, vil dette ansees som mislighold av avtalen og gi selger rettigheter etter avhendingslova kapittel 5. I tilfeller der selger ikke bidrar til gjennomføring av løpende kundekontroll underveis i oppdraget, er det selger som misligholder sine forpliktelser etter avtalen og gi kjøper rettigheter etter avhendingslovens kapittel 4. Partene er selv ansvarlige for eventuelle kostnader og ansvar dette kan medføre. Eiendomsmegleren eller eiendomsmeglingsforetaket kan ikke holdes ansvarlig for de konsekvenser dette vil kunne få for partene eller andre som har interesser i eiendomshandelen.
Kjøper oppfordres til å innbetale kjøpesummen som ikke kommer fra låneinstitusjon i én samlet innbetaling fra egen konto i norsk bank. Megler har plikt til å melde fra til Økokrim om eiendomshandler som fremstår som mistenkelige. Melding sendes Økokrim uten at partene varsles.
Personopplysningsloven
I henhold til personopplysningsloven gjør vi oppmerksom på at interessenter kan bli registrert for videre oppfølging.
Lovanvendelse
Generelle bestemmelser
Salgsoppgaven er basert på de opplysningene selger har gitt til megler, den bygningssakyndiges tilstandsrapport, samt opplysninger innhentet fra kommunen, Kartverket og andre tilgjengelige kilder. Det er viktig at kjøper setter seg grundig inn i alle salgsdokumentene, herunder salgsoppgave, tilstandsrapport og selgers egenerklæring. Kjøper anses kjent med forhold som er tydelig beskrevet i salgsdokumentene, og slike forhold kan ikke påberopes som mangler. Dette gjelder uavhengig av om kjøper har lest dokumentene. Alle interessenter oppfordres til å undersøke eiendommen nøye, gjerne sammen med fagkyndig før bud inngis. Kjøper som velger å kjøpe usett kan ikke gjøre gjeldende som mangel noe han burde blitt kjent med ved undersøkelsen.
Dersom det er behov for avklaringer, anbefaler vi at interessenter rådfører seg med eiendomsmegler eller egne rådgivere før det legges inn bud.
En bolig som har blitt brukt i en viss tid, har vanligvis blitt utsatt for slitasje og skader kan ha oppstått. Slik bruksslitasje må kjøper regne med, og det kan avdekkes enkelte forhold etter overtakelse som nødvendiggjør utbedringer. Normal slitasje og skader som nødvendiggjør utbedring, er innenfor hva kjøper må forvente og vil ikke utgjøre en mangel.
Kjøper og selgers rettigheter og plikter reguleres av avtalen mellom partene, samt informasjonen som har vært tilgjengelig for kjøperen i forbindelse med handelen. Avtalen utfylles av avhendingsloven, og det gjelder ulike avtalevilkår avhengig av om kjøper er forbrukerkjøper eller ikke. Dette er nærmere beskrevet nedenfor.
På grunn av ulike avtalevilkår kan selger vurdere bud fra en som ikke er forbruker, ulikt fra en forbrukers bud. Dersom kjøper ikke er forbruker, er selger sitt mulige mangelsansvar begrenset fordi eiendommen selges "som den er". Selger kan ikke ta «som den er»- forbehold overfor en forbrukerkjøper. Selv et lavere bud fra en som ikke er forbruker kan foretrekkes fordi begrensningen i mulig mangelsansvar kan ha egenverdi for selger. Selger står fritt til å forkaste eller akseptere ethvert bud, og er for eksempel ikke forpliktet til å akseptere høyeste bud.
Budgiver skal i budskjema avgi egenerklæring om budgiver er forbruker eller næringsdrivende/ person som hovedsakelig handler som ledd i næringsvirksomhet. Budgivere får informasjon dersom andre bud er inngitt av en som ikke er forbruker.
Forbrukerkjøp - definisjon
Med forbrukerkjøp menes kjøp av eiendom når kjøperen er en fysisk person som ikke hovedsakelig handler som ledd i næringsvirksomhet.
Forbruker – avtalevilkår
Eiendommen har en mangel dersom den ikke er i samsvar med kravene som følger av avtalen, eller det foreligger brudd på bestemmelsene i avhendingsloven §§ 3-2 til 3-8. Hvis eiendommen ikke er i samsvar med det kjøperen må kunne forvente ut ifra alder, type og synlig tilstand, kan det være grunnlag for mangelskrav. Det samme gjelder hvis det er holdt tilbake eller gitt uriktige opplysninger om eiendommen. Dette gjelder likevel bare dersom man kan gå ut ifra at det virket inn på avtalen at opplysningen ikke ble gitt eller at mangelskravet ikke blir rettet i tide på en tydelig måte.
Boligen kan ha en mangel etter avhendingsloven § 3-3 andre ledd, dersom det er avvik mellom opplyst og faktisk innvendig areal, forutsatt at avviket er på 2% eller mer og minimum 1 kvm.
Ved beregning av et eventuelt prisavslag eller erstatning må kjøper selv dekke tap/kostnader opptil et beløp på kr 10 000 (egenandel).
Ikke-forbruker (næringsdrivende) – definisjon
Hvis kjøper er en juridisk person, eller en fysisk person som hovedsakelig handler som ledd i næringsvirksomhet, vil kjøpet ikke anses som et forbrukerkjøp.
Ikke-forbruker – avtalevilkår
Eiendommen har en mangel dersom den ikke er i samsvar med kravene som følger av avtalen.
Eiendommen selges «som den er», og selgers ansvar utover det konkret avtalte er da begrenset etter avhendingsloven § 3-9, første ledd andre setning.
Avhendingsloven § 3-3 andre ledd fravikes, og hvorvidt boligens arealsvikt utgjør en mangel vurderes etter avhendingsloven § 3-8.
Informasjon om kjøpers undersøkelsesplikt, herunder oppfordringen om å undersøke eiendommen nøye, gjelder også for kjøpere som ikke anses som forbrukere.
Det forutsettes at hjemmel overføres til kjøper. Hvis kjøper ikke ønsker hjemmelsoverføring av eiendommen, må det tas forbehold om dette i budet.
Meglers vederlag
Vi er opptatt av verdiskapning, og har knyttet til oss samarbeidspartnere som skal sikre våre kunder de beste produkter og tjenester;
• I forbindelse med forberedelse av salget, innhenter vi informasjon om eiendommen hovedsakelig fra vår samarbeidspartner Ambita.
• Gjensidige leverer boligselgerforsikring og tilbyr bygningsforsikring
• Boligkjøperforsikring leveres av Hiscox og med Sedgwick som skadebehandler, og er formidlet gjennom Gjensidige.
• BN bank tilbyr finansieringsløsninger
• Vår avdeling Krogsveen Pluss tilbyr flyttetjenester som utvask, visningsvask, lager, tømming og transport av flyttelass, i tillegg til å formidle kontakt med Flip for overflateoppussing.
• I forbindelse med overtagelse av eiendommen tilbyr Overo avtale om strøm, alarm og bredbånd.
• Krogsveen er, sammen med øvrige bransjeaktører, medeier i Bomega AS som tilbyr den digitale annonseringsplattformen Hjem.
Opplysninger om oppdraget
Oppdragsnummer 46-0139/24
Eiendomsmegler Krogsveen AS, avd. Ski
Kirkeveien 2A, 1400, SKI
950 007 613
Oppdragets KR-kode KR46.24139
Dato
Sist oppdatert: 04. mai 2026 kl. 11:06
Dokumenter
Dokumenter
PDF – 489 KB
PDF – 919 KB
PDF – 168 KB
PDF – 873 KB
PDF – 312 KB
PDF – 29 KB
PDF – 127 KB
PDF – 392 KB
Område
Legg til steder som er viktige for deg
Visning
For å delta på visning, ber vi om at du melder deg på. Da sikrer vi at du får nødvendig informasjon og at det er satt av tilstrekkelig med tid. Kontakt megler dersom annet tidspunkt ønskes. Husk å lese salgsoppgaven før visningen, så du stiller forberedt. NB. Visning utgår dersom det ikke er noen påmeldte. Ønsker du kun å bli holdt orientert, kan du fra eiendommens hjemmeside få varsel om solgtpris, eller kontakte megler.
Lurer du på noe?
Vurderer du utleie?
Få et tilbud fra Utleie KrogsveenHva koster lånet?
Sjekk estimert lånekostnadVil du varsles om lignende boliger?
Ved å lagre ditt boligsøk hos oss får du beskjed når vi har en bolig som ligner denne, før den legges ut på markedet!

