Leistadgrenda 21
2 790 000 kr
84 m²
2 soverom
Komplett salgsoppgave

Brundalen
Flott 3-roms med endebeliggenhet i sentralt og attraktivt område | Innglasset balkong med gode solforhold | Tre boder
Prisantydning
2 790 000 krAndel fellesgjeld
554 063 krOmkostninger
19 446 krTotalpris
3 363 509 kr
Pris
Bruksareal
111 m²BRA-I (internt bruksareal)
84 m²BRA-E (eksternt bruksareal)
14 m²
Areal
Etasje
1Byggeår
1969Soverom
2 soveromBad
1 badType
AndelsleilighetEierform
AndelFasiliteter
Balkong/TerrasseFellesutgifter
7 020 krEnergimerke
E
Nøkkelinfo
Unngå doble boligrenter
Vi tilbyr gunstig forsikring.
Vurderer du utleie?
Få et tilbud fra Utleie KrogsveenHva koster lånet?
Sjekk estimert lånekostnadBeskrivelse
Kort om eiendommen
Velkommen til Leistadgrenda 21 - og denne flotte 3-romsleiligheten beliggende i et veletablert område på Brundalen! Leiligheten ligger perfekt til på enden, med kort vei til en rekke dagligdagse servicetilbud, gode kollektivmuligheter og fantastiske turområder.
Verdt å nevne:
- Lys og luftig stue med utstrakte vindusflater som sikrer rikelig med dagslys.
- Tilbaketrukket kjøkken med rikelig skap- og benkeplass.
- Innglasset balkong med gode solforhold og møbleringsmuligheter.
- Praktisk separat bad, toalettrom og vaskerom.
- To romslige soverom med plass til garderobe og stort gangareal med lagringsmuligheter.
- Tre romslige boder på til sammen hele 14 kvm med gode lagringsmuligheter.
- Enkel adkomst i 1. etasje med lite innsyn.
- Rolig nabolag med kort vei til "alt" av servicetilbud.
Innhold og byggemåte
Innhold og byggemåte
Eiendommen
Leistadgrenda 21, 7047 TRONDHEIM
Kommunenummer 5001, gårdsnummer 16, bruksnummer 71, ideell andel 1/1
Andelsnummer 383, Brundalen Borettslag, organisasjonsnummer 948 722 763
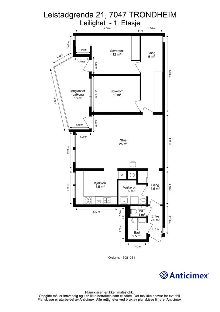
Innhold
Totalt
BRA: 111 kvm
BRA-i: 84 kvm
BRA-e: 14 kvm
BRA-b: 13 kvm
Kjelleretasje
BRA: 14 kvm
BRA-i: 0 kvm
BRA-e: 14 kvm. Tre stk boder på henholdsvis 4, 4 og 6 kvm.
BRA-b: 0 vm
1. etasje
BRA: 97 kvm
BRA-i: 84 kvm. Entré, gang, bad, toalettrom, vaskerom, kjøkken, stue, gang og to soverom.
BRA-e: 0 kvm
BRA-b: 13 kvm. Innglasset balkong.
Det gjøres oppmerksom på at boligens eksterne boder tilhører borettslagets fellesareal, og at bodene således ikke eies av den enkelte andelseier. Dette medfører at borettslaget i fellesskap beslutter bruken, og at man ikke selv har eierrett og rettsvern for bodene. Borettslaget kan ved vedtak beslutte annet bruk av fellesarealet og disponering av bodarealene kan dermed opphøre.
Vedlagte plantegninger er ikke målbare. De oppgitte arealer er hentet fra rapport med befaringsdato 14.04.2026 utført av Anticimex AS avd. Trondheim. Arealene er beregnet og rom er definert etter dagens faktiske bruk, uavhengig av hva som er godkjent av bygningsmyndighetene.
Byggemåte
Selger har innhentet en tilstandsrapport av boligen/eiendommen. Av rapporten fremgår det at flere bygningsdeler har fått tilstandsgrad 2 og 3. Rapporten beskriver også avvik på undersøkte bygningsdeler uten tilstandsgrad. Kjøper overtar ansvaret for de opplysninger som fremkommer av salgsdokumentasjonen, og kan ikke gjøre gjeldende som mangel noe som burde vært kjent eller som ikke kan anses å ha betydning for avtalen.
Bygningen er iht. tilstandsrapporten oppført i 1969. Grunnmur og bærende konstruksjoner i hovedsak av betong. Bygget er oppført med kjeller. Yttervegger i en kombinasjon av tre- og betongkonstruksjoner. Utvendige fasader er kledd med fasadeplater og stående strekledning samt synlig murverk. Etasjeskillere av betong. Flatt tak. Entrédør med sikkerhetslås. Vinduer med karmer av tre, som er utvendig belagt med metallplater. Balkongdør med karmer av tre, som er utvendig belagt med metallplater. Les for øvrig mer om byggemåte og den tekniske tilstanden i rapporten.
Tilstandsrapporten er inntatt i salgsoppgaven. Rapporten inneholder informasjon om avvikene og konsekvensen av disse. For avvik som er gitt TG3 har den bygningssakkyndige i tillegg gitt et anslag på hva det vil koste å utbedre disse avvikene. Ettersom kjøper regnes å være kjent med forhold som tydelig fremgår av tilstandsrapporten, oppfordres du til å sette deg grundig inn i rapporten i sin helhet.
Standard
Rapporten fra takstmann er en teknisk gjennomgang av boligen og angir eventuelle byggetekniske avvik. Sammendraget under beskriver avvik ved boligen som har fått tilstandsgrad 2 og 3.
Tilstandsgrad 2:
- Vaskerom: Fuktskader registreres i området rundt utslagsvasken. Vannsprut vurderes som sannsynlig årsak. Lokalfallet i sluksonen er mindre enn anbefalt. Fallforhold utenfor sluksonen vurderes ikke til å være tilstrekkelig for å lede eventuelt lekkasjevann til sluk, og det er ikke påvist at vanntett sjikt har tilstrekkelig oppkant ved dørterskel for å kompensere for dette. Vanntett sjikt har en alder som erfaringsmessig tilsier at fremtidig funksjon er svært usikker. Sjablongmessig prisanslag gjelder for videre undersøkelser av fagkyndige. Kr 0 - 10.000,-. Vannrør av kobber (og tilhørende komponenter) har en alder som tilsier at fremtidig funksjon er usikker. Avløpsrør av støpejern har en alder som tilsier at fremtidig funksjon er usikker. Tilluftsspalte eller lignende er ikke etablert. Våtrommet har kun naturlig ventilasjon.
- Vannrør på kjøkken: Vannrør av kobber (og tilhørende komponenter) har en alder som tilsier at fremtidig funksjon er usikker.
- Avløpsrør på kjøkken: Avløpsrør av støpejern (og tilhørende komponenter) har en alder som tilsier at fremtidig funksjon er usikker.
- Vannrør på toalettrom: Vannrør av kobber (og tilhørende komponenter) har en alder som tilsier at fremtidig funksjon er usikker.
- Avløpsrør på toalettrom: Det vurderes at innvendige avløpsrør er skiftet eller delvis skiftet etter byggeåret, men det er ikke kjent når dette ble gjort, eller omfanget av arbeidet. Konsekvens er at siden det foreligger usikkerhet om hva som er gjort, og når arbeidet ble gjort er estimering av tilstand ikke mulig. Hele eller deler av rørsystemet kan derfor ha usikker fremtidig funksjon, som betyr at bygningsdelen kan ha økt risiko for nedsatt funksjon, funksjonssvikt eller andre aldersrelaterte problemer.
- Ventilasjon på toalettrom: Ventilasjonen vurderes som utilstrekkelig.
- Santærutstyr og innredning på toalettrom: Det er ikke registrert dreneringsspalte eller lignende åpninger fra den innebygde toalettsisternen. Det kan derfor ikke verifiseres om vanninstallasjonen er utført slik at eventuelt lekkasjevann raskt blir synliggjort.
- Vannrør: Vannrør av kobber (og tilhørende komponenter) har en alder som tilsier at fremtidig funksjon er usikker.
- Avløpsrør: Avløpsrør av støpejern (og tilhørende komponenter) har en alder som tilsier at fremtidig funksjon er usikker.
- Overflater gulv på andre rom: Synlige deler av gulvets overflatemateriale bærer preg av slitasje med enkelte riper og hakk. Forholdet vurderes i hovedsak til å være av estetisk betydning, men riper og hakk av en viss dybde kan gjøre at fuktighet som for eksempel fra rengjøring forårsaker misfarging eller lignende konsekvenser.
Tilstandsgrad 3:
- Bad: Det er valgt å vurdere våtrommet (og tilhørende bygningsdeler) med en samlet helhetsvurdering. Følgende hovedmomenter er lagt til grunn for vurderingen: Det er registrert riss/sprekk i flis ved ventil. Forholdet vurderes å skyldes en årsak som ikke lar seg kartlegge med visuell inspeksjon alene. Lokalfallet i sluksonen er mindre enn anbefalt. Konsekvens er at fallforholdet vurderes å ikke gi tilfredsstillende bortledning av bruksvann ved normal bruk. Fallforhold utenfor sluksonen vurderes ikke til å være tilstrekkelig for å lede eventuelt lekkasjevann til sluk, og det er ikke påvist at vanntett sjikt har tilstrekkelig oppkant ved dørterskel for å kompensere for dette. Konsekvens er at forholdet gir risiko for at vann kan renne ut i tilstøtende rom ved en lekkasje. Vanntett sjikt har en alder som erfaringsmessig tilsier at fremtidig funksjon er svært usikker (gjelder for produkter/løsninger etablert før år 2000). Konsekvensen er at bygningsdelen erfaringsmessig har risiko for nedsatt funksjon, utettheter eller andre aldersrelaterte problemer. Fornying av tettesjikt krever i de fleste tilfeller tiltak som komplett utskiftning/renovering av våtrom. Bygningsdelen er skjult, så den faktiske tilstanden/dagens tettefunksjon er ukjent. TG3 er satt i henhold til NS 3600. Overgang mellom sluk og vanntett sjikt er uoversiktlig. Konsekvensen er at det derfor ikke kan verifiseres at utførelsen er korrekt, eller at lekkasjesikkerheten er ivaretatt. Vannrør av kobber (og tilhørende komponenter) har en alder som tilsier at fremtidig funksjon er usikker. Konsekvensen er at bygningsdelen erfaringsmessig har risiko for nedsatt funksjon, funksjonssvikt eller andre aldersrelaterte problemer. Bygningsdelen er skjult, så den faktiske tilstanden er ukjent. Avløpsrør av støpejern har en alder som tilsier at fremtidig funksjon er usikker. Konsekvensen er at bygningsdelen erfaringsmessig har risiko for nedsatt funksjon, funksjonssvikt eller andre aldersrelaterte problemer. Bygningsdelen er skjult, så den faktiske tilstanden er ukjent. Tilluftsspalte eller lignende er ikke etablert. Konsekvens er at forholdet medfører redusert ventilering av våtrommet når døren er lukket. Foreslått tiltak er lokal utbedring. Våtrommet har kun naturlig ventilasjon. Konsekvens er at dette erfaringsmessig gir lavere luftutskifting enn mekanisk ventilasjon. Tilstandsgrad er satt i henhold til NS3600. Med bakgrunn i at våtrommets vegger er av mur/betong er det ikke praktisk mulig å gjennomføre fuktmåling/hulltaking i et område der det erfaringsmessig forekommer skader. Hulltaking og fuktmåling i lukkede konstruksjoner er derfor ikke utført. Tilstanden inne i konstruksjonen er ikke kjent. Det ble derimot gjennomført et overflatesøk med fuktindikator, uten at det ble påvist indikasjoner som tyder på fuktskader. Det er registrert svertesopp i fuger. Forholdet vurderes å ha sammenheng med fuktbelastning som følge av utilstrekkelig ventilasjon og/eller mangelfull uttørking etter bruk. Konsekvens av dette er at dersom forholdet vedvarer, kan det på sikt gi økt risiko for videre mikrobiell vekst og behov for vedlikeholdstiltak. Basert på våtrommets samlede tilstandsbilde og hovedmomentene nevnt ovenfor, må det påregnes fornyelse innen kort tid. Fornyelse kan utsettes noe dersom det iverksettes kompenserende tiltak, eller hvis videre bruk viser at våtrommet fortsetter å fungere lenger enn forventet, men dette vil medføre økt risiko for skjulte skader. Fornyelse av våtrom innebærer som oftest totalrenovering, og erfaring viser at oppstart av utbedrings- og fornyelsesarbeider ofte avdekker ytterligere forhold som krever tiltak, noe det må tas høyde for. Følgende sjablongmessige prisanslag gjelder for renovering av våtrommet. Sjablongmessig prisanslag kr 200.000 - 400.000,-.
Tilstandsrapporten og selgers egenerklæring følger vedlagt i salgsoppgaven. Interessenter må sette seg inn i dokumentene før bud inngis.
Løsøre og tilbehør
Vi viser til liste fra Norges Eiendomsmeglerforbund som gjelder fra 01.01.2020 angående løsøre og tilbehør.
Oppvaskmaskin, kjøleskap og komfyr medfølger leiligheten i følge selger.
I tillegg følger et parkettgulv, 13 pakker som er tenkt til bruk i leiligheten.
Pakkene med gulv ligger i boden i kjeller.
Oppvarming
Oppvarming av boligen skjer i hovedsak ved bruk av ildsted plassert på stue og panelovner (elektrisk oppvarming).
Ferdigattest/brukstillatelse
Det foreligger ikke ferdigattest på eiendommen, men leiligheten ble tillatt tatt i bruk 08.10.1971. Tillatelsen ble gitt på vilkår om at montering av jernstige under nødutganger fra alle tilfluktsrom ble montert. Kjøper overtar ansvaret for dette.
Videre foreligger det:
- Godkjent byggesøknad for nye balkonger datert 29.11.1995.
- Ferdigattest for fasaderehabilitering av 52 blokker datert 25.01.2022.
Dagens tegninger avviker fra opprinnelige tegninger:
- Vaskerommet er kledd igjen i senere tid.
- Gangen på 9 kvm er opprinnelig byggemeldt som klesbod.
Det gjøres oppmerksom på at det ikke lenger utstedes ferdigattest på tiltak det er søkt om før 1998 jf. plan- og bygningsloven § 21-10. Kommunen vil ikke kreve ferdigattest for disse tiltakene og vil avvise eventuelle søknader. Bestemmelsen innebærer ikke at tiltak med manglende søknad blir lovlige, men at man ikke trenger å avslutte gamle byggesaker. Normalt sett kreves ferdigattest for alle søknadspliktige tiltak som gjøres etter plan- og bygningsloven.
Kjøper overtar eiendommen slik den fremstår på visning.
Tinglyste heftelser og rettigheter
Utover andel fellesgjeld overdras leiligheten fri for pengeheftelser.
Borettslaget har legalpant for forfalte felleskostnader og andre krav som følger av borettslagsforholdet iht. burettslagsloven § 5-20. Pantet er begrenset oppad til 2G (G = folketrygdens grunnbeløp).
Det er tinglyst følgende servitutt på borettslagets eiendom.
- Dagboknr 14845, tinglyst 29.10.1970, type heftelse: Bestemmelse om trafostasjon/kiosk. Bestemmelse om adkomstrett.
Servitutten vil følge eiendommen. Kjøpers bank vil få prioritet etter ovennevnte heftelser og servitutter.
Eventuell adgang til utleie
Andelseier kan ikke uten samtykke fra styret i borettslaget overlate bruken av boligen til andre. Med samtykke kan andelseier overlate boligen til andre i inntil tre år hvis andelseier har bodd i boligen i minst ett av de to siste år.
Det er tillatt for andelseier å leie ut egen bolig i inntil 30 døgn per kalenderår uten krav om styrets samtykke. Styret kan ikke nekte slik utleie og skal heller ikke godkjenne leietakere. Andelseier skal ikke låne ut nøkler som går til fellesareal i kjeller og utebod. Brudd på dette medfører erstatningsansvar for bytte av låssystem og andre tap eller skader. Bruk av kodebrikke på hoveddøren og smartlås på inngangsdøren til leiligheten er eneste tilgangsløsning. Bruk av nøkkelboks er ikke tillatt.
Utleie i andre tilfeller kan godtas ved særlige grunner, jf. burettslagslova § 5-6. Utleie forutsetter at leiligheten har forsvarlige radonverdier. Se også borettslagets vedtekter og konferer megler ved spørsmål.
Beliggenhet og tomteforhold
Beliggenhet og tomteforhold
Beliggenhet
Leistadgrenda 21 ligger i et veletablert og attraktivt boligområde i Brundalen, øst for Trondheim sentrum. Området er kjent for sine rolige omgivelser, gode bomiljø og familievennlige preg, og anbefales spesielt for familier med barn, etablerere og godt voksne. Her bor du i et trygt nabolag med godt naboskap og nærhet til det meste du trenger i hverdagen.
I nærområdet finner du et bredt tilbud av skoler og barnehager. Brundalen skole (1–7. trinn) ligger kun ca. 4 minutters gange unna, og det er også kort vei til Charlottenlund barne- og ungdomsskole samt Charlottenlund videregående skole. For de minste ligger blant annet Leistad barnehage og Brundalsgrenda barnehage i gangavstand.
Dagligvarebutikker som Kiwi Strinda og Coop Extra Charlottenlund nås enkelt til fots på rundt 12–13 minutter. I tillegg ligger både Moholtsenteret og Grilstadporten kjøpesenter en kort kjøretur unna, med et variert utvalg av butikker og servicetilbud. For større handel er det også kort vei til City Lade og Sirkus Shopping.
Området har gode kollektivforbindelser. Nærmeste bussholdeplass ved Charlottenlund videregående skole ligger ca. 6 minutters gange fra boligen, med hyppige avganger til Trondheim sentrum. Togforbindelse fra Rotvoll stasjon gir ytterligere fleksibilitet for pendling.
For den aktive er det gode muligheter rett utenfor døren. Estenstadmarka ligger i kort avstand fra boligen og byr på flotte turmuligheter året rundt, med preparerte skiløyper vinterstid og fine turstier resten av året. Her finner du også populære Estenstadhytta, perfekt for en pause underveis. I tillegg ligger idrettsanlegg og treningstilbud som Charlottenlund Sportsklubb og treningssentre i nærområdet.
Dette er et område som kombinerer nærhet til natur, gode servicetilbud og enkel tilgang til byen – ideelt for en aktiv og komfortabel hverdag.
Adkomst
Se Google maps - det er enkelt å finne frem i kartet.
Link: https://maps.app.goo.gl/5aikMzWCMyTuVCEK7
Barnehager, skoler og fritid
Barnehager i nærheten:
- Leistad barnehage (1-5 år) 0,3 km
- Brundalsgrenda barnehage (3-6 år) 0,6 km
- Charlottenlund barnehage (1-5 år) 0,9 km
Skoler i nærheten:
- Brundalen skole (1-7 kl.) 0,3 km
- Charlottenlund barneskole (1-7 kl.) 1,1 km
- Åsvang skole (1-7 kl.) 1,9 km
- Charlottenlund ungdomsskole (8-10 kl.) 1,1 km
- Charlottenlund videregående skole (1.100 elever) 0,6 km
- Lukas videregående skole (80 elever) 4,4 km
Varer og tjenester:
- Moholtsenteret 7 min med bil
- Grilstadporten kjøpesenter 7 min med bil
- Vitusapotek Ranheim 7 min med bil
- Apotek 1 Strindheim 8 min med bil
- Valentinlyst Vinmonopol 9 min med bil
- Lade Vinmonopol 10 min med bil
Informasjon om tilhørende skolekretser er hentet fra Prognosesenteret som dataleverandør, og tilhørigheten kan årlig endres av kommunen. Dersom skole- og barnehagetilbud er av betydning for kjøpet, ber vi om at det rettes en særskilt henvendelse til kommunen/bydelsadministrasjonen for oppdatert informasjon.
Beskrivelse av tomt
Eiertomt på 59.717,7 kvm som tilhører borettslaget pent opparbeidet med blant annet asfalterte veier, grus, lekeplass, biloppstillingsplass, plenarealer og andre forskjellige beplantninger.
I tillegg eier borettslaget halvparten av 5001-16/77/0/0 (barnehage) på 2.009 kvm. Trondheim kommune eier resterende halvpart av tomten. Hjemmelen til hele tomten er registrert på borettslaget.
Parkering
Borettslaget har 160 garasjer i rekke samt 34 plasser i P-hus hvor av 2 HC-plasser. Alle garasjene v/ A. Holsts vei, Br.grenda Nedre og Storplassen i Leistadgrenda har mulighet for lading av elbil. Ledige garasjer tildeles av TOBB etter hvert som oppsigelsene kommer inn og nøkler blir innlevert hos vaktmester. Tildelingen skjer etter boansiennitet. Det betales innskudd for garasjer i Brundalen Borettslag. Ved tildeling av garasje betales også et gebyr til TOBB. Søknad kan fylles ut på tobb.no, eller kan sendes per post til TOBB.
Det er utbygd et ladeanlegg til elbil i Aunegrenda, alle parkeringsplasser har blitt klargjort for lading, ved at det er lagt opp strømtilførsel og forseglet med deksel. Borettslaget har valgt Aneo Mobility som totalleverandør av ladetjenester for ladbare biler. Alle spørsmål og henvendelser knyttet til ladetjenesten blir håndtert av Aneo Mobilitys egen serviceavdeling. Når behovet for lading av elbil oppstår, bestilles ladeabonnement på Aneo Mobilitys nettside hvor man mottar laderen i posten etter noen dager.
Vei, vann og avløp
Eiendommen har adkomst via privat vei med felles vedlikeholdsansvar for borettslaget.
Eiendommen er tilknyttet kommunalt ledningsnett via private stikkledninger. Borettslaget er ansvarlig for private stikkledninger til bygningen.
Regulerings-og arealplaner
Eiendommen er regulert til boligformål i henhold til reguleringsplan r1108 datert 19.07.1968 med tilhørende reguleringsbestemmelser. Eiendommen er også berørt av reguleringsplan r0313 datert 14.06.1988, r0441 datert 26.08.2004, r20130051 datert 24.04.2014 og r20140036 datert 07.12.2017 samt r0313c datert 03.07.1990.
Utsnitt av plan med tilhørende bestemmelser kan fås ved henvendelse til megler.
Økonomi
Økonomi
Boligens kostnader
Felleskostnadene er kr 7.020,- per måned og inkluderer:
- Felleskostnad driftsdel kr 1.665,-
- Felleskostnad avdrag kr 896,-
- Felleskostnad driftsdel kr 2.803,-
- Felleskostnad avdrag kr 750,-
- Felleskostnad renter kr 345,-
- Tillegg elektroniske fellesavtaler kr 441,-
- Vasking fellesareal kr 120,-
Felleskostnadene justeres normalt en til to ganger årlig i forhold til borettslagets faktiske utgifter.
Nåværende eier har et strømforbruk som tilsvarer ca. kr 5.000,- per år / 7.300 kwh. per år.
Utgiftene er basert på nåværende eiers forbruk. Kjøper må selv tegne innboforsikring.
Formuesverdi
Formuesverdi for 2024 var kr 1.078.362,- ifølge Skatteetaten. Beløpet forutsetter at eier bor fast i boligen (primærbolig).
Ved eventuell øvrig bruk av eiendommen (f.eks. fritidsbolig, pendlerbolig, utleieobjekt) var formuesverdien for 2024 kr 4.313.446,-.
Fra 2026 har Stortinget vedtatt en oppdatert modell for beregning av formuesverdi for primærbolig, så avvik kan forekomme. For mer informasjon se skatteetaten.no.
Opplysninger om fellesgjeld
Andel formue er kr 28.273,- per 31.12.2025.
Andel fellesgjeld er kr 554.063,- per 09.04.2026.
Total fellesgjeld for boligselskapet er kr 294.518.690,- per 09.04.2026 og lånevilkårene er:
Lånenummer: 14637525, Den Norske Stats Husbank
Annuitetslån, 2 terminer per år.
Rentesats per 09.04.2026: 4.07% pa.
Antall terminer til innfrielse: 47
Saldo per 09.04.2026: 38 930 276
Andel av saldo: 73 238
Første termin/første avdrag: 20.10.2019 ( siste termin 20.04.2049 )
Flytende rente
Lånenummer: 14638589, Den Norske Stats Husbank
Annuitetslån, 2 terminer per år.
Rentesats per 09.04.2026: 4.07% pa.
Antall terminer til innfrielse: 47
Saldo per 09.04.2026: 66 004 937
Andel av saldo: 124 172
Første termin/første avdrag: 20.10.2019 ( siste termin 20.04.2049 )
Flytende rente
Lånenummer: 14638915, Den Norske Stats Husbank
Annuitetslån, 2 terminer per år.
Rentesats per 09.04.2026: 4.07% pa.
Antall terminer til innfrielse: 51
Saldo per 09.04.2026: 70 818 137
Andel av saldo: 133 227
Første termin/første avdrag: 31.12.2021 ( siste termin 30.06.2051 )
Flytende rente
Lånenummer: 146391388, Den Norske Stats Husbank
Annuitetslån, 2 terminer per år.
Rentesats per 09.04.2026: 4.07% pa.
Antall terminer til innfrielse: 52
Saldo per 09.04.2026: 70 924 239
Andel av saldo: 133 426
Første termin/første avdrag: 20.08.2022 ( siste termin 20.02.2052 )
Lånenummer: 90517376514, Svenska Handelsbanken AB NUF
Serielån, 4 terminer per år.
Rentesats per 09.04.2026: 4.84% pa.
Antall terminer til innfrielse: 40
Saldo per 09.04.2026: 47 841 101
Andel av saldo: 90 001
Første termin/første avdrag: 30.09.2024 ( siste termin 31.03.2036 )
3 MND Nibor + Margin 0,52%
Omkostninger
2 790 000,00 Prisantydning
590 000,00 Andel av fellesgjeld
--------------------------------------------------------
3 380 000,00 Pris inkl. fellesgjeld
Omkostninger
8 406,00 Gebyr forhåndsavklaring forkjøpsrett
9 950,00 Gjensidige Boligkjøperpakke* (valgfritt)
545,00 Tinglysing hjemmel
545,00 Tinglysing panterettsdokument
--------------------------------------------------------
9 496,00 Omkostninger totalt (uten Gjensidige Boligkjøperpakke)
19 446,00 Omkostninger totalt (med Gjensidige Boligkjøperpakke)
--------------------------------------------------------
3 389 496,00 Totalpris inkl. omkostninger
3 399 446,00 Totalpris inkl. omkostninger (med Gjensidige Boligkjøperpakke)
--------------------------------------------------------
Dersom kjøper ikke er medlem av boligbyggelaget, må det påregnes en innmeldingsavgift på kr 400,- og årlig medlemsgebyr på kr 350,- per ny andelseier. Dette faktureres direkte fra boligbyggelaget.
Dersom borettslaget har fellesgjeld, vil leilighetens andel av fellesgjelden komme i tillegg til kjøpesummen. Denne gjelden skal ikke innbetales i oppgjøret, men følger leiligheten. Det tas forbehold om endringer i avgifter og gebyrer.
Betalingsbetingelser
Kjøpesum inkludert omkostninger, samt pantedokument tilknyttet eventuelt lån, skal være disponibelt hos megler 2 virkedager før overtagelsen.
Annen viktig informasjon
Annen viktig informasjon
Eier
Runar Brumo
Informasjon om borettslaget
Leiligheten er tilknyttet Brundalen Borettslag.
Borettslaget består av 555 boliger.
Forretningsfører er Boligbyggelaget TOBB.
Dugnad må påregnes. Brundalen Borettslag har et generelt forbud mot kattehold vedtatt på generalforsamlingen våren 1975. Det kan søkes om å holde hund i borettslaget. Det er ikke anledning til å anskaffe husdyr før andelseieren har innhentet skriftlig tillatelse etter søknad. Eiere som har fått tillatelse til å holde husdyr, må sørge for å ha full kontroll over dyret til enhver tid, og påse at dyret ikke sjenerer noen eller etterlater ekskrementer på boligselskapets område. Forbud mot enkelte typer husdyr må respekteres.
Foretatte påkostninger de senere år:
- Borettslaget gjennomførte i perioden 2016-2021 en omfattende rehabilitering.
- Rørfornying i Brundalsgrenda 14.
- Reparasjoner og skifting av glass på verandaer.
- Utskifting av lysarmatur på verandaer.
- Service/kontroll av brannslukningsapparat.
- Overtakelse av gatelys pålagt av Trondheim kommune.
- Reparasjon av tak i P-hus.
- Utskifting av røykvifter på tak.
Planlagte påkostninger:
Borettslaget skal straks gå i gang med planlegging av et stort prosjekt med rørfornying i hele borettslaget. På dette tidspunktet har borettslaget ingen informasjon om hvor mye dette vil påvirke felleskostnadene annet enn at det vil påvirke.
Rehabilitering av piper:
Søknad om å få sette på hull på piperør skal rettes til Driftsavdelingen eller styret før arbeidet igangsettes. Autorisert firma skal stå for utføringen av arbeidet.
Oppussing av våtrom:
Borettslaget dekker et begrenset beløp for utskifting av slukpotte. Det skal søkes til styret før arbeidet igangsettes og beløp som dekkes opplyses av styret. Det stilles krav til at arbeidet utføres av autorisert firma. Dokumentasjon sendes styret etter utført arbeid.
Entrédører:
Det er forbudt å spikre/skru i entredørene. Navneskilt henges opp på oppsatt plate i dørkarmen.Eventuell montering av sikkerhetslenker på entredørene må utføres av autorisert firma. Beboere som ikke følger reglene for behandling av entredørene må regne med at styret vil kreve utskiftning av døra på beboerens regning.
Balkonger:
Styret gjør oppmerksom på at balkongene er en del av den ytre fasaden i borettslaget. Det er derfor IKKE tillatt å henge opp gardiner etc. på balkongene. Det skal likeledes ikke bores i konstruksjonen. Panelet må ikke males/beises i andre farger enn de eksisterende
Terrasseplatter/levegger:
Andelseiere i 1. etasje har ikke anledning til å sette opp levegger eller bygge terrasser.
I henhold til borettslagets vedtekter må kjøper godkjennes av styret som ny andelseier. Det er kjøpers ansvar at styregodkjenning blir gitt, men styret kan ikke nekte godkjenning uten saklig grunn. Iht. burettslagslova kan man bare eie én andel i borettslaget. Kun fysiske personer kan være andelseiere.
Øvrige andelseiere i borettslaget og eventuelt medlemmer av boligbyggelaget har forkjøpsrett. TOBB bekrefter at 6 medlemmer har meldt interesse om å benytte seg av forkjøpsretten. Dersom boligen tas på forkjøpsrett løses kjøper fra avtalen.
Borettslaget er tilknyttet Klare Finans AS som dekker manglende innbetaling av felleskostnader fra øvrige andelseiere.Varighet av avtalen / oppsigelsesvilkår: Gjensidig oppsigelsestid med 6 mnd skriftlig varsel. Etter borettslagslovens bestemmelser skal vedtak om oppsigelse av sikringen gjøres av borettslagets generalforsamling. Sikringsselskapet kan til enhver tid si opp en avtale med sikringstaker dersom sikrede ikke oppfyller de krav som er stilt.
Dokumenter for borettslaget kan fås ved henvendelse til megler.
Overtakelse
Etter nærmere avtale. Overtakelse kan tidligst skje etter at forkjøpsretten for øvrige andelseiere i borettslaget og eventuelt medlemmer av boligbyggelaget er avklart, samt at styrets godkjennelse er avklart.
Boligselgerforsikring
Selger har i forbindelse med salget tegnet boligselgerforsikring levert av Gjensidige. Boligselgerforsikringen dekker selgers ansvar etter avhendingsloven begrenset oppad til kr 14 millioner. Dersom kjøper oppdager forhold ved eiendommen som hen mener utgjør en mangel ved eiendommen, vil Gjensidige behandle reklamasjonen på vegne av selger. Forsikringsvilkår kan fås ved henvendelse til megler.
Vedlagt salgsoppgaven følger selgers egenerklæringsskjema og tilstandsrapport. Interessenter må sette seg inn i dokumentene før bud inngis.
Boligkjøperforsikring
Innen kontraktsmøtet må kjøper ta stilling til om det ønskes å bestille Boligkjøperpakken gjennom Gjensidige. I denne gunstige pakken er boligen ferdig forsikret og inkluderer rettshjelpsforsikring, også kalt Boligkjøperforsikring. Rettshjelpsforsikring gir trygghet og tilgang på profesjonell juridisk hjelp dersom det oppdages uventede feil eller mangler det første året etter overtagelse. Forsikringsselskapet behandler i så fall ethvert mangelskrav kjøper måtte ha overfor selger.
Boligkjøperpakken inkluderer bygningsforsikring for hus og hytte, innboforsikring, flytteforsikring og dobbel rentedekning - i situasjoner hvor kjøper ikke får solgt nåværende primærbolig.
Kjøper mottar ingen særskilt faktura for Boligkjøperpakken da kostnaden det første året legges til kjøpesummen for boligen. Det gjøres oppmerksom på Krogsveen mottar et honorar for denne formidlingen. Produktark for Boligkjøperpakken ligger vedlagt i salgsoppgaven.
Dersom ikke boligkjøperpakke ønskes kan kun rettshjelpsforsikring, også kalt boligkjøperforsikring, tegnes særskilt via megler. Rettshjelpsforsikringen varer i 5 år fra overtagelse og leveres gjennom Gjensidige. Ta kontakt med megler for ytterligere informasjon.
Selskap og privatpersoner som driver med kjøp/salg/utvikling som ledd i egen næringsvirksomhet kan ikke tegne boligkjøperpakke eller rettshjelpsforsikring.
Budgivning
Forbrukerinformasjon om budgivning er vedlagt denne salgsoppgaven og er også på vår hjemmeside Krogsveen.no. Alle bud og budforhøyelser må inngis skriftlig. I tillegg må legitimasjon være fremlagt sammen med signatur fra budgiver.
Vi oppfordrer til å gi bud elektronisk via GI BUD-knappen på eiendommens hjemmeside på Krogsveen.no. Da vil samtlige vilkår bli oppfylt. Eventuelle forhøyelser eller endringer av budet kan bekreftes pr SMS eller på e-post. Vi oppfordrer alltid til å kontakte megler pr. telefon i tillegg da forsinkelser i SMS og e-post kan forekomme.
For at budene skal kunne bli behandlet og videreformidlet skriftlig til alle involverte parter, må alle bud ha en tilstrekkelig lang akseptfrist, jf. eiendomsmeglingsforskriften § 6-3.
Selger må også skriftlig akseptere budet før aksept kan formidles til budgiver. Akseptfrist bør derfor være på minimum 30 minutter, og budforhøyelser må derfor skje i god tid før fristens utløp.
Bud i forbrukerforhold kan uansett ikke settes med kortere frist enn kl. 12.00 første virkedag etter siste annonserte visning. I tillegg kan ikke budet ha forbehold om at det skal holdes hemmelig ovenfor øvrige interessenter. Megler har iht lov om eiendomsmegling ikke anledning til å videreformidle disse budene, og de vil dermed heller ikke bli journalført.
Etter at eiendommen er solgt vil kjøper og selger få tilsendt budjournal. Øvrige budgivere kan få utlevert kopi av budjournalen i anonymisert form.
Hvitvaskingsreglene
I henhold til lov om hvitvasking og terrorfinansiering har megler plikt til å gjennomføre kontrolltiltak overfor kunder, herunder fullmektiger. Dette innebærer bl.a. å bekrefte kunders og reelle rettighetshaveres identitet på bakgrunn av fremvist gyldig legitimasjon eller på annen godkjent måte, samt å innhente opplysninger om kundeforholdets formål og tilsiktede art. Dersom slike kundetiltak ikke kan gjennomføres, kan megler ikke etablere kundeforholdet eller utføre transaksjonen.
Hvis kjøper ikke bidrar til gjennomføring av kundekontrollen og dette fører til at transaksjonen blir forsinket eller ikke kan gjennomføres, vil dette ansees som mislighold av avtalen og gi selger rettigheter etter avhendingslova kapittel 5. I tilfeller der selger ikke bidrar til gjennomføring av løpende kundekontroll underveis i oppdraget, er det selger som misligholder sine forpliktelser etter avtalen og gi kjøper rettigheter etter avhendingslovens kapittel 4. Partene er selv ansvarlige for eventuelle kostnader og ansvar dette kan medføre. Eiendomsmegleren eller eiendomsmeglingsforetaket kan ikke holdes ansvarlig for de konsekvenser dette vil kunne få for partene eller andre som har interesser i eiendomshandelen.
Kjøper oppfordres til å innbetale kjøpesummen som ikke kommer fra låneinstitusjon i én samlet innbetaling fra egen konto i norsk bank. Megler har plikt til å melde fra til Økokrim om eiendomshandler som fremstår som mistenkelige. Melding sendes Økokrim uten at partene varsles.
Personopplysningsloven
I henhold til personopplysningsloven gjør vi oppmerksom på at interessenter kan bli registrert for videre oppfølging.
Lovanvendelse
Generelle bestemmelser
Salgsoppgaven er basert på de opplysningene selger har gitt til megler, den bygningssakyndiges tilstandsrapport, samt opplysninger innhentet fra kommunen, Kartverket og andre tilgjengelige kilder. Det er viktig at kjøper setter seg grundig inn i alle salgsdokumentene, herunder salgsoppgave, tilstandsrapport og selgers egenerklæring. Kjøper anses kjent med forhold som er tydelig beskrevet i salgsdokumentene, og slike forhold kan ikke påberopes som mangler. Dette gjelder uavhengig av om kjøper har lest dokumentene. Alle interessenter oppfordres til å undersøke eiendommen nøye, gjerne sammen med fagkyndig før bud inngis. Kjøper som velger å kjøpe usett kan ikke gjøre gjeldende som mangel noe han burde blitt kjent med ved undersøkelsen.
Dersom det er behov for avklaringer, anbefaler vi at interessenter rådfører seg med eiendomsmegler eller egne rådgivere før det legges inn bud.
En bolig som har blitt brukt i en viss tid, har vanligvis blitt utsatt for slitasje og skader kan ha oppstått. Slik bruksslitasje må kjøper regne med, og det kan avdekkes enkelte forhold etter overtakelse som nødvendiggjør utbedringer. Normal slitasje og skader som nødvendiggjør utbedring, er innenfor hva kjøper må forvente og vil ikke utgjøre en mangel.
Kjøper og selgers rettigheter og plikter reguleres av avtalen mellom partene, samt informasjonen som har vært tilgjengelig for kjøperen i forbindelse med handelen. Avtalen utfylles av avhendingsloven, og det gjelder ulike avtalevilkår avhengig av om kjøper er forbrukerkjøper eller ikke. Dette er nærmere beskrevet nedenfor.
På grunn av ulike avtalevilkår kan selger vurdere bud fra en som ikke er forbruker, ulikt fra en forbrukers bud. Dersom kjøper ikke er forbruker, er selger sitt mulige mangelsansvar begrenset fordi eiendommen selges "som den er". Selger kan ikke ta «som den er»- forbehold overfor en forbrukerkjøper. Selv et lavere bud fra en som ikke er forbruker kan foretrekkes fordi begrensningen i mulig mangelsansvar kan ha egenverdi for selger. Selger står fritt til å forkaste eller akseptere ethvert bud, og er for eksempel ikke forpliktet til å akseptere høyeste bud.
Budgiver skal i budskjema avgi egenerklæring om budgiver er forbruker eller næringsdrivende/ person som hovedsakelig handler som ledd i næringsvirksomhet. Budgivere får informasjon dersom andre bud er inngitt av en som ikke er forbruker.
Forbrukerkjøp - definisjon
Med forbrukerkjøp menes kjøp av eiendom når kjøperen er en fysisk person som ikke hovedsakelig handler som ledd i næringsvirksomhet.
Forbruker – avtalevilkår
Eiendommen har en mangel dersom den ikke er i samsvar med kravene som følger av avtalen, eller det foreligger brudd på bestemmelsene i avhendingsloven §§ 3-2 til 3-8. Hvis eiendommen ikke er i samsvar med det kjøperen må kunne forvente ut ifra alder, type og synlig tilstand, kan det være grunnlag for mangelskrav. Det samme gjelder hvis det er holdt tilbake eller gitt uriktige opplysninger om eiendommen. Dette gjelder likevel bare dersom man kan gå ut ifra at det virket inn på avtalen at opplysningen ikke ble gitt eller at mangelskravet ikke blir rettet i tide på en tydelig måte.
Boligen kan ha en mangel etter avhendingsloven § 3-3 andre ledd, dersom det er avvik mellom opplyst og faktisk innvendig areal, forutsatt at avviket er på 2% eller mer og minimum 1 kvm.
Ved beregning av et eventuelt prisavslag eller erstatning må kjøper selv dekke tap/kostnader opptil et beløp på kr 10 000 (egenandel).
Ikke-forbruker (næringsdrivende) – definisjon
Hvis kjøper er en juridisk person, eller en fysisk person som hovedsakelig handler som ledd i næringsvirksomhet, vil kjøpet ikke anses som et forbrukerkjøp.
Ikke-forbruker – avtalevilkår
Eiendommen har en mangel dersom den ikke er i samsvar med kravene som følger av avtalen.
Eiendommen selges «som den er», og selgers ansvar utover det konkret avtalte er da begrenset etter avhendingsloven § 3-9, første ledd andre setning.
Avhendingsloven § 3-3 andre ledd fravikes, og hvorvidt boligens arealsvikt utgjør en mangel vurderes etter avhendingsloven § 3-8.
Informasjon om kjøpers undersøkelsesplikt, herunder oppfordringen om å undersøke eiendommen nøye, gjelder også for kjøpere som ikke anses som forbrukere.
Det forutsettes at hjemmel overføres til kjøper. Hvis kjøper ikke ønsker hjemmelsoverføring av eiendommen, må det tas forbehold om dette i budet.
Meglers vederlag
Meglers vederlag betales av selger og er avtalt til:
- Vederlag: 1,25 % av salgssummen inkl. eventuell fellesgjeld.
Vederlag:
- Kontroll av hjemmel og heftelser kr 3.900,-
- Markedsføringspakke kr 29.900,-
- Oppgjør kr 8.900,-
- Tilrettelegging kr 16.000,-
- Visninger pr stk / Overtagelse kr 3.500,-
Utlegg:
- Eierskiftegebyr TOBB kr 6.725,
- Innhenting av informasjon TOBB kr 4.600,-
- Innhenting av offentlig opplysninger kr 2.193,25,-
- Tinglysing sikring kr 545,-
Andre utgifter:
- Boligselgerforsikring Gjensidige kr 7.935,50,-
- Foto kr 4.125,-
- Innhenting av energiattest kr 310,-
- Interiørveiledning kr 1.875,-
- Tilstandsrapport leilighet kr 9.100,-
Vi er opptatt av verdiskapning, og har knyttet til oss samarbeidspartnere som skal sikre våre kunder de beste produkter og tjenester:
- I forbindelse med forberedelse av salget, innhenter vi informasjon om eiendommen hovedsakelig fra vår samarbeidspartner Ambita.
- Gjensidige leverer boligselgerforsikring og tilbyr bygningsforsikring.
- Boligkjøperforsikring leveres av Hiscox og med Sedgwick som skadebehandler, og er formidlet gjennom Gjensidige.
- BN bank tilbyr finansieringsløsninger.
- Vår avdeling Krogsveen Pluss tilbyr flyttetjenester som utvask, visningsvask, lager, tømming og transport av flyttelass, i tillegg til å formidle kontakt med Flip for overflateoppussing.
- I forbindelse med overtagelse av eiendommen tilbyr Overo avtale om strøm, alarm og bredbånd.
- Krogsveen er, sammen med øvrige bransjeaktører, medeier i Bomega AS som tilbyr den digitale annonseringsplattformen Hjem.
Opplysninger om oppdraget
Oppdragsnummer 68-0044/26
Eiendomsmegler Krogsveen AS, avd. Trondheim
Fjordgata 82, 7010, TRONDHEIM
950 007 613
Oppdragets KR-kode KR68.2644
Dato
Sist oppdatert: 09. mai 2026 kl. 15:45
Dokumenter
Dokumenter
PDF – 913 KB
PDF – 3 MB
PDF – 167 KB
PDF – 5 MB
PDF – 312 KB
PDF – 29 KB
PDF – 127 KB
PDF – 392 KB
Område
Legg til steder som er viktige for deg
Visning
For å delta på visning, ber vi om at du melder deg på. Kontakt megler dersom annet tidspunkt ønskes.
Lurer du på noe?
Unngå doble boligrenter
Vi tilbyr gunstig forsikring.
Vurderer du utleie?
Få et tilbud fra Utleie KrogsveenHva koster lånet?
Sjekk estimert lånekostnadVil du varsles om lignende boliger?
Ved å lagre ditt boligsøk hos oss får du beskjed når vi har en bolig som ligner denne, før den legges ut på markedet!


















