Feltspatveien 15
4 290 000 kr
103 m²
3 soverom
Solgt
Begby
Nyere og velholdt enebolig i kjede med praktisk romløsning. Tilbaketrukket inntil skogkanten i trygt og rolig nabolag.
Prisantydning
4 290 000 krOmkostninger
123 540 krTotalpris
4 413 540 kr
Pris
Bruksareal
109 m²BRA-I (internt bruksareal)
103 m²BRA-E (eksternt bruksareal)
6 m²TBA (terrasse-balkongareal)
45 m²
Areal
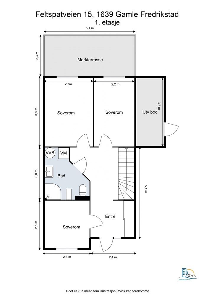
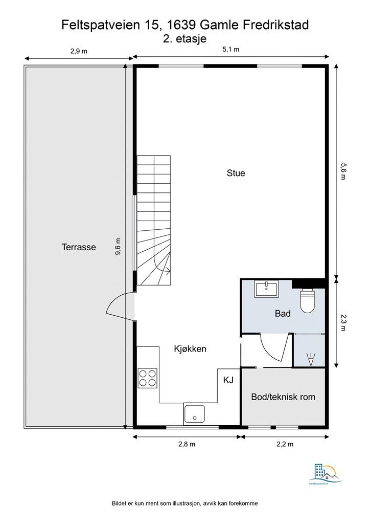
Etasje
2Byggeår
2014Soverom
3 soveromBad
2 badType
EierleilighetEierform
EierseksjonFellesutgifter
1 628 krEnergimerke
Oransje C
Nøkkelinfo
Unngå doble boligrenter
Vi tilbyr gunstig forsikring.
Vurderer du utleie?
Få et tilbud fra Utleie KrogsveenHva koster lånet?
Sjekk estimert lånekostnadBeskrivelse
Kort om eiendommen
Nyere enebolig i kjede fra 2014 i utpreget familievennlige omgivelser på Begby
- Tilbaketrukket inntil skogkanten og i gatens indre del
- Velholdt standard fra byggeåret, påkostninger utført i senere år
- Praktisk romløsning med tre soverom på én flate
- HTH-kjøkken med alle hvitevarer integrert
- Bad i begge etasjer, hovedbad nylig oppgradert med dusjkabinett og nye møbler
- Stor takaltan over carport og skjermet platting i bakhage
- Uisolert bod i carport oppgradert med vinylgulv, trepanel og stikkontakter
- Biloppstillingsmuligheter også i oppkjørsel foran carport
- Blindgate med rolig og barnevennlig miljø
- Lekeplasser lett tilgjengelig få meter unna
- Kort vei til barne- og ungdomsskole, barnehager og idrettsanlegg
Område
Legg til steder som er viktige for deg
På flyttefot? Tenk kjøp og salg samtidig.
Få din egen rådgiver gjennom hele kjøps- og salgsprosessen. Det starter med en verdivurdering.
Unngå doble boligrenter
Vi tilbyr gunstig forsikring.
Vurderer du utleie?
Få et tilbud fra Utleie KrogsveenHva koster lånet?
Sjekk estimert lånekostnadVil du varsles om lignende boliger?
Ved å lagre ditt boligsøk hos oss får du beskjed når vi har en bolig som ligner denne, før den legges ut på markedet!
På flyttefot? Slik gjør vi det enklere for deg
Skreddersydd flyttepakke
Vi fikser håndverkere, vask, pakking, lagring og transport, og legger ut for utgiftene underveis.
Hjelp med både kjøp og salg
Hos oss har du din egen rådgiver gjennom hele kjøps- og salgsprosessen.
Hjelp til finansiering
Vårt samarbeid med BN Bank sikrer deg rask og løsningsorientert hjelp, til konkurransedyktige betingelser.




