Tollbugata 29A
1 850 000 kr
28 m²
Komplett salgsoppgave
Strømsø
Svært sentral og pendlervennlig 1-roms leilighet i 4. etg (3. boligetg). Bad fra 2025. Kjøkken fra 2019.
Prisantydning
1 850 000 krAndel fellesgjeld
489 476 krOmkostninger
11 040 krTotalpris
2 350 516 kr
Pris
Bruksareal
30 m²BRA-I (internt bruksareal)
28 m²BRA-E (eksternt bruksareal)
2 m²
Areal
Etasje
4Byggeår
1976Bad
1 badType
AndelsleilighetEierform
AndelFasiliteter
HeisFellesutgifter
6 425 krEnergimerke
Rød D
Nøkkelinfo
Unngå doble boligrenter
Vi tilbyr gunstig forsikring.
Vurderer du utleie?
Få et tilbud fra Utleie KrogsveenHva koster lånet?
Sjekk estimert lånekostnadBeskrivelse
Kort om eiendommen
Innhold og byggemåte
Innhold og byggemåte
Eiendommen
Tollbugata 29A, 3044 DRAMMEN
Kommunenummer 3301, gårdsnummer 110, bruksnummer 566, seksjonsnummer 2
Andelsnummer 37, Tollbugaten 29 borettslag, organisasjonsnummer 956292085
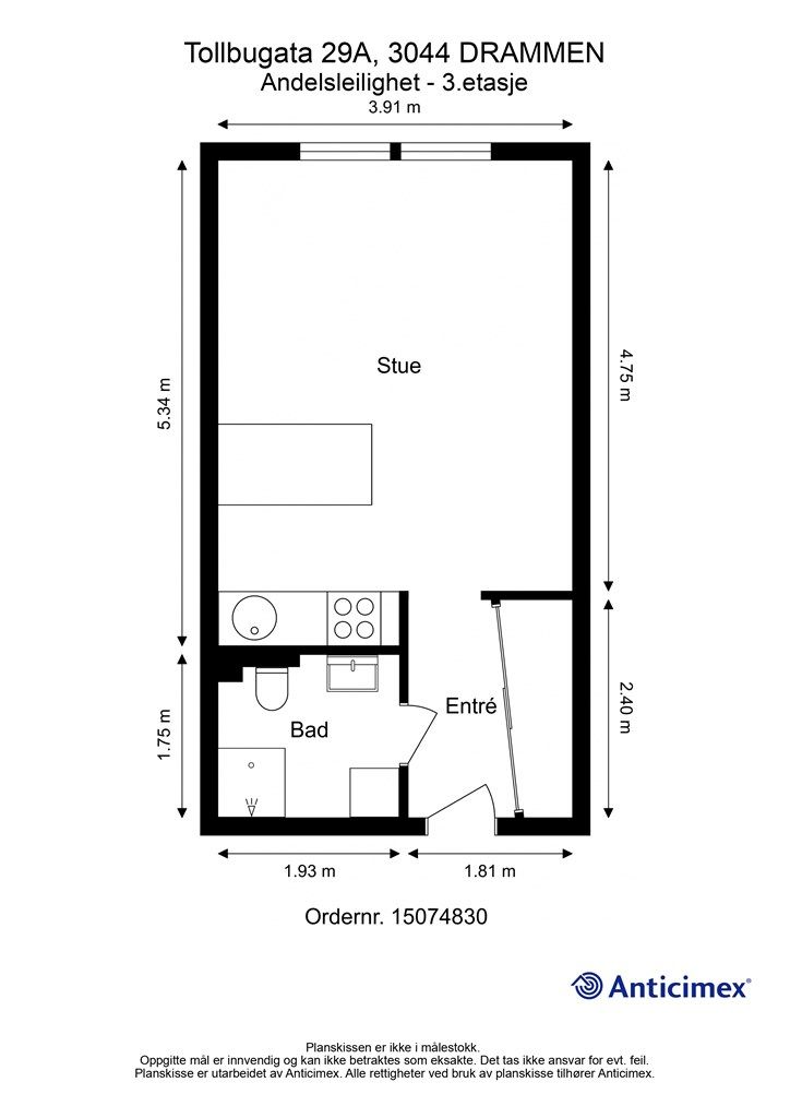
Innhold
BRA-i (internt bruksareal)
4. etasje:
28 kvm: Stue/kjøkken, bad og entré.
BRA-e (eksternt bruksareal)
4. etasje:
2 kvm: 2 boder i felles kjeller.
Det gjøres oppmerksom på at dagens boder er etablert i borettslagets fellesareal, og at bodene således ikke eies av den enkelte andelseier. Dette medfører at borettslaget i fellesskap beslutter bruken, og at man ikke selv har eierrett og rettsvern for boden. Borettslaget kan ved vedtak beslutte annet bruk av fellesarealet.
De oppgitte arealer er hentet fra rapport utført av Rune Nielsen. Arealene er beregnet og rom er definert etter dagens faktiske bruk, uavhengig av hva som er godkjent av bygningsmyndighetene.
Byggemåte
Bygningen er iht. tilstandsrapport, oppført på grunn av betong. Bærende konstruksjoner, etasjeskiller av betong og murkonstruksjoner. Tilnærmet flat takkonstruksjon tekket med papp/folie (ikke besiktiget), taket ble lagt nytt i 2023 iflg. selger (utført i regi av borettslaget).Leiligheten har slett entrédør med brannklasse B30 og lydklasse db38 fra 2025. Vinduer med karmer av tre, og to-lags glass (fra 2020). Les forøvrig mer om byggemåte og den tekniske tilstanden i rapporten.
Tilstandsrapporten og selgers egenerklæring er vedlagt salgsoppgaven. Interessenter må sette seg inn i dokumentene før bud inngis.
Standard
Felles inngangsparti med videre heis- og trappeadkomst til leilighetens etasjeplan (4. etasje - 3. boligetasje). Leiligheten disponerer to boder i felles kjelleretasje. Beboere har tilgang til en stor felles takterrasse med sittemøblement og felles grill, det er også tilgang til felles vaskekjeller. Det er i tillegg mulighet for å dyrke egne grønnsaks- og fruktvekster i felles plantekasser.
Stue/kjøkken: Stue med sofaområde og sengeplass (opplegg for forheng rundt sengen). Pen høyglans IKEA-kjøkkeninnredning fra 2019 med helintegrerte hvitevarer. Over- og underskap i glatt samt grå utførelse. Tilsvarende utførelse på en praktisk kjøkkenhalvøy med barløsning. Flislagt felt på vegg over benkeplate av laminat. Lysarmaturer under overskap. Videre er kjøkkenet utstyrt med ventilator, komfyrvakt, platetopp, stekeovn, oppvaskkum, automatisk vannstopper med fuktsensor, oppvaskmaskin, benkekjøleskap og benkefryseskap. Laminat på gulv, malte vegger og malt himling.
Bad: Badet ble rehabilitert i 2025, utført i regi av borettslaget. Lyst og pent bad. Heldekkende servant over servantskap i hvit og glatt utførelse. Speilskap med lysarmatur over servant. videre er badet utstyrt med vaskemaskin, vegghengt toalett og dusjhjørne med foldedører av glass. Opplegg for vaskemaskin. Downlights i tak og gulvvarme. Fliser på gulv, fliser på vegger og malt himling.
Entré: Dørcallinganlegg med åpnerfunksjon. Skyvedørsgarderobe med speilfronter, praktisk skuffeinnredning i garderoben. Fliser på gulv, malte vegger og malt himling.
Generelt om boligen: Mekanisk avtrekksventilasjon tilknyttet kjøkken og bad ble skiftet i 2025, utført i regi av borettslaget. Leiligheten er tilknyttet felles varmtvann. Sikringsskap med automatsikringer (skiftet til automatsikringer i 2023), utført i regi av borettslaget), plassert i felles gang.
Selger har fått utarbeidet en tilstandsrapport for eiendommen, dvs. en teknisk gjennomgang av boligen hvor eventuelle avvik, risiko for kjøper og prisoverslag for hva som bør gjøres av oppgradering, er skissert. Se særskilt TGIU (tilstandsgrad ikke undersøkt), samt TG2 og TG3 som viser hva som er avvik fra boligens normale slitasje, alder og type, eller som bør/må utbedres. Rapporten og selgers egenerklæring er en del av salgsoppgaven og må leses nøye før bud inngis. Kjøper overtar ansvaret for de opplysninger som fremkommer av salgsdokumentasjonen, og kan ikke gjøre gjeldende som mangel noe som burde vært kjent eller som ikke kan anses å ha betydning for avtalen.
I rapporten fremkommer det som takstmannen mener kjøper må være særskilt oppmerksom på, dette gjelder blant annet (se utfyllende tekst i rapporten):
Følgende kontrollpunkter/forhold har blitt tildelt TG2:
- Øvrige rom: Panelplater har felt som er borte, stedvis riss/sprekker i flisfuger og bomlyd under enkelte gulvfliser.
Følgende kontrollpunkter/forhold har blitt tildelt TG3:
Det er ingen punkter som har blitt tildelt TG3.
Følgende kontrollpunkter/forhold har blitt tildelt TGIU (tilstandsgrad ikke undersøkt):
- Bad: Ikke foretatt demontering av downlights eller inspisert inne i konstruksjonen.
- Tekniske anlegg, VVS anlegg: Avløpsrør er skjult og evt. stakeluke er ikke lokalisert.
Det anbefales ytterligere undersøkelser av disse punktene.
Se vedlagt tilstandsrapport for supplerende informasjon vedrørende boligens tilstand.
Løsøre og tilbehør
Integrerte hvitevarer på kjøkkenet medfølger i handelen, dette gjelder platetopp, stekeovn, oppvaskmaskin, benkekjøleskap og benkefryseskap.
Vaskemaskin på bad medfølger.
Videre vises det til liste fra Norges Eiendomsmeglerforbund angående løsøre og tilbehør. Produkter og installasjoner som medfølger overdras uten noen form for garantier, utover eventuell gjenværende leverandørgaranti.
Oppvarming
Gulvvarme på bad. Videre er boligen basert på elektrisk oppvarming ved evt. panelovner.
Dersom det ikke er vegg- eller fastmonterte varmekilder i beboelsesrom ved visning, følger dette heller ikke med.
Ferdigattest/brukstillatelse
Drammen kommune opplyser om at det ikke foreligger ferdigattest eller midlertidig brukstillatelse i deres arkiv. I henhold til matrikkelen for eiendommen, er bygningen først registrert tatt i bruk i år 1976.
Det er utstedt godkjente byggetegninger for oppføring av bygningen datert 04.05.1975.
Det gjøres oppmerksom at det ikke lenger utstedes ferdigattest på tiltak det er søkt om før 1998 jf. plan- og bygningsloven §21-10. Kommunen vil ikke kreve ferdigattest for disse tiltakene og vil avvise eventuelle søknader. Bestemmelsen innebærer ikke at tiltak med manglende søknad blir lovlige, men at man ikke trenger å avslutte gamle byggesaker. Normalt sett kreves ferdigattest for alle søknadspliktige tiltak som gjøres etter plan - og bygningsloven.
Det er gitt ferdigattest for fasadeendring og oppføring av ramper datert 27.02.2023.
Kjøper overtar eiendommen slik den framstår på visning.
Tinglyste heftelser og rettigheter
Utover andel fellesgjeld overdras leiligheten fri for pengeheftelser, med unntak av borettslagets tinglyste panterett:
Borettslaget har legalpant for forfalte felleskostnader og andre krav som følger av borettslagsforholdet iht. burettslagsloven § 5-20. Pantet er begrenset oppad til 2G (G = folketrygdens grunnbeløp).
Tinglyst seksjoneringsbegjæring (borettslaget)
Dagboknummer: 5639
Tinglysningsdato: 18.08.1977
Omhandler seksjonering av eiendommen.
Seksjonsnummer 2, samleseksjon bolig, sameiebrøk 9/10.
Det er tinglyst 4 servitutter på borettslag eiendom. Disse omhandler blant annet bestemmelser om fjerning av skur, garasjer, brannvegger i garasje, adkomstrett m.m. Ingen av disse har direkte betydning for bruken av denne boligen.
Eventuell adgang til utleie
Andelseier kan ikke uten samtykke fra styret i borettslaget overlate bruken av boligen til andre. Med samtykke kan andelseier overlate boligen til andre i inntil tre år hvis andelseier har bodd i boligen i minst ett av de to siste år. Utleie i andre tilfeller kan godtas ved særlige grunner, jf. burettslagslova § 5-6. Utleie forutsetter at leiligheten har forsvarlige radonverdier. Se også borettslagets vedtekter og konferer megler ved spørsmål.
Diverse
Vi er opptatt av verdiskapning, og har knyttet til oss samarbeidspartnere som skal sikre våre kunder de beste produkter og tjenester;
• Gjensidige leverer boligselgerforsikring og tilbyr bygningsforsikring
• Boligkjøperforsikring leveres av Hiscox og med Sedgwick som skadebehandler, og er formidlet gjennom Gjensidige.
• BN bank tilbyr finansieringsløsninger
• Vår avdeling Krogsveen Pluss tilbyr flyttetjenester som utvask, visningsvask, lager, tømming og transport av flyttelass, i tillegg til å formidle kontakt med Flip for overflateoppussing.
• I forbindelse med overtagelse av eiendommen tilbyr Overo avtale om strøm, alarm og bredbånd.
• Krogsveen er, sammen med øvrige bransjeaktører, medeier i den digitale annonseringsplattformen Hjem.
Energimerking
Komplett energiattest inkludert oppvarmingskarakter fås ved henvendelse til megler eller lastes ned fra www.krogsveen.no.
Beliggenhet og tomteforhold
Beliggenhet og tomteforhold
Beliggenhet
Leiligheten har en fin og sentrumsnær beliggenhet. Gangavstand til alt av butikker og servicetilbud i sentrum. Få minutters gange til Marienlyst med fotballbaner, Drammensbadet, Drammenshallen, kunstis/kunstgress, Akropolis treningssenter, museum og flotte friområder. Gangavstand til elvepromenaden, Strømsø kjøpesenter, Drammens flotte bibliotek, Union Brygge/Papirbredden med Universitet i Sørøst-Norge m.m. Strømsø Torg er kun få minutters gange unna og det er ca. 10 minutters gange til Bragernes Torg.
Strømsgodset IF og Skiold ski og ballklubb er aktive idrettsforeninger i nærheten. De har eget treningsanlegg med kunstgressbane på Gulskogen og Marienlyst, samt naturisbane og kunstisbane på vinterstid. Kort vei til elveparken med tur og sykkelstier rundt elven. Drammen turnforening med egen hall og mange aktiviteter, for mer informasjon se www.drammenturn.no. Drammen slalåmklubb i Haukåsløypa slalåmbakke med egentrening og kurstilbud. Drammensbadet sentralt på Marienlyst har helårsanlegg med badeland og treningstilbud. Bikkjestykket friområde ved Austad gård. Kort vei til ski og turmuligheter i Strømsøåsen med lysløyper.
Svært kort gangavstand til bussholdeplass langs Tordenskiolds gate, se www.brakar.no for rutetider. Gangavstand til bussknutepunkt og togstasjon på Strømsø (ca. 400 m til togstasjonen). Gode togforbindelser mot Kongsberg (ca. 35 min), Oslo (ca. 35 min) og Tønsberg (ca. 35 min), se www.vy.no for avganger. Pga. ombygging av Drammen togstasjon vil det hovedsakelig være Flytogbuss fra togstasjonen til Gardermoen flyplass (i en periode), se www.flytoget.no for mer informasjon. Det gjøres oppmerksom på at regjeringen har signalisert en nedleggelse av Flytoget (uvisst om eksakt tidspunkt), hvor Vy vil overta trafikken på strekningene. Enkel påkjøring til E-18, både retning Oslo og Kristiansand.
Adkomst
Det vil bli skiltet med Krogsveen visningsskilt ved fellesvisninger. Se kart i nettannonse eller Google Maps for nærmere veibeskrivelse. Velkommen til visning!
Barnehager, skoler og fritid
Godt sammensatt tilbud av private og offentlige barnehager.
Barnehager: Solstreif Steiner barnehage (0,2 km), Strømsø barnehage (0,6 km), Danvik barnehage (1,1 km).
Skoler: Danvik barneskole (1,1 km) og Marienlyst ungdomsskole (0,7 km).
Drammen kommune har tre private barne- og ungdomsskoler, Drammen Realfagsskole Heltberg, Norlights Montessoriskole Drammen og Rosendal skole (Mjøndalen).
Det ligger flere videregående skoler i Drammen og Lier, samt Universitetet i Sørøst-Norge som har campus på Papirbredden i Drammen, for mer informasjon se www.usn.no.
Dersom skole- og barnehagetilbud er av betydning for kjøpet, ber vi om at det rettes en særskilt henvendelse til kommunen for oppdatert informasjon.
Beskrivelse av tomt
Eiertomt på 1 644 kvm som tilhører borettslaget.
Parkering
Parkering i gate etter områdets bestemmelser.
Borettslaget leier ut enkelte plasser i bakgården etter venteliste og ansiennitet.
Vei, vann og avløp
Eiendommen har adkomst via kommunal vei.
Eiendommen er tilknyttet kommunalt ledningsnett via private stikkledninger. Borettslaget er ansvarlig for private stikkledninger til bygningen.
Regulerings-og arealplaner
Eiendommen ligger i et uregulert område men er avsatt til kombinert bebyggelse og anleggsformål samt hensyn til miljøkvalitet, estetikk, natur, landskap og grønnstruktur ved kommuneplanens arealdel for Drammen kommune 2025-2037 datert 18.06.2025. Eiendommen omfattes i tillegg av Kommunedelplan sentrum datert 30.05.2006 med tilhørende bestemmelser. Utsnitt av planer med tilhørende bestemmelser kan fås ved henvendelse til megler.
I henhold til kommuneplanen er eiendommen innenfor et område med flomfare. Dette kan legge begrensninger for evt. utbygging, påbygg/tilbygg og andre terrenginngrep som på et generelt grunnlag er tillatt ifølge kommuneplanen.
Eiendommen er registrert innenfor et kulturmiljøområde som er fredet (eller planlagt fredet) etter kulturminnelova §20, samt område med verdsarvstatus (UNESCO). Dette kan medføre at større endringer av bygningen må godkjennes av kommunen eller fylket før igangsetting.
Det er vedtatt en detaljregulering for kvartalet avgrenset av Doktor Hansteins gate, Ryddinggangen, Tollbugata og Hesselbergs gate datert 20.09.2022, dette er naboeiendommen. Hensikten med planarbeidet er å sikre bevaring av verneverdige bygg, sanering av eksisterende bebyggelse på eiendommen i Tollbugata 39B, Doktor Hansteins gate 26 og utbygging av området med bolig, kontor og tjenesteyting med tilhørende parkering. Prosjektet har fått igangsettingstillatelse og arbeider med klargjøring av tomten for byggestart, forventet innflytting er estimert til 2. kvartal 2027 (pr. august 2025). Se mer informasjon på Drammen kommune sin hjemmeside og www.deciliteren.no.
På naboeiendommen er det en reguleringsplan som er under arbeid, dette gjelder Detaljregulering for Tordenskiolds gate 63. Hensikten med planen er å legge til rette for etablering av 350 400 elevplasser gjennom oppgradering av det eksisterende skolebygget og oppføring av et nytt tilbygg samt nytt grøntanlegg. Foreløpig status for planen er "planlegging igangsatt" og det ble kunngjort oppstart av plan den 22.06.2024, se kommunens hjemmeside for mer info. Tidshorisont og endelig utforming av prosjektet er pt. ikke klart, det må påregnes støy o.l. fra byggeprosjektet under utbyggingen (med forbehold om at planen blir vedtatt).
I nærområdet av eiendommen (langs elva/fjorden) er det en detaljreguleringsplan som er under arbeid, dette gjelder Detaljregulering for Doktor Hansteins gate 21-25. Hensikten med planen er å omregulere eiendommen til bolig, kontor, forretning, bevertning og offentlig og privat tjenesteyting. Ny bebyggelse foreslås oppført i inntil 10 etasjer med nedtrapping mot vest og vil utgjøre ca. 7300 m2 BRA. Foreløpig status for planen er "planlegging igangsatt" og det ble kunngjort oppstart av planarbeidet den 20.08.2020, se kommunens hjemmeside for mer info. Tidshorisont og endelig utforming av prosjektet er pt. ikke klart, det må påregnes støy o.l. fra byggeprosjektet under utbyggingen (med forbehold om at planen blir vedtatt).
Økonomi
Økonomi
Boligens kostnader
Felleskostnadene inkluderer bl.a. kommunale avgifter (vann og avløp), renovasjon, renter og avdrag på andel fellesgjeld, tv/internett grunnpakke, felles vedlikehold, felles driftskostnader, strøm i fellesarealer, forretningsførsel, revisjon- og administrasjonskostnader, styrehonorar, felles bygningsforsikring m.m.. Felleskostnadene justeres normalt en til to ganger årlig i forhold til borettslagets faktiske utgifter. Det tas forbehold om at felleskostnadene kan justeres fortløpende pga. renteøkninger.
Felleskostnadene pr. mnd fordeles slik:
Felleskostnader drift kr 6.425,-
Ifbm. sluttføring av renoveringsprosjektet er det vedtatt en økt ramme på inntil 5 millioner i låneopptak, det må påregnes en økning av andel fellesgjeld og felleskostnader for denne leiligheten.
Det må påregnes kostnader til strøm og nettleie, dette vil variere avhengig av strøm-/nettselskap. Nåværende eier har et strømforbruk på ca. 2.400 kWh pr. år.
Boligen er tilknyttet Telia som leverandør av tv/internett, grunnpakke er inkludert i felleskostnadene.
Det må påregnes kostnader til innboforsikring.
Ovenstående er basert på nåværende eier/husstands senere års forbruk/utgifter. Dette vil variere avhengig av antall beboere, ønsket innetemperatur, egne fordelsavtaler, kanalvalg, hastighet på bredbånd osv.
Formuesverdi
Formuesverdi for 2023 var kr 428 567,- ifølge skatteetaten. Beløpet forutsetter at eier bor fast i boligen (primærbolig).
Ved eventuell øvrig bruk av eiendommen (f.eks. fritidsbolig, pendlerbolig, utleieobjekt) var formuesverdien for 2023 kr 1 714 268,-.
Formuesverdien justeres normalt årlig. Se skatteetaten.no for mer informasjon om fastsettelse av formuesverdien.
Opplysninger om fellesgjeld
Andel formue er kr 382 862,- pr. 31.12.2024.
Andel fellesgjeld er kr 489 476,- pr. 19.08.2025.
Total fellesgjeld for boligselskapet er kr 43.933.318,- pr. 19.08.2025 og lånevilkårene er:
Lånenummer: 12138059020, DNB Bank ASA
Annuitetslån, 2 terminer per år.
Rentesats per 19.08.2025: 3.42% pa.
Antall terminer til innfrielse: 26
Saldo per 19.08.2025: 2 536 042
Andel av saldo: 28 255
Første termin/første avdrag: 30.06.2024 (siste termin 30.06.2038)
Fastrente/rentebindingsavtale t.o.m. 01.05.2029. Terminer er pr. halvår.
Lånenummer: 16366786248, DNB Bank ASA
Annuitetslån, 2 terminer per år.
Rentesats per 19.08.2025: 5.3% pa.
Antall terminer til innfrielse: 54
Saldo per 19.08.2025: 6 755 651
Andel av saldo: 75 267
Første termin/første avdrag: 30.06.2024 (siste termin 30.06.2052)
Flyttende rente, halvår terminer
Lånenummer: 16368942026, DNB Bank ASA
Annuitetslån, 4 terminer per år.
Rentesats per 19.08.2025: 5.3% pa.
Antall terminer til innfrielse: 116
Saldo per 19.08.2025: 34 641 626
Andel av saldo: 385 954
Første termin/første avdrag: 30.12.2024 (siste termin 30.06.2054)
Flyttende rente, kvartalsvis terminer
Borettslaget har ikke tilrettelagt for individuell nedbetaling av fellesgjeld.
Omkostninger
1 850 000,00 Prisantydning
489 476,00 Andel av fellesgjeld
--------------------------------------------------------
2 339 476,00 Pris inkl. fellesgjeld
Omkostninger
9 950,00 Gjensidige Boligkjøperpakke (valgfri)
545,00 Tinglysing hjemmel
545,00 Tinglysing panterettsdokument
--------------------------------------------------------
11 040,00 Omkostninger totalt
--------------------------------------------------------
2 350 516,00 Totalpris inkl. omkostninger
--------------------------------------------------------
Dersom kjøper ikke er medlem av boligbyggelaget, må det påregnes en innmeldingsavgift og årlig medlemsgebyr pr. ny andelseier. Dette faktureres direkte fra boligbyggelaget.
Dersom borettslaget har fellesgjeld, vil leilighetens andel av fellesgjelden komme i tillegg til kjøpesummen. Denne gjelden skal ikke innbetales i oppgjøret, men følger leiligheten.
Det tas forbehold om endringer i avgifter og gebyrer.
Tilbud om lånefinansiering
Megler formidler gjerne kontakt med rådgiver hos vår samarbeidspartner BN Bank. De har konkurransedyktige betingelser samt rask og løsningsorientert behandling av din lånesøknad. Krogsveen mottar et honorar for denne formidlingen.
Betalingsbetingelser
Kjøpesum inkludert omkostninger, samt pantedokument tilknyttet eventuelt lån, skal være disponibelt hos megler 2 virkedager før overtagelsen.
Annen viktig informasjon
Annen viktig informasjon
Eier
Tove Mette Hjelen og Ole Borgar Hjelen Hansen
Informasjon om borettslaget
Leiligheten er tilknyttet Tollbugaten 29 Borettslag.
Borettslaget består av 70 leiligheter.
Forretningsfører er USBL boligbyggelag.
Borettslagets årsregnskap for 2024 viser et underskudd på kr -2.586.445,-.
Disponible midler i borettslaget pr. 31.12.2024 kr 34.350.835,-.
Dugnader samt trappevask tilknyttet borettslaget må påregnes.
Dyrehold er i utgangspunktet ikke tillatt, men styret kan samtykke etter søknad dersom gode grunner taler for det samt dyreholdet ikke er til sjenanse for øvrige beboere.
Bygningsmessige arbeider som medfører støy, slik som saging, banking og boring, skal ikke skje etter kl. 1900 på hverdager. Dispensasjon for slikt arbeid kan (i spesielle tilfeller) fås av styret ved vaktmester, dog ikke senere enn kl. 2100 på hverdager, og ikke på helligdager jf. husordensreglene.
Styret er av den oppfatning at det utførte løpende og periodiske vedlikeholdet er tilstrekkelig for å opprettholde den bokførte verdien på bygningsmassen.
Foretatte arbeid/påkostninger i de senere år: Kontroll av glassverk på fellesveranda. Sikret ramper inn til blokka med nye braketter. Vedtatt installering av røykdetektor i alle leiligheter. Utbedring av terrassene i 5. etasje. Sikring av teglfasade.
Planlagte arbeid/påkostninger: Renoveringsprosjekt som omfatter vann- og avløpsrør, oppgradering av bad, skifte av inngangsdører og installasjon av røykvarslere i alle leiligheter. Ifbm. sluttføring av renoveringsprosjektet er det vedtatt en økt ramme på inntil 5 millioner i låneopptak, det er tidligere tatt opp et lån i 2024 på 35 millioner.
Styret opplyser at det skal installeres ett nytt og moderne callingsystem av typen Defigo med oppstart i januar/februar 2026. Defigo er en digital porttelefon og adgangskontroll hvor man benytter app/telefon for å slippe inn besøkende / åpne døren for seg selv.
I henhold til borettslagets vedtekter må kjøper godkjennes av styret som ny andelseier. Det er kjøpers ansvar at styregodkjenning blir gitt, men styret kan ikke nekte godkjenning uten saklig grunn. Iht. burettslagslova kan man bare eie en andel i borettslaget. Kun fysiske personer kan være andelseiere.
Borettslag har anledning til å være tilknyttet et sikringsfond som dekker eventuelt manglende innbetaling av felleskostnader. Dette borettslaget er ikke tilknyttet et slikt fond, noe som vil kunne medføre en risiko for økte felleskostnader dersom andre andelseiere ikke betaler sine felleskostnader. Borettslaget har imidlertid legalpant i andelen, og manglende betaling av felleskostnader kan dermed tvangsinndrives av borettslaget.
Borettslagets bygningsmasse er fullverdiforsikret i Gjensidige Forsikring ASA, polisenr.: 86385687.
Dokumenter vedrørende borettslaget kan fås ved henvendelse til megler.
Informasjon om forkjøpsrett
Øvrige andelseiere i borettslaget har forkjøpsrett. I henhold til burettslagslova tar dette 20 dager å avklare fra melding om salget er gitt borettslaget. Dersom boligen tas på forkjøpsrett løses kjøper fra avtalen.
Overtakelse
Etter nærmere avtale.
Boligselgerforsikring
Selger har i forbindelse med salget tegnet boligselgerforsikring levert av Gjensidige.
Boligselgerforsikringen dekker selgers ansvar etter avhendingsloven begrenset oppad til kr 14 millioner. Dersom kjøper oppdager forhold ved eiendommen som hen mener utgjør en mangel ved eiendommen, vil Gjensidige behandle reklamasjonen på vegne av selger. Forsikringsvilkår kan fås ved henvendelse til megler.
Vedlagt salgsoppgaven følger selgers egenerklæringsskjema og tilstandsrapport. Interessenter må sette seg inn i dokumentene før bud inngis.
Boligkjøperforsikring
Innen kontraktsmøtet må kjøper ta stilling til om det ønskes å bestille Boligkjøperpakken gjennom Gjensidige. I denne gunstige pakken er boligen ferdig forsikret og inkluderer rettshjelpsforsikring, også kalt Boligkjøperforsikring. Rettshjelpsforsikring gir trygghet og tilgang på profesjonell juridisk hjelp dersom det oppdages uventede feil eller mangler det første året etter overtagelse. Forsikringsselskapet behandler i så fall ethvert mangelskrav kjøper måtte ha overfor selger.
Boligkjøperpakken inkluderer bygningsforsikring for hus og hytte, innboforsikring, flytteforsikring og dobbel rentedekning - i situasjoner hvor kjøper ikke får solgt nåværende primærbolig.
Kjøper mottar ingen særskilt faktura for Boligkjøperpakken da kostnaden det første året legges til kjøpesummen for boligen. Det gjøres oppmerksom på Krogsveen mottar et honorar for denne formidlingen.
Produktark for Boligkjøperpakken ligger vedlagt i salgsoppgaven.
Dersom ikke boligkjøperpakke ønskes kan kun rettshjelpsforsikring, også kalt boligkjøperforsikring, tegnes særskilt via megler. Rettshjelpsforsikringen varer i 5 år fra overtagelse og leveres gjennom Gjensidige. Ta kontakt med megler for ytterligere informasjon.
Selskap og privatpersoner som driver med kjøp/salg/utvikling som ledd i egen næringsvirksomhet kan ikke tegne boligkjøperpakke eller rettshjelpsforsikring.
Budgivning
Forbrukerinformasjon om budgivning er vedlagt denne salgsoppgaven og er også på vår hjemmeside Krogsveen.no. Alle bud og budforhøyelser må inngis skriftlig. I tillegg må legitimasjon være fremlagt sammen med signatur fra budgiver.
Vi oppfordrer til å gi bud elektronisk via GI BUD-knappen på eiendommens hjemmeside på Krogsveen.no. Da vil samtlige vilkår bli oppfylt.
Eventuelle forhøyelser eller endringer av budet kan bekreftes pr SMS eller på e-post. Vi oppfordrer alltid til å kontakte megler pr. telefon i tillegg da forsinkelser i SMS og e-post kan forekomme.
For at budene skal kunne bli behandlet og videreformidlet skriftlig til alle involverte parter, må alle bud ha en tilstrekkelig lang akseptfrist, jf. eiendomsmeglingsforskriften § 6-3.
Selger må også skriftlig akseptere budet før aksept kan formidles til budgiver. Akseptfrist bør derfor være på minimum 30 minutter, og budforhøyelser må derfor skje i god tid før fristens utløp.
Bud i forbrukerforhold kan uansett ikke settes med kortere frist enn kl. 12.00 første virkedag etter siste annonserte visning. I tillegg kan ikke budet ha forbehold om at det skal holdes hemmelig ovenfor øvrige interessenter. Megler har iht lov om eiendomsmegling ikke anledning til å videreformidle disse budene, og de vil dermed heller ikke bli journalført.
Etter at eiendommen er solgt vil kjøper og selger få tilsendt budjournal. Øvrige budgivere kan få utlevert kopi av budjournalen i anonymisert form.
Hvitvaskingsreglene
I henhold til lov om hvitvasking og terrorfinansiering har megler plikt til å gjennomføre kontrolltiltak overfor kunder, herunder fullmektiger. Dette innebærer bl.a. å bekrefte kunders og reelle rettighetshaveres identitet på bakgrunn av fremvist gyldig legitimasjon eller på annen godkjent måte, samt å innhente opplysninger om kundeforholdets formål og tilsiktede art.
Dersom slike kundetiltak ikke kan gjennomføres, kan megler ikke etablere kundeforholdet eller utføre transaksjonen.
Hvis kjøper ikke bidrar til gjennomføring av kundekontrollen og dette fører til at transaksjonen blir forsinket eller ikke kan gjennomføres, vil dette ansees som mislighold av avtalen og gi selger rettigheter etter avhendingslova kapittel 5. I tilfeller der selger ikke bidrar til gjennomføring av løpende kundekontroll underveis i oppdraget, er det selger som misligholder sine forpliktelser etter avtalen og gi kjøper rettigheter etter avhendingslovens kapittel 4. Partene er selv ansvarlige for eventuelle kostnader og ansvar dette kan medføre. Eiendomsmegleren eller eiendomsmeglingsforetaket kan ikke holdes ansvarlig for de konsekvenser dette vil kunne få for partene eller andre som har interesser i eiendomshandelen.
Kjøper oppfordres til å innbetale kjøpesummen som ikke kommer fra låneinstitusjon i én samlet innbetaling fra egen konto i norsk bank. Megler har plikt til å melde fra til Økokrim om eiendomshandler som fremstår som mistenkelige. Melding sendes Økokrim uten at partene varsles.
Personopplysningsloven
I henhold til personopplysningsloven gjør vi oppmerksom på at interessenter kan bli registrert for videre oppfølging.
Lovanvendelse
Generelle bestemmelser
Salgsoppgaven er basert på de opplysningene selger har gitt til megler, den bygningssakyndiges tilstandsrapport, samt opplysninger innhentet fra kommunen, Kartverket og andre tilgjengelige kilder. Det er viktig at kjøper setter seg grundig inn i alle salgsdokumentene, herunder salgsoppgave, tilstandsrapport og selgers egenerklæring. Kjøper anses kjent med forhold som er tydelig beskrevet i salgsdokumentene, og slike forhold kan ikke påberopes som mangler. Dette gjelder uavhengig av om kjøper har lest dokumentene. Alle interessenter oppfordres til å undersøke eiendommen nøye, gjerne sammen med fagkyndig før bud inngis. Kjøper som velger å kjøpe usett kan ikke gjøre gjeldende som mangel noe han burde blitt kjent med ved undersøkelsen.
Dersom det er behov for avklaringer, anbefaler vi at interessenter rådfører seg med eiendomsmegler eller egne rådgivere før det legges inn bud.
En bolig som har blitt brukt i en viss tid, har vanligvis blitt utsatt for slitasje og skader kan ha oppstått. Slik bruksslitasje må kjøper regne med, og det kan avdekkes enkelte forhold etter overtakelse som nødvendiggjør utbedringer. Normal slitasje og skader som nødvendiggjør utbedring, er innenfor hva kjøper må forvente og vil ikke utgjøre en mangel.
Kjøper og selgers rettigheter og plikter reguleres av avtalen mellom partene, samt informasjonen som har vært tilgjengelig for kjøperen i forbindelse med handelen. Avtalen utfylles av avhendingsloven, og det gjelder ulike avtalevilkår avhengig av om kjøper er forbrukerkjøper eller ikke. Dette er nærmere beskrevet nedenfor.
På grunn av ulike avtalevilkår kan selger vurdere bud fra en som ikke er forbruker, ulikt fra en forbrukers bud. Dersom kjøper ikke er forbruker, er selger sitt mulige mangelsansvar begrenset fordi eiendommen selges "som den er". Selger kan ikke ta «som den er»- forbehold overfor en forbrukerkjøper. Selv et lavere bud fra en som ikke er forbruker kan foretrekkes fordi begrensningen i mulig mangelsansvar kan ha egenverdi for selger. Selger står fritt til å forkaste eller akseptere ethvert bud, og er for eksempel ikke forpliktet til å akseptere høyeste bud.
Budgiver skal i budskjema avgi egenerklæring om budgiver er forbruker eller næringsdrivende/ person som hovedsakelig handler som ledd i næringsvirksomhet. Budgivere får informasjon dersom andre bud er inngitt av en som ikke er forbruker.
Forbrukerkjøp - definisjon
Med forbrukerkjøp menes kjøp av eiendom når kjøperen er en fysisk person som ikke hovedsakelig handler som ledd i næringsvirksomhet.
Forbruker – avtalevilkår
Eiendommen har en mangel dersom den ikke er i samsvar med kravene som følger av avtalen, eller det foreligger brudd på bestemmelsene i avhendingsloven §§ 3-2 til 3-8. Hvis eiendommen ikke er i samsvar med det kjøperen må kunne forvente ut ifra alder, type og synlig tilstand, kan det være grunnlag for mangelskrav. Det samme gjelder hvis det er holdt tilbake eller gitt uriktige opplysninger om eiendommen. Dette gjelder likevel bare dersom man kan gå ut ifra at det virket inn på avtalen at opplysningen ikke ble gitt eller at mangelskravet ikke blir rettet i tide på en tydelig måte.
Boligen kan ha en mangel etter avhendingsloven § 3-3 andre ledd, dersom det er avvik mellom opplyst og faktisk innvendig areal, forutsatt at avviket er på 2% eller mer og minimum 1 kvm.
Ved beregning av et eventuelt prisavslag eller erstatning må kjøper selv dekke tap/kostnader opptil et beløp på kr 10 000 (egenandel).
Ikke-forbruker (næringsdrivende) – definisjon
Hvis kjøper er en juridisk person, eller en fysisk person som hovedsakelig handler som ledd i næringsvirksomhet, vil kjøpet ikke anses som et forbrukerkjøp.
Ikke-forbruker – avtalevilkår
Eiendommen har en mangel dersom den ikke er i samsvar med kravene som følger av avtalen.
Eiendommen selges «som den er», og selgers ansvar utover det konkret avtalte er da begrenset etter avhendingsloven § 3-9, første ledd andre setning.
Avhendingsloven § 3-3 andre ledd fravikes, og hvorvidt boligens arealsvikt utgjør en mangel vurderes etter avhendingsloven § 3-8.
Informasjon om kjøpers undersøkelsesplikt, herunder oppfordringen om å undersøke eiendommen nøye, gjelder også for kjøpere som ikke anses som forbrukere.
Det forutsettes at hjemmel overføres til kjøper. Hvis kjøper ikke ønsker hjemmelsoverføring av eiendommen, må det tas forbehold om dette i budet.
Meglers vederlag
Meglers vederlag betales av selger og er avtalt til:
Vederlag: kr 40.000,-
Tilrettelegging kr 17.000,-
Oppgjør: kr 7.500,-
Markedsføringspakke: kr 27.400,-
Visninger: kr 4.000,- pr. stk (faktureres kun én gang, evt ekstra fellesvisninger er vederlagsfrie)
Oppslag eiendomsregister: kr 2.900,-
Megler har i tillegg krav på dekning av følgende utlegg:
Eierskiftegebyr forretningsfører (selger) USBL kr 6.570,-
Innhenting av informasjon forretningsfører USBL kr 4.914,-
Innhenting av offentlig opplysninger Drammen kommune Brl+tegn. kr 1.389,-
Tinglysing sikring kr 545,-
Boligfotografering kr 3.700,-
Boligselgerforsikring Buysure (ansalg, utgjør 2,59 promille av salgssum) kr 5.500,-
Tilstandsrapport fra Anticimex med målsatt plantegning kr 9.700,-
Opplysninger om oppdraget
Oppdragsnummer 20-0270/25
Eiendomsmegler Krogsveen AS, avd. Drammen
Nedre Storgate 16, 3015, DRAMMEN
950 007 613
Oppdragets KR-kode KR20.25270
Dato
Sist oppdatert: 09. februar 2026 kl. 17:50
Dokumenter
Dokumenter
PDF – 1012 KB
PDF – 384 KB
PDF – 745 KB
PDF – 312 KB
PDF – 29 KB
PDF – 127 KB
PDF – 392 KB
Område
Legg til steder som er viktige for deg
Visning
For å delta på visning, ber vi om at du melder deg på. Da sikrer vi at du får nødvendig informasjon og at det er satt av tilstrekkelig med tid. Kontakt megler dersom annet tidspunkt ønskes. Husk å lese salgsoppgaven før visningen, så du stiller forberedt. Visning utgår dersom det ikke er noen påmeldte innen 1 time før visningsstart.
Ønsker du kun å bli holdt orientert, kan du fra eiendommens hjemmeside få varsel om solgtpris, eller kontakte megler.
Lurer du på noe?
Unngå doble boligrenter
Vi tilbyr gunstig forsikring.
Vurderer du utleie?
Få et tilbud fra Utleie KrogsveenHva koster lånet?
Sjekk estimert lånekostnadVil du varsles om lignende boliger?
Ved å lagre ditt boligsøk hos oss får du beskjed når vi har en bolig som ligner denne, før den legges ut på markedet!




