Nordbyveien 21A
6 950 000 kr
208 m²
3 soverom
Komplett salgsoppgave

Åskollen
Pen og romslig enebolig. 3 (5) soverom. Stor stue. 2 bad. Lun og stor terrasse med fjordutsikt. Garasje med el-billader.
Prisantydning
6 950 000 krOmkostninger
194 740 krTotalpris
7 144 740 kr
Pris
Bruksareal
246 m²BRA-I (internt bruksareal)
208 m²BRA-E (eksternt bruksareal)
38 m²TBA (terrasse-balkongareal)
64 m²
Areal
Etasje
2Byggeår
1986Soverom
3 soveromBad
2 badTomteareal
616 m² (eiet)Type
Enebolig - FrittliggendeEierform
EietFasiliteter
Garasje/P-plass og Balkong/TerrasseEnergimerke
Rød F
Nøkkelinfo
Unngå doble boligrenter
Vi tilbyr gunstig forsikring.
Vurderer du utleie?
Få et tilbud fra Utleie KrogsveenHva koster lånet?
Sjekk estimert lånekostnadBeskrivelse
Kort om eiendommen
Innhold og byggemåte
Innhold og byggemåte
Eiendommen
Nordbyveien 21A, 3038 DRAMMEN
Kommunenummer 3301, gårdsnummer 25, bruksnummer 136
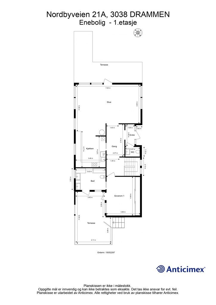
Innhold
BRA-i (internt bruksareal)
Underetasje:
106 kvm: 2 ganger, bad, stue, 2 soverom, teknisk rom/bod og 2 boder.
1. etasje:
102 kvm: Stue, kjøkken, bad, soverom, toalettrom, gang og entré.
BRA-e (eksternt bruksareal)
Garasje/bod - Underetasje:
17 kvm: Bod.
Garasje/bod - 1. etasje:
21 kvm: Garasje.
TBA (terrasse- og balkongareal)
1. etasje:
64 kvm: 2 terrasser.
Terrasse mot øst er ikke målt opp grunnet større mengder snø og is.
Vedlagte plantegninger er ikke målbare. De oppgitte arealer er hentet fra rapport utført av Anticimex v/Sverre Alexander Enersen. Arealene er beregnet og rom er definert etter dagens faktiske bruk, uavhengig av hva som er godkjent av bygningsmyndighetene.
Byggemåte
Selger har fått utarbeidet en tilstandsrapport for eiendommen, dvs. en teknisk gjennomgang av boligen hvor eventuelle avvik, risiko for kjøper og prisoverslag for hva som bør gjøres av oppgradering, er skissert. Se særskilt TGIU (tilstandsgrad ikke undersøkt), samt TG2 og TG3 som viser hva som er avvik fra boligens normale slitasje, alder og type, eller som bør/må utbedres. Rapporten og selgers egenerklæring er en del av salgsoppgaven og må leses nøye før bud inngis. Kjøper overtar ansvaret for de opplysninger som fremkommer av salgsdokumentasjonen, og kan ikke gjøre gjeldende som mangel noe som burde vært kjent eller som ikke kan anses å ha betydning for avtalen.
Bygningen er iht. tilstandsrapport, oppført med støpt gulv mot grunn og grunnmur i betong/murkonstruksjoner. Bærende konstruksjoner og etasjeskillere over grunnmur i trekonstruksjoner. Yttervegger med stående og liggende trekledning. Tak med saltaksform tekket med takstein. Profilert ytterdør i tre fra byggeår med sidefelt i 2-lags glass og ettermontert kodelås. Profilert kjellerdør i tre fra ukjent årstall med kodelås. Terrassedør i tre med 2 og 3-lags glassfelt fra byggeår/ukjent årstall. Vinduer i 2 og 3-lags glass med karmer/rammer av tre fra byggeår/ukjent årstall, 1996 og 2021. Les forøvrig mer om byggemåte og den tekniske tilstanden i rapporten.
I rapporten fremkommer det som takstmannen mener kjøper må være særskilt oppmerksom på, dette gjelder blant annet (se utfyllende tekst i rapporten):
Følgende kontrollpunkter/forhold har blitt tildelt TG3:
- Våtrom (underetasje): Det er valgt å vurdere våtrommet (og tilhørende bygningsdeler) med en samlet helhetsvurdering. Følgende hovedmomenter er lagt til grunn for vurderingen: Overflater bærer preg av høy alder og/eller slitasjegrad. Det er registrert riss/sprekk i enkelte gulv og veggfliser. Det er registrert betydelig med bom i gulvfliser. Vanntett sjikt har en alder som er erfaringsmessig tilsier at fremtidig funksjon er svært usikker. Vann og avløpsrør (og tilhørende komponenter) har en alder som tilsier at fremtidig funksjon er usikker. Sluket er isolert inne i dusjsonen. Innredningen bærer samlet sett preg av slitasje og enkelte skader (svelleskader og lignende). Det er foretatt hulltaking og utført fuktmåling med egnet instrument i veggkonstruksjon fra tilstøtende rom. Det ble ikke registrert forhøyet fuktnivå. Det foreligger lite informasjon om arbeidet som er gjort i våtrommet. De deler av utførelsen som lar seg undersøke, bærer ikke preg av faglig god utførelse.
- Yttervegger inkl. fasader: Det registreres enkelte sprekker i kledningen samt tegn på råteskader i utstikkende takbjelke ved terrasse mot øst. Utførelsen av musesikringen bærer preg av ufagmessig utførelse. Finmasket netting er stiftet fast i nedre del av panelbordene. Det er stedvis liten avstand mellom kledningens underkant og terrenget.
- Garasje/bord: Garasjen/boden bærer i sin helhet preg av høy alder og slitasjegrad. Det er valgt å vurdere bygningen med en samlet helhetsvurdering. Følgende hovedmomenter er lagt til grunn for vurderingen: Fasadematerialer viser tydelige tegn til elde, og det er registrert råteskader. Taket er inspisert fra bakkeplan, med de begrensninger dette innebærer. Synlig del av yttertaket (med tilhørende bygningsdeler) har høy alder, tydelige skader og det er registrert funksjonssvikt (tegn på lekkasje i himling i garasjen). Innvendige flater viser tegn til elde og enkelte skader. Vinduene har en alder og tilstand som tyder på at levetiden er passert. Det er registrert betydelig slitasje, skader og andre tegn på funksjonssvikt.
Følgende kontrollpunkter/forhold har blitt tildelt TG2:
- Våtrom (1. etasje): Det er registrert hullyd i enkelte gulvfliser, uten tegn til riss og sprekker i flisfuger. Det mangler gulvflis bak toalettet. Vanntett sjikt har en alder som tilsier at fremtidig funksjon er usikker. Overgang mellom sluk og vanntett sjikt er uoversiktlig. Huseier informerer om at det har vært lekkasje mellom sluk og membran i sluket under badekaret og at dette er utbedret sammen med påfølgende vannskade i underetasjen. Dette er utført med egeninnsats og det foreligger ingen dokumentasjon. Luftespalte under dør vurderes å være mindre enn det som ideelt anbefales. Noe fuktskader er registrert i benkeskap under servanter. Eier informerer om at baderommet er bygget med egeninnsats og det er ikke fremlagt dokumentasjon på utførte arbeider.
- Kjøkken: Synlige deler av gulvets overflatemateriale bærer preg av slitasje med enkelte riper og hakk. Det er ikke montert automatisk lekkasjestopper, noe som vurderes å være et krav i dette tilfellet.
- Toalettrom: Vannrør av kobber (og tilhørende komponenter) har en alder som tilsier at fremtidig funksjon er usikker. Avløpsrør (og tilhørende komponenter) har en alder som tilsier at fremtidig funksjon er usikker.
- Tekniske anlegg: Boligens vannrør av kobber (og tilhørende komponenter) har en alder som tilsier at fremtidig funksjon er usikker. Det registreres i tillegg at vanntrykket er over anbefalt grense. Innvendig stakeluke er ikke påvist, og det er derfor ukjent om dette er etablert. Boligens avløpsrør (og tilhørende komponenter) har en alder som tilsier at fremtidig funksjon er usikker.
- Andre rom (1. etasje): 3-stavs parkett bærer preg av alder og slitasje med riper og hakk. Skyvedør til kjøkken og baderommet mangler styringspinne.
- Rom under terreng (underetasje): Himlingsflater bærer preg av aldersrelatert slitasje og har enkelte mindre skader. Noe bobler i takplater ved pipen er registret. Veggflater bærer stedvis preg av alder og slitasje. Stedvis synlige plateskjøter, riss, merker og noe svertesopp er registrert. Noe listverk mangler. Huseier informerer om at det har vært fuktskader i vegg ned mot gulvet ved varmtvannsbereder. Nedre del av veggplater, bakeforliggende råteskadet treverk og isolasjon er fjernet og byttet ut. Det er i tillegg registreres noe svertesopp andre steder. Synlige deler av gulvets overflatemateriale bærer preg av slitasje og enkelte skader. Det er foretatt hulltaking og utført fuktmåling i utlektet veggkonstruksjon. Det ble ikke registrert forhøyet fuktnivå. Tegn på muggsopp er registrert på vegg/gulv ved hullet, noe som vurderes å være et resultat av forhøyet fuktighet.
- Loft (uinnredet): Fuktskjolder og fukskade er observert stedvis. Det ble likevel ikke målt høye fuktverdier i berørte materialer i området. Huseier informerer om at det har vært lekkasje ved pipen. Dette ble
utbedret med ny blykrans rundt pipen og det har ikke vært lekkasje siden. Undertaksplater har stedvise hull/utettheter. Det registreres stedvise spiker/kramper gjennom undertaket og det er usikkert om takgjennomføringer er utført med totrinns tetting.
- Etasjeskiller og gulv på grunn: Skjevhetsmåling - forskjell på ca. 30 mm i kjellerstue. Forskjell på ca. 25 mm i stue/gang.
- Yttervegger inkl. fasader: Det er stedvis slitasje på ytterkledningens overflatebehandling. Det har ikke vært mulig å kontrollere om alle delene av ytterkledningen er sikret mot inntrekk av gnagere. Deler av sikringen bærer ikke preg av faglig god utførelse.
- Vinduer og ytterdører: Vinduene og dørene har nådd en alder og tilstand der fremtidig funksjon vurderes som usikker.
- Yttertak: Det er valgt å vurdere yttertaket med en samlet helhetsvurdering. Følgende hovedmomenter er lagt til grunn for vurderingen: Taket er inspisert fra bakkeplan og kaldtloft, med de begrensninger dette innebærer. Taktekkingen (med tilhørende beslag) er hovedsakelig vurdert på bakgrunn av bygningsdelens alder, med den begrensning dette innebærer. Taktekkingen har nådd en alder og tilstand der fremtidig funksjon er usikker. Undertakets alder og tilstand indikerer at levetiden er passert. Det er registrert fuktskader og andre tegn på funksjonssvikt. Vindskier viser begynnende tegn til slitasje, elde og noe fuktskader.
- Utvendig trapp: Inspeksjonen er noe begrenset grunnet is og snø. Det registreres at enkelte trinn heller noe nedover.
- Grunnmur, fundament: Tegn til riss og enkelte sprekkdannelser observeres stedvis i overflaten til grunnmuren. Sprekk i grunnmur/bjelke i boden/tilbygget i underetasjen. Riss/sprekker i grunnmur mellom original mur og tilbygget. Riss/sprekker i murpussen og i blottlagt betonggulv samt merkbare ujevnheter på parkettgulv i underetasjen.
- Drenering: Det er valgt å vurdere dreneringen med en samlet helhetsvurdering. Følgende hovedmomenter er lagt til grunn for vurderingen: Deler av dreneringen har en alder som tilsier at fremtidig funksjon er usikker. Stedvis lite terrengfall vekk fra grunnmuren. Det kan ikke verifiseres at grunnmuren har utvendig fuktsperre. Ifølge selger er det utført arbeider på deler av boligens drenering, men det er ikke fremlagt dokumentasjon på utførte arbeider.
- Stikkledninger og tanker: Utvendige vannledninger har en alder som tilsier at fremtidig funksjon er usikker. Utvendige avløpsrør har en alder som tilsier at fremtidig funksjon er usikker.
Følgende kontrollpunkter/forhold har blitt tildelt TGIU (tilstandsgrad ikke undersøkt):
- Våtrom (1. etasje): Det er ikke mulig å vurdere fallforholdene i sluksonen på en tilfredsstillende måte på grunn av plasseringen av badekaret.
- Terrasse / platting 1. etasje: Deler av fundamentet bar ikke tilgjengelig for undersøkelser grunnet manglende inspeksjonsmulighet.
Det anbefales ytterligere undersøkelser av disse punktene.
Helse, miljø og sikkerhet:
- Innvendige trapper: Trappen og rekkverket har åpninger på mer enn 0,10 meter.
- Terrasse / platting 1. etasje: Rekkverkshøyden er under 1,0 meter.
Se vedlagt tilstandsrapport for supplerende informasjon vedrørende boligens tilstand.
Tilstandsrapporten og selgers egenerklæring er vedlagt salgsoppgaven. Interessenter må sette seg inn i dokumentene før bud inngis.
Standard
Fra garasjen/gårdsplassen er det en utvendig trapp til adkomstvei til boligens inngangsparti i 1. etasje.
1. etasje
Stue: Fin stue med åpen løsning mot kjøkkenet. Stue med sofaområde og spiseplass. Rommet er gjennomgående og har godt med vindusflater langs tre yttervegger, dette gir godt med lysinnslipp og fjordutsikt. Frittstående peisovn med steinlagte vegger og flislagt gulv. 3-stavs parkett på gulv, malte vegger og malt himling. Utgang til delvis overbygget sydøstvendt terrasse med markise, utvendig belysning og strømuttak. Terrassen er lun og har flott utsikt mot fjorden.
Kjøkken: Pen profilert Epoq kjøkkeninnredning fra 2011 med integrerte hvitevarer samt god skap- og skuffplass. Over- og underskap samt vitrineskap i grå utførelse. Flislagte felt over laminerte benkeplater. Lysarmaturer under overskap. Videre er kjøkkenet utstyrt med oppvaskmaskin, oppvaskkum, ventilator, platetopp, 2 kjøleskuffer og stekeovn av type Samsung Chef Collection (med wifi-tilknytning, damp, pyrolyse og utvidet autofunksjon). Downlights i tak. 3-stavs parkett på gulv, malte vegger og malt himling.
Bad: Badet er fra 2011, utført som egeninnsats. To toppmonterte servanter på laminert benkeplate over servantskap i mørk og glatt utførelse. Tilsvarende utførelse på gulvstående skap. Speil med integrert lysarmatur over servanter. Videre er badet utstyrt med gulvstående toalett og frittstående badekar med hånddusj. Opplegg for vaskemaskin og tørketrommel. Downlights i tak og gulvvarme. Fliser på gulv, fliser på vegger og malt himling. Utgang til delvis overbygget nordvest-/østvendt terrasse.
Soverom 1: Romslig skyvedørsgarderobe i hvit og glatt utførelse. 3-stavs parkett på gulv, malte vegger og plater i himling. Tilgang til bad. Utgang til delvis overbygget nordvest-/østvendt terrasse på ca. 23 kvm med utvendig belysning. Terrassen er utvidet og etablert bod under terrasse (ikke byggemeldt).
Toalettrom: Vegghengt servant og vegghengt toalett av type toppmodell fra Grohe Sensia Arena dusjtoalett. Speil og lysarmatur over servant. Gulvvarme. Fliser på gulv, panelplater på vegger og plater i himling.
Gang: Trappegang til underetasjen. 3-stavs parkett på gulv, malt tapet på vegger og malt himling. Tilgang til uinnredet kaldtloft via luke.
Entré: Gulvvarme. Fliser på gulv, malte vegger og malt himling.
Underetasje
Gang: Trappegang til 1. etasje. 3-stavs parkett på gulv, malt panel på vegger og malt panel i himling. Tilgang til gang med videre adkomst til to boder, hvorav den ene boden har utvendig adkomst (ikke byggemeldt denne boden).
Bad: Nedfelt servant i benkeplate over servantinnredning i profilert utførelse. Tilsvarende utførelse på høyskap og vegghengt skap. Speil og lysarmatur over servant. Videre er badet utstyrt med gulvstående toalett og dusjnisje med veggmontert dusjarmatur samt opplegg for dusjforheng. Gulvvarme. Fliser på gulv, malte fliser på vegger og malt panel i himling.
Stue: Stue med sittegruppe. Innmurt peis i murinnsats med vednisjer. 3-stavs parkett på gulv, malt panel samt malte vegger og plater i himling. Gulvvarme. Liten del av stuen mot teknisk rom/bod er opprinnelig byggemeldt som bod. Tilgang til soverom og teknisk rom/bod.
Soverom 2: Garderobeskap i hvit og profilert utførelse. Gulvvarme. 3-stavs parkett på gulv, malte vegger og plater i himling.
Soverom 3: Garderobeskap i hvit og profilert utførelse. Laminat på gulv, malt panel samt malte vegger og malt panel i himling.
Generelt om boligen: 248 liters varmtvannsbereder fra 2014, plassert på teknisk rom/bod i underetasjen. Sikringsskap med automatsikringer, plassert i entré (1. etasje).
Løsøre og tilbehør
Integrerte hvitevarer på kjøkkenet medfølger i handelen, dette gjelder oppvaskmaskin, platetopp, stekeovn og 2 kjøleskuffer. TV-oppheng på vegg medfølger ikke.
Videre vises det til liste fra Norges Eiendomsmeglerforbund angående løsøre og tilbehør. Produkter og installasjoner som medfølger overdras uten noen form for garantier, utover eventuell gjenværende leverandørgaranti.
Oppvarming
Peisovn i stue (1. etasje). Peisinnsats i stue (underetasje). Gulvvarme på begge bad, entré (1. etasje), stue (underetasje) og soverom 2 (underetasje). Videre er boligen basert på elektrisk oppvarming ved evt. panelovner.
Dersom det ikke er vegg- eller fastmonterte varmekilder i beboelsesrom ved visning, følger dette heller ikke med.
Ferdigattest/brukstillatelse
Drammen kommune opplyser om at det ikke foreligger ferdigattest eller midlertidig brukstillatelse i deres arkiv. Byggetillatelse ble gitt den 12.04.1985. I henhold til matrikkelen for eiendommen, er bygningen først registrert tatt i bruk i år 1986.
Det er utstedt godkjente byggetegninger for boligen datert 18.04.1985 og for tilbygg (utvidelse av soverom i 1. etasje) datert 22.05.1997.
Det gjøres oppmerksom at det ikke lenger utstedes ferdigattest på tiltak det er søkt om før 1998 jf. plan- og bygningsloven §21-10. Kommunen vil ikke kreve ferdigattest for disse tiltakene og vil avvise eventuelle søknader. Bestemmelsen innebærer ikke at tiltak med manglende søknad blir lovlige, men at man ikke trenger å avslutte gamle byggesaker. Normalt sett kreves ferdigattest for alle søknadspliktige tiltak som gjøres etter plan - og bygningsloven.
Terrasse (tilknyttet bad og soverom i 1. etasje) har blitt utvidet og det har blitt tilbygget en tilliggende bod i underetasjen med innvendig samt utvendig adkomst etter utstedelse av godkjente byggetegninger. Megler anfører at det ikke foreligger dokumentasjon på søknad til kommunen vedrørende det utførte tiltaket. Kjøper overtar risiko og ansvaret for eventuelle pålegg fra kommunen samt kostnader forbundet med dette.
Kjøper overtar eiendommen slik den framstår på visning.
Tinglyste heftelser og rettigheter
Eiendommen overdras fri for pengeheftelser.
Eiendommen har ingen tinglyste servitutter.
Eventuell adgang til utleie
Eiendommen har ikke separat utleieenhet. Det vil normalt være anledning til utleie av hele eiendommen eller enkeltrom, såfremt utleiearealet er bygningsmessig godkjent for varig opphold og har forsvarlige radonnivåer.
Energimerking
Komplett energiattest inkludert oppvarmingskarakter fås ved henvendelse til megler eller lastes ned fra www.krogsveen.no.
Beliggenhet og tomteforhold
Beliggenhet og tomteforhold
Beliggenhet
Eiendommen er beliggende på nedsiden av Nordbyveien med flott utsikt utover Drammensfjorden. Marka og Nordbykollen er beliggende bak eiendommen, på oversiden av Nordbyveien. Flott turterreng med lysløype i Nordbykollen, det er også fine turmuligheter langs Drammenselva med småbåthavn samt badestrand i kort gangavstand. Kort vei til Røysjømarka med fint turterreng. Kort sykkelvei til togstasjon, det er sykkel- og gangvei helt inn til Strømsø sentrum.
Glassverket IF er et aktivt idrettslag med mange aktiviteter på Åskollen. Klubben har eget idrettsanlegg med flere gressbaner, ny kunstgressbane og idrettshall. To musikkorps. Speiderbevegelse med egen speiderhytte på Åskollen. Skiold ski og ballklubb er en aktiv idrettsforening, med eget treningsanlegg med kunstgressbane på Marienlyst, samt naturisbane og kunstisbane på vinterstid. Kort vei til elveparken med tur og sykkelstier rundt elven. Drammen turnforening med egen hall og mange aktiviteter. Drammen slalåmklubb i Haukåsløypa slalåmbakke med egentrening og kurstilbud. Drammensbadet sentralt på Marienlyst har helårsanlegg med badeland og treningstilbud.
Veldig god bussforbindelse både fra Nordbyveien (Nordbyveien 21) og Svelvikveien (Nøsted Bruk) til sentrum, se www.brakar.no for rutetider. Det er umiddelbar nærhet til bussholdeplassen langs Nordbyveien. Kort kjørevei til Bangeløkka og bussholdeplass for ekspressbuss retning Oslo og Kongsberg. Drammen togstasjon i sentrum med gode tog- og bussforbindelser. Det er ca. 36 minutter med tog fra Drammen til Oslo, se www.vy.no for avganger. Enkel adkomst til Bangeløkka med påkjøring til E-18 til Oslo/Kristiansand og E-134 til Mjøndalen/Kongsberg.
Adkomst
Det vil bli skiltet med Krogsveen visningsskilt ved fellesvisninger. Se kart i nettannonse eller Google Maps for nærmere veibeskrivelse. Velkommen til visning!
Barnehager, skoler og fritid
Godt sammensatt tilbud av private og offentlige barnehager.
Nordbylia Barnepark, Helleristningen Barnehage, Hedensrud Barnehage, Nordbylunden Barnehage, St. Hansberget Barnehage, Stiftelsen Nordby Gård Barnehage, Baltazar Barnehage, Åskollen Barnepark, Åskollen Familiebarnehage og Espira Kniveåsen Barnehage er alle barnehager/barneparker i bydelen.
Gangavstand på fortau og gangsti til Åskollen barneskole (et stort nybygg fra 2013). Skolefritidsordning samt idrettsfritidsordning som administreres av Glassverket IF.
Marienlyst ungdomsskole med skolebussordning.
Drammen kommune har tre private barne- og ungdomsskoler, Drammen Realfagsskole Heltberg, Norlights Montessoriskole Drammen og Rosendal skole (Mjøndalen).
Det ligger flere videregående skoler i Drammen og Lier, samt Universitetet i Sørøst-Norge som har campus på Papirbredden i Drammen, for mer informasjon se www.usn.no.
Dersom skole- og barnehagetilbud er av betydning for kjøpet, ber vi om at det rettes en særskilt henvendelse til kommunen for oppdatert informasjon.
Beskrivelse av tomt
Eiertomt på 616 kvm. Skrånende tomt som er opparbeidet med gressplen trær, hekk og diverse beplantninger. Gruset og hellelagt adkomstvei til boligen. Asfaltert gårdsplass.
Det gjøres oppmerksom på at denne eiendommen sin garasje (med bod under) er integrert/bygd sammen med naboeiendommen (Nordbyveien 21 - gnr. 25/bnr. 9) sine garasjer. Naboeiendommen (Nordbyveien 21) har sin terrasse på taket av denne eiendommen sin garasje (vært slik siden garasjebyggeår), det foreligger ingen skriftlig avtale vedrørende dette og det er ikke tinglyst noe rettighet på eiendommen.
Parkering
Parkering i garasje ved veien med el-billader, innlagt strøm, belysning og elektrisk leddport. Garasjen er integrert/bygd sammen med naboeiendommen (Nordbyveien 21) sine garasjer.
Det er også parkering foran egen garasje.
Vei, vann og avløp
Eiendommen har adkomst via kommunal vei.
Eiendommen er tilknyttet kommunalt ledningsnett via private stikkledninger. Eier er selv ansvarlig for private stikkledninger til boligen.
Regulerings-og arealplaner
Eiendommen ligger i et uregulert område men er avsatt til boligbebyggelse ved kommuneplanen datert 05.10.2015. Utsnitt av plan med tilhørende bestemmelser kan fås ved henvendelse til megler.
Selger opplyser om mottatt nabovarsel for påbygg av enebolig i Grams alle.
Økonomi
Økonomi
Kommunale utgifter
Kommunale avgifter (vann og avløp): kr 13.625,- pr. år (3 terminer), fakturert på eiendommen i 2023.
Renovasjonskostnader: kr 4.930,- pr. år (2 terminer). Type renovasjonsordning: Standard renovasjon, 2025.
Det opplyses om at Drammen kommune har varslet om en vesentlig fremtidig økning av kommunale avgifter.
I tillegg påløper det en kostnad på kr 608,- pr. år for boliger med minst ett aktivt røykrør (kostnad pr. 2026). Det påløper også kostnader for feiing av ildsted, kontroll av fyringsanlegg m.m. Frekvens på feiing samt tilsyn er avhengig av behov og vurderes av feieren.
Det må påregnes kostnader til strøm og nettleie, dette vil variere avhengig av strøm-/nettselskap. Nåværende eier har et strømforbruk som tilsvarer ca. 22.000 kWh pr. år.
For denne boligen er det inngått avtale om Norgespris i stedet for strømstøtte, avtalen på kr 50 øre inkl. mva følger eiendommen og har en bindingstid frem til 31.12.2026. Selger opplyser om en besparelse på kr 5.200,- pr. år etter tegning av Norgespris, sett ut i fra fjorårets forbruk. Nettleie, avgifter og påslag fra kraftleverandøren kommer i tillegg. Er det fjernvarme vil det også komme kostnader i tillegg. Les mer om Norgespris her: https://www.regjeringen.no/no/aktuelt/legg-fram-lov-om-norgespris-pa-straum-og-fjernvarme/id3102642/
Boligen har en årlig forsikringspremie via Tryg på kr 7.099,- pr. år.
Boligen er tilknyttet tv/internett, kostnaden er avhengig av kanalvalg og hastighet på nettet.
Nåværende eier har installert alarm tilknyttet Verisure alarmsentral og koster ca. kr 5.000,- pr. år. Denne blir sagt opp og kjøper kan selv velge om alarm er ønskelig.
Det må påregnes kostnader til tv/internett og innboforsikring.
Ovenstående er basert på nåværende eier/husstands senere års forbruk/utgifter. Dette vil variere avhengig av antall beboere, ønsket innetemperatur, egne fordelsavtaler, kanalvalg, hastighet på bredbånd m.m.
Formuesverdi
Formuesverdi for 2022 var kr 1 507 463,- ifølge skatteetaten. Beløpet forutsetter at eier bor fast i boligen (primærbolig).
Ved eventuell øvrig bruk av eiendommen (f.eks. fritidsbolig, pendlerbolig, utleieobjekt) var formuesverdien for 2022 kr 5 728 359,-.
Formuesverdien justeres normalt årlig. Se skatteetaten.no for mer informasjon om fastsettelse av formuesverdien.
Omkostninger
6 950 000,00 Prisantydning
Omkostninger
173 750,00 Dokumentavgift til staten (2,5% av kjøpesum)
19 900,00 Gjensidige Boligkjøperpakke (valgfri)* (valgfritt)
545,00 Tinglysing panterettsdokument
545,00 Tinglysing skjøte
--------------------------------------------------------
174 840,00 (Omkostninger totalt (uten Gjensidige Boligkjøperpakke (valgfri)))
194 740,00 Omkostninger totalt (med Gjensidige Boligkjøperpakke (valgfri)))
--------------------------------------------------------
7 124 840,00 Totalpris inkl. omkostninger
7 144 740,00 Totalpris inkl. omkostninger (med Gjensidige Boligkjøperpakke (valgfri))
--------------------------------------------------------
Totalpris inkl. omkostninger forutsetter kjøp til prisantydning.
Det tas forbehold om endringer i avgifter og gebyrer.
Tilbud om lånefinansiering
Megler formidler gjerne kontakt med rådgiver hos vår samarbeidspartner BN Bank. De har konkurransedyktige betingelser samt rask og løsningsorientert behandling av din lånesøknad. Krogsveen mottar et honorar for denne formidlingen.
Betalingsbetingelser
Kjøpesum inkludert omkostninger, samt pantedokument tilknyttet eventuelt lån, skal være disponibelt hos megler 2 virkedager før overtagelsen.
Annen viktig informasjon
Annen viktig informasjon
Eier
Stig Pedersen
Overtakelse
Etter nærmere avtale, kan overtas på kort varsel.
Boligselgerforsikring
Selger har i forbindelse med salget tegnet boligselgerforsikring levert av Gjensidige.
Boligselgerforsikringen dekker selgers ansvar etter avhendingsloven begrenset oppad til kr 14 millioner. Dersom kjøper oppdager forhold ved eiendommen som hen mener utgjør en mangel ved eiendommen, vil Gjensidige behandle reklamasjonen på vegne av selger. Forsikringsvilkår kan fås ved henvendelse til megler.
Vedlagt salgsoppgaven følger selgers egenerklæringsskjema og tilstandsrapport. Interessenter må sette seg inn i dokumentene før bud inngis.
Boligkjøperforsikring
Innen kontraktsmøtet må kjøper ta stilling til om det ønskes å bestille Boligkjøperpakken gjennom Gjensidige. I denne gunstige pakken er boligen ferdig forsikret og inkluderer rettshjelpsforsikring, også kalt Boligkjøperforsikring. Rettshjelpsforsikring gir trygghet og tilgang på profesjonell juridisk hjelp dersom det oppdages uventede feil eller mangler det første året etter overtagelse. Forsikringsselskapet behandler i så fall ethvert mangelskrav kjøper måtte ha overfor selger.
Boligkjøperpakken inkluderer bygningsforsikring for hus og hytte, innboforsikring, flytteforsikring og dobbel rentedekning - i situasjoner hvor kjøper ikke får solgt nåværende primærbolig.
Kjøper mottar ingen særskilt faktura for Boligkjøperpakken da kostnaden det første året legges til kjøpesummen for boligen. Det gjøres oppmerksom på Krogsveen mottar et honorar for denne formidlingen.
Produktark for Boligkjøperpakken ligger vedlagt i salgsoppgaven.
Dersom ikke boligkjøperpakke ønskes kan kun rettshjelpsforsikring, også kalt boligkjøperforsikring, tegnes særskilt via megler. Rettshjelpsforsikringen varer i 5 år fra overtagelse og leveres gjennom Gjensidige. Ta kontakt med megler for ytterligere informasjon.
Selskap og privatpersoner som driver med kjøp/salg/utvikling som ledd i egen næringsvirksomhet kan ikke tegne boligkjøperpakke eller rettshjelpsforsikring.
Budgivning
Forbrukerinformasjon om budgivning er vedlagt denne salgsoppgaven og er også på vår hjemmeside Krogsveen.no. Alle bud og budforhøyelser må inngis skriftlig. I tillegg må legitimasjon være fremlagt sammen med signatur fra budgiver.
Vi oppfordrer til å gi bud elektronisk via GI BUD-knappen på eiendommens hjemmeside på Krogsveen.no. Da vil samtlige vilkår bli oppfylt.
Eventuelle forhøyelser eller endringer av budet kan bekreftes pr SMS eller på e-post. Vi oppfordrer alltid til å kontakte megler pr. telefon i tillegg da forsinkelser i SMS og e-post kan forekomme.
For at budene skal kunne bli behandlet og videreformidlet skriftlig til alle involverte parter, må alle bud ha en tilstrekkelig lang akseptfrist, jf. eiendomsmeglingsforskriften § 6-3.
Selger må også skriftlig akseptere budet før aksept kan formidles til budgiver. Akseptfrist bør derfor være på minimum 30 minutter, og budforhøyelser må derfor skje i god tid før fristens utløp.
Bud i forbrukerforhold kan uansett ikke settes med kortere frist enn kl. 12.00 første virkedag etter siste annonserte visning. I tillegg kan ikke budet ha forbehold om at det skal holdes hemmelig ovenfor øvrige interessenter. Megler har iht lov om eiendomsmegling ikke anledning til å videreformidle disse budene, og de vil dermed heller ikke bli journalført.
Etter at eiendommen er solgt vil kjøper og selger få tilsendt budjournal. Øvrige budgivere kan få utlevert kopi av budjournalen i anonymisert form.
Hvitvaskingsreglene
I henhold til lov om hvitvasking og terrorfinansiering har megler plikt til å gjennomføre kontrolltiltak overfor kunder, herunder fullmektiger. Dette innebærer bl.a. å bekrefte kunders og reelle rettighetshaveres identitet på bakgrunn av fremvist gyldig legitimasjon eller på annen godkjent måte, samt å innhente opplysninger om kundeforholdets formål og tilsiktede art.
Dersom slike kundetiltak ikke kan gjennomføres, kan megler ikke etablere kundeforholdet eller utføre transaksjonen.
Hvis kjøper ikke bidrar til gjennomføring av kundekontrollen og dette fører til at transaksjonen blir forsinket eller ikke kan gjennomføres, vil dette ansees som mislighold av avtalen og gi selger rettigheter etter avhendingslova kapittel 5. I tilfeller der selger ikke bidrar til gjennomføring av løpende kundekontroll underveis i oppdraget, er det selger som misligholder sine forpliktelser etter avtalen og gi kjøper rettigheter etter avhendingslovens kapittel 4. Partene er selv ansvarlige for eventuelle kostnader og ansvar dette kan medføre. Eiendomsmegleren eller eiendomsmeglingsforetaket kan ikke holdes ansvarlig for de konsekvenser dette vil kunne få for partene eller andre som har interesser i eiendomshandelen.
Kjøper oppfordres til å innbetale kjøpesummen som ikke kommer fra låneinstitusjon i én samlet innbetaling fra egen konto i norsk bank. Megler har plikt til å melde fra til Økokrim om eiendomshandler som fremstår som mistenkelige. Melding sendes Økokrim uten at partene varsles.
Personopplysningsloven
I henhold til personopplysningsloven gjør vi oppmerksom på at interessenter kan bli registrert for videre oppfølging.
Lovanvendelse
Generelle bestemmelser
Salgsoppgaven er basert på de opplysningene selger har gitt til megler, den bygningssakyndiges tilstandsrapport, samt opplysninger innhentet fra kommunen, Kartverket og andre tilgjengelige kilder. Det er viktig at kjøper setter seg grundig inn i alle salgsdokumentene, herunder salgsoppgave, tilstandsrapport og selgers egenerklæring. Kjøper anses kjent med forhold som er tydelig beskrevet i salgsdokumentene, og slike forhold kan ikke påberopes som mangler. Dette gjelder uavhengig av om kjøper har lest dokumentene. Alle interessenter oppfordres til å undersøke eiendommen nøye, gjerne sammen med fagkyndig før bud inngis. Kjøper som velger å kjøpe usett kan ikke gjøre gjeldende som mangel noe han burde blitt kjent med ved undersøkelsen.
Dersom det er behov for avklaringer, anbefaler vi at interessenter rådfører seg med eiendomsmegler eller egne rådgivere før det legges inn bud.
En bolig som har blitt brukt i en viss tid, har vanligvis blitt utsatt for slitasje og skader kan ha oppstått. Slik bruksslitasje må kjøper regne med, og det kan avdekkes enkelte forhold etter overtakelse som nødvendiggjør utbedringer. Normal slitasje og skader som nødvendiggjør utbedring, er innenfor hva kjøper må forvente og vil ikke utgjøre en mangel.
Kjøper og selgers rettigheter og plikter reguleres av avtalen mellom partene, samt informasjonen som har vært tilgjengelig for kjøperen i forbindelse med handelen. Avtalen utfylles av avhendingsloven, og det gjelder ulike avtalevilkår avhengig av om kjøper er forbrukerkjøper eller ikke. Dette er nærmere beskrevet nedenfor.
På grunn av ulike avtalevilkår kan selger vurdere bud fra en som ikke er forbruker, ulikt fra en forbrukers bud. Dersom kjøper ikke er forbruker, er selger sitt mulige mangelsansvar begrenset fordi eiendommen selges "som den er". Selger kan ikke ta «som den er»- forbehold overfor en forbrukerkjøper. Selv et lavere bud fra en som ikke er forbruker kan foretrekkes fordi begrensningen i mulig mangelsansvar kan ha egenverdi for selger. Selger står fritt til å forkaste eller akseptere ethvert bud, og er for eksempel ikke forpliktet til å akseptere høyeste bud.
Budgiver skal i budskjema avgi egenerklæring om budgiver er forbruker eller næringsdrivende/ person som hovedsakelig handler som ledd i næringsvirksomhet. Budgivere får informasjon dersom andre bud er inngitt av en som ikke er forbruker.
Forbrukerkjøp - definisjon
Med forbrukerkjøp menes kjøp av eiendom når kjøperen er en fysisk person som ikke hovedsakelig handler som ledd i næringsvirksomhet.
Forbruker – avtalevilkår
Eiendommen har en mangel dersom den ikke er i samsvar med kravene som følger av avtalen, eller det foreligger brudd på bestemmelsene i avhendingsloven §§ 3-2 til 3-8. Hvis eiendommen ikke er i samsvar med det kjøperen må kunne forvente ut ifra alder, type og synlig tilstand, kan det være grunnlag for mangelskrav. Det samme gjelder hvis det er holdt tilbake eller gitt uriktige opplysninger om eiendommen. Dette gjelder likevel bare dersom man kan gå ut ifra at det virket inn på avtalen at opplysningen ikke ble gitt eller at mangelskravet ikke blir rettet i tide på en tydelig måte.
Boligen kan ha en mangel etter avhendingsloven § 3-3 andre ledd, dersom det er avvik mellom opplyst og faktisk innvendig areal, forutsatt at avviket er på 2% eller mer og minimum 1 kvm.
Ved beregning av et eventuelt prisavslag eller erstatning må kjøper selv dekke tap/kostnader opptil et beløp på kr 10 000 (egenandel).
Ikke-forbruker (næringsdrivende) – definisjon
Hvis kjøper er en juridisk person, eller en fysisk person som hovedsakelig handler som ledd i næringsvirksomhet, vil kjøpet ikke anses som et forbrukerkjøp.
Ikke-forbruker – avtalevilkår
Eiendommen har en mangel dersom den ikke er i samsvar med kravene som følger av avtalen.
Eiendommen selges «som den er», og selgers ansvar utover det konkret avtalte er da begrenset etter avhendingsloven § 3-9, første ledd andre setning.
Avhendingsloven § 3-3 andre ledd fravikes, og hvorvidt boligens arealsvikt utgjør en mangel vurderes etter avhendingsloven § 3-8.
Informasjon om kjøpers undersøkelsesplikt, herunder oppfordringen om å undersøke eiendommen nøye, gjelder også for kjøpere som ikke anses som forbrukere.
Det forutsettes at hjemmel overføres til kjøper. Hvis kjøper ikke ønsker hjemmelsoverføring av eiendommen, må det tas forbehold om dette i budet.
Rett til fritt å velge megler
Valg av eiendomsmeglingsforetak skal være frivillig. Eiendomsmeglingsforetak kan ikke inngå oppdrag om eiendomsmegling dersom inngåelsen av oppdraget er satt som vilkår i avtale om annet enn eiendomsmegling, f.eks. tilbud om lån eller andre banktjenester, jf. Lov om eiendomsmegling § 6-3 (3)
Meglers vederlag
Meglers vederlag betales av selger og er avtalt til:
Vederlag: 0,80 % av salgssummen. Minimumsvederlag: kr. 48.000,-
I tillegg betaler selger gebyr/vederlag for kontroll av hjemmel og heftelser, markedsføring, løfting av finn.no annonse, oppgjør, tilrettelegging, innhenting av offentlig opplysninger Drammen kommune, tinglysingsgebyr, boligselgerforsikring, tilstandsrapport, fotografering.
Vi er opptatt av verdiskapning, og har knyttet til oss samarbeidspartnere som skal sikre våre kunder de beste produkter og tjenester;
• I forbindelse med forberedelse av salget, innhenter vi informasjon om eiendommen hovedsakelig fra vår samarbeidspartner Ambita.
• Gjensidige leverer boligselgerforsikring og tilbyr bygningsforsikring
• Boligkjøperforsikring leveres av Hiscox og med Sedgwick som skadebehandler, og er formidlet gjennom Gjensidige.
• BN bank tilbyr finansieringsløsninger
• Vår avdeling Krogsveen Pluss tilbyr flyttetjenester som utvask, visningsvask, lager, tømming og transport av flyttelass, i tillegg til å formidle kontakt med Flip for overflateoppussing.
• I forbindelse med overtagelse av eiendommen tilbyr Overo avtale om strøm, alarm og bredbånd.
• Krogsveen er, sammen med øvrige bransjeaktører, medeier i den digitale annonseringsplattformen Hjem som eies av Bomega AS.
Opplysninger om oppdraget
Oppdragsnummer 20-0002/24
Eiendomsmegler Krogsveen AS, avd. Drammen
Nedre Storgate 16, 3015, DRAMMEN
950 007 613
Oppdragets KR-kode KR20.242
Dato
Sist oppdatert: 15. april 2026 kl. 22:04
Dokumenter
Dokumenter
PDF – 228 KB
PDF – 571 KB
PDF – 944 KB
PDF – 6 MB
PDF – 312 KB
PDF – 29 KB
PDF – 127 KB
PDF – 392 KB
Område
Legg til steder som er viktige for deg
Visning
Privatvisninger avholdes fortløpende. Trykk på "Visningspåmelding" eller kontakt megler på telefon/epost for å avtale dag/klokkeslett for privatvisning.
Lurer du på noe?
Unngå doble boligrenter
Vi tilbyr gunstig forsikring.
Vurderer du utleie?
Få et tilbud fra Utleie KrogsveenHva koster lånet?
Sjekk estimert lånekostnadVil du varsles om lignende boliger?
Ved å lagre ditt boligsøk hos oss får du beskjed når vi har en bolig som ligner denne, før den legges ut på markedet!

