Thorvald Meyers gate 41
6 750 000 kr
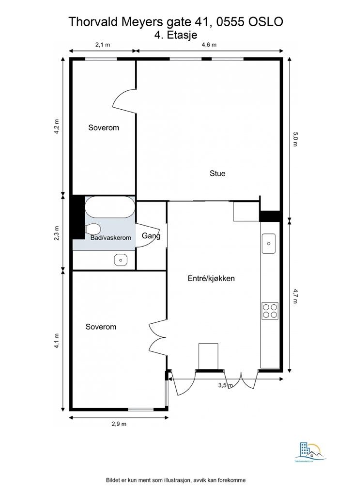
66 m²
2 soverom
Solgt

Presenteres av
Tom MartinsenGrünerløkka
Rålekker og tiltalende 3-roms med ettertraktet beliggenhet på Løkka! Påkostet bad og kjøkken fra 2024 - Garasjeplass
Prisantydning
6 750 000 krAndel fellesgjeld
23 000 krOmkostninger
10 152 krTotalpris
6 783 152 kr
Pris
Bruksareal
72 m²BRA-I (internt bruksareal)
66 m²BRA-E (eksternt bruksareal)
6 m²
Areal
Etasje
4Byggeår
1998Soverom
2 soveromBad
1 badType
EierleilighetEierform
AndelFellesutgifter
3 595 krEnergimerke
Rød D
Nøkkelinfo
Unngå doble boligrenter
Vi tilbyr gunstig forsikring.
Vurderer du utleie?
Få et tilbud fra Utleie KrogsveenHva koster lånet?
Sjekk estimert lånekostnadBeskrivelse
Kort om eiendommen
Krogsveen v/Tom Martinsen har gleden av å presentere en tiltalende og gjennomført 3-roms andelsleilighet med utgang til en solrik svalgang som fungerer som en egen uteplass. Boligen holder en høy standard med påkostede oppgraderinger. Den høye standarden gjenspeiles i tilstandsgrad 1 på nesten alle punkter i tilstandsrapport fra takstmann. Svært ettertraktet beliggenhet, sentralt på Grünerløkka. Denne vil du ikke gå glipp av!
Kvaliteter:
Delikat og tiltalende med god planløsning
Smart lysstyring
Utgang til vestvendt svalgang med flotte solforhold
Nytt gulv med varmefolie
Delikat bad og kjøkken totalrenovert i 2024
Garasjeplass leies i garasjeanlegg
Frodig og idyllisk felles bakgård
Ettertraktet og sentral beliggenhet med umiddelbar nærhet til "alt"
Område
Legg til steder som er viktige for deg
På flyttefot? Tenk kjøp og salg samtidig.
Få din egen rådgiver gjennom hele kjøps- og salgsprosessen. Det starter med en verdivurdering.
Unngå doble boligrenter
Vi tilbyr gunstig forsikring.
Vurderer du utleie?
Få et tilbud fra Utleie KrogsveenHva koster lånet?
Sjekk estimert lånekostnadVil du varsles om lignende boliger?
Ved å lagre ditt boligsøk hos oss får du beskjed når vi har en bolig som ligner denne, før den legges ut på markedet!
På flyttefot? Slik gjør vi det enklere for deg
Skreddersydd flyttepakke
Vi fikser håndverkere, vask, pakking, lagring og transport, og legger ut for utgiftene underveis.
Hjelp med både kjøp og salg
Hos oss har du din egen rådgiver gjennom hele kjøps- og salgsprosessen.
Hjelp til finansiering
Vårt samarbeid med BN Bank sikrer deg rask og løsningsorientert hjelp, til konkurransedyktige betingelser.

