Måkeveien 4
4 990 000 kr
172 m²
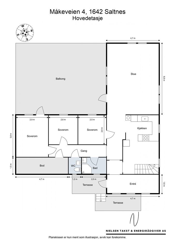
4 soverom
Solgt

Presenteres av
Kenneth Graarud OlsenSaltnes
Enebolig med alle oppholdsrom på én flate, innredet kjeller og hage i populært område. Garasje. Kort vei til stranda.
Prisantydning
4 990 000 krOmkostninger
145 740 krTotalpris
5 135 740 kr
Pris
Bruksareal
196 m²BRA-I (internt bruksareal)
172 m²BRA-E (eksternt bruksareal)
24 m²TBA (terrasse-balkongareal)
78 m²
Areal
Etasje
2Byggeår
1973Soverom
4 soveromBad
2 badTomteareal
945 m² (eiet)Type
Enebolig - FrittliggendeEierform
EietFasiliteter
Garasje/P-plass og Balkong/TerrasseEnergimerke
Gul F
Nøkkelinfo
Unngå doble boligrenter
Vi tilbyr gunstig forsikring.
Vurderer du utleie?
Få et tilbud fra Utleie KrogsveenHva koster lånet?
Sjekk estimert lånekostnadDette liker selger best ved boligen
God og praktisk planløsning i hovedetasjen - Stor og god veranda med plass til flere soner- Kort vei til flere strender
Beskrivelse
Kort om eiendommen
Innholdsrik enebolig midt i kystidyllen Saltnes
- Alle oppholdsrom samlet på én flate i første etasje, tre soverom inkludert + ett soverom i underetasjen
- Hele første etasje nylig pusset opp, blant annet med nye gulv
- Ny og moderne kjøkkeninnredning med de fleste hvitevarer integrert
- Luft-luft varmepumpe og ildsted i både første etasje og kjeller
- Stor, nyoppført terrasse med sol til sen kveld sommerstid
- Mulighet for svalende skygge under pergola i hagen
- Romslig gårdsplass og stor garasje, lader til EL-bil montert på husvegg
- Barnehage og barneskole lett tilgjengelig i nabolaget
- Slippers-avstand til de fine badestrendene på Rubingen, Ellingstranda og Saltholmen
Område
Legg til steder som er viktige for deg
På flyttefot? Tenk kjøp og salg samtidig.
Få din egen rådgiver gjennom hele kjøps- og salgsprosessen. Det starter med en verdivurdering.
Unngå doble boligrenter
Vi tilbyr gunstig forsikring.
Vurderer du utleie?
Få et tilbud fra Utleie KrogsveenHva koster lånet?
Sjekk estimert lånekostnadVil du varsles om lignende boliger?
Ved å lagre ditt boligsøk hos oss får du beskjed når vi har en bolig som ligner denne, før den legges ut på markedet!
På flyttefot? Slik gjør vi det enklere for deg
Skreddersydd flyttepakke
Vi fikser håndverkere, vask, pakking, lagring og transport, og legger ut for utgiftene underveis.
Hjelp med både kjøp og salg
Hos oss har du din egen rådgiver gjennom hele kjøps- og salgsprosessen.
Hjelp til finansiering
Vårt samarbeid med BN Bank sikrer deg rask og løsningsorientert hjelp, til konkurransedyktige betingelser.

