Bekkestuveien 33
8 300 000 kr
98 m²
2 soverom
Solgt

BEKKESTUA
Bo i hjertet av Bekkestua sentrum! Stor og gjennomgående 3-roms med balkong, heis og garasjeplass | Lave fellesutgifter
Prisantydning
8 300 000 krOmkostninger
218 540 krTotalpris
8 518 540 kr
Pris
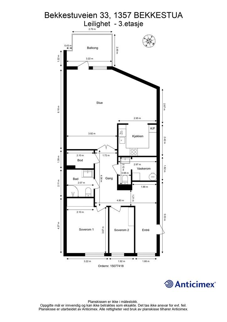
Bruksareal
103 m²BRA-I (internt bruksareal)
98 m²BRA-E (eksternt bruksareal)
5 m²TBA (terrasse-balkongareal)
7 m²
Areal
Etasje
3Byggeår
2002Soverom
2 soveromBad
1 badType
EierleilighetEierform
EierseksjonFasiliteter
Garasje/P-plass, Heis og Balkong/TerrasseFellesutgifter
4 220 krEnergimerke
Rød C
Nøkkelinfo
Unngå doble boligrenter
Vi tilbyr gunstig forsikring.
Vurderer du utleie?
Få et tilbud fra Utleie KrogsveenHva koster lånet?
Sjekk estimert lånekostnadBeskrivelse
Kort om eiendommen
Velkommen til Bekkestuveien 33!
Her får du muligheten til å bo midt i hjertet av Bekkestua, med alle fasiliteter rett utenfor døren. Denne store og gjennomgående 3-roms selveierleiligheten er perfekt for deg som ønsker en lys, praktisk og romslig planløsning. Med en koselig balkong og moderne fasiliteter, er dette et hjem det er enkelt å trives i!
Høydepunkter:
• Lys og romslig 3-roms leilighet
• Koselig balkong på 7 kvm
• Heis og garasjeplass
• Baderom + eget vaskerom med wc
• Lave fellesutgifter og veldrevet sameie
• Ingen fellesgjeld
• Alt av butikker, restauranter og kollektivtransport rett utenfor døren
En perfekt beliggenhet for deg som vil ha alt innen rekkevidde, samtidig som du kan nyte et rolig og praktisk bomiljø!
Område
Legg til steder som er viktige for deg
På flyttefot? Tenk kjøp og salg samtidig.
Få din egen rådgiver gjennom hele kjøps- og salgsprosessen. Det starter med en verdivurdering.
Unngå doble boligrenter
Vi tilbyr gunstig forsikring.
Vurderer du utleie?
Få et tilbud fra Utleie KrogsveenHva koster lånet?
Sjekk estimert lånekostnadVil du varsles om lignende boliger?
Ved å lagre ditt boligsøk hos oss får du beskjed når vi har en bolig som ligner denne, før den legges ut på markedet!

