Nannestadvegen 522
2 690 000 kr
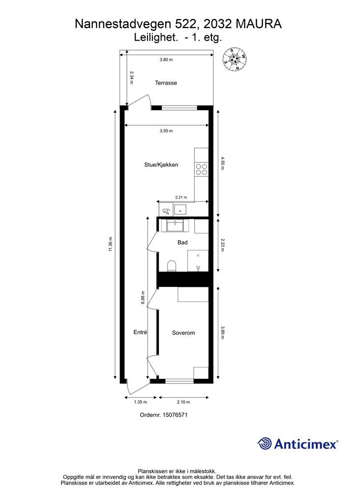
41 m²
1 soverom
Komplett salgsoppgave

Maura
Tiltalende og nyere (2022) 2R eierleilighet med sentral beliggenhet i Maura | Garasje og terrasse | Vv. og fyring inkl.|
Prisantydning
2 690 000 krOmkostninger
78 290 krTotalpris
2 768 290 kr
Pris
Bruksareal
46 m²BRA-I (internt bruksareal)
41 m²BRA-E (eksternt bruksareal)
5 m²TBA (terrasse-balkongareal)
9 m²
Areal
Etasje
1Byggeår
2022Soverom
1 soveromBad
1 badType
EierleilighetEierform
EierseksjonFasiliteter
Garasje/P-plass, Heis og Balkong/TerrasseFellesutgifter
2 947 krEnergimerke
Gul B
Nøkkelinfo
Unngå doble boligrenter
Vi tilbyr gunstig forsikring.
Vurderer du utleie?
Få et tilbud fra Utleie KrogsveenHva koster lånet?
Sjekk estimert lånekostnadBeskrivelse
Kort om eiendommen
Innhold og byggemåte
Innhold og byggemåte
Eiendommen
Nannestadvegen 522, 2032 MAURA
Kommunenummer 3238, gårdsnummer 147, bruksnummer 56, seksjonsnummer 3, ideell andel 1/1
Innhold
Totalt bruksareal BRA: 46 kvm
BRA-i:
1. etasje 41 kvm: Entré, bad, stue med åpen kjøkkenløsning og soverom.
BRA-e:
Kjeller: 5 kvm: Kjellerbod.
Åpent areal:
1. etasje 9 kvm: Terrasse.
Boden er tinglyst som en tilleggsdel til seksjonen.
Vedlagte plantegninger er ikke målbare. De oppgitte arealer er hentet fra rapport med befaringsdato 11.11.2025 utført av Anticimex AS.
Byggemåte
Selger har fått utarbeidet en tilstandsrapport, dvs. en teknisk gjennomgang av boligen hvor eventuelle avvik, risiko for kjøper og prisoverslag for hva som bør gjøres av oppgradering, er skissert. Se særskilt TGIU (tilstandsgrad ikke undersøkt), samt TG2 og TG3 som viser hva som er boligens normale slitasje, alder og type, hva som er avvik fra dette og hva som bør/må utbedres. Rapporten og selgers egenerklæring er en del av salgsoppgaven og må leses nøye før bud inngis. Kjøper overtar ansvaret for de opplysninger som fremkommer av salgsdokumentasjonen, og kan ikke gjøre gjeldende som mangel noe som burde vært kjent eller som ikke kan anses å ha betydning for avtalen.
Bygningen er iht. tilstandsrapporten oppført med støpt gulv mot grunn. Grunnmur, bærende konstruksjoner og skillende dekker av betong med utfyllende bindingsverk. Utvendig fasader er kledd med fasadeplater og stående trekledning. Tilnærmet flat takkonstruksjon utvendig tekket med takpapp. Les for øvrig mer om byggemåte og den tekniske tilstanden i rapporten.
Det gjøres spesielt oppmerksom på TG2:
Kjøkken:
- Innredning. Det er registrert en avskalling av overflatemateriale ved hjørnet på benkeplaten.
Øvrige rom:
- Overflater gulv. Det registreres stedvise riper/hakk/merker i gulvets overflatemateriale
Se supplerende tekst i tilstandsrapporten. Kjøper overtar ansvar og risiko for dette.
Selger opplyser videre:
Det er pågående radonmåling som er ferdig i desember.
Standard
Tiltalende, attraktiv og nyere (2022) 2-roms leilighet i første etasje med gjennomgående god standard og mange gode løsninger. Her kan du fytte rett inn!
Leiligheten har en god planløsning, er gjennomgående og inneholder: entré, bad, åpen kjøkken/stueløsning og soverom. Stue og kjøkken utgjør et koselig allrom, her er det godt med naturlig lys og direkte utgang til terrasse på 9 kvm., perfekt for late sommerdager.
Kjøkken:
Åpen kjøkken- og stueløsning gjennomført på en god måte med kjøkkeninnredning med glatte fronter og benkeplate av laminat med nedfelt oppvaskkum med ett-greps kjøkkenarmatur.Benkeskapsbelysning og stikkontakter over kjøkkenbenk. Integrert stekeovn, platetopp og oppvaskmaskin. Frittstående kjøleskap med fryser. Ventilator i overskap som drives av det balanserte ventilasjonsanlegget. Komfyrvakt. Rør-i-rør system. Automatisk vannstopper med fuktsensor. Det er kun de hvitevarene som er listet opp som følger med. Disse hvitevarene følger med: Oppvaskmaskin, kjøleskap, komfyr og platetopp.
Bad:
Moderne bad med god plassering i leiligheten. Flislagt gulv med gulvvarme og flislagte vegger, samt nedsenket himling med downlights. Vegghengt servantinnredning med skuffer og ovenpåliggende servant med ett-greps armatur. Speil over servantinnredning.Dusjhjørne med dører og vegghengt dusjarmatur. Vegghengt toalett. Rør-i-rør system. Mekanisk avtrekk med ventil i himling. Opplegg for vaskemaskin.
Løsøre og tilbehør
Vi viser til liste fra Norges Eiendomsmeglerforbund som gjelder fra 01.01.2020 angående løsøre og tilbehør.
Oppvarming
Leiligheten er oppvarmet med vannbåren gulvvarme i soverom, entré og stue/kjøkken, kombinert med elektrisk gulvvarme på bad.
Dersom beboelsesrom ikke har vegg- eller fastmonterte varmekilder ved visning, følger dette heller ikke med.
Ferdigattest/brukstillatelse
Det foreligger ikke ferdigattest på eiendommen, men midlertidig brukstillatelse ble gitt 21.11.2023.
Det vil bli søkt om ferdigattest når byggetrinn 4 er ferdigstilt. Det er sameiet v/styret sitt ansvar å følge opp dette med utbygger.
Kjøper overtar eiendommen slik den fremstår på visning.
Tinglyste heftelser og rettigheter
Leiligheten overdras fri for pengeheftelser:
Sameiet har legalpant for krav mot sameieren som følger av sameieforholdet iht. eierseksjonsloven § 31. Pantet er begrenset oppad til 2G, (G = folketrygdens grunnbeløp).
I tillegg har sameiet tinglyst panterett som nevnt over.
Det er tinglyst følgende servitutter på sameiets eiendom.
Det er tinglyst følgende servitutter på sameiets eiendom.
Dagboknr 4757, tinglyst 09.05.2000, type heftelse: Nannestad kommune er gitt tillatelse til anlegge og vedlikeholde kommunale ledningsnett over eiendommen.
Videre er det tinglyst tre servitutter på sameiets eiendom. Disse omhandler blant annet en ekspropriering av eiendommen i 1967, en utbyggingsavtale og en opsjonsavtale som ikke har praktisk betydning for nåværende eiere.
Servituttene vil følge eiendommen. Kjøpers bank vil få prioritet etter ovennevnte heftelser og servitutter.
Eventuell adgang til utleie
Leiligheten kan leies ut såfremt leiligheten har forsvarlige radonverdier. Leietaker må følge sameiets vedtekter og ordensregler på lik linje som eier.
Diverse
Tilbud av produkter og tjenester fra våre samarbeidspartnere
Vi er opptatt av verdiskapning, og har knyttet til oss samarbeidspartnere som skal sikre våre kunder de beste produkter og tjenester;
• Gjensidige leverer boligselgerforsikring og tilbyr bygningsforsikring
• Boligkjøperforsikring leveres av Hiscox og med Sedgwick som skadebehandler, og er formidlet gjennom Gjensidige.
• BN bank tilbyr finansieringsløsninger
• Vår avdeling Krogsveen Pluss tilbyr flyttetjenester som utvask, visningsvask, lager, tømming og transport av flyttelass, i tillegg til å formidle kontakt med Flip for overflateoppussing.
• I forbindelse med overtagelse av eiendommen tilbyr Overo avtale om strøm, alarm og bredbånd.
• Krogsveen er, sammen med øvrige bransjeaktører, medeier i den digitale annonseringsplattformen Hjem.
Beliggenhet og tomteforhold
Beliggenhet og tomteforhold
Beliggenhet
Boligen har sentral beliggenhet i Maura med gangavstand til alt du trenger i hverdagen.
Gangavstand til nærbutikkene med både Coop Extra/Kiwi og Rema 1000 i nærheten. Kort kjøretur til Nannestad torg med dagligvare, blomsterbutikk, frisør, apotek, vinmonopol og pizzeria. Videre er det også bibliotek, legekontor, treningssenter, idrettshall, kunstgressbane mm. i sentrum av Nannestad. Skulle man ha behov for ytterligere servicetilbud er det kun ca. 20. min. til Jessheim by med alt av bymessige fasiliteter.
Nærmeste bussholdeplass, Haugengården, ligger kun 50 meter unna, og har hyppige avganger mot Oslo Lufthavn og Jessheim. Ekspressbuss til Oslo Lufthavn to ganger i timen. Videre er det gode togforbindelser fra Oslo Lufthavn til hovedstaden, samt nordover mot Hamar og Lillehammer.
Gode rekreasjonsmuligheter både sommer og vinter med store friluftsområder like i nærheten. Kort vei til Nordåsen med flotte skiløyper for både store og små. Her er et også skistadion med lysløype og et godt løypenett.
Fra boligen er det kort vei til Romeriksåsen med et av Romerikes mest varierte friluftsområder som byr på alt fra tur- og sykkelstier, badeplasser, fiskemuligheter og skianlegg. Romeriksåsen ligger langs hele vestsiden av Nannestad kommune. Her finnes et rolig skoglandskap med bølgende åser og mange innsjøer med gode fiskevann. Åslia Skisenter for alpint og snowboard ligger kun en liten kjøretur unna.
Avstander med bil:
Nannestad ca. 6 min.
Gardermoen ca. 10 min.
Jessheim ca. 20 min.
Oslo ca. 45 min.
Adkomst
Det vil bli skiltet med Krogsveen visningsskilt ved fellesvisninger.
Barnehager, skoler og fritid
Dersom skole- og barnehagetilbud er av betydning for kjøpet, ber vi om at det rettes en særskilt henvendelse til kommunen for oppdatert informasjon.
Beskrivelse av tomt
Eiertomt på 9 106 kvm som tilhører sameiet. Tomten er fellesareal. Fellesarealer opparbeidet med blant annet gangarealer, grøntområder og diverse beplantninger.
Tomten er ikke oppmålt i nyere tid og har usikre grenser. Kommunens grunnkart viser eiendommens grenser med et beregnet normalavvik på >10<=200 cm på vestsiden av tomten, se vedlagt kartutsnitt for tomtegrenser.
Kjøper overtar risiko for avviket.
Parkering
Leiligheten disponerer en garasjeplass i sameiets felles garasjeanlegg.
Vei, vann og avløp
Eiendommen har adkomst via kommunal vei.
Eiendommen er tilknyttet kommunalt ledningsnett via private stikkledninger.
Borettslaget/Sameiet/Aksjelaget er ansvarlig for private stikkledninger til bygningen.
Regulerings-og arealplaner
Eiendommen er regulert til Boligbebyggelse-blokkbebyggelse i henhold til reguleringsplan "Nannestadvegen 522-528, del av S06 i Maura sentrum" datert 14.05.2019.
Utsnitt av plan med tilhørende bestemmelser kan fås ved henvendelse til megler.
Økonomi
Økonomi
Boligens kostnader
Fellesutgiftene er kr 2 947,- pr. mnd. og inkluderer: Bygningsforsikring, forretningsførsel, kommunale avgifter, kabel-TV/internett, drift og vedlikehold, varmtvann og fyring.
Felleskostnadene øker til kr. 3 149,- fra januar 2026.
Fellesutgiftene justeres normalt en til to ganger årlig i forhold til sameiets faktiske utgifter.
Det er p.t ikke vedtatt eiendomsskatt for eiendommer i kommunen.
Nåværende eier har et strømforbruk som tilsvarer ca. kr 2 400,- pr. år. / 1 800 kwh. pr. år.
Boligen er tilknyttet Telenor som leverandør av kabel-tv og er inkludert i felleskostnader. Tv-tuner/dekoder medfølger.
Utgiftene er basert på nåværende eiers forbruk. Kjøper må selv tegne innboforsikring.
Formuesverdi
Formuesverdi for 2023 var kr 570 440,- ifølge skatteetaten. Beløpet forutsetter at eier bor fast i boligen (primærbolig).
Ved eventuell øvrig bruk av eiendommen (f.eks. fritidsbolig, pendlerbolig, utleieobjekt) var formuesverdien for 2023 kr 2 281 760,-.
Formuesverdien justeres normalt årlig. Se skatteetaten.no for mer informasjon om fastsettelse av formuesverdien.
Omkostninger
2 690 000,00 Prisantydning
Omkostninger
67 250,00 Dokumentavgift til staten (2,5% av kjøpesum)
9 950,00 Gjensidige Boligkjøperpakke (valgfri)
545,00 Tinglysing panterettsdokument
545,00 Tinglysing skjøte
--------------------------------------------------------
78 290,00 Omkostninger totalt
--------------------------------------------------------
2 768 290,00 Totalpris inkl. omkostninger
--------------------------------------------------------
Dersom sameiet har fellesgjeld, vil leilighetens andel av fellesgjelden komme i tillegg til kjøpesummen. Denne gjelden skal ikke innbetales i oppgjøret, men følger leiligheten.
Totalpris inkl. omkostninger forutsetter kjøp til prisantydning.
Det tas forbehold om endringer i avgifter og gebyrer.
Tilbud om lånefinansiering
Megler formidler gjerne kontakt med rådgiver hos vår samarbeidspartner BN Bank. De har konkurransedyktige betingelser samt rask og løsningsorientert behandling av din lånesøknad. Krogsveen mottar et honorar dersom lån opprettes.
Betalingsbetingelser
Kjøpesum inkludert omkostninger, samt pantedokument tilknyttet eventuelt lån, skal være disponibelt hos megler 2 virkedager før overtagelsen.
Annen viktig informasjon
Annen viktig informasjon
Eier
Andreas Hunnestad
Informasjon om sameiet
Eiendommen er seksjonert, og leiligheten er tilknyttet Bjerkealleen boligsameie, med sameiebrøk 40/6027.
Sameiet består av 99 leiligheter og 1 næringsseksjon.
Forretningsfører er OBOS Eiendomsforvaltning
Dugnad må påregnes.
Dyrehold er tillat så lenge det ikke er til sjenanse.
Planlagte påkostninger: Generelt vedlikehold.
Vi gjør videre oppmerksom på at det iht. eierseksjonsloven ikke er anledning å erverve mer enn 2 seksjoner i sameiet, her teller også eierskap via. firma, nærstående og familie. Kjøper har risikoen for at overskjøting på denne bakgrunn kan nektes av Statens Kartverk. I så fall vil kjøper uansett være forpliktet til å gjennomføre handelen, og oppgjør til selger vil finne sted tross manglende overskjøting.
Konferer med megler for mer informasjon.
Overtakelse
Etter nærmere avtale.
Boligselgerforsikring
Selger har i forbindelse med salget tegnet boligselgerforsikring levert av Gjensidige.
Boligselgerforsikringen dekker selgers ansvar etter avhendingsloven begrenset oppad til kr 14 millioner. Dersom kjøper oppdager forhold ved eiendommen som hen mener utgjør en mangel ved eiendommen, vil Gjensidige behandle reklamasjonen på vegne av selger. Forsikringsvilkår kan fås ved henvendelse til megler.
Vedlagt salgsoppgaven følger selgers egenerklæringsskjema og tilstandsrapport. Interessenter må sette seg inn i dokumentene før bud inngis.
Boligkjøperforsikring
Innen kontraktsmøtet må kjøper ta stilling til om det ønskes å bestille Boligkjøperpakken gjennom Gjensidige. I denne gunstige pakken er boligen ferdig forsikret og inkluderer rettshjelpsforsikring, også kalt Boligkjøperforsikring. Rettshjelpsforsikring gir trygghet og tilgang på profesjonell juridisk hjelp dersom det oppdages uventede feil eller mangler det første året etter overtagelse. Forsikringsselskapet behandler i så fall ethvert mangelskrav kjøper måtte ha overfor selger.
Boligkjøperpakken inkluderer bygningsforsikring for hus og hytte, innboforsikring, flytteforsikring og dobbel rentedekning - i situasjoner hvor kjøper ikke får solgt nåværende primærbolig.
Kjøper mottar ingen særskilt faktura for Boligkjøperpakken da kostnaden det første året legges til kjøpesummen for boligen. Det gjøres oppmerksom på Krogsveen mottar et honorar for denne formidlingen.
Produktark for Boligkjøperpakken ligger vedlagt i salgsoppgaven.
Dersom ikke boligkjøperpakke ønskes kan kun rettshjelpsforsikring, også kalt boligkjøperforsikring, tegnes særskilt via megler. Rettshjelpsforsikringen varer i 5 år fra overtagelse og leveres gjennom Gjensidige. Ta kontakt med megler for ytterligere informasjon.
Selskap og privatpersoner som driver med kjøp/salg/utvikling som ledd i egen næringsvirksomhet kan ikke tegne boligkjøperpakke eller rettshjelpsforsikring.
Budgivning
Forbrukerinformasjon om budgivning er vedlagt denne salgsoppgaven og er også på vår hjemmeside Krogsveen.no. Alle bud og budforhøyelser må inngis skriftlig. I tillegg må legitimasjon være fremlagt sammen med signatur fra budgiver.
Vi oppfordrer til å gi bud elektronisk via GI BUD-knappen på eiendommens hjemmeside på Krogsveen.no. Da vil samtlige vilkår bli oppfylt.
Eventuelle forhøyelser eller endringer av budet kan bekreftes pr SMS eller på e-post. Vi oppfordrer alltid til å kontakte megler pr. telefon i tillegg da forsinkelser i SMS og e-post kan forekomme.
For at budene skal kunne bli behandlet og videreformidlet skriftlig til alle involverte parter, må alle bud ha en tilstrekkelig lang akseptfrist, jf. eiendomsmeglingsforskriften § 6-3.
Selger må også skriftlig akseptere budet før aksept kan formidles til budgiver. Akseptfrist bør derfor være på minimum 30 minutter, og budforhøyelser må derfor skje i god tid før fristens utløp.
Bud i forbrukerforhold kan uansett ikke settes med kortere frist enn kl. 12.00 første virkedag etter siste annonserte visning. I tillegg kan ikke budet ha forbehold om at det skal holdes hemmelig ovenfor øvrige interessenter. Megler har iht lov om eiendomsmegling ikke anledning til å videreformidle disse budene, og de vil dermed heller ikke bli journalført.
Etter at eiendommen er solgt vil kjøper og selger få tilsendt budjournal. Øvrige budgivere kan få utlevert kopi av budjournalen i anonymisert form.
Hvitvaskingsreglene
I henhold til lov om hvitvasking og terrorfinansiering har megler plikt til å gjennomføre kontrolltiltak overfor kunder, herunder fullmektiger. Dette innebærer bl.a. å bekrefte kunders og reelle rettighetshaveres identitet på bakgrunn av fremvist gyldig legitimasjon eller på annen godkjent måte, samt å innhente opplysninger om kundeforholdets formål og tilsiktede art.
Dersom slike kundetiltak ikke kan gjennomføres, kan megler ikke etablere kundeforholdet eller utføre transaksjonen.
Hvis kjøper ikke bidrar til gjennomføring av kundekontrollen og dette fører til at transaksjonen blir forsinket eller ikke kan gjennomføres, vil dette ansees som mislighold av avtalen og gi selger rettigheter etter avhendingslova kapittel 5. I tilfeller der selger ikke bidrar til gjennomføring av løpende kundekontroll underveis i oppdraget, er det selger som misligholder sine forpliktelser etter avtalen og gi kjøper rettigheter etter avhendingslovens kapittel 4. Partene er selv ansvarlige for eventuelle kostnader og ansvar dette kan medføre. Eiendomsmegleren eller eiendomsmeglingsforetaket kan ikke holdes ansvarlig for de konsekvenser dette vil kunne få for partene eller andre som har interesser i eiendomshandelen.
Kjøper oppfordres til å innbetale kjøpesummen som ikke kommer fra låneinstitusjon i én samlet innbetaling fra egen konto i norsk bank. Megler har plikt til å melde fra til Økokrim om eiendomshandler som fremstår som mistenkelige. Melding sendes Økokrim uten at partene varsles.
Personopplysningsloven
I henhold til personopplysningsloven gjør vi oppmerksom på at interessenter kan bli registrert for videre oppfølging.
Lovanvendelse
Generelle bestemmelser
Salgsoppgaven er basert på de opplysningene selger har gitt til megler, den bygningssakyndiges tilstandsrapport, samt opplysninger innhentet fra kommunen, Kartverket og andre tilgjengelige kilder. Det er viktig at kjøper setter seg grundig inn i alle salgsdokumentene, herunder salgsoppgave, tilstandsrapport og selgers egenerklæring. Kjøper anses kjent med forhold som er tydelig beskrevet i salgsdokumentene, og slike forhold kan ikke påberopes som mangler. Dette gjelder uavhengig av om kjøper har lest dokumentene. Alle interessenter oppfordres til å undersøke eiendommen nøye, gjerne sammen med fagkyndig før bud inngis. Kjøper som velger å kjøpe usett kan ikke gjøre gjeldende som mangel noe han burde blitt kjent med ved undersøkelsen.
Dersom det er behov for avklaringer, anbefaler vi at interessenter rådfører seg med eiendomsmegler eller egne rådgivere før det legges inn bud.
En bolig som har blitt brukt i en viss tid, har vanligvis blitt utsatt for slitasje og skader kan ha oppstått. Slik bruksslitasje må kjøper regne med, og det kan avdekkes enkelte forhold etter overtakelse som nødvendiggjør utbedringer. Normal slitasje og skader som nødvendiggjør utbedring, er innenfor hva kjøper må forvente og vil ikke utgjøre en mangel.
Kjøper og selgers rettigheter og plikter reguleres av avtalen mellom partene, samt informasjonen som har vært tilgjengelig for kjøperen i forbindelse med handelen. Avtalen utfylles av avhendingsloven, og det gjelder ulike avtalevilkår avhengig av om kjøper er forbrukerkjøper eller ikke. Dette er nærmere beskrevet nedenfor.
På grunn av ulike avtalevilkår kan selger vurdere bud fra en som ikke er forbruker, ulikt fra en forbrukers bud. Dersom kjøper ikke er forbruker, er selger sitt mulige mangelsansvar begrenset fordi eiendommen selges "som den er". Selger kan ikke ta «som den er»- forbehold overfor en forbrukerkjøper. Selv et lavere bud fra en som ikke er forbruker kan foretrekkes fordi begrensningen i mulig mangelsansvar kan ha egenverdi for selger. Selger står fritt til å forkaste eller akseptere ethvert bud, og er for eksempel ikke forpliktet til å akseptere høyeste bud.
Budgiver skal i budskjema avgi egenerklæring om budgiver er forbruker eller næringsdrivende/ person som hovedsakelig handler som ledd i næringsvirksomhet. Budgivere får informasjon dersom andre bud er inngitt av en som ikke er forbruker.
Forbrukerkjøp - definisjon
Med forbrukerkjøp menes kjøp av eiendom når kjøperen er en fysisk person som ikke hovedsakelig handler som ledd i næringsvirksomhet.
Forbruker – avtalevilkår
Eiendommen har en mangel dersom den ikke er i samsvar med kravene som følger av avtalen, eller det foreligger brudd på bestemmelsene i avhendingsloven §§ 3-2 til 3-8. Hvis eiendommen ikke er i samsvar med det kjøperen må kunne forvente ut ifra alder, type og synlig tilstand, kan det være grunnlag for mangelskrav. Det samme gjelder hvis det er holdt tilbake eller gitt uriktige opplysninger om eiendommen. Dette gjelder likevel bare dersom man kan gå ut ifra at det virket inn på avtalen at opplysningen ikke ble gitt eller at mangelskravet ikke blir rettet i tide på en tydelig måte.
Boligen kan ha en mangel etter avhendingsloven § 3-3 andre ledd, dersom det er avvik mellom opplyst og faktisk innvendig areal, forutsatt at avviket er på 2% eller mer og minimum 1 kvm.
Ved beregning av et eventuelt prisavslag eller erstatning må kjøper selv dekke tap/kostnader opptil et beløp på kr 10 000 (egenandel).
Ikke-forbruker (næringsdrivende) – definisjon
Hvis kjøper er en juridisk person, eller en fysisk person som hovedsakelig handler som ledd i næringsvirksomhet, vil kjøpet ikke anses som et forbrukerkjøp.
Ikke-forbruker – avtalevilkår
Eiendommen har en mangel dersom den ikke er i samsvar med kravene som følger av avtalen.
Eiendommen selges «som den er», og selgers ansvar utover det konkret avtalte er da begrenset etter avhendingsloven § 3-9, første ledd andre setning.
Avhendingsloven § 3-3 andre ledd fravikes, og hvorvidt boligens arealsvikt utgjør en mangel vurderes etter avhendingsloven § 3-8.
Informasjon om kjøpers undersøkelsesplikt, herunder oppfordringen om å undersøke eiendommen nøye, gjelder også for kjøpere som ikke anses som forbrukere.
Det forutsettes at hjemmel overføres til kjøper. Hvis kjøper ikke ønsker hjemmelsoverføring av eiendommen, må det tas forbehold om dette i budet.
Meglers vederlag
Meglers vederlag betales av selger og er avtalt til:
Fastpris: 30 000,-
Vederlag:
Kontroll av hjemmel og heftelser kr 2 900,00
Markedsføringspakke kr 27 400,00
Oppgjør kr 7 500,00
Tilrettelegging kr 15 000,00
Visninger pr stk. 3000,- (2. stk. inkl.)
Utlegg:
Eierskiftegebyr forretningsfører - OBOS kr 6 570,00
Innhenting av informasjon forretningsfører kr 4 038,00
Tinglysing sikring kr 545,00
Andre utgifter:
Foto kr 4 000,00
Tilstandsrapport fra bygningssakkyndig kr 10 750,00
Opplysninger om oppdraget
Oppdragsnummer 63-0244/25
Eiendomsmegler Krogsveen AS, avd. Jessheim
Skovly Promenade 10, 2066, JESSHEIM
950 007 613
Oppdragets KR-kode KR63.25244
Dato
Sist oppdatert: 14. februar 2026 kl. 11:24
Dokumenter
Dokumenter
PDF – 938 KB
PDF – 688 KB
PDF – 605 KB
PDF – 1 MB
PDF – 312 KB
PDF – 29 KB
PDF – 127 KB
PDF – 392 KB
Område
Legg til steder som er viktige for deg
Visning
Det er ingen planlagte visninger. Meld deg på for å avtale en tid som passer.
Lurer du på noe?
Unngå doble boligrenter
Vi tilbyr gunstig forsikring.
Vurderer du utleie?
Få et tilbud fra Utleie KrogsveenHva koster lånet?
Sjekk estimert lånekostnadVil du varsles om lignende boliger?
Ved å lagre ditt boligsøk hos oss får du beskjed når vi har en bolig som ligner denne, før den legges ut på markedet!

