Risøy 14
12 000 000 kr
70 m²
3 soverom
Komplett salgsoppgave
Risøy i Kragerøs skjærgård
Sommerliv i Kragerøskjærgården
Prisantydning
12 000 000 krOmkostninger
320 900 krTotalpris
12 320 900 kr
Pris
Bruksareal
87 m²BRA-I (internt bruksareal)
70 m²BRA-E (eksternt bruksareal)
17 m²
Areal
Byggeår
1983Soverom
3 soveromBad
1 badTomteareal
899 m² (eiet)Type
Fritidseiendom ved sjøenEierform
EietEnergimerke
Oransje G
Nøkkelinfo
Vurderer du utleie?
Få et tilbud fra Utleie KrogsveenHva koster lånet?
Sjekk estimert lånekostnadDette liker selger best ved boligen
Utsikten, solrikt, usjenert, strandlinje med romslig brygge med god dybde.
Beskrivelse
Kort om eiendommen
På Risøy rett uten for Valle i Kragerø kommune, ligger denne hytta, usjenert og skjermet for vær og vind. Når du kommer til eiendommen går du i land på en stor brygge med gode dybdeforhold. Her fører en bred trapp opp til hytta, med terrasse på over 140 kvm, som strekker seg rundt hele bygningskroppen, samt en overbygget utestue. Selve hytta er på 82 kvm. Pluss et uthus på 5 kvm.
Innhold og byggemåte
Innhold og byggemåte
Eiendommen
Risøy 14, 3783 KRAGERØ SKJÆRGÅRD
Kommunenummer 4014, gårdsnummer 24, bruksnummer 116, ideell andel 1/1
Kommunenummer 4014, gårdsnummer 24, bruksnummer 162, ideell andel 1/1
Innhold
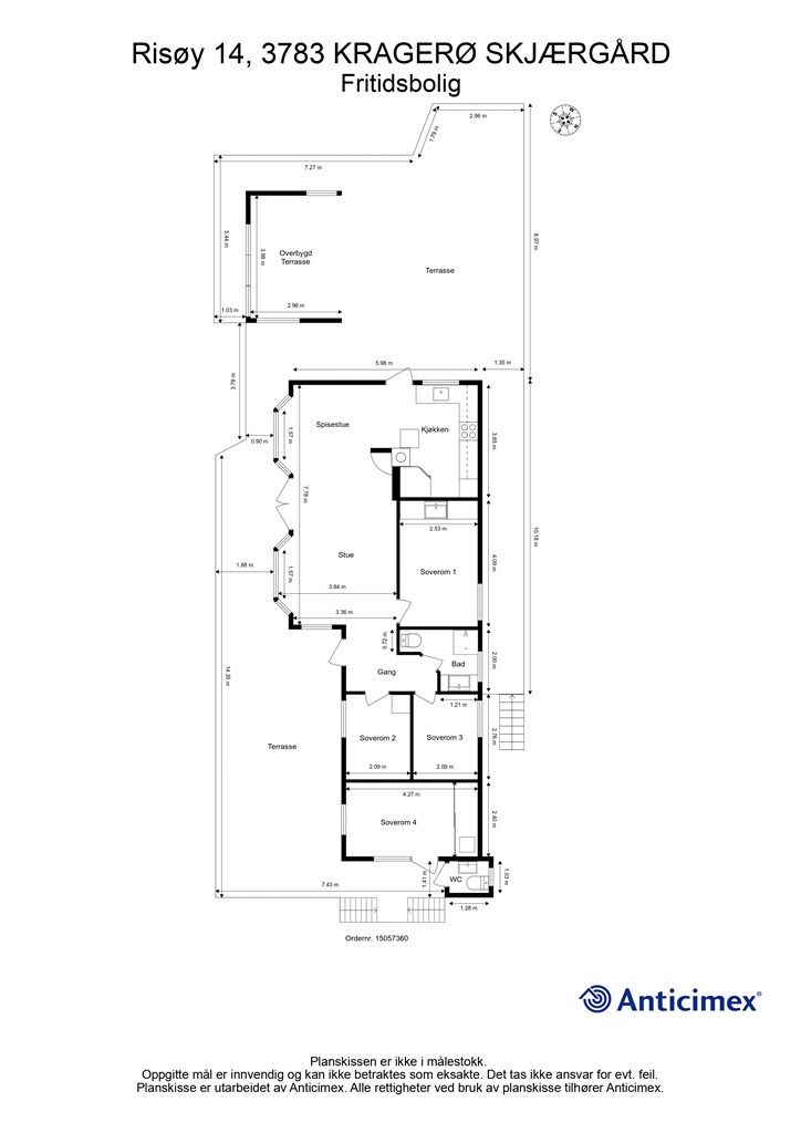
Totalt bruksareal BRA: 87 kvm
BRA-i:
Fritidsbolig - 70 kvm: Gang, stue, kjøkken, spisestue, bad og tre soverom.
BRA-e:
12 kvm: Wc og ett soverom.
5 kvm: Bod/toalettrom i uthuset.
Vedlagte plantegninger er ikke målbare. De oppgitte arealer er hentet fra rapport datert 30.05.2024 utført av Anticimex AS Sandefjord. Arealene er beregnet og rom er definert etter dagens faktiske bruk, uavhengig av hva som er godkjent av bygningsmyndighetene.
Det gjøres oppmerksom på at arealene på wc og soverom 4 ikke er vurdert som BRA-i på bakgrunn av at rommene har utvendig adkomst, og
ikke oppfyller alle hovedfunksjoner slik at arealene kan vurderes som en selvstendig boenhet.
Det gjøres særlig oppmerksom på at rom inntegnet som bod på godkjente byggetegninger er i bruk som soverom 4. Dette er et søknadspliktig tiltak.
Les mer om ovennevnte i punkt om ferdigattest.
Byggemåte
Selger har fått utarbeidet en tilstandsrapport, dvs. en teknisk gjennomgang av boligen hvor eventuelle avvik, risiko for kjøper og prisoverslag for hva som bør gjøres av oppgradering, er skissert. Se særskilt TGIU (tilstandsgrad ikke undersøkt), samt TG2 og TG3 som viser hva som er avvik fra boligens normale slitasje, alder og type, eller som bør/må utbedres. Rapporten og selgers egenerklæring er en del av salgsoppgaven og må leses nøye før bud inngis. Kjøper overtar ansvaret for de opplysninger som fremkommer av salgsdokumentasjonen, og kan ikke gjøre gjeldende som mangel noe som burde vært kjent eller som ikke kan anses å ha betydning for avtalen.
Fritidsboligen er iht. tilstandsrapporten oppført på grunnmur i betong og søylefundamenter i betong- og lettklinkerkonstruksjon med bærende bjelkelag i tre. På fjell. Yttervegger, etasjeskiller og tak i trekonstruksjoner. Fasader med stående trekledning. Saltak tekket metallplater. Vinduer med to- og tre-lags glass.
Terrassedører med to-lags glass i tre/mur/betong. Ytterdører i tre -og sandwichkonstruksjon.
Boden med biodo er oppført på søylefundamenter av betong- og lettklinker. Yttervegger og tak i trekonstruksjoner. Fasader med stående trekledning. Ytterdør i
sandwichkonstruksjon. Vindu med to-lags isolerglass fra 2023. Saltak tekket med metallplater.
Les forøvrig mer om byggemåte og den tekniske tilstanden i rapporten.
Følgende bygningsdeler har fått TG2 (vesentlig avvik) i tilstandsrapporten:
Våtrom - Bad:
- Overflater vegger: Det observeres stedvis tegn til riss i enkelte veggfliser. Eksakt årsak er ikke kjent. Konsekvens/foreslått tiltak er videre overvåking, slik at tiltak kan iverksettes hvis forholdet utvikler seg.
- Fallforhold rundt sluk: Lokalfallet i sluksonen er mindre enn anbefalt. Konsekvens er at fallforholdet vurderes å ikke gi tilfredsstillende bortledning av bruksvann ved normal bruk. Foreslått tiltak er lokale tilpasninger eller utbedring dersom fremtidig bruk viser at det er nødvendig.
- Lekkasjesikkerhet: Nivåforskjell fra døråpning på topp overflate gulv og til hovedsluk er på tilfeldig sted målt til ca. 8 mm og det kan ikke verifiseres at det er etablert membranoppkant ved dør. Dette er vurdert til å ikke være tilfredsstillende mht lekkasjesikkerhet. Det er stedvis motfall på gulvflater utenfor dusjsonen. Fare for vannansamling.
- Vanntett sjikt / membran i gulv og vegger: Vanntett sjikt har en alder som tilsier at fremtidig funksjon er usikker. Konsekvensen er at bygningsdelen erfaringsmessig har risiko for nedsatt funksjon, utettheter eller andre aldersrelaterte problemer. Bygningsdelen er skjult, så den faktiske tilstanden og dagens tettefunksjon er ukjent. Foreslått tiltak er videre overvåking, slik at komplett utskiftning kan iverksettes når dette viser seg å være nødvendig.
- Ventilasjon: Våtrommet har begrenset ventilasjon. Konsekvensen er at dette kan medføre økt fuktbelastning og redusert luftkvalitet over tid. Foreslått tiltak er forbedring av ventilasjonen eller kompenserende tiltak hvis bruk av våtrommet viser at dette er nødvendig.
Toalettrom:
- Ventilasjon: Ventilasjonen vurderes som utilstrekkelig. Konsekvens er at forholdet kan medføre økt fuktpåkjenning og redusert luftkvalitet. Foreslått tiltak er forbedring av eksisterende løsning og/eller ventilering ved åpning av vinduer.
Andre rom - 1. etasje hytte:
- Overflate gulv: Det er stedvis knirk i gulvflater. Eksakt årsak er ukjent. På soverom 4 er det observert råteskade ved dør. Selger opplyser at forholdet stammer fra eldre lekkasje ved dør, og at forholdet er utbedret ved utskifting av ytterdør. Det er utført overflatesøk med fuktindikasjonsinstrument. Det ble ikke registrert forhøyede verdier. Skjulte skader kan ikke utelukkes. Ytterligere undersøkelser/tiltak anbefales. Lakkerte heltregulv, og gliper mellom bord må forventes.
- Annet: Det er etablert servant på soverom 1. Opplegg for vaskemaskin på soverom 4. Det er ikke etablert fullverdig vanntett sjikt på gulv- og veggflater der hvor vaskemaskin er plassert på soverom. Lekkasjesikkerheten er ikke i varetatt. Konsekvens er risiko for skader, for eksempel ved en eventuell lekkasje. Nærmere undersøkelser anbefales. Foreslått tiltak er lokal utbedring.
Krypkjeller (innvendig inspeksjon) - Områder under hytte:
- Helhetsvurdering: Det er valgt å vurdere krypkjelleren (og tilhørende/omliggende bygningsdeler) med en samlet helhetsvurdering. Følgende hovedmomenter er lagt til grunn for vurderingen:
Basert på bygningsdelenes samlede tilstandsbilde og hovedmomentene som nevnes over bør det påregnes tiltak som videre overvåkning og lokale utbedringer der dette viser seg å være et behov. Erfaring viser at igangsetting av slike arbeider i mange tilfeller avdekker ytterligere forhold som krever tiltak, noe som det bør tas høyde for. Utvendige forhold har stor betydning for krypkjellerens tilstand og skadepotensial. Vurderingen av disse utvendige forholdene er kun omtalt under punktet «Drenering», og opplysningene som gis der må derfor ses i sammenheng med opplysninger som gis under dette punktet.
Loft - uinnredet / kaldt loft:
- Helhetsvurdering: Det er valgt å vurdere boligens uinnredede loft (og tilhørende bygningsdeler) med en samlet helhetsvurdering. Følgende hovedmomenter er lagt til grunn for vurderingen:
Basert på bygningsdelenes samlede tilstandsbilde og hovedmomentene som nevnes over bør det påregnes tiltak som videre overvåkning og lokale utbedringer der dette viser seg å være et behov. Erfaring viser at igangsetting av slike arbeider i mange tilfeller avdekker ytterligere forhold som krever tiltak, noe som det bør tas høyde for.
Tekniske anlegg:
- Varmtvannsbereder: På bakgrunn av berederens alder vurderes det at fremtidig funksjon er usikker. Konsekvensen er at bygningsdelen erfaringsmessig har risiko for nedsatt funksjon, funksjonssvikt eller andre aldersrelaterte problemer. Foreslått tiltak er videre overvåking av tilstanden, slik at reparasjon eller utskiftning kan iverksettes når dette blir nødvendig.
Etasjeskiller og gulv på grunn (skjevhetsmåling) - 1. Etasje:
- Skjevhetsmåling: Det er noe merkbare skjevheter i boligen. Forskjellen mellom høyeste og laveste punkt på 2,0 meter er målt til 22 mm i spisestue og 16 mm i stue. Målingene er foretatt i en eldre bygning og bør ses i den sammenheng. Skjevheter er mer påregnelige i eldre bygninger enn i nye. Årsaken til skjevhetene er ikke kjent.
Yttervegger inkl. fasader:
- Overflatebehandling: Det er stedvis slitasje på ytterkledningens overflatebehandling. Konsekvens er at slitasjen reduserer kledningens beskyttelse, noe som kan forkorte levetiden og øke risikoen for fuktrelaterte skader på sikt. Foreslått tiltak er at det iverksettes forebyggende vedlikehold.
- Ytterkledning (fasademateriale, vannbord, utvendig listverk, o.l.): Ytterkledningens materialer viser stedvise tegn til begynnende nedbrytning og elde, enkelte steder er tegn på begynnede råtedannelse, eksempelvis i endeved av kledning. Konsekvens er svekket beskyttelse av materialene, og behov for tiltak for å hindre videre nedbrytning. Vurderingen er begrenset til det som er synlig fra bakkenivå, med den begrensing dette innebærer. Stikktaking er utført på typiske skadesteder som var tilgjengelig uten bruk av stige. Foreslått tiltak er at det iverksettes forebyggende vedlikehold og lokale reparasjoner, eller utskiftning hvis videre undersøkelser viser at dette er nødvendig. Det er stedvis liten avstand mellom kledningens underkant og terrenget. Konsekvens er at dette kan føre til økt fuktbelastning, forkortet levetid og økt vedlikeholdsbehov. Foreslått tiltak er videre overvåking, slik at forebyggende vedlikehold og/eller lokal reparasjon kan iverksettes når dette blir nødvendig.
- Lufting av ytterkledning: Det er vurdert å være begrenset spalte for lufting og drenering bak ytterkledningen. Konsekvens er at konstruksjonens evne til å tørke ut eventuell fuktighet reduseres, noe som kan øke faren for skjulte fuktskader. Det gjøres oppmerksom på at det ikke er observert synlige tegn på at forholdet har ført til skader på dette tidspunkt. Foreslått tiltak er videre overvåking, slik at lokal reparasjon eller utskiftning kan iverksettes hvis dette blir nødvendig.
- Gnagersikring: Det har ikke vært mulig å kontrollere om alle deler av ytterkledningen er sikret mot inntrekk av gnagere, ettersom det aktuelle inspeksjonsområdet stedvis er skjult av andre bygningsdeler. Det kan derfor ikke bekreftes om gnagersikringen er utført på korrekt måte.
Vinduer og ytterdører:
- Vinduer og omramming: Vinduer viser begynnende tegn til slitasje på overflatebehandling, og har en alder der fremtidig funksjon vurderes som usikker. Konsekvensen er at bygningsdelen erfaringsmessig har risiko for nedsatt funksjon, funksjonssvikt eller andre aldersrelaterte problemer. Foreslått tiltak er at det iverksettes forebyggende vedlikehold etterfulgt av videre overvåking. Det er ikke klaring mellom utvendig listverk og vannbord/beslag under vinduet. Konsekvens er økt risiko for fuktopptak i trevirket, redusert levetid og utfordringer med overflatebehandling/vedlikehold. Foreslått tiltak er lokal reparasjon.
- Ytterdører og omramming: Stedvis viser dørene tegn til slitasje, elde og punktvise fuktskader. Konsekvens er at døren har nådd en alder og tilstand der fremtidig funksjon vurderes som usikker. Foreslått tiltak er lokal reparasjon, eller utskiftning.
Yttertak:
- Tekking (med tilhørende beslag): Taktekkingen (med tilhørende beslag) viser begynnende tegn til slitasje og elde. Det er derimot ikke registrert synlige skader av vesentlig betydning, men taktekkingen har nådd en alder og tilstand der fremtidig funksjon vurderes som usikker. Konsekvens er at usikker fremtidig funksjon betyr at bygningsdelen erfaringsmessig har risiko for nedsatt funksjon, funksjonssvikt eller andre aldersrelaterte problemer. Foreslått tiltak er videre overvåking, slik at lokal reparasjon eller utskiftning kan iverksettes når dette blir nødvendig.
- Undertak (inkluderer sløyfer, lekter og innfestninger): Undertaket (inkluderer sløyfer, lekter, innfestninger og lignende) med tilhørende komponenter har en alder som tilsier at fremtidig funksjon er usikker. Konsekvens er at usikker fremtidig funksjon betyr at bygningsdelen erfaringsmessig har risiko for nedsatt funksjon, funksjonssvikt eller andre aldersrelaterte problemer. Bygningsdelen er skjult, så den faktiske tilstanden er ukjent. Foreslått tiltak er videre undersøkelser for å kartlegge dagens tilstand og avdekke om det er behov for større inngrep og utskiftninger, eller om lokale utbedringer og lignende tiltak er tilstrekkelig.
- Vannbord, vindskier, gesimskasser og lignende: Vindskier viser begynnende tegn til slitasje og elde. Det gjøres oppmerksom på at det ikke er observert større skader, men at vurderingen er begrenset til det som er synlig fra bakkenivå. Konsekvens/foreslått tiltak er forebyggende tiltak eller lokal reparasjon hvis videre undersøkelser viser at dette er nødvendig.
- Takrenner og utvendige nedløp: Takrenner og nedløp viser begynnende tegn til slitasje og elde. Konsekvens kan være ytterligere forverring av forholdet, hvis ikke tiltak iverksettes. Foreslått tiltak er lokal reparasjon, eller utskiftning der videre undersøkelser viser at dette er nødvendig.
- Snøfangere: Snøfangerutstyr er ikke etablert. På grunn av oppføringstidspunktet vurderes det at kravet for snøfangerutstyr trolig ikke var gjeldende, men TG2 er valgt siden forholdet kan påvirke sikkerheten. Tilstandsgrad er satt i henhold til NS 3600. Konsekvens/foreslått tiltak er ettermontering hvis dette viser seg å være mulig.
- Detaljer inn mot tilstøtende konstruksjoner: Tettedetaljer i overgang mellom tak- og veggkonstruksjon viser tegn til en utførelse hvor tettefunksjonen vurderes som usikker. Konsekvens er at overgangen derfor har økt risiko for lekkasje/utettheter, med den risiko for følgeskader som dette innebærer. Foreslått tiltak er videre undersøkelser for å kartlegge dagens tilstand og avdekke om det er behov for større inngrep og utskiftninger, eller om lokale utbedringer og lignende tiltak er tilstrekkelig. Selger opplyser om at det skal se på alternativer for løsning i området. Tiltak er foreløpig ikke kjent.
Terrasse / platting - Terrasseplattinger:
- Helhetsvurdering: Det er valgt å vurdere terrassen (og tilhørende bygningsdeler) med en samlet helhetsvurdering. Følgende hovedmomenter er lagt til grunn for vurderingen:
Basert på bygningsdelenes samlede tilstandsbilde og hovedmomentene som nevnes over bør det påregnes tiltak som forebyggende vedlikehold og/eller lokale utbedringer der dette viser seg å være et behov. Erfaring viser at igangsetting av slike arbeider i mange tilfeller avdekker ytterligere forhold som krever tiltak, noe som det bør tas høyde for.
Utvendig trapp - Utvendige trapper på tomta. :
- Utvendig trapp: Trappene viser tegn til slitasje og elde, med stedvise symptomer på begynnende skader. Konsekvens er svekket beskyttelse av materialene, og pågående nedbrytning. Foreslått tiltak er at det iverksettes forebyggende vedlikehold og lokale reparasjoner, eller utskiftning hvis videre undersøkelser viser at dette er nødvendig.
Grunnmur, fundament:
- Grunnmur og fundament: Det er registrert avskalling i overflaten på grunnmuren på hjørne under terrasse mot nordvest (opprinnelig grunnmur). Taknedløp er avsluttet her, og det kan ha vært en medvirkende faktor for skadene/slitasjen. Konsekvens er at forholdet over tid kan redusere murens bæreevne og stabilitet. Foreslått tiltak er videre undersøkelser for å kartlegge dagens tilstand og avdekke om det er behov for større inngrep og utbedringer eller om lokale utbedringer og lignende tiltak er tilstrekkelig. Tegn til riss og enkelte sprekkdannelser observeres stedvis i overflaten til grunnmuren/pilarer. Eksakt årsak er ukjent. tiltak er videre overvåking, slik at forebyggende vedlikehold og/eller lokal reparasjon kan iverksettes når dette blir nødvendig.
Drenering:
- Helhetsvurdering: Det er valgt å vurdere dreneringen med en samlet helhetsvurdering. Følgende hovedmomenter er lagt til grunn for vurderingen:
Dreneringens funksjon påvirker boligens bruksområder og bygningstekniske tilstand. Forhold som påvirker funksjonen er i hovedsak nedgravd og skjult, noe som medfører at tilstanden ikke kan fastslås ved visuell inspeksjon. Dette gjelder blant annet forhold som fuktbeskyttelse av konstruksjoner mot terreng, grunnforhold og tilstand på rør og lignende. Forholdene påvirker særlig konstruksjoner som er i direkte eller nær kontakt med bakken. Lokale og fremtidige klimaforhold er også en påvirkningsfaktor. Basert på alderen til dreneringen er foreslått tiltak videre overvåking, slik at forebyggende vedlikehold og nødvendige utbedringer kan iverksettes etter behov.
Andre byggverk - Bod:
- Helhetsvurdering: Det er valgt å vurdere bygningen med en samlet helhetsvurdering. Følgende hovedmomenter er lagt til grunn for vurderingen:
Basert på byggverkets samlede tilstandsbilde og hovedmomentene som nevnes over bør det påregnes tiltak som forebyggende vedlikehold og/eller lokale utbedringer der dette viser seg å være et behov. Erfaring viser at igangsetting av slike arbeider i mange tilfeller avdekker ytterligere forhold som krever tiltak, noe som det bør tas høyde for.
Andre byggverk - Brygge:
- Helhetsvurdering: Det er valgt å vurdere brygga med en samlet helhetsvurdering. Følgende hovedmomenter er lagt til grunn for vurderingen:
Basert på byggverkets samlede tilstandsbilde og hovedmomentene som nevnes over bør det påregnes tiltak som forebyggende vedlikehold og/eller lokale utbedringer der dette viser seg å være et behov. Erfaring viser at igangsetting av slike arbeider i mange tilfeller avdekker ytterligere forhold som krever tiltak, noe som det bør tas høyde for.
Det ble ikke funnet noen punkter med denne tilstandsgrad 3 i rapporten.
Tilstandsrapporten er inntatt i salgsoppgaven. Rapporten inneholder informasjon om avvikene og konsekvensen av disse. For avvik som er gitt TG3 har den bygningssakkyndige i tillegg gitt et anslag på hva det vil koste å utbedre disse avvikene. Ettersom kjøper regnes å være kjent med forhold som tydelig fremgår av tilstandsrapporten, oppfordres du til å sette deg grundig inn i rapporten i sin helhet.
Standard
Hytta har god planløsning og gjennomført standard med tregulv, panelte vegger og himlinger. Moderne kjøkken med integrerte hvitevarer og fronter malt i en dyp blåfarge. Badet er flislagt og er utstyrt med wc, servant i seksjon og dusjhjørne. Ekstra toalettrom med utvendig adkomst fra terrassen. På et gjesterom er det opplegg til vaskemaskin og tørketrommel som enkelt skjules bak skyvedører.
Løsøre og tilbehør
Det kan avtales dersom det er ønskelig å overta deler av inventar ved kjøp av hytta. Vi viser til liste fra Norges Eiendomsmeglerforbund som gjelder fra 01.01.2020 angående løsøre og tilbehør.
Oppvarming
Hytta varmes opp med elektrisitet og har varmekabler i baderomsgulvet. Det er i tillegg peis med innsats fra Jøtul i stua. Dersom beboelsesrom ikke har vegg- eller fastmonterte varmekilder ved visning, følger dette heller ikke med. Kommunen har ved tilsyn 21.05.2024, bemerket at det er brennbart materiale for nært sotluka. Selger påpeker at det er gjort tiltak ved at selger har satt inn en spesialstein (feielukestein) på anbefaling fra Varmesenteret i Skien.
Ferdigattest/brukstillatelse
Eiendommen har vært brukt til fritidsboligformål siden 1960 årene.
Kommunen opplyser at det ikke foreligger ferdigattest eller midlertidig brukstillatelse for eiendommen, men at det ikke var krav til ferdigattest eller midlertidig brukstillatelse på den tiden eiendommen ble oppført.
Den gamle hytta ble revet og bygget ny i 1983.
Det foreligger bygningstegninger fra 1983 for utvidelse av hytta og fra 1995 for utvidelse av terrasse med overbygg og tilbygg do/bod. Disse er stemplet mottatt i kommunen. Hytta fikk også godkjent tilkobling av offentlig vann og avløp i 2009.
Det gjøres oppmerksom på at det ikke lenger utstedes ferdigattest på tiltak det er søkt om før 1998 jf. plan- og bygningsloven § 21-10. Kommunen vil ikke kreve ferdigattest for disse tiltakene og vil avvise eventuelle søknader. Bestemmelsen innebærer ikke at tiltak med manglende søknad blir lovlige, men at man ikke trenger å avslutte gamle byggesaker. Normalt sett kreves ferdigattest for alle søknadspliktige tiltak som gjøres etter plan- og bygningsloven.
Kjøper overtar eiendommen slik den fremstår på visning med risiko og ansvaret for eventuelle pålegg fra kommunen og kostnader forbundet med dette.
Soverom med utvendig adkomst er opprinnelig byggemeldt som boder jf. bygningstegninger fra 1983 og er ikke godkjent til varig opphold. Innredning av rommet til bruk for varig opphold er ikke bruksendret/omsøkt og er heller ikke godkjent for denne bruk av kommunen. Konsekvensen ved søknad kan være at rommet ikke godkjennes som varig opphold og at rommet da må brukes som bod/midlertidig oppbevaring.
Badet er ikke inntegnet på bygningstegninger og det foreligger sånn sett ingen dokumentasjon på etablering av bad i kommunens arkiver.
Utgangsdør er flyttet til motsatt side iht. hvordan den var inntegnet på originale bygningstegninger.
Det foreligger ingen dokumentasjon på etablering av brygge, utrigger og trapp fra brygge til hytta.
Kjøper overtar alt ansvar, kostnad og risiko for dette videre.
Tinglyste heftelser og rettigheter
Eiendommen overdras fri for pengeheftelser.
Det er ingen tinglyste servitutter på eiendommen.
Eventuell adgang til utleie
Fritidseiendommen har ikke separat utleiedel. Det vil normalt være anledning til utleie av hele eiendommen eller enkeltrom, såfremt utleiearealet er bygningsmessig godkjent for varig opphold.
Beliggenhet og tomteforhold
Beliggenhet og tomteforhold
Beliggenhet
Fritidsboligen ligger idyllisk, usjenert og solrikt til på sydsiden av Risøy i Kragerø kommune. Fra eiendommen er det er fin utsikt utover fjorden. Med planende båt er det under 10 min. til Valle og 20 min. til sørlandsbyen Kragerø. Innenfor en avstand på ca. 20 min. kan du også besøke idylliske Jomfruland og Skåtøy som både har restaurant og arrangerer konserter gjennom sommeren. Skjærgården i området er variert og vakker med små idylliske holmer, trange sund og nydelige badeplasser.
Adkomst
Med båt fra Valle, Kragerø eller andre fastlandsforbindelser i området.
Beskrivelse av tomt
Eiet tomt som består av to bruksnumre. Hvorav den ene er bebygd. Den andre parsellen ble i sin tid kjøpt av nåværende eiers far for å sikre at det aldri skulle komme noen hytter tett innpå. Tomten skråner fra hytta og ned mot sjøen og består av en del naturtomt, brygge, terrasser og trapp, som er bygget i solid trevirke. Terrassen strekker seg rundt hytta, hvor det også er bygget en overbygget utestue med takvarme og markise. Tomtene er ikke oppmålt. Arealet som er oppgitt fra kommunen er kun på den bebygde tomta og det er usikre grenser.
Vei, vann og avløp
Eiendommen har adkomst via sjøveien.
Eiendommen er tilknyttet kommunalt ledningsnett via private stikkledninger. Pumpe for avløpet er plasssert under terrassen. Eier er selv ansvarlig for private stikkledninger til fritidsboligen.
Regulerings-og arealplaner
Eiendommen ligger i et uregulert område, men er i kommuneplan datert 12.02.2019 avsatt til: Landbruk, natur og friluftsområde.
Utsnitt av plan med tilhørende bestemmelser kan fås ved henvendelse til megler.
Økonomi
Økonomi
Kommunale utgifter
Kommunale avgifter er kr. 33.483,- for inneværende år. I dette inngår gebyr for vann, avløp, eiendomsskatt og feiing/tilsyn. I tillegg betaler selger kr. 2.088,- (2025) for hytterenovasjon til Bamble kommune. Dette fordi det er nærmere og enklere å tømme søppel på Valle i Bamble kommune istedenfor i Kragerø kommune. Beløpet er ikke justert til 2026 nivå, ettersom selger pr. 26. mars ikke har mottatt faktura.
Nåværende eier har et strømforbruk som tilsvarer ca. kr. 27.000,- pr. år. / 7.200 kwh. pr. år. Forbruket inkluderer at det er noe strøm på i hytta og på vannledning hele året.
Fritidsboligen har en årlig forsikringspremie på kr. 8.176,-.
Fritidsboligen har tv-signaler via parabolantenne. Internett streames via mobil. Parabol og dekoder medfølger.
Utgiftene er basert på nåværende eiers forbruk og avtaler.
Formuesverdi
Formuesverdi for 2024 var kr. 741.809,- ifølge skatteetaten.
Omkostninger
12 000 000,00 Prisantydning
Omkostninger
300 000,00 Dokumentavgift til staten (2,5% av kjøpesum)
500,00 Tinglysing panterettsdokument
500,00 Tinglysing skjøte
19 900,00 Tryg Boligkjøperpakke - Hytte (valgfri)
--------------------------------------------------------
320 900,00 Omkostninger totalt
--------------------------------------------------------
12 320 900,00 Totalpris inkl. omkostninger
--------------------------------------------------------
Totalpris inkl. omkostninger forutsetter kjøp til prisantydning.
Det tas forbehold om endringer i avgifter og gebyrer.
Tilbud om lånefinansiering
Megler formidler gjerne kontakt med rådgiver hos vår samarbeidspartner BN Bank. De har konkurransedyktige betingelser samt rask og løsningsorientert behandling av din lånesøknad. Krogsveen mottar et honorar for denne formidlingen.
Betalingsbetingelser
Kjøpesum inkludert omkostninger, samt pantedokument tilknyttet eventuelt lån, skal være disponibelt hos megler 2 virkedager før overtagelsen.
Annen viktig informasjon
Annen viktig informasjon
Eier
Thor Helge Borgersen
Konsesjon
Eiendommen er ikke konsesjonspliktig, men det er boplikt i Kragerø kommune. For at eiendommen skal kunne overskjøtes må kjøper signere på egenerklæring om konsesjonsfrihet om at boplikten ikke gjelder for denne eiendommen.
Overtakelse
Etter nærmere avtale.
Boligselgerforsikring
Selger har i forbindelse med salget tegnet boligselgerforsikring levert av Gjensidige.
Boligselgerforsikringen dekker selgers ansvar etter avhendingsloven begrenset oppad til kr 14 millioner. Dersom kjøper oppdager forhold ved eiendommen som hen mener utgjør en mangel ved eiendommen, vil Gjensidige behandle reklamasjonen på vegne av selger. Forsikringsvilkår kan fås ved henvendelse til megler.
Vedlagt salgsoppgaven følger selgers egenerklæringsskjema og tilstandsrapport. Interessenter må sette seg inn i dokumentene før bud inngis.
Boligkjøperforsikring
Innen kontraktsmøtet må kjøper ta stilling til om det ønskes å bestille Boligkjøperpakken gjennom Gjensidige. I denne gunstige pakken er boligen ferdig forsikret og inkluderer rettshjelpsforsikring, også kalt Boligkjøperforsikring. Rettshjelpsforsikring gir trygghet og tilgang på profesjonell juridisk hjelp dersom det oppdages uventede feil eller mangler det første året etter overtagelse. Forsikringsselskapet behandler i så fall ethvert mangelskrav kjøper måtte ha overfor selger.
Boligkjøperpakken inkluderer bygningsforsikring for hus og hytte, innboforsikring, flytteforsikring og dobbel rentedekning - i situasjoner hvor kjøper ikke får solgt nåværende primærbolig.
Kjøper mottar ingen særskilt faktura for Boligkjøperpakken da kostnaden det første året legges til kjøpesummen for boligen. Det gjøres oppmerksom på Krogsveen mottar et honorar for denne formidlingen.
Produktark for Boligkjøperpakken ligger vedlagt i salgsoppgaven.
Dersom ikke boligkjøperpakke ønskes kan kun rettshjelpsforsikring, også kalt boligkjøperforsikring, tegnes særskilt via megler. Rettshjelpsforsikringen varer i 5 år fra overtagelse og leveres gjennom Gjensidige. Ta kontakt med megler for ytterligere informasjon.
Selskap og privatpersoner som driver med kjøp/salg/utvikling som ledd i egen næringsvirksomhet kan ikke tegne boligkjøperpakke eller rettshjelpsforsikring.
Budgivning
Forbrukerinformasjon om budgivning er vedlagt denne salgsoppgaven og er også på vår hjemmeside Krogsveen.no. Alle bud og budforhøyelser må inngis skriftlig. I tillegg må legitimasjon være fremlagt sammen med signatur fra budgiver.
Vi oppfordrer til å gi bud elektronisk via GI BUD-knappen på eiendommens hjemmeside på Krogsveen.no. Da vil samtlige vilkår bli oppfylt.
Eventuelle forhøyelser eller endringer av budet kan bekreftes pr SMS eller på e-post. Vi oppfordrer alltid til å kontakte megler pr. telefon i tillegg da forsinkelser i SMS og e-post kan forekomme.
For at budene skal kunne bli behandlet og videreformidlet skriftlig til alle involverte parter, må alle bud ha en tilstrekkelig lang akseptfrist, jf. eiendomsmeglingsforskriften § 6-3.
Selger må også skriftlig akseptere budet før aksept kan formidles til budgiver. Akseptfrist bør derfor være på minimum 30 minutter, og budforhøyelser må derfor skje i god tid før fristens utløp.
Bud i forbrukerforhold kan uansett ikke settes med kortere frist enn kl. 12.00 første virkedag etter siste annonserte visning. I tillegg kan ikke budet ha forbehold om at det skal holdes hemmelig ovenfor øvrige interessenter. Megler har iht lov om eiendomsmegling ikke anledning til å videreformidle disse budene, og de vil dermed heller ikke bli journalført.
Etter at eiendommen er solgt vil kjøper og selger få tilsendt budjournal. Øvrige budgivere kan få utlevert kopi av budjournalen i anonymisert form.
Hvitvaskingsreglene
I henhold til lov om hvitvasking og terrorfinansiering har megler plikt til å gjennomføre kontrolltiltak overfor kunder, herunder fullmektiger. Dette innebærer bl.a. å bekrefte kunders og reelle rettighetshaveres identitet på bakgrunn av fremvist gyldig legitimasjon eller på annen godkjent måte, samt å innhente opplysninger om kundeforholdets formål og tilsiktede art.
Dersom slike kundetiltak ikke kan gjennomføres, kan megler ikke etablere kundeforholdet eller utføre transaksjonen.
Hvis kjøper ikke bidrar til gjennomføring av kundekontrollen og dette fører til at transaksjonen blir forsinket eller ikke kan gjennomføres, vil dette ansees som mislighold av avtalen og gi selger rettigheter etter avhendingslova kapittel 5. I tilfeller der selger ikke bidrar til gjennomføring av løpende kundekontroll underveis i oppdraget, er det selger som misligholder sine forpliktelser etter avtalen og gi kjøper rettigheter etter avhendingslovens kapittel 4. Partene er selv ansvarlige for eventuelle kostnader og ansvar dette kan medføre. Eiendomsmegleren eller eiendomsmeglingsforetaket kan ikke holdes ansvarlig for de konsekvenser dette vil kunne få for partene eller andre som har interesser i eiendomshandelen.
Kjøper oppfordres til å innbetale kjøpesummen som ikke kommer fra låneinstitusjon i én samlet innbetaling fra egen konto i norsk bank. Megler har plikt til å melde fra til Økokrim om eiendomshandler som fremstår som mistenkelige. Melding sendes Økokrim uten at partene varsles.
Personopplysningsloven
I henhold til personopplysningsloven gjør vi oppmerksom på at interessenter kan bli registrert for videre oppfølging.
Lovanvendelse
Generelle bestemmelser
Salgsoppgaven er basert på de opplysningene selger har gitt til megler, den bygningssakyndiges tilstandsrapport, samt opplysninger innhentet fra kommunen, Kartverket og andre tilgjengelige kilder. Det er viktig at kjøper setter seg grundig inn i alle salgsdokumentene, herunder salgsoppgave, tilstandsrapport og selgers egenerklæring. Kjøper anses kjent med forhold som er tydelig beskrevet i salgsdokumentene, og slike forhold kan ikke påberopes som mangler. Dette gjelder uavhengig av om kjøper har lest dokumentene. Alle interessenter oppfordres til å undersøke eiendommen nøye, gjerne sammen med fagkyndig før bud inngis. Kjøper som velger å kjøpe usett kan ikke gjøre gjeldende som mangel noe han burde blitt kjent med ved undersøkelsen.
Dersom det er behov for avklaringer, anbefaler vi at interessenter rådfører seg med eiendomsmegler eller egne rådgivere før det legges inn bud.
En bolig som har blitt brukt i en viss tid, har vanligvis blitt utsatt for slitasje og skader kan ha oppstått. Slik bruksslitasje må kjøper regne med, og det kan avdekkes enkelte forhold etter overtakelse som nødvendiggjør utbedringer. Normal slitasje og skader som nødvendiggjør utbedring, er innenfor hva kjøper må forvente og vil ikke utgjøre en mangel.
Kjøper og selgers rettigheter og plikter reguleres av avtalen mellom partene, samt informasjonen som har vært tilgjengelig for kjøperen i forbindelse med handelen. Avtalen utfylles av avhendingsloven, og det gjelder ulike avtalevilkår avhengig av om kjøper er forbrukerkjøper eller ikke. Dette er nærmere beskrevet nedenfor.
På grunn av ulike avtalevilkår kan selger vurdere bud fra en som ikke er forbruker, ulikt fra en forbrukers bud. Dersom kjøper ikke er forbruker, er selger sitt mulige mangelsansvar begrenset fordi eiendommen selges "som den er". Selger kan ikke ta «som den er»- forbehold overfor en forbrukerkjøper. Selv et lavere bud fra en som ikke er forbruker kan foretrekkes fordi begrensningen i mulig mangelsansvar kan ha egenverdi for selger. Selger står fritt til å forkaste eller akseptere ethvert bud, og er for eksempel ikke forpliktet til å akseptere høyeste bud.
Budgiver skal i budskjema avgi egenerklæring om budgiver er forbruker eller næringsdrivende/ person som hovedsakelig handler som ledd i næringsvirksomhet. Budgivere får informasjon dersom andre bud er inngitt av en som ikke er forbruker.
Forbrukerkjøp - definisjon
Med forbrukerkjøp menes kjøp av eiendom når kjøperen er en fysisk person som ikke hovedsakelig handler som ledd i næringsvirksomhet.
Forbruker – avtalevilkår
Eiendommen har en mangel dersom den ikke er i samsvar med kravene som følger av avtalen, eller det foreligger brudd på bestemmelsene i avhendingsloven §§ 3-2 til 3-8. Hvis eiendommen ikke er i samsvar med det kjøperen må kunne forvente ut ifra alder, type og synlig tilstand, kan det være grunnlag for mangelskrav. Det samme gjelder hvis det er holdt tilbake eller gitt uriktige opplysninger om eiendommen. Dette gjelder likevel bare dersom man kan gå ut ifra at det virket inn på avtalen at opplysningen ikke ble gitt eller at mangelskravet ikke blir rettet i tide på en tydelig måte.
Boligen kan ha en mangel etter avhendingsloven § 3-3 andre ledd, dersom det er avvik mellom opplyst og faktisk innvendig areal, forutsatt at avviket er på 2% eller mer og minimum 1 kvm.
Ved beregning av et eventuelt prisavslag eller erstatning må kjøper selv dekke tap/kostnader opptil et beløp på kr 10 000 (egenandel).
Ikke-forbruker (næringsdrivende) – definisjon
Hvis kjøper er en juridisk person, eller en fysisk person som hovedsakelig handler som ledd i næringsvirksomhet, vil kjøpet ikke anses som et forbrukerkjøp.
Ikke-forbruker – avtalevilkår
Eiendommen har en mangel dersom den ikke er i samsvar med kravene som følger av avtalen.
Eiendommen selges «som den er», og selgers ansvar utover det konkret avtalte er da begrenset etter avhendingsloven § 3-9, første ledd andre setning.
Avhendingsloven § 3-3 andre ledd fravikes, og hvorvidt boligens arealsvikt utgjør en mangel vurderes etter avhendingsloven § 3-8.
Informasjon om kjøpers undersøkelsesplikt, herunder oppfordringen om å undersøke eiendommen nøye, gjelder også for kjøpere som ikke anses som forbrukere.
Det forutsettes at hjemmel overføres til kjøper. Hvis kjøper ikke ønsker hjemmelsoverføring av eiendommen, må det tas forbehold om dette i budet.
Rett til fritt å velge megler
Valg av eiendomsmeglingsforetak skal være frivillig. Eiendomsmeglingsforetak kan ikke inngå oppdrag om eiendomsmegling dersom inngåelsen av oppdraget er satt som vilkår i avtale om annet enn eiendomsmegling, f.eks. tilbud om lån eller andre banktjenester, jf. Lov om eiendomsmegling § 6-3 (3)
Meglers vederlag
Meglers vederlag betales av selger og er avtalt til:
Vederlag: 3,75 % av salgssummen.
Vederlag
Kontroll av hjemmel og heftelser kr 2 900,-
Markedsføringspakke Fritid og tomt kr 27 200,-
Oppgjør kr 7 500,-
Tilrettelegging kr 17 000,-
Utlegg
Innhenting av offentlig opplysninger Kragerø m/byggetegning E-p kr 3 612,-
Tinglysing sikring kr 500,-
Andre utgifter
Boligselgerforsikring Gjensidige inkl. tilstandsrapport Anticimex kr 66 950,- (Forutsatt salg til prisantydning)
Foto - inkl. drone kr 4 550,-
Vi er opptatt av verdiskapning, og har knyttet til oss samarbeidspartnere som skal sikre våre kunder de beste produkter og tjenester;
• Gjensidige leverer boligselgerforsikring og tilbyr bygningsforsikring
• Boligkjøperforsikring leveres av Hiscox og med Sedgwick som skadebehandler, og er formidlet gjennom Gjensidige.
• BN bank tilbyr finansieringsløsninger
• Vår avdeling Krogsveen Pluss tilbyr flyttetjenester som utvask, visningsvask, lager, tømming og transport av flyttelass, i tillegg til å formidle kontakt med Flip for overflateoppussing.
• I forbindelse med overtagelse av eiendommen tilbyr Overo avtale om strøm, alarm og bredbånd.
• Krogsveen er, sammen med øvrige bransjeaktører, medeier i den digitale annonseringsplattformen Hjem.
Opplysninger om oppdraget
Oppdragsnummer 28-0042/24
Eiendomsmegler Krogsveen AS, avd. Bamble og Porsgrunn
Strandgata 22, 3960, STATHELLE
950 007 613
Oppdragets KR-kode KR28.2442
Dato
Sist oppdatert: 04. april 2026 kl. 17:57
Dokumenter
Dokumenter
PDF – 231 KB
PDF – 912 KB
PDF – 7 MB
PDF – 312 KB
PDF – 29 KB
PDF – 127 KB
PDF – 392 KB
Område
Legg til steder som er viktige for deg
Visning
Ta kontakt med megler for avtale om privatvisning.
Ønsker du kun å bli holdt orientert, kan du fra eiendommens hjemmeside få varsel om solgtpris, eller kontakte megler.
Lurer du på noe?
Vurderer du utleie?
Få et tilbud fra Utleie KrogsveenHva koster lånet?
Sjekk estimert lånekostnadVil du varsles om lignende boliger?
Ved å lagre ditt boligsøk hos oss får du beskjed når vi har en bolig som ligner denne, før den legges ut på markedet!





