Storgata 10D

2 590 000 kr

58 m²

Komplett salgsoppgave

Sentrum

Stilfull og moderne leilighet (renovert 2015) med lave fellesutgifter - Særdeles fin beliggenhet med takterrasse

    Pris

  • Prisantydning

    2 590 000 kr

  • Omkostninger

    75 790 kr

  • Totalpris

    2 665 790 kr

    Areal

  • Bruksareal

    61 m²

  • BRA-I (internt bruksareal)

    58 m²

  • BRA-E (eksternt bruksareal)

    3 m²

    Nøkkelinfo

  • Etasje

    3

  • Byggeår

    1908

  • Bad

    1 bad

  • Type

    Eierleilighet

  • Eierform

    Eierseksjon

  • Fasiliteter

    Balkong/Terrasse

  • Fellesutgifter

    1 094 kr

  • Energimerke

    Rød D

Unngå doble boligrenter

Vi tilbyr gunstig forsikring.

Hva koster lånet?

Sjekk estimert lånekostnad

Beskrivelse

Kort om eiendommen

Moderne og stilren selveierleilighet midt i sentrum

Innbydende selveierleilighet over ett plan, beliggende i 3. etasje i en sentral bygård i Sandefjord. Bygget har eldre opprinnelse, men ble betydelig oppgradert og ombygget i 2015, noe som gir en attraktiv kombinasjon av klassisk bygårdssjarm og moderne standard.

Her har du alle sentrumsfasiliteter rett utenfor døren – butikker, caféer, restauranter og kollektivtilbud ligger i umiddelbar nærhet. Her bor du bokstavelig talt med byens puls som nærmeste nabo.

Sameiet ligger tilbaketrukket i en rolig bakgård, noe som gir en skjermet og fredelig atmosfære – perfekt når du ønsker å trekke deg tilbake fra sentrumslivet. Leiligheten disponerer eget uteareal på takterrasse, noe som gir ekstra uteplass og gode solforhold.

Innhold og byggemåte

Eiendommen

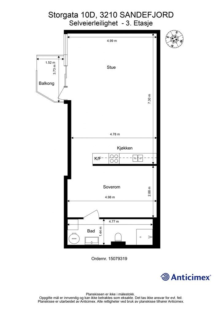
Storgata 10D, 3210 SANDEFJORD
Kommunenummer 3907, gårdsnummer 172, bruksnummer 147, seksjonsnummer 5, ideell andel 1/1

Innhold

Totalt bruksareal BRA: 61 kvm

BRA-i:
Storgata 10 D:
3. etasje 58 kvm: Stue, kjøkken, sovealkove og ett bad.

BRA-e:
Storgata 10 D:
1. etasje 3 kvm: Bod

Vedlagte plantegninger er ikke målbare. De oppgitte arealer er hentet fra rapport med befaringsdato 16.02.2026 utført av Anticimex Sandefjord AS. Arealene er beregnet og rom er definert etter dagens faktiske bruk, uavhengig av hva som er godkjent av bygningsmyndighetene.

Byggemåte

Selger har fått utarbeidet en tilstandsrapport, dvs. en teknisk gjennomgang av boligen hvor eventuelle avvik, risiko for kjøper og prisoverslag for hva som bør gjøres av oppgradering, er skissert. Se særskilt TGIU (tilstandsgrad ikke undersøkt), samt TG2 og TG3 som viser hva som er boligens normale slitasje, alder og type, hva som er avvik fra dette og hva som bør/må utbedres. Rapporten og selgers egenerklæring er en del av salgsoppgaven og må leses nøye før bud inngis. Kjøper overtar ansvaret for de opplysninger som fremkommer av salgsdokumentasjonen, og kan ikke gjøre gjeldende som mangel noe som burde vært kjent eller som ikke kan anses å ha betydning for avtalen.

Bygningen er iht. tilstandsrapporten oppført i betong, tre og stålkonstruksjoner. Yttervegger i en kombinasjon av tre- og betongkonstruksjoner. Utvendige fasader av murpuss. Etasjeskillere av trekonstruksjoner. Tilnærmet flatt tak. Yttertak er tekket med takmembran. Entrédør med glassfelter. Vinduer med karmer av tre.
Balkongdør med karmer av tre. Boligen ventileres hovedsakelig med naturlig ventilasjon gjennom vinduer og ventiler.

Utover normal elde og slitasje gjøres det spesielt oppmerksom på følgende:
*Våtrom: Noe hullyd i enkelte gulvfliser (mindre avvik av estetisk betydning), noe manglende fallforhold, sluk er isolert i dusjsone.
*Noe bruksslitasje på kjøkken
*Innvendig stakeluke er ikke lokalisert
*Bør etableres bedre ventilering (lufteluker etc.) og/eller ventilering ved åpning av vinduer bør påregnes.
*Sameiet bør vaske fasade
*Mangler barnesikring på vinduet i stue. Utgangsdør/karm bør justeres.

Se vedlagte tilstandsrapport for nærmere opplysninger om ovennevnte punkter.

Standard

Moderne og stilren selveierleilighet midt i Sandefjord sentrum

Innbydende selveierleilighet over ett plan, beliggende i 3. etasje i en sentral bygård i Sandefjord. Bygget har eldre opprinnelse, men ble betydelig oppgradert og ombygget i 2015, noe som gir en attraktiv kombinasjon av klassisk bygårdsjarm og moderne standard.

Med adresse i Storgata har du alle sentrumsfasiliteter rett utenfor døren – butikker, caféer, restauranter og kollektivtilbud ligger i umiddelbar nærhet. Her bor du bokstavelig talt med byens puls som nærmeste nabo.

Sameiet ligger tilbaketrukket i en rolig bakgård, noe som gir en skjermet og fredelig atmosfære – perfekt når du ønsker å trekke deg tilbake fra sentrumslivet. Leiligheten har i tillegg tilgang til takterrasse, som gir ekstra uteplass og gode solforhold.

En ideell bolig for førstegangskjøper – eller et attraktivt og lettutleid investeringsobjekt.

Leilighetens kvaliteter::
*Lave fellesutgifter, veldrevet sameie med erfaren styreleder
*Renovert og ombygd 2015 med en moderne standard
*Tilgang til takterrasse der denne leiligheten disponerer eget uteareal
*Morgensol ved inngangsparti
*Særdeles pendlervennlig leilighet ( 3 minutter til bus og togforbindelser)
*Alle sentrumsfasiliteter like ved utgangsdøren
*Utvendig bod

Oppvarming

Gulvvarme på bad/wc.

Dersom beboelsesrom ikke har vegg- eller fastmonterte varmekilder ved visning, følger dette heller ikke med. 

Ferdigattest/brukstillatelse

Det foreligger midlertidig brukstillatelse datert 22.05.2015, samt ferdigattest datert 01.03.2021. Denne kan fås ved henvendelse til megler.

Megler opplyser at på byggetegninger datert 14.02.2013 er sovealkove beskrevet som soverom. Nevnte rom tilfredsstiller ikke dagens krav til separat soverom mtp. lysforhold m.m.

Bygget er opprinnelig fra ca. 1908 (ble ombygd og renovert ca. 2015), og Sandefjord kommune har følgende kommentar ifbm. opprinnelig oppføring av bygget: Det foreligger ikke ferdigattest for oppføring av bygning på eiendommen i kommunens arkiv. Forholdet til manglende ferdigattest for eldre bygg er tatt inn i lovteksten ved revisjon av plan og bygningsloven i 2014 i § 21-10 «Ferdigattest utstedes ikke for tiltak det er søkt om før 1. januar 1998». Siden bygningen er fra før dette, betyr det at eiendommen kan benyttes uten ferdigattest.

Tinglyste heftelser og rettigheter

Leiligheten overdras fri for pengeheftelser med unntak av:

Dagboknr 910025, tinglyst 27.05.1908, type heftelse: Bestemmelse iflg skjøte. Bestemmelse om adkomstrett. Det har ikke lykkes megler å innhente denne servitutten grunnet eldre dato.

Dagboknr 1108604, tinglyst 26.11.2015, type heftelse: Erklæring/avtale. Bestemmelse om bruksrett til areal på felles takterrasse m.m. Gjelder denne registerenheten med flere.

Sameiet har legalpant for krav mot sameieren som følger av sameieforholdet iht. eierseksjonsloven § 31. Pantet er begrenset oppad til 2G, (G = folketrygdens grunnbeløp).

Heftelsene vil følge eiendommen. Kjøpers bank vil få pant etter ovennevnte heftelser og servitutter.

Ta kontakt med megler for kopi av seksjoneringsbegjæring tgl. 13.01.2015, og reseksjonering tgl. 20.12.2016 av sameiet.

Eventuell adgang til utleie

Leiligheten kan leies ut såfremt leiligheten har forsvarlige radonverdier. Leietaker må følge sameiets vedtekter og ordensregler på lik linje som eier.

Styreleder informerer om at det vil bli vedtektfestet at korttidsutleie (airbnb etc.)ikke tillates i sameiet, og at det er kun langtidsutleie som vil bli godkjent.

Beliggenhet og tomteforhold

Beliggenhet

Midt i Sandefjord sentrum med gangavstand til "alt" finner du en tidsriktig og moderne selveierleilighet.

Utenfor leiligheten har Sandefjord mye spennende å by på. Byens store grønne lunge, Badeparken, med store park- og lekeområder ligger like ved leiligheten.

I umiddelbar nærhet har man også Rådhuset med bibliotek og Hjertnes kulturhus med både kino og et bredt utvalg av kulturelle innslag. Hvaltorvet kjøpesenter ligger en tusletur unna og her har man alt fra dagligvareforretning, blomster, klær, sko og servering. Like ved utgangsdøren har man byparken med stort utvalg av diverse forretninger og serveringsteder. Man har også Preståsen i umiddelbar nærhet med koselige turstier og utsiktspunkter. Med dette har du absolutt alt du trenger i nærheten!

Av populære serveringssteder er det kort vei til Brygga med en variasjon av restauranter og steder for hyggelige kvelder.

For de som pendler kan megler informere om at det kun tar 3-5 minutter å spasere til buss & togstasjon.

Velkommen til visning

Adkomst

Leiligheten ligger øst for Byparken i Sandefjord sentrum.

Det vil bli skiltet med Krogsveen visningsskilt ved fellesvisning.

Veibeskrivelse: Se Google maps - det er enkelt å finne frem i kartet.

Barnehager, skoler og fritid

Byskolen barneskole og Ranvik ungdomsskole. Dersom skole- og barnehagetilbud er av betydning for kjøpet, ber vi om at det rettes en særskilt henvendelse til kommunen for oppdatert informasjon.

Beskrivelse av tomt

Eiertomt på 677 kvm som tilhører sameiet. Tomten er fellesareal.

Megler opplyser at noen av tomtegrensene er usikre, og at det kan forekomme avvik på oppgitte tomteareal.

Parkering

Gateparkering etter områdets bestemmelser. Det medfølger ingen p-plass.

Vei, vann og avløp

Eiendommen har adkomst via kommunal vei.

Eiendommen er tilknyttet kommunalt ledningsnett via private stikkledninger. Sameiet er ansvarlig for private stikkledninger til bygningen.

Regulerings-og arealplaner

Eiendommen ligger i et uregulert område, men er i kommuneplan datert 21.09.2023 er avsatt til: Sentrums formål, KP Hensynsonenavn H220 - Støy, Gul sone iht. T-1442, Byrom strategi 1, Krav vedrørende infrastruktur, Bestemmelse Områdenavn - Murbyen.

Utsnitt av plan med tilhørende bestemmelser kan fås ved henvendelse til megler.

Økonomi

Boligens kostnader

Kommunale avgifter er ca. kr. 14.000,- for inneværende år. I dette inngår gebyr for vann, avløp, renovasjon.

Fellesutgiftene er kr. 1095,- pr. mnd. og inkluderer: Forsikring, trappevask, felles strøm, diverse vedlikehold. Fellesutgiftene justeres normalt en til to ganger årlig i forhold til sameiets faktiske utgifter.

Nåværende eier har et strømforbruk som tilsvarer ca. 7.500,- pr.år. Det er tegnet Norgespris november 2025.

Boligen er tilknyttet Telenor som leverandør av internett. mnd. kostnad ca. kr. 1.000,-

Utgiftene er basert på nåværende eiers forbruk.

Kjøper må selv tegne innboforsikring.

Formuesverdi

Formuesverdi for 2024 var kr 687 577,- ifølge skatteetaten. Beløpet forutsetter at eier bor fast i boligen (primærbolig).

Ved eventuell øvrig bruk av eiendommen (f.eks. fritidsbolig, pendlerbolig, utleieobjekt) var formuesverdien for 2023 kr 2 750 309,-..

Fra 2026 har Stortinget vedtatt en oppdatert modell for beregning av formuesverdi for primærbolig, så avvik kan forekomme.
For mer informasjon se skatteetaten.no

Omkostninger

2 590 000,00 Prisantydning

Omkostninger

64 750,00  Dokumentavgift til staten (2,5% av kjøpesum)
9 950,00  Gjensidige Boligkjøperpakke (valgfri)
545,00  Tinglysing panterettsdokument
545,00  Tinglysing skjøte
--------------------------------------------------------
75 790,00 Omkostninger totalt

--------------------------------------------------------
2 665 790,00 Totalpris inkl. omkostninger

--------------------------------------------------------

Betalingsbetingelser

Kjøpesum inkludert omkostninger, samt pantedokument tilknyttet eventuelt lån, skal være disponibelt hos megler 2 virkedager før overtagelsen.

Annen viktig informasjon

Eier

Elise Graneng Olafsen

Informasjon om sameiet

Eiendommen er seksjonert, og leiligheten er tilknyttet Sameiet Storgata 10 B.

Forretningsfører er Miki Regnskap AS, Styreleder er Per-Erik Stickler Holm.

Dugnad må påregnes.

Eier av denne seksjonen er ansvarlig for drift og snømåking av utendørs gangareal (ved utgangsdør mot felles trappeadkomst).

Se vedlagte ordensregler for bruk og drift av felles takterrasse.

Styreleder informerer om at taket er gammelt og at styret p.t er usikre på når det eventuelt må oppgraderes. Dersom tak må utbedres i fremtiden vil det komme en kostnad på dette.

Det er planlagt en økning av fellesutgift, da fellesutgifter ikke er oppjustert på flere år. Styreleder har antydet en ny fellesutgift på ca. kr. 1.500,- pr.mnd, men dette er ikke vedtatt p.t.

Styreleder informerer om at det vil bli vedtektfestet at korttidsutleie (airbnb etc.)ikke tillates i sameiet, og at det kun er langtidsutleie som vil bli godkjent.

Vi gjør videre oppmerksom på at det iht. eierseksjonsloven ikke er anledning å erverve mer enn 2 seksjoner i sameiet, her teller også eierskap via. firma, nærstående og familie. Kjøper har risikoen for at overskjøting på denne bakgrunn kan nektes av Statens Kartverk. I så fall vil kjøper uansett være forpliktet til å gjennomføre handelen, og oppgjør til selger vil finne sted tross manglende overskjøting. Konferer med megler for mer informasjon.

Dokumenter for sameiet og kopi av seksjonsbegjæringen kan fås ved henvendelse til megler.

Overtakelse

Etter nærmere avtale.

Boligselgerforsikring

Selger har i forbindelse med salget tegnet boligselgerforsikring levert av Gjensidige.  
Boligselgerforsikringen dekker selgers ansvar etter avhendingsloven begrenset oppad til kr 14 millioner. Dersom kjøper oppdager forhold ved eiendommen som hen mener utgjør en mangel ved eiendommen, vil Gjensidige behandle reklamasjonen på vegne av selger. Forsikringsvilkår kan fås ved henvendelse til megler.  

Vedlagt salgsoppgaven følger selgers egenerklæringsskjema og tilstandsrapport. Interessenter må sette seg inn i dokumentene før bud inngis. 

Boligkjøperforsikring

Innen kontraktsmøtet må kjøper ta stilling til om det ønskes å bestille Boligkjøperpakken gjennom Gjensidige. I denne gunstige pakken er boligen ferdig forsikret og inkluderer rettshjelpsforsikring, også kalt Boligkjøperforsikring. Rettshjelpsforsikring gir trygghet og tilgang på profesjonell juridisk hjelp dersom det oppdages uventede feil eller mangler det første året etter overtagelse. Forsikringsselskapet behandler i så fall ethvert mangelskrav kjøper måtte ha overfor selger. 

Boligkjøperpakken inkluderer bygningsforsikring for hus og hytte, innboforsikring, flytteforsikring og dobbel rentedekning - i situasjoner hvor kjøper ikke får solgt nåværende primærbolig.   

Kjøper mottar ingen særskilt faktura for Boligkjøperpakken da kostnaden det første året legges til kjøpesummen for boligen. Det gjøres oppmerksom på Krogsveen mottar et honorar for denne formidlingen.
Produktark for Boligkjøperpakken ligger vedlagt i salgsoppgaven.  

Dersom ikke boligkjøperpakke ønskes kan kun rettshjelpsforsikring, også kalt boligkjøperforsikring, tegnes særskilt via megler. Rettshjelpsforsikringen varer i 5 år fra overtagelse og leveres gjennom Gjensidige. Ta kontakt med megler for ytterligere informasjon. 

Selskap og privatpersoner som driver med kjøp/salg/utvikling som ledd i egen næringsvirksomhet kan ikke tegne boligkjøperpakke eller rettshjelpsforsikring. 

Budgivning

Forbrukerinformasjon om budgivning er vedlagt denne salgsoppgaven og er også på vår hjemmeside Krogsveen.no. Alle bud og budforhøyelser må inngis skriftlig. I tillegg må legitimasjon være fremlagt sammen med signatur fra budgiver.

Vi oppfordrer til å gi bud elektronisk via GI BUD-knappen på eiendommens hjemmeside på Krogsveen.no. Da vil samtlige vilkår bli oppfylt.  
Eventuelle forhøyelser eller endringer av budet kan bekreftes pr SMS eller på e-post. Vi oppfordrer alltid til å kontakte megler pr. telefon i tillegg da forsinkelser i SMS og e-post kan forekomme.

For at budene skal kunne bli behandlet og videreformidlet skriftlig til alle involverte parter, må alle bud ha en tilstrekkelig lang akseptfrist, jf. eiendomsmeglingsforskriften § 6-3.

Selger må også skriftlig akseptere budet før aksept kan formidles til budgiver. Akseptfrist bør derfor være på minimum 30 minutter, og budforhøyelser må derfor skje i god tid før fristens utløp.

Bud i forbrukerforhold kan uansett ikke settes med kortere frist enn kl. 12.00 første virkedag etter siste annonserte visning. I tillegg kan ikke budet ha forbehold om at det skal holdes hemmelig ovenfor øvrige interessenter. Megler har iht lov om eiendomsmegling ikke anledning til å videreformidle disse budene, og de vil dermed heller ikke bli journalført.

Etter at eiendommen er solgt vil kjøper og selger få tilsendt budjournal. Øvrige budgivere kan få utlevert kopi av budjournalen i anonymisert form.

Hvitvaskingsreglene

I henhold til lov om hvitvasking og terrorfinansiering har megler plikt til å gjennomføre kontrolltiltak overfor kunder, herunder fullmektiger. Dette innebærer bl.a. å bekrefte kunders og reelle rettighetshaveres identitet på bakgrunn av fremvist gyldig legitimasjon eller på annen godkjent måte, samt å innhente opplysninger om kundeforholdets formål og tilsiktede art.

Dersom slike kundetiltak ikke kan gjennomføres, kan megler ikke etablere kundeforholdet eller utføre transaksjonen.

Hvis kjøper ikke bidrar til gjennomføring av kundekontrollen og dette fører til at transaksjonen blir forsinket eller ikke kan gjennomføres, vil dette ansees som mislighold av avtalen og gi selger rettigheter etter avhendingslova kapittel 5. I tilfeller der selger ikke bidrar til gjennomføring av løpende kundekontroll underveis i oppdraget, er det selger som misligholder sine forpliktelser etter avtalen og gi kjøper rettigheter etter avhendingslovens kapittel 4. Partene er selv ansvarlige for eventuelle kostnader og ansvar dette kan medføre. Eiendomsmegleren eller eiendomsmeglingsforetaket kan ikke holdes ansvarlig for de konsekvenser dette vil kunne få for partene eller andre som har interesser i eiendomshandelen.

Kjøper oppfordres til å innbetale kjøpesummen som ikke kommer fra låneinstitusjon i én samlet innbetaling fra egen konto i norsk bank. Megler har plikt til å melde fra til Økokrim om eiendomshandler som fremstår som mistenkelige. Melding sendes Økokrim uten at partene varsles. 

Personopplysningsloven

I henhold til personopplysningsloven gjør vi oppmerksom på at interessenter kan bli registrert for videre oppfølging.

Lovanvendelse

Generelle bestemmelser
Salgsoppgaven er basert på de opplysningene selger har gitt til megler, den bygningssakyndiges tilstandsrapport, samt opplysninger innhentet fra kommunen, Kartverket og andre tilgjengelige kilder. Det er viktig at kjøper setter seg grundig inn i alle salgsdokumentene, herunder salgsoppgave, tilstandsrapport og selgers egenerklæring. Kjøper anses kjent med forhold som er tydelig beskrevet i salgsdokumentene, og slike forhold kan ikke påberopes som mangler. Dette gjelder uavhengig av om kjøper har lest dokumentene. Alle interessenter oppfordres til å undersøke eiendommen nøye, gjerne sammen med fagkyndig før bud inngis. Kjøper som velger å kjøpe usett kan ikke gjøre gjeldende som mangel noe han burde blitt kjent med ved undersøkelsen. 

Dersom det er behov for avklaringer, anbefaler vi at interessenter rådfører seg med eiendomsmegler eller egne rådgivere før det legges inn bud.

En bolig som har blitt brukt i en viss tid, har vanligvis blitt utsatt for slitasje og skader kan ha oppstått. Slik bruksslitasje må kjøper regne med, og det kan avdekkes enkelte forhold etter overtakelse som nødvendiggjør utbedringer. Normal slitasje og skader som nødvendiggjør utbedring, er innenfor hva kjøper må forvente og vil ikke utgjøre en mangel.

Kjøper og selgers rettigheter og plikter reguleres av avtalen mellom partene, samt informasjonen som har vært tilgjengelig for kjøperen i forbindelse med handelen. Avtalen utfylles av avhendingsloven, og det gjelder ulike avtalevilkår avhengig av om kjøper er forbrukerkjøper eller ikke.  Dette er nærmere beskrevet nedenfor. 

På grunn av ulike avtalevilkår kan selger vurdere bud fra en som ikke er forbruker, ulikt fra en forbrukers bud. Dersom kjøper ikke er forbruker, er selger sitt mulige mangelsansvar begrenset fordi eiendommen selges "som den er".  Selger kan ikke ta «som den er»- forbehold overfor en forbrukerkjøper. Selv et lavere bud fra en som ikke er forbruker kan foretrekkes fordi begrensningen i mulig mangelsansvar kan ha egenverdi for selger. Selger står fritt til å forkaste eller akseptere ethvert bud, og er for eksempel ikke forpliktet til å akseptere høyeste bud.

Budgiver skal i budskjema avgi egenerklæring om budgiver er forbruker eller næringsdrivende/ person som hovedsakelig handler som ledd i næringsvirksomhet. Budgivere får informasjon dersom andre bud er inngitt av en som ikke er forbruker. 

Forbrukerkjøp - definisjon
Med forbrukerkjøp menes kjøp av eiendom når kjøperen er en fysisk person som ikke hovedsakelig handler som ledd i næringsvirksomhet.

Forbruker – avtalevilkår
Eiendommen har en mangel dersom den ikke er i samsvar med kravene som følger av avtalen, eller det foreligger brudd på bestemmelsene i avhendingsloven §§ 3-2 til 3-8. Hvis eiendommen ikke er i samsvar med det kjøperen må kunne forvente ut ifra alder, type og synlig tilstand, kan det være grunnlag for mangelskrav. Det samme gjelder hvis det er holdt tilbake eller gitt uriktige opplysninger om eiendommen. Dette gjelder likevel bare dersom man kan gå ut ifra at det virket inn på avtalen at opplysningen ikke ble gitt eller at mangelskravet ikke blir rettet i tide på en tydelig måte.

Boligen kan ha en mangel etter avhendingsloven § 3-3 andre ledd, dersom det er avvik mellom opplyst og faktisk innvendig areal, forutsatt at avviket er på 2% eller mer og minimum 1 kvm.

Ved beregning av et eventuelt prisavslag eller erstatning må kjøper selv dekke tap/kostnader opptil et beløp på kr 10 000 (egenandel).

Ikke-forbruker (næringsdrivende) – definisjon 
Hvis kjøper er en juridisk person, eller en fysisk person som hovedsakelig handler som ledd i næringsvirksomhet, vil kjøpet ikke anses som et forbrukerkjøp. 

Ikke-forbruker – avtalevilkår
Eiendommen har en mangel dersom den ikke er i samsvar med kravene som følger av avtalen.
Eiendommen selges «som den er», og selgers ansvar utover det konkret avtalte er da begrenset etter avhendingsloven § 3-9, første ledd andre setning. 

Avhendingsloven § 3-3 andre ledd fravikes, og hvorvidt boligens arealsvikt utgjør en mangel vurderes etter avhendingsloven § 3-8. 

Informasjon om kjøpers undersøkelsesplikt, herunder oppfordringen om å undersøke eiendommen nøye, gjelder også for kjøpere som ikke anses som forbrukere.

Det forutsettes at hjemmel overføres til kjøper. Hvis kjøper ikke ønsker hjemmelsoverføring av eiendommen, må det tas forbehold om dette i budet.

Meglers vederlag

Meglers vederlag betales av selger og er avtalt til:
Fastpris: 37 500,-

Vederlag:
Kontroll av hjemmel og heftelser  kr 3 900,00
Markedsføringspakke  kr 29 900,00
Oppgjør  kr 8 900,00
Tilrettelegging  kr 17 500,00

Utlegg:
Eierskiftegebyr MIKI Regnskap   kr 5 000,00
Tinglysing sikring  kr 545,00

Andre utgifter:
AX tilstandsrapport leilighet  kr 10 750,00
Boligselgerforsikring Gjensidige Snr - regnes av prisantydning  kr 12 137,00

Vi er opptatt av verdiskapning, og har knyttet til oss samarbeidspartnere som skal sikre våre kunder de beste produkter og tjenester;
• I forbindelse med forberedelse av salget, innhenter vi informasjon om eiendommen hovedsakelig fra vår samarbeidspartner Amibita.
• Gjensidige leverer boligselgerforsikring og tilbyr bygningsforsikring
• Boligkjøperforsikring leveres av Hiscox og med Sedgwick som skadebehandler, og er formidlet gjennom Gjensidige.
• BN bank tilbyr finansieringsløsninger
• Vår avdeling Krogsveen Pluss tilbyr flyttetjenester som utvask, visningsvask, lager, tømming og transport av flyttelass, i tillegg til å formidle kontakt med Flip for overflateoppussing.
• I forbindelse med overtagelse av eiendommen tilbyr Overo avtale om strøm, alarm og bredbånd.
• Krogsveen er, sammen med øvrige bransjeaktører, medeier i Bomega AS som tilbyr den digitale annonseringsplattformen Hjem.

Opplysninger om oppdraget

Oppdragsnummer 22-0036/26
Eiendomsmegler Krogsveen AS, avd. Sandefjord
Jernbanealléen 13, 3210, SANDEFJORD
950 007 613
Oppdragets KR-kode KR22.2636

Dato

Sist oppdatert: 26. februar 2026 kl. 08:04

Dokumenter

Utskriftsvennlig salgsoppgave

Område

Legg til steder som er viktige for deg

Prisutvikling for området

Kvadratmeterpris

0 kr/m²

Endring

↘︎ % ()

Visning

For å delta på visning, ber vi om at du melder deg på. Da sikrer vi at du får nødvendig informasjon og at det er satt av tilstrekkelig med tid. Kontakt megler dersom annet tidspunkt ønskes. Husk å lese salgsoppgaven før visningen, så du stiller forberedt. NB. Visning utgår dersom det ikke er noen påmeldte.
Ønsker du kun å bli holdt orientert, kan du fra eiendommens hjemmeside få varsel om solgtpris, eller kontakte megler.

Lurer du på noe?

Unngå doble boligrenter

Vi tilbyr gunstig forsikring.

Hva koster lånet?

Sjekk estimert lånekostnad

Vil du varsles om lignende boliger?

Ved å lagre ditt boligsøk hos oss får du beskjed når vi har en bolig som ligner denne, før den legges ut på markedet!

På flyttefot? Slik gjør vi det enklere for deg

Skreddersydd flyttepakke

Vi fikser håndverkere, vask, pakking, lagring og transport, og legger ut for utgiftene underveis.

Hjelp med både kjøp og salg

Hos oss har du din egen rådgiver gjennom hele kjøps- og salgsprosessen.

Hjelp til finansiering

Vårt samarbeid med BN Bank sikrer deg rask og løsningsorientert hjelp, til konkurransedyktige betingelser.