Krumveien 3C
15 650 000 kr
251 m²
4 soverom
Solgt

Presenteres av
Mats LundHASLUM
Nydelig familievilla med svært attraktiv beliggenhet. Solrikt og idyllisk! Høy standard, gode rom med flotte løsninger!
Prisantydning
15 650 000 krOmkostninger
412 240 krTotalpris
16 062 240 kr
Pris
Bruksareal
251 m²BRA-I (internt bruksareal)
251 m²TBA (terrasse-balkongareal)
43 m²
Areal
Etasje
3Byggeår
2007Soverom
4 soveromBad
3 badTomteareal
816 m² (eiet)Type
Enebolig - FrittliggendeEierform
EietFasiliteter
Balkong/TerrasseEnergimerke
Rød D
Nøkkelinfo
Unngå doble boligrenter
Vi tilbyr gunstig forsikring.
Vurderer du utleie?
Få et tilbud fra Utleie KrogsveenHva koster lånet?
Sjekk estimert lånekostnadBeskrivelse
Kort om eiendommen
Krumveien 3C
Attraktiv familiebolig med solrik og flott beliggenhet i et rolig og hyggelig boligområde på Haslum. Her bor du med kort avstand til barnehager, skoler, offentlig kommunikasjon og flotte turområder i Bærumsmarka.
Boligen inneholder:
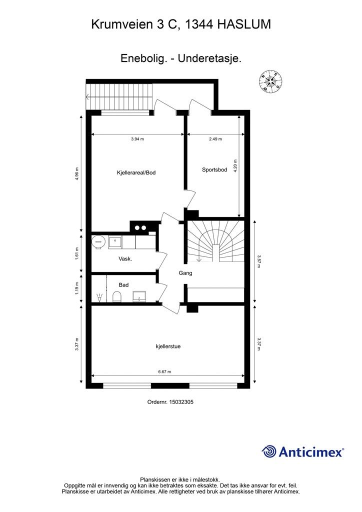
Underetasje: Gang, bad, vaskerom, to boder og kjellerstue.
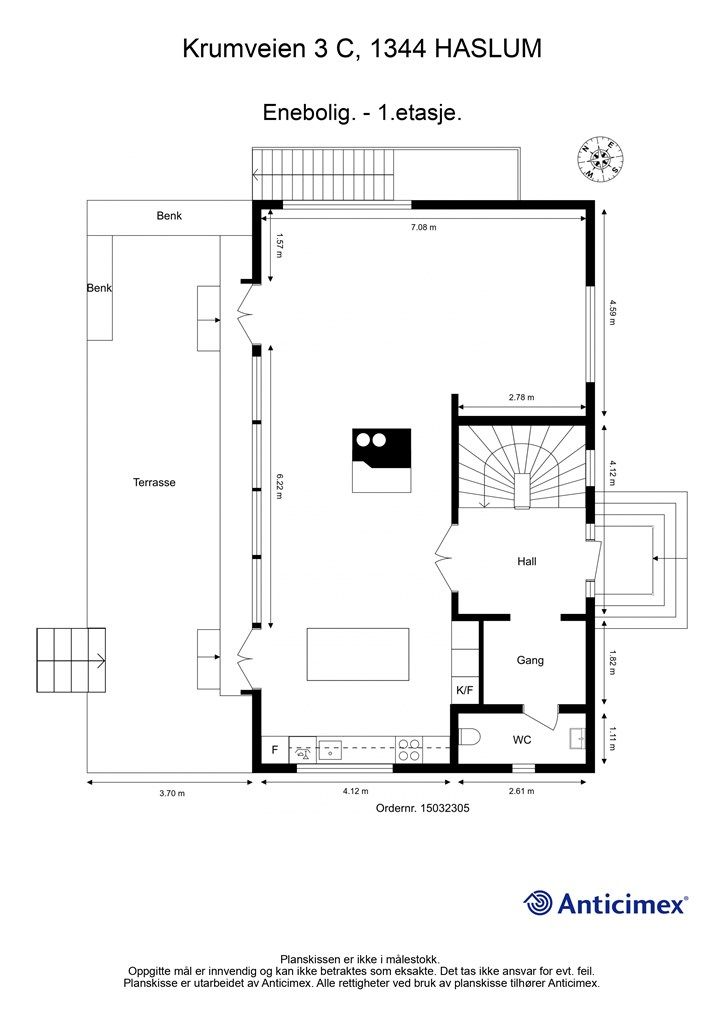
1. etasje: Hall, gang, toalettrom og stue med åpen kjøkkenløsning.
2. etasje: Gang, garderobe, to bad og fire soverom
Høydepunkter:
Delikat og hyggelig enebolig fra 2007
Innholdsrik familiebolig med god planløsning
Soveromsavdeling med fire soverom, to bad og garderobe
Høy standard hvor det er enkelt å trives
Solrik beliggenhet
Attraktivt og barnevennlig boligområde
Nært Bekkestua med "alt" av servicetilbud
Område
Legg til steder som er viktige for deg
På flyttefot? Tenk kjøp og salg samtidig.
Få din egen rådgiver gjennom hele kjøps- og salgsprosessen. Det starter med en verdivurdering.
Unngå doble boligrenter
Vi tilbyr gunstig forsikring.
Vurderer du utleie?
Få et tilbud fra Utleie KrogsveenHva koster lånet?
Sjekk estimert lånekostnadVil du varsles om lignende boliger?
Ved å lagre ditt boligsøk hos oss får du beskjed når vi har en bolig som ligner denne, før den legges ut på markedet!
På flyttefot? Slik gjør vi det enklere for deg
Skreddersydd flyttepakke
Vi fikser håndverkere, vask, pakking, lagring og transport, og legger ut for utgiftene underveis.
Hjelp med både kjøp og salg
Hos oss har du din egen rådgiver gjennom hele kjøps- og salgsprosessen.
Hjelp til finansiering
Vårt samarbeid med BN Bank sikrer deg rask og løsningsorientert hjelp, til konkurransedyktige betingelser.

