Konvallveien 5
6 990 000 kr
264 m²
3 soverom
Komplett salgsoppgave
Flateby
Innholdsrik enebolig med påkostede løsninger i barnevennlig nabolag | Moderne og tidsriktig | Garasje | Egen inngang kjeller
Prisantydning
6 990 000 krOmkostninger
195 740 krTotalpris
7 185 740 kr
Pris
Bruksareal
301 m²BRA-I (internt bruksareal)
264 m²BRA-E (eksternt bruksareal)
37 m²TBA (terrasse-balkongareal)
28 m²
Areal
Byggeår
1981Soverom
3 soveromBad
3 badTomteareal
629 m² (eiet)Type
Enebolig - FrittliggendeEierform
EietFasiliteter
Garasje/P-plass og Balkong/TerrasseEnergimerke
Gul E
Nøkkelinfo
Unngå doble boligrenter
Vi tilbyr gunstig forsikring.
Vurderer du utleie?
Få et tilbud fra Utleie KrogsveenHva koster lånet?
Sjekk estimert lånekostnadBeskrivelse
Kort om eiendommen
Velkommen til en stilfull og familievennlig enebolig med en attraktiv, sentral beliggenhet, samtidig som området oppleves rolig, trygt og skjermet. Her får du det beste fra to verdener; nærhet til hverdagens behov og fredelige omgivelser som gir gode rammer for familielivet.
* Egen inngang i underetasjen
* Innvendig oppusset
* Nyere tak og drenering
* Fin planløsning med stor grunnflate over 3. etasjer.
* Frittstående garasje med god lagringsplass og lader til elbil
* Lyse og romslige oppholdsrom for hele familien
* Skjermet uteområde med hekk og gjerder – ideelt for lek og avslapning
Velkommen til visning – her ligger alt til rette for et hjem du vil trives i over tid!
Innhold og byggemåte
Innhold og byggemåte
Eiendommen
Konvallveien 5, 1911 FLATEBY
Kommunenummer 3220, gårdsnummer 5, bruksnummer 314, ideell andel 1/1
Innhold
Totalt bruksareal BRA: 301 kvm
BRA-i:
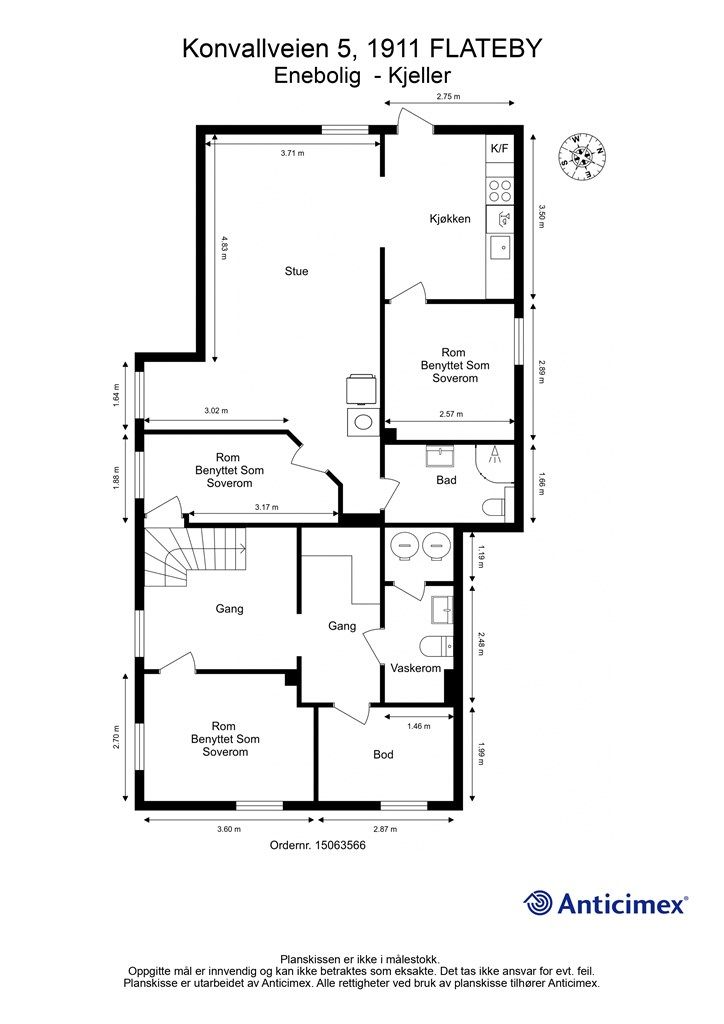
U. etasje 99 kvm: Gang, rom benyttet som soverom, bod og vaskerom. Kjøkken, stue, bad og to rom benyttet som soverom (Ikke godkjent til varig opphold)
1. etasje 105 kvm: Entré, stue/spisestue, kjøkken, bad og soverom
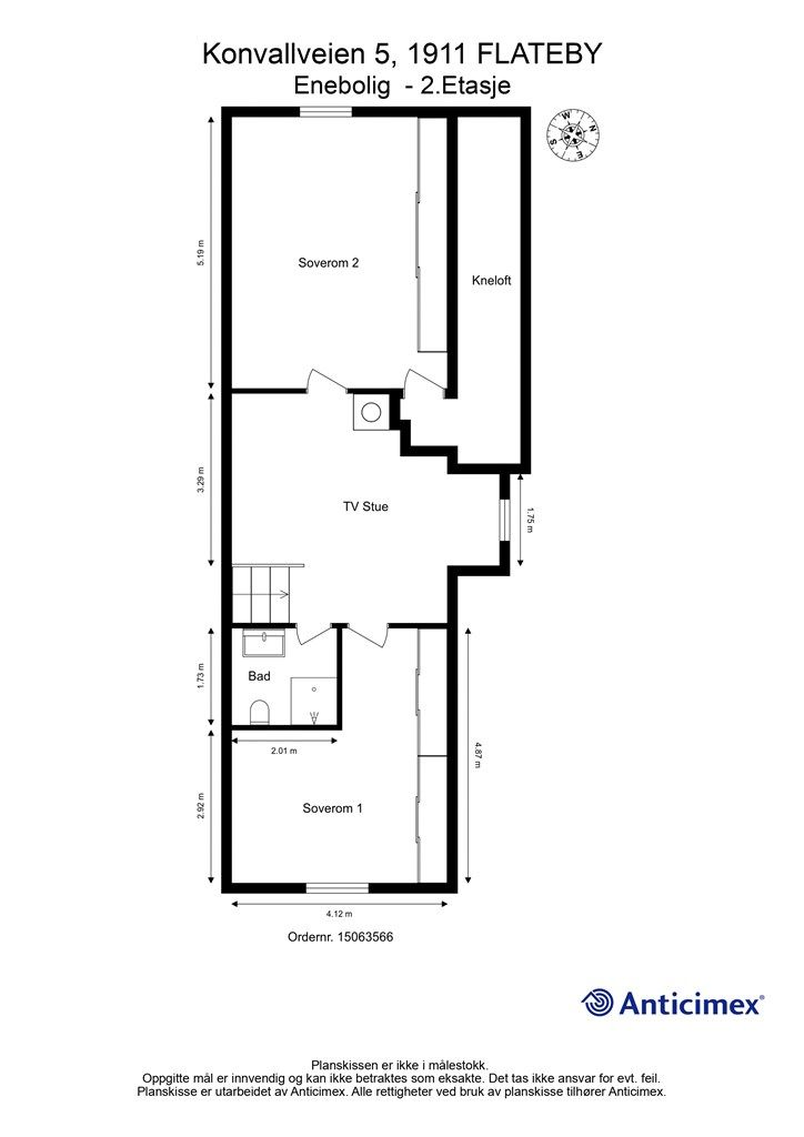
2. etasje 60 kvm: Tv-stue, to soverom og bad
BRA-e:
Garasje 23 kvm og bod 14 kvm
Åpent areal 1. etasje:
Terrasse på 18 kvm
Veranda på 3 kvm
Veranda på 7 kvm
Vedlagte plantegninger er ikke målbare. De oppgitte arealer er hentet fra rapport datert 16.03.2026 utført av Anticimex v/Stian Christensen. Arealene er beregnet og rom er definert etter dagens faktiske bruk, uavhengig av hva som er godkjent av bygningsmyndighetene.
Det gjøres oppmerksom på at underetasjen ikke er godkjent til varig opphold. Det ene soverommet i 2.etg. er byggemeldt som hobbyrom.
Byggemåte
Selger har innhentet en tilstandsrapport av eiendommen. Dersom det er registrert avvik, er disse klassifisert med tilstandsgrader (TGIU, TG2 og/eller TG3). Kjøper overtar ansvaret for de opplysninger som fremkommer av salgsdokumentasjonen, og kan ikke gjøre gjeldende som mangel noe som burde vært kjent eller som ikke kan anses å ha betydning for avtalen.
Bygningen er iht. tilstandsrapport en enebolig oppført i 1981 over tre plan (kjeller, 1. og 2. etasje). Grunnmuren er av betong/lettklinkerblokker med støpt gulv mot grunn. Bærende vegger, yttervegger og etasjeskillere er av trekonstruksjoner. Ytterveggene er utvendig kledd med stående trekledning. Yttertaket har en saltakskonstruksjon og er tekket med takstein fra 2021. Takrenner og nedløp er av metall. Boligen har en elementpipe fra byggeåret med peisovn i stuen i 1. etasje og i stuen i hybelen. Pipen er helkledd i metall over tak. Vinduene har karmer av tre og PVC med utvendig metallbeslag, og er fra 2022, 2021, 2014, 2010 og 2007. Entrédøren er fra byggeåret, mens terrasse- og verandadører er fra samme år som vinduene. Innvendige dører er profilerte. Det er en innvendig trapp i tre og en utvendig flislagt betongtrapp til hybelen. Eiendommen har en terrasse på 18 m², en veranda på 7 m² og en veranda på 3 m², alle med terrassebord og rekkverk av tre.
Det er en frittstående, uisolert garasje/bod i trekonstruksjoner fra 1981. Fasaden er kledd med stående trekledning, og yttertaket er delvis tekket med takstein. Det er registrert at bunnsvill og gipsplater i ytterveggene går ned til betongdekket.
Det elektriske anlegget består av sikringsskap med automatsikringer, plassert på vaskerom i kjeller og i hybelen utenfor badet.
Det mangler samsvarserklæring for arbeider utført før 2023, og det er anbefalt en utvidet kontroll av anlegget.
Boligen har godkjent slukkeutstyr og tilstrekkelig med røykvarslere.
Det gjøres spesielt oppmerksom på at følgende bygningsdeler er gitt Tilstandsgrad 3 (TG3) — Store eller alvorlige avvik:
Vaskerom/ teknisk rom
- Vanntett sjikt / membran i gulv og vegger: Det er uklart om det er benyttet vanntett sjikt på våtrommets gulv- og veggflater. Konsekvensen er at våtrom uten et fullverdig tettesjikt har høy risiko for skjulte fuktskader. Eventuelt vanntett sjikt har en alder som erfaringsmessig tilsier at fremtidig funksjon er svært usikker (gjelder for produkter/løsninger etablert før år 2000). Konsekvensen er at bygningsdelen erfaringsmessig har risiko for nedsatt funksjon, utettheter eller andre aldersrelaterte problemer. Fornying av tettesjikt krever i de fleste tilfeller tiltak som komplett utskiftning/renovering av våtrom. Bygningsdelen er skjult, så den faktiske tilstanden/dagens tettefunksjon er ukjent. TG3 er satt i henhold til NS 3600.
Andre byggverk - Garasje
- Helhetsvurdering: Det er valgt å vurdere bygningen med en samlet helhetsvurdering. Følgende hovedmomenter er lagt til grunn for vurderingen: Arbeidene på boder bærer tydelige preg av manglende fagmessig utførelse. Konsekvensen vurderes å være høy risiko for andre skjulte feil og mangler, som ikke lar seg observere. Det er kun takstein på deler av taket over boden. Det er valgt en uheldig løsning ved bygging av yttervegger til garasjen, da bunnsvill og gipsplater går ned til betongdekke. Ved vannsøl og avrenning fra bil mm. har dette skadet gipsplater og svill som suger opp fukt. Basert på byggverkets samlede tilstandsbilde og hovedmomentene som nevnes over bør det påregnes strakstiltak grunnet påviste skader og funksjonssvikt. Det er ikke kjent om forholdene har ført til følgeskader i andre konstruksjoner.
Følgende bygningsdeler er gitt Tilstandsgrad 2 (TG2) — Avvik som kan kreve tiltak:
Bad 2.etasje
- Lekkasjesikkerhet: Fallforhold utenfor sluksonen vurderes ikke til å være tilstrekkelig for å lede eventuelt lekkasjevann til sluk, og det er ikke påvist at vanntett sjikt har tilstrekkelig oppkant ved dørterskel for å kompensere for dette. Konsekvens er at forholdet gir risiko for at vann kan renne ut i tilstøtende rom ved en lekkasje.
- Vanntett sjikt / membran i gulv og vegger: Vanntett sjikt har en alder som tilsier at fremtidig funksjon er usikker. Konsekvensen er at bygningsdelen erfaringsmessig har risiko for nedsatt funksjon, utettheter eller andre aldersrelaterte problemer. Bygningsdelen er skjult, så den faktiske tilstanden og dagens tettefunksjon er ukjent.
- Plassering av sluk og avrenningsmuligheter: Sluket er isolert inne i dusjsonen. Konsekvens er at forholdet kan føre til oppdemming av vann ved en eventuell lekkasje. Det vurderes at lekkasjevann som oppstår utenfor dusjsonen likevel vil ledes til sluk før det renner ut av våtrommet.
- Ventilasjon: Tilluftsspalte eller lignende er ikke etablert. Konsekvens er at forholdet medfører redusert ventilering av våtrommet når døren er lukket.
- Sanitærutstyr og innredning: Drenering fra innebygget toalettsisterne er ikke registrert. Konsekvens er at det derfor ikke kan verifiseres om installasjonen er utført slik at eventuelt lekkasjevann raskt blir synliggjort.
Bad u. etasje
- Lekkasjesikkerhet: Fallforhold utenfor sluksonen vurderes ikke til å være tilstrekkelig for å lede eventuelt lekkasjevann til sluk, og det er ikke påvist at vanntett sjikt har tilstrekkelig oppkant ved dørterskel for å kompensere for dette. Konsekvens er at forholdet gir risiko for at vann kan renne ut i tilstøtende rom ved en lekkasje.
- Vanntett sjikt / membran i gulv og vegger: Vanntett sjikt har en alder som tilsier at fremtidig funksjon er usikker. Konsekvensen er at bygningsdelen erfaringsmessig har risiko for nedsatt funksjon, utettheter eller andre aldersrelaterte problemer. Bygningsdelen er skjult, så den faktiske tilstanden og dagens tettefunksjon er ukjent.
- Tettesjiktets tilslutning til sluk: Overgang mellom sluk og vanntett sjikt er uoversiktlig. Konsekvensen er at det derfor ikke kan verifiseres at utførelsen er korrekt, eller at lekkasjesikkerheten er ivaretatt.
- Ventilasjon: Tilluftsspalte eller lignende er ikke etablert. Konsekvens er at forholdet medfører redusert ventilering av våtrommet når døren er lukket. Våtrommet har kun naturlig ventilasjon. Konsekvens er at dette erfaringsmessig gir lavere luftutskifting enn mekanisk ventilasjon. Tilstandsgrad er satt i henhold til NS3600.
Bad 1.etasje
- Overflater vegger: Vindu er plassert i våtsonen, noe som anses som uheldig. Konsekvens er at forholdet medfører risiko for fuktskader på både vinduet og tilstøtende veggkonstruksjon.
- Fallforhold rundt sluk: Lokalfallet i sluksonen er mindre enn anbefalt. Konsekvens er at fallforholdet vurderes å ikke gi tilfredsstillende bortledning av bruksvann ved normal bruk. Det er noe vannansamling foran sluk i dusjsonen.
- Sanitærutstyr og innredning: Innredningen bærer samlet sett preg av slitasje og enkelte skader (svelleskader og lignende). Konsekvens er at tiltak kan bli nødvendig for å opprettholde forventet funksjon og standard. Drenering fra innebygget toalettsisterne er ikke registrert. Konsekvens er at det derfor ikke kan verifiseres om installasjonen er utført slik at eventuelt lekkasjevann raskt blir synliggjort.
Vaskerom/ teknisk rom
- Overflater vegger: Våtromsplater er ikke montert iht. monteringsanvisning. Redusert levetid kan ikke utelukkes. Utskifting av plater bør påregnes.
- Overflater gulv: Det er registrert hullyd i enkelte gulvfliser. Det er registrert riss/sprekk i flis ved dør. Forholdet vurderes å skyldes en årsak som ikke lar seg kartlegge med visuell inspeksjon alene.
- Tettesjiktets tilslutning til sluk: Selv om våtrommet er oppgradert, er sluket ikke skiftet. Konsekvensen er at dette erfaringsmessig medfører risiko for utettheter i overgangen mellom sluk og vanntett sjikt. TG2 er valgt for å belyse risiko, selv om det ikke er registrert synlige skader ved befaring.
- Vannrør: Tilførselrør er vurdert til å ha en alder som tilsier at anbefalt brukstid er passert. På bakgrunn av alderen er det grunn til å varsle om risiko for skjulte avvik, svekket funksjon, usikker restlevetid eller lignende forhold som utvikles over tid.
- Avløp (inkl. sluk): Avløpsrør har en alder som tilsier at fremtidig funksjon er usikker. Konsekvensen er at bygningsdelen erfaringsmessig har risiko for nedsatt funksjon, funksjonssvikt eller andre aldersrelaterte problemer. Bygningsdelen er skjult, så den faktiske tilstanden er ukjent.
- Fagmessig utførelse: Det foreligger lite informasjon om arbeidet som er gjort i våtrommet. De deler av utførelsen som lar seg undersøke, bærer ikke preg av faglig god utførelse. Konsekvensen er at dette erfaringsmessig medfører risiko for andre skjulte feil og mangler, som ikke lar seg registrere ved visuell inspeksjon.
Kjøkken - 1.Etasje
- Vannrør: Vannrørene er ikke plugget mot varerør. Konsekvens er at eventuelt lekkasjevann fra rør-i-rør kan forårsake følgeskader.
- Ventilator: Avstanden mellom gassbluss og ventilator er målt til å være under 65 cm, noe som er under anbefalt minimumsavstand. Konsekvens er at forholdet vurderes som en potensiell brannrisiko.
- Innredning: Isbitmaskin er defekt. Skade på sokkellist. Fukt/svelleskader på enkelte fronter.
Kjøkken - u.etasje
- Overflate gulv: Synlige deler av gulvets overflatemateriale bærer preg av slitasje og enkelte skader. Skader i gulvet gjør blant annet at fuktighet som for eksempel fra rengjøring kan forårsake misfarging eller lignende konsekvenser.
Tekniske anlegg
- Fordelerskap og fordelerstammer: Fordelerskap har åpninger/utettheter til omsluttende veggkonstruksjon. Konsekvens kan være fuktskader hvis det skulle oppstå lekkasje fra vanninstallasjoner i fordelerskapet. Fordelerskap mangler kursoversikt og merking av rørføringer (forholdet er ikke vurdert som et vesentlig avvik
Andre rom
- Innerdører: Innerdør til bad har fukt/svelleskader. Forholdet vurderes i hovedsak til å være av estetisk betydning, uten nevneverdige konsekvenser utover dette.
- Annet: Skade på speil/skapdør garderobeskap på soverom 1.etasje.
Innvendige trapper
- Tilstand: Det er registrert knirk i deler av trappen. Knirk oppstår som regel som følge av bevegelser og friksjon mellom trappens konstruksjoner grunnet årsaker som ikke kan fastslås ved visuell inspeksjon alene. Forholdet vurderes i hovedsak til å være av auditiv (lydmessig) betydning, uten nevneverdige konsekvenser utover dette.
Etasjeskiller og gulv på grunn
- 2.Etasje: På soverom 1 er det på tilfeldige punkter målt lokale høydeforskjeller opptil mm. På soverom 2 er det på tilfeldige punkter målt lokale høydeforskjeller opptil 10 mm. Stikkprøvene som er utført har avdekket stedvise vesentlige skjevheter. Eksakt årsak er ikke kjent, men det anses som lite sannsynlig at forholdet skyldes strukturelle skader i etasjeskilleren. Konsekvens vurderes blant annet å være fare for knirk eller lignende problemer med gulvmaterialet, eller behov for kompenserende tiltak ved møblering av rommene.
Yttervegger inkl. fasader
- Ytterkledning (fasademateriale, vannbord, utvendig listverk, o.l.): Ytterkledningens materialer viser tydelige tegn til elde, med stedvise symptomer på begynnende råteskader utenfor soverom 2. Konsekvens er at materialet et utsatt for en pågående nedbrytning. Vurderingen er begrenset til det som er synlig fra bakkenivå, med den begrensing dette innebærer. Stikktaking er utført på typiske skadesteder som var tilgjengelig uten bruk av stige.
Vinduer og ytterdører
- Ytterdører og omramming: Entrédør er av eldre dato og det må forventes høyere varmetap fra denne døren sammenlignet med dører fra nyere dato. Entrédør er tung og åpne/ lukke. Justering anbefales.
Utvendig trapp
- Avskalling av maling/murpuss observeres stedvis i overflaten. Eksakt årsak er ukjent. Konsekvens er at forholdet kan medføre økt fuktpåkjenning i konstruksjoner. Det er registrert riss/sprekker i fliser. Konsekvens er at forholdet kan skyldes bakenforliggende forhold som ikke lar seg avdekke ved visuell inspeksjon.
Grunnmur, fundament
- Avskalling av maling/murpuss observeres stedvis på grunnmuren. Eksakt årsak er ukjent. Konsekvens er at forholdet kan medføre økt fuktpåkjenning på bakenforliggende konstruksjoner.
Drenering
- Helhetsvurdering: Det er valgt å vurdere dreneringen med en samlet helhetsvurdering. Følgende hovedmomenter er lagt til grunn for vurderingen: Drenering har en alder som tilsier at fremtidig funksjon er usikker. Konsekvens er at usikker fremtidig funksjon betyr at alle forhold som påvirker dreningen erfaringsmessig har risiko for nedsatt funksjon, funksjonssvikt eller andre aldersrelaterte problemer. Stedvis lite terrengfall vekk fra grunnmuren. Konsekvens er at forholdet kan øke fuktbelastningen på grunnmuren. Deler av grunnmuren mangler utvendig fuktsperre. Konsekvensen er at konstruksjoner uten utvendig fuktsperre som er i kontakt med bakken, har økt risiko for fuktvandring/oppfukting som igjen kan føre til fuktskader. Vann fra yttertaket er ikke ledet vekk fra bygningen/grunnmuren i tilstrekkelig grad. Konsekvens er at forholdet kan føre til økt fuktbelastning på grunnmuren. Dreneringens funksjon påvirker boligens bruksområder og bygningstekniske tilstand. Forhold som påvirker funksjonen er i hovedsak nedgravd og skjult, noe som medfører at tilstanden ikke kan fastslås ved visuell inspeksjon. Dette gjelder blant annet forhold som fuktbeskyttelse av konstruksjoner mot terreng, grunnforhold og tilstand på rør og lignende. Forholdene påvirker særlig konstruksjoner som er i direkte eller nær kontakt med bakken. Lokale og fremtidige klimaforhold er også en påvirkningsfaktor.
Stikkledninger og tanker
- Utvendige vannledninger: Utvendige vannledninger har en alder som tilsier at fremtidig funksjon er usikker. Konsekvensen er at bygningsdelen erfaringsmessig har risiko for nedsatt funksjon, funksjonssvikt eller andre aldersrelaterte problemer. Bygningsdelen er skjult, så den faktiske tilstanden er ukjent.
- Utvendige avløpsledninger: Utvendige avløpsrør har en alder som tilsier at fremtidig funksjon er usikker. Konsekvensen er at bygningsdelen erfaringsmessig har risiko for nedsatt funksjon, funksjonssvikt eller andre aldersrelaterte problemer. Bygningsdelen er skjult, så den faktiske tilstanden er ukjent.
Følgende bygningsdeler er ikke undersøkt (TGIU):
Vaskerom/ teknisk rom
- Kontroll i tilliggende konstruksjon ikke utført: Med bakgrunn i at våtrommets vegger er av mur/betong er det ikke praktisk mulig å gjennomføre fuktmåling/hulltaking i et område der det erfaringsmessig forekommer skader. Hulltaking og fuktmåling i lukkede konstruksjoner er derfor ikke utført. Tilstanden inne i konstruksjonen er ikke kjent. Det ble derimot gjennomført et overflatesøk med fuktindikator, uten at det ble påvist indikasjoner som tyder på fuktskader.
Helse, miljø og sikkerhet
Rekkverkshøyder, lysåpninger, håndløper og andre sikkerhetsmessige forhold er kontrollert opp mot dagens gjeldende byggtekniske forskrift, selv om denne ikke har tilbakevirkende kraft. Følgende er registrert:
- Innvendig trapp har ikke håndløper på begge sider.
- Veranda (utgang fra soverom) har rekkverkshøyde under 1,0 meter.
- Terrasse har rekkverkshøyde under 1,0 meter.
- Utvendig trapp til hybel mangler fullverdig rekkverk, noe som medfører fare for liv og helse.
- Forstøtningsmur mangler fullverdig rekkverk, noe som medfører fare for liv og helse.
Basert på ovennevnte forhold oppfyller ikke disse delene dagens krav til sikkerhet. Om de oppfylte kravene som var gjeldende på oppføringstidspunktet eller ikke, er ikke tatt stilling til.
Tilstandsrapporten er inntatt i salgsoppgaven. Rapporten inneholder informasjon om eventuelle avvik og konsekvensen av disse. Dersom det er registrert avvik med TG3, har den bygningssakkyndige i tillegg gitt et anslag på hva det vil koste å utbedre disse. Ettersom kjøper regnes å være kjent med forhold som tydelig fremgår av tilstandsrapporten, oppfordres du til å sette deg grundig inn i rapporten i sin helhet.
Moderniseringer og påkostninger
Selger beskriver i egenerklæringsskjema:
Alt av rør, bad, tak og dreneringsarbeid er etter det vi har fått opplyst utført før vår eiertid. Dokumentasjon fra tidligere eier foreligger i begrenset grad.
El-tilsyn ble ifølge tidligere eier gjennomført 25.04.2019 av Elsikkerhet Norge AS.
Tidligere eier opplyste også at det ble foretatt radonmåling i 2018 med verdi 85.
Tidligere eier opplyste videre at noen vinduer og hele taket ble byttet, utført av selgers bror som drev eget tømrerfirma.
Takstein på garasjen skal ha blitt byttet samtidig.
Kjellerinngangen skal ifølge tidligere eier være godkjent.
Drenering mot Konvallveien skal ifølge tidligere eier være kontrollert og grunnmurspapp og masser byttet. Årstall er ukjent.
I vår eiertid har boligen gjennomgått flere oppgraderinger, med unntak av to bad.
På kjøkkenet ble det i 2022 lagt nye gulvfliser, veggene ble malt, det ble montert gipsplater i taket og installert downlights.
Hele andre etasje ble oppgradert med nye gipsplater i tak og på vegger, nytt gulv, downlights og tilpassede garderobeskap i begge soverom.
Trappene opp til andre etasje og ned til underetasjen ble også oppgradert i 2022/2023.
I første etasje er stuen oppgradert med fiskebensparkett og varmefolie under gulvet (varmefolie lagt av tidligere eier), nye vinduer, downlights og fliser i gangen med varmekabler samt et plassbygd skap.
Soverommet i første etasje ble oppgradert ved å slå sammen to rom, og det ble bygget et tilpasset garderobeskap.
I underetasjen er hobbyrommet oppgradert og brukes i dag som soverom med større vinduer. Rommet er ikke godkjent for varig opphold, da vinduer og vinduskasser ikke tilfredsstiller kravene til rømningsvei. Deler av underetasjen er isolert fra innsiden.
Det er lagt varmefolie under gulvet på soverommet samt installert downlights og nytt gulv.
På badet i underetasjen er det montert gipsplater i tak med downlights og flisplater på veggene.
På vaskerommet i underetasjen er det installert toalett og servant.
Det er også bygget garderobeskap i vaskerom, gang og flere soverom i hoveddelen.
Ny varmepumpe og ny peis ble installert i 2022/2023. Peisen ble montert i september 2022 av Gnisten Peis & Murservice AS.
To elbilladere er montert i vår eiertid. Alt elektrisk arbeid i forbindelse med oppgraderinger er utført av faglærte, og dokumentasjon kan fremlegges.
Oljetanken er tømt og behandlet av Nortank uten graving. Dokumentasjon kan fremlegges.
Det ble oppdaget skjeggkre ved innflytting. Dette ble behandlet av profesjonelt skadedyrfirma gjennom forsikringen i 2022. Ved etterkontroll ble det etter det vi kjenner til ikke avdekket ytterligere forekomst.
Boligen ble malt utvendig i 2023.
Uteboden har sunket noe på den ene siden.
Kontrollen til dusjsonen på bad i første etasje er defekt og må repareres eller byttes.
Isbitmaskinen på kjøkkenet fungerer ikke.
Dokumentasjon som vi har tilgjengelig fra vår eiertid samt dokumentasjon mottatt fra tidligere eier kan fremlegges ved forespørsel.
Dette inkluderer blant annet tegninger og dokumenter knyttet til tidligere endringer i hybeldelen.
Opplysninger om forhold fra tiden før vår eiertid er basert på informasjon mottatt fra tidligere eier og dokumentasjon vi har fått tilgang til.
Opplysninger fra tidligere eier er videreformidlet etter beste kunnskap.
Standard
Velkommen til en stor og innholdsrik enebolig med god planløsning over 3 plan, og egen inngang til kjelleretasjen.
Boligen er betydelig pusset opp og modernisert de senere årene.
Selger har gjort omfattende oppgraderinger som bl.a. ny takstein 2021, byttet flere vinduer, nye overflater på gulv, vegger og himling med downlights i mesteparten av boligen.
Hele boligen ble malt utvendig i juli 2022 og arbeider på det elektriske anlegget er fra nyere tid.
Trappene mellom etasjene er pusset opp i 2022/2023.
Utearealene er opparbeidet med plen, beplanting, hekk og gjerde rundt eiendommen.
Terrasse og hage har gode solforhold, og hagen byr på gressplen for lek og moro.
Garasje og parkeringsmuligheter på gårdsplassen.
Det medfølger 1 stk. EL-bil lader montert i garasjen.
E n t r è
Boligen byr deg inn med en lys og innbydende entré med god plass til av- og påkledning.
Her er det lekre marmorfliser på gulv, en elegant smijernsdør mot stuen og downlights i himling.
Garderobeløsning med speildører og godt med plass til sko og yttertøy.
På ytterdøren er det montert kodelås som gir en praktisk og nøkkelfri hverdag.
Varmekabler i gulv.
K j ø k k e n
1.etg.:
Klassisk kjøkkeninnredning fra 2014 med profilerte fronter og benkeplate av laminat i sort/grå utførelse. Marmorflisene på gulvet skaper et eksklusivt uttrykk.
Et komplett kjøkken med integrerte hvitevarer som kjølehjørne, oppvaskmaskin, stekeovn, mikro, kaffemaskin og nedfelt induksjonstopp kombinert med gassfelt, samt kjøkkenventilator.
Spruteplate av glass bak platetopp sørger for enkel rengjøring.
Kjøkkenet har gode oppbevaringsmuligheter i over- og underskap, samt rikelig med benkeplass.
Det gjøres oppmerksom på isbitmaskin er defekt.
Lekkasjestopper er montert under oppvaskkum.
U.etg.:
Kjøkkeninnredning med profilerte fronter, to fronter med glassfelt og benkeplate av laminat i lys utførelse.
Kitchenboard og belysning mellom over- og underskap.
Opplegg for oppvaskmaskin og kjøkkenventilator med kullfilter.
Laminatfliser på gulv.
S t u e
1.etg.:
Suen fremstår romslig med plass til sofa, spisebord og tilhørende møblement.
Rommets utforming gjør det enkelt å inndele stuen i ulike «soner». Det ble lagt ny og lekker fiskebensparkett på gulv i 2023. Under parketten ligger det varmefolie som gir et lunt og varmt underlag.
Den nye peisovnen utgjør stuens naturlige blikkfang og sørger for energibesparende oppvarming i vinterhalvåret.
I stuen ble det montert varmepumpe i 2022, som også har kjølende effekt. Denne sørger for en lun og jevn innetemperatur i boligen året rundt.
Store vindusflater sørger for rikelig med innslipp av naturlig lys og skaper således en god romfølelse.
Fra stuen er det utgang til terrasse på ca 20 kvm, og med videre adkomst til hagen.
Den andre stuen i boligens loftsetasje gir barnefamilien ekstra plass og kan brukes til lek og tv-stue.
U.etg.:
I underetasjen er hobbyrommet innredet til en koselig stue. Det gjøres oppmerksom på at dette rommet ikke er godkjent til varig opphold, men tilfører likevel verdifull ekstra plass for familien.
Her er det plassmurt peis som sørger for god oppvarming i vinterhalvåret.
Deler av underetasjen er isolert fra innsiden, og selger har lagt varmefolie under gulvet på hobbyrommet, samt installert downlights og lagt nytt gulv.
S o v e r o m
Boligen har totalt 6 rom som i dag benyttes som soverom.
Tre av disse er etablert i hobbyrom/bod i boligens underetasje. Det ene rommet i loftsetasjen er opprinnelig byggemeldt som hobbyrom. Disse fire rommene er ikke omsøkt, og er dermed ikke godkjent til varig opphold.
Alle rommene er av god størrelse.
Hovedsoverommet i 1.etg. er pusset opp i senere tid og har trendy spilevegg på vegg og i tak, samt tilpasset garderobeskap med speildører.
Fra hovedsoverommet er det utgang til sørvendt balkong.
Samtlige av de godkjente soverommene har et behagelig lysinnslipp, samt downlights i himling.
To soverom har nye og tilpassede garderobeskap.
B a d
Boligen har 3 bad med flislagte overflater på gulv og vegger.
Bad 1.etg.:
Badet i boligens 1. etasje er pusset opp i 2018 og fremstår delikat og tidsriktig med flislagte vegg- og gulvflater.
Badet er utstyrt med dobbeltservant med tilhørende skuffinnredning, og speilskap med integrert belysning.
Vegghengt toalett med innebygget sisterne, og nisjehyller for oppbevaring over toalett.
Badet har hjørnebadekar og dusjnisje. Dusjnisjen har armatur med både hånd- og regndusj, i tillegg til behagelig og dekorativ rullestein på gulv.
Varmekabler i gulv og downlights i tak.
Bad 2.etg.:
Flislagt bad som antas å være fra 2006. Innredning med heldekkende servant på underskap, og dusjhjørne med glassdører.
Vegghengt toalett med innebygget sisterne
Varmekabler i gulv.
Bad u.etg.:
Flislagt bad som antas å være fra 2007.
Innredning består av heldekkende servant på underskap, og speilskap med belysning over.
Dusjhjørne med skyvedører, og vegghengt toalett med innebygget sisterne.
Varmekabler i gulv og stedvis downlights i tak.
Opplegg for vaskemaskin.
V a s k e r om
På vaskerommet i underetasjen er det satt inn nytt toalett, servantskap og garderobeskap.
Vegghengt toalett med innebygget sisterne.
Fliser på gulv på baderomsplater på vegg.
Opplegg for vaskemaskin.
U.etg.:
I underetasjen har hobbyrommet blitt innredet til en stue med egen inngang. Det er etablert kjøkken og 2 rom er innredet som soverom. Det er viktig å merke seg at rommene ikke er godkjent for varig
opphold og ikke omsøkt av selger.
Det er kun de integrerte hvitevarene på kjøkken som følger med. Kjøper må forvente slitasje som følge alder og normal bruk.
Løsøre og tilbehør
Vi viser til liste fra Norges Eiendomsmeglerforbund som gjelder fra 01.01.2020 angående løsøre og tilbehør.
Oppvarming
Boligen blir varmet opp med elektrisitet og vedfyring.
Varmepumpe og peisovn i stue.
Murt peis i u.etg.
Varmekabler i gulv på bad.
Varmefolie i gulv på stue.
Dersom beboelsesrom ikke har vegg- eller fastmonterte varmekilder ved visning følger dette heller ikke med.
Ferdigattest/brukstillatelse
Det foreligger ikke ferdigattest på eiendommen, men midlertidig brukstillatelse ble gitt 27.11.1981.
Tillatelsen er gitt på følgende vilkår: Det gjenstår en del mindre vesentlige mangler ved bygget i tilknytning til avsluttende arbeid.
Man fant det imidlertid ubetenkelig å ta bygget i bruk til sin funksjon.
Det foreligger ferdigattest for ny kjellernedgang, vinduer og støttemur datert 02.09.2008.
Det gjøres oppmerksom på at kjeller er innredet etter at midlertidig brukstillatelse er gitt.
Kjelleretasjen er opprinnelig byggemeldt som boder jf. byggetegninger fra 08.02.1980 og er ikke godkjent til varig opphold.
Innredning av rommene til bruk for varig opphold er ikke bruksendret/omsøkt og er heller ikke godkjent av kommunen. Kjøper overtar alt ansvar og risiko for dette videre.
Det ene soverommet i 2.etg. er opprinnelig byggemeldt som hobbyrom og er ikke godkjent til varig opphold.
I hovedetasjen er opprinnelig bad og soverom ombyttet. og tidligere toalettrom ved entrè er ombygget til garderobe.
Innenfor kjøkken var det tidligere vaskerom som nå er innlemmet i kjøkkenet og det er etablert kjølerom/matbod i hjørnet.
Kjøper overtar alt ansvar, kostnad og risiko for dette videre.
Det gjøres oppmerksom på at det ikke lenger utstedes ferdigattest på tiltak det er søkt om før 1998 jf. plan- og bygningsloven § 21-10. Kommunen vil ikke kreve ferdigattest for disse tiltakene og vil avvise eventuelle søknader. Bestemmelsen innebærer ikke at tiltak med manglende søknad blir lovlige, men at man ikke trenger å avslutte gamle byggesaker. Normalt sett kreves ferdigattest for alle søknadspliktige tiltak som gjøres etter plan- og bygningsloven.
Tinglyste heftelser og rettigheter
Eiendommen overdras fri for pengeheftelser.
Det er tinglyst følgende servitutter på eiendommen.
Dagboknr 5865, tinglyst 13.07.1981, type heftelse: Bestemmelse om bebyggelse, anlegg og vedlikehold av ledninger for nærliggende eiendommer og kommunen.
Tomten kan kun benyttes til boligbygg, og det tillates ikke drevet næringsvirksomhet uten bygningsrådets skriftlige tillatelse.
Servitutten vil følge eiendommen. Kjøpers bank vil få pant etter ovennevnte heftelser og servitutt.
Eventuell adgang til utleie
Eiendommen har ikke separat utleieenhet. Det vil normalt være anledning til utleie av hele eiendommen eller enkeltrom, såfremt utleiearealet er bygningsmessig godkjent for varig opphold og har forsvarlige radonnivåer.
Beliggenhet og tomteforhold
Beliggenhet og tomteforhold
Beliggenhet
Eiendommen ligger sentralt til like ved Hauglia Skole i Flateby. Fra boligen er det kort gangavstand til butikk, apotek og bussholdeplass.
Boligen ligger i et populært og meget barnevennlig boligområde, og i nærmiljøet finnes det lekeplasser, kunstgressbaner, flerbrukshall med kunstgress og håndballdekke.
Shopping/servicetilbud:
Dagligvarehandelen kan gjøres på Coop Extra kun 4 minutters gange unna.
Fritid:
Enebakk IF har et bredt tilbud av aktiviteter for både store og små.
Flerbrukshallen som ligger 5 min. unna med bil blir hyppig brukt rundt alle årstider. På utsiden av hallen befinner det seg en en liten stadion med kunstgress.
Om vinteren kan man benytte seg av alpinanlegget og lysløypen som drar seg innover i Østmarka.
Offentlig kommunikasjon:
Området har god offentlig kommunikasjon via buss, hvorav busstoppet Bjerke ligger ca 300 m unna.
I rush-tiden går bussene hvert 10. minutt og deretter hvert 30. minutt til Lillestrøm. Det finnes egne skolebusser til og fra barneskolene og ungdomsskolen.
Avstand med bil:
Lillestrøm: ca. 20 min
Oslo: ca. 40 min
Gardermoen: ca. 50 min.
Barnehager, skoler og fritid
Hauglia skole (1-4 kl.)
Stranden skole (5-7 kl.)
Kirkebygden barne- og ungdomsskole (1-11)
Rælingen videregående skole
Strømmen videregående skole
Hauglia barnehage (1-5 år)
Bergskaug Fus barnehage (1-5 år)
Flateby barnehage (1-5 år)
Informasjon om tilhørende skolekretser er hentet fra Prognosesenteret som dataleverandør, og tilhørigheten kan årlig endres av kommunen. Dersom skole- og barnehagetilbud er av betydning for kjøpet, ber vi om at det rettes en særskilt henvendelse til kommunen for oppdatert informasjon.
Beskrivelse av tomt
Eiertomt på 629 kvm. Boligen har eiet tomt opparbeidet med asfaltert innkjørsel, plenarealer, trær og diverse beplantning.
Parkering
Parkering i garasje med el-bil lader og på gårdsplass.
Det medfølger 1 stk EL-billader.
Vei, vann og avløp
Eiendommen har adkomst via kommunal vei.
Eiendommen er tilknyttet privat vannverk. Eier er selv ansvarlig for private stikkledninger til boligen.
Regulerings-og arealplaner
Eiendommen er tidligere regulert til frittliggende småhus i henhold til Flateby III Bebyggelsesplan datert 14.02.1980 med tilhørende reguleringsbestemmelser.
Deler av tomten (98 kvm) er regulert til kjørevei.
Eiendommen er i kommuneplanens arealdel 2015-2027 avsatt til nåværende boligbebyggelse.
Utsnitt av plan med tilhørende bestemmelser kan fås ved henvendelse til megler.
Det gjøres oppmerksom på at en liten del av garasjetaket går over tomtegrense mot nabo.
Økonomi
Økonomi
Kommunale utgifter
Kommunale avgifter er kr 17 791,- for 2024.
I dette inngår gebyr for avløp, renovasjon og feiing/tilsyn.
Eiendommen er tilknyttet Flateby vannverk og har en kostnad på kr 10 719,- for 2024 (1 årsgebyr + 2 forbruksgebyr).
Det er en fast årsavgift på kr 3 652,- pr år.
I tillegg kommer det kr 14,38 pr m3 i forbruksgebyr for forbruk under 200 m3 pr år og kr. 20,47 pr m3 for det som overstiger 200m3 pr år.
Denne eiendommen har 1 stk. vannmålere som må leses av ved salg.
Alle priser inkl. mva.
Det blir sendt ut faktura 2 ganger pr år.(mars og august)
Nåværende eier har et strømforbruk som tilsvarer ca. 40 000 kwh. pr. år.
Boligen har en årlig forsikringspremie på ca kr 20 000,-.
Boligen er tilknyttet Altibox som leverandør av fiber og har avgift på ca kr 2 500,- pr. mnd. Tv-tuner/dekoder medfølger ikke.
Boligen er tilknyttet alarmselskap. Alarmabonnement medfølger ikke.
Utgiftene er basert på nåværende eiers forbruk og avtaler.
Formuesverdi
Ved hjelp av skatteetatens boligkalkulator er boligens formuesverdi beregnet til kr 1 744 445,- for fjoråret når boligen benyttes som primærbolig.
Formuesverdien er en gitt prosent av den beregnede markedsverdien. Beregnet markedsverdi er basert på Statistisk sentralbyrå (SSB) sine opplysninger om omsatte boliger. I beregningen tas det hensyn til boligens beliggenhet, areal, byggeår og boligtype.
Det er eier av boligen som fastsetter formuesverdien, jf. skatteforvaltningsloven § 9-1 første ledd, men skattemyndighetene kan kontrollere at verdien er satt riktig.
Fra 2026 har Stortinget vedtatt en oppdatert modell for beregning av formuesverdi for primærbolig, så avvik kan forekomme.
For mer informasjon se skatteetaten.no
Omkostninger
6 990 000,00 Prisantydning
Omkostninger
174 750,00 Dokumentavgift til staten (2,5% av kjøpesum)
19 900,00 Gjensidige Boligkjøperpakke (valgfri)
545,00 Tinglysing panterettsdokument
545,00 Tinglysing skjøte
--------------------------------------------------------
195 740,00 Omkostninger totalt
--------------------------------------------------------
7 185 740,00 Totalpris inkl. omkostninger
--------------------------------------------------------
Totalpris inkl. omkostninger forutsetter kjøp til prisantydning.
Det tas forbehold om endringer i avgifter og gebyrer.
Tilbud om lånefinansiering
Megler formidler gjerne kontakt med rådgiver hos Trøgstad Sparebank. De har konkurransedyktige betingelser samt rask og løsningsorientert behandling av din lånesøknad.
Betalingsbetingelser
Kjøpesum inkludert omkostninger, samt pantedokument tilknyttet eventuelt lån, skal være disponibelt hos megler 2 virkedager før overtagelsen.
Annen viktig informasjon
Annen viktig informasjon
Eier
Ayaz Bashir og Sobia Hayat
Overtakelse
Etter nærmere avtale.
Boligselgerforsikring
Selger har i forbindelse med salget tegnet boligselgerforsikring levert av Gjensidige.
Boligselgerforsikringen dekker selgers ansvar etter avhendingsloven begrenset oppad til kr 14 millioner. Dersom kjøper oppdager forhold ved eiendommen som hen mener utgjør en mangel ved eiendommen, vil Gjensidige behandle reklamasjonen på vegne av selger. Forsikringsvilkår kan fås ved henvendelse til megler.
Vedlagt salgsoppgaven følger selgers egenerklæringsskjema og tilstandsrapport. Interessenter må sette seg inn i dokumentene før bud inngis.
Boligkjøperforsikring
Innen kontraktsmøtet må kjøper ta stilling til om det ønskes å bestille Boligkjøperpakken gjennom Gjensidige. I denne gunstige pakken er boligen ferdig forsikret og inkluderer rettshjelpsforsikring, også kalt Boligkjøperforsikring. Rettshjelpsforsikring gir trygghet og tilgang på profesjonell juridisk hjelp dersom det oppdages uventede feil eller mangler det første året etter overtagelse. Forsikringsselskapet behandler i så fall ethvert mangelskrav kjøper måtte ha overfor selger.
Boligkjøperpakken inkluderer bygningsforsikring for hus og hytte, innboforsikring, flytteforsikring og dobbel rentedekning - i situasjoner hvor kjøper ikke får solgt nåværende primærbolig.
Kjøper mottar ingen særskilt faktura for Boligkjøperpakken da kostnaden det første året legges til kjøpesummen for boligen. Det gjøres oppmerksom på Krogsveen mottar et honorar for denne formidlingen.
Produktark for Boligkjøperpakken ligger vedlagt i salgsoppgaven.
Dersom ikke boligkjøperpakke ønskes kan kun rettshjelpsforsikring, også kalt boligkjøperforsikring, tegnes særskilt via megler. Rettshjelpsforsikringen varer i 5 år fra overtagelse og leveres gjennom Gjensidige. Ta kontakt med megler for ytterligere informasjon.
Selskap og privatpersoner som driver med kjøp/salg/utvikling som ledd i egen næringsvirksomhet kan ikke tegne boligkjøperpakke eller rettshjelpsforsikring.
Budgivning
Forbrukerinformasjon om budgivning er vedlagt denne salgsoppgaven og er også på vår hjemmeside Krogsveen.no. Alle bud og budforhøyelser må inngis skriftlig. I tillegg må legitimasjon være fremlagt sammen med signatur fra budgiver.
Vi oppfordrer til å gi bud elektronisk via GI BUD-knappen på eiendommens hjemmeside på Krogsveen.no. Da vil samtlige vilkår bli oppfylt.
Eventuelle forhøyelser eller endringer av budet kan bekreftes pr SMS eller på e-post. Vi oppfordrer alltid til å kontakte megler pr. telefon i tillegg da forsinkelser i SMS og e-post kan forekomme.
For at budene skal kunne bli behandlet og videreformidlet skriftlig til alle involverte parter, må alle bud ha en tilstrekkelig lang akseptfrist, jf. eiendomsmeglingsforskriften § 6-3.
Selger må også skriftlig akseptere budet før aksept kan formidles til budgiver. Akseptfrist bør derfor være på minimum 30 minutter, og budforhøyelser må derfor skje i god tid før fristens utløp.
Bud i forbrukerforhold kan uansett ikke settes med kortere frist enn kl. 12.00 første virkedag etter siste annonserte visning. I tillegg kan ikke budet ha forbehold om at det skal holdes hemmelig ovenfor øvrige interessenter. Megler har iht lov om eiendomsmegling ikke anledning til å videreformidle disse budene, og de vil dermed heller ikke bli journalført.
Etter at eiendommen er solgt vil kjøper og selger få tilsendt budjournal. Øvrige budgivere kan få utlevert kopi av budjournalen i anonymisert form.
Hvitvaskingsreglene
I henhold til lov om hvitvasking og terrorfinansiering har megler plikt til å gjennomføre kontrolltiltak overfor kunder, herunder fullmektiger. Dette innebærer bl.a. å bekrefte kunders og reelle rettighetshaveres identitet på bakgrunn av fremvist gyldig legitimasjon eller på annen godkjent måte, samt å innhente opplysninger om kundeforholdets formål og tilsiktede art.
Dersom slike kundetiltak ikke kan gjennomføres, kan megler ikke etablere kundeforholdet eller utføre transaksjonen.
Hvis kjøper ikke bidrar til gjennomføring av kundekontrollen og dette fører til at transaksjonen blir forsinket eller ikke kan gjennomføres, vil dette ansees som mislighold av avtalen og gi selger rettigheter etter avhendingslova kapittel 5. I tilfeller der selger ikke bidrar til gjennomføring av løpende kundekontroll underveis i oppdraget, er det selger som misligholder sine forpliktelser etter avtalen og gi kjøper rettigheter etter avhendingslovens kapittel 4. Partene er selv ansvarlige for eventuelle kostnader og ansvar dette kan medføre. Eiendomsmegleren eller eiendomsmeglingsforetaket kan ikke holdes ansvarlig for de konsekvenser dette vil kunne få for partene eller andre som har interesser i eiendomshandelen.
Kjøper oppfordres til å innbetale kjøpesummen som ikke kommer fra låneinstitusjon i én samlet innbetaling fra egen konto i norsk bank. Megler har plikt til å melde fra til Økokrim om eiendomshandler som fremstår som mistenkelige. Melding sendes Økokrim uten at partene varsles.
Personopplysningsloven
I henhold til personopplysningsloven gjør vi oppmerksom på at interessenter kan bli registrert for videre oppfølging.
Lovanvendelse
Generelle bestemmelser
Salgsoppgaven er basert på de opplysningene selger har gitt til megler, den bygningssakyndiges tilstandsrapport, samt opplysninger innhentet fra kommunen, Kartverket og andre tilgjengelige kilder. Det er viktig at kjøper setter seg grundig inn i alle salgsdokumentene, herunder salgsoppgave, tilstandsrapport og selgers egenerklæring. Kjøper anses kjent med forhold som er tydelig beskrevet i salgsdokumentene, og slike forhold kan ikke påberopes som mangler. Dette gjelder uavhengig av om kjøper har lest dokumentene. Alle interessenter oppfordres til å undersøke eiendommen nøye, gjerne sammen med fagkyndig før bud inngis. Kjøper som velger å kjøpe usett kan ikke gjøre gjeldende som mangel noe han burde blitt kjent med ved undersøkelsen.
Dersom det er behov for avklaringer, anbefaler vi at interessenter rådfører seg med eiendomsmegler eller egne rådgivere før det legges inn bud.
En bolig som har blitt brukt i en viss tid, har vanligvis blitt utsatt for slitasje og skader kan ha oppstått. Slik bruksslitasje må kjøper regne med, og det kan avdekkes enkelte forhold etter overtakelse som nødvendiggjør utbedringer. Normal slitasje og skader som nødvendiggjør utbedring, er innenfor hva kjøper må forvente og vil ikke utgjøre en mangel.
Kjøper og selgers rettigheter og plikter reguleres av avtalen mellom partene, samt informasjonen som har vært tilgjengelig for kjøperen i forbindelse med handelen. Avtalen utfylles av avhendingsloven, og det gjelder ulike avtalevilkår avhengig av om kjøper er forbrukerkjøper eller ikke. Dette er nærmere beskrevet nedenfor.
På grunn av ulike avtalevilkår kan selger vurdere bud fra en som ikke er forbruker, ulikt fra en forbrukers bud. Dersom kjøper ikke er forbruker, er selger sitt mulige mangelsansvar begrenset fordi eiendommen selges "som den er". Selger kan ikke ta «som den er»- forbehold overfor en forbrukerkjøper. Selv et lavere bud fra en som ikke er forbruker kan foretrekkes fordi begrensningen i mulig mangelsansvar kan ha egenverdi for selger. Selger står fritt til å forkaste eller akseptere ethvert bud, og er for eksempel ikke forpliktet til å akseptere høyeste bud.
Budgiver skal i budskjema avgi egenerklæring om budgiver er forbruker eller næringsdrivende/ person som hovedsakelig handler som ledd i næringsvirksomhet. Budgivere får informasjon dersom andre bud er inngitt av en som ikke er forbruker.
Forbrukerkjøp - definisjon
Med forbrukerkjøp menes kjøp av eiendom når kjøperen er en fysisk person som ikke hovedsakelig handler som ledd i næringsvirksomhet.
Forbruker – avtalevilkår
Eiendommen har en mangel dersom den ikke er i samsvar med kravene som følger av avtalen, eller det foreligger brudd på bestemmelsene i avhendingsloven §§ 3-2 til 3-8. Hvis eiendommen ikke er i samsvar med det kjøperen må kunne forvente ut ifra alder, type og synlig tilstand, kan det være grunnlag for mangelskrav. Det samme gjelder hvis det er holdt tilbake eller gitt uriktige opplysninger om eiendommen. Dette gjelder likevel bare dersom man kan gå ut ifra at det virket inn på avtalen at opplysningen ikke ble gitt eller at mangelskravet ikke blir rettet i tide på en tydelig måte.
Boligen kan ha en mangel etter avhendingsloven § 3-3 andre ledd, dersom det er avvik mellom opplyst og faktisk innvendig areal, forutsatt at avviket er på 2% eller mer og minimum 1 kvm.
Ved beregning av et eventuelt prisavslag eller erstatning må kjøper selv dekke tap/kostnader opptil et beløp på kr 10 000 (egenandel).
Ikke-forbruker (næringsdrivende) – definisjon
Hvis kjøper er en juridisk person, eller en fysisk person som hovedsakelig handler som ledd i næringsvirksomhet, vil kjøpet ikke anses som et forbrukerkjøp.
Ikke-forbruker – avtalevilkår
Eiendommen har en mangel dersom den ikke er i samsvar med kravene som følger av avtalen.
Eiendommen selges «som den er», og selgers ansvar utover det konkret avtalte er da begrenset etter avhendingsloven § 3-9, første ledd andre setning.
Avhendingsloven § 3-3 andre ledd fravikes, og hvorvidt boligens arealsvikt utgjør en mangel vurderes etter avhendingsloven § 3-8.
Informasjon om kjøpers undersøkelsesplikt, herunder oppfordringen om å undersøke eiendommen nøye, gjelder også for kjøpere som ikke anses som forbrukere.
Det forutsettes at hjemmel overføres til kjøper. Hvis kjøper ikke ønsker hjemmelsoverføring av eiendommen, må det tas forbehold om dette i budet.
Meglers vederlag
Meglers vederlag betales av selger og er avtalt til:
Vederlag: 1,00 % av salgssummen
Vederlag:
Foto kr 4 000,00
Kontroll av hjemmel og heftelser kr 4 500,00
Markedsføringspakke kr 29 900,00
Oppgjør kr 8 900,00
Tilrettelegging kr 17 000,00
Visninger pr stk / Overtagelse kr 3 500,00
Utlegg:
Innhenting av offentlig opplysninger kr 4 800,00
Tinglysing sikring kr 500,00
Andre utgifter:
Boligens visittkort kr 600,00
Takst/Tilstandsrapport kr 16 900,00
Valgfri Boligselgerforsikring Buysure 4,13 promille av salgssum
Vi er opptatt av verdiskapning, og har knyttet til oss samarbeidspartnere som skal sikre våre kunder de beste produkter og tjenester;
• I forbindelse med forberedelse av salget, innhenter vi informasjon om eiendommen hovedsakelig fra vår samarbeidspartner Ambita.
• Gjensidige leverer boligselgerforsikring og tilbyr bygningsforsikring
• Boligkjøperforsikring leveres av Hiscox og med Sedgwick som skadebehandler, og er formidlet gjennom Gjensidige.
• BN bank tilbyr finansieringsløsninger
• Vår avdeling Krogsveen Pluss tilbyr flyttetjenester som utvask, visningsvask, lager, tømming og transport av flyttelass, i tillegg til å formidle kontakt med Flip for overflateoppussing.
• I forbindelse med overtagelse av eiendommen tilbyr Overo avtale om strøm, alarm og bredbånd.
• Krogsveen er, sammen med øvrige bransjeaktører, medeier i den digitale annonseringsplattformen Hjem som eies av Bomega AS.
Opplysninger om oppdraget
Oppdragsnummer 60-0381/24
Eiendomsmegler Krogsveen AS, avd. Lillestrøm
Adolph Tidemands gate 38, 2000, LILLESTRØM
950 007 613
Oppdragets KR-kode KR60.24381
Dato
Sist oppdatert: 17. april 2026 kl. 13:16
Dokumenter
Dokumenter
PDF – 657 KB
PDF – 1 MB
PDF – 1 MB
PDF – 433 KB
PDF – 1 MB
PDF – 63 KB
PDF – 1 MB
PDF – 971 KB
PDF – 6 MB
PDF – 312 KB
PDF – 29 KB
PDF – 127 KB
PDF – 392 KB
Område
Legg til steder som er viktige for deg
Visning
Det er ingen planlagte visninger. Meld deg på for å avtale en tid som passer.
Lurer du på noe?
Unngå doble boligrenter
Vi tilbyr gunstig forsikring.
Vurderer du utleie?
Få et tilbud fra Utleie KrogsveenHva koster lånet?
Sjekk estimert lånekostnadVil du varsles om lignende boliger?
Ved å lagre ditt boligsøk hos oss får du beskjed når vi har en bolig som ligner denne, før den legges ut på markedet!




