Kristian brenners vei 11
4 450 000 kr
107 m²
3 soverom
Solgt

Presenteres av
Arild KnudsenÅssiden
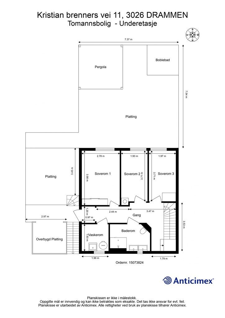
Delikat og påkostet halvpart av vertikaldelt tomannsbolig. Oppgradert i 2016-2025. Solrikt m/utsikt. Eksklusiv platting.
Prisantydning
4 450 000 krOmkostninger
132 240 krTotalpris
4 582 240 kr
Pris
Bruksareal
107 m²BRA-I (internt bruksareal)
107 m²TBA (terrasse-balkongareal)
95 m²
Areal
Etasje
2Byggeår
1962Soverom
3 soveromBad
2 badType
Halvpart vertikaldelt boligEierform
EierseksjonFasiliteter
Balkong/TerrasseEnergimerke
Gul G
Nøkkelinfo
Unngå doble boligrenter
Vi tilbyr gunstig forsikring.
Vurderer du utleie?
Få et tilbud fra Utleie KrogsveenHva koster lånet?
Sjekk estimert lånekostnadBeskrivelse
Kort om eiendommen
Delikat og påkostet halvpart av vertikaldelt tomannsbolig med 2 etasjer.
Oppgradert store deler av boligen/eiendommen i 2016-2025
Ny Pergo 1-stavs laminatgulv i hele 1. etasje
Rentbrennende peisovn og varmepumpe fra 2018 i stue
Stilrent HTH-kjøkken fra 2017 med nyere hvitevarer
2 pene bad fra 2016/2017 med dusj og gulvvarme
Eksklusiv og romslig syd-/østvendt platting fra 2020
Plattingen har pergola, massasjebad, utedusj og utekjøkken
Parkering på asfaltert område med el-billader fra 2022
Umiddelbar nærhet til marka og tursti (til bl.a. Landfalltjern)
Ca. 5 min gange til populær lekeplass
Gangavstand til buss med gode forbindelser til bl.a. Brakerøya (nye Drammen sykehus)
Nærhet til barnehager, skoler og alpinanlegg/aktivitetspark
Område
Legg til steder som er viktige for deg
På flyttefot? Tenk kjøp og salg samtidig.
Få din egen rådgiver gjennom hele kjøps- og salgsprosessen. Det starter med en verdivurdering.
Unngå doble boligrenter
Vi tilbyr gunstig forsikring.
Vurderer du utleie?
Få et tilbud fra Utleie KrogsveenHva koster lånet?
Sjekk estimert lånekostnadVil du varsles om lignende boliger?
Ved å lagre ditt boligsøk hos oss får du beskjed når vi har en bolig som ligner denne, før den legges ut på markedet!
På flyttefot? Slik gjør vi det enklere for deg
Skreddersydd flyttepakke
Vi fikser håndverkere, vask, pakking, lagring og transport, og legger ut for utgiftene underveis.
Hjelp med både kjøp og salg
Hos oss har du din egen rådgiver gjennom hele kjøps- og salgsprosessen.
Hjelp til finansiering
Vårt samarbeid med BN Bank sikrer deg rask og løsningsorientert hjelp, til konkurransedyktige betingelser.

