Torsrudveien 26
5 790 000 kr
195 m²
5 soverom
Solgt

Spikkestad
Lys, pen og smakfull enebolig med dbl.garasje - 2 kjøkken, 5 sov - Solrikt og barnevennlig
Prisantydning
5 790 000 krOmkostninger
165 740 krTotalpris
5 955 740 kr
Pris
Bruksareal
229 m²BRA-I (internt bruksareal)
195 m²BRA-E (eksternt bruksareal)
34 m²TBA (terrasse-balkongareal)
35 m²
Areal
Byggeår
1983Soverom
5 soveromBad
2 badTomteareal
829 m² (eiet)Type
Enebolig - FrittliggendeEierform
EietFasiliteter
Garasje/P-plass og Balkong/TerrasseÅrlig velavgift
400 krEnergimerke
D
Nøkkelinfo
Unngå doble boligrenter
Vi tilbyr gunstig forsikring.
Vurderer du utleie?
Få et tilbud fra Utleie KrogsveenHva koster lånet?
Sjekk estimert lånekostnadBeskrivelse
Kort om eiendommen
Velkommen til Torsrudveien 26!
Pen og velholdt enebolig med meget god beliggenhet på Spikkestad. Boligen er innholdsrik og har 5 gode soverom, bad i hver etasje, samt en romslig og åpen stue- og kjøkkenløsning. Beliggende i et veletablert og barnevennlig nabolag. Fra eiendommen er det kort gangavstand til alt fra idrettsanlegg, skoler/barnehage og matbutikk, til tog/buss og marka.
- Pent oppusset 1.etg
- Pent velutstyrt kjøkken med integrerte hvitevarer
- Del av u.etg er utleid - Stuedel er ikke godkjent til varig opphold
- Dbl garasje - El-bil lader på husvegg
- Solrikt og barnevennlig
- Flere nyere vinduer
Inne:
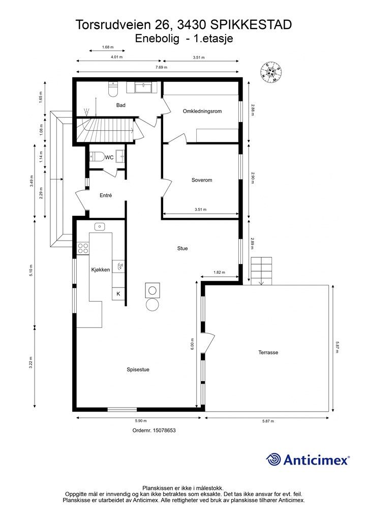
1.etg: Entré, wc, gang, bad, sov (brukes som garderobe), soverom, stue, spisestue og kjøkken
U.etg: Gang, vaskerom og 2 sov.
Hybel: stue/kjøkken, soverom og bad.
Område
Legg til steder som er viktige for deg
På flyttefot? Tenk kjøp og salg samtidig.
Få din egen rådgiver gjennom hele kjøps- og salgsprosessen. Det starter med en verdivurdering.
Unngå doble boligrenter
Vi tilbyr gunstig forsikring.
Vurderer du utleie?
Få et tilbud fra Utleie KrogsveenHva koster lånet?
Sjekk estimert lånekostnadVil du varsles om lignende boliger?
Ved å lagre ditt boligsøk hos oss får du beskjed når vi har en bolig som ligner denne, før den legges ut på markedet!







































