Vårliveien 25A
2 390 000 kr
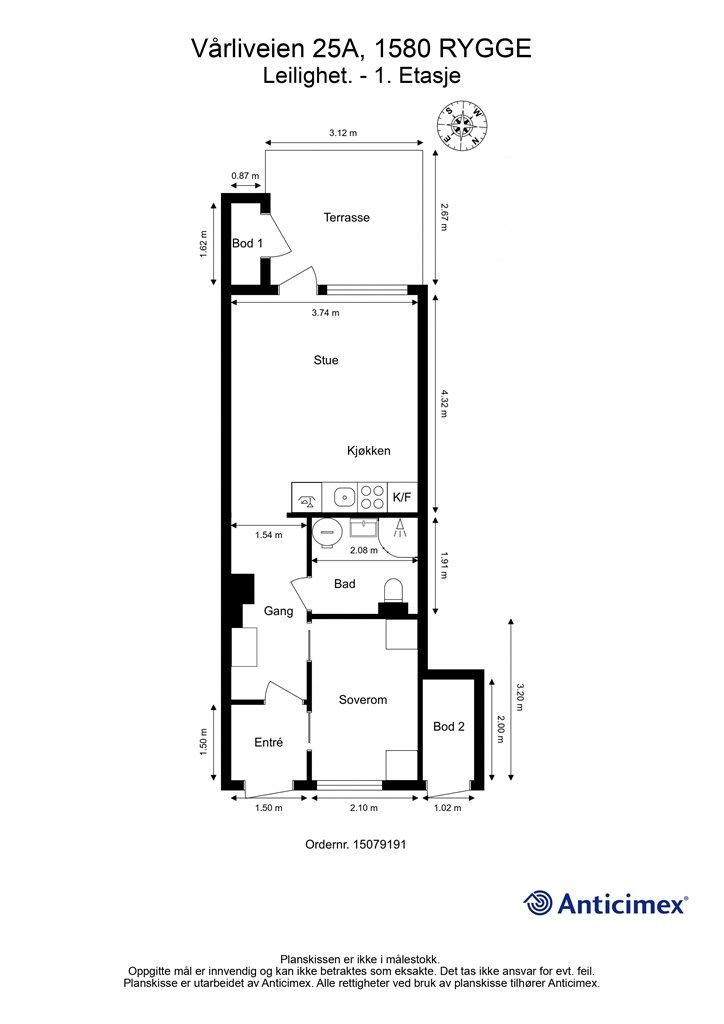
36 m²
1 soverom
Komplett salgsoppgave

Vårlitunet, Halmstad
Godt førstegangskjøp; velholdt 2-roms endeleilighet med enkel adkomst. Hvitevarer følger. Fast p-plass. Få min. til tog.
Prisantydning
2 390 000 krOmkostninger
70 790 krTotalpris
2 460 790 kr
Pris
Bruksareal
38 m²BRA-I (internt bruksareal)
36 m²BRA-E (eksternt bruksareal)
2 m²TBA (terrasse-balkongareal)
8 m²
Areal
Etasje
1Byggeår
2017Soverom
1 soveromBad
1 badType
EierleilighetEierform
EierseksjonFellesutgifter
1 991 krEnergimerke
Rød C
Nøkkelinfo
Unngå doble boligrenter
Vi tilbyr gunstig forsikring.
Vurderer du utleie?
Få et tilbud fra Utleie KrogsveenHva koster lånet?
Sjekk estimert lånekostnadBeskrivelse
Kort om eiendommen
- Ypperlig som førstegangskjøp og etableringsbolig
- Attraktiv plassering internt i sameiet - uten nærstående bebyggelse foran
- Terrasse med sol fra ettermiddag til kveld sommerstid
- Velholdt standard fra byggeåret
- Hvitevarer medfølger på kjøkken og bad
- Meget enkel adkomst - helt uten trapper
- Utvendig bod ved terrassen og på inngangssiden
- Fast biloppstillingsplass på sameiets område
- Nærhet til alle Halmstads forretninger og tilbud
- Bussholdeplasser i Ryggeveien, like om hjørnet
- Kun 40 min. med tog til Oslo S - kort gangavstand til togstasjonen
Innhold og byggemåte
Innhold og byggemåte
Eiendommen
Vårliveien 25A, 1580 RYGGE
Kommunenummer 3103, gårdsnummer 104, bruksnummer 247, seksjonsnummer 27, ideell andel 1/1
Innhold
Totalt bruksareal BRA: 38 kvm.
BRA-i:
1. etasje: 36 kvm: Entré, gang, bad, stue, kjøkken og soverom.
BRA-e:
1. etasje: 2 kvm: Bod med adkomst fra terrasse.
Åpent areal:
1. etasje 8 kvm: Terrasse.
Bod ved terrassen er inntegnet som en del av seksjonen iht. tinglyst seksjonering. Seksjonen disponerer i tillegg en bod ved inngangspartiet oppmålt til ca. 2 kvm, men grunnet lav himlingshøyde er arealet ikke måleverdig.
Vedlagte plantegninger er ikke målbare. De oppgitte arealer er hentet fra rapport med befaringsdato 12.02.2026 utført av Anticimex AS. Arealene er beregnet og rom er definert etter dagens faktiske bruk, uavhengig av hva som er godkjent av bygningsmyndighetene.
Det gjøres oppmerksom på at boligens eksterne bod (ved inngangspartiet) tilhører sameiets fellesareal, og at boden således ikke eies av den enkelte sameier. Dette medfører at sameiet i fellesskap beslutter bruken, og at man ikke selv har eierrett og rettsvern for boden. Sameiet kan ved vedtak beslutte annet bruk av fellesarealet og disponering av bodarealet kan dermed opphøre.
Byggemåte
Selger har innhentet en tilstandsrapport av boligen/eiendommen. Av rapporten fremgår det at flere bygningsdeler har fått tilstandsgrad ikke undersøkt/ikke tilgjengelig for undersøkelse (TG IU), 2 (TG2) og/eller 3 (TG3). Rapporten beskriver også avvik på undersøkte bygningsdeler uten tilstandsgrad. Kjøper overtar ansvaret for de opplysninger som fremkommer av salgsdokumentasjonen, og kan ikke gjøre gjeldende som mangel noe som burde vært kjent eller som ikke kan anses å ha betydning for avtalen.
Byggemåte iht. tilstandsrapporten:
Leilighetsbygg over to etasjer oppført i 2017. Gulv av betong mot grunn. Etasjeskiller i betongkonstruksjon. Grunnmur i betongkonstruksjon. Yttervegger i
trekonstruksjon, utvendig kledd med liggende trekledning. Boligen har slett entrédør. Terrassedør og vinduer med tre-lags glass fra byggeår.
Takkonstruksjon i saltaksform utvendig tekket med takstein. Leiligheten har balansert ventilasjon.
Følgende kontrollpunkter/forhold har blitt tildelt TG3:
Det er ingen punkter som har blitt tildelt TG3.
Følgende kontrollpunkter/forhold har blitt tildelt TG2:
Våtrom - bad: Effekten i avtrekksventilen ble testet ved hjelp av et papir og vurderes som utilstrekkelig.
Kjøkken: Kjøkkenventilatoren er integrert i leilighetens ventilasjonsaggregat. Det kan ikke utelukkes at redusert avtrekk i badet skyldes forhold med aggregatet.
Følgende kontrollpunkter/forhold har blitt tildelt TGIU:
Teknisk anlegg: Innvendig stakeluke er ikke lokalisert.
Andre rom: Leiligheten var delvis fylt opp med lagrede gjenstander og møbler på befaringsdagen. Gulv og veggoverflater er derfor ikke helhetlig inspisert.
Balkonger: Fundamenter er skjult og ikke inspisert.
Branntekniske forhold: Røykvarsler i leiligheten mangler/er ufullstendig. Røykvarsler må etableres.
Tilstandsrapporten er inntatt i salgsoppgaven. Rapporten inneholder informasjon om avvikene og konsekvensen av disse. For avvik som er gitt TG3 har den bygningssakkyndige i tillegg gitt et anslag på hva det vil koste å utbedre disse avvikene. Ettersom kjøper regnes å være kjent med forhold som tydelig fremgår av tilstandsrapporten, oppfordres du til å sette deg grundig inn i rapporten i sin helhet.
Standard
Leiligheten ble oppført med god standard for byggeåret og er i dag velholdt. Overflater og innredninger er hovedsakelig fra byggeåret. Vegger og himlinger har glatte flater det er lett å male over om du vil gjøre egne fargevalg. Gulvene er utenom entreen og badet av tre-stavs eikeparkett.
Arealet er svært effektivt disponert, blant annet med stue og kjøkken i åpen løsning. Kjøkkeninnredningen er montert langs stuens bakvegg, til fordel for en størst mulig disponibel gulvflate i rommet for øvrig. I kjøkkenets skap og skuffer finnes oppbevaringsmulighet for det essensielle av utstyr til daglig bruk. Hvitevarer i form av kjøleskap, komfyr og oppvaskmaskin medfølger.
Soverommet og badet er samlet i praktisk nærhet langs gangen mellom stuen og entreen. Soverommet er lett tilgjengelig gjennom to plassbesparende skyvedører som gir tilgang til hver sin side av en eventuell dobbeltseng; én fra gangen, én fra entreen. To garderobeskap som står i soverommet medfølger.
På badet er gulv og vegger flislagt, gulvet har også varme. Baderomsmøblene tilbyr oppbevaringsplass i både servantskap og speilskap. Varmtvannsbereder er montert på vegg, med avsatt plass til vaskemaskin under.
Overflater og innredninger:
Gulv: Parkett og fliser.
Innervegger: Fliser og glatte, malte flater
Himlinger: Glatte, malte flater.
Kjøkken: Skapinnredning med glatte hvite fronter. Laminert grå benkeplate. Underlimt stålvask med ett-greps blandebatteri. Tilkoblet oppvaskmaskin. Veggmontert ventilator.
Bad: Servantskap med glatt hvit front og heldekkende keramisk servant med ett-greps blandebatteri. Speilskap med overbelysning. Dusjhjørne med skyvedører og to-greps blandebatteri med hånddusj. Toalett montert på synlig sisterne. Rør-opplegg for vaskemaskin. Veggmontert varmtvannsbereder.
Løsøre og tilbehør
Vi viser til liste fra Norges Eiendomsmeglerforbund som gjelder fra 01.01.2020 angående løsøre og tilbehør. Produkter og installasjoner som medfølger overdras uten noen form for garantier, utover eventuell gjenværende leverandørgaranti.
Hvitevarer vil medfølge boligen.
Oppvarming
Oppvarming av boligen skjer i hovedsak ved bruk av elektrisitet. Gulvvarme på badet.
Dersom beboelsesrom ikke har vegg- eller fastmonterte varmekilder ved visning, følger dette heller ikke med.
Ferdigattest/brukstillatelse
Det foreligger ferdigattest på eiendommen datert 16.11.2022. Denne kan fås ved henvendelse til megler.
Midlertidig brukstillatelse var gitt 11.12.2017.
Kjøper overtar eiendommen slik den framstår på visning.
Tinglyste heftelser og rettigheter
Leiligheten overdras fri for pengeheftelser.
Sameiet har legalpant for krav mot sameieren som følger av sameieforholdet iht. eierseksjonsloven § 31. Pantet er begrenset oppad til 2G, (G = folketrygdens grunnbeløp).
Det er tinglyst følgende servitutter på sameiets eiendom.
Dagboknr 120805, tinglyst 10.02.2015, type heftelse: Erklæring/avtale.
Overenskomst om rettigheter og plikter ved oppføring, drift og vedlikehold av frittliggende nettstasjon, med flere bestemmelser.
Servituttene vil følge eiendommen. Kjøpers bank vil få pant etter ovennevnte heftelser og servitutter.
Det er tinglyst følgende på eiendommen grunndata:
Dagboknr 1274845, tinglyst 15.11.2017 - Seksjonering.
Snr: 27.
Formål: Bolig.
Tilleggsdel: Grunn.
Sameiebrøk: 36/3174.
Dagboknr 433036, tinglyst 15.04.2021 - Reseksjonering.
Snr: 27.
Formål: Bolig.
Tilleggsdel: Grunn.
Sameiebrøk: 36/3216.
Endring av sameiebrøk, fellesareal og endring av tegninger.
Eventuell adgang til utleie
Leiligheten kan leies ut såfremt leiligheten har forsvarlige radonverdier. Leietaker må følge sameiets vedtekter og ordensregler på lik linje som eier.
Leiligheten har et løpende leieforhold med gjensidig oppsigelsestid på 3 mnd. Oppsigelse er sendt og leiligheten er klar for overtagelse fra 01.06.2026. Ved ønsket overtagelse før denne dato overtar kjøper leieforholdet videre med den risiko og ansvar dette innebærer. Konf. megler ved spørsmål.
Diverse
Selger har ikke bebodd eiendommen og har derfor ikke kunnskap om eiendommens tilstand. Kjøper må derfor kunne påregne at det kan være flere feil og mangler som normalt oppdages ved bruk av boligen, men som selger ikke har mulighet å vite.
Beliggenhet og tomteforhold
Beliggenhet og tomteforhold
Beliggenhet
I Vårliveien bor du tilbaketrukket blant både etablert og ny boligbebyggelse midt i Halmstad og Rygge. Dette er et spennende vekstområde som opplever stor popularitet og økt tilflytting. Her møter du både barnefamilier, unge etablerere og godt voksne som har flyttet fra en enebolig til noe mer lettstelt og praktisk. Denne varierte sammensetningen legger grunnlaget for et godt bomiljø som du selv også kan bli en del av.
Så nær som de fleste fasiliteter og tilbud i Halmstad er lett tilgjengelig innenfor en radius på få hundre meter. I det utvidede nabolaget finner du både to dagligvareforretninger, konditori, apotek og en håndfull småforretninger, samt et tjenestetilbud innenfor personlig pleie som til sammen langt på vei dekker de fleste hverdagslige behov.
Fra Halmstad får du et svært godt utgangspunkt for utflukter i det solrike og frodige Ryggelandet som er rikt på historie og har et stort antall turmuligheter. Her ligger også Evje Golfpark som har vakkert banelandskap helt ned til vannkanten. Veien er heller ikke lang til sommerperler som Larkollen og Fuglevik langs kysten.
Skal du med toget, er det kjekt å vite at Rygge stasjon er kun få minutters gange unna leiligheten. Reisetiden med tog videre til Oslo S er fra kun 40 minutter. Langs Ryggeveien stopper regionale busslinjer. Ekspressbuss til Oslo og Gardermoen stopper ved E6. Med bil tar du deg enkelt ut på E6 og videre til de urbane områdene omkring Moss på om lag fem minutter.
Adkomst
Veibeskrivelse Se Google maps - det er enkelt å finne frem i kartet.
Det vil bli skiltet med Krogsveen visningsskilt ved fellesvisninger.
Barnehager, skoler og fritid
Informasjon om tilhørende skolekretser er hentet fra Prognosesenteret som dataleverandør, og tilhørigheten kan årlig endres av kommunen. Dersom skole- og barnehagetilbud er av betydning for kjøpet, ber vi om at det rettes en særskilt henvendelse til kommunen for oppdatert informasjon.
Beskrivelse av tomt
Eiet tomt på 12 734 kvm som tilhører sameiet.
I henhold til eiendomsrapport datert 05.02.2026 og seksjoneringsbegjæring har seksjonen et eksklusivt uteareal på ca 12 kvm. Dette gjelder seksjonens biloppstillingsplass.
Parkering
Leiligheten disponerer en biloppstillingsplass på felles parkeringsområde. Øvrig parkering etter områdets bestemmelser.
I henhold til tinglyst reseksjonering datert 15.11.2017 fremkommer biloppstillingsplassen som tilleggsdel til boligen på tegningene (T27).
I henhold til forretningsfører vil det komme mulighet for elbil-lading. (Sone -A), denne sonen er ikke klargjort enda, men antas at det ferdigstilles innen 2028.
Vei, vann og avløp
Eiendommen har adkomst via kommunal vei videre inn på privat vei.
Eiendommen er tilknyttet kommunalt ledningsnett via private stikkledninger.
Sameiet er ansvarlig for private stikkledninger til bygningen.
Regulerings-og arealplaner
I henhold til informasjon fra Moss kommune datert 05.02.2026 omfattes eiendommen av reguleringsplan "Halmstad felt C-F" med formål lekeplass, annen veigrunn/grøntareal og boligbebyggelse/konsentrert småhusbebyggelse, vedtatt 01.11.2012 med plannr. M196. Kommunedelplan "Halmstad" med formål boligområde framtidig, senterområde framtidig, friområde nåværende, park/turvei framtidig og boligområde nåværende, vedtatt 14.12.2006 med plannr. M178. Kommunedelplan under arbeid "Kommunedelplan for Halmstad" med plannr.464. Eiendommen omfattes i tillegg av "Kommuneplanens arealdel 2021-2032" med formål friområde nåværende, park fremtidig og boligbebyggelse nåværende og fremtidig, vedtatt 24.03.2021 med plannr.KP3002.
Eiendommen ligger i gul støysone iht. T-1442, avvikssone støy med bestemmelse "byggegrenser, utbyggingsvolum og funksjonskrav" og hensynssone "frisikt".
Utsnitt av plan med tilhørende bestemmelser kan fås ved henvendelse til megler.
Økonomi
Økonomi
Boligens kostnader
Fellesutgiftene inkluderer: felles bygningsforsikring, kommunale avgifter (kun renovasjon og felles avløp/vann), strøm fellesareal, tv/internett (Viken fiber - kun grunnpakke), utvendig vedlikehold (bygninger og fellesareal), styrehonorar (innleid styreleder), forretningsførsel, revisjon og andre driftskostnader.
Fellesutgiftene justeres normalt en til to ganger årlig i forhold til sameiets faktiske utgifter. Forretningsfører informerer at det kan være behov for ytterligere økning med 5-20% over en 2-3 års periode. Justeringer blir foretatt 1.januar og 1.juli. Økningen er hovedsakelig grunnet avsetning til fremtidig vedlikehold og økte priser generelt.
Siste vedtatte økning av felleskostnader var fra januar 2026 på 5%.
I tillegg må seksjonseier betale kommunale avgifter kr 9 566,- for inneværende år. I dette inngår gebyr for vann, avløp og eiendomsskatt.
Eiendomsskatten utgjør kr 1.983,- av det ovennevnte beløp. Vann og avløp betales etter forbruk. Det er ikke stipulert et a-konto forbruk på 70 kubikk for 2026. Seksjonen har egen vannmåler. Faktura sendes seksjonseier direkte fra Moss kommune over 12 terminer.
Det er ikke tegnet Norgespris for strøm.
Boligen er tilknyttet Altibox/Viken fiber som leverandør av tv/internett. Tv-tuner/dekoder medfølger ikke. Følger med router i sikringsskap.
Kjøper må selv tegne innboforsikring.
Selger har ikke bebodd eiendommen og har således ikke kjennskap til øvrige løpende utgifter for eiendommen.
Formuesverdi
Formuesverdi for 2024 var kr 546 214,- ifølge selgers Skatteetaten. Beløpet forutsetter at eier bor fast i boligen (primærbolig).
Ved eventuell øvrig bruk av eiendommen (f.eks. fritidsbolig, pendlerbolig, utleieobjekt) var formuesverdien for 2024 kr 2 184 857,-.
Fra 2026 har Stortinget vedtatt en oppdatert modell for beregning av formuesverdi for primærbolig, så avvik kan forekomme.
For mer informasjon se skatteetaten.no
Opplysninger om fellesgjeld
Andel formue er kr 4 938,- pr. 31.12.2025.
Andel fellesgjeld er kr 0,- pr. 05.02.2026.
Total formue i sameiet er pr. 31.12.2025 kr 441 086,-.
Andel fellesgjeld er iflg. forretningsfører leverandørgjeld og det er ikke felles lån i sameiet.
Det er for tiden ingen planer om fellesgjeld, utover at sameiet vil søke kassekreditt.
Omkostninger
2 390 000,00 Prisantydning
Omkostninger
59 750,00 Dokumentavgift til staten (2,5% av kjøpesum)
9 950,00 Gjensidige Boligkjøperpakke* (valgfritt)
545,00 Tinglysing panterettsdokument
545,00 Tinglysing skjøte
--------------------------------------------------------
60 840,00 (Omkostninger totalt (uten Gjensidige Boligkjøperpakke))
70 790,00 Omkostninger totalt (med Gjensidige Boligkjøperpakke))
--------------------------------------------------------
2 450 840,00 Totalpris inkl. omkostninger
2 460 790,00 Totalpris inkl. omkostninger (med Gjensidige Boligkjøperpakke)
--------------------------------------------------------
Dersom sameiet har fellesgjeld, vil leilighetens andel av fellesgjelden komme i tillegg til kjøpesummen. Denne gjelden skal ikke innbetales i oppgjøret, men følger leiligheten.
Totalpris inkl. omkostninger forutsetter kjøp til prisantydning.
Det tas forbehold om endringer i avgifter og gebyrer.
Tilbud om lånefinansiering
Megler formidler gjerne kontakt med rådgiver hos vår samarbeidspartner BN Bank. De har konkurransedyktige betingelser samt rask og løsningsorientert behandling av din lånesøknad. Krogsveen mottar et honorar dersom lån opprettes.
Betalingsbetingelser
Kjøpesum inkludert omkostninger, samt pantedokument tilknyttet eventuelt lån, skal være disponibelt hos megler 2 virkedager før overtagelsen.
Annen viktig informasjon
Annen viktig informasjon
Eier
Jacques von Munthe Av Morgenstierne
Informasjon om forkjøpsrett
Eiendommen er seksjonert, og leiligheten er tilknyttet Vårlitunet Boligsameie, med sameiebrøk 43/3216.
Sameiet består av 66 seksjoner som alle er boligseksjoner.
Forretningsfører er BDO AS.
Dugnad må påregnes.
Det kan holdes dyr under forutsetning av at eier aksepterer sameiets regler for dyrehold, og dyreholdet ikke er til ulempe for de øvrige brukere av eiendommen.
Forretningsfører informerer at sameiets årsmøte ikke er før i juni 2026. Siste regnskap som er tilgjengelig er for 2024.
Påkostninger eller arbeider styret/sameiet har arbeidet med senere år:
Det er i sameiet påvist forekomster av melbiller. Saneringstiltak er iverksatt i regi av sameiet.
Oppdaget mus i sameiet og dermed ble Anticimex engasjert.
Skaffe ny styreleder. Styreleder har fått samtykke til å engasjere eksternt firma.
Planlagte arbeider/påkostninger:
Balkonger skal males hvitt. Gjelder byggene 15, 19, 21, 23 og 25. Kostnadene fordeles på f.eks. antall løpemeter rekkverk som males.
De som allerede har fått malt sine rekkverk slipper å delta.
Beplantning, men i redusert form.
Liten oppfriskning av lekeplassen.
Styret vil for 2024/25 jobbe for å utvide antall parkeringsplasser (gjesteplasser), fortsette nødvendig vedlikehold og sørge for at bomiljøet er godt i sameiet.
Sameiet har fått utarbeidet en 10 års vedlikeholdsplan. Kort oppsummert er de samlede kostnadene forbundet med aktuelle vedlikeholds tiltak de neste 10 årene vurdert til kr 2 670 000 inkl. mva. I tillegg anbefales det strakstiltak for kr 320 000 inkl. mva. som bør utføres innen et år. I henhold til forretningsfører 10.12.2025 er det foreløpig ikke foretatt noen utbedringer. Rapporten kan fås ved henvendelse til megler.
Sameiet har en «ok» økonomi, men det er avsatt litt for lite til fremtidig vedlikehold. Dette har styret søkt å motvirke med en mindre endring av husleien (5-20%). Hovedårsaken til dette er økte priser generelt og økt avsetning til Vedlikeholdsfondet. I henhold til styrets leder er det avsatt for lite til vedlikeholdsfondet. Styrets "spådom" er at fellesutgifter fortsatt må økes som nevnt over inntil sameiets sparekonto er stor nok. Antagelig i løpet av 2-3 år. Styret har også påstartet arbeid med å se på finansieringsløsninger.
Det er sendt varsel om rettslige skritt fra sameiet. Sameiet mener at carport mellom hus B og C er oppført feil og de mener hus B, C og D har mangelfullt brannvarslingsanlegg. Reklamasjonsfrist er utløpt og selskapene som oppførte hus C og D er avviklet. Det er foreløpig uenighet om hvor ansvaret ligger. I henhold til styrets leder er den rettslige prosessen som er initiert rettshjelpsdekket, og forventes ikke å påføre sameiet vesentlige kostnader.
Sameiet har mottatt nabovarsel om utbyggingsplaner fra nabo. Styret har ikke funnet noen kvalifiserte innvendinger mot planene. Dette omhandler nabovarsel for bruksendring og evt. utvidelse av naboeiendommen (Ryggeveien 373), fortsatt bruk som asylmottak.
Iht. sameiets vedtekter må kjøper godkjennes av styret som ny sameier. Det er kjøpers ansvar at styregodkjenning blir gitt, men styret kan ikke nekte godkjenning uten saklig grunn.
Vi gjør videre oppmerksom på at det iht. eierseksjonsloven ikke er anledning å erverve mer enn 2 seksjoner i sameiet, her teller også eierskap via. firma, nærstående og familie. Kjøper har risikoen for at overskjøting på denne bakgrunn kan nektes av Statens Kartverk. I så fall vil kjøper uansett være forpliktet til å gjennomføre handelen, og oppgjør til selger vil finne sted tross manglende overskjøting. Konferer med megler for mer informasjon.
Seksjonsbegjæringen og dokumenter for sameiet kan fås ved henvendelse til megler.
Overtakelse
Etter nærmere avtale.
Boligselgerforsikring
Selger har i forbindelse med salget tegnet boligselgerforsikring levert av Gjensidige.
Boligselgerforsikringen dekker selgers ansvar etter avhendingsloven begrenset oppad til kr 14 millioner. Dersom kjøper oppdager forhold ved eiendommen som hen mener utgjør en mangel ved eiendommen, vil Gjensidige behandle reklamasjonen på vegne av selger. Forsikringsvilkår kan fås ved henvendelse til megler.
Vedlagt salgsoppgaven følger selgers egenerklæringsskjema og tilstandsrapport. Interessenter må sette seg inn i dokumentene før bud inngis.
Boligkjøperforsikring
Innen kontraktsmøtet må kjøper ta stilling til om det ønskes å bestille Boligkjøperpakken gjennom Gjensidige. I denne gunstige pakken er boligen ferdig forsikret og inkluderer rettshjelpsforsikring, også kalt Boligkjøperforsikring. Rettshjelpsforsikring gir trygghet og tilgang på profesjonell juridisk hjelp dersom det oppdages uventede feil eller mangler det første året etter overtagelse. Forsikringsselskapet behandler i så fall ethvert mangelskrav kjøper måtte ha overfor selger.
Boligkjøperpakken inkluderer bygningsforsikring for hus og hytte, innboforsikring, flytteforsikring og dobbel rentedekning - i situasjoner hvor kjøper ikke får solgt nåværende primærbolig.
Kjøper mottar ingen særskilt faktura for Boligkjøperpakken da kostnaden det første året legges til kjøpesummen for boligen. Det gjøres oppmerksom på Krogsveen mottar et honorar for denne formidlingen.
Produktark for Boligkjøperpakken ligger vedlagt i salgsoppgaven.
Dersom ikke boligkjøperpakke ønskes kan kun rettshjelpsforsikring, også kalt boligkjøperforsikring, tegnes særskilt via megler. Rettshjelpsforsikringen varer i 5 år fra overtagelse og leveres gjennom Gjensidige. Ta kontakt med megler for ytterligere informasjon.
Selskap og privatpersoner som driver med kjøp/salg/utvikling som ledd i egen næringsvirksomhet kan ikke tegne boligkjøperpakke eller rettshjelpsforsikring.
Budgivning
Forbrukerinformasjon om budgivning er vedlagt denne salgsoppgaven og er også på vår hjemmeside Krogsveen.no. Alle bud og budforhøyelser må inngis skriftlig. I tillegg må legitimasjon være fremlagt sammen med signatur fra budgiver.
Vi oppfordrer til å gi bud elektronisk via GI BUD-knappen på eiendommens hjemmeside på Krogsveen.no. Da vil samtlige vilkår bli oppfylt.
Eventuelle forhøyelser eller endringer av budet kan bekreftes pr SMS eller på e-post. Vi oppfordrer alltid til å kontakte megler pr. telefon i tillegg da forsinkelser i SMS og e-post kan forekomme.
For at budene skal kunne bli behandlet og videreformidlet skriftlig til alle involverte parter, må alle bud ha en tilstrekkelig lang akseptfrist, jf. eiendomsmeglingsforskriften § 6-3.
Selger må også skriftlig akseptere budet før aksept kan formidles til budgiver. Akseptfrist bør derfor være på minimum 30 minutter, og budforhøyelser må derfor skje i god tid før fristens utløp.
Bud i forbrukerforhold kan uansett ikke settes med kortere frist enn kl. 12.00 første virkedag etter siste annonserte visning. I tillegg kan ikke budet ha forbehold om at det skal holdes hemmelig ovenfor øvrige interessenter. Megler har iht lov om eiendomsmegling ikke anledning til å videreformidle disse budene, og de vil dermed heller ikke bli journalført.
Etter at eiendommen er solgt vil kjøper og selger få tilsendt budjournal. Øvrige budgivere kan få utlevert kopi av budjournalen i anonymisert form.
Hvitvaskingsreglene
I henhold til lov om hvitvasking og terrorfinansiering har megler plikt til å gjennomføre kontrolltiltak overfor kunder, herunder fullmektiger. Dette innebærer bl.a. å bekrefte kunders og reelle rettighetshaveres identitet på bakgrunn av fremvist gyldig legitimasjon eller på annen godkjent måte, samt å innhente opplysninger om kundeforholdets formål og tilsiktede art.
Dersom slike kundetiltak ikke kan gjennomføres, kan megler ikke etablere kundeforholdet eller utføre transaksjonen.
Hvis kjøper ikke bidrar til gjennomføring av kundekontrollen og dette fører til at transaksjonen blir forsinket eller ikke kan gjennomføres, vil dette ansees som mislighold av avtalen og gi selger rettigheter etter avhendingslova kapittel 5. I tilfeller der selger ikke bidrar til gjennomføring av løpende kundekontroll underveis i oppdraget, er det selger som misligholder sine forpliktelser etter avtalen og gi kjøper rettigheter etter avhendingslovens kapittel 4. Partene er selv ansvarlige for eventuelle kostnader og ansvar dette kan medføre. Eiendomsmegleren eller eiendomsmeglingsforetaket kan ikke holdes ansvarlig for de konsekvenser dette vil kunne få for partene eller andre som har interesser i eiendomshandelen.
Kjøper oppfordres til å innbetale kjøpesummen som ikke kommer fra låneinstitusjon i én samlet innbetaling fra egen konto i norsk bank. Megler har plikt til å melde fra til Økokrim om eiendomshandler som fremstår som mistenkelige. Melding sendes Økokrim uten at partene varsles.
Personopplysningsloven
I henhold til personopplysningsloven gjør vi oppmerksom på at interessenter kan bli registrert for videre oppfølging.
Lovanvendelse
Generelle bestemmelser
Salgsoppgaven er basert på de opplysningene selger har gitt til megler, den bygningssakyndiges tilstandsrapport, samt opplysninger innhentet fra kommunen, Kartverket og andre tilgjengelige kilder. Det er viktig at kjøper setter seg grundig inn i alle salgsdokumentene, herunder salgsoppgave, tilstandsrapport og selgers egenerklæring. Kjøper anses kjent med forhold som er tydelig beskrevet i salgsdokumentene, og slike forhold kan ikke påberopes som mangler. Dette gjelder uavhengig av om kjøper har lest dokumentene. Alle interessenter oppfordres til å undersøke eiendommen nøye, gjerne sammen med fagkyndig før bud inngis. Kjøper som velger å kjøpe usett kan ikke gjøre gjeldende som mangel noe han burde blitt kjent med ved undersøkelsen.
Dersom det er behov for avklaringer, anbefaler vi at interessenter rådfører seg med eiendomsmegler eller egne rådgivere før det legges inn bud.
En bolig som har blitt brukt i en viss tid, har vanligvis blitt utsatt for slitasje og skader kan ha oppstått. Slik bruksslitasje må kjøper regne med, og det kan avdekkes enkelte forhold etter overtakelse som nødvendiggjør utbedringer. Normal slitasje og skader som nødvendiggjør utbedring, er innenfor hva kjøper må forvente og vil ikke utgjøre en mangel.
Kjøper og selgers rettigheter og plikter reguleres av avtalen mellom partene, samt informasjonen som har vært tilgjengelig for kjøperen i forbindelse med handelen. Avtalen utfylles av avhendingsloven, og det gjelder ulike avtalevilkår avhengig av om kjøper er forbrukerkjøper eller ikke. Dette er nærmere beskrevet nedenfor.
På grunn av ulike avtalevilkår kan selger vurdere bud fra en som ikke er forbruker, ulikt fra en forbrukers bud. Dersom kjøper ikke er forbruker, er selger sitt mulige mangelsansvar begrenset fordi eiendommen selges "som den er". Selger kan ikke ta «som den er»- forbehold overfor en forbrukerkjøper. Selv et lavere bud fra en som ikke er forbruker kan foretrekkes fordi begrensningen i mulig mangelsansvar kan ha egenverdi for selger. Selger står fritt til å forkaste eller akseptere ethvert bud, og er for eksempel ikke forpliktet til å akseptere høyeste bud.
Budgiver skal i budskjema avgi egenerklæring om budgiver er forbruker eller næringsdrivende/ person som hovedsakelig handler som ledd i næringsvirksomhet. Budgivere får informasjon dersom andre bud er inngitt av en som ikke er forbruker.
Forbrukerkjøp - definisjon
Med forbrukerkjøp menes kjøp av eiendom når kjøperen er en fysisk person som ikke hovedsakelig handler som ledd i næringsvirksomhet.
Forbruker – avtalevilkår
Eiendommen har en mangel dersom den ikke er i samsvar med kravene som følger av avtalen, eller det foreligger brudd på bestemmelsene i avhendingsloven §§ 3-2 til 3-8. Hvis eiendommen ikke er i samsvar med det kjøperen må kunne forvente ut ifra alder, type og synlig tilstand, kan det være grunnlag for mangelskrav. Det samme gjelder hvis det er holdt tilbake eller gitt uriktige opplysninger om eiendommen. Dette gjelder likevel bare dersom man kan gå ut ifra at det virket inn på avtalen at opplysningen ikke ble gitt eller at mangelskravet ikke blir rettet i tide på en tydelig måte.
Boligen kan ha en mangel etter avhendingsloven § 3-3 andre ledd, dersom det er avvik mellom opplyst og faktisk innvendig areal, forutsatt at avviket er på 2% eller mer og minimum 1 kvm.
Ved beregning av et eventuelt prisavslag eller erstatning må kjøper selv dekke tap/kostnader opptil et beløp på kr 10 000 (egenandel).
Ikke-forbruker (næringsdrivende) – definisjon
Hvis kjøper er en juridisk person, eller en fysisk person som hovedsakelig handler som ledd i næringsvirksomhet, vil kjøpet ikke anses som et forbrukerkjøp.
Ikke-forbruker – avtalevilkår
Eiendommen har en mangel dersom den ikke er i samsvar med kravene som følger av avtalen.
Eiendommen selges «som den er», og selgers ansvar utover det konkret avtalte er da begrenset etter avhendingsloven § 3-9, første ledd andre setning.
Avhendingsloven § 3-3 andre ledd fravikes, og hvorvidt boligens arealsvikt utgjør en mangel vurderes etter avhendingsloven § 3-8.
Informasjon om kjøpers undersøkelsesplikt, herunder oppfordringen om å undersøke eiendommen nøye, gjelder også for kjøpere som ikke anses som forbrukere.
Det forutsettes at hjemmel overføres til kjøper. Hvis kjøper ikke ønsker hjemmelsoverføring av eiendommen, må det tas forbehold om dette i budet.
Meglers vederlag
Meglers vederlag betales av selger og er avtalt til:
Provisjon: kr 35.000,-
Vederlag:
Foto: kr 5 000,00
Markedsføringspakke: kr 29 900,00
Rabatt markedspakke: kr -7 000,00
Oppgjør kr 8 900,00
Tilrettelegging: kr 17 000,00
Utlegg:
Eierskiftegebyr forretningsfører: kr 6 725,00
Innhenting av informasjon forretningsfører: kr 4 500,00
Innhenting av offentlige opplysninger: kr 3 500,00
Tinglysing sikring: kr 545,00
Utlegg øvrige kostnader:
AX tilstandsrapport leilighet: kr 10 750,00
Boligselgerforsikring Gjensidige Snr: kr 10 946,00
Vi er opptatt av verdiskapning, og har knyttet til oss samarbeidspartnere som skal sikre våre kunder de beste produkter og tjenester;
• I forbindelse med forberedelse av salget, innhenter vi informasjon om eiendommen hovedsakelig fra vår samarbeidspartner Amibita.
• Gjensidige leverer boligselgerforsikring og tilbyr bygningsforsikring
• Boligkjøperforsikring leveres av Hiscox og med Sedgwick som skadebehandler, og er formidlet gjennom Gjensidige.
• BN bank tilbyr finansieringsløsninger
• Vår avdeling Krogsveen Pluss tilbyr flyttetjenester som utvask, visningsvask, lager, tømming og transport av flyttelass, i tillegg til å formidle kontakt med Flip for overflateoppussing.
• I forbindelse med overtagelse av eiendommen tilbyr Overo avtale om strøm, alarm og bredbånd.
• Krogsveen er, sammen med øvrige bransjeaktører, medeier i Bomega AS som tilbyr den digitale annonseringsplattformen Hjem.
Opplysninger om oppdraget
Oppdragsnummer 30-0020/26
Eiendomsmegler Krogsveen AS, avd. Moss
Kongens gate 23, 1530, MOSS
950 007 613
Oppdragets KR-kode KR30.2620
Dato
Sist oppdatert: 17. april 2026 kl. 08:14
Dokumenter
Dokumenter
PDF – 222 KB
PDF – 929 KB
PDF – 312 KB
PDF – 29 KB
PDF – 127 KB
PDF – 392 KB
Område
Legg til steder som er viktige for deg
Visning
For å delta på visning, ber vi om at du melder deg på. Da sikrer vi at du får nødvendig informasjon og at det er satt av tilstrekkelig med tid. Kontakt megler dersom annet tidspunkt ønskes. Husk å lese salgsoppgaven før visningen, så du stiller forberedt. NB. Visning utgår dersom det ikke er noen påmeldte. Ønsker du kun å bli holdt orientert, kan du fra eiendommens hjemmeside få varsel om solgtpris, eller kontakte megler.
Lurer du på noe?
Unngå doble boligrenter
Vi tilbyr gunstig forsikring.
Vurderer du utleie?
Få et tilbud fra Utleie KrogsveenHva koster lånet?
Sjekk estimert lånekostnadVil du varsles om lignende boliger?
Ved å lagre ditt boligsøk hos oss får du beskjed når vi har en bolig som ligner denne, før den legges ut på markedet!


















