Grettefjellveien 39
4 390 000 kr
114 m²
3 soverom
Solgt

Røyken
Pen og vedlikeholdt halvpart av vertikalt tomannsbolig - Nærhet til barnehage og barneskole
Prisantydning
4 390 000 krOmkostninger
130 740 krTotalpris
4 520 740 kr
Pris
Bruksareal
132 m²BRA-I (internt bruksareal)
114 m²BRA-E (eksternt bruksareal)
18 m²TBA (terrasse-balkongareal)
88 m²
Areal
Byggeår
1973Soverom
3 soveromBad
1 badTomteareal
388 m² (eiet)Type
Halvpart vertikaldelt boligEierform
EietFasiliteter
Garasje/P-plass og Balkong/TerrasseÅrlig velavgift
600 krEnergimerke
Oransje F
Nøkkelinfo
Unngå doble boligrenter
Vi tilbyr gunstig forsikring.
Vurderer du utleie?
Få et tilbud fra Utleie KrogsveenHva koster lånet?
Sjekk estimert lånekostnadBeskrivelse
Kort om eiendommen
Velkommen til Grettefjellet 39!
Pen og velholdt bolig med koselige uteplasser og beliggende i et trivelig nabolag. Boligen har en god planløsning med åpen 2. etasje og soveromsetasje i første. Fra eiendommen er det kort vei til både barnehage og diverse skoler, samt diverse gode idrettstilbud.
- Velutstyrt og pent kjøkken med integrerte hvitevarer og plass til spisestue
- Terrasser på begge sider av boligen - Meget gode solforhold
- Pent flislagt bad
- Nyere vinduer i 1.etg samt på kjøkken inkl terrassedører
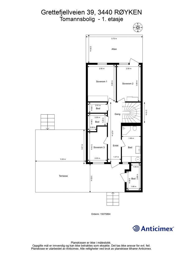
- 3 soverom - Alle i 1.etg
- Nyere gulv i de fleste rom
- Kort vei til barnehage og barneskole
1.etg. Entre, bad/Vaskerom, 2 boder og 3 soverom
2.etg. Stue og stort kjøkken - opprinnelig et ekstra soverom
Område
Legg til steder som er viktige for deg
På flyttefot? Tenk kjøp og salg samtidig.
Få din egen rådgiver gjennom hele kjøps- og salgsprosessen. Det starter med en verdivurdering.
Unngå doble boligrenter
Vi tilbyr gunstig forsikring.
Vurderer du utleie?
Få et tilbud fra Utleie KrogsveenHva koster lånet?
Sjekk estimert lånekostnadVil du varsles om lignende boliger?
Ved å lagre ditt boligsøk hos oss får du beskjed når vi har en bolig som ligner denne, før den legges ut på markedet!

