Svenskerud 150
5 390 000 kr
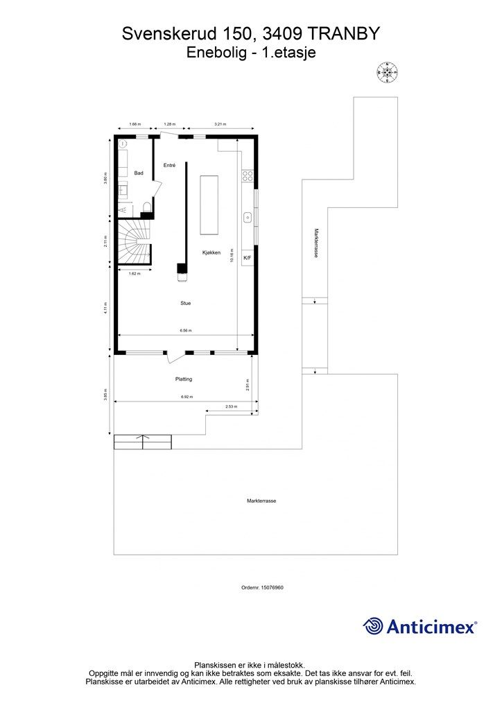
114 m²
3 soverom
Solgt

Presenteres av
Morten Solberg HelgerudTranby
Innbydende & moderne enebolig i et barnevennlig boligfelt. 2 bad. Flotte & lune uteplasser. Garasje. Innerst i blindvei.
Prisantydning
5 390 000 krAndel fellesgjeld
499 764 krOmkostninger
11 040 krTotalpris
5 900 804 kr
Pris
Bruksareal
138 m²BRA-I (internt bruksareal)
114 m²BRA-E (eksternt bruksareal)
24 m²TBA (terrasse-balkongareal)
162 m²
Areal
Etasje
2Byggeår
1985Soverom
3 soveromBad
2 badType
Enebolig - FrittliggendeEierform
AndelFasiliteter
Garasje/P-plass og Balkong/TerrasseFellesutgifter
5 966 krEnergimerke
Oransje E
Nøkkelinfo
Unngå doble boligrenter
Vi tilbyr gunstig forsikring.
Vurderer du utleie?
Få et tilbud fra Utleie KrogsveenHva koster lånet?
Sjekk estimert lånekostnadBeskrivelse
Kort om eiendommen
Innbydende og moderne enebolig med 2 etasjer.
- Boligen ble oppusset/oppgradert i perioden 2021-2025
- Åpen kjøkken-/stue med varmepumpe og peisovn
- Stilrent og moderne Kvik-kjøkken
- Kjøkken med praktisk kjøkkenøy på 2,8 m, barløsning og medfølgende hvitevarer
- Moderne bad/vaskerom i 1. etg (rehab. i 2024)
- Lyst og pent bad i 2. etg fra 2013 med dusj fra 2024
- Etterisolert samt skiftet tak, vinduer og terrassedør i 2017 (i regi av brl.)
- Romslig og solrik sydøstvendt platting/markterrasse fra 2023 på totalt 162 kvm
- Boligen disponerer en isolert garasje med lader for el-bil
- Flott intern beliggenhet i enden av boligfeltet og innerst i blindvei
- Nærmiljøet kan beskrives som svært barnevennlig, veletablert, trygt og attraktivt
- Kort gangavstand til Hennummarka barneskole
Område
Legg til steder som er viktige for deg
På flyttefot? Tenk kjøp og salg samtidig.
Få din egen rådgiver gjennom hele kjøps- og salgsprosessen. Det starter med en verdivurdering.
Unngå doble boligrenter
Vi tilbyr gunstig forsikring.
Vurderer du utleie?
Få et tilbud fra Utleie KrogsveenHva koster lånet?
Sjekk estimert lånekostnadVil du varsles om lignende boliger?
Ved å lagre ditt boligsøk hos oss får du beskjed når vi har en bolig som ligner denne, før den legges ut på markedet!
På flyttefot? Slik gjør vi det enklere for deg
Skreddersydd flyttepakke
Vi fikser håndverkere, vask, pakking, lagring og transport, og legger ut for utgiftene underveis.
Hjelp med både kjøp og salg
Hos oss har du din egen rådgiver gjennom hele kjøps- og salgsprosessen.
Hjelp til finansiering
Vårt samarbeid med BN Bank sikrer deg rask og løsningsorientert hjelp, til konkurransedyktige betingelser.

