Nordsetergrenda 1B
9 900 000 kr
105 m²
3 soverom
Komplett salgsoppgave

Nordstrand/Nordseter
Nyoppusset 4-roms leilighet i lekker utførelse! Helhetlig og funksjonell planløsning. Solrik vestvendt terrasse. Garasje
Prisantydning
9 900 000 krAndel fellesgjeld
465 667 krOmkostninger
19 446 krTotalpris
10 385 113 kr
Pris
Bruksareal
110 m²BRA-I (internt bruksareal)
105 m²BRA-E (eksternt bruksareal)
5 m²TBA (terrasse-balkongareal)
23 m²
Areal
Etasje
2Byggeår
1980Soverom
3 soveromBad
2 badType
AndelsleilighetEierform
AndelFasiliteter
Garasje/P-plass og Balkong/TerrasseFellesutgifter
7 864 krEnergimerke
Gul D
Nøkkelinfo
Unngå doble boligrenter
Vi tilbyr gunstig forsikring.
Vurderer du utleie?
Få et tilbud fra Utleie KrogsveenHva koster lånet?
Sjekk estimert lånekostnadBeskrivelse
Kort om eiendommen
Innhold og byggemåte
Innhold og byggemåte
Eiendommen
Nordsetergrenda 1B, 1161 OSLO
Kommunenummer 301, gårdsnummer 157, bruksnummer 633, ideell andel 1/1
Andelsnummer 143, Fjellhytta Borettslag , organisasjonsnummer 948 846 519
Innhold
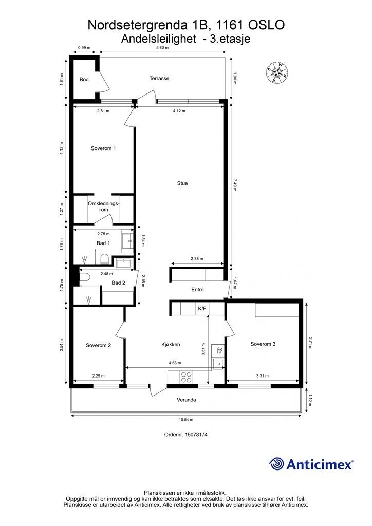
Totalt bruksareal BRA: 110 kvm
BRA-i:
2. etasje 105 kvm: Entré, stue, kjøkken, omkledningsrom, to baderom og tre soverom.
BRA-e:
1. etasje 3 kvm: Bod.
2. etasje 2 kvm: Utvendig bod.
Åpent areal:
2. etasje 11 kvm: Sydvestvendt terrasse.
2. etasje 12 kvm: Nordøstvendt balkong.
Boligen disponerer en bod på 3 kvm i byggets første etasje merket med 2031.
Det gjøres oppmerksom på at boligens eksterne boder tilhører borettslagets fellesareal, og at boden således ikke eies av den enkelte andelseier. Dette medfører at borettslaget i fellesskap beslutter bruken, og at man ikke selv har eierrett og rettsvern for boden. Borettslaget kan ved vedtak beslutte annet bruk av fellesarealet og disponering av bodarealet kan dermed opphøre.
Vedlagte plantegninger er ikke målbare. De oppgitte arealer er hentet fra rapport med befaringsdato 13.01.2026 utført av Anticimex v/Morten Bøhler Hansen. Arealene er beregnet og rom er definert etter dagens faktiske bruk, uavhengig av hva som er godkjent av bygningsmyndighetene.
Byggemåte
Selger har fått utarbeidet en tilstandsrapport, dvs. en teknisk gjennomgang av boligen hvor eventuelle avvik, risiko for kjøper og prisoverslag for hva som bør gjøres av oppgradering, er skissert. Se særskilt TGIU (tilstandsgrad ikke undersøkt), samt TG2 og TG3 som viser hva som er boligens normale slitasje, alder og type, hva som er avvik fra dette og hva som bør/må utbedres. Rapporten og selgers egenerklæring er en del av salgsoppgaven og må leses nøye før bud inngis. Kjøper overtar ansvaret for de opplysninger som fremkommer av salgsdokumentasjonen, og kan ikke gjøre gjeldende som mangel noe som burde vært kjent eller som ikke kan anses å ha betydning for avtalen.
Bygningen er iht. tilstandsrapporten oppført med støpt gulv mot grunn. Grunnmur, bærende konstruksjoner og etasjeskillere av betong med utfyllende bindingsverk av trekonstruksjoner. Fasader utført i liggende trekledning samt malt betong. Tilnærmet flat takkonstruksjon utvendig tekket med takpapp/membran (ikke besiktiget). Leiligheten har glatt entrédør av tre med kikkhull. Brannklasse EI30 og lydklasse 40dB. Balkongdører og vinduer med karmer av tre samt utvendig beslag med tre-lags glass fra 2015.
Det gjøres spesielt oppmerksom på:
Tilstandsgrad 2 (TG2 - vesentlige avvik som følge av alder, slitasje, skader mv. som kan kreve tiltak)
Terrasse:
- Tettesjiktet er vurdert til å ha en høy slitasjegrad/alder, og har behov for fornying. Høy alder har fuktrisiko selv om synlige skader ikke er observert, og ytterligere undersøkelser anbefales.
TGIU (tilstandsgrad ikke undersøkt)
- Det er montert sealingbag som alternativ sikring mot lekkasje på sisterne (ved en evt. lekkasje ledes vannet ut under toalettskålen - i stedet for inn i veggen) og forholdet er ikke videre undersøkt av takstmann.
- På grunn av våtrommets utforming og bruk er det ikke praktisk mulig å gjennomføre hulltaking og fuktmåling på baderom. Hulltaking og fuktmåling i lukkede konstruksjoner er derfor ikke utført. Det ble derimot gjennomført et overflatesøk med fuktindikator, uten at det ble påvist indikasjoner som tyder på fuktskader.
- Avløpsrørene er skjult og eventuell stakeluke er ikke lokalisert.
Øvrige kontrollpunkter er vurdert til TG1 (tilstandsgrad 1 - i orden).
Ovennevnte er kun ment som et utdrag fra vedlagt tilstandsrapport. For fullstendige beskrivelser og forklaringer på tilstandsgradene samt kommentarer ellers utover dette henvises til rapporten.
Sammendrag av selgers egenerklæring
Boligen ble kjøpt/overtatt i 2025.
Selger har ikke bebodd eiendommen og har derfor ikke spesifikk kunnskap om den. Det kan i denne sammenheng eksistere feil og skader på eiendommen som ikke er spesifikt opplyst.
Egenerklæringen følger vedlagt i sin helhet i salgsoppgaven.
Moderniseringer og påkostninger
Nyoppusset leilighet med nye isolerte vegger. Alt av vegger er avrettet, pusset og malt. Nytt bad, bad/vaskerom, kjøkken, rør og el-anlegg i 2025/2026
Standard
Velkommen til Nordsetergrenda 1B – en romslig og gjennomført andelsleilighet med svært attraktiv beliggenhet i et veletablert og idyllisk boligområde på Nordseter/Kastellet. Her bor du tilbaketrukket fra offentlig bilvei, samtidig som du har kort vei til alt du trenger i hverdagen. Beliggenheten er sentral mellom Sæter og Holtet og regnes som et etterspurt område på Nordseter.
Leiligheten ligger i byggets 2. etasje og har en gjennomgående planløsning med rikelig naturlig lys. Alt er nyoppusset i 2025/2026 og fremstår delikat og moderne med gjennomtenkte løsninger. Boligen passer flere målgrupper – enten du er familie, par eller ønsker god plass og høy bokomfort. Leiligheten har et internt bruksareal (BRA-i) på ca. 105 kvm, totalt bruksareal (BRA) på ca. 110 kvm og terrasse- og balkongareal (TBA) på ca. 23 kvm. Her får du tre soverom, to bad/vaskerom, stort kjøkken og stue som er adskilt, men ikke lukket, samt to solrike uteplasser. I tillegg disponerer boligen egen bod og fast biloppstillingsplass i integrert garasjeanlegg, slik at du kan gå tørrskodd direkte til bilen.
ENTRÉ:
Romslig og innbydende entré med flislagt gulv og behagelig gulvvarme. Glatte, malte flater og downlights i himling gir et moderne førsteinntrykk. God plass til oppbevaring i garderobe som medfølger handelen.
Benken med tekstil gir en myk og behagelig sitteopplevelse. Samt tilfører et elegant preg til din entre!
STUE:
Lys og romslig stue med parkett på gulv og store vindusflater som slipper inn rikelig med dagslys. Rommet har god plass til både sofagruppe og spisebord. Stuen har utgang til overbygget terrasse som gir en naturlig forlengelse av oppholdsrommet og fine bruksforhold store deler av året.
KJØKKEN:
Stort og moderne kjøkken fra HTH med tidløst design. Kjøkkenet er utstyrt med integrerte hvitevarer fra Electrolux. Inkludert stekeovn, oppvaskmaskin, induksjonstopp med integrert ventilator samt kjøleskap med frysedel. Benkeplaten fra Caesarstone er laget av naturlig kvarts av høy kvalitet som garanterer styrke og holdbarhet for daglig bruk. Underlimt oppvaskkum med ett-greps armatur. Downlights i himling gir god arbeidsbelysning. Det er montert komfyrvakt og automatisk lekkasjestopper. Utgang til overbygget balkong direkte fra kjøkkenet gir en luftig og praktisk løsning.
SOVEROM I:
Romslig hovedsoverom med god plass til dobbeltseng. Tilknyttet eget walk-in closet som gir rikelig med oppbevaringsplass. Hovedsoverommet har direkte adkomst til eget bad, noe som gir en privat og komfortabel mastersone.
SOVEROM II:
Lyst og rolig soverom som egner seg godt som barnerom, gjesterom eller kontor.
SOVEROM III:
Fleksibelt soverom med garderobeskap. Passer godt som barnerom, gjesterom eller hjemmekontor.
BAD I:
Delikat baderom fra 2025/2026 med flislagt gulv og gulvvarme. Vegger med fliser og glatte, malte flater. Vegghengt baderomsinnredning fra Lind, dusjarmatur fra Tapwell. Lysspeilet fra Nygaard har antidugg. Med touch-bryter kan du enkelt dimme lysstyrken opp og ned. Det nette, stilrene uttrykket kombinert med varmt og behagelig lys gir badet et stort løft.
BAD II / VASKEROM:
Bad/vaskerom fra 2025/2026 med flislagt gulv og gulvvarme. Vegghengt baderomsinnredning fra Lind. Dusj med skyvedør som er en praktisk og elegant løsning. Gir et moderne uttrykk til baderommet. Flott speil fra Nygaard med LED-belysning. Vegghengt toalett med innebygget sisterne. Opplegg for både vaskemaskin og tørketrommel fra Electrolux. Downlights i himling gir jevn og behagelig belysning.
BALKONG OG TERRASSE:
- Overbygget terrasse med adkomst fra stue, på ca. 11 kvm. Terrassen har betongdekke og markise, og gir gode sol- og bruksforhold.
- Overbygget balkong med adkomst fra kjøkken, på ca. 12 kvm, med epoxybehandlet betongdekke.
OPPBEVARING:
- Utvendig bod med adkomst fra terrasse.
- Egen bod i 1. etasje, merket nr. 2031.
- God intern oppbevaring via garderober og walk-in closet.
PARKERING:
- Fast biloppstillingsplass i integrert garasjeanlegg.
- Infrastruktur er lagt til rette slik at andelseiere kan søke styret og etablere egen lader for egen regning. Det er per i dag ikke installert elbillader på medfølgende parkeringsplass.
TEKNISK OG STANDARD:
- En gjennomført og nyoppusset 4-roms med høy kvalitet og lekker utførelse. Helhetlig og funksjonell planløsning.
- Skjult elektrisk anlegg med automatsikringer og samsvarserklæring.
- Rør-i-rør-system for vann.
- Tilknyttet felles varmtvann.
- Takhøyde ca. 2,25–2,35 meter.
- Downlights i alle rom.
- Hvite, slette innerdører.
Løsøre og tilbehør
Vi viser til liste fra Norges Eiendomsmeglerforbund som gjelder fra 01.01.2020 angående løsøre og tilbehør.
- Vaskemaskin og tørketrommel medfølger.
- Hvitevarer på kjøkken medfølger; oppvaskmaskin, stekeovn, platetopp og kjøleskap/fryser.
Oppvarming
Leiligheten er elektrisk oppvarmet med panelovner og varmekabler på begge baderom og i gang.
Dersom beboelsesrom ikke har vegg- eller fastmonterte varmekilder ved visning, følger dette heller ikke med.
Ferdigattest/brukstillatelse
Det foreligger ferdigattest på eiendommen, datert 27.01.1982.
Videre foreligger det ferdigattest på ventilasjonsanlegg datert 17.06.1981, approbasjon (godkjenning) av bod på kjøkkenbalkong datert 18.01.1982, ferdigattest på tak over utvendig trapp datert 23.03.1984, ferdigattest på tilbygg datert 18.11.1988, ferdigattest på utskifting av vindusbånd med panel datert 12.02.2024 og ferdigattest på ombygging av tre inngangspartier datert 13.02.2024.
Disse kan fås ved henvendelse til megler.
Boligens inndeling stemmer overens med godkjente byggetegninger, med unntak av følgende avvik:
- Utformingen på baderommene er endret noe hvor nisjen til servant i baderom II er etablert i det som opprinnelig var en del av baderom I.
- Det er åpnet opp og etablert dusj i baderom II, hvor det opprinnelig var et wc-rom med dør.
Kjøper overtar eiendommen slik den fremstår på visning.
Tinglyste heftelser og rettigheter
Utover andel fellesgjeld overdras leiligheten fri for pengeheftelser.
Borettslaget har legalpant for forfalte felleskostnader og andre krav som følger av borettslagsforholdet iht. burettslagsloven § 5-20. Pantet er begrenset oppad til 2G (G = folketrygdens grunnbeløp).
Det er tinglyst 4 servitutter på borettslagets eiendom. Disse omhandler blant annet bestemele om vei, erklæring/avtale om oppføring av nettstasjon, bestemmelse om adkomstrett og bestemmelse om bebyggelse.
Servituttene vil følge eiendommen. Kjøpers bank vil få prioritet etter ovennevnte heftelser og servitutter.
Eventuell adgang til utleie
Andelseier kan ikke uten samtykke fra styret i borettslaget overlate bruken av boligen til andre. Med samtykke kan andelseier overlate boligen til andre i inntil tre år hvis andelseier har bodd i boligen i minst ett av de to siste år. Utleie i andre tilfeller kan godtas ved særlige grunner, jf. burettslagslova § 5-6. Utleie forutsetter at leiligheten har forsvarlige radonverdier. Se også borettslagets vedtekter og konferer megler ved spørsmål.
Beliggenhet og tomteforhold
Beliggenhet og tomteforhold
Beliggenhet
Attraktiv og god intern beliggenhet på Nordseter, godt tilbaketrukket og skjermet for trafikk. Leiligheten ligger høyt og fritt, uten gjenboere, og med stor vestvendt terrasse med utsikt.
Her bor du med hyggelige, opparbeidede fellesarealer og omkringliggende friområder. Feltet består hovedsakelig av blandet rekkehus- og lavblokkbebyggelse i tillegg til omkringliggende villa- og småhusbebyggelse. Nordsetergrenda er en liten gangvei som er fri for biltrafikk.
Til tross for sin trafikkskjermede beliggenhet, er det umiddelbar nærhet til bl.a. nærbutikk og kollektivtransport. Rett utenfor døren finner du den lokale matbutikken Spar, mens det kun er ca. 1 minutt å gå til bussholdeplassen med den lokale ringbussen som går i en sløyfe mellom Kastellet, Lambertseter og Sæter. Det er også kun noen få minutter å gå til trikkeholdeplassen på Kastellet med rute 13 og 19 til hhv. Bekkestua og Majorstuen, begge via Oslo sentrum. (Se ruter.no for mer informasjon).
Boligen ligger heller ikke langt unna de tre lokale handelssentrene i bydelen, Sæter, Holtet og Lambertseter. Sæter har et bredt tilbud av caféer, spisesteder og butikker, mens Holtet har bl.a. den populære delikatessebutikken Jacobs. På Lambertseter Senter finner du, ved siden av et stort utvalg av butikker og spisesteder, bl.a. Deichmanske bibliotek, Vinmonopolet og Symra Kino.
Et rikt fritidstilbud i nærmiljøet, med bl.a. umiddelbar nærhet til friområder som gir gode leke- og rekreasjonsmuligheter. I retning sentrum ligger Ekebergsletta med flotte turområder sommer som vinter, lysløype, idrettsanlegg, minigolfbane, ridesenter, husdyrpark, store friområder, Ekebergrestauranten m.m. Nærhet også til flere badeplasser langs fjorden og flotte turmuligheter i Østmarka.
Et mangfold av tilbud i lokale idrettslag og foreninger, som f.eks.:
Nordstrand IF på 'Niffen' med nyere håndballhall og fotballbane med kunstgress. NIF har et stort miljø for håndball og fotball for barn i alle aldre.
Nordstrand tennisklubb (NTK) med uteanlegg i Seterveien og tennishall ved Nordseter skole i Ekebergveien.
Bækkelaget Sportsklub (BSK) - håndball, fotball, ski m.m. Anlegg på sportsplassen samt Ekeberghallen.
Lambertseter idrettsforening med flott friidrettsanlegg og fotballbaner, samt svømmehall.
Områdets lokale alpinbakke, Sloreåsen.
Treningsstudio: BestHelse på Holtet, Evo på Sæter og Sats på Lambertseter.
Adkomst
Det vil bli skiltet med Krogsveen visningsskilt ved fellesvisninger.
Barnehager, skoler og fritid
Nordsetergrenda 1B sogner til Nordseter barne- og ungdomsskole. Bilfri skolevei. Flere barnehager i nærområdet.
Informasjon om tilhørende skolekretser er hentet fra Prognosesenteret som dataleverandør og tilhørigheten kan årlig endres av kommunen. Dersom skole- og barnehagetilbud er av betydning for kjøpet, ber vi om at det rettes en særskilt henvendelse til kommunen/bydelsadministrasjonen for oppdatert informasjon.
Beskrivelse av tomt
Eiet tomt på 28.219 kvm som tilhører borettslaget. Store fellesarealer som er pent opparbeidet med gressplen, beplantning og lekeplasser, samt asfalterte adkomstveier. Bygningene er satt opp på det som tidligere var jordene til Nordseter gård med store friområder med både gressplener og Nordseterskogen rett i nærheten.
Parkering
Leiligheten disponerer en garasjeplass i felles, lukket anlegg med automatisk portåpner. Plassen er merket nr. 2031. Innkjøring til garasjeanlegget fra Lambertseterveien. Det er ikke installert elbillader på medfølgende garasjeplass. Infrastruktur ligger til rette for at andelseiere kan søke styret og sette opp elbillader på egen plass, for egen regning.
Garasjeplassene følger leilighetene og kan ikke omsettes fritt. De kan dog leies ut til andre andelseiere i borettslaget.
Gjesteparkeringsplasser på oppmerkede plasser på borettslagets eiendom.
Borettslaget har i tillegg 5 garasjeplasser de leier ut etter venteliste.
For øvrig gateparkering etter gjeldende bestemmelser.
Vei, vann og avløp
Eiendommen har adkomst via kommunal vei (Lambertseterveien) og via private internveier på borettslagets eendom med felles vedlikeholdsansvar for borettslaget.
Eiendommen er tilknyttet kommunalt ledningsnett via private stikkledninger.
Borettslaget er ansvarlig for private stikkledninger til bygningen.
Regulerings-og arealplaner
Eiendommen er regulert til bolig med tilhørende anlegg i henhold til reguleringsplan V231205 datert 23.12.2005, med tilhørende reguleringsbestemmelser S-2161 datert 23.12.2005.
Utsnitt av plan med tilhørende bestemmelser kan fås ved henvendelse til megler.
Økonomi
Økonomi
Boligens kostnader
Felleskostnadene er kr 7 863,94,- pr. mnd. og inkluderer varmtvann, fibernett, trappevask, renter og avdrag andel fellesgjeld, kommunale avgifter, felles bygningsforsikring, styrehonorar, forretningsførsel, revisjon m.m.
Herav:
Felleskostnader kr 4 573,94,-
Trappevask kr 96,-
Kapitalkostnader lån I kr 1 660,12,-
Kapitalkostnader lån II kr 1 533,88,-
Felleskostnadene justeres normalt en til to ganger årlig i forhold til borettslagets faktiske utgifter og ble sist justert med 3% fra og med 01.01.2026. Det gjøres for øvrig oppmerksom på at fellesutgiftene kan øke ved rentehevinger på fellesgjelden o.l.
Boligen er tilknyttet fiber via Global Connect AS. Grunnpakke er inkludert i felleskostnadene. Dekoder medfølger, men ny eier må ta kontakt med leverandør før oppkobling.
Ønsker man tv-kanaler kan dette bestilles til egne priser hos RiksTV.
I månedene mai, juni, september og november påløper det eiendomsskatt med kr 132,-. Dette trekkes av felleskostnadene, og fremkommer som egen kategori i disse månedene.
Selger har ikke bebodd eiendommen og har således ikke kjennskap til øvrige løpende utgifter for eiendommen.
Kjøper må selv tegne innboforsikring.
Formuesverdi
Ved hjelp av skatteetatens boligkalkulator er boligens formuesverdi beregnet til kr 1 838 221,- for fjoråret når boligen benyttes som primærbolig.
Formuesverdien er en gitt prosent av den beregnede markedsverdien. Beregnet markedsverdi er basert på Statistisk sentralbyrå (SSB) sine opplysninger om omsatte boliger. I beregningen tas det hensyn til boligens beliggenhet, areal, byggeår og boligtype.
Det er eier av boligen som fastsetter formuesverdien, jf. skatteforvaltningsloven § 9-1 første ledd, men skattemyndighetene kan kontrollere at verdien er satt riktig.
Formuesverdi skal ikke overstige:
Primærbolig: 25 % av beregnet eller dokumentert markedsverdi opp til kr. 10 000 000, og deretter 70 % av den overskytende markedsverdi.
Sekundærbolig: 100 % av beregnet eller dokumentert markedsverdi.
Formuesverdier som overstiger disse grensene, kan kreves nedjustert av eier.
Fra 2026 har Stortinget vedtatt en oppdatert modell for beregning av formuesverdi for primærbolig, så avvik kan forekomme.
For mer informasjon se skatteetaten.no
Opplysninger om fellesgjeld
Andel formue er kr 30 579,- pr. 31.12.2024
Andel fellesgjeld er kr 465 667,- pr. 07.01.2026
Total fellesgjeld for boligselskapet er kr 77 075 332,- pr. 07.01.2026 og lånevilkårene er:
Lån I:
Lånenummer: 98207833843, OBOS Boligkreditt AS
Rentesats per 07.01.2026: Flytende, 4,99% pa.
Avdragsfrihet: Nei
Saldo: 32 888 567,-
Andel av saldo: 198 722,26,-
Siste termin: 30.10.2039
Lån II:
Lånenummer: 12132387395, DNB Bank ASA
Rentesats per 07.01.2026: Flytende, 4,99% pa.
Avdragsfrihet: Nei
Saldo: 44 186 765,-
Andel av saldo: 266 945,12,-
Siste termin: 30.10.2051
Borettslaget har ikke tilrettelagt for individuell nedbetaling av andel fellesgjeld.
Omkostninger
9 900 000,00 Prisantydning
465 667,00 Andel av fellesgjeld
--------------------------------------------------------
10 365 667,00 Pris inkl. fellesgjeld
Omkostninger
8 406,00 Forkjøpsrett - forhåndsutlyst (kjøper)
9 950,00 Gjensidige Boligkjøperpakke (valgfri)
545,00 Tinglysing hjemmel
545,00 Tinglysing panterettsdokument
--------------------------------------------------------
19 446,00 Omkostninger totalt
--------------------------------------------------------
10 385 113,00 Totalpris inkl. omkostninger
--------------------------------------------------------
Dersom kjøper ikke er medlem av boligbyggelaget, må det påregnes en innmeldingsavgift og årlig medlemsgebyr pr. ny andelseier. Dette faktureres direkte fra boligbyggelaget.
Dersom borettslaget har fellesgjeld, vil leilighetens andel av fellesgjelden komme i tillegg til kjøpesummen. Denne gjelden skal ikke innbetales i oppgjøret, men følger leiligheten.
Det tas forbehold om endringer i avgifter og gebyrer.
Tilbud om lånefinansiering
Megler formidler gjerne kontakt med rådgiver hos vår samarbeidspartner BN Bank. De har konkurransedyktige betingelser samt rask og løsningsorientert behandling av din lånesøknad. Krogsveen mottar et honorar dersom lån opprettes.
Betalingsbetingelser
Kjøpesum inkludert omkostninger, samt pantedokument tilknyttet eventuelt lån, skal være disponibelt hos megler 2 virkedager før overtagelsen.
Annen viktig informasjon
Annen viktig informasjon
Eier
Per Christian Grønntun Asplund og Hanne Christin Grønntun Asplund
Informasjon om borettslaget
Boligen er tilknyttet Fjellhytta Borettslag.
Borettslaget består av 198 leiligheter.
Borettslaget har tradisjon for hyggelige sosiale sammenkomster som julegrantenning, juletrefest og sommerfest.
Forretningsfører er OBOS, tlf. 22 86 55 00.
Forsikret i Tryg Forsikring med polisenr. 6596600.
Dugnad må påregnes.
Dyrehold er ikke tillatt. Dette gjelder likevel ikke dersom gode grunner taler for dyreholdet og det ikke er til ulempe for de øvrige brukerne av eiendommen. Søknad om dyrehold må da evt. sendes styret, og det er flere bestemmelser knyttet til dyreholdet i husordensreglene. Flere beboere i borettslaget har husdyr.
Boligen har tilgang til fellesvaskeri i borettslaget (i Nordstergrenda 1) med to industrimaskiner, tørketrommel og stort tørkerom.
Foretatt påkostninger de senere år:
2023:
Ombygging av inngangspartiene (12 stk.) i terrasseblokkene. Nye bærekonstruksjoner i stål og tre uten midtsøyle. Ny takpapp, takbeslag og nedløp. Himling med steni-plater, trespiler og LED-lysstriper. Nye sidevegger med utvendig trepanel og innvendige steinplater og spilekledning som i himling. Nye sidevinduer i frostet pleksiglass. Maling av dører til avfallsrom. Nye, høyisolerte inngangsdører i terrasseblokkene (12 stk.) i aluminium med glassfelt. Nye ringetablåer og porttelefoner. Ny, brikkestyrt låsautomatikk.
2022:
Ny plass for pappcontainer til rekkehusene. Fortsettelse av rehabilitering med terrasseblokker. Bytting av materialer på lekeplasser.
2021:
Påbegynt rehabilitering av borettslaget. Ny asfalt i garasjen. Seks nye boder i Ngr 10A (nedlagt vaskeri). Nytt takbelegg og blikk/nedløp på rekkehusene. Nytt panel, takbelegg og blikk/nedløp på utebod og søppeldør til rekkehusene.
2019:
Rehabilitering av terrasseblokkenes østside, tilsvarende rehabiliteringen som ble gjort av vestsiden i 2014-2016. I tillegg er fasadene beiset. Det er blitt gjort vedlikehold og reparasjoner av lekeplasser, samt styringsmotorer til ventilasjon.
2017:
Ladestasjoner for el- og hybrid biler installert i garasjeanlegget. Infrastruktur ligger til rette for at andelseiere kan søke styret og sette opp ladepunkt til avtalt pris. Styringsskap for ventilasjon i Ngr 15 er byttet.
2014-2016:
Terrasseblokkene ble pusset opp utvendig med rehabilitert betong, nytt katodisk anlegg, ny isolasjon og kledning på vestvegger, nye vinduer og terrassedører. Ny branndør i garasjen som fører opp til Nordsetergrenda 15. Nye utelys er montert ute over garasjeporten og mot lille gjesteparkering. Lagt nye kabler for internett og tv. Periodisk kontroll av lekeplasser.
Planlagte påkostninger:
Sikringsordning:
For å dekke eventuell manglende innbetaling av fellesutgifter fra øvrige andelseiere, er borettslaget tilknyttet et sikringsfond gjennom OBOS. Dette innebærer at OBOS innbetaler samtlige felleskostnader til borettslaget hver måned og dermed overtar ansvar og risiko for eventuell inndrivelse av utestående fellesutgifter. Avtalen om sikringsfond gjennom OBOS er gyldig til den sies opp av en av partene. Oppsigelsesfrist er 12 måneder.
Øvrige andelseiere i borettslaget og eventuelt medlemmer av boligbyggelaget har forkjøpsrett. Dersom boligen tas på forkjøpsrett løses kjøper fra avtalen.
Styregodkjenning:
I henhold til borettslagets vedtekter må kjøper godkjennes av styret som ny andelseier. Det er kjøpers ansvar at styregodkjenning blir gitt, men styret kan ikke nekte godkjenning uten saklig grunn. Iht. burettslagslova kan man bare eie en andel i borettslaget. Kun fysiske personer kan være andelseiere.
Dokumenter for borettslaget kan fås ved henvendelse til megler.
Overtakelse
Etter nærmere avtale. Overtakelse kan tidligst skje etter at forkjøpsretten for øvrige andelseiere i borettslaget og eventuelt medlemmer av boligbyggelaget er avklart, samt at styrets godkjennelse er avklart.
Boligselgerforsikring
Det gjøres oppmerksom på at selger ikke har tegnet boligselgerforsikring som dekker selgers ansvar etter avhendingsloven. Likevel foreligger selgers egenerklæring og godkjent tilstandsrapport som interessenter må sette seg inn i før bud inngis. Eventuelle reklamasjoner må rettes direkte til selger.
Boligkjøperforsikring
Innen kontraktsmøtet må kjøper ta stilling til om det ønskes å bestille Boligkjøperpakken gjennom Gjensidige. I denne gunstige pakken er boligen ferdig forsikret og inkluderer rettshjelpsforsikring, også kalt Boligkjøperforsikring. Rettshjelpsforsikring gir trygghet og tilgang på profesjonell juridisk hjelp dersom det oppdages uventede feil eller mangler det første året etter overtagelse. Forsikringsselskapet behandler i så fall ethvert mangelskrav kjøper måtte ha overfor selger.
Boligkjøperpakken inkluderer bygningsforsikring for hus og hytte, innboforsikring, flytteforsikring og dobbel rentedekning - i situasjoner hvor kjøper ikke får solgt nåværende primærbolig.
Kjøper mottar ingen særskilt faktura for Boligkjøperpakken da kostnaden det første året legges til kjøpesummen for boligen. Det gjøres oppmerksom på Krogsveen mottar et honorar for denne formidlingen.
Produktark for Boligkjøperpakken ligger vedlagt i salgsoppgaven.
Dersom ikke boligkjøperpakke ønskes kan kun rettshjelpsforsikring, også kalt boligkjøperforsikring, tegnes særskilt via megler. Rettshjelpsforsikringen varer i 5 år fra overtagelse og leveres gjennom Gjensidige. Ta kontakt med megler for ytterligere informasjon.
Selskap og privatpersoner som driver med kjøp/salg/utvikling som ledd i egen næringsvirksomhet kan ikke tegne boligkjøperpakke eller rettshjelpsforsikring.
Budgivning
Forbrukerinformasjon om budgivning er vedlagt denne salgsoppgaven og er også på vår hjemmeside Krogsveen.no. Alle bud og budforhøyelser må inngis skriftlig. I tillegg må legitimasjon være fremlagt sammen med signatur fra budgiver.
Vi oppfordrer til å gi bud elektronisk via GI BUD-knappen på eiendommens hjemmeside på Krogsveen.no. Da vil samtlige vilkår bli oppfylt.
Eventuelle forhøyelser eller endringer av budet kan bekreftes pr SMS eller på e-post. Vi oppfordrer alltid til å kontakte megler pr. telefon i tillegg da forsinkelser i SMS og e-post kan forekomme.
For at budene skal kunne bli behandlet og videreformidlet skriftlig til alle involverte parter, må alle bud ha en tilstrekkelig lang akseptfrist, jf. eiendomsmeglingsforskriften § 6-3.
Selger må også skriftlig akseptere budet før aksept kan formidles til budgiver. Akseptfrist bør derfor være på minimum 30 minutter, og budforhøyelser må derfor skje i god tid før fristens utløp.
Bud i forbrukerforhold kan uansett ikke settes med kortere frist enn kl. 12.00 første virkedag etter siste annonserte visning. I tillegg kan ikke budet ha forbehold om at det skal holdes hemmelig ovenfor øvrige interessenter. Megler har iht lov om eiendomsmegling ikke anledning til å videreformidle disse budene, og de vil dermed heller ikke bli journalført.
Etter at eiendommen er solgt vil kjøper og selger få tilsendt budjournal. Øvrige budgivere kan få utlevert kopi av budjournalen i anonymisert form.
Hvitvaskingsreglene
I henhold til lov om hvitvasking og terrorfinansiering har megler plikt til å gjennomføre kontrolltiltak overfor kunder, herunder fullmektiger. Dette innebærer bl.a. å bekrefte kunders og reelle rettighetshaveres identitet på bakgrunn av fremvist gyldig legitimasjon eller på annen godkjent måte, samt å innhente opplysninger om kundeforholdets formål og tilsiktede art.
Dersom slike kundetiltak ikke kan gjennomføres, kan megler ikke etablere kundeforholdet eller utføre transaksjonen.
Hvis kjøper ikke bidrar til gjennomføring av kundekontrollen og dette fører til at transaksjonen blir forsinket eller ikke kan gjennomføres, vil dette ansees som mislighold av avtalen og gi selger rettigheter etter avhendingslova kapittel 5. I tilfeller der selger ikke bidrar til gjennomføring av løpende kundekontroll underveis i oppdraget, er det selger som misligholder sine forpliktelser etter avtalen og gi kjøper rettigheter etter avhendingslovens kapittel 4. Partene er selv ansvarlige for eventuelle kostnader og ansvar dette kan medføre. Eiendomsmegleren eller eiendomsmeglingsforetaket kan ikke holdes ansvarlig for de konsekvenser dette vil kunne få for partene eller andre som har interesser i eiendomshandelen.
Kjøper oppfordres til å innbetale kjøpesummen som ikke kommer fra låneinstitusjon i én samlet innbetaling fra egen konto i norsk bank. Megler har plikt til å melde fra til Økokrim om eiendomshandler som fremstår som mistenkelige. Melding sendes Økokrim uten at partene varsles.
Personopplysningsloven
I henhold til personopplysningsloven gjør vi oppmerksom på at interessenter kan bli registrert for videre oppfølging.
Lovanvendelse
Generelle bestemmelser
Salgsoppgaven er basert på de opplysningene selger har gitt til megler, den bygningssakyndiges tilstandsrapport, samt opplysninger innhentet fra kommunen, Kartverket og andre tilgjengelige kilder. Det er viktig at kjøper setter seg grundig inn i alle salgsdokumentene, herunder salgsoppgave, tilstandsrapport og selgers egenerklæring. Kjøper anses kjent med forhold som er tydelig beskrevet i salgsdokumentene, og slike forhold kan ikke påberopes som mangler. Dette gjelder uavhengig av om kjøper har lest dokumentene. Alle interessenter oppfordres til å undersøke eiendommen nøye, gjerne sammen med fagkyndig før bud inngis. Kjøper som velger å kjøpe usett kan ikke gjøre gjeldende som mangel noe han burde blitt kjent med ved undersøkelsen.
Dersom det er behov for avklaringer, anbefaler vi at interessenter rådfører seg med eiendomsmegler eller egne rådgivere før det legges inn bud.
En bolig som har blitt brukt i en viss tid, har vanligvis blitt utsatt for slitasje og skader kan ha oppstått. Slik bruksslitasje må kjøper regne med, og det kan avdekkes enkelte forhold etter overtakelse som nødvendiggjør utbedringer. Normal slitasje og skader som nødvendiggjør utbedring, er innenfor hva kjøper må forvente og vil ikke utgjøre en mangel.
Kjøper og selgers rettigheter og plikter reguleres av avtalen mellom partene, samt informasjonen som har vært tilgjengelig for kjøperen i forbindelse med handelen. Avtalen utfylles av avhendingsloven, og det gjelder ulike avtalevilkår avhengig av om kjøper er forbrukerkjøper eller ikke. Dette er nærmere beskrevet nedenfor.
På grunn av ulike avtalevilkår kan selger vurdere bud fra en som ikke er forbruker, ulikt fra en forbrukers bud. Dersom kjøper ikke er forbruker, er selger sitt mulige mangelsansvar begrenset fordi eiendommen selges "som den er". Selger kan ikke ta «som den er»- forbehold overfor en forbrukerkjøper. Selv et lavere bud fra en som ikke er forbruker kan foretrekkes fordi begrensningen i mulig mangelsansvar kan ha egenverdi for selger. Selger står fritt til å forkaste eller akseptere ethvert bud, og er for eksempel ikke forpliktet til å akseptere høyeste bud.
Budgiver skal i budskjema avgi egenerklæring om budgiver er forbruker eller næringsdrivende/ person som hovedsakelig handler som ledd i næringsvirksomhet. Budgivere får informasjon dersom andre bud er inngitt av en som ikke er forbruker.
Forbrukerkjøp - definisjon
Med forbrukerkjøp menes kjøp av eiendom når kjøperen er en fysisk person som ikke hovedsakelig handler som ledd i næringsvirksomhet.
Forbruker – avtalevilkår
Eiendommen har en mangel dersom den ikke er i samsvar med kravene som følger av avtalen, eller det foreligger brudd på bestemmelsene i avhendingsloven §§ 3-2 til 3-8. Hvis eiendommen ikke er i samsvar med det kjøperen må kunne forvente ut ifra alder, type og synlig tilstand, kan det være grunnlag for mangelskrav. Det samme gjelder hvis det er holdt tilbake eller gitt uriktige opplysninger om eiendommen. Dette gjelder likevel bare dersom man kan gå ut ifra at det virket inn på avtalen at opplysningen ikke ble gitt eller at mangelskravet ikke blir rettet i tide på en tydelig måte.
Boligen kan ha en mangel etter avhendingsloven § 3-3 andre ledd, dersom det er avvik mellom opplyst og faktisk innvendig areal, forutsatt at avviket er på 2% eller mer og minimum 1 kvm.
Ved beregning av et eventuelt prisavslag eller erstatning må kjøper selv dekke tap/kostnader opptil et beløp på kr 10 000 (egenandel).
Ikke-forbruker (næringsdrivende) – definisjon
Hvis kjøper er en juridisk person, eller en fysisk person som hovedsakelig handler som ledd i næringsvirksomhet, vil kjøpet ikke anses som et forbrukerkjøp.
Ikke-forbruker – avtalevilkår
Eiendommen har en mangel dersom den ikke er i samsvar med kravene som følger av avtalen.
Eiendommen selges «som den er», og selgers ansvar utover det konkret avtalte er da begrenset etter avhendingsloven § 3-9, første ledd andre setning.
Avhendingsloven § 3-3 andre ledd fravikes, og hvorvidt boligens arealsvikt utgjør en mangel vurderes etter avhendingsloven § 3-8.
Informasjon om kjøpers undersøkelsesplikt, herunder oppfordringen om å undersøke eiendommen nøye, gjelder også for kjøpere som ikke anses som forbrukere.
Det forutsettes at hjemmel overføres til kjøper. Hvis kjøper ikke ønsker hjemmelsoverføring av eiendommen, må det tas forbehold om dette i budet.
Meglers vederlag
Meglers vederlag betales av selger og er avtalt til:
Vederlag: 0,80 % av salgssummen inkl. eventuell fellesgjeld.
Vederlag:
Kontroll av hjemmel og heftelser kr 2 900,-
Markedsføringspakke kr 30 900,-
Oppgjør kr 7 500,-
Tilrettelegging kr 17 000,-
Visninger pr stk / Overtagelse kr 4 000,-
Utlegg:
Eierskiftegebyr forretningsfører - OBOS kr 6 570,-
Innhenting av informasjon forretningsfører kr 4 000,-
Tinglysing sikring kr 545,-
Andre utgifter:
AX tilstandsrapport leilighet - evt. boligselgerforsikring kommer i tillegg kr 10 750,-
Foto - Stor leilighet/rekkehus/enebolig m/collage Lasse Lerdahl kr 8 750,-
Vi er opptatt av verdiskapning, og har knyttet til oss samarbeidspartnere som skal sikre våre kunder de beste produkter og tjenester;
• I forbindelse med forberedelse av salget, innhenter vi informasjon om eiendommen hovedsakelig fra vår samarbeidspartner Amibita.
• Gjensidige leverer boligselgerforsikring og tilbyr bygningsforsikring
• Boligkjøperforsikring leveres av Hiscox og med Sedgwick som skadebehandler, og er formidlet gjennom Gjensidige.
• BN bank tilbyr finansieringsløsninger
• Vår avdeling Krogsveen Pluss tilbyr flyttetjenester som utvask, visningsvask, lager, tømming og transport av flyttelass, i tillegg til å formidle kontakt med Flip for overflateoppussing.
• I forbindelse med overtagelse av eiendommen tilbyr Overo avtale om strøm, alarm og bredbånd.
• Krogsveen er, sammen med øvrige bransjeaktører, medeier i Bomega AS som tilbyr den digitale annonseringsplattformen Hjem.
Opplysninger om oppdraget
Oppdragsnummer 39-0002/26
Eiendomsmegler Krogsveen AS, avd. Årvoll
Lofthusveien 66, 0588, OSLO
950 007 613
Oppdragets KR-kode KR39.262
Dato
Sist oppdatert: 30. januar 2026 kl. 12:29
Dokumenter
Dokumenter
PDF – 1011 KB
PDF – 439 KB
PDF – 138 KB
PDF – 312 KB
PDF – 29 KB
PDF – 127 KB
PDF – 392 KB
Område
Legg til steder som er viktige for deg
Visning
For å delta på visning, ber vi om at du melder deg på. Da sikrer vi at du får nødvendig informasjon og at det er satt av tilstrekkelig med tid. Kontakt megler dersom annet tidspunkt ønskes. Husk å lese salgsoppgaven før visningen, så du stiller forberedt.
Ønsker du kun å bli holdt orientert, kan du fra eiendommens hjemmeside få varsel om solgtpris, eller kontakte megler.
Lurer du på noe?
Unngå doble boligrenter
Vi tilbyr gunstig forsikring.
Vurderer du utleie?
Få et tilbud fra Utleie KrogsveenHva koster lånet?
Sjekk estimert lånekostnadVil du varsles om lignende boliger?
Ved å lagre ditt boligsøk hos oss får du beskjed når vi har en bolig som ligner denne, før den legges ut på markedet!

