Wilbergjordet 5Q
3 790 000 kr
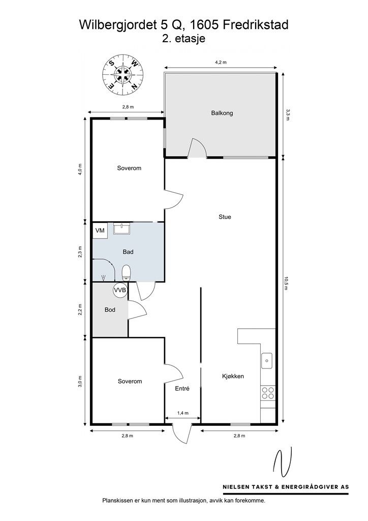
80 m²
2 soverom
Solgt
Lys 3-roms leilighet fra 2005 med romslig balkong, gasspeis, parkeringsplass i garasje og heis i bygget.
Prisantydning
3 790 000 krOmkostninger
95 840 krTotalpris
3 885 840 kr
Pris
Bruksareal
85 m²BRA-I (internt bruksareal)
80 m²BRA-E (eksternt bruksareal)
5 m²TBA (terrasse-balkongareal)
14 m²
Areal
Etasje
2Byggeår
2005Soverom
2 soveromBad
1 badType
EierleilighetEierform
EierseksjonFasiliteter
Garasje/P-plass og Balkong/TerrasseFellesutgifter
4 801 krEnergimerke
Rød D
Nøkkelinfo
Unngå doble boligrenter
Vi tilbyr gunstig forsikring.
Vurderer du utleie?
Få et tilbud fra Utleie KrogsveenHva koster lånet?
Sjekk estimert lånekostnadBeskrivelse
Kort om eiendommen
Lys og vedlikeholdt leilighet fra 2005 med stor sørvestvendt balkong og gasspeis
Velholdt standard fra 2005, samt heis i bygget
Parkeringsplass i felles garasjeanlegg
Sørvestvendt balkong på ca. 14 m² med gode solforhold
Åpen og lys stue- og kjøkkenløsning
Integrert kjøkken med platetopp, ovn og oppvaskmaskin
Parkett i oppholdsrom, lyse overflater
Flislagt bad med gulvvarme og vaskemaskinopplegg
Gasspeis gir ekstra varme og stemning
Romslig uteplass egnet til spiseplass og avslapning
Bod i felles kjelleranlegg
Mulighet for å sitte sitt preg på overflater, passer de som vil ha praktisk bolig
Område
Legg til steder som er viktige for deg
På flyttefot? Tenk kjøp og salg samtidig.
Få din egen rådgiver gjennom hele kjøps- og salgsprosessen. Det starter med en verdivurdering.
Unngå doble boligrenter
Vi tilbyr gunstig forsikring.
Vurderer du utleie?
Få et tilbud fra Utleie KrogsveenHva koster lånet?
Sjekk estimert lånekostnadVil du varsles om lignende boliger?
Ved å lagre ditt boligsøk hos oss får du beskjed når vi har en bolig som ligner denne, før den legges ut på markedet!
På flyttefot? Slik gjør vi det enklere for deg
Skreddersydd flyttepakke
Vi fikser håndverkere, vask, pakking, lagring og transport, og legger ut for utgiftene underveis.
Hjelp med både kjøp og salg
Hos oss har du din egen rådgiver gjennom hele kjøps- og salgsprosessen.
Hjelp til finansiering
Vårt samarbeid med BN Bank sikrer deg rask og løsningsorientert hjelp, til konkurransedyktige betingelser.




