Bøkkerveien 16A
3 255 000 kr
42 m²
1 soverom
Solgt
Krydderhagen/Løren
Lys & moderne 2-roms med solrik balkong og heis. Varmtv. og fyring ink. IN-ordning, lave omk. & ingen forkjøpsrett.
Prisantydning
3 255 000 krAndel fellesgjeld
1 461 362 krOmkostninger
11 040 krTotalpris
4 727 402 kr
Pris
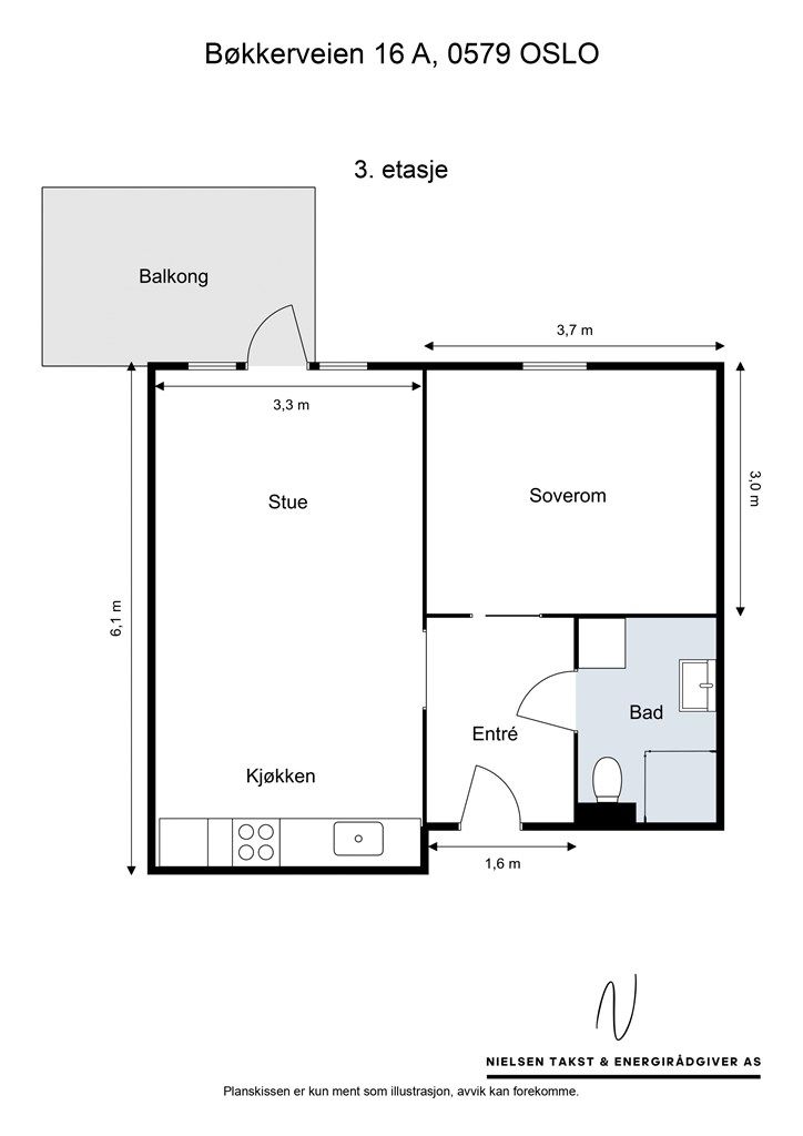
Bruksareal
50 m²BRA-I (internt bruksareal)
42 m²BRA-E (eksternt bruksareal)
8 m²TBA (terrasse-balkongareal)
7 m²
Areal
Etasje
3Byggeår
2018Soverom
1 soveromBad
1 badType
AndelsleilighetEierform
AndelFasiliteter
Garasje/P-plass, Heis og Balkong/TerrasseFellesutgifter
11 263 krEnergimerke
Grønn B
Nøkkelinfo
Unngå doble boligrenter
Vi tilbyr gunstig forsikring.
Vurderer du utleie?
Få et tilbud fra Utleie KrogsveenHva koster lånet?
Sjekk estimert lånekostnadDette liker selger best ved boligen
Leiligheten har et stille uteområde med utsyn mot bakgården, og er rett ved siden av vinslottet. Det er ingen vegg-i-vegg-naboer, så det føles stille og privat. Det finnes også et stort rom til oppbevaring av sykler med heis i umiddelbar nærhet. I tillegg har du egen dør med nøkkelbrikke til bodene, så det er både enkelt og trygt å komme til.
Beskrivelse
Kort om eiendommen
Krogsveen v/Morten Frølich har gleden av å presentere denne tiltalende og attraktive 2-roms andelsleiligheten i populære Krydderhagen borettslag. Boligen har en herlig balkong på 7 kvm der årets varme dager kan nytes. Leiligheten har en svært god standard med TG 1/0 på omtrent alle punkter i tilstandsrapporten. Her bor du omringet av grønne, frodige fellesområder og stilig arkitektur.
Kvaliteter:
Bygg fra 2018
God planløsning
A-konto fjernvarme, fibernett og kabel-tv inkl.
Sydøstvendt balkong på 7 kvm.
Ingen forkjøpsrett eller dok.avgift
IN-ordning - felleskost. på kr 2 512,-
God oppbevaringsplass i kjellerbod
Tilgang til takterrasse
Koselige uteområder rundt leiligheten
Nærhet til servicetilbud og offentlig kommunikasjon
Område
Legg til steder som er viktige for deg
På flyttefot? Tenk kjøp og salg samtidig.
Få din egen rådgiver gjennom hele kjøps- og salgsprosessen. Det starter med en verdivurdering.
Unngå doble boligrenter
Vi tilbyr gunstig forsikring.
Vurderer du utleie?
Få et tilbud fra Utleie KrogsveenHva koster lånet?
Sjekk estimert lånekostnadVil du varsles om lignende boliger?
Ved å lagre ditt boligsøk hos oss får du beskjed når vi har en bolig som ligner denne, før den legges ut på markedet!
På flyttefot? Slik gjør vi det enklere for deg
Skreddersydd flyttepakke
Vi fikser håndverkere, vask, pakking, lagring og transport, og legger ut for utgiftene underveis.
Hjelp med både kjøp og salg
Hos oss har du din egen rådgiver gjennom hele kjøps- og salgsprosessen.
Hjelp til finansiering
Vårt samarbeid med BN Bank sikrer deg rask og løsningsorientert hjelp, til konkurransedyktige betingelser.




