Eplehagen 11
10 000 000 kr
215 m²
3 soverom
Solgt

Ski
Enebolig sentralt i Ski med nærhet til alt. Tilbaketrukket og usjenert med flott hage. Vesentlig oppgradert eiendom.
Prisantydning
10 000 000 krOmkostninger
269 900 krTotalpris
10 269 900 kr
Pris
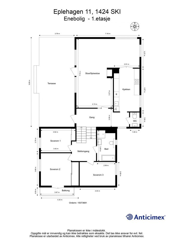
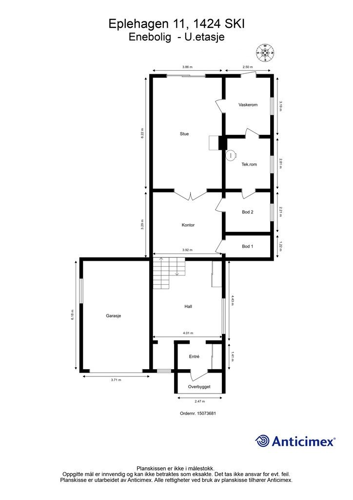
Bruksareal
248 m²BRA-I (internt bruksareal)
215 m²BRA-E (eksternt bruksareal)
33 m²TBA (terrasse-balkongareal)
52 m²
Areal
Etasje
2Byggeår
1970Soverom
3 soveromBad
1 badTomteareal
990 m² (eiet)Type
Enebolig - FrittliggendeEierform
EietFasiliteter
Garasje/P-plass og Balkong/TerrasseEnergimerke
Gul F
Nøkkelinfo
Unngå doble boligrenter
Vi tilbyr gunstig forsikring.
Vurderer du utleie?
Få et tilbud fra Utleie KrogsveenHva koster lånet?
Sjekk estimert lånekostnadBeskrivelse
Kort om eiendommen
- Sentral beliggenhet med kort gangavstand til sentrum.
- Flere barnehager, Ski barneskole, nye Magasinparken ungdomsskole og Ski videregående skole innenfor gangavstand.
- Fra sentrum kan du bruke Follobanen som har 6 avganger i timen og bruker 12 minutter til Oslo S.
- Eiendommen er vesentlig oppgradert de senere år.
- Vannbåren gulvvarme i beboelsesrom i underetasjen, samt bad 1. etasje via luft til vann varmepumpe. Det er også radiatorer.
- Nytt lekkert bad i 2020 med både dusj og badekar.
- Nytt HTH-kjøkken med integrerte hvitevarer og benkeplate av komposittstein i 2021.
- Nytt sikringsskap i 2021. Ellers mye annet nytt elektrisk.
- Ny drenering i 2020, med unntak av ca fem meter mot øst ved inngangsparti.
- De fleste vinduene er av nyere dato.
- Sydvendt terrasse på 37m2.
Område
Legg til steder som er viktige for deg
På flyttefot? Tenk kjøp og salg samtidig.
Få din egen rådgiver gjennom hele kjøps- og salgsprosessen. Det starter med en verdivurdering.
Unngå doble boligrenter
Vi tilbyr gunstig forsikring.
Vurderer du utleie?
Få et tilbud fra Utleie KrogsveenHva koster lånet?
Sjekk estimert lånekostnadVil du varsles om lignende boliger?
Ved å lagre ditt boligsøk hos oss får du beskjed når vi har en bolig som ligner denne, før den legges ut på markedet!

