Bærumsveien 204
11 900 000 kr
126 m²
3 soverom
Solgt
Romslig 4-roms med stor takhøyde, peis, heis og garasje. Praktisk, midt i hjertet av Bekkestua! 2 balkonger!
Prisantydning
11 900 000 krAndel fellesgjeld
179 445 krOmkostninger
313 010 krTotalpris
12 392 455 kr
Pris
Bruksareal
126 m²BRA-I (internt bruksareal)
126 m²TBA (terrasse-balkongareal)
17 m²
Areal
Etasje
3Byggeår
1997Soverom
3 soveromBad
2 badType
EierleilighetEierform
EierseksjonFasiliteter
Garasje/P-plass, Heis og Balkong/TerrasseFellesutgifter
6 628 kr
Nøkkelinfo
Unngå doble boligrenter
Vi tilbyr gunstig forsikring.
Vurderer du utleie?
Få et tilbud fra Utleie KrogsveenHva koster lånet?
Sjekk estimert lånekostnadBeskrivelse
Kort om eiendommen
Bærumsveien 204
Stor og hyggelig 4-roms med svært sentral og attraktiv beliggenhet midt i sentrum av Bekkestua. Bekkestua sentrum er trivelig og moderne med et rikt og variert utvalg av forretninger og kan by på blant annet flere dagligvareforretninger (nærmeste i 1. etasje), apotek, bibliotek, kaféer, restauranter, Vinmonopolet, treningssenter og Bekkestua senter. Det er for øvrig heller ikke langt til gode fritidsaktiviteter, flotte turmuligheter og sjøen.
Boligen inneholder:
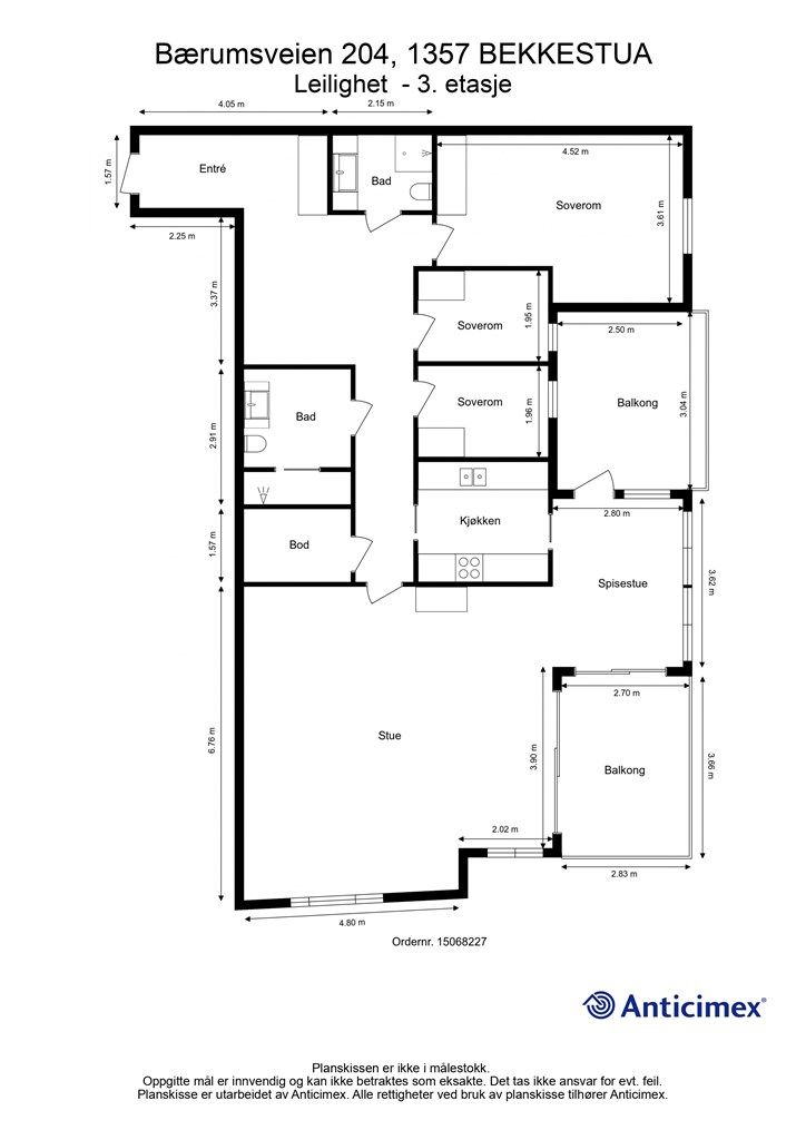
3. etasje 126 kvm: Entré, stue, spisestue, kjøkken, bod, to bad og tre soverom
Høydepunkter:
Meget romslig leilighet med god planløsning
Tre soverom og to bad
To nydelige balkonger på 8 kvm og 9 kvm
Peis i stuen
Heis i bygget
Garasjeplass
Meget sentral beliggenhet
Område
Legg til steder som er viktige for deg
På flyttefot? Tenk kjøp og salg samtidig.
Få din egen rådgiver gjennom hele kjøps- og salgsprosessen. Det starter med en verdivurdering.
Unngå doble boligrenter
Vi tilbyr gunstig forsikring.
Vurderer du utleie?
Få et tilbud fra Utleie KrogsveenHva koster lånet?
Sjekk estimert lånekostnadVil du varsles om lignende boliger?
Ved å lagre ditt boligsøk hos oss får du beskjed når vi har en bolig som ligner denne, før den legges ut på markedet!
På flyttefot? Slik gjør vi det enklere for deg
Skreddersydd flyttepakke
Vi fikser håndverkere, vask, pakking, lagring og transport, og legger ut for utgiftene underveis.
Hjelp med både kjøp og salg
Hos oss har du din egen rådgiver gjennom hele kjøps- og salgsprosessen.
Hjelp til finansiering
Vårt samarbeid med BN Bank sikrer deg rask og løsningsorientert hjelp, til konkurransedyktige betingelser.




