Vardeveien 17C
14 950 000 kr
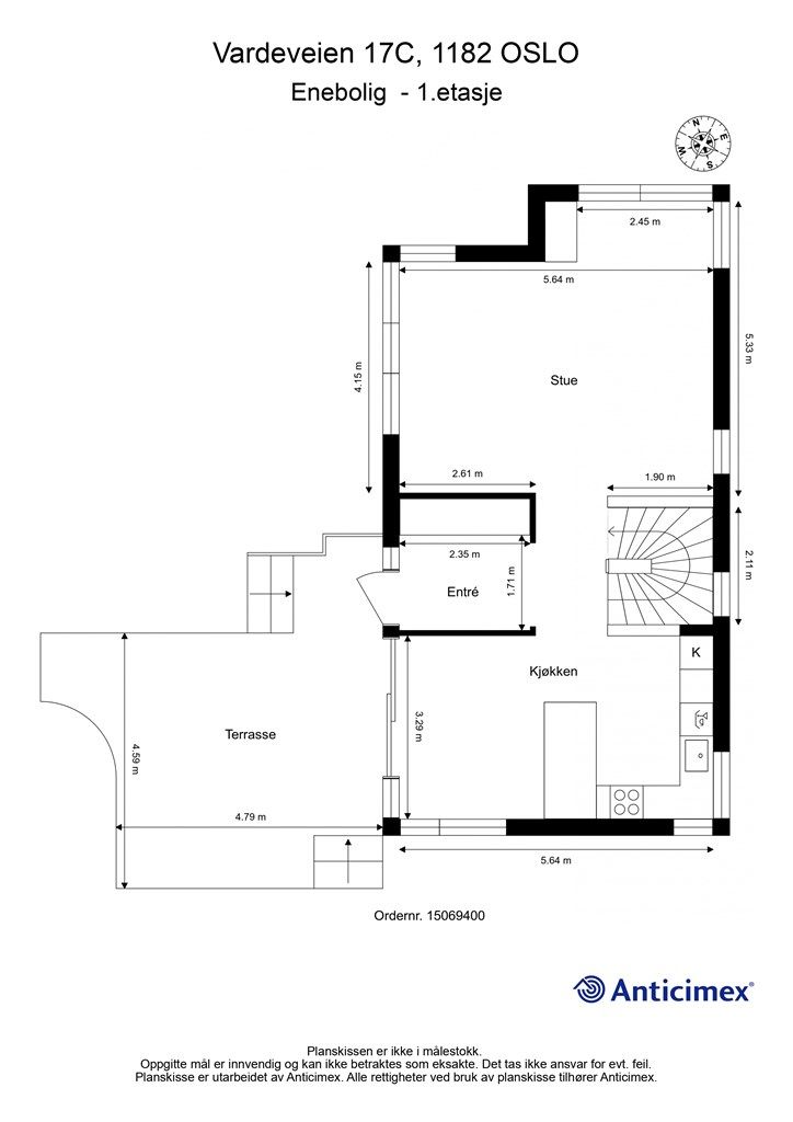
179 m²
5 soverom
Solgt
Ekeberg/Simensbråten
Eksklusiv og moderne enebolig med gjennomført stil | 5 soverom | Separat hybel | Fantastisk utsikt og solforhold
Prisantydning
14 950 000 krOmkostninger
384 790 krTotalpris
15 334 790 kr
Pris
Bruksareal
184 m²BRA-I (internt bruksareal)
179 m²BRA-E (eksternt bruksareal)
5 m²TBA (terrasse-balkongareal)
30 m²
Areal
Byggeår
2021Soverom
5 soveromBad
3 badType
Enebolig - FrittliggendeEierform
EierseksjonEnergimerke
Rød B
Nøkkelinfo
Unngå doble boligrenter
Vi tilbyr gunstig forsikring.
Vurderer du utleie?
Få et tilbud fra Utleie KrogsveenHva koster lånet?
Sjekk estimert lånekostnadBeskrivelse
Kort om eiendommen
Velkommen til Vardeveien 17C! En eksklusiv enebolig fra 2021 med gjennomgående høy standard og smakfulle oppgraderinger. Her bor du i et rolig og barnevennlig område på populære Simensbråten, med kort vei til Oslo sentrum og flotte turområder.
- Gjennomtenkt planløsning med god arealutnyttelse – bygget etter TEK17-standard
- 5 soverom og 3 bad fordelt på hoveddel og hybel – perfekt for storfamilien.
- Eget vaskerom, separat WC-rom og rikelig med bodplass.
- Smarthusløsninger for lys, varme, ventilasjon, dørlås, solskjerming og elbil-lading
- Separat hybel med egen inngang – ideell for utleie, gjester eller ungdom.
- Egen elbillader og 2 parkeringsplasser i lukket garasjeanlegg.
- Automatisk snøsmelteanlegg i trapp, komfort året rundt.
- Pent opparbeidet hage med flere soner.
Område
Legg til steder som er viktige for deg
På flyttefot? Tenk kjøp og salg samtidig.
Få din egen rådgiver gjennom hele kjøps- og salgsprosessen. Det starter med en verdivurdering.
Unngå doble boligrenter
Vi tilbyr gunstig forsikring.
Vurderer du utleie?
Få et tilbud fra Utleie KrogsveenHva koster lånet?
Sjekk estimert lånekostnadVil du varsles om lignende boliger?
Ved å lagre ditt boligsøk hos oss får du beskjed når vi har en bolig som ligner denne, før den legges ut på markedet!




