Sparbekkveien 1
2 590 000 kr
125 m²
2 soverom
Komplett salgsoppgave

Åmot
Enebolig med attraktiv og sentral beliggenhet - Meget barnevennlig boligområde
Prisantydning
2 590 000 krOmkostninger
85 740 krTotalpris
2 675 740 kr
Pris
Bruksareal
144 m²BRA-I (internt bruksareal)
125 m²BRA-E (eksternt bruksareal)
19 m²TBA (terrasse-balkongareal)
45 m²
Areal
Etasje
1Byggeår
1940Soverom
2 soveromBad
1 badTomteareal
1 100 m² (eiet)Type
Enebolig - FrittliggendeEierform
EietFasiliteter
Garasje/P-plass og Balkong/TerrasseEnergimerke
Rød G
Nøkkelinfo
Unngå doble boligrenter
Vi tilbyr gunstig forsikring.
Vurderer du utleie?
Få et tilbud fra Utleie KrogsveenHva koster lånet?
Sjekk estimert lånekostnadBeskrivelse
Kort om eiendommen
Innhold og byggemåte
Innhold og byggemåte
Eiendommen
Sparbekkveien 1, 3340 ÅMOT
Kommunenummer 3316, gårdsnummer 53, bruksnummer 177, ideell andel 1/1
Innhold
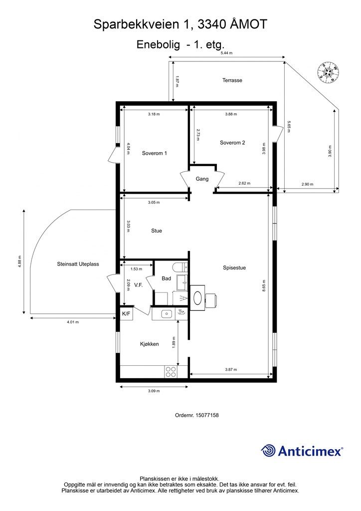
Totalt bruksareal BRA: 144 kvm
BRA-i:
Enebolig:
Kjeller: 33 kvm: Garasje og to uinnredede kjellerrom
1. etasje 92 kvm: Vindfang, bad, kjøkken, stue, spisestue og to soverom
BRA-e:
Uthus:
1. etasje 19 kvm: To boder og utedo.
Åpent areal:
Enebolig:
1. etasje 45 kvm: Terrasse og steinsatt uteplass.
Kun deler av arealet i kjeller er måleverdig som bruksareal. Arealet har et totalt gulvareal (GUA) på 56 m2, men grunnet lav takhøyde/ikke gangbart gulv er kun 33 m2 av arealet måleverdig som bruksareal. De delene av arealene som har lav himlingshøyde (ALH) utgjør 23 m2.
Vedlagte plantegninger er ikke målbare. De oppgitte arealer er hentet fra rapport med befaringsdato 25.11.2025 utført av Anticimex v/Nils Magnus Graff Fossnes. Arealene er beregnet og rom er definert etter dagens faktiske bruk, uavhengig av hva som er godkjent av bygningsmyndighetene.
Byggemåte
Selger har fått utarbeidet en tilstandsrapport for eiendommen, dvs. en teknisk gjennomgang av boligen hvor eventuelle avvik, risiko for kjøper og prisoverslag for hva som bør gjøres av oppgradering, er skissert. Se særskilt TGIU (tilstandsgrad ikke undersøkt), samt TG2 og TG3 som viser hva som er avvik fra boligens normale slitasje, alder og type, eller som bør/må utbedres. Rapporten og selgers egenerklæring er en del av salgsoppgaven og må leses nøye før bud inngis. Kjøper overtar ansvaret for de opplysninger som fremkommer av salgsdokumentasjonen, og kan ikke gjøre gjeldende som mangel noe som burde vært kjent eller som ikke kan anses å ha betydning for avtalen.
Bygningen er iht. tilstandsrapport, oppført delvis med søylefundamenter og grunnmur av betong/mur konstruksjoner. Etasjeskillere av tre- og mur konstruksjoner. Yttervegger av trekonstruksjoner med liggende trekledning. Yttertak med valmtakform av trekonstruksjon tekket med takstein. Boligen har ytterdør med glassfelt. Vinduer og balkongdører med to-lags glass og karmer/rammer av tre. Les forøvrig mer om byggemåte og den tekniske tilstanden i rapporten.
I rapporten fremkommer det som takstmannen mener kjøper må være særskilt oppmerksom på, dette gjelder blant annet (se utfyllende tekst i rapporten):
Følgende kontrollpunkter/forhold har blitt tildelt TG3:
- Våtrom - Bad: Tildelt tilstandsgraden ut i fra en helhetsvurdering på hele rommet pga. høy alder alder og slitasje samt registrert avvik, se rapport for nærmere detaljer.
- Rom under terreng (kjeller, underetasje og sokkeletasje): Tildelt tilstandsgraden ut i fra en helhetsvurdering pga. Sprekker i murvegger i garasjen. Kjeller bærer preg av fuktproblematikk. Det ble registrert vanntilsig og kalk/saltutslag. Råteskader i trekonstruksjoner på innsiden av grunnmur. Det ble utført fuktmåling med pigg i bunnsvill som viste forhøyede fuktverdier. Det ble registrert spor etter treskadeinsekter.
- Drenering: Tildelt tilstandsgraden ut i fra en helhetsvurdering pga. alder og symptomer (opplysningen bør ses i sammenheng med observasjoner gjort fra innsiden), se rapport for nærmere detaljer.
Følgende kontrollpunkter/forhold har blitt tildelt TG2:
- Kjøkken: Vannrør av kobber er vurdert til å ha en alder som tilsier at anbefalt brukstid er passert. Avløpsrør er vurdert til å ha en alder som tilsier at anbefalt brukstid er passert.
- Øvrige rom -1. etasje: Ventilasjonen i deler av etasjen vurderes til å ikke være tilfredsstillende da det ble registrert kondensvann på glass rundt vinduer og dører. Det er for lite ventiler i etasjen.
- Loft - uinnredet/råloft: Det ble ikke registrert dampsperre i konstruksjonen mellom 1.etasje og loft ved stikkprøve. Det er redusert tilkomst for inspeksjon på deler av uinnredet loft. Det er ikke kjent hvordan hele oppbyggingen er utført. Det ble registrert spor/ekskrementer etter mus/gnagere på loftet.
- Ildsteder /skorsteiner innvendig: Pipen er rehabilitert i senere tid med innvendig røykrør av metall. Dette er i utgangspunktet et søknadspliktig tiltak. Det ble registrert sprekk i brennplate inne i ildstedet.
- Innvendige trapper: Trappen har ikke håndløper eller rekkverk.
- Etasjeskiller: Det er noe merkbare skjevheter i spisestuen. Forskjellen mellom høyeste og laveste punkt i rommet er målt til 26 mm.
- Tekniske anlegg, VVS anlegg: På bakgrunn av berederens alder er det grunn til å varsle om usikker restlevetid eller andre forhold som utvikles over tid. Vannrør i boligen er vurdert til å ha en alder som tilsier at anbefalt brukstid er passert. Avløpsrør er vurdert til å ha en alder som tilsier at anbefalt brukstid er passert.
- Radon: Det er ikke foretatt radonmåling i boligen og verdiene er derfor ukjent.
- Elektrisk anlegg: Det er ikke fremlagt samsvarserklæring på utførte arbeider på det elektriske anlegget. Det er registrert både jordete og ujordete stikkontakter i samme rom. Det ble registrert sprekk i stikkontakt på kjøkken.
- Yttervegger: Fasader er malingsslitt. I tillegg ble det registrert svertesopp og algegroing. Ingen luftespalte bak trekledning.
- Dører og vinduer: Vinduer er av eldre dato og har behov for oppgraderinger/ overflatebehandling. Balkongdør fra ukjent årstall er av eldre dato og har behov for oppgraderinger/overflatebehandling. Garasjeport mangler håndtak.
- Yttertak: Det er registrert symptomer på elde og slitasje. Det ble registrert mosegroing og knuste takstein.
- Balkonger, terrasser, veranda etc: Rekkverkshøyden er under 1,0 meter. Det ble registrert slitasje på overflatebehandlingen. Det ble registrert skjevheter på bæresøyler og fundamenter.
- Utvendige trapper: Trapp av trekonstruksjoner har synlige tegn på slitasje og er fundamentert rett på bakkeplan, noe som øker risiko for vannoppsug og råteskader. Trapp i metallkonstruksjon har tegn på korrosjon og skjevheter samt korte trinn som tilsier at den ikke er spesielt behagelig å bruke.
- Grunnmur og fundamenter: Det ble registrert bomlyd og stedvis løse forblendingsstein. Det ble registrert åpninger mellom veggkonstruksjon og grunnmur.
- Drenering: Terrenget rundt deler av bygget har stedvis fall mot grunnmuren. Det kan ikke verifiseres at grunnmuren har utvendig fuktsperre.
- Stikkledninger og tanker: Det ble registrert påfylling og lufterør til oljetank utvendig på grunnmur. Det hefter usikkerhet om tanken foretatt er på eiendommen, er sanert eller om det foreligger pålegg om tiltak.
- Frittstående byggverk: Det er foretatt en forenklet overordnet vurdering av tilstanden og det er relativt høy slitasjegrad.
Følgende kontrollpunkter/forhold har blitt tildelt TGIU (tilstandsgrad ikke undersøkt):
- Yttertak: Deler av konstruksjonen kunne ikke undersøkes da det ikke var forsvarlig å bevege seg rundt deler av loftet.
- Grunnmur og fundamenter: Deler av byggegrunnens beskaffenhet er ukjent.
Det anbefales ytterligere undersøkelser av disse punktene.
Se vedlagt tilstandsrapport for supplerende informasjon vedrørende boligens tilstand. Kjøper overtar ansvar og risiko for dette.
Tilstandsrapporten og selgers egenerklæring er vedlagt salgsoppgaven. Interessenter må sette seg inn i dokumentene før bud inngis
Standard
Løsøre og tilbehør
Følgende hvitevarer på kjøkkenet medfølger i handelen: Integrert platetopp, integrert stekeovn og oppvaskmaskin.
Videre vises det til liste fra Norges Eiendomsmeglerforbund angående løsøre og tilbehør. Produkter og installasjoner som medfølger overdras uten noen form for garantier, utover eventuell gjenværende leverandørgaranti.
Oppvarming
Boligen er basert på elektrisk oppvarming via panelovner og vedfyring.
Det har blitt foretatt tilsyn av pipe og ildsted den 12.03.2025 og feiing den 07.05.2025, det er ikke registrert avvik eller anmerkninger på bruksenheten.
Det ble registrert påfylling og lufterør til oljetank utvendig på grunnmur. Det hefter usikkerhet om tanken fortsatt er på eiendommen, er sanert eller om det foreligger pålegg om tiltak. Det er innført forbud mot oppvarming av boliger med fossil olje eller parafin fra 2020. Vi gjør derfor oppmerksom på at det kan komme pålegg for eiendommer med nedgravd oljetank/parafintank om at tanken må fjernes og erstattes med miljøvennlige alternativ, alternativt tømmes/spyles/plomberes. Kjøper overtar ansvaret og evt. økonomiske følger av dette. For utfyllende informasjon, se www.oljefri.no.
Dersom beboelsesrom ikke har vegg- eller fastmonterte varmekilder ved visning, følger dette heller ikke med.
Ferdigattest/brukstillatelse
Modum kommune opplyser om at det ikke foreligger ferdigattest eller midlertidig brukstillatelse for oppføring av boligen i deres arkiv. I henhold til kommunen ble eiendommen opprettet i 1940, men boligen har ukjent byggeår. Kommunen opplyser om at boligen er lovlig tatt i bruk.
Megler anfører at det ikke foreligger godkjente byggetegninger i forbindelse med oppføringen av bygningen i kommunens arkiv, det kan derfor ikke verifiseres om dagens bruk av opprinnelig bolig er lovlig. Og det er usikkert om rom for varig opphold er bruksendret/omsøkt og godkjent av kommunen. Kjøper overtar risiko og ansvaret for eventuelle pålegg fra kommunen samt kostnader forbundet med dette.
Kommunen opplyser at mindre tilbygg av boligen ble oppført i 2003, der det foreligger godkjente tegninger fra 2003. Det er sendt inn en meldingssak om dette, som kommunen har godkjent. Det gjøres oppmerksom på at det ikke er satt inn 3 vinduer i henhold til de godkjente tegningene. Det er usikkert om dette skulle vært søkt om på nytt. Kjøper overtar ansvaret for å evt. søke på nytt hvis dette kreves, det må påregnes kostnader i tilknytning til dette.
Garasjen er fra ukjent årstall, dokumentasjon mangler i kommunens arkiv. Kjøper overtar risiko og ansvaret for eventuelle pålegg fra kommunen samt kostnader forbundet med dette.
Det er satt in ytterdør og vindu på soverom 1. Det er etablert terrasse utenfor soverom 2. Det er etablert et uthus som består av to boder og en utedo (bygningen er synlig på historisk kart fra 1959). Pipen har blitt rehabilitert. Megler anfører at det ikke foreligger dokumentasjon på søknad til kommunen vedrørende de utførte tiltakene. Kjøper overtar risiko og ansvaret for eventuelle pålegg fra kommunen samt kostnader forbundet med dette.
Kjøper overtar eiendommen slik den framstår på visning.
Tinglyste heftelser og rettigheter
Eiendommen overdras fri for pengeheftelser.
Dagboknummer: 990086
Tinglysningsdato: 06.01.1940
Servitutten omhandler: Bestemmelse om gjerdeplikt.
Servitutten vil følge eiendommen. Kjøpers bank vil få pant etter ovennevnte heftelser og servitutter som ikke skal slettes ved overdragelse.
Eventuell adgang til utleie
Eiendommen har ikke separat utleieenhet. Det vil normalt være anledning til utleie av hele eiendommen eller enkeltrom, såfremt utleiearealet er bygningsmessig godkjent for varig opphold og har forsvarlige radonnivåer.
Diverse
Boligen har vært utleid. Selger har ikke bebodd eiendommen og har derfor ikke kunnskap om eiendommens tilstand.
Energimerking
Komplett energiattest inkludert oppvarmingskarakter fås ved henvendelse til megler eller lastes ned fra www.krogsveen.no.
Beliggenhet og tomteforhold
Beliggenhet og tomteforhold
Beliggenhet
Velkommen til Sparbekkveien 1 – En velholdt og attraktiv enebolig i et barnevennlig nabolag.
Eiendommen ligger svært gunstig til med lang solgang og har kort avstand til Åmot sentrum, hvor du finner flere skoler og et bredt utvalg av servicetilbud. Det er også kort vei til flotte turmuligheter i marka, som er et perfekt område for både sommer- og vinteraktiviteter. Nærområdet har blant annet en idrettshall og en kunstgress fotballbane. Finnemarka er kjent for sin fantastiske natur, med fiskevann, milesvis med skiløyper, og tur- og sykkelstier.
Adkomst
Det vil bli skiltet med Krogsveen visningsskilt ved fellesvisninger. Se kart i nettannonse eller Google Maps for nærmere veibeskrivelse. Velkommen til visning!
Barnehager, skoler og fritid
Barnehager:
Bårudåsen barnehage (1-5 år) 0.7 km
Mælumenga barnehage (1-5 år) 1.4 km
Åmot barnehage (0-5 år) 2.3 km
Skoler:
Enger skole (1-7 kl.) 0.2 km
Søndre Modum ungdomsskole (8-10 kl.) 0.4 km
Buskerud vgs. avd Rosthaug 0.5 km
Dersom skole- og barnehagetilbud er av betydning for kjøpet, ber vi om at det rettes en særskilt henvendelse til kommunen for oppdatert informasjon.
Beskrivelse av tomt
Eiertomt på ca 1 100 kvm. Skrånende tomt opparbeidet med singlet oppkjørsel, plenaraeler og diverse beplantning. Det er etablert overbygget steinsatt uteplass på fremsiden av boligen i tilknytning til inngangspartiet og terrasse (ikke byggemeldt) på baksiden av boligen. Det er i tillegg et frittstående uthus med boder og utedo på eiendommen.
Tomten er ikke oppmålt i nyere tid og har usikre grenser. Kommunens grunnkart viser eiendommens grenser med et beregnet normalavvik på 10-30 cm og 30-200 cm, se kartutsnitt for tomtegrenser. Ved nøyaktig oppmåling kan avvik forekomme, og kjøper aksepterer dette.
Parkering
Parkering i garasje. Forøvrig to biloppstillingsplasser foran garasjen.
Vei, vann og avløp
Eiendommen har adkomst via privat vei med felles vedlikeholdsansvar.
Eiendommen er tilknyttet kommunalt ledningsnett via private stikkledninger. Eier er selv ansvarlig for private stikkledninger til boligen.
Regulerings-og arealplaner
Eiendommen ligger i et uregulert området, men er avsatt til boligbebyggelse ved kommuneplan Modum kommune 2016-2027 vedtatt 04.02.2019. Eiendommen omfattes i tillegg av Kommunedelplan for kulturminner vedtatt 10.05.2021 med tilhørende bestemmelser. Utsnitt av planer med tilhørende bestemmelser kan fås ved henvendelse til megler.
Økonomi
Økonomi
Kommunale utgifter
Kommunale avgifter (vann og avløp): kr 2.686,40,- pr. år + fastavgift for vann og kr 4.306,52,- pr. år for avløp (2 terminer), årsprognose på eiendommen for 2025. Avgiftene vil variere etter forbruket i boligen.
Renovasjonskostnader: kr 4.930,- pr. år (2 terminer). Type renovasjonsordning: Standard renovasjonsordning, 2025.
I tillegg påløper det en kostnad på kr 304,- for feiing pr. år og kr 568,- for tilsyn pr. år. (2.terminer), årsprognose på eiendommen for 2025. Frekvens på feiing samt tilsyn er avhengig av behov og vurderes av feieren.
Selger har ikke bebodd eiendommen og har således ikke kjennskap til øvrige løpende utgifter for eiendommen.
Det må påregnes kostnader til innboforsikring, bygningsforsikring, strøm ink nettleie og tv/internett.
Ovenstående er basert på nåværende eier/husstands senere års forbruk/utgifter. Dette vil variere avhengig av antall beboere, ønsket innetemperatur, egne fordelsavtaler, kanalvalg, hastighet på bredbånd m.m.
Formuesverdi
Formuesverdi for 2023 var kr 679 082,- ifølge skatteetaten. Beløpet forutsetter at eier bor fast i boligen (primærbolig).
Ved eventuell øvrig bruk av eiendommen (f.eks. fritidsbolig, pendlerbolig, utleieobjekt) var formuesverdien for 2023 kr 2 716 329,-.
Formuesverdien justeres normalt årlig. Se skatteetaten.no for mer informasjon om fastsettelse av formuesverdien.
Omkostninger
2 590 000,00 Prisantydning
Omkostninger
64 750,00 Dokumentavgift til staten (2,5% av kjøpesum)
19 900,00 Gjensidige Boligkjøperpakke (valgfri)
545,00 Tinglysing panterettsdokument
545,00 Tinglysing skjøte
--------------------------------------------------------
85 740,00 Omkostninger totalt
--------------------------------------------------------
2 675 740,00 Totalpris inkl. omkostninger
--------------------------------------------------------
Totalpris inkl. omkostninger forutsetter kjøp til prisantydning.
Det tas forbehold om endringer i avgifter og gebyrer.
Tilbud om lånefinansiering
Megler formidler gjerne kontakt med rådgiver hos vår samarbeidspartner BN Bank. De har konkurransedyktige betingelser samt rask og løsningsorientert behandling av din lånesøknad. Krogsveen mottar et honorar dersom lån opprettes.
Betalingsbetingelser
Kjøpesum inkludert omkostninger, samt pantedokument tilknyttet eventuelt lån, skal være disponibelt hos megler 2 virkedager før overtagelsen.
Annen viktig informasjon
Annen viktig informasjon
Eier
Marit Engebretsen Velstad
Overtakelse
Etter nærmere avtale.
Boligselgerforsikring
Selger har i forbindelse med salget tegnet boligselgerforsikring levert av Gjensidige.
Boligselgerforsikringen dekker selgers ansvar etter avhendingsloven begrenset oppad til kr 14 millioner. Dersom kjøper oppdager forhold ved eiendommen som hen mener utgjør en mangel ved eiendommen, vil Gjensidige behandle reklamasjonen på vegne av selger. Forsikringsvilkår kan fås ved henvendelse til megler.
Vedlagt salgsoppgaven følger selgers egenerklæringsskjema og tilstandsrapport. Interessenter må sette seg inn i dokumentene før bud inngis.
Boligkjøperforsikring
Innen kontraktsmøtet må kjøper ta stilling til om det ønskes å bestille Boligkjøperpakken gjennom Gjensidige. I denne gunstige pakken er boligen ferdig forsikret og inkluderer rettshjelpsforsikring, også kalt Boligkjøperforsikring. Rettshjelpsforsikring gir trygghet og tilgang på profesjonell juridisk hjelp dersom det oppdages uventede feil eller mangler det første året etter overtagelse. Forsikringsselskapet behandler i så fall ethvert mangelskrav kjøper måtte ha overfor selger.
Boligkjøperpakken inkluderer bygningsforsikring for hus og hytte, innboforsikring, flytteforsikring og dobbel rentedekning - i situasjoner hvor kjøper ikke får solgt nåværende primærbolig.
Kjøper mottar ingen særskilt faktura for Boligkjøperpakken da kostnaden det første året legges til kjøpesummen for boligen. Det gjøres oppmerksom på Krogsveen mottar et honorar for denne formidlingen.
Produktark for Boligkjøperpakken ligger vedlagt i salgsoppgaven.
Dersom ikke boligkjøperpakke ønskes kan kun rettshjelpsforsikring, også kalt boligkjøperforsikring, tegnes særskilt via megler. Rettshjelpsforsikringen varer i 5 år fra overtagelse og leveres gjennom Gjensidige. Ta kontakt med megler for ytterligere informasjon.
Selskap og privatpersoner som driver med kjøp/salg/utvikling som ledd i egen næringsvirksomhet kan ikke tegne boligkjøperpakke eller rettshjelpsforsikring.
Budgivning
Forbrukerinformasjon om budgivning er vedlagt denne salgsoppgaven og er også på vår hjemmeside Krogsveen.no. Alle bud og budforhøyelser må inngis skriftlig. I tillegg må legitimasjon være fremlagt sammen med signatur fra budgiver.
Vi oppfordrer til å gi bud elektronisk via GI BUD-knappen på eiendommens hjemmeside på Krogsveen.no. Da vil samtlige vilkår bli oppfylt.
Eventuelle forhøyelser eller endringer av budet kan bekreftes pr SMS eller på e-post. Vi oppfordrer alltid til å kontakte megler pr. telefon i tillegg da forsinkelser i SMS og e-post kan forekomme.
For at budene skal kunne bli behandlet og videreformidlet skriftlig til alle involverte parter, må alle bud ha en tilstrekkelig lang akseptfrist, jf. eiendomsmeglingsforskriften § 6-3.
Selger må også skriftlig akseptere budet før aksept kan formidles til budgiver. Akseptfrist bør derfor være på minimum 30 minutter, og budforhøyelser må derfor skje i god tid før fristens utløp.
Bud i forbrukerforhold kan uansett ikke settes med kortere frist enn kl. 12.00 første virkedag etter siste annonserte visning. I tillegg kan ikke budet ha forbehold om at det skal holdes hemmelig ovenfor øvrige interessenter. Megler har iht lov om eiendomsmegling ikke anledning til å videreformidle disse budene, og de vil dermed heller ikke bli journalført.
Etter at eiendommen er solgt vil kjøper og selger få tilsendt budjournal. Øvrige budgivere kan få utlevert kopi av budjournalen i anonymisert form.
Hvitvaskingsreglene
I henhold til lov om hvitvasking og terrorfinansiering har megler plikt til å gjennomføre kontrolltiltak overfor kunder, herunder fullmektiger. Dette innebærer bl.a. å bekrefte kunders og reelle rettighetshaveres identitet på bakgrunn av fremvist gyldig legitimasjon eller på annen godkjent måte, samt å innhente opplysninger om kundeforholdets formål og tilsiktede art.
Dersom slike kundetiltak ikke kan gjennomføres, kan megler ikke etablere kundeforholdet eller utføre transaksjonen.
Hvis kjøper ikke bidrar til gjennomføring av kundekontrollen og dette fører til at transaksjonen blir forsinket eller ikke kan gjennomføres, vil dette ansees som mislighold av avtalen og gi selger rettigheter etter avhendingslova kapittel 5. I tilfeller der selger ikke bidrar til gjennomføring av løpende kundekontroll underveis i oppdraget, er det selger som misligholder sine forpliktelser etter avtalen og gi kjøper rettigheter etter avhendingslovens kapittel 4. Partene er selv ansvarlige for eventuelle kostnader og ansvar dette kan medføre. Eiendomsmegleren eller eiendomsmeglingsforetaket kan ikke holdes ansvarlig for de konsekvenser dette vil kunne få for partene eller andre som har interesser i eiendomshandelen.
Kjøper oppfordres til å innbetale kjøpesummen som ikke kommer fra låneinstitusjon i én samlet innbetaling fra egen konto i norsk bank. Megler har plikt til å melde fra til Økokrim om eiendomshandler som fremstår som mistenkelige. Melding sendes Økokrim uten at partene varsles.
Personopplysningsloven
I henhold til personopplysningsloven gjør vi oppmerksom på at interessenter kan bli registrert for videre oppfølging.
Lovanvendelse
Generelle bestemmelser
Salgsoppgaven er basert på de opplysningene selger har gitt til megler, den bygningssakyndiges tilstandsrapport, samt opplysninger innhentet fra kommunen, Kartverket og andre tilgjengelige kilder. Det er viktig at kjøper setter seg grundig inn i alle salgsdokumentene, herunder salgsoppgave, tilstandsrapport og selgers egenerklæring. Kjøper anses kjent med forhold som er tydelig beskrevet i salgsdokumentene, og slike forhold kan ikke påberopes som mangler. Dette gjelder uavhengig av om kjøper har lest dokumentene. Alle interessenter oppfordres til å undersøke eiendommen nøye, gjerne sammen med fagkyndig før bud inngis. Kjøper som velger å kjøpe usett kan ikke gjøre gjeldende som mangel noe han burde blitt kjent med ved undersøkelsen.
Dersom det er behov for avklaringer, anbefaler vi at interessenter rådfører seg med eiendomsmegler eller egne rådgivere før det legges inn bud.
En bolig som har blitt brukt i en viss tid, har vanligvis blitt utsatt for slitasje og skader kan ha oppstått. Slik bruksslitasje må kjøper regne med, og det kan avdekkes enkelte forhold etter overtakelse som nødvendiggjør utbedringer. Normal slitasje og skader som nødvendiggjør utbedring, er innenfor hva kjøper må forvente og vil ikke utgjøre en mangel.
Kjøper og selgers rettigheter og plikter reguleres av avtalen mellom partene, samt informasjonen som har vært tilgjengelig for kjøperen i forbindelse med handelen. Avtalen utfylles av avhendingsloven, og det gjelder ulike avtalevilkår avhengig av om kjøper er forbrukerkjøper eller ikke. Dette er nærmere beskrevet nedenfor.
På grunn av ulike avtalevilkår kan selger vurdere bud fra en som ikke er forbruker, ulikt fra en forbrukers bud. Dersom kjøper ikke er forbruker, er selger sitt mulige mangelsansvar begrenset fordi eiendommen selges "som den er". Selger kan ikke ta «som den er»- forbehold overfor en forbrukerkjøper. Selv et lavere bud fra en som ikke er forbruker kan foretrekkes fordi begrensningen i mulig mangelsansvar kan ha egenverdi for selger. Selger står fritt til å forkaste eller akseptere ethvert bud, og er for eksempel ikke forpliktet til å akseptere høyeste bud.
Budgiver skal i budskjema avgi egenerklæring om budgiver er forbruker eller næringsdrivende/ person som hovedsakelig handler som ledd i næringsvirksomhet. Budgivere får informasjon dersom andre bud er inngitt av en som ikke er forbruker.
Forbrukerkjøp - definisjon
Med forbrukerkjøp menes kjøp av eiendom når kjøperen er en fysisk person som ikke hovedsakelig handler som ledd i næringsvirksomhet.
Forbruker – avtalevilkår
Eiendommen har en mangel dersom den ikke er i samsvar med kravene som følger av avtalen, eller det foreligger brudd på bestemmelsene i avhendingsloven §§ 3-2 til 3-8. Hvis eiendommen ikke er i samsvar med det kjøperen må kunne forvente ut ifra alder, type og synlig tilstand, kan det være grunnlag for mangelskrav. Det samme gjelder hvis det er holdt tilbake eller gitt uriktige opplysninger om eiendommen. Dette gjelder likevel bare dersom man kan gå ut ifra at det virket inn på avtalen at opplysningen ikke ble gitt eller at mangelskravet ikke blir rettet i tide på en tydelig måte.
Boligen kan ha en mangel etter avhendingsloven § 3-3 andre ledd, dersom det er avvik mellom opplyst og faktisk innvendig areal, forutsatt at avviket er på 2% eller mer og minimum 1 kvm.
Ved beregning av et eventuelt prisavslag eller erstatning må kjøper selv dekke tap/kostnader opptil et beløp på kr 10 000 (egenandel).
Ikke-forbruker (næringsdrivende) – definisjon
Hvis kjøper er en juridisk person, eller en fysisk person som hovedsakelig handler som ledd i næringsvirksomhet, vil kjøpet ikke anses som et forbrukerkjøp.
Ikke-forbruker – avtalevilkår
Eiendommen har en mangel dersom den ikke er i samsvar med kravene som følger av avtalen.
Eiendommen selges «som den er», og selgers ansvar utover det konkret avtalte er da begrenset etter avhendingsloven § 3-9, første ledd andre setning.
Avhendingsloven § 3-3 andre ledd fravikes, og hvorvidt boligens arealsvikt utgjør en mangel vurderes etter avhendingsloven § 3-8.
Informasjon om kjøpers undersøkelsesplikt, herunder oppfordringen om å undersøke eiendommen nøye, gjelder også for kjøpere som ikke anses som forbrukere.
Det forutsettes at hjemmel overføres til kjøper. Hvis kjøper ikke ønsker hjemmelsoverføring av eiendommen, må det tas forbehold om dette i budet.
Meglers vederlag
Meglers vederlag betales av selger og er avtalt til:
Fastpris: 43 000,-
Vederlag:
Kontroll av hjemmel og heftelser kr 2 900,00
Markedsføringspakke kr 27 400,00
Oppgjør kr 7 500,00
Tilrettelegging kr 17 000,00
Visninger pr stk 4000,- Første visning gratis kr 0,00
Utlegg:
Innhenting av off. oppl. Modum kommune inkl. tegninger kr 5 570,00
Tinglysing sikring kr 545,00
Andre utgifter:
AX tilstandsrapport enebolig kr 20 625,00
Boligfotografering kr 4 500,00
Boligselgerforsikring Gjensidige Eiet 5,71 promille (valgfritt)
Vi er opptatt av verdiskapning, og har knyttet til oss samarbeidspartnere som skal sikre våre kunder de beste produkter og tjenester;
• I forbindelse med forberedelse av salget, innhenter vi informasjon om eiendommen hovedsakelig fra vår samarbeidspartner Amibita.
• Gjensidige leverer boligselgerforsikring og tilbyr bygningsforsikring
• Boligkjøperforsikring leveres av Hiscox og med Sedgwick som skadebehandler, og er formidlet gjennom Gjensidige.
• BN bank tilbyr finansieringsløsninger
• Vår avdeling Krogsveen Pluss tilbyr flyttetjenester som utvask, visningsvask, lager, tømming og transport av flyttelass, i tillegg til å formidle kontakt med Flip for overflateoppussing.
• I forbindelse med overtagelse av eiendommen tilbyr Overo avtale om strøm, alarm og bredbånd.
• Krogsveen er, sammen med øvrige bransjeaktører, medeier i den digitale annonseringsplattformen Hjem som eies av Bomega AS.
Opplysninger om oppdraget
Oppdragsnummer 20-0382/25
Eiendomsmegler Krogsveen AS, avd. Drammen
Nedre Storgate 16, 3015, DRAMMEN
950 007 613
Oppdragets KR-kode KR20.25382
Dato
Sist oppdatert: 25. februar 2026 kl. 14:05
Dokumenter
Dokumenter
PDF – 937 KB
PDF – 779 KB
PDF – 745 KB
PDF – 312 KB
PDF – 29 KB
PDF – 127 KB
PDF – 392 KB
Område
Legg til steder som er viktige for deg
Visning
For å delta på visning, ber vi om at du melder deg på. Da sikrer vi at du får nødvendig informasjon og at det er satt av tilstrekkelig med tid. Kontakt megler dersom annet tidspunkt ønskes. Husk å lese salgsoppgaven før visningen, så du stiller forberedt.
Ønsker du kun å bli holdt orientert, kan du fra eiendommens hjemmeside få varsel om solgtpris, eller kontakte megler.
Lurer du på noe?
Unngå doble boligrenter
Vi tilbyr gunstig forsikring.
Vurderer du utleie?
Få et tilbud fra Utleie KrogsveenHva koster lånet?
Sjekk estimert lånekostnadVil du varsles om lignende boliger?
Ved å lagre ditt boligsøk hos oss får du beskjed når vi har en bolig som ligner denne, før den legges ut på markedet!

