Briskeveien 20
5 900 000 kr
123 m²
3 soverom
Solgt

Langhus/Bøleråsen
Enderekkehus med dobbel garasje og pent opparbeidet uteområde i blindvei. Meget barnevennlig og attraktivt boligområde.
Prisantydning
5 900 000 krOmkostninger
170 490 krTotalpris
6 070 490 kr
Pris
Bruksareal
157 m²BRA-I (internt bruksareal)
123 m²BRA-E (eksternt bruksareal)
34 m²TBA (terrasse-balkongareal)
77 m²
Areal
Byggeår
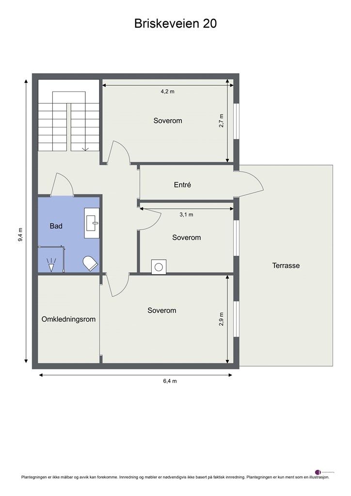
1991Soverom
3 soveromBad
2 badTomteareal
267 m² (eiet)Type
RekkehusEierform
EietFasiliteter
Garasje/P-plass og Balkong/TerrasseÅrlig velavgift
4 800 krEnergimerke
Gul D
Nøkkelinfo
Unngå doble boligrenter
Vi tilbyr gunstig forsikring.
Vurderer du utleie?
Få et tilbud fra Utleie KrogsveenHva koster lånet?
Sjekk estimert lånekostnadBeskrivelse
Kort om eiendommen
- Området er meget familievennlig, trygt og anerkjent som et godt sted å bo
- Egen dobbelgarasje samt plass til flere biler på tomten. Det er også godt med gjesteparkering i nærområdet
- Meget fin og usjenert øst- og sørvendt terrasse på 48 kvm. Pergola med støpt gulv under. Støttemur, beplantning, gjerde og gress
- Gavlvegg utvendig ble etterisolert 10 cm og med ny kledning i 2024
- All kledning malt 2024
- Vestvendt veranda på 7 kvm. og utsikt
- Bad i begge etasjer
- Varmepumpe fra 2023
- Romslig stue med kjøkken i åpen løsning. Hvitevarer på kjøkkenet medfølger
- Gangavstand til barnehager, Bøleråsen barneskole, Haugjordet ungdomsskole
- Gangavstand til buss som går til togstasjonen. Man kan også gå til Vevelstad stasjon. Toget har 4 avganger i timen til Oslo S og Ski
Område
Legg til steder som er viktige for deg
På flyttefot? Tenk kjøp og salg samtidig.
Få din egen rådgiver gjennom hele kjøps- og salgsprosessen. Det starter med en verdivurdering.
Unngå doble boligrenter
Vi tilbyr gunstig forsikring.
Vurderer du utleie?
Få et tilbud fra Utleie KrogsveenHva koster lånet?
Sjekk estimert lånekostnadVil du varsles om lignende boliger?
Ved å lagre ditt boligsøk hos oss får du beskjed når vi har en bolig som ligner denne, før den legges ut på markedet!

