Sjøstrand 6
2 200 000 kr
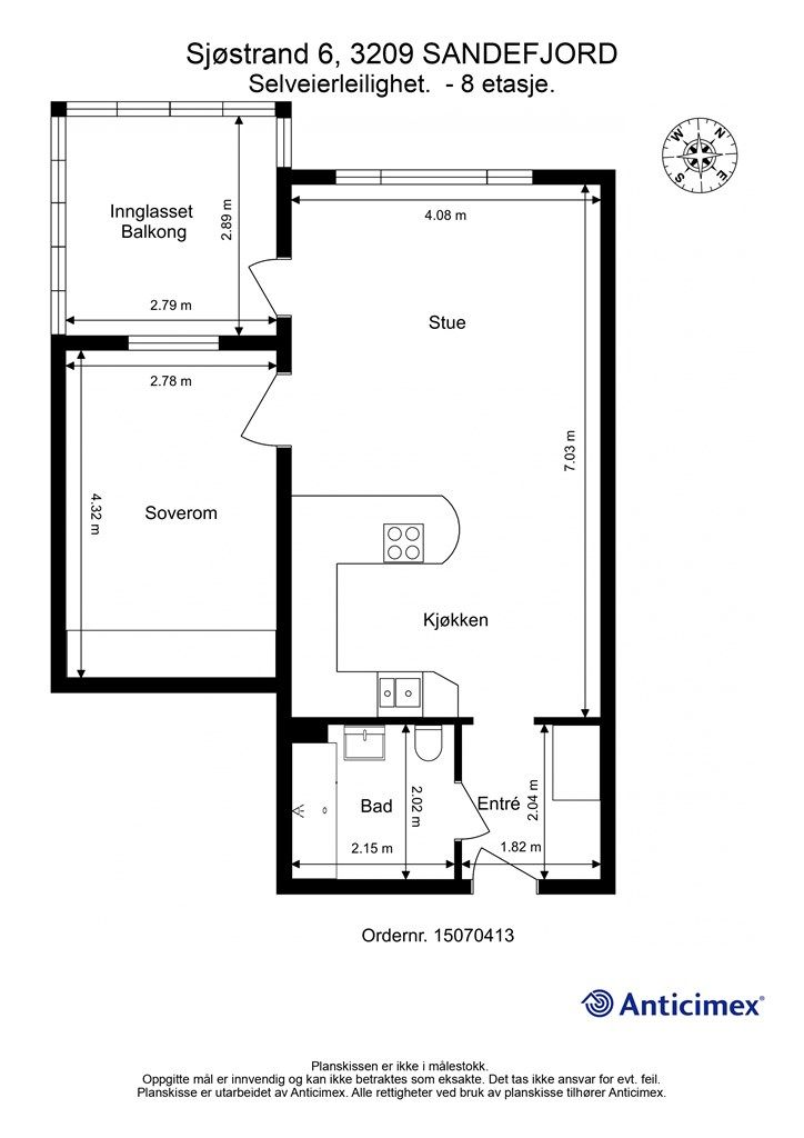
50 m²
1 soverom
Solgt

Ranvik
Vestvendt selveierleilighet i 8. etg. med flott utsikt og kveldssol!
Prisantydning
2 200 000 krAndel fellesgjeld
323 191 krOmkostninger
74 110 krTotalpris
2 597 301 kr
Pris
Bruksareal
54 m²BRA-I (internt bruksareal)
50 m²BRA-E (eksternt bruksareal)
4 m²TBA (terrasse-balkongareal)
10 m²
Areal
Etasje
8Byggeår
1976Soverom
1 soveromBad
1 badType
EierleilighetEierform
EierseksjonFasiliteter
Heis og Balkong/TerrasseFellesutgifter
4 785 kr
Nøkkelinfo
Unngå doble boligrenter
Vi tilbyr gunstig forsikring.
Vurderer du utleie?
Få et tilbud fra Utleie KrogsveenHva koster lånet?
Sjekk estimert lånekostnadBeskrivelse
Kort om eiendommen
Velkommen til Sjøstrand 6!
Leiligheten ligger i 8.etg. med heis. Inneholder en romslig lys stue, store vinduer som gir mye naturlig lys. Utgang til ny og stor overbygget balkong med flott utsikt og kveldssol.
Bygget har nettopp avsluttet en betydelig oppgradering med ny fasade, nye vinduer, nye dører og nye større balkonger.
Leiligheten ligger i et veletablert og hyggelig boligområde på Ranvik, med kort vei til matbutikk, treningssenter, skole, barnehage og flotte turområder i Marum.
Velkommen til visning!
Område
Legg til steder som er viktige for deg
På flyttefot? Tenk kjøp og salg samtidig.
Få din egen rådgiver gjennom hele kjøps- og salgsprosessen. Det starter med en verdivurdering.
Unngå doble boligrenter
Vi tilbyr gunstig forsikring.
Vurderer du utleie?
Få et tilbud fra Utleie KrogsveenHva koster lånet?
Sjekk estimert lånekostnadVil du varsles om lignende boliger?
Ved å lagre ditt boligsøk hos oss får du beskjed når vi har en bolig som ligner denne, før den legges ut på markedet!

