Per Waalers vei 3
5 250 000 kr
48 m²
1 soverom
Solgt

FORNEBU / OKSENØYA
Se denne før du kjøper nytt på Fornebu! 2020 bygg opptil 1 mill. under nypris! Bo et stenkast fra sjøen og badestrender!
Prisantydning
5 250 000 krOmkostninger
142 290 krTotalpris
5 392 290 kr
Pris
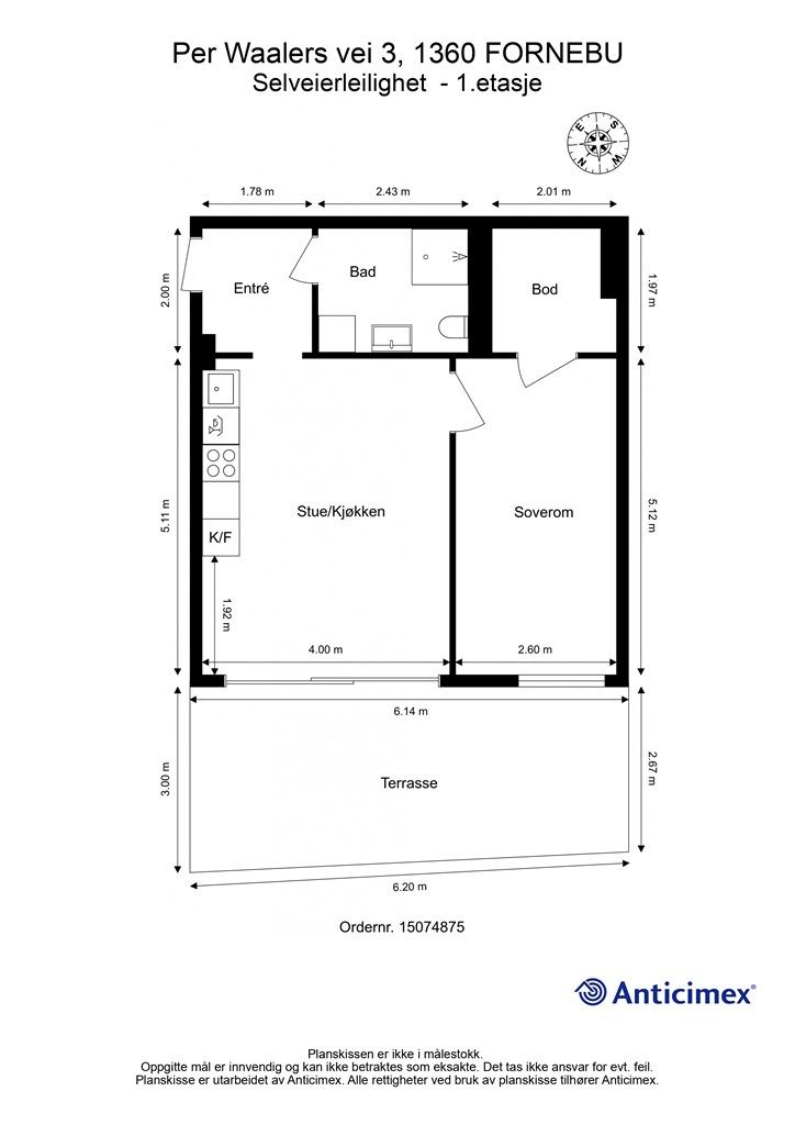
Bruksareal
58 m²BRA-I (internt bruksareal)
48 m²BRA-E (eksternt bruksareal)
10 m²TBA (terrasse-balkongareal)
17 m²
Areal
Etasje
1Byggeår
2020Soverom
1 soveromBad
1 badType
EierleilighetEierform
EierseksjonFasiliteter
Heis og Balkong/TerrasseFellesutgifter
3 840 krEnergimerke
Lysegrønn B
Nøkkelinfo
Unngå doble boligrenter
Vi tilbyr gunstig forsikring.
Vurderer du utleie?
Få et tilbud fra Utleie KrogsveenHva koster lånet?
Sjekk estimert lånekostnadBeskrivelse
Kort om eiendommen
Denne leiligheten er moderne og lettstelt med attraktiv beliggenhet. Leiligheten ligger med en sjønær og hyggelig beliggenhet øst på Fornebulandet med nærhet til fjorden, parker, offentlig kommunikasjon og alt annet Fornebu har å by på. Boligen har en praktisk planløsning med entré, soverom, bod, romslig bad og en lys stue med åpen kjøkkenløsning. Fra stuen er det utgang til en stor, solrik markterrasse på hele 17 kvm. Kjøkkenet har integrerte hvitevarer og god arbeidsplass, mens badet er flislagt med gulvvarme, dusjhjørne, vegghengt toalett og opplegg for vaskemaskin. Det er vannbåren gulvvarme og balansert ventilasjon i leiligheten, noe som gir et godt inneklima og lave driftskostnader. Til boligen hører også to romslige boder i kjeller, som gir rikelig med oppbevaringsplass
Område
Legg til steder som er viktige for deg
På flyttefot? Tenk kjøp og salg samtidig.
Få din egen rådgiver gjennom hele kjøps- og salgsprosessen. Det starter med en verdivurdering.
Unngå doble boligrenter
Vi tilbyr gunstig forsikring.
Vurderer du utleie?
Få et tilbud fra Utleie KrogsveenHva koster lånet?
Sjekk estimert lånekostnadVil du varsles om lignende boliger?
Ved å lagre ditt boligsøk hos oss får du beskjed når vi har en bolig som ligner denne, før den legges ut på markedet!
































