Krokåsen 7
7 980 000 kr
369 m²
5 soverom
Komplett salgsoppgave

Sysle
Lekker, klassisk enebolig av høy kvalitet og standard. Smarthus-system. Dobbel garasje. Potensiale for utleiedel.
Prisantydning
7 980 000 krOmkostninger
220 490 krTotalpris
8 200 490 kr
Pris
Bruksareal
385 m²BRA-I (internt bruksareal)
369 m²BRA-E (eksternt bruksareal)
16 m²TBA (terrasse-balkongareal)
96 m²
Areal
Etasje
2Byggeår
2016Soverom
5 soveromBad
3 badTomteareal
1 266 m² (eiet)Type
Enebolig - FrittliggendeEierform
EietFasiliteter
Garasje/P-plass og Balkong/TerrasseEnergimerke
Rød B
Nøkkelinfo
Unngå doble boligrenter
Vi tilbyr gunstig forsikring.
Vurderer du utleie?
Få et tilbud fra Utleie KrogsveenHva koster lånet?
Sjekk estimert lånekostnadBeskrivelse
Kort om eiendommen
Innhold og byggemåte
Innhold og byggemåte
Eiendommen
Krokåsen 7, 3370 VIKERSUND
Kommunenummer 3316, gårdsnummer 72, bruksnummer 66, ideell andel 1/1
Innhold
Boligen har en planløsning hvor det syntes praktisk å etablere en hybel (se pkt. adgang til utleie).
BRA-i (internt bruksareal)
1. etasje:
190 kvm: Stue, kjøkken, hall, soverom, garderoberom, bad, gang, wc-rom, vaskerom og garasje.
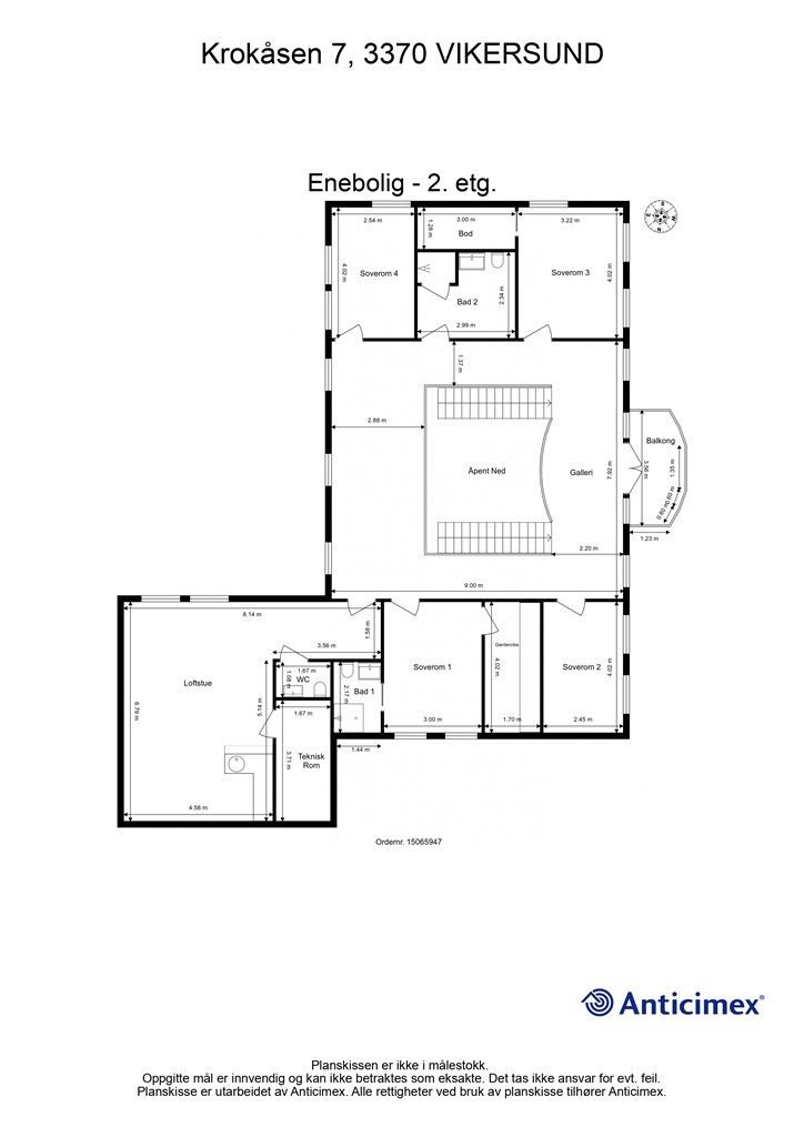
2. etasje:
179 kvm: Galleri, 2 bad, 4 soverom, garderoberom, bod, loftstue, wc-rom og teknisk rom.
BRA-e (eksternt bruksareal)
1. etasje:
16 kvm: Bod.
TBA (terrasse- og balkongareal)
1. etasje:
90 kvm: Uteplass.
2. etasje:
6 kvm: Balkong.
De oppgitte arealer er hentet fra rapport utført av Petter Sem. Arealene er beregnet og rom er definert etter dagens faktiske bruk, uavhengig av hva som er godkjent av bygningsmyndighetene.
Byggemåte
Selger har fått utarbeidet en tilstandsrapport for eiendommen, dvs. en teknisk gjennomgang av boligen hvor eventuelle avvik, risiko for kjøper og prisoverslag for hva som bør gjøres av oppgradering, er skissert. Se særskilt TGIU (tilstandsgrad ikke undersøkt), samt TG2 og TG3 som viser hva som er avvik fra boligens normale slitasje, alder og type, eller som bør/må utbedres. Rapporten og selgers egenerklæring er en del av salgsoppgaven og må leses nøye før bud inngis. Kjøper overtar ansvaret for de opplysninger som fremkommer av salgsdokumentasjonen, og kan ikke gjøre gjeldende som mangel noe som burde vært kjent eller som ikke kan anses å ha betydning for avtalen.
Bygningen er iht. tilstandsrapport, oppført på ringmur/grunnmur av thermoelementer med støpt gulv mot grunn. Yttervegger av trekonstruksjon kledd med liggende trekledning. Etasjeskiller av trekonstruksjon. Helvalmede kombinerte takflater tekket med takstein. Dører og vinduer fra byggeår. Profilert to-fløyet ytterdør. Tofløyet balkongdører med 2-lags glass. Profilert ytterdør med glassfelt til garasje. Vinduer med 2-lags glass. Karm og rammer av tre. Alarmsystem med skallsikring på alle vinduer samt dører og det er IR-detektor i alle rom. Les forøvrig mer om byggemåte og den tekniske tilstanden i rapporten.
I rapporten fremkommer det som takstmannen mener kjøper må være særskilt oppmerksom på, dette gjelder blant annet (se utfyllende tekst i rapporten):
Følgende kontrollpunkter/forhold har blitt tildelt TG3:
Det er ingen punkter som har blitt tildelt TG3.
Følgende kontrollpunkter/forhold har blitt tildelt TG2:
- Bad (1. etasje), bad 1 (2. etasje) og bad 2 (2. etasje): Det kan ikke verifiseres om toalettsisternen er tilstrekkelig sikret med vanntett sjikt eller om utførelsen er korrekt utført. Det er usikkert hvordan overgangen fra tettesjikt bak sisternekasse til tettesjikt på vegg er ivaretatt. Det er synlig organisk materiale i drenspalte.
- Toalettrom (1. etasje og 2. etasje): Løsning med hensyn til drenering fra innebygget sisterne kan ikke verifiseres å være fullgod med hensyn til synliggjøring av lekkasjevann/lekkasjesikkerhet ved en eventuell lekkasje fra innebygget sisterne. Det er usikkert hvordan overgangen fra tettesjikt bak sisternekasse til ytterside vegg er ivaretatt.
- Andre rom (garasje - 1. etasje): Det observeres stedvis tegn til riss i veggflater.
- Drenering: Grunnmurens utvendige fuktsperre er stedvis ikke avsluttet med beslag/topplist.
Følgende kontrollpunkter/forhold har blitt tildelt TGIU (tilstandsgrad ikke undersøkt):
- Vaskerom (1. etasje): På grunn av våtrommets utforming og bruk er det ikke praktisk mulig å gjennomføre hulltaking og fuktmåling i et område som regelmessig utsettes for bruksvann, og som vurderes å være det området hvor skader erfaringsmessig forekommer. Det ble utført et overflatesøk med fuktindikator på utvalgte steder, uten funn som indikerer fuktskader, også i områdene hvor hulltaking ville vært mulig. Alle disse forholdene utgjør grunnlaget for vurderingen om at hulltaking var unødvendig, og undersøkelse av lukkede konstruksjoner er derfor ikke utført.
- Loft (uinnredet/kaldt loft): Det er valgt å vurdere boligens uinnredede loft (og tilhørende bygningsdeler) med en samlet helhetsvurdering. Følgende hovedmomenter er lagt til grunn for vurderingen: Det er etablert inspeksjonsluke i loftstue og i garderobe ved soverom 1 men ifølge selgers opplysninger er himling isolert med blåseisolasjon og luker er kun ment for nødinspeksjon av arealet. Kaldtloft er av den grunn ikke inspisert, med den konsekvens at det ikke kan sies noe om eksakt utførelse og tilstand.
- Yttervegger inkl. fasader: Det har ikke vært mulig å kontrollere om ytterkledningen er sikret mot inntrekk av gnagere.
- Yttertak: Det er valgt å vurdere yttertaket med en samlet helhetsvurdering. Følgende hovedmomenter er lagt til grunn for vurderingen: På bakgrunn av at ventilasjonen av takkonstruksjonen ikke kan kartlegges og undersøkes fra innsiden, foreligger det en usikkerhet om hvordan/om denne funksjonen er ivaretatt. Taket er ikke fysisk inspisert grunnet is og snø (sikkerhetsmessige forhold).
- Terrasse/platting (1. etasje): Terrassen/uteplassen er på befaringstidspunkt ikke all hovedsak snødekket og av den grunn ikke fullstendig vurdert.
- Stikkledninger og tanker: Felles renseanlegg er ikke inspisert eller vurdert i denne rapporten.
- Andre utvendige forhold: Boden er på befaringstidspunktet ikke tilgjengelig for inspeksjon.
Det anbefales ytterligere undersøkelser av disse punktene.
Se vedlagt tilstandsrapport for supplerende informasjon vedrørende boligens tilstand.
Tilstandsrapporten og selgers egenerklæring er vedlagt salgsoppgaven. Interessenter må sette seg inn i dokumentene før bud inngis.
Standard
Fra gårdsplassen er det adkomst til boligens overbygde inngangsparti i 1. etasje.
1. etasje
Stue: Lys stue med sofaområde. Delvis åpen løsning mot kjøkkenet. Flere vindusflater langs to yttervegger, som gir godt med lysinnslipp. Innfelte Sonos høyttalere i himling. Downlights i tak og gulvvarme. Parkett på gulv, malte vegger og malt himling.
Kjøkken: Pent og profilert Sigdal kjøkken fra 2021 med helintegrerte hvitevarer. Takhøy innredning med over- og underskap samt høyskap i grå utførelse. Tilsvarende utførelse på en praktisk kjøkkenøy med barløsning. Lysarmaturer under overskap. Benkeplater av laminat. Videre er kjøkkenet utstyrt med fryseskap, oppvaskmaskin, lekkasjestopper, oppvaskkum, ventilator, komfyrvakt, platetopp, mikrobølgeovn i høyskap, stekeovn i høyskap og kjøleskap. Innfelte Sonos høyttalere i himling. Downlights i tak og gulvvarme. Parkett på gulv, malte vegger og malt himling.
Hall: Flott og herskapelig hall/spisestue med dobbel trappeløp til 2. etasje. Det er god plass til stort møblement. Rommet er gjennomgående med mye lysinnslipp. Det er delvis åpent mellom 1. etasje og 2, som gir en luftig atmosfære til rommet. Stor lysekrone som gir rommet det lille ekstra (lysekrone medfølger). Mitsubishi luft-til-luft varmepumpe fra 2021 (utført service i 2023) med strømstyring via Tibber. Innfelte Sonos høyttalere i himling. Downlights i tak og gulvvarme. Parkett på gulv, malte vegger og malt himling. Utgang til romslig vestvendt uteplass på ca. 90 kvm belagt med belegningsstein (2022). Tilgang til en tilliggende romslig bod på ca. 16 kvm med utvendig adkomst, i tilknytning til uteplassen. Videre er det adkomst til et lettstelt hageområde på siden av boligen. Hagen har sol fra ca. kl. 11.00 til solnedgang (midtsommerstid) iflg. selger.
Soverom 5: Innfelte Sonos høyttalere i himling. Downlights i tak og gulvvarme. Parkett på gulv, malte vegger og malt himling. Tilgang til eget bad og garderoberom.
Garderoberom: Åpen garderobeløsning med hyller, klesskinner og skuffer. Downlights i tak og gulvvarme. Parkett på gulv, malte vegger og malt himling.
Bad: Heldekkende servant over servantskap i hvit og glatt utførelse. Speil og lysarmatur over servant. Videre er badet utstyrt med vegghengt toalett og dusjhjørne med foldedører av glass. Downlights i tak og gulvvarme. Fliser på gulv, fliser på vegger og malt himling.
Gang: Skyvedørsgarderobe med speilfronter. Downlights i tak og gulvvarme. Parkett på gulv, malte vegger og malt himling.
Wc-rom: Servant over servantskap i hvit og glatt utførelse. Speil over servant. Vegghengt toalett. Downlights i tak og gulvvarme. Parkett på gulv, malte vegger og malt himling.
Vaskerom: IKEA skapinnredning med over- og underskap i hvit samt glatt utførelse. Nedfelt utslagsvask i benkeplate av laminat. Speil med lysarmatur over vask. Vegghengt tørkestativ/tørkeskinner. Opplegg for vaskemaskin og tørketrommel i innredningen. Downlights i tak og gulvvarme. Fliser på gulv, malte vegger og malt himling. Selger opplyser om noe svelling på benkeplate og én skapfront. Utgang til dobbelgarasje.
2. etasje
Galleri: Luftig og lyst galleri med god plass til møblement. Rommet er gjennomgående med mye lysinnslipp. To trapper til 1. etasje. Det er delvis åpent mellom 1. etasje og 2. etasje. Downlights i tak og gulvvarme. Parkett på gulv, malte vegger og malt himling. Utgang til overbygget vestvendt balkong på ca. 6 kvm med utvendige downlights i tak. Balkongen har flott utsikt fra høyden.
Bad 2: Heldekkende servant over servantskap i mørk og glatt utførelse. Speil og lysarmatur over servant. Videre er badet utstyrt med vegghengt toalett og dusjnisje med dusjdør av glass samt flislagt benk. Downlights i tak og gulvvarme. Fliser på gulv, fliser på vegger og malt himling. Selger opplyser om at det er innkjøpt et høyskap i tilsvarende utførelse som servantinnredningen, denne er ikke montert per dags dato men medfølger i handelen.
Soverom 1: Downlights i tak og gulvvarme. Parkett på gulv, malte vegger og malt himling. Tilgang til eget bad og garderoberom.
Garderoberom: Åpen garderobeløsning med hyller, klesskinner og skuffer. Downlights i tak og gulvvarme. Parkett på gulv, malte vegger og malt himling.
Bad 1: Heldekkende servant over servantskap i hvit og glatt utførelse. Speil og lysarmatur over servant. Videre er badet utstyrt med vegghengt toalett og dusjhjørne med foldedører av glass. Downlights i tak og gulvvarme. Fliser på gulv, fliser på vegger og malt himling.
Soverom 2: Downlights i tak og gulvvarme. Parkett på gulv, malte vegger og malt himling.
Soverom 3: Downlights i tak og gulvvarme. Parkett på gulv, malte vegger og malt himling. Tilgang til bod.
Soverom 4: Downlights i tak og gulvvarme. Parkett på gulv, malte vegger og malt himling.
Loftstue: Loftstue innredet med sofaområde og treningsapparater. Skapinnredning med over- og underskap i mørk samt glatt utførelse. Videre har innredningen benkeplater av laminat, nedfelt vask i benkeplate, integrert oppvaskmaskin og lekkasjestopper. Mitsubishi luft-til-luft varmepumpe fra 2017 (utført service i 2023) med strømstyring via Tibber. Downlights i tak og gulvvarme. Parkett på gulv, malte vegger og malt himling. Tilgang til teknisk rom/bod.
Wc-rom: Speil over servant. Vegghengt toalett. Downlights i tak. Parkett på gulv, malte vegger og malt himling.
Generelt om boligen: Det er etablert smarthus styringssystem i tilknytning til lys, varme og screens i boligen. Alle funksjoner på smarthuset kan styres fra skjermer som er installert flere steder i boligen, herunder alle bad, loftstue og kjøkken. Boligen har komplett utendørs videoovervåkning med opptaker. Appstyrt ringeklokke med kamera. Det er brannvarslerne i alle hovedrom og alle soverom. Balansert ventilasjonsanlegg med varmegjenvinning i boligen. Flexit Uni 4R ventilasjonsaggregat (skiftet filter og inspisert/rengjort i februar 2025), plassert i teknisk rom. Høiax Titanium expand 300 varmtvannsbereder, plassert i vaskerom. Sikringsskap med automatsikringer, plassert i teknisk rom og i garasje. Selger opplyser om at boligen ble oppusset i 2021 ifbm. en mindre brann som var forårsaket av en feilmontering av pipe. Ifbm. dette ble yttervegg ved ildsted byttet og store deler av 1. etasje ble rehabilitert med nye vegger, isolasjon, gulv, gulvvarme, elektro, maling og kjøkken.
Løsøre og tilbehør
Integrerte hvitevarer på kjøkkenet medfølger i handelen, dette gjelder fryseskap, oppvaskmaskin, platetopp, mikrobølgeovn, stekeovn og kjøleskap.
Integrerte hvitevarer i loftstue medfølger i handelen, dette gjelder oppvaskmaskin.
Selger opplyser om at det er innkjøpt et høyskap til bad 2 i 2. etasje, denne er per dags dato ikke montert men medfølger.
Solarium i teknisk rom/bod, pizzaovn på uteplassen, innredning i garasjen og innredning i uteboden medfølger ikke.
Videre vises det til liste fra Norges Eiendomsmeglerforbund angående løsøre og tilbehør. Produkter og installasjoner som medfølger overdras uten noen form for garantier, utover eventuell gjenværende leverandørgaranti.
Oppvarming
Balansert ventilasjon med varmegjenvinning. Luft-til-luft varmepumpe i hall og loftstue. Alle rom i boligen (unntatt boder) har elektrisk gulvvarme.
Selger opplyser om at boligen er opprinnelig oppført med pipe og ildsted, disse har blitt fjernet i ettertid men det er tilrettelagt for at pipen kan re-monteres. Pris på re-montering av stålpipe er innhentet av selger, pris (mai 2025) kr. 63.275,- inkl. mva. Det gjøres oppmerksom på at installasjon av ildsted forutsetter melding til Feiervesenet.
Dersom det ikke er vegg- eller fastmonterte varmekilder i beboelsesrom ved visning, følger dette heller ikke med.
Ferdigattest/brukstillatelse
Det foreligger ferdigattest på eiendommen datert 20.06.2016, som omfatter oppføring av enebolig og dispensasjon. I tillegg er det tilhørende godkjente byggetegninger fra 2015.
Det er gitt tillatelse til omregulering av bod til loftstue/stue datert 09.05.2023, i tillegg er det tilhørende godkjente byggetegninger fra 2023. Tillatelsen innebærer bruksendring fra tilleggsdel (bod) til hoveddel (loftstue/stue), uten bygningsmessige endringer. Tiltaket har blitt ferdigstilt med ferdigattest.
Kjøper overtar eiendommen slik den framstår på visning.
Tinglyste heftelser og rettigheter
Eiendommen overdras fri for pengeheftelser.
Dagboknummer: 942549
Tinglysningsdato: 15.08.2019
Servitutten omhandler: Eiendommen har veirett over gnr. 72/bnr. 1 til egen bolig. Rettigheten hefter i gnr. 72/bnr. 1.
Servitutten vil følge eiendommen. Kjøpers bank vil få pant etter ovennevnte heftelser og servitutter som ikke skal slettes ved overdragelse.
Eventuell adgang til utleie
Eiendommen har ikke separat utleieenhet. Det vil normalt være anledning til utleie av hele eiendommen eller enkeltrom, såfremt utleiearealet er bygningsmessig godkjent for varig opphold og har forsvarlige radonnivåer.
Boligen har en planløsning hvor det syntes praktisk å etablere en hybel til utleie over garasjen (nåværende loftstue, teknisk rom, wc-rom, bad 1 og soverom 1). Dog kreves det oppføring av en utvendig trapp med innsetting av ytterdør til en evt. hybel, dette er et søknadspliktig tiltak. Utfallet av en søknad ifbm. tiltaket vites ikke, men det må tas høyde for at søknaden kan bli avslått. Det må forventes at det påløper kostnader ved en evt. søknadsprosess. Kjøper bærer risiko for forholdet ved en eventuell etablering av hybel.
Diverse
Vi er opptatt av verdiskapning, og har knyttet til oss samarbeidspartnere som skal sikre våre kunder de beste produkter og tjenester;
• Gjensidige leverer boligselgerforsikring og tilbyr bygningsforsikring
• Boligkjøperforsikring leveres av Hiscox og med Sedgwick som skadebehandler, og er formidlet gjennom Gjensidige.
• BN bank tilbyr finansieringsløsninger
• Vår avdeling Krogsveen Pluss tilbyr flyttetjenester som utvask, visningsvask, lager, tømming og transport av flyttelass, i tillegg til å formidle kontakt med Flip for overflateoppussing.
• I forbindelse med overtagelse av eiendommen tilbyr Overo avtale om strøm, alarm og bredbånd.
• Krogsveen er, sammen med øvrige bransjeaktører, medeier i den digitale annonseringsplattformen Hjem.
Energimerking
Boliger med energikarakter A eller B er mer energieffektive, denne boligen har fått tildelt energikarakter B. Det gir mulighet for et «Grønt boliglån» (billigere boliglån) hos flere banker. Krav, vilkår og betingelser vil variere mellom bankene.
Komplett energiattest inkludert oppvarmingskarakter fås ved henvendelse til megler eller lastes ned fra www.krogsveen.no.
Beliggenhet og tomteforhold
Beliggenhet og tomteforhold
Beliggenhet
Eiendommen er beliggende sentralt og barnevennlig til på attraktive Sysle. Boligen er plassert høyt og fritt i et rolig boligfelt med kun fire eneboliger. Beliggende i en privat blindvei, som medfører ingen gjennomgangstrafikk og generelt lite trafikk. Området er ideelt for barnefamilier, med nærhet til lekeplasser og friluftsområder. Eiendommen tilhører Sysle barneskole med SFO som også er innen gangavstand, skolen legger stor vekt på uteskole, lokalhistorie og nærmiljø. I tillegg har skolen et stort uteområde med ballbaner, hoppbakke, sykkelløype, skogkruller og lekeapparater. Det er også flere barnehager som er lett tilgjengelig med bil.
Vikersund sentrum ligger cirka 10 minutters kjøretur unna, hvor du finner et bredt utvalg av butikker, kjøpesenter, bensinstasjon, spisesteder, vinmonopol, post-i-butikk og bank, samt ungdomsskole.
Det er kort vei til flotte turmuligheter både sommer og vinter. Snarumselva ligger i nærheten, med gode forhold for fiske og bading. Om vinteren kan man benytte seg av lysløype og oppkjørte skiløyper knyttet til boligfeltet på Sysle. Modum byr på vakker natur som passer perfekt for både barnefamilier og friluftsentusiaster året rundt. Området har et bredt utvalg av tilrettelagte turstier og kulturstier med varierende terreng og vanskelighetsgrad.
Vikersund tilbyr et bredt spekter av idrettsanlegg, inkludert en flott friidrettsbane, skøytebane, curlingbane og svømmehall. Vikersund Alpinanlegg er et moderne anlegg for både snowboard og alpint, med eget skitrekk. Vikersund Hoppsenter har fem hoppbakker, hvorav tre er plastbelagte, og anlegget inkluderer to store haller, hvorav én har kunstgress for helårstrening i fotball. I tillegg finnes det et rikt utvalg av idrettslag og foreninger som tilbyr aktiviteter for alle aldre og nivåer.
Kun en kort kjøretur fra eiendommen ligger Blaafarveværket og Koboltgruvene, et 8 km langt museum som er en av Norges mest besøkte turistattraksjoner. Museet kombinerer kunst, kultur og natur, med årlige kunstutstillinger, barnas bondegård og guidede turer i gruveanlegg fra 1800-tallet. I tillegg tilbyr museet tre koselige spisesteder med hjemmelaget mat, og i sommerhalvåret arrangeres gratis søndagskonserter.
Det er ca. 30 minutters kjøring til Hokksund, ca. 35 minutter til Hønefoss og ca. 45 minutter til Drammen.
Adkomst
Det vil bli skiltet med Krogsveen visningsskilt ved fellesvisninger. Se kart i nettannonse eller Google Maps for nærmere veibeskrivelse. Velkommen til visning!
Barnehager, skoler og fritid
Barnehager: Lønneberget barnehage (2,5 km), Bøen barnehage (3,4 km), Brunes naturbarnehage (6,3 km).
Skoler (tilhørende skolekretser): Sysle barneskole (1,1 km) og Nordre Modum ungdomsskole (6,8 km).
Det ligger flere videregående skoler i Hokksund og Åmot.
Dersom skole- og barnehagetilbud er av betydning for kjøpet, ber vi om at det rettes en særskilt henvendelse til kommunen for oppdatert informasjon.
Beskrivelse av tomt
Eiertomt på 1 266 kvm. Delvis skrånende tomt i to nivåer. Hageområdet er lettstelt og er opparbeidet med gressplen samt omkranset av hekk. Belegningsstein rundt boligen fra 2022. Asfaltert innkjørsel og gårdsplass. Lagt varmekabler i oppkjørselen (bakken) og deler av gårdsplassen. Forøvrig består tomten av naturtomt med fjell.
Parkering
Parkering i integrert dobbelgarasje. Det er innvendig adkomst til boligens vaskerom fra garasjen.
Montert to ladere for el-bil i garasjen med strømstyring via Tibber.
Forøvrig er det godt med biloppstillingsplasser på asfaltert gårdsplass.
Vei, vann og avløp
Eiendommen har adkomst via privat vei med felles vedlikeholdsansvar.
Eiendommen er tilknyttet kommunal vannledning via private stikkledninger. Eier er selv ansvarlig for private stikkledninger til boligen.
Eiendommen har privat minirenseanlegg, avløpsløsningen er felles mellom fire eiendommer (Krokåsen 11, 7, 17 og 19). Kommunen har en generell hjemmel til å kreve at eiendommer med privat septiktank kobler seg til det offentlige avløpsnettet. Kontakt megler for ytterligere informasjon.
Regulerings-og arealplaner
Eiendommen er regulert til boligbebyggelse - frittliggende småhusbebyggelse, i henhold til detaljreguleringsplan for Krokåsen datert 01.11.2010. Videre er eiendommen avsatt til boligbebyggelse ved Kommuneplan Modum kommune 2016-2027 datert 04.02.2019. Eiendommen omfattes i tillegg av Kommunedelplan for Kulturminner datert 10.05.2021 med tilhørende bestemmelser. Utsnitt av planer med tilhørende bestemmelser kan fås ved henvendelse til megler.
Del av naboeiendommen mot nord/mot Krøderveien gnr. 72/bnr. 1 (privateid), er per dags dato ubebygd og består av skogsarealer. Iht. kommuneplanen datert 04.02.2019 er området avsatt til boligbebyggelse. Selger har ikke mottatt nabovarsel eller kjenner til eventuelle utbyggingsplaner for eiendommen.
Økonomi
Økonomi
Kommunale utgifter
Kommunale avgifter (vann): kr 7.428,- pr. år (2 terminer), fakturert på eiendommen i 2024.
Renovasjonskostnader: kr 4.930,- pr. år (2 terminer). Type renovasjonsordning: Standard renovasjon, 2025.
Avløpsanlegg (felles minirenseanlegg - Eco Solutions WehoPuts 50): kr 2.416,- pr. tømming (min. hvert år), kostnaden fordeles mellom fire eiendommer. Tømmes av Arnkværn Miljø og Renovasjon - sist tømt 19.12.2024, tømmefrekvens er avhengig av bruken av anlegget.
Anleggstype: Slamavskiller, totalt 3 m3. Det må i tillegg påregnes kostnader til årlig tilsyn av tanken, dette koster kr 633,- pr. år (kostnaden fordeles mellom fire eiendommer).
Kommunestyret har vedtatt en forskrift om utslipp av sanitært avløpsvann fra bolighus, hytter mv. Her gis det hjemmel for å kreve oppgradering av eksisterende avløpsanlegg.
Tilsynet for små avløpsanlegg har vurdert eiendommens avløpsanlegg. Fra opplysningene Tilsynet har tilgjengelig er anlegget tilfredsstillende dimensjonert og det ble gitt utslippstillatelse i 2011 (opplyst om endring av type minirenseanlegg i 2015). Det må likevel forventes krav om utbedring, dersom anlegget ikke klarer rensekravene - pr. mars 2025 opplyser Tilsynet om at anlegget tilfredsstiller rensekravene til avløpsanlegg i området. Det kan på sikt forventes krav om tilknytning til offentlig avløpsnett. Konferer med megler for mer informasjon.
Selger opplyser om at det betales kr. 1.000,- pr. måned til velforening, til drift og vedlikehold av Kroksåsens renseanlegg og vintervedlikehold av vei.
Det må påregnes kostnader til strøm og nettleie, dette vil variere avhengig av strøm-/nettselskap. Selger har ikke opplyst om forbruk/kostnader til strøm.
For denne boligen er det inngått avtale om Norgespris i stedet for strømstøtte, avtalen på kr 50 øre inkl. mva følger eiendommen og har en bindingstid frem til 31.12.2026. Nettleie, avgifter og påslag fra kraftleverandøren kommer i tillegg. Er det fjernvarme vil det også komme kostnader i tillegg. Les mer om Norgespris her: https://www.regjeringen.no/no/aktuelt/legg-fram-lov-om-norgespris-pa-straum-og-fjernvarme/id3102642/
Boligen har en årlig forsikringspremie via Gjensidige på ca. kr 14.000,- pr. år.
Boligen er tilknyttet Modum kabel-TV som leverandør av tv og boligen er tilknyttet fiber. Selger har ikke opplyst om kostnader til tv/internett, kostnaden varierer avhengig av antall kanalvalg og hastighet på internettet.
Nåværende eier har installert alarmanlegg for innbrudd og brann, som er tilknyttet vekterselskap. Denne blir sagt opp og kjøper kan selv velge om alarm er ønskelig.
Det må påregnes kostnader til tv/internett og innboforsikring.
Ovenstående er basert på nåværende eier/husstands senere års forbruk/utgifter. Dette vil variere avhengig av antall beboere, ønsket innetemperatur, egne fordelsavtaler, kanalvalg, hastighet på bredbånd m.m.
Formuesverdi
Formuesverdi for 2023 var kr 1 917 206,- ifølge skatteetaten. Beløpet forutsetter at eier bor fast i boligen (primærbolig).
Ved eventuell øvrig bruk av eiendommen (f.eks. fritidsbolig, pendlerbolig, utleieobjekt) var formuesverdien for 2023 kr 7 668 823,-.
Formuesverdien justeres normalt årlig. Se skatteetaten.no for mer informasjon om fastsettelse av formuesverdien.
Omkostninger
7 980 000,00 Prisantydning
Omkostninger
199 500,00 Dokumentavgift til staten (2,5% av kjøpesum)
19 900,00 Gjensidige Boligkjøperpakke (valgfri)
545,00 Tinglysing panterettsdokument
545,00 Tinglysing skjøte
--------------------------------------------------------
220 490,00 Omkostninger totalt
--------------------------------------------------------
8 200 490,00 Totalpris inkl. omkostninger
--------------------------------------------------------
Totalpris inkl. omkostninger forutsetter kjøp til prisantydning.
Det tas forbehold om endringer i avgifter og gebyrer.
Tilbud om lånefinansiering
Megler formidler gjerne kontakt med rådgiver hos vår samarbeidspartner BN Bank. De har konkurransedyktige betingelser samt rask og løsningsorientert behandling av din lånesøknad. Krogsveen mottar et honorar for denne formidlingen.
Betalingsbetingelser
Kjøpesum inkludert omkostninger, samt pantedokument tilknyttet eventuelt lån, skal være disponibelt hos megler 2 virkedager før overtagelsen.
Annen viktig informasjon
Annen viktig informasjon
Eier
Magne Hæhre og Heidi Hæhre Ulriksen
Overtakelse
Etter nærmere avtale.
Velforening
Boligen er tilknyttet Krokåsen Velforening.
Velforeningen har ansvar for felles vei, lekeplass og renseanlegg.
Selger opplyser om at det betales kr. 1.000,- pr. måned til velforening, til drift og vedlikehold av Kroksåsens renseanlegg og vintervedlikehold av vei.
Selger opplyser om at det er pliktig medlemskap i velforeningen, dette er ikke tinglyst på eiendommen.
Boligselgerforsikring
Selger har i forbindelse med salget tegnet boligselgerforsikring levert av Gjensidige.
Boligselgerforsikringen dekker selgers ansvar etter avhendingsloven begrenset oppad til kr 14 millioner. Dersom kjøper oppdager forhold ved eiendommen som hen mener utgjør en mangel ved eiendommen, vil Gjensidige behandle reklamasjonen på vegne av selger. Forsikringsvilkår kan fås ved henvendelse til megler.
Vedlagt salgsoppgaven følger selgers egenerklæringsskjema og tilstandsrapport. Interessenter må sette seg inn i dokumentene før bud inngis.
Boligkjøperforsikring
Innen kontraktsmøtet må kjøper ta stilling til om det ønskes å bestille Boligkjøperpakken gjennom Gjensidige. I denne gunstige pakken er boligen ferdig forsikret og inkluderer rettshjelpsforsikring, også kalt Boligkjøperforsikring. Rettshjelpsforsikring gir trygghet og tilgang på profesjonell juridisk hjelp dersom det oppdages uventede feil eller mangler det første året etter overtagelse. Forsikringsselskapet behandler i så fall ethvert mangelskrav kjøper måtte ha overfor selger.
Boligkjøperpakken inkluderer bygningsforsikring for hus og hytte, innboforsikring, flytteforsikring og dobbel rentedekning - i situasjoner hvor kjøper ikke får solgt nåværende primærbolig.
Kjøper mottar ingen særskilt faktura for Boligkjøperpakken da kostnaden det første året legges til kjøpesummen for boligen. Det gjøres oppmerksom på Krogsveen mottar et honorar for denne formidlingen.
Produktark for Boligkjøperpakken ligger vedlagt i salgsoppgaven.
Dersom ikke boligkjøperpakke ønskes kan kun rettshjelpsforsikring, også kalt boligkjøperforsikring, tegnes særskilt via megler. Rettshjelpsforsikringen varer i 5 år fra overtagelse og leveres gjennom Gjensidige. Ta kontakt med megler for ytterligere informasjon.
Selskap og privatpersoner som driver med kjøp/salg/utvikling som ledd i egen næringsvirksomhet kan ikke tegne boligkjøperpakke eller rettshjelpsforsikring.
Budgivning
Forbrukerinformasjon om budgivning er vedlagt denne salgsoppgaven og er også på vår hjemmeside Krogsveen.no. Alle bud og budforhøyelser må inngis skriftlig. I tillegg må legitimasjon være fremlagt sammen med signatur fra budgiver.
Vi oppfordrer til å gi bud elektronisk via GI BUD-knappen på eiendommens hjemmeside på Krogsveen.no. Da vil samtlige vilkår bli oppfylt.
Eventuelle forhøyelser eller endringer av budet kan bekreftes pr SMS eller på e-post. Vi oppfordrer alltid til å kontakte megler pr. telefon i tillegg da forsinkelser i SMS og e-post kan forekomme.
For at budene skal kunne bli behandlet og videreformidlet skriftlig til alle involverte parter, må alle bud ha en tilstrekkelig lang akseptfrist, jf. eiendomsmeglingsforskriften § 6-3.
Selger må også skriftlig akseptere budet før aksept kan formidles til budgiver. Akseptfrist bør derfor være på minimum 30 minutter, og budforhøyelser må derfor skje i god tid før fristens utløp.
Bud i forbrukerforhold kan uansett ikke settes med kortere frist enn kl. 12.00 første virkedag etter siste annonserte visning. I tillegg kan ikke budet ha forbehold om at det skal holdes hemmelig ovenfor øvrige interessenter. Megler har iht lov om eiendomsmegling ikke anledning til å videreformidle disse budene, og de vil dermed heller ikke bli journalført.
Etter at eiendommen er solgt vil kjøper og selger få tilsendt budjournal. Øvrige budgivere kan få utlevert kopi av budjournalen i anonymisert form.
Hvitvaskingsreglene
I henhold til lov om hvitvasking og terrorfinansiering har megler plikt til å gjennomføre kontrolltiltak overfor kunder, herunder fullmektiger. Dette innebærer bl.a. å bekrefte kunders og reelle rettighetshaveres identitet på bakgrunn av fremvist gyldig legitimasjon eller på annen godkjent måte, samt å innhente opplysninger om kundeforholdets formål og tilsiktede art.
Dersom slike kundetiltak ikke kan gjennomføres, kan megler ikke etablere kundeforholdet eller utføre transaksjonen.
Hvis kjøper ikke bidrar til gjennomføring av kundekontrollen og dette fører til at transaksjonen blir forsinket eller ikke kan gjennomføres, vil dette ansees som mislighold av avtalen og gi selger rettigheter etter avhendingslova kapittel 5. I tilfeller der selger ikke bidrar til gjennomføring av løpende kundekontroll underveis i oppdraget, er det selger som misligholder sine forpliktelser etter avtalen og gi kjøper rettigheter etter avhendingslovens kapittel 4. Partene er selv ansvarlige for eventuelle kostnader og ansvar dette kan medføre. Eiendomsmegleren eller eiendomsmeglingsforetaket kan ikke holdes ansvarlig for de konsekvenser dette vil kunne få for partene eller andre som har interesser i eiendomshandelen.
Kjøper oppfordres til å innbetale kjøpesummen som ikke kommer fra låneinstitusjon i én samlet innbetaling fra egen konto i norsk bank. Megler har plikt til å melde fra til Økokrim om eiendomshandler som fremstår som mistenkelige. Melding sendes Økokrim uten at partene varsles.
Personopplysningsloven
I henhold til personopplysningsloven gjør vi oppmerksom på at interessenter kan bli registrert for videre oppfølging.
Lovanvendelse
Generelle bestemmelser
Salgsoppgaven er basert på de opplysningene selger har gitt til megler, den bygningssakyndiges tilstandsrapport, samt opplysninger innhentet fra kommunen, Kartverket og andre tilgjengelige kilder. Det er viktig at kjøper setter seg grundig inn i alle salgsdokumentene, herunder salgsoppgave, tilstandsrapport og selgers egenerklæring. Kjøper anses kjent med forhold som er tydelig beskrevet i salgsdokumentene, og slike forhold kan ikke påberopes som mangler. Dette gjelder uavhengig av om kjøper har lest dokumentene. Alle interessenter oppfordres til å undersøke eiendommen nøye, gjerne sammen med fagkyndig før bud inngis. Kjøper som velger å kjøpe usett kan ikke gjøre gjeldende som mangel noe han burde blitt kjent med ved undersøkelsen.
Dersom det er behov for avklaringer, anbefaler vi at interessenter rådfører seg med eiendomsmegler eller egne rådgivere før det legges inn bud.
En bolig som har blitt brukt i en viss tid, har vanligvis blitt utsatt for slitasje og skader kan ha oppstått. Slik bruksslitasje må kjøper regne med, og det kan avdekkes enkelte forhold etter overtakelse som nødvendiggjør utbedringer. Normal slitasje og skader som nødvendiggjør utbedring, er innenfor hva kjøper må forvente og vil ikke utgjøre en mangel.
Kjøper og selgers rettigheter og plikter reguleres av avtalen mellom partene, samt informasjonen som har vært tilgjengelig for kjøperen i forbindelse med handelen. Avtalen utfylles av avhendingsloven, og det gjelder ulike avtalevilkår avhengig av om kjøper er forbrukerkjøper eller ikke. Dette er nærmere beskrevet nedenfor.
På grunn av ulike avtalevilkår kan selger vurdere bud fra en som ikke er forbruker, ulikt fra en forbrukers bud. Dersom kjøper ikke er forbruker, er selger sitt mulige mangelsansvar begrenset fordi eiendommen selges "som den er". Selger kan ikke ta «som den er»- forbehold overfor en forbrukerkjøper. Selv et lavere bud fra en som ikke er forbruker kan foretrekkes fordi begrensningen i mulig mangelsansvar kan ha egenverdi for selger. Selger står fritt til å forkaste eller akseptere ethvert bud, og er for eksempel ikke forpliktet til å akseptere høyeste bud.
Budgiver skal i budskjema avgi egenerklæring om budgiver er forbruker eller næringsdrivende/ person som hovedsakelig handler som ledd i næringsvirksomhet. Budgivere får informasjon dersom andre bud er inngitt av en som ikke er forbruker.
Forbrukerkjøp - definisjon
Med forbrukerkjøp menes kjøp av eiendom når kjøperen er en fysisk person som ikke hovedsakelig handler som ledd i næringsvirksomhet.
Forbruker – avtalevilkår
Eiendommen har en mangel dersom den ikke er i samsvar med kravene som følger av avtalen, eller det foreligger brudd på bestemmelsene i avhendingsloven §§ 3-2 til 3-8. Hvis eiendommen ikke er i samsvar med det kjøperen må kunne forvente ut ifra alder, type og synlig tilstand, kan det være grunnlag for mangelskrav. Det samme gjelder hvis det er holdt tilbake eller gitt uriktige opplysninger om eiendommen. Dette gjelder likevel bare dersom man kan gå ut ifra at det virket inn på avtalen at opplysningen ikke ble gitt eller at mangelskravet ikke blir rettet i tide på en tydelig måte.
Boligen kan ha en mangel etter avhendingsloven § 3-3 andre ledd, dersom det er avvik mellom opplyst og faktisk innvendig areal, forutsatt at avviket er på 2% eller mer og minimum 1 kvm.
Ved beregning av et eventuelt prisavslag eller erstatning må kjøper selv dekke tap/kostnader opptil et beløp på kr 10 000 (egenandel).
Ikke-forbruker (næringsdrivende) – definisjon
Hvis kjøper er en juridisk person, eller en fysisk person som hovedsakelig handler som ledd i næringsvirksomhet, vil kjøpet ikke anses som et forbrukerkjøp.
Ikke-forbruker – avtalevilkår
Eiendommen har en mangel dersom den ikke er i samsvar med kravene som følger av avtalen.
Eiendommen selges «som den er», og selgers ansvar utover det konkret avtalte er da begrenset etter avhendingsloven § 3-9, første ledd andre setning.
Avhendingsloven § 3-3 andre ledd fravikes, og hvorvidt boligens arealsvikt utgjør en mangel vurderes etter avhendingsloven § 3-8.
Informasjon om kjøpers undersøkelsesplikt, herunder oppfordringen om å undersøke eiendommen nøye, gjelder også for kjøpere som ikke anses som forbrukere.
Det forutsettes at hjemmel overføres til kjøper. Hvis kjøper ikke ønsker hjemmelsoverføring av eiendommen, må det tas forbehold om dette i budet.
Meglers vederlag
Meglers vederlag betales av selger og er avtalt til:
Vederlag: 1,00 % av salgssummen
Vederlag
Kontroll av hjemmel og heftelser kr 2 900,00
Markedsføringspakke Ekstra kr 27 250,00
Oppgjør kr 7 500,00
Tilrettelegging kr 17 000,00
Visninger pr stk / Overtagelse kr. 3.000,- (selger gitt en gratisvisning)
Utlegg
Innhenting av off. opplysninger Modum kommune - byggetegn.+ Rfd (Cirka-beløp) kr 6 013,00
Tinglysing sikring kr 500,00
Andre utgifter
Boligselgerforsikring Buysure inkl. tilstandsrapport Anticimex (4,13 promille av salgssum + takstmann kr. 16.950,-) kr 57 217,50
Fotografering med dronebilder (cirkabeløp, avhengig av hvilken pakke vi velger) kr 7 150,00
Innhenting av energiattest hos Ambita kr. 310,- (gjøres gratis for selger) kr 0,00
Tilstandsrapport fra bygningssakkyndig (er inkludert i beløpet over til Buysure /Anticimex) kr 0,00
Opplysninger om oppdraget
Oppdragsnummer 20-0392/24
Eiendomsmegler Krogsveen AS, avd. Drammen
Nedre Storgate 16, 3015, DRAMMEN
950 007 613
Oppdragets KR-kode KR20.24392
Dato
Sist oppdatert: 13. mars 2026 kl. 22:01
Dokumenter
Dokumenter
PDF – 654 KB
PDF – 975 KB
PDF – 1009 KB
PDF – 4 MB
PDF – 754 KB
PDF – 312 KB
PDF – 29 KB
PDF – 127 KB
PDF – 392 KB
Område
Legg til steder som er viktige for deg
Visning
For å delta på visning, ber vi om at du melder deg på. Da sikrer vi at du får nødvendig informasjon og at det er satt av tilstrekkelig med tid. Påmeldingsfrist er kl. 1800 dagen før oppsatt visningsdag. Husk å lese salgsoppgaven før visningen, så du stiller forberedt. NB. Visning utgår dersom det ikke er noen påmeldte.
Ønsker du kun å bli holdt orientert, kan du fra eiendommens hjemmeside få varsel om solgtpris, eller kontakte megler.
Lurer du på noe?
Unngå doble boligrenter
Vi tilbyr gunstig forsikring.
Vurderer du utleie?
Få et tilbud fra Utleie KrogsveenHva koster lånet?
Sjekk estimert lånekostnadVil du varsles om lignende boliger?
Ved å lagre ditt boligsøk hos oss får du beskjed når vi har en bolig som ligner denne, før den legges ut på markedet!

