Tiriltunga 1
6 250 000 kr
141 m²
4 soverom
Solgt
Fjellfoten - Moderne og stilfull familiebolig fra 2022 med solrik terrasse | Carport | Garasje
Prisantydning
6 250 000 krOmkostninger
177 240 krTotalpris
6 427 240 kr
Pris
Bruksareal
180 m²BRA-I (internt bruksareal)
141 m²BRA-E (eksternt bruksareal)
39 m²TBA (terrasse-balkongareal)
36 m²
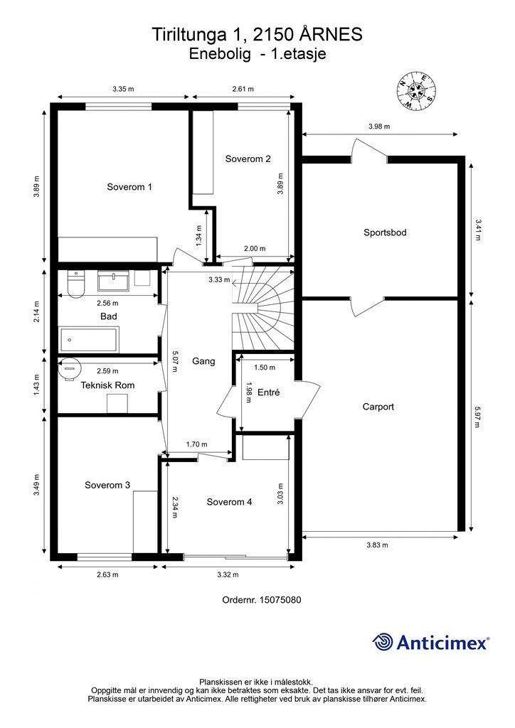
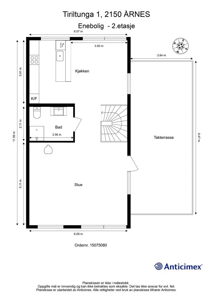
Areal
Etasje
2Byggeår
2022Soverom
4 soveromBad
2 badTomteareal
693 m² (eiet)Type
Enebolig - FrittliggendeEierform
EietFasiliteter
Garasje/P-plassÅrlig velavgift
500 krEnergimerke
Oransje B
Nøkkelinfo
Unngå doble boligrenter
Vi tilbyr gunstig forsikring.
Vurderer du utleie?
Få et tilbud fra Utleie KrogsveenHva koster lånet?
Sjekk estimert lånekostnadBeskrivelse
Kort om eiendommen
Her får du en moderne og stilfull bolig fra 2022, perfekt for både familieliv og trivsel. Hjemmet byr på fire romslige soverom og to lekre bad med delikate materialvalg. I boligens andre etasje finner du en åpen kjøkken- og stueløsning som gir en luftig atmosfære, med utgang til en flott terrasse – ideell for hyggelige måltider eller avslapning i solen. Den praktiske garasjen gir god plass til både biler og lagring. Ute har du en stor, velstelt plen som passer like godt til barnas lek som til sosiale sammenkomster. Boligen ligger i et trafikkstille og barnevennlig område med kort vei til barnehager og kun 10 minutter med bil til Årnes sentrum. Denne boligen kombinerer moderne komfort, gjennomført design og familievennlig beliggenhet – et hjem du virkelig vil trives i.
Område
Legg til steder som er viktige for deg
På flyttefot? Tenk kjøp og salg samtidig.
Få din egen rådgiver gjennom hele kjøps- og salgsprosessen. Det starter med en verdivurdering.
Unngå doble boligrenter
Vi tilbyr gunstig forsikring.
Vurderer du utleie?
Få et tilbud fra Utleie KrogsveenHva koster lånet?
Sjekk estimert lånekostnadVil du varsles om lignende boliger?
Ved å lagre ditt boligsøk hos oss får du beskjed når vi har en bolig som ligner denne, før den legges ut på markedet!




