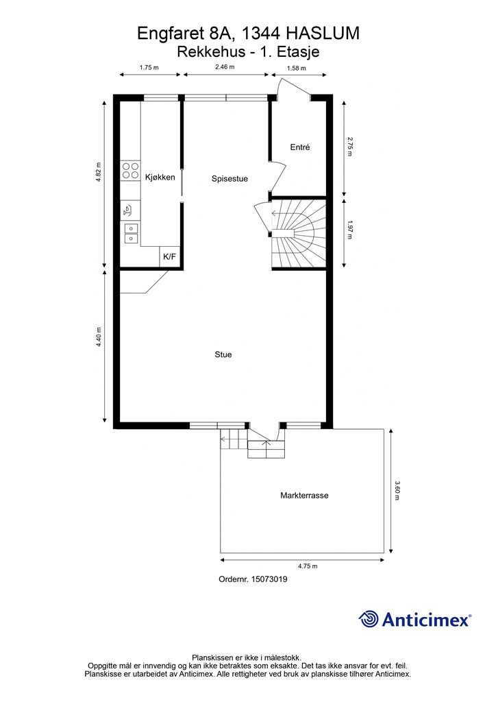
Engfaret 8A
9 950 000 kr
170 m²
4 soverom
Solgt

HASLUM
Nydelig enderekkehus med fantastiske kvaliteter -Flott hage, uteplasser og solforhold. Garasje- Helt stille og rolig!
Prisantydning
9 950 000 krOmkostninger
269 740 krTotalpris
10 219 740 kr
Pris
Bruksareal
176 m²BRA-I (internt bruksareal)
170 m²BRA-E (eksternt bruksareal)
6 m²TBA (terrasse-balkongareal)
17 m²
Areal
Byggeår
1962Soverom
4 soveromBad
2 badTomteareal
442 m² (eiet)Type
RekkehusEierform
EietFasiliteter
Garasje/P-plass og Balkong/TerrasseEnergimerke
Rød G
Nøkkelinfo
Unngå doble boligrenter
Vi tilbyr gunstig forsikring.
Vurderer du utleie?
Få et tilbud fra Utleie KrogsveenHva koster lånet?
Sjekk estimert lånekostnadBeskrivelse
Kort om eiendommen
Lyst og innholdsrikt enderekkehus med god planløsning over tre etasjer. Boligen byr på 4 soverom, 2 stuer, bad fra 2018, vaskerom, 2 wc og flere boder med meget god lagringsplass, samt kamin i stue og peis i kjellerstue – perfekt for familien som ønsker god plass og praktiske løsninger.
Som enderekkehus får du hage på tre sider av boligen gir både privatliv og ekstra boltreplass. Solrik og koselig hage med markterrasse – ideell for småbarnslek og rolige kvelder.
Familieboligen ligger i et meget barnevennlig område med kort vei til barnehage og skole, samt gangavstand til T-bane og buss som gjør hverdagen enkel.
Velkommen til en bolig med varme, funksjonalitet og nærhet til alt familien trenger!
Område
Legg til steder som er viktige for deg
På flyttefot? Tenk kjøp og salg samtidig.
Få din egen rådgiver gjennom hele kjøps- og salgsprosessen. Det starter med en verdivurdering.
Unngå doble boligrenter
Vi tilbyr gunstig forsikring.
Vurderer du utleie?
Få et tilbud fra Utleie KrogsveenHva koster lånet?
Sjekk estimert lånekostnadVil du varsles om lignende boliger?
Ved å lagre ditt boligsøk hos oss får du beskjed når vi har en bolig som ligner denne, før den legges ut på markedet!

